The Project Gutenberg EBook of The ecclesiastical architecture of Scotland
from the earliest Christian times to the seventeenth century; vol. 1/3, by
David MacGibbon

This eBook is for the use of anyone anywhere in the United States and
most other parts of the world at no cost and with almost no restrictions
whatsoever. You may copy it, give it away or re-use it under the terms
of the Project Gutenberg License included with this eBook or online at
www.gutenberg.org. If you are not located in the United States, you
will have to check the laws of the country where you are located before
using this ebook.

Title: The ecclesiastical architecture of Scotland from the earliest
       Christian times to the seventeenth century; vol. 1/3

Author: David MacGibbon
        Thomas Ross

Release Date: December 02, 2020 [EBook #63940]

Language: English

Character set encoding: UTF-8

Produced by: Chuck Greif and the Online Distributed Proofreading Team
             at http://www.pgdp.net (This file was produced from images
             available at The Internet Archive)

*** START OF THE PROJECT GUTENBERG EBOOK THE ECCLESIASTICAL ARCHITECTURE OF
SCOTLAND FROM THE EARLIEST CHRISTIAN TIMES TO THE SEVENTEENTH CENTURY; VOL.
1/3 ***

[Image of the cover
is unavailable.]

Contents.
Index: A, B, C, D, E, F, G, H, I, J, K, L, M, N, O, P, R, S, T, U, V, W.

(In certain versions of this etext [in certain browsers] clicking on the image will bring up a larger version.)

(etext transcriber's note)

{i}

THE ECCLESIASTICAL ARCHITECTURE
OF SCOTLAND

FROM THE EARLIEST CHRISTIAN TIMES TO THE SEVENTEENTH CENTURY. {ii}

Edinburgh: Printed by George Waterston & Sons
FOR
DAVID DOUGLAS.
LONDON,SIMPKIN, MARSHALL, HAMILTON, KENT, AND CO., LIMITED
CAMBRIDGE, MACMILLAN AND BOWES
GLASGOW,JAMES MACLEHOSE AND SONS

{iii}

THE

ECCLESIASTICAL

ARCHITECTURE

OF SCOTLAND

FROM THE EARLIEST CHRISTIAN TIMES TO THE
SEVENTEENTH CENTURY

BY

DAVID MACGIBBON AND THOMAS ROSS

AUTHORS OF “THE CASTELLATED AND DOMESTIC ARCHITECTURE OF SCOTLAND”

VOLUME ONE

[Image unavailable.]

EDINBURGH: DAVID DOUGLAS

MDCCCXCVI

All rights reserved.

{iv} 

{v} 

PREFACE.

While engaged upon their work on The Castellated and Domestic Architecture of Scotland, the authors were frequently brought in contact with the various ecclesiastical structures throughout the country, and they naturally availed themselves of such opportunities to make notes and sketches of these interesting edifices.

These notes and sketches, together with others made during a long series of years, formed a considerable fund of information and a collection of drawings, the possession of which has induced the authors to undertake the completion of the illustration and description of the Ancient Architecture of Scotland, by adding an account of the Ecclesiastical to that of the Castellated and Domestic Architecture of the country already given to the public.

The size of the former book has been found to be somewhat restricted for many of the illustrations of the churches, but it has been thought best, for the sake of uniformity, to adhere to the same size and style as in the former work.

The subject of the Castles and Mansions, having been previously little investigated, afforded a fresh field for enquiry. The history and gradual development of the design and construction of these buildings had to be wrought out and arranged in periods according to the dates and the peculiarities of the structures, and an appro{vi}priate nomenclature had to be invented. These considerations added greatly to the interest of the subject.

In Ecclesiastical Architecture the case is different. The various styles and periods of Gothic architecture, both in this country and abroad, have for long been carefully investigated and defined. It thus only remains to apply to our Scottish edifices the system already adopted in the rest of Europe. An attempt is made in this work to do so, and attention is drawn to the various points in which Scottish Church Architecture agrees with and differs from that of other countries.

It has been suggested that our Ecclesiastical Architecture might be arranged in connection with the various orders of ecclesiastics by whom it was employed, and the specialities of the architecture of the various orders pointed out. This matter has not escaped attention; but it has been found impossible to form a system of nomenclature on that foundation.

The more this subject is investigated, the stronger is the conviction that there is, in this country at least, practically no difference in the style of architecture of the different orders of Churchmen from the twelfth to the sixteenth century. The cathedrals and parish and other churches were all built on general and well understood principles. The monasteries also were all constructed on the same general plan. Whether the occupants were Canons Regular or Monks of the Cistercian, Tyronensian, Premonstratensian or other order, or even Franciscans or Dominicans, their convents were all designed on one general system.

The plan consisted of an open court or cloister, sur{vii}rounded by a covered walk, having on one side (generally the north side) the nave of the church; while on the east side, in connection with the transept, lay the sacristy, chapter house, and frequently the fratery or day-room of the monks, on the upper floor of which range extended the dormitory, library, &c. The south side of the cloister was occupied by the refectory and kitchen; and the west side contained cellars and stores, and apartments for the lay brothers and guests.

These dispositions were sometimes extended and modified, but were invariably adhered to on the whole.

None of our Scottish monasteries are sufficiently well preserved to exhibit these arrangements in their entirety; but the various portions of the different convents which survive always correspond with the parts which would be expected in the positions they occupy.

As regards the style of the architecture and ornamentation, the only difference observable is that which is common to all the structures of the respective periods.

While it is intended to include in this work all the examples of ancient church architecture discoverable in Scotland, such subjects as ancient sites, demolished structures, and mere foundations do not fall within its scope, and are only referred to incidentally. These matters belong to the province of archæology, not to that of architecture.

Most of the ancient ecclesiastical structures of the West Highlands and Islands, and also those of Orkney and Shetland, being of a special and somewhat indefinite, although very interesting, character, are treated separately, before the main subject of the work is entered on.{viii}

In connection with the churches of Orkney and Shetland, the authors have to express their obligation to Sir Henry E. L. Dryden for his kindness in allowing his drawings and descriptions of these buildings to be incorporated in this work. They have also to thank the Council of the Society of Antiquaries of Scotland, with whom these drawings and descriptions are deposited, for their permission to use them.

The descriptions of the churches of the Highlands and Islands are, as stated in the book, chiefly abstracted from the late Mr. T. S. Muir’s interesting volumes.

The authors further take this opportunity of returning their sincere thanks to the many friends and well-wishers who have rendered them assistance in their labours. The names of many of these gentlemen are mentioned in connection with a number of the different structures. They would also express their indebtedness to all those whose permission was necessary to enable them to visit and make drawings of public and private buildings, which permission was invariably freely given.

They have specially to acknowledge their indebtedness to Dr. Joseph Anderson, of the Society of Antiquaries of Scotland, for his goodness in revising the portion of the work dealing with Celtic Art; to Mr. T. S. Robertson, Architect, Dundee, and Mr. William Galloway, Architect, Wigton, for their assistance in supplying drawings, and otherwise; and to Dr. Dickson, late of the Register House, Edinburgh, for valuable aid in many ways.

Edinburgh, January 1896.

{ix} 

CONTENTS.

INTRODUCTION.
Various branches of early art in Scotland—Cells of Anchorites—Celtic art—Round towers and sculptured monuments, succeeded by Norman and Gothic architecture—Native developments—Previous writers on Celtic art (3)—Primitive Christianity—Candida Casa—Crosses and caves—St. Palladius—Irish monasteries—Wattles—Beehive cells (7)—Cashels—“Deserts”—Christian structures (9)—Irish MSS. and slabs—Symbolic sculptures—St. Columba—Iona—Missionaries from Northumbria—Lindisfarne—Roman influence—St. Augustine—Benedict Biscop—St. Winifred (12)—Pre-Norman churches—Columbans expelled—Culdees—Roman system introduced (14)—Revival of Celtic system—Celtic art (15)—Symbols (16)—Upright slabs (17)—Development of design of—Sculptures, origin of—Western crosses (20)—Early Ecclesiastical Structures in Scotland (24)—Beehive huts—Churches—Round towers (26)—Brechin and Abernethy—St. Regulus—Churches erected by Queen Margaret—Alexander I.—David I.—Parochial system (31)—Romanesque architecture (32)—Vaulting, development of (34)—Subordination of members (35)—Norman Style, examples (36)—Norman Style in Scotland (38)—First Pointed Style (39)—Salisbury Cathedral (41)—France and England compared (43)—Examples of the style (45)—First Pointed Style in Scotland (46)—Derived from England (47)—Examples (48)—Architecture of Fourteenth, Fifteenth, and Sixteenth Centuries in Scotland (50)—Divided into Decorated and Late Pointed (52)—Middle Pointed or Decorated Style (53)—Middle Pointed or Decorated Style in Scotland (55)—Examples—Third or Late Pointed Style (58)—Examples—Third or Late Pointed Style in Scotland (60)—Effects of English and French influence (62).
{x} CELTIC MONASTIC AND ECCLESIASTICAL STRUCTURES IN SCOTLAND.
I.Simple Oblong Churches, associated with Beehive Cells and Churches in Groups.
 PAGE
Eilean Naomh,Argyleshire,66
Skeabost,Skye,68
Mugstot,Do.,69
Howmore,South Uist,70
Kilbar,Barra,71
II.Hermits’ Cells,73
The Chapel of St. Ronan,North Rona,73
Teampull Sula Sgeir,75
Flannain Isles, or Seven Hunters,77
Teampull Beannachadh,77
III.Celtic Churches standing alone,78
1. One oblong chamber. 2. Do., with modifications.
3. With architecturally distinguished chancel.
4. With chancel or nave added. 5. With pointed arches,
79
(A) Churches dry-built and Churches with sloping jambs,80
Tigh Beannachadh,Lewis,80
Dun Othail,Do.,81
Carinish,North Uist,81
(B) Simple oblong Churches with modified features,82
Cara, off Gigha,Kintyre,82
Eilean Munde,Lochleven,83
Church of Holy Cross, South Galston, Lewis,83
Teampull Pheadair,Lewis,83
St. Aula, Gress,Do.,83
Toehead,Harris,83
Nuntown,Benbecula,83
Pabba,Sound of Harris,84
Kilmuir,Skye,84
Trumpan,Do.,84
Churches showing signs of Norman influence:—
St. Carmaig, Kiels,Knapdale,84
Kilmory,Do.,85
Kirkapoll,Tiree (Ithica Terra),87
Kilchenich,Do.,88
{xi} (C) Churches with Chancel, or Nave added to an older structure,88
St. Columba, Balivanich,Benbecula,88
Eilean Mor,Knapdale,89
St. Columba’s, Ey.,Lewis,91
St. Columba, Kiels,Kintyre,92
Kilchouslan, Campbeltown,Do.,92
Kilchenzie,Do., Do.,93
IV.Churches built with Chancel and Nave.
St. Mary’s, Lybster,Caithness,93
Church of John the Baptist, South Bragair, Lewis,95
St. Michael’s, Borve,Barra,95
(D) Churches with pointed or late features.
St. Catan’s, Gigha,Kintyre,95
Kildalton,Islay,96
Kilnaughton,Do.,96
Kilneave,Do.,96
Kilchieran,Do.,96
St. Ninian’s, Sanda,Kintyre,97
St. Columba’s Isle,Lewis,97
Pennygowan,Mull,98
Laggan,Do.,98
Inchkenneth,Ulva,98
St. Moluac,Raasay,98
Killean,Kintyre,98
Kilbride,Knapdale,98
Eorrapidh,Lewis,99
Olrig,Caithness,99
Kilchieven or Kilcoiven,Kintyre,100
CHURCHES IN ORKNEY AND SHETLAND.
Drawn and described by Sir Henry Dryden, Bart.
Chapel on the Brough of Deerness,101
Chapel on the North Shore of Head of Holland,105
Halcro Chapel,South Ronaldshay,105
St. Tredwell’s Chapel,Papa Westray,106
Church at Swendro,Rousay,108
St. Ola,Kirkwall,109
{xii} Churches of type containing Chancel and Nave.
Church on the Island of Wyre,113
Church on the Island of Enhallow,116
Chapel at Linton, Shapinsay,122
Chapel in Westray,124
Church on Island of Egilsey,127
Church on Brough of Birsay,135
Church at Orphir,141
Churches in Shetland (145).
Chapel of Noss,Bressay,146
Kirkaby, Westing,Unst,147
Meal, Colvidale,Do.,148
St. John’s Kirk, Norwick,Do.,148
Church at Uya,149
Kirk of Ness,North Yell,151
Church at Culbinsbrough,Bressay,157
General Characteristics,159
Monuments,160
Proportions,161
Dates,162
Chapel at Lybster, Reay, Caithness,162
Chapel, Effigy, and Cross on Inch Kenneth, Mull, Argyleshire,165
TRANSITION FROM CELTIC TO NORMAN ARCHITECTURE.
Abernethy Round Tower, Perthshire,175
Restennet Priory, Forfarshire,178
St. Regulus’, or St. Rule’s, St. Andrews, Fifeshire,185
NORMAN ARCHITECTURE.
Markinch Tower,Fifeshire,193
Muthill Church,Perthshire,196
St. Serf’s, Dunning,Do.,204
Cruggleton Church,Wigtonshire,212
Monymusk Church,Aberdeenshire,215
St. Brandon’s, Birnie,Morayshire,218
St. Oran’s Chapel, Iona,Argyleshire,220
Chapel in Edinburgh Castle (St. Margaret’s Chapel),224
Dunfermline Abbey,Fifeshire,230
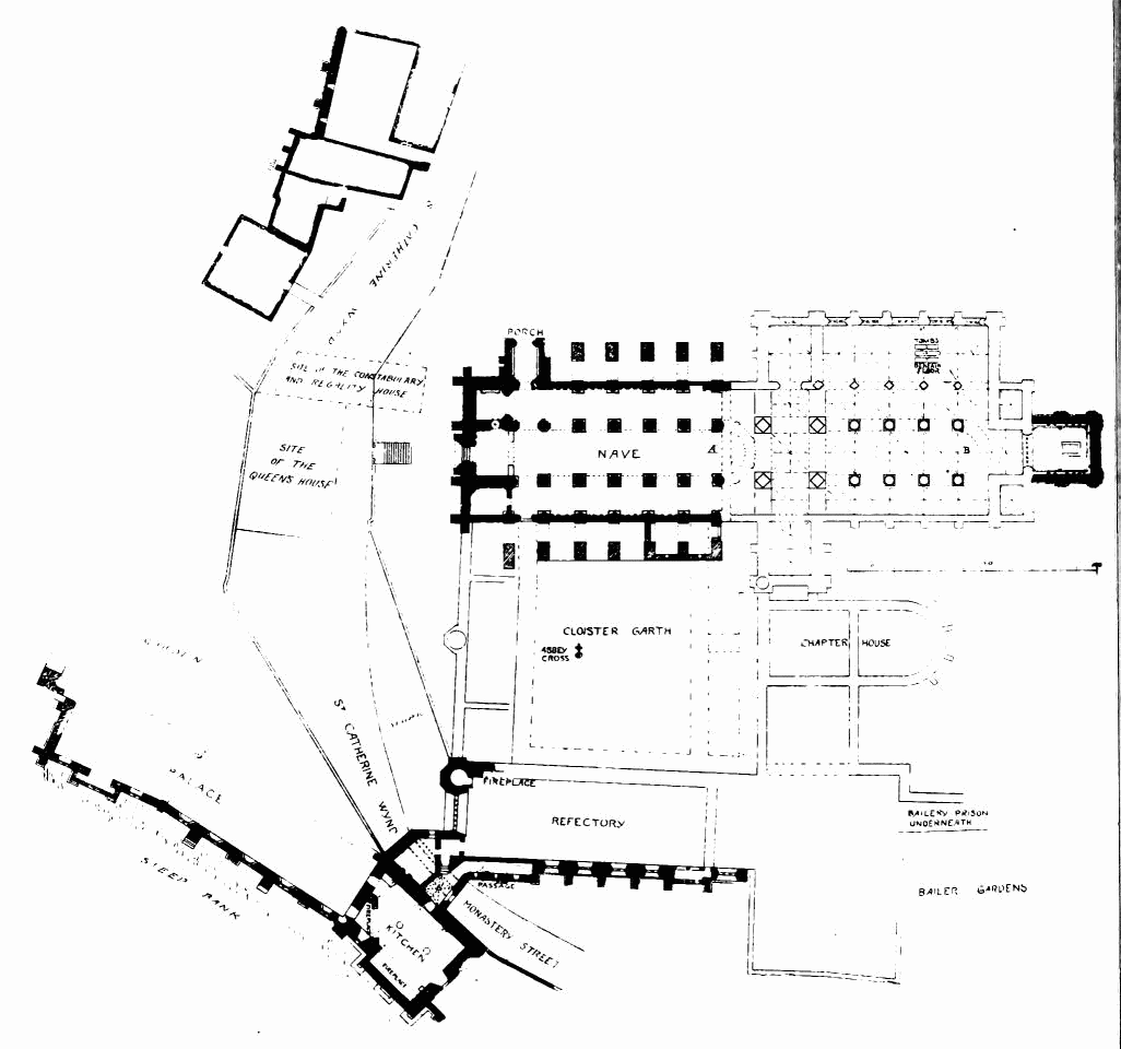
{xiii} St. Magnus’ Cathedral, Kirkwall,Orkney, Dunfermline Abbey,259
St. Blane’s Church,Buteshire,292
Dalmeny Church,Linlithgowshire,298
Leuchars Church,Fifeshire,309
Bunkle Church,Berwickshire,314
Edrom Church,Do.,316
Legerwood Church,Do.,320
Chirnside Church,Do.,322
St. Helen’s Church,Do.,323
Tynninghame Church,Haddingtonshire,326
Stobo Church,Peeblesshire,329
Duddingston Church,Mid-Lothian,333
St. Andrew’s, Gullane,Haddingtonshire,339
Uphall Church and St. Nicholas’,Strathbroc, Linlithgowshire,342
Abercorn Church,Linlithgowshire,346
Kelso Abbey,Roxburghshire,347
St. Martin’s Church,Haddington,362
Kirkliston Church,Linlithgowshire,366
St. Mary’s, Ratho,Mid-Lothian,371
St. Peter’s, Peterhead,Aberdeenshire,371
St. Mary’s, Rutherglen,Lanarkshire,372
Lamington Church,Do.,376
St. Boswells Church,Roxburghshire,377
Smailholm Church,Do.,378
Linton Church,Do.,379
Duns Church,Berwickshire,381
St. Lawrence, Lundie,Forfarshire,382
Kirkmaiden Church,Wigtonshire,383
Herdmanston Font,Haddingtonshire,384
THE TRANSITION STYLE.
Dundrennan Abbey,Kirkcudbrightshire,388
Jedburgh Abbey,Roxburghshire,398
Kinloss Abbey,Morayshire,416
The Nunnery, Iona,Argyleshire,421
St. Nicholas’,Aberdeen,426
Coldingham Priory,Berwickshire,437
Dryburgh Abbey,Do.,448
Airth Church,Stirlingshire,465
Lasswade Church,Mid-Lothian,471
Bathgate Church,Linlithgowshire,474

{xiv} 

{1} 

THE ECCLESIASTICAL ARCHITECTURE OF SCOTLAND

FROM THE EARLIEST CHRISTIAN TIMES TO THE REFORMATION.

INTRODUCTION.

Among the various branches of Mediæval Art in Europe, the Church Architecture of Scotland fills an interesting and valuable place. This country cannot claim to have originated a new style in the sense in which the Ile de France gave birth to pointed Gothic, but it can show a continuous series of Christian structures, beginning with the primitive cells and oratories of the early Anchorites, and extending through all the periods of Mediæval Art.

Two distinct phases of artistic development are exemplified in the History of Scotland—the first comprises the rise and decline of Celtic Art in early Christian times, and the second is allied to the various stages of general European culture.

Of the former period abundant illustrations exist in the almost prehistoric examples of Celtic structures of early Christian recluses, together with specimens of round towers and innumerable sculptured memorials and crosses, somewhat similar to those found in Ireland. These indicate the intimate connection which formerly existed with that country, whence Scotland derived her name, as well as her early instruction in religion.

The round towers and sculptured monuments are followed by primitive examples of Norman work, pointing to the direction from which the later phases of religious and artistic development in the country took their origin. The Saxon and Norman influence of the eleventh century produced a complete revolution in the artistic elements of the country, and led to a full development of the Romanesque or Norman style of architecture—a style similar to the round arched architecture of other countries of Europe in the twelfth century. Of this new departure the signs are still visible in the numerous remains of Norman structures which are spread over the country. These consist chiefly of small parish churches,{2} but they also include some large and elaborate buildings, almost entirely monastic, and one cathedral.

The succeeding Gothic styles are also well represented in Scotland, and include a great variety of churches, monasteries, and cathedrals. These exhibit many fine examples of the various styles of Gothic art, and, although comprising certain local peculiarities, show a general correspondence with the arts of the different periods in France and England.

The “first pointed” style is fully represented in Scotland during the thirteenth century; but, owing to the disastrous situation of the country during the fourteenth century, the number of “decorated” buildings is comparatively small.

During the fifteenth and sixteenth centuries, when the “perpendicular” style prevailed in England and the “Flamboyant” in France, the architecture of Scotland was distinguished by a style peculiar to the country, in which many features derived from both the above styles may be detected.

While the Mediæval Architecture of Scotland thus corresponds on the whole with that of the rest of Europe, there exists in the Ecclesiology of the country an amount of native development sufficient to give it a special value as one of the exponents of the art of the Middle Ages. Its buildings further contribute largely to the illustration of the history of the country by showing in their remains the condition and growth of its religious ideas and observances at different epochs, and the manner in which its civilisation advanced. We observe striking evidences of the Irish influence in the relics of the primitive Celtic Church. The Norman and Early English influences are clearly traceable up to the invasion of Edward I., and the political and commercial connection with France and the Netherlands is distinctly observable in the period of the Jameses.

Till comparatively modern times the early history of Scotland was involved in obscurity, but much light has within recent years been thrown upon it by the works of Robertson, Skene, and others. The religious and political conditions of the country have now been placed upon a reliable historical basis, while its archæology has been expounded in the works of the late Sir Daniel Wilson, and those of Dr. Joseph Anderson and Mr. J. Romilly Allen. The numerous prehistoric monuments of Scotland have been collected by the late Dr. John Stuart, in his great work on the Sculptured Stories, and the Sepulchral Slabs of the West Highlands have been beautifully illustrated by the late James Drummond, R.S.A.

A wide field has been explored through the patient and devoted labours of the late T. S. Muir, by his searching out the architectural fragments scattered over the land, and especially by bringing to light many unknown examples of the retreats and primitive oratories of the early Anchorites which still exist in the remote and in many cases uninhabited islands of the{3} West. Similar explorations have been accomplished by Sir Henry Dryden in Orkney and Shetland, and by Captain White and Captain Thomas in Kintyre and the Hebrides. To all these authors we are indebted for much valuable information and guidance, as will appear in the following pages.

The structures and monuments of the early Celtic inhabitants of Scotland have formed the special subject of careful investigation by Dr. Joseph Anderson, and the exposition of the history of the remarkable and previously mysterious Sculptured Stones has been successfully accomplished by him in his lectures on Scotland in early Christian times. In these lectures he has not only clearly explained the origin and significance of these monuments and their order of succession, but he has extended his view over the whole field of Celtic culture, both in this country and in Ireland, and has explained the relations of its different phases to one another, thus disclosing the unity and beauty of that remarkable and independent development of art culture which existed in these countries from the sixth to the twelfth centuries.

We have also the benefit of Dr. Reeves’ and Dr. Petrie’s well-known works on Irish History and Archæology, and the magnificent volumes of Lord Dunraven on Early Irish Architecture, so ably edited by Miss Stokes. In the following introductory sketch of the Early History and Artistic Development of Scotland, free use has been made of the above and other works, in order to place before the reader a continuous account of the religious and artistic progress of the country from the earliest dawn of Christianity till the great Revolution of the sixteenth century, which severed the connection between mediæval and modern times.

 

The earliest trace of Christianity in Scotland is connected with the founding of a church, the name of which still survives in a structure of a much later date. This primitive church was erected by St. Ninian, a Briton, who seems to have settled in the end of the fourth century amongst the Picts, on the south coast of Galloway, with the view of there maintaining the Christian faith already introduced by the Romans.

St. Ninian is said to have studied in Rome, and, on his return journey, to have visited St. Martin, at Tours, who supplied him with masons to assist in the erection of a church, built of stone, in the Roman manner. This was known as the Candida Casa (now Whithorn), which was built about the year 412, and dedicated to St. Martin of Tours. It became a great school of instruction in Christian doctrine,[1] but after a time the Christianity of this locality appears to have died out, or was transferred to Ireland. It is believed that some of the emissaries from this school in the fifth century may be traced in the dedications of churches amongst the Picts, as, for example, St. Ternan, at Banchory-Ternan; St. Mocholmoc,{4} at Inchmahome; and St. Fillan, at the place named after him on Loch Earn. At Abernethy, in Perthshire, King Nectan is said to have been raised from the dead by St. Bœthius or Buitte, who came from Ireland, accompanied by St. Bridget and her ten virgins. The Saint, as a reward for his miracle, was presented with the fortress which existed at the place, just as the Irish ecclesiastics were established (as will be pointed out) by the chiefs in their raths or strongholds.[2] This king also built a church at Abernethy in honour of St. Bridget (about 480)—a foundation which afterwards became famous.

[Image unavailable.]

Fig. 1.—Early Crosses near Whithorn.

It tends to confirm the truth of the early mission of St. Ninian to the Southern Picts, that the monumental stones which still survive in that region are engraved with incised crosses of the oldest form, and are accompanied with inscriptions in debased Roman capital letters, containing the formula “hic jacet”—all marks which indicate a very early date.[3] Such are the crosses near Whithorn and those at Kirkmadrine, in a neighbouring parish, which all bear the simple cross with equal arms enclosed in a circle,[4] and contain the chi-rho symbol. (Fig. 1.){5}

It should further be noted that on the south coast of the Bay of Luce, not far from Whithorn, there exists a cave in the rocks which is believed to have been the retreat of an early Anchorite, perhaps of St. Ninian himself. Numerous crosses of early type, incised on the rocky walls and on the steps of a short stair leading down to the cave, prove that it has been occupied for religious purposes at an early date;[5] while on the Isle of Whithorn are the ruins of a church, which may possibly occupy the site of the original Candida Casa of St. Ninian.[6]

Another cave in the rocks on the shore of the opposite side of the Bay of Luce, still known as St. Medan’s Cave,[7] has also apparently served as the abode of an Anchorite. It consists, like the retreat of St. Cuthbert at Farne (to be afterwards described), of an oratory and an outer apartment for ordinary uses.

Numerous similar caves, which have been used for the like sacred purpose, are still to be found in many parts of the country, particularly on the West Coast.

After the decadence of the School of Candida Casa, Christianity in Scotland seems to have been in abeyance, till it was revived in the sixth century by the arrival of fresh light and energy from Ireland. From that period till the twelfth century the religion and culture of Scotland were entirely derived from that country. It is therefore necessary, in order to follow the origin and development of ecclesiology and art in Scotland, to trace generally their history in Ireland, and to mark the influence of the latter country on the former.

Owing to the disturbed state of Britain after the withdrawal of the Romans in the beginning of the fifth century, and the eruptions of the Goths in Gaul, many Christian refugees found their way to Ireland. Christianity was thus introduced, and, during the fifth century, spread rapidly under the instructions of St. Palladius, a reputed emissary of Rome, and St. Patrick, the patron Saint of Ireland. At first the Church seems to have assumed a peculiar collegiate form, consisting of groups of seven bishops placed together in one church; but in the sixth century the monastic rules were introduced, and at once took root and spread with wonderful rapidity amongst the various tribes. Under St. Finnian, after a short time, there are said to have been three thousand monks in the monastic school of Clonard. Columba, one of his twelve disciples, born in 521, founded several monasteries in Ireland, amongst others those of Derry and Kells, Raphoe in Donegal, and Durrow in Meath.

In 558 the great monastery of Bangor was founded by St. Comgall,{6} one of Columba’s companions, and is said to have contained thousands of monks.[8]

These monasteries were tribal institutions, and were well suited to the social relations of the country. The abbots were connected with the leading families of the tribes, and succeeded one another according to the rules of succession which prevailed amongst the chiefs. Many of the monasteries were established with the consent of the chiefs, and it frequently happened that on such occasions a “rath,” or native fortress, was presented to the founder by the head of the tribe, as a place of security in which his monastic dwellings might be erected.[9] These structures were generally of a slight and simple nature, consisting of huts made of branches or wattles, covered with turf or clay. The churches or oratories were also constructed with wood. The whole establishment seems to have resembled the primitive fortresses of the Celts, consisting of a great enclosing wall or rampart, with temporary erections within. At a later time wooden boards were substituted for wattles, and the roofs were covered with thatch. Dr. Reeves states that St. Palladius erected three churches of oak, while St. Patrick is said to have built one with stone, because no wood was to be found in the locality.[10]

The practice of building with wood was the favourite one amongst the “Scots”[11] in Ireland, and we shall find further examples amongst their disciples both in Scotland and England. Dr. Reeves states that the “Scotic” attachment to wooden churches continued in Ireland till the twelfth century, and that although stone churches existed, they were regarded as of foreign introduction. These wooden structures, it is needless to remark, have all long since disappeared, having been replaced by more permanent edifices.

Although building with wattles and wood was the usual form of construction in Ireland in the early centuries, it was not the only one. When monasteries were established (as above mentioned) within the “raths” or fortresses by the chiefs, certain native forms of building in stone were found to exist in connection with these structures.[12] The{7} rath was invariably surrounded with a lofty wall of great thickness, composed of unhewn stones mingled with earth. The exterior face of the wall was carefully built with “headers,” and in many instances chambers were constructed in the thickness of the wall, and roofed with overlapping stones in the form of an arch, but without the radiating structure of a true arch.[13] Chambers of similar construction are also often found in the walls of the brochs, and in the Eirde houses and other Celtic structures in Scotland.

[Image unavailable.]

Fig. 2.—Beehive Cell on Skellig Mhichel. (From Scotland in Early Christian Times.)

Besides the great “cashel” or enclosing rampart, other stone buildings existed within the rath. These consisted of circular or oval huts, built with unhewn stones without mortar. They are generally about 6 to 10 feet in diameter, and the interior has sometimes square angles. The walls are 3 to 4 feet in thickness, and rise perpendicularly to about 6 feet in height, when they begin to converge towards the centre, the stones overlapping as they rise with a curve till they nearly meet, when the aperture is covered in on top with flagstones. The external appearance of these primitive abodes presents a domed form like that of a beehive,{8} from which circumstance they are called “beehive huts” (Fig. 2). There is invariably a small doorway about 4 feet high, with a straight lintel on top, and the jambs are always built, not perpendicularly, but with an inclination inwards as they rise. A small square opening in the roof, greatly splayed towards the interior, forms the window of the hut. Stone structures of this description were common in certain parts of Ireland in Pagan times.[14] These were the native originals from which the Irish monks derived the style of stone building which was afterwards adopted by them in certain localities, with modifications as time progressed.

The Celtic monks of the early centuries showed a strong predilection for islands as the sites of their monasteries. Almost every loch and river show evidence of this choice in the ruins scattered over the country, and some small detached and rocky islands situated a few miles from the West Coast of Ireland (where they have been little exposed to disturbance) yet contain specimens of the above primitive structures. The great enclosing cashels and the singular beehive huts have been beautifully illustrated and described in the splendid work of the late Lord Dunraven on Ancient Irish Architecture, edited by Miss Stokes.

It was one of the peculiarities of the Irish monastic system to encourage the members to retire occasionally for a lengthened period to some solitary place, where they might do penance and worship undisturbed. These places of retreat were called “deserts,” and were sought for in the uninhabited and rocky islands lying at a distance from the mainland. It is surmised that the islands of St. Michael, Ardoilean, and others in a similar position off the West Coast of Ireland, containing monastic remains, were retreats of this description.

We have seen that these establishments exhibit in their beehive huts and cashels the tradition of the native Pagan style of building derived from the raths of the converted chiefs. In addition to these primitive erections, they further contain evidences of certain structural elements imported in connection with the introduction of Christianity.[15] For, besides the circular cells of the monks, they invariably comprise one or more small churches or oratories. These are structurally distinguished by having square angles on plan, both externally and internally, and by having the joints of the stones generally cemented with a certain amount of mortar. The roofs were constructed like those of the huts, with overlapping stones carried up with a curve to a pointed ridge. These churches are of small dimensions, and form a simple oblong chamber set with its greater length towards the east and west. They have a small door in the west end with inclined jambs and straight lintel, and a small square-headed window to the east. The above Christian form of church was, however, not fully adopted at first, many of the early{9} Irish churches retaining the native form of construction—i.e., the walls, both of sides and ends, rise in a curve from the foundation to the ridge of the roof, which is formed of overlapping stones, and the whole presents the appearance of an inverted boat with a sharp keel. These churches are built with dry stones, carefully constructed.[16] They are often associated with pillar stones, inscribed with crosses and inscriptions in Roman letters of the most ancient form,[17] and are supposed to be of the age of the Saints whose names they bear, dating from the fifth to the seventh centuries.[18] They were succeeded in the seventh and eighth centuries by a somewhat more advanced type, forming a transition from the dry-built and rough stone structures to buildings cemented with mortar, and having the stones dressed. To these were added chancels in the ninth and tenth centuries, having radiating chancel arches, which are invariably semi-circular, and have inclined jambs. The church of St. Kevin at Glendalough presents a good example of a chancel added to a primitive single-chambered church. Ornament was gradually introduced, but the Irish characteristic of the stone roof, supported on an arch, was retained in small structures up to the twelfth century. As time progressed the original overlapping form of arch was superseded by the true radiating arch. In the case of the larger churches, however, the roof seems generally to have been constructed with wooden rafters and shingles.[19]

The radiating arch appears to have been introduced about the same time as the chancel, and was by degrees applied both to doors and windows, but the sloping form of the jambs continued in use till the introduction of the Norman style.[20]

The religious enthusiasm which pervaded the Irish monasteries was very great, and displayed itself in the numerous offshoots and missions which they sent out, not only to the neighbouring countries of England and Scotland, but also to Gaul, Switzerland, Germany, and Italy. Rude and primitive as were their dwellings, the Celtic monks excelled in several departments of art and literature. Their chronicles of events are almost our only guide to the history of the country in those early times, and the writings and illuminations of their religious books are marvels of beautiful caligraphy and design. The forms and features of their drawings and illuminations are of a marked and special character, and are found prominently displayed not only in their MSS., but on all objects of Celtic production, such as gold and silver ornaments and shrines, and the sculptured crosses and architectural enrichments of a somewhat later date.[21]

The earliest stone monuments in Ireland consist, as in Scotland, of rude pillar stones, bearing plain incised crosses, accompanied with inscriptions in debased Roman capitals. These are succeeded by sepulchral{10} slabs, shaped and dressed, which were laid flat over the graves, and were carved with various forms of the cross extending over the entire surface, and sometimes covered with interlacing ornament. But the upright cross-bearing slabs, which we shall find are so common in Scotland, were almost unknown in Ireland. At Clonmacnoise there are 179 of these recumbent cross-bearing slabs, the ascertained dates of which extend from 628 to 1278; of these only sixty-seven bear any ornament except the cross. The earliest with ornament dates from 806, and many others belong to the ninth, tenth, and eleventh centuries.[22] Free standing crosses of fine design are also numerous in Ireland. They are generally covered with pictorial sculpture of Scriptural subjects; they date from the tenth to the twelfth centuries. They usually bear on the obverse a representation of the Crucifixion,[23] and on the reverse a figure of Christ in glory. These sculptures occupy the principal place at the junction of the arms with the upright shaft, and the remainder of the cross contains figure subjects, arranged in panels, representing events symbolical of the Redemption, and leading the mind up to the principal subject. Amongst the most common are the Temptation of Adam and Eve, the Sacrifice of Isaac, Jonah and the Whale, Daniel in the Lions’ Den, &c.

Symbolic sculptures, representing hunting scenes, grotesque animals, &c., so common on the Scottish monuments, are also occasionally found on the Irish crosses, but do not occur so frequently as on the former. The peculiar and unexplained symbols so universally found on the Scottish monuments are, however, entirely absent from those of Ireland.

 

Amongst the earliest fields in which the energy and enterprise of the Irish monastic missionaries found an outlet were naturally the adjoining lands of Kintyre and the islands on the West Coast of Scotland. From the beginning of the sixth century an emigration had been going on from Dalriada, in Ulster, to these regions, and settlements had been formed and a large part of the country taken possession of, extending as far north as Mull, and including part of the mainland of Argyll. In 560, however, Brude, King of the Northern Picts, led an expedition against the invaders, and drove them back from most of their possessions. A desire to retrieve this reverse, combined with zeal to spread the benefits of religion amongst the heathen Picts, is supposed to have led to St. Columba’s mission, and to the foundation of the Monastic Church in Scotland. In 563 St. Columba, with twelve disciples, sailed from Ireland for Dalriada, in Scotland. After visiting some of the islands and founding a cave-chapel at Loch Coalisport, which is still traceable, he finally, with consent of the Picts, settled at Iona. There he found a remnant of an early Church of Secular Bishops, but they yielded to the stronger monastic element now prevailing.[24]{11}

The monastery founded by Columba at Iona was of the ordinary style of the Irish establishments above described. Adamnan, in his Life of Columba, mentions that the buildings were constructed with wattles and turf, and the roofs covered with thatch. Besides the church and the huts for the brethren, there was a special cell for the abbot, a larger hut for a refectory, and another for strangers. The whole was enclosed, as usual, with a high wall or rampart. About a century after Columba’s time some improvement seems to have been made on the rude system of building with wattles. Adamnan, who lived about that date, describes how, in renewing the structures of the monastery, oak boards were used, and the roof was covered with thatch.

The Church established in Iona followed the example of its Irish founders, and sent out missionaries in all directions. In 565 St. Columba visited King Brude in his stronghold on the river Ness, and succeeded in converting the king and the Northern Picts. This mission seems to have been partly political, as it was also successful in establishing the Irish colony of Dalriada in possession of its territory under its own king.[25] During the sixth century numerous churches were founded throughout Scotland and in the Western Islands by St. Columba and his companions, St. Brendan, St. Comgall, and St. Cainnech,[26] whose names still survive in the dedications of many of these structures.

The Pictish King Brude was succeeded by King Gartnaid, who fixed his royal seat at Abernethy, in Perthshire. There he is said to have built a monastery (580-590) and dedicated it to St. Bridget, to whom, as we have seen, an earlier church had been dedicated in the same locality. St. Cainnech is said to have established himself in a “desert” at Kilrimont (St. Andrews),[27] thus indicating the early foundation of these well-known religious sites. The Cumbrian Church was also founded about this time at Glasgow by St. Kentigern, a friend of Columba’s. St. Columba died in 597, and, after his death, Iona was acknowledged as the head of all the churches and monasteries which had been established in Scotland.

But the influence of this Church soon spread beyond the boundaries of that kingdom. Oswald, son of Aidilfrid, having been driven from Northumbria, found refuge in Iona, and there acquired a knowledge of religion and literature. Having regained his throne, he sent, in 635, to Iona for monks to introduce the Christian faith amongst his people. St. Aidan was the first of these missionaries sent, and, with the king’s consent, he fixed his monastery on the island of Lindisfarne. He also founded monasteries at Old Melrose and Coldingham, then within the bounds of Northumbria. It was to the Columban Church thus established that the Angles between the Humber and the Forth owed their permanent conversion to Christianity. After a time St. Aidan was succeeded by St. Cuthbert, who continued and extended this pious work. But after being{12} twelve years in charge of Lindisfarne, St. Cuthbert retired, like so many of the same monastic school, to a “desert” or hermitage, situated on the solitary island of Farne, more distant from the mainland than Lindisfarne. Here he erected his hermit’s cell, the account of which, given by Bede,[28] is most interesting, as it so fully explains the nature of such structures. The enclosure was circular, and about 4 or 5 perches in diameter. Externally the wall was about the height of a man, but in the interior somewhat higher, owing to the soil and rock having been excavated. The wall was composed of massive unwrought stones and turf. The enclosure contained a dwelling-place divided into two parts, one being an oratory and the other a room suitable for common uses. The roof was formed of rough beams and thatched with straw. At the landing-place outside the enclosure a large house was erected to give shelter to the monks when they visited the hermit. Although called for a time to the Bishopric of Lindisfarne, St. Cuthbert again retired to his hermitage, and there expired A.D. 687.

When the Columban Church had existed in Northumbria for about thirty years, new influences arose, before which that monastic form gradually declined. The principal of these influences came from the South, and was part of that steady pressure from Rome which by degrees brought all Churches into uniformity of doctrine and observance. England was to a great extent the spiritual child of Rome, having been reconverted to the faith by the direct intervention of the Pope after the desolation caused by the heathen Danes. This was accomplished by the mission of St. Augustine, who was sent by Pope Gregory to England in 596 for the reformation of religion. The ecclesiastics from Rome brought with them the Roman forms and observances and the Roman mode of building. Thus St. Augustine, so soon as he was established in Kent, set about the erection, at Canterbury, of a cathedral, with two towers attached to the nave and a circular baptistry, in imitation of St. Peter’s at Rome. Other instances occur of the introduction of building with stone after the Roman manner. Bede describes how Benedict Biscop, in 676, brought masons from Gaul to carry out buildings in stone, and how the churches of St. Peter at Monkwearmouth, and St. Paul at Jarrow, were erected by Benedict Biscop (670-80) with stone, “according to the manner of the Romans.” Bede further mentions that Nectan, King of the Northern Picts, sought, in 710, for masons to be sent to him from Monkwearmouth, who should build churches for him according to the fashion of the Romans.

St. Winifred, Bishop of York, the great opponent of the Columbans in Northumbria, had also erected stone churches in the seventh century after the Roman manner at Hexham, York, and Ripon.

Northumbria was at this period (during the seventh and part of the{13} eighth centuries) the most powerful and advanced portion of England. It was the nursery of learning and poetry, the home of Bede and Caedmon. Religion also flourished, as is proved by the remains of the pre-Conquest churches which still survive.[29] Many of these show traces of the works of the ancient Romans in the country, being built, partly at least, with Roman wrought stones from the ruins in the district. The influence of the Columban period is observable in the numerous crosses carved with Celtic work which still survive in Northumbria.

The pre-Norman churches have some peculiarities. They are remarkable for the height of the walls, as compared with the width of the building. Thus at Monkwearmouth and Jarrow (erected by Benedict Biscop in the seventh century), the width of the nave is 18 feet, while the height of the walls is 30 feet. The carved lacertine figures of the porch at Monkwearmouth have likewise a Celtic character. Square towers at the west end of the nave form common features of these churches, and the jambs of the doors and windows are often inclining, like those of Ireland. Some of these features may be observed in one or two of our Scottish churches, such as that of St. Regulus at St. Andrews and Restenot Priory.

As the Roman influence prevailed, that of the Columbans waned, till, finally, that of Rome was, after the Synod of Whitby in 664, definitely adopted, and the Columbans were driven off. After the expulsion of the Columbans from Northumbria, the Roman forms and observances were gradually extended over the southern parts of Scotland, then included in the dominions of Oswy, King of Northumbria. Various circumstances tended to aid this process. When the victory of the Picts at Dunichen, in 685, terminated the rule of the Angles in Scotland, Nectan, king of the Celtic kingdom, was brought into contact with the Roman missionaries, whom he found in his extended southern provinces, and became, in 710, a convert to their ideas. He seems to have warmly espoused their cause, and desired that their rules and forms should be universally adopted throughout his kingdom. But the Columbans still clinging to their own observances, King Nectan at length, in 717, issued a decree, expelling from his dominions all ecclesiastics who refused to conform to the Roman practices.

Up to this period there had been an increasing tendency to asceticism in the Columban Church, leading the monks to forsake the cœnobitical or monastic life in common, and to adopt that of the hermit or Anchorite. This had the effect of breaking up the monastic system which had hitherto succeeded so well amongst the Celtic tribes of Ireland and Scotland, and also tended to encourage the introduction of the secular hierarchy of the Roman system.[30]

The hermits were known on the Continent as Deicolæ, or Worshippers{14} of God, and in this country by the title of Keledei or Culdees. The similar order which arose in the Celtic Church afterwards played an important part in Scottish ecclesiastical matters. They first appear in Scotland after the expulsion of the Columbans—the establishment of St. Serf on an island in Lochleven being of this school.

The Deicolæ were organised in 747 as an order of Secular Canons with the object of bringing the secular clergy into a cœnobitical life, so as to help to counteract the then prevailing tendency to the eremitical mode of living. The nature of the structures erected under the latter form of religious observance is well illustrated in the cells and oratories already alluded to, which were erected in such numbers on the lonely and deserted islands on the West Coasts of Ireland and Scotland.

The advent of the Roman emissaries in Scotland is embodied in several mythical legends. Such is the story of the arrival of St. Boniface with a complete following of persons representing all the offices of the Roman service, and his favourable reception by King Nectan indicates the goodwill with which they were welcomed.[31] The dedications of churches to St. Peter, superseding the dedication to the ancient native Saints, further mark the change from Iona to Rome.

The assimilation of the Church to the Roman system, and the introduction of the secular clergy, led in Scotland, as it had done in Northumbria, to the secularisation of the monasteries. Through the operation of the Celtic rules of succession they fell into the hands of laymen, who retained the title of abbot, and with it the possession of the monastic lands, but without any pretence to clerical office.[32] The old Celtic system of monasticism thus perished, first, from internal decay and change to the eremitical system; and, second, from its being gradually superseded by the introduction of the secular clergy on the Roman system.

Meanwhile at Iona, and in all the Western Islands and coasts, a new enemy to the Columban establishments sprung up. In 794 the Northern Rovers made their first appearance, and during many succeeding years the monastery of Iona was frequently attacked and pillaged, the monks being slain or driven to seek safety in Ireland. The connection between Ireland and Scotland was thus almost entirely severed during the ninth century, and the Columbans having (as above stated) been expelled from the Pictish kingdom, the previous active relations between the Church in the two countries was for the time entirely brought to a close.

In Alban or Pictland a revolution seems to have occurred about the year 850, and Kenneth M‘Alpine, a king of the Scotic race, ascended the throne of the Picts. By him an effort was made to re-establish the Columban Church. For this purpose he erected a chief religious centre at Dunkeld, and brought to it some of the relics of St. Columba, with the view of making it an inland Iona. However, in the latter half of{15} the ninth century, the see of the primacy was removed to Abernethy, in Perthshire. Here, Cellach, Abbot of Kildare and also of Iona, had sought refuge from the persecution of the Norsemen in Ireland, and there he died in 865. Irish clergy who had returned to Scotland are thus found at this period at Abernethy, and Dr. Skene supposes that the round tower which still stands there was probably erected about this date.[33] The increasing strength of the Roman influence may be gathered from the fact that in 878-89 King Giric is said to have “given liberty to the Scottish Church;” the meaning of which is, that he decreed that all church lands should be free from secular exactions.[34] In 908 the primacy was transferred to St. Andrews, and Cellach was appointed first Bishop of Alban.[35] A church was founded at Brechin about the year 1000, and was dedicated to the Holy Trinity. It was probably a monastery after the Irish model, with a College of Culdees. The round tower there is a mark of its early association with Ireland.

The Culdees long continued to assert their position and maintain their rights, but they became gradually absorbed into the cathedral chapters established in the country. We thus finally arrive at the period when, in the eleventh century, the adoption of the Roman system in Scotland, under Malcolm Canmore and Queen Margaret, was completed.

We have now followed the history of the Church in Scotland up to the point where the two streams of influence we have been observing, one from Ireland and the other from Rome through England, meet. We have noticed the powerful influence of the former in imparting to Scotland, under the Columban system, its early rudiments of education, religion, and art. Although this phase of culture did not display itself prominently in architectural results, yet there are other departments in which it excelled. It is to it we are indebted for the beautiful examples of caligraphy and decorated metal work of which the relics are preserved in the MSS., shrines, croziers, and ornaments of the Celtic race.[36]

The marvellous sculptured ornaments and crosses in which Scotland still abounds are also relics of the culture and artistic elements introduced by the missionaries from Ireland. These features of Celtic art form one of the most remarkable series of monuments in any country.

In Ireland, as we have already seen, this monumental art is chiefly exhibited in the recumbent cross-bearing slabs at Clonmacnoise and other ecclesiastical sites, while its later development assumes the form of free standing crosses of the Celtic pattern carved with the interlacing ornaments{16} characteristic of the style, or with figure sculptures enclosed in panels, each panel representing a Scriptural or symbolic subject.

The Scottish sculptured monuments, although bearing a general resemblance to the Irish, have several peculiarities. The earliest form of sculptured monuments in Scotland, as in the other Celtic divisions of Britain, consists of rude upright stones, engraved with an equal-armed cross enclosed in a circle, accompanied with an inscription in debased Roman capital letters, generally comprising the formula “hic jacet” and the chi-rho symbol. The carving is invariably incised in the stone. We have already met with examples of this class of monument, probably of the fifth century, in the South-West of Scotland, in connection with the Candida Casa of St. Ninian. (See Fig. 1.)

Certain peculiar forms of sculptured symbols, carved on undressed upright stones, seem to have originated amongst the Northern Picts. These symbols (Fig. 3) consist of the well-known symbol of (a) the “crescent and sceptre,” (b) the “double disc” or “spectacles,” (c) the above with sceptre, (d) the oblong with sceptre, (e) the “elephant,” and other forms which are very common in the East of Scotland north of the Forth, but are unknown anywhere else. The meaning of these symbols has never been satisfactorily explained. In the earliest monuments the symbols and occasional figures are the only ornaments found on the stones. They are invariably incised and plain, containing no interlaced or other ornament. It has been pointed out by Dr. J. Anderson that these simple incised symbols probably belong to the period before the beginning of the eighth century, when the Columbans were expelled from Pictland by King Nectan, while the later form of decorated monuments which succeeded them possibly dates from the return of the Columban clergy from Ireland in the middle of the ninth century, when they were re-established in the land by King Kenneth.

That period probably marks the later style of ornamentation which is found on the monuments. The original idea of an upright stone with sculptured symbols is retained, but the monument is no longer a rough unhewn block. It is now a shaped slab, dressed on both sides and on the edges, and the ornamental work is no longer incised, but carved

[Image unavailable.]

Fig. 3.—Symbols. (From Stuart’s Sculptured Monuments.)

{17}

in relief (Fig. 4). The oblong slabs are always upright, and ornamented on both sides, not recumbent like the Irish slabs. They generally bear on the obverse a cross of the Celtic form occupying the full size of the stone. This form of cross has the four angles at the junction of the arms with the upright shaft hollowed out with a circular or square recess, and the junction surrounded with a circular band. The oblong form of the slab is preserved entire, and the portions of the surface on each side of the cross are usually covered with sculptures representing symbols or interlaced patterns arranged in panels (Fig. 5). The cross itself and the other figures are carved with elaborate designs of interlaced work, or with frets or divergent spirals. The reverse of the slabs is also covered with sculpture representing symbols and conventional or symbolic figures (Fig. 6). The sculpture on these stones bears a close resemblance to the designs of the Celtic MSS., so close, indeed, that each sculptured monument might be a page of MS. carved in stone. This indicates, as pointed out by Dr. J. Anderson, that the designs were first wrought out and brought to perfection on the pages of the MSS., and reproduced at a subsequent

[Image unavailable.]

Fig. 4.—Cross at St. Madoe’s, Perthshire.

period on the stone monuments. The earliest Celtic MSS. date from the end of the seventh century, while the decorated slabs are probably of the ninth to the twelfth centuries.[37]

A distinct change or progressive development is observable in the forms of the sculptures and ornaments of the above monuments. The{18} Celtic design gradually gives place to new features which bring it into conformity with the decorations of the MSS. and metal work and the general progress of the country. It thus at length becomes merged in the general design of the twelfth century, as introduced from the South along with the other effects of the Roman influence. The interlaced work, spirlets, and fret work give place in course of time to scrolls and leaf ornaments (Fig. 7). The crosses, formerly enriched with divergent spirals, become carved with leaf or flower patterns, the peculiar Pictish symbols disappear, and the Celtic cross gives place to the more ordinary Norman form. Upright cross slabs are abandoned and recumbent slabs take their place.

Amongst the later examples, Scripture scenes similar to those on the Irish crosses are introduced in the panels, together with numerous hunting pieces and figures of men and animals. Dr Anderson[38] shows distinctly that the Scriptural scenes are debased and barely intelligible representations of symbolic subjects from the Bible, such as Adam and Eve, the Sacrifice of Isaac, David Slaying the Lion, &c. Similar subjects are common in the Catacombs of Rome, where they are painted so as to be easily recognised; but in course of time, and after many imperfect efforts to copy them, they became reduced to the conventional forms seen in the Celtic sculptures, the meaning of which can only be explained by following the designs back to the originals. Dr. Anderson also shows that the hunting scenes, with men on horseback, dogs, &c., and the grotesque

[Image unavailable.]

Fig. 5.—Logierait, Perthshire. (From Scotland in Early Christian Times.)

{19}

animals represented, often with much spirit in the sculptures, are derived from the symbolic mediæval bestiaries. These figures, which at first sight might be regarded as secular or grotesque, are thus proved to be symbolic of Christian doctrine and moral teaching, like many of the later and more naturalistic carvings in the Gothic churches. In the hunting scenes the hart panting after the waterbrooks represents the soul pursued by its worldly enemies; the shooting of the wild boar with arrows symbolises the conversion of heathen savages to Christianity; the pelican, with its young, is a symbol of the Resurrection; the lion, the eagle, the phœnix are types of Christ; the fox and hyena of the devil.[39]

The above monuments of the East of Scotland are, as we have seen, almost all of the upright slab form, bearing the cross on the obverse. Only a very few free standing crosses exist in that region. Some examples of transition character are, however, found which form a connecting link between the upright slabs and the free standing crosses. These consist of cross bearing slabs having the circles, at the junction of the arms with the shaft, cut through the stone. It then only remained to cut away the remainder of the slab and leave the cross free.

[Image unavailable.]

Fig. 6.—At Rossie Priory, Perthshire. (From Scotland in Early Christian Times.)

{20}

[Image unavailable.]

Fig. 7.—St. Vigeans, Forfarshire.

(From Scotland in Early Christian Times.)

In the West of Scotland, on the other hand, the principal form of cross is the free standing one. In consequence of the invasions of the Northmen, this part of the country was in a great state of disturbance for a long period after the expulsion of the Columbans from the East, and little monumental work seems to have been done.[40] There are, however, a few fragments of free standing crosses at Iona, and one fine specimen at Kildalton, in Islay, which exhibit the same characteristics in their sculpture as the pure Celtic upright slabs of the East. (Fig. 8.) When monumental sculpture was revived in the West, at a considerably later date, its style indicates connection with Ireland rather than with the East of Scotland. Free standing crosses abound, and the upright slabs carved on both sides are rare; the grave slabs being recumbent, like those of Ireland. The symbols peculiar to the East are also entirely wanting. It seems also that the monuments of Argyllshire and the Western Islands (as at Iona, &c.) were influenced by a style of sculpture imported from the Continent, of which examples exist at Durham and Hexham. These “are not Celtic, but a debased local survival of Romanesque forms.”[41]

The late Western crosses have, further, this peculiarity, that the circular band round the head of the cross is not cut free, so as to present an independent ring of stone, but forms a solid disc, from which the ends of the arms and top project. (Figs. 9 and 9A.) These crosses generally contain a representation of the Crucifixion, which is almost unknown in pure Celtic work. The carving also ceases by degrees to be distinctively Celtic, and consists generally of scroll work and foliage. (Fig. 10.) These features were adhered to in this region for centuries after the Celtic work of the East had entirely given place to the general Gothic art of the rest of Europe. (Fig. 11.) The monuments of the West thus retain a very special character, the foliage of the designs being unique and original, and in many cases of much beauty. This peculiar design continued as late as the sixteenth century, several good dated examples of that period being still preserved, mixed with debased Gothic{21} features. The architecture of the locality is naturally much influenced by this style, as will be pointed out when Iona is described.

It can scarcely be doubted that many of the Scottish sculptured stones are of about twelfth century date. The sculptures on them represent the

[Image unavailable.]

Fig. 8.—St. Martin’s Cross, Iona.

 

Fig. 9.—M‘Lean’s Cross, Iona.

same scenes, and are derived from the same source, as many of those carved on the tympana and fonts of Norman churches. Such sculptures are found on churches dating from 1135 to 1190, and almost no figure sculpture is found on churches of an earlier date. The subjects carved on the{22} churches are similar to those on the crosses, such as Adam and Eve, David and the lion, Daniel and the lions, hunting scenes, animals, monsters, and symbolic figures derived from the bestiaries. (See Dalmeny below.) The latter figures continued to be used on Gothic structures till a comparatively late date.

[Image unavailable.]

Fig. 9a.—Island of Oronsay.
(From Scotland in Early Christian Times.)

 

Fig. 10.—Kilchoman Cross, Islay.

The sculptured crosses of the East of Scotland thus naturally connect{23} themselves with the current design of the period in other countries. They are no longer the mysterious and unintelligible monuments they

[Image unavailable.]

Fig. 11.—From Iona.

were once supposed to be. By the able investigations and expositions of the writers above referred to, they are brought into harmony with the{24} general art of Europe prior to the twelfth century, and are shown to hold a prominent place in the artistic history of the country.

It is remarkable, notwithstanding the abundance of sculpture on the early monuments, that, until the advent of the Norman influence, scarcely any indication of architectural details or sculpture occurs on the churches of either Ireland or Scotland.

The earliest sign of decoration on buildings in Ireland is seen in the form of a cross, composed of five white pebbles, inserted over the doorway, in the dark stone of which the beehive cells of Ardoilean are built. Some of the round towers contain very early instances of symbolism in the Celtic cross carved on the lintel, while late examples (such as Brechin) show a further advance in the introduction of a Crucifixion on the lintel, and other figures on other parts of the doorway. The carving of the cross on the above and other lintels is probably symbolic of the blood of the lamb which was struck on the doorposts of the Israelites in Egypt at the Passover.[42]

EARLY ECCLESIASTICAL STRUCTURES IN SCOTLAND.

The ecclesiastical structures of the early centuries which still survive in Scotland are of the type of the stone erections above described in the monasteries of Ireland. The beehive huts and oratories of the parent eremitical establishments in the latter country are represented by a few similar collections of structures which yet remain in the remote islands and distant parts of Scotland.

Groups of dry-built beehive huts (or the remains of them), surrounding one or more primitive churches, can still be pointed to in several localities. These are surrounded with the wall or cashel which was always present around the Irish monasteries.

Diminutive dry-built stone cells or oratories, with sloping or curved walls, having the roof closed in with overlapping stones, converging towards the centre, and covered with flag-stones, are still found in the remote islands. One oratory also exists at Inchcolm where the stone roof is supported by a true arch, as in some of the latest Irish examples. It should, however, be pointed out that huts of similar construction to the above are known to have been erected and inhabited in recent times in the Outer Hebrides.[43] The hermitages above referred to, although belonging to this oldest type of structure, may thus possibly not be the oldest buildings in the country.

At a later time the rude monastic cells and hermitages were{25} followed by the churches established by the missionaries from Iona. The Scottish churches erected by the Columbans were, like those of Ireland, of extreme simplicity, and generally of small dimensions. They consisted of a simple oblong chamber, with a single door and a single small window. The walls were often built without mortar, and the wall apertures were finished with undressed stones. These structures were sometimes covered with a plain barrel vault, and sometimes with rafters and thatch. The jambs of the doorway incline inwards and have straight lintels; the windows are either square-headed or rudely arched. Until the Romanesque influence is felt, not a trace of any kind of ornament is to be found on these churches. Latterly, a few details resembling Norman work are introduced.

In other examples of this type the details are more advanced. The door jambs are upright and are covered with semi-circular arches, and the windows are also similarly treated. The buildings, however, possess few features to enable the date of their erection to be determined. They may possibly have all been erected during a long course of years at different times in different localities, according to local circumstances; but it is natural to suppose that those of the more refined type are the latest.

Another class of churches forms a distinctly later type than the above simple quadrilateral structures. These are the churches consisting of a nave and chancel. Not that the method of construction or the details of these churches show any advance on the previous class. On the contrary, the details are in many cases as simple and rude as those of the one-chambered churches; but the alteration of the ground plan, by the addition of a separate chancel, shows a development of the religious service, leading to the inference that the type of churches with chancels is later than the single-chambered ones. This, however, only shows that the idea is later, not that single-chambered churches did not continue to be erected after the chancel had, in some instances, been introduced.[44] The persistence of an original form of plan is remarkable and is well exemplified in the history of the castles of Scotland, which shows how the primitive keep-plan of the thirteenth century continued to be adopted up to the seventeenth century, long after other and more developed forms of castles had been introduced.

The tendency in churches, however, seems to have been to adhere to the chancel plan after its introduction, and even to alter older simple churches by the addition of a chancel to one-chambered structures. Of this we have mentioned an instance in Ireland at St. Kevin’s oratory at Glendalough, and we shall meet with examples in Scotland as we proceed. In other instances, primitive oratories have been converted into churches with chancels by the addition of a nave, the original oratory being retained as the chancel. We have thus a transitional plan{26} forming the link which connects these primitive single-chambered churches with the more advanced type of church with nave and chancel. In most of these early churches the chancel forms a separate apartment from the nave, the entrance to the chancel being by a doorway only, generally similar in size and form to that of the western entrance to the nave.

The chancel arch occurs, in some instances, as a later development. This, together with a few other details, seems to point to the influence of the Continental or Romanesque style which was slowly beginning to make itself felt in some parts of the country. All the above types of structures have been thoroughly examined and described by Mr. Muir, and will be more fully dealt with in the detailed descriptions of the churches derived from Mr. Muir’s works.

There still remain some special examples of Celtic structures to be mentioned. These are the well-known round towers, of which those at Abernethy and Brechin have already been referred to. A third round tower is also found attached to the church of Egilsay, in Orkney.[45] These towers are, undoubtedly, all examples of a style imported from Ireland. They are detached specimens of a group, of which no fewer than seventy-six examples still exist in that country, besides twenty-two others which are known to have existed formerly. It has been shown by Dr. Petrie that the Irish round towers were erected as places of refuge in connection with monasteries, to which the monks might repair with their relics and treasures in case of alarm. Such shelter was only too much required, as the valuables of the monastic institutions formed a very tempting bait for pillage by the Norsemen, whose depredations were so alarming during the ninth century.

The history of the round towers of Ireland is easily traced in their architecture, and has been fully explained and illustrated by Dr. Petrie in his well-known book on the subject, and in the late Lord Dunraven’s beautiful work on the early structures of Ireland. These towers are always found associated with religious sites. The earliest examples are comparatively rude in structure, while the later ones gradually improve in style of masonry and finish, until the latest are built with ashlar work, and contain some Romanesque ornaments and details. In all, however, the leading principles of their construction are the same. (Fig. 12.) The tower is round on plan, and is finished on top with a conical roof. The door is narrow, and is placed, for security, at a considerable height above the ground, and the lower floor is sometimes built up solid, so as to resist conflagration. The windows are small, except those on the top story, which are generally set facing the cardinal points, and are larger, so as to allow the sound of the bell to be heard—one of the uses of the tower being to serve as a belfry. The Irish practice of inclining the jambs of the doors is maintained, and in the early examples the lintel is straight,{27} while in the later ones the door is finished with a semi-circular arch, and enriched with several orders of mouldings and ornaments bearing a markedly Norman character. This remark applies also to the four windows of the top story, which are plain in the early examples, and gradually become more ornamental and Norman like. The Irish towers are almost invariably built alone, and free from other structures; but some late examples are constructed in connection with churches, and enter from them by a door on the level of the floor of the church. The idea of using these towers as a place of security is thus departed from, and they are then simply of use as belfries.[46] Finally, they become absorbed into the structure of the church, and are erected merely to serve as belfries on the gable.

In the three Scottish round towers we find the same characteristics as in those of Ireland. The tower at Egilsay (q.v.) is rude in style of masonry, but as

[Image unavailable.]

Fig. 12.—Irish Round Tower at Devenish. (From Scotland in Early Christian Times.)

it enters from the church on the level of the floor, it is evidently of the late type above referred to. The towers at Brechin and Abernethy (q.v.) are built with more carefully selected and wrought materials, and both have the door, which is built with inclined jambs, set some feet above the ground. The latter has the four upper windows covered with semi-circular arches,{28} showing a considerable amount of Norman character in the mouldings and enrichments, as well as in the style of masonry. That at Brechin has a door with sloping jambs, having a Crucifixion carved above it and dragonesque sculptures at the base, and other details connecting it in a marked manner with the style of the round towers of Ireland. There can be no doubt that these are outlying examples of the Irish class of towers, while they exhibit also some features of the Romanesque architecture which, in the eleventh and twelfth centuries, had penetrated thus far northwards.

The next step in architectural progress consists of another structure, comprising a tower of a character somewhat related to the above, but having the Norman character more fully developed. This is the church of St. Regulus at St. Andrews (q.v.), the tower of which is lofty and square. This tower may be compared to the square tower of Cormac’s Chapel at Cashel, in Ireland, which is stated by Dr. Petrie, on good authority, to have been finished by 1135.[47] They both possess Norman features, well developed, and their square form and close attachment to a church are elements which distinguish them from the other and older round towers. Probably, however, they were also intended, like the latter, to form places of secure retreat as well as belfries. Both bear the signs of being late buildings of their class.

The dates of all the Irish round towers are somewhat uncertain, but probably extend from the ninth to the twelfth centuries, having, as already stated, been erected at the time of the invasions of the plundering Northmen. The dates of the destruction of several are recorded, and have been collected by Dr. Petrie, who also shows that many churches which had been destroyed by the Northmen were repaired and rebuilt about 1150.[48]

It is believed that in Ireland a form of Romanesque was introduced before the Anglo-Norman invasion,[49] and many of the early ornamented churches show a style of carving in which the Irish interlaced work and other special details are introduced. But in Scotland there are no traces of churches containing any similar work, although, possibly, some may have existed and been swept away in the great rebuilding epoch which followed the Norman Conquest.

The earliest examples of anything like ornament in Scottish churches within the historic period are undoubtedly the outcome of the Roman influence introduced under the Normans. We have already referred to the effects of early Roman influence at St. Regulus; and the next earliest building, the date of which is thought to be recorded, is the Reilig Oran at Iona (q.v.), a simple single-chambered structure, with a west doorway containing Norman ornament. This is said to have been erected by Queen Margaret before 1093.[50]{29}

The chapel in Edinburgh Castle bearing St. Margaret’s name is also attributed to her, and is supposed to have been erected during her lifetime, or shortly afterwards. It would, in that case, be the first example in Scotland of a church terminating with an eastern apse (which, however, is square on the exterior).

Whether these buildings were actually erected in Queen Margaret’s lifetime or not, they certainly belong to a period not long subsequent. The life of that Queen and Saint marks the period of transition in Scotland from the old system to the new, not only in building, but in every other department.

Edgar Aetheling, the heir of the old Saxon kings, having been driven out by the Conqueror, found refuge, along with his mother and sisters, in the Court of his relative, Malcolm Canmore. There Margaret, having become Malcolm’s wife, soon introduced many of the reforms and ameliorations she had learned in England. Particularly, she gave a distinct impetus to the Roman influence, then very strong in the South, and encouraged the hosts of Saxon refugees who now crowded to Scotland, bringing their advanced notions with them. The same tendency was manifested by Margaret’s sons, Edgar and Alexander, who followed her footsteps in endeavouring to assimilate the Scottish Church to that of England.

It was King Alexander who, being driven by a storm on the Island of Inchcolm, in the Frith of Forth, was rescued and sustained by a hermit, who then occupied a primitive cell, built on the island, similar to those of the Columbans above referred to. The king vowed, in thankfulness for his deliverance, to found a monastery on the spot, and in 1123 he here introduced a colony of Canons Regular. He also endeavoured to bring the Episcopacy of St. Andrews into conformity with the Roman model.

Under Alexander,[51] Turgot, the Prior of Durham, and biographer of St. Margaret, was appointed to the long vacant See of St. Andrews. This king also founded the Bishopric of Moray, and restored that of Dunkeld. In the former wild Diocese the churches of Birnie, Spynie, and Kinedor appear to have existed, but it was not till 1203 that Bricius, the sixth bishop, was able to fix his cathedral at Spynie.

In 1115 Alexander introduced a colony of Canons Regular to Scone, from Nastley Abbey, in Yorkshire, and some years later he brought canons to the Diocese of Dunkeld, and in 1122 he founded a Priory of Canons Regular on an island at the east end of Loch Tay.[52]

Alexander was succeeded by his brother, David I., who carried out vigorously the same ecclesiastical policy. While still Prince of Cumbria, he, about 1115, appointed an inquisition of the elders and wise men of Cumbria to inquire into the lands and churches which formerly belonged to the See of Glasgow. The Prince appointed his tutor John to the{30} revived bishopric, and in 1147 a dean and chapter, after the model of Sarum, were introduced. On his accession to the throne David proceeded diligently with the establishment of bishoprics and monasteries. It is said of him by Ailred of Rivaux[53] that, “Whereas he had found in the whole kingdom of Scotland three or four bishoprics only, what with ancient ones which he restored and new ones which he founded, he left nine at his death.” The bishoprics which existed at his accession were those of St. Andrews, Moray, and Dunkeld. Those he founded were the Dioceses of Rosemarkie, Ross, Aberdeen, and Caithness. Glasgow, as we have seen, he re-established, and the See of Galloway was also restored.

Under King David I. a final effort was made to suppress the Culdees, or rather to absorb them into the general system as approved by Rome. Those of St. Andrews were with difficulty dispossessed. The Culdees of Lochleven were suppressed. Those of Monymusk, in Aberdeenshire, were brought under the control of the Bishop of St. Andrews. Not only were the old establishments suppressed, but new monastic orders were everywhere introduced, Dunfermline Abbey was remodelled and Benedictines brought to it from Canterbury. The same order was introduced at Urquhart in Inverness-shire. After Moray had been brought into subjection, the Monastery of Kinloss was founded and peopled with Cistercians from Melrose. Of other monastic institutions throughout the country many others were re-established on a new footing and received the benefactions of the king. In 1113 he had (as Earl) founded a monastery at Selkirk for Benedictine Monks of the Order of Tyron. This was afterwards removed to Kelso, while the establishments of Melrose, Dundrennan, Newbattle, Coldingham, Holyrood, Cambuskenneth were fostered and strengthened.

The efforts of King David in the first half of the twelfth century carried out vigorously in Scotland the system inaugurated by St. Margaret, which was, indeed, the distinguishing feature of the period throughout Europe. He, no doubt, had policy as well as religion in view, and believed that in importing numerous bands of educated monks into the border lands of his kingdom, both in the North and South, he was doing the best possible to spread the benefits of education and civilisation in those unsettled localities, and was thus consolidating his dominion.

At this period the Saxon refugees were followed into Scotland by large numbers of Norman knights. These were well received by King David and presented with lands in the outlying districts, which he had subdued, as well as throughout the country. The number and extensive possessions of these Norman immigrants are most apparent in the names of the proprietors settled in every part of the country.[54]{31}

The policy of colonising the outlying and turbulent districts with these trained knights is apparent. They would in self-defence help to keep the country in order, and defend it from the attacks of the still unsubdued regions of the North and West. It also had the effect of facilitating the spread of the Roman ecclesiastical system which the king had so much at heart. The country, being parcelled out in the hands of Anglo-Normans already imbued with the principles and practices of that system, would soon be brought into conformity with it. Each proprietor would, as soon as possible, raise a hamlet round his castle for his retainers, and a village church for their religious requirements. Thus there speedily arose, instead of the ancient tribal arrangements, a new distribution of the land into parishes, each with its parochial church and priest, and each tithed to its own manor.

Evidences of these early parish churches still survive in many places, and they will be illustrated in the sequel.

But “this goodly framework of a parochial secular establishment was shipwrecked when scarcely formed.”[55] Monachism was then in the ascendant in Europe. New Orders were constantly being created, to spread the banner of Roman supremacy. Their monasteries soon drew to themselves all that was worth having in the Church. The Lords encouraged them and presented them with lands and churches, and the people were attracted by their zeal and asceticism. They soon became rich and were able to indulge their taste in the erection of noble monasteries and churches, the illustration of which, erected during the three succeeding centuries, forms a most important part of the following pages.

Having traced the course of the influences which affected the primitive ecclesiastical structures of Scotland till the period when the Irish influence was superseded by that of Rome, it is now proposed to glance shortly at the origin and development of the Norman style which, as we have seen, was introduced into this country in the twelfth century, and of the various styles of Gothic architecture which succeeded it.{32}

ROMANESQUE ARCHITECTURE.

After the fall of the Roman empire in the fifth century, a debased style founded on Roman models prevailed over Western Europe, and

[Image unavailable.]

Fig. 13.—Roman Arch—Pont du Gard.

as the various waves of barbarians swept over the empire and settled in different parts of it, they adopted the Roman system of construction which they found in existence, and imported into it gradually ideas of their own. In course of time a method of building was thus developed which is known as the Romanesque style. This style varied greatly in different localities, according as it was influenced by the presence or absence of Roman structures to serve as models for imitation; but over the whole empire it retained a certain amount of resemblance to Roman forms.

The Roman principle of an arched, as distinguished from a trabeated, style of building was preserved everywhere, but was for long applied in a very simple and merely imitative manner. When, however, nationalities came to be settled, and law established, and when at the same time the regulating and disciplining influence of the Church made itself felt, some elements

[Image unavailable.]

Fig. 14.—Romanesque Arch.

of order and regularity were introduced into the system of construction. The large and massive building materials employed by the Romans not being usually available by the builders of the Middle Ages, smaller materials had to be utilised, and this led to the introduction of new ideas in their application. For instance, the arches supporting walls were, under the Romans, constructed with large materials, and had a broad soffit or under surface going through the wall (Fig. 13); but with the smaller materials in use in the tenth and eleventh centuries, arches, for the same purpose, were more conveniently built in rings, one within the other (Fig. 14). These rings were placed so as to present to the eye, instead of a flat soffit, a series of arches arranged in stages or steps towards the centre, and each bearing a part of the load of the wall. This subdivision of the original plain soffit is called the “subordination” of arches, and was the first step in the long process of advance which led finally to the perfect Gothic architecture of the Middle Ages.{33}

The next step was to divide the solid square piers which had been originally employed to support the arches into a number of distinct parts corresponding to the rings of the arches, thus forming “orders” in the piers, as well as in the arches they carried. (See Fig. 14.)

[Image unavailable.]

Fig. 15.—St. Trophime, Arles.

Owing to the occurrence of frequent fires in the wooden roofs of early churches, the builders aimed at carrying out the Roman practice of fireproof vaulting. This was at first done timidly and with many failures. The round barrel vault of the Romans was that generally employed; but in Provence the pointed barrel vault (Fig. 15) was adopted{34} from an early period, being a form which exerted on the side walls a less horizontal thrust than the semi-circular arch, and was the best shape for supporting a stone roof laid upon it. In order to strengthen this vault, a projecting ring or inner arch was constructed under the main vault, and extended across the nave between each pair of the main piers.

Carrying out the principle of subordination already introduced, each of these strengthening rings had a shaft with cap and base placed so as to receive it, thus indicating to the eye the principle on which it acted—viz., that of carrying the weight of the strengthening rib down to the foundation.

[Image unavailable.]

Fig. 16.—Groined Vault.

By the eleventh century the principle of subordination had been carried out into every part of the structure, and some refinement was beginning to be attempted; shafts were substituted for the plain orders of the piers, and a cap and base provided for each (see Fig. 14.), and the sharp angles of the orders of the arch were softened by having large roll mouldings wrought upon them. The next step in the progress of development was the subdividing or groining of the vault, so as to admit of windows for the purpose of lighting the upper part of the building, which, with the barrel vault, was found to be very dark. (Fig. 16). Many different plans were tried to improve the lighting of the vault, but without satisfactory result, till recourse was had to the intersecting vault of the Romans, still visible in many structures then surviving. This mode of vaulting consisted in the introduction of a vault crossing the structure between each set of piers at right angles to the main vault, and it had at once the desired effect, as it enabled the side walls containing windows to be carried up as high as the top of the vault, thus giving ample light. Other very important consequences followed from this improvement of the vaulting. Hitherto, with the barrel vault, the pressure had been uniform over the side walls, which were made very solid to resist it; but with the introduction of the groined vaulting, the weight of the vault was concentrated on the points where the groins rested. This necessitated the strengthening of these points, which was managed by means of buttresses. These are simply portions of wall set at right angles to the building in order to receive the weight and thrust of the arches and carry them down to the ground. The portion{35} of the side wall between the buttresses was thus relieved from any pressure beyond its own weight. It is evident that an entire change in the principles of the construction of the edifice would thus be created. The buttresses now became important members both in the construction and the appearance of the building. The side walls, being now mere enclosing screens, might be reduced from their previous massive condition, and made as thin and light as desired, while the windows in them might be enlarged to any extent. The same remarks apply to the side aisles, the vaulting of which was also groined and supported on buttressed points like the main vaults. With the solid materials of the Romans, the groins or lines of meeting of the intersecting arches formed simple curved lines or angles; but with the smaller materials of the mediæval architects this construction could not easily be accomplished, and it became usual to construct the groins with a solid stone rib, at first plain, but in later examples enriched with a roll moulding.

The development of mediæval architecture reached the point above described during the course of the twelfth century. The Romanesque architecture of Lombardy, Germany, and Burgundy had wrought out the arrangement of the groined vaulting and the distribution of the forces arising therefrom, and the designing and construction of the necessary buttresses. The subordination of the various members, the division of the piers and arches into orders, each performing a distinct function, the erection of a vaulting shaft at each pier to receive the ribs of the vaults, the construction of ribs to form the groins and carry the panels of the vaults, had all been fully accomplished. Each shaft was supported on a base and crowned with a cap to receive its load, and each order of the arches received an appropriate moulding or enrichment. Thus far were the constructional features of a genuine arched style of construction, in stone, wrought out during the course of the eleventh and early part of the twelfth centuries.

The forms of the ornament kept pace with the development of the construction. In the earlier centuries the Romanesque style had become stereotyped, the general features being regarded as wrought out, and invention limited itself to the elaboration of details and ornaments. Hence it arose that much of the Romanesque ornament was overloaded and inapplicable to its position. But as advances were made in the direction of improving the vaulting and other constructional elements, the builders’ energies were also directed towards improvement of the decorative features, the heavy unsuitable ornaments were discarded, and lighter and more appropriate forms introduced.

This new phase of architecture was adopted by the Normans with their usual energy, and during the twelfth century was carried out by them, both in Normandy and England, to an advanced state of development, thus constituting the well-known Norman style.{36}

NORMAN STYLE.

This style is easily recognised by its simple and massive forms and its semi-circular arches. The exterior (Fig. 17) is generally plain, with broad and slightly projecting buttresses attached to the building, and sometimes

[Image unavailable.]

Fig. 17.—Church of St. Cross, Hampshire. Elevation of the East End. (From Britton’s Antiquities.)

crowned with pinnacles. The doorways are, however, generally treated in a more ornamental manner. They are often deeply recessed, and have the jambs decorated with a series of round shafts set in square nooks or recesses, and furnished with richly-carved caps and bases. The arch{37}

[Image unavailable.]

Fig. 18.—Durham Cathedral. The Nave. (From Billings’ Durham Cathedral.)

{38}

mouldings, which are also numerous, are arranged in square steps or orders, and frequently ornamented with much carving of special kinds of enrichments. Of these the chevron, or zig-zag, is most abundantly used, together with the billet, the bird’s head, &c. The windows are wide in proportion to their height, and are covered in with round arches.

In the interior (Fig. 18) the Norman piers consist of simple cylindrical columns of great size, frequently carved with large zig-zags or spiral lines carried round them, and finished with bold caps and bases. The most frequent caps are of the “cushion” form, which resembles one or more spherical figures having portions cut off perpendicularly. The caps are also sometimes carved with human or other figures. The abacus is always solid, and generally square in shape. In some examples, especially in France, the capitals of the piers are frequently carved in rude imitation of the Corinthian form and foliage.

Late examples show the piers subdivided into the clustered form, which became universal in the subsequent periods. In the transition from Norman to Early Pointed, many of the features of the latter style are gradually introduced. Hence a mixture of the round and pointed arch, and a lightening of the mouldings, and a new kind of carving of foliage are observable in the latter half of the twelfth century. The earlier Norman edifices are extremely plain, scarcely any ornament being used. The figure sculpture is almost entirely confined to the period after 1135.

NORMAN STYLE IN SCOTLAND.

Of the cathedrals, monasteries, and churches erected in Scotland during the twelfth century, only a few portions now exist, nearly all of them having been reconstructed or altered at later times.

The Cathedral of Dunblane still retains a tower of the foundation of King David; and in the nave of the Cathedral of Kirkwall, commenced 1136, we yet possess a noble Norman structure, which, however, we owe to the piety of the Norwegian occupants of the Orkneys.

Of the monastic foundations of St. Margaret and her sons we still retain the venerable Norman nave of Dunfermline, and portions of the Norman edifices of Holyrood, Dryburgh, and Jedburgh.

Kelso Abbey Church, although only a fragment, is a fine specimen of the late style of the twelfth century. Arbroath Abbey, founded by William the Lion in 1178, still shows in its ruins some late work of the same period. Holyrood, Jedburgh, and St. Andrews contain much work of the period of transition from the Norman to the First Pointed style, which came into use about the beginning of the thirteenth century.

Of the twelfth century parish churches, those of Dalmeny and Leuchars are nearly complete and very beautiful examples, the former having nave, choir, and apse, and both exhibit much of the arcaded and ornamental{39} work of the more florid period of the style. Portions of Norman work are found, as was to be expected in this great church-building epoch, in every county, and are represented here by a tower, there by a chancel arch, elsewhere by a door or a window, or other fragmentary relic—rarely by a whole nave or chancel. In some examples the Norman plan is still complete so far as the outline of the walls is concerned, but these are generally considerably altered and interfered with, as, for example, at Duddingston, Stobo, and Uphall. The parish churches were usually of small size, and consisted of an oblong nave and chancel, separated by a chancel arch generally ornamented with chevron enrichments. Frequently there was a semi-circular apse beyond the chancel, also entered by an enriched semi-circular arch. Side aisles were rarely introduced. The only Norman parish church of cruciform plan was that of St. Nicholas, Aberdeen, now greatly altered.

FIRST POINTED STYLE.

The Norman style of architecture continued to prevail in England till near the close of the twelfth century, and in Scotland for some time thereafter. At that period a further and completer development awaited the architecture of the Middle Ages. We have seen that the “subordination” of all the parts had been achieved, together with the use of the groined vault, with its accompanying buttresses and pinnacles, in the round arched style. The employment of the round arch was, however, found to involve many practical difficulties in connection with the vaulting. The bays of the nave, so long as they were square in plan, could be conveniently vaulted with intersecting semi-circular groins; but when they were of an oblong form, the width being greater than the length (as was often found necessary in order to suit the vaulting of the side aisles), the round arch was found very inconvenient in consequence of the large arch which spanned the nave rising to a greater height than the smaller arch of the side walls. It was endeavoured to overcome this difficulty by stilting the arch of the side vault so as to make its apex of the same height as the main transverse vault; but this scheme interfered with the lines of the groins or intersection of the vaults in such a manner as to render it unworkable. It therefore became necessary to seek for a more flexible form of arch, which would enable the apex of all the arches of the vaults, whatever their span, to rise to any required height. This useful form was discovered in the pointed arch, which had long been in use in Provence, and which the builders of the North of France now found themselves forced to adopt by the exigencies of their vaults, and which ultimately led to the development of the pointed style.

The new life and growth of architecture which, as we have seen, sprung into existence in the twelfth century, had been adopted with{40} eagerness by the builders of the Royal Domain of France. Not being trammelled by the traditions of an ancient and long-used system, these architects had thrown themselves with energy into the new development of architecture, and it was in this locality that the application of the pointed arch to the difficulties of the vaulting seems to have been first successfully carried out.

As early as 1144 the pointed vaulting of the side chapels of the Cathedral of St. Denis was completed by the Abbé Suger. Some time elapsed until the effect of this new system of vaulting was fully realised, either in France or England; but when its advantages were at last seized, the pointed arch was speedily adopted. At first it was applied in both countries, for the sake of strength, to the main bearing arches; but gradually the round arch was superseded, and the pointed form adopted, for the sake of harmony, in all wall openings. The pointed style thus became completed in its main elements towards the close of the twelfth century. The pointed form of the vaulting gradually ruled every other feature. The large windows of the clerestory, being near the vaults, naturally assumed the same pointed form as the wall ribs, and the other windows and the doorways speedily followed, in sympathy with the general movement.

The fresh vigour of the mouldings and foliage begun under the Normans went on improving in the pointed style, and the energy and devotion of the builders in France and England wrought out in each country a separate pointed architecture, each founded on the use of the pointed arch, but each showing original and distinct elements.

In France there is visible, in the early pointed architecture, a constant effort to attain to some new development—a restless striving after novel and more expanded forms, leading to great magnitude and height in the churches, many of which were, in consequence, never finished. In England, while novelties of design are sought after, there is more contentment and completeness in the architecture. There is not the same soaring ambition and striving after spacious buildings and lofty vaults; consequently, the English cathedrals and large churches are more frequently finished, a greater amount of attention being devoted to rendering the structure complete and varied in its different parts than in the production of one great and striking result. The English cathedrals are thus more picturesque, while those of France are grander in appearance. The former effect is produced by the multiplicity and variety, as well as the completeness, of all the parts, many of the English cathedrals (as Salisbury, Fig. 19.) having double transepts, eastern lady chapels, large vaulted cloisters, detached chapter-houses, &c.; while the grand effect of the French cathedrals arises from their great size and height, and the apparent unity and simplicity of the design. In one respect the cathedrals and churches of the two countries greatly differ. Owing to{41}

[Image unavailable.]

Fig. 19.—Salisbury Cathedral. View from the North-East. (From Britton’s Cathedrals.)

{42}

their immense height, the French churches require a vast quantity of lofty buttresses and pinnacles, which, to the eye accustomed to those of England, produce a feeling of confusion and unrest. The great flying

[Image unavailable.]

Fig. 20.—(From Viollet le Duc’s Dictionnaire.)

buttresses of the multangular chevet of the French cathedrals tend to increase this feeling, and to give the impression of an unfinished building still surrounded with huge piles of scaffolding. The plain rectangular east{43} end of most of the English cathedrals, and the comparative simplicity of the easily intelligible buttresses and pinnacles, give an air of repose and peacefulness to these edifices which is sought for in vain in most French examples. The portals of France are amongst the chief glories of its churches. The doorways of the English churches, although sometimes beautiful in detail, never attempt to reach the magnitude or splendour of those of France. But the side porches of the English churches are often of great size and beauty.

When attention is directed to the details of pointed architecture, constructional characteristics are found to pervade their design. In France, there is visible in every element of early pointed work a continuous effort to indicate its intention and purpose. Constructional utility rules everything, each member is designed to perform its function in the most perfect manner, and ornament is employed to express that idea. By means of the square or angular abacus of the caps and bases of the shafts, which are always set so as to show what member they carry, an effort is made to express the motive of the design, and the caps are carved with spirited foliage, signifying by its upward tendency the vigour with which they perform their duty. (Fig. 20.) The shafts of the piers, also, are so arranged and grouped and set at such heights as to declare at once the function they perform in supporting certain ribs and mouldings of the arches and vaults, and the tracery of the windows gives expression to the ideas which have guided its design. The constructional principles of the French architecture are especially distinct in the naked, but vigorous, churches of the early Cistercians in France.

The details of the early English work, while equally beautiful with French work, are not quite so expressive of growth and vigour. The foliage is conventional in the extreme, and less suggestive of vitality and development. The abacus of the caps, which is almost invariably round, does not so fully express their purpose in the design, while the mouldings with which the caps are usually ornamented fail to show the life and spirit of the carved and foliaged caps of France. (Fig. 21.) In the same way the introduction of tracery in the English windows lags behind that of France. In the latter country window tracery was fully developed by 1250, while in England the lancet form, single or grouped, was still adhered to. In variety of clustered columns and in richness of mouldings, however, the English style held its own.

The characteristics of the first or early pointed style in France and England are as distinct and apparent as those of the Norman. The general effect of the exterior (Fig. 22) is lighter than in the latter style, though still solid. The buttresses have greater projection and less breadth than the Norman ones, and are often lightened by having the outer angles chamfered. The water tables of the set-offs are also steeper, the pinnacles are thinner and loftier, and the buttresses are crowned with gablets and finials. In late{44} examples the flying buttress is introduced. The windows are invariably pointed. They are narrow and lofty, and from their acute shape are known as “lancet” windows. Each single window is distinct, but sometimes two or three are brought close together and are included within one arch head, so as to form a group. As the style advanced the arch head of such a group was perforated with a trefoil or quatrefoil figure. Circular windows are also common, and these came to be filled with

[Image unavailable.]

Fig. 21.—Salisbury Cathedral. (From Britton’s Antiquities.)

radiating shafts and trefoiled arch heads. Out of these two forms there gradually arose a simple kind of tracery towards the close of the period. The trefoiled head of the lancet is also a distinct evidence of early pointed work. The doorways are deeply recessed, and have generally free shafts in the jambs, with mouldings between. The arch mouldings are usually in square orders and boldly cut. In the interior the piers of the arches are much less massive than the Norman piers, and are{45} often composed of clustered shafts standing free, and set round a circular or octagonal pillar. The Norman square abacus continued to

[Image unavailable.]

Fig. 22.—Lincoln Cathedral. Compartment of the Nave, Exterior and Interior. (From Britton’s Chronological History of English Architecture.)

{46}

be used in transition and early first pointed work; but later, in England, the caps of each shaft have a round abacus, and the cap itself usually consists of mouldings, with a bell-shaped form beneath. When foliage is employed it is invariably of the conventional form above referred to; but in France the cap-à-crochet is almost universal. The arch mouldings are deeply cut, and their lighter form is easily distinguished from the heavy Norman rolls.

The ornaments of the mouldings are also very distinctly marked, the dog-tooth being conspicuous in all early pointed work.

Tall towers and spires supersede the more massive and lower towers of the Normans. In the vaults, the ribs are simple—only the cross springers and diagonal ribs being used—a longitudinal and transverse ridge rib is, however, occasionally employed.

FIRST POINTED STYLE IN SCOTLAND.

In Scotland, as might be expected, from its remoteness from the centre of origin, and from the fact that the pointed style was imported into this country through England, pointed architecture is not only somewhat later in appearing, but is to some extent modified in its developments. The main characteristics of the early pointed style of this country are, however, founded on those of England, and show no traces of any direct influence from France.

The principal difference between Scottish and English work is that the former is later and not so completely and purely pointed in style as the latter, the round arch and other Norman forms lingering with us in some cases long after the pointed style had been adopted.

During the thirteenth century the importation and settlement of Anglo-Normans in Scotland, begun in the previous century, still continued, and amicable relations between England and Scotland were fairly maintained. The Norman Conquest, which had been effected with so much violence in England, proceeded by more gentle means in Scotland, at least for a time. The ancient Culdee ecclesiastics having been absorbed or displaced and their revenues appropriated, the Church became gradually settled and established under the authority of Rome, and a stream of Englishmen continued to flow in to fill all the posts of honour and emolument in the ecclesiastical sphere; cathedrals, monasteries, and parish churches arose under the fresh and vigorous impulse of the new order of things. The style of architecture practised in England during the thirteenth century was introduced into Scotland, and the edifices erected here could scarcely be distinguished in character of design from those of the early English period in England.

The pointed Gothic style, which, as we have seen, had its origin in{47} the North of France about the middle of the twelfth century, appeared in England about 1170, but can scarcely be said to have reached Scotland till after the close of the twelfth century. The Abbey of Arbroath, founded by William the Lion in 1178, contains a few traces of transition work, passing later into first pointed; and other structures containing a good deal of Norman design were erected in Scotland as late as 1210. The Anglicising process, begun in the twelfth century, was continued in the thirteenth century. The Orders of the Cathedrals were founded on those of England. “Thus the Chapter of Glasgow took that of Salisbury as its guide; Dunkeld copied from the same type, venerable in its associations with the name of St. Osmund, whose ‘use of Sarum’ obtained generally throughout Scotland. Elgin or Murray sent to Lincoln for its pattern, and transmitted it, with certain modifications, to Aberdeen and Caithness. So it was also with the Monasteries—Canterbury was the mother of Dunfermline, Durham of Coldingham; St. Oswald’s at Oxstall, near Pontefract, was the parent of Scone, and through that house of St. Andrews and Holyrood. Melrose and Dundrennan were daughters of Rievaux in the North Riding; Dryburgh was the offspring of Alnwick, Paisley of Wenlock.”[56]

Building in Scotland appears to have gone on in the thirteenth century as busily and with the same enthusiasm as in the previous century. But being far from the seat of the origin of the pointed style, and having received the principles of that style at second hand through England, time was required for its adoption in the North, and even when cordially welcomed there, some of the features of the earlier Romanesque still lingered and were slowly dispossessed.

The pointed arch, for example, although generally adopted, did not entirely displace, as it had done in the South, the round form of the Normans, a feature which, especially in doorways, continued to be employed not only in the thirteenth century, but throughout the whole course of Gothic art in Scotland. In other respects, the thirteenth century style in this country corresponds very closely with that of England. Its features are, however, generally speaking, plainer and the structures are smaller. But the forms of the doors, windows, buttresses, piers, &c., and the mouldings and enrichments are similar in character. The wall openings frequently have the shafts detached and carrying moulded caps, with round abacus, and the arch mouldings are arranged in orders, each set on a rectangular plan over the shafts. The piers are usually solid, with bold clustered mouldings and rounded caps. The windows are almost invariably of the lancet form, either single or arranged in couplets or triplets in the wall.

As time progressed, these detached lancets were brought together{48} into groups, the wall space was gradually thinned off, so as to form mullions between them, and frequently all are enclosed within a single arch. This naturally led to the panel or shield in the arch being perforated with a circle, trefoil, or other aperture, and toward the close of the period there were indications of the introduction of the earlier form of tracery. We have fine examples of the first arrangement at Dunblane, and of the embryo tracery at Glasgow.

As in the twelfth century a large extension was given to monastic churches and parish churches, so it is to the thirteenth century that we are indebted for the commencement and partial erection of most of our cathedrals.

The style of this period is fully represented in our cathedrals by the splendid crypt and choir of Glasgow, the beautiful nave of Dunblane, the fine, but now dilapidated, transept of Dryburgh, and the aisleless choir of Brechin. In Elgin Cathedral we have a noble example of the later design of the period, and the choir and western portal of Kirkwall form a worthy completion to that fine old Norman edifice. Dornoch once possessed the small and elegant cathedral of the North, erected by St. Gilbert, which has now, however, been almost completely rebuilt.

The conventual establishments of the thirteenth century, although chiefly of older foundation, still contain a large proportion of the work of this period. Arbroath Abbey comprises in its ruins some good transitional and early pointed work. Holyrood Abbey, besides a good deal of the transition style, had one of the finest west doorways of the period, and still retains a very striking north-west tower. The first pointed architecture is also well represented at the abbeys of Dundrennan, Pluscardine, and Inchmahome, besides smaller specimens in other monasteries. Kilwinning Abbey, now reduced to a portion of the south transept, shows some beautiful work. The Maison Dieu at Brechin is also very pure first pointed, and at Culross, Restennet, Inchcolm, and Coldingham are many interesting fragments of this date.

The thirteenth century parish churches are, for the most part, of small dimensions and simple design. They generally consist of a single oblong chamber, without choir or aisles, and are unprovided with towers. Of these simple buildings a considerable number are to be found in the Western Highlands and Islands. They are usually of the plainest description, the windows being simple lancets, with wide internal splay, though they have occasionally a double window with a mullion, and a single plain doorway. A large number of these chapels will be described, but, from the absence of any distinctive features connected with them, it will be found difficult to assign most of them to any definite period.

The chapel at Dunstaffnage Castle, and the Church of St. Columba[57] at Skipness, are somewhat exceptional, from the amount of dog-tooth{49} ornament exhibited by the former, and the two-light traceried windows at the east end of the latter, which clearly indicate their thirteenth century origin; while at other churches on the West Coast the lancet windows and similar first pointed features lead to the conclusion that many of them belong to the same period. These island chapels are, doubtless, survivals of the first pointed structures which were erected in the thirteenth century throughout the country, but which have been subsequently removed to make way for larger churches.

As the most of the Scottish cathedrals and large monastic churches were planned during this or the preceding century, it may be well here to mention some particulars regarding their arrangements.

In most of the conventual edifices the choir, including the presbytery, is short as compared with the nave. Thus, at Arbroath, the arcades of the choir are as 3 to 9 in relation to those of the nave; at Jedburgh, as 2 to 9; at Melrose, as 2 to 8, in the present ruined condition of the church, but originally probably as 2 to 12; at Dryburgh, as 2 to 6. Kelso is a remarkable exception, the choir having been much longer than the nave, the latter being of a single bay. The cathedrals, however, show a proportion more in accordance with the usual practice in England. Elgin Cathedral has in the choir (including the presbytery) 6 bays, and the same number in the nave; St. Andrews had 5 in the choir to 12 in the nave, Glasgow has 5 to 8, Dunblane has 6 to 8, Dunkeld has 4 to 7.

Another peculiarity of the Scottish churches is that in several the choir is without aisles, as at Brechin, Dunkeld, and Sweetheart Abbey; and in others, as at Melrose, Iona, Elgin, St. Andrews, &c., the side aisles do not extend so as to include the presbytery, the object evidently being to admit of side lights in the latter, which thus becomes a kind of rectangular apse.

Transepts are frequently, if not entirely, absent, as at Glasgow, where the transept is very short, and at Dunblane and Dunkeld, where there are none. When a transept exists, as at Melrose, Pluscardine, &c., there is frequently a side aisle on the eastern side only, for the purpose of containing chapels with altars facing in that direction. This arrangement was common in Cistercian churches, but in Scotland it is not confined to that Order. In some churches where there is a transept, the shortness of the choir has made it necessary to carry the choir screen across the intersection and some distance down the nave. This is very apparent at Melrose, where the rood screen enclosing the choir crosses the nave about the centre, and is evidently part of the original design, as the rood screen has formed a portion of the structure of the nave piers.

Elgin Cathedral and Melrose Abbey have double aisles—the former on each side of the nave, and the latter on the south side only, where the outer aisle is divided into a series of chapels. In St. Giles’, Edinburgh, a series of chapels forming a large second south aisle extends beyond the{50} usual south aisle. The above double aisles are, however, all of later than thirteenth century date.

The minor features of the first pointed style will be considered in detail in describing the various structures of the thirteenth century. Meanwhile, it may be mentioned that the doorways of this period, although not so rich in ornament as the Norman work, are still important objects in the design. The western portal of Kirkwall Cathedral is especially fine, being the only example of a design comprising triple western doorways in Scotland. The west doorway of Elgin Cathedral is very beautiful, and is, like that of Glasgow Cathedral, a double doorway with a central mullion. There are also examples of fine doorways in the smaller churches, such as Lanark, and interesting specimens in the minor doorways of the cathedral and monastic churches.

The lancet form of the windows has already been referred to. We may instance the east windows of Glasgow Cathedral and the beautiful windows of Elgin and Dunblane Cathedrals as splendid examples. In the latter cathedral the interior arcade of the clerestory shows the advancing progress of the style; and at New Abbey the double and triplet forms of window are seen passing into tracery. In the clerestory of this abbey the advanced ornament of the period is observable, the simple form of the early moulded capitals being replaced by the later foliaged design.

No towers of importance remain in the style of the thirteenth century, most of those attached to the churches of that style having been erected at a later date.

ARCHITECTURE OF FOURTEENTH, FIFTEENTH, AND SIXTEENTH CENTURIES IN SCOTLAND.

The reigns of Alexander II. and III., extending from 1214 to 1286, comprised the first pointed work in Scotland. Those reigns were characterised by quietness and prosperity at home and peace abroad. The Norman invasion of the previous century seemed to have become complete, and the country had settled down and accepted the new conditions imported from the South, both as regards matters secular and ecclesiastic. The king’s writ extended all over the land, except in the Western and Northern Islands, and the Roman rule in ecclesiastical affairs was co-extensive with it. The country was prosperous, and is believed to have been more wealthy than at any time till after the Union with England. These conditions favoured architecture, and, coming as they did in the first pointed period, the consequence was that the edifices erected during the thirteenth century were the largest and contained the finest architecture which Scotland can boast of. But this fortunate state of matters was doomed to a sudden extinction. The disputed succession following the{51} death of the third Alexander, in 1286, opened to Edward I. an opportunity for endeavouring to complete the Norman conquest of the country. This, as we have seen, had been already achieved so far as social relations were concerned, and Edward resolved that it should also be so politically.

The resistance of the country and Edward’s hostile attitude had the immediate effect of causing the withdrawal of the Norman settlers, who owed allegiance to Edward for their estates in England, along with their dependants. These carried with them much of the civilisation and culture which they had introduced. Moreover, the incessant state of war and disturbance which arose during the struggle for independence, and lasted over so many years, put a stop to all commerce and agriculture, and reduced the country to a condition of the utmost poverty and barbarism.

Even after King Robert’s death, in 1329, a part of the South of Scotland remained in the hands of the English for a considerable time, and suffered much from lying in the track of war.

Melrose Abbey had been partly rebuilt through the pious devotion of King Robert, but in 1385, this and other abbeys in the south-eastern district, together with the town of Edinburgh, including St. Giles’ Church, were again destroyed by Richard II.

In the midst of all these depressing influences it is obvious that the ecclesiastical architecture of the country must for a long time not only have suffered a total cessation from progress, but must also have endured severe injury.

It has been pointed out how deep was the poverty of the country during the fourteenth century, and with what difficulty the nobles, amongst whom Bruce had distributed the forfeited lands, were able to raise even a small pele tower for the defence of themselves and their retainers.[58] The Church, patriotic as it was, suffered in the general distress, and for a time funds were lacking for the completion of works in progress, or the execution of new undertakings.

In these circumstances, it is vain to look in Scotland for much architecture during the fourteenth century. This being the period during which Gothic art reached its highest expression, both in England and abroad, it is unfortunate for Scottish architecture that it should be so imperfectly represented by edifices worthy of that time.

The country may be said not to have recovered from the impoverishment of the war of independence till the fifteenth century was well advanced, and when that period arrived, the desire for the erection of cathedrals and establishment of monasteries had to a large extent ceased, and endowments were, after that time, principally devoted to the erection of smaller structures in the nature of Collegiate Institutions.

The connection with England having now been completely severed, and a political alliance having been formed with France, it is natural to{52} find a departure in the architecture of Scotland from the close resemblance to that of England which had hitherto characterised it, and to detect the introduction of features from abroad. These elements play an important part in the architecture of the end of the fifteenth century and succeeding period, and produce a mixed style, not distinctly the same either as that of the perpendicular in England, or of the Flamboyant in France, but a style peculiar to Scotland, which includes elements derived from both these styles, and also retains some features of the earlier phases of Gothic architecture. This style has a distinct character of its own, and is in Scotland parallel to the third period of Gothic both in England and France.

The paucity of examples in Scotland during the fourteenth century, and the absence in the succeeding century of any distinctly marked features assimilating Scottish architecture especially either to the perpendicular or Flamboyant styles of the later pointed epochs of England and France, have led writers on the architecture of Scotland to the conclusion that this country was entirely devoid of any representatives of the decorated or middle pointed style, as distinguished from the late or third pointed period, and they have, therefore, included all Scottish architecture after the first or early pointed period under the title of second pointed.[59] We are satisfied that this is a mistake, and we trust to be able to show that Scotland, although somewhat scantily represented by its architecture during the decorated period in England, does possess a fair number of parallel buildings corresponding in style to the decorated work of other countries, although erected at a somewhat later date, and also that the third or late pointed period is fully represented.

The wars had rendered the country backward in every respect, and it is only natural to find it backward in architecture also.

As already mentioned, King Robert’s work at Melrose had been grievously damaged by Richard II.; but some of it remains, and in this, as well as other structures of the period, are exhibited beautiful examples of decorated work.

A considerable number of churches and monastic buildings executed about the end of the fourteenth and first half of the fifteenth centuries are fair representatives of the decorated period. Although not so pure in style, nor so important in point of size as the corresponding edifices in England, they yet exhibit, on a scale commensurate with the reduced state of the country, a worthy effort to sustain the character of its architecture and give expression to its devotional feelings. Some of these structures were erected in the fourteenth century and others in the first half of the fifteenth century, and although differing somewhat in detail from both English and foreign examples, they possess a sufficiently close relation to decorated work to ally them with that style and to distinguish them{53} from the structures of the later or third pointed period. The buildings of the latter period, as above mentioned, have in some respects connection both with the English perpendicular and the French Flamboyant.

It is therefore proposed to divide the Church Architecture of Scotland during the fourteenth, fifteenth, and sixteenth centuries into two periods, under the titles of the Middle Pointed or Decorated Period and the Third or Late Pointed Period. The middle pointed or decorated style corresponds to the decorated period in England and the fully developed Gothic of France, and extends in Scotland from the middle of the fourteenth century till about the middle of the fifteenth century. The third or late pointed period extends from about the middle of the fifteenth century till the Reformation in 1560, and corresponds with the perpendicular or third pointed period in England and the Flamboyant in France. The second pointed period includes a few fine structures, such as the nave of Glasgow Cathedral, part of Melrose Abbey, Lincluden College, Linlithgow Church, Crosraguel Abbey, &c., which contain good decorated work, and are in every respect superior to the later structures of the succeeding period, with which it seems to us erroneous to class them.

MIDDLE POINTED OR DECORATED STYLE.

Towards the close of the thirteenth century a considerable change occurred in the features of Gothic architecture throughout Europe. The development of the pointed style had progressed steadily, and all the details had become lighter and more ornate. The tracery of the windows especially marks the decorated period. This feature, as we have seen, was invented in the previous epoch, but now became fully developed, especially in France. In the design of the tracery the eye, which at first had been fixed on the form of the aperture, gradually came to dwell on the outline of the bars of the tracery, which thereafter became the leading feature. (Fig. 23.) The early simple circular forms of the bar tracery by degrees assumed other geometric patterns, consisting of triangles, squares, and similar figures, skilfully combined and diversified with cusping or feathering. Towards the close of the period these figures assumed a more flowing character, but without entirely losing their distinctive geometric forms.

In England the vaulting grew lighter, and became distinguished by the introduction of subordinate ribs or liernes, which divided the plain surface into a greater number of panels, and ridge ribs were almost always introduced. The points of support were also lightened, and the buttresses were made thinner and with greater projection, and ornamented with numerous niches and crocheted canopies and pinnacles. The clerestory windows under the vaults were enlarged, as it was discovered that{54}

[Image unavailable.]

Fig. 23.—Beverley Minster, Yorkshire. Compartment of Nave, Exterior and Interior. (From Britton’s Antiquities.)

{55}

the solid walls between the buttresses might be dispensed with, and their place completely filled with window tracery. The clerestory was thus enlarged, and the triforium reduced to a mere passage, or entirely dispensed with. From the same cause the windows of the east and west ends, and those of the façades of the transepts, were also enlarged to the fullest extent, so that nearly the whole space became occupied with tracery and stained glass.

The doorways in England, although still much smaller than those of France, are, notwithstanding, often very fine, as, for instance, those of York Minster (Fig. 24). The shafts of the jambs, which in the previous period were detached and set in nooks, are now converted by degrees into a series of mouldings wrought upon the jamb stones, and arranged in one plane. The caps, at first distinct, gradually pass into a series of foliaceous scrolls running along the top of the whole jamb.

The piers are similarly treated. The clustered shafts give place to mouldings, and the caps become carved with running ornament. The plan of the piers is frequently that of a lozenge. A four-centred arch, forming an ogee or reversed curve, is now introduced in water tables over doorways. The arch mouldings are still boldly cut, and are separated by well-marked and deep hollows, but grow shallower and broader as time advances. The carving and foliage become lighter and more naturalistic, the ordinary leaves and flowers of the fields being beautifully wrought in the capitals, corbels, and bosses. The detached ball flower is a striking feature of this period. Every wall opening is cusped and feathered, and the niches and arcades are richly decorated. The use of small decorative buttresses on the jambs of the doors, windows, and niches now becomes common.

In France the progression of the style is similar, but shows a livelier and bolder development. There a stone vault is always essential, whereas in England open wooden roofs are often adopted with fine result.

MIDDLE POINTED OR DECORATED STYLE IN SCOTLAND.

For the reasons above stated, the middle pointed work in Scotland is somewhat varied from that of England and the Continent, especially in details. It also extends over a longer space of time, and gradually merges into the succeeding or third pointed style.

Until Bruce was firmly established on the throne, church building was entirely at a standstill. But after 1314, architecture received some encouragement from the king and began to revive. Melrose Abbey was especially the recipient of the royal bounty, and during the fourteenth century was, doubtless, in great measure rebuilt. It still retains much of the decorated work of that period, and is amongst our finest examples{56}

[Image unavailable.]

Fig. 24.—York Cathedral. West Front. (From Britton’s Cathedrals.)

{57}

of the style. Dryburgh Abbey and Crosraguel Abbey were also encouraged in their works of restoration by King Robert, and still show partial specimens of middle pointed architecture. Glasgow Cathedral also still preserves, almost unimpaired, its fine nave of the fourteenth century. The nave and central tower were evidently completed before 1400, as in that year the latter was destroyed by lightning.

The list of churches containing specimens of middle pointed work could be easily extended, and will be fully gone into in the sequel. Meanwhile, the following may be mentioned as undoubtedly exhibiting genuine examples—viz., Sweetheart Abbey and Lincluden College, in Kirkcudbrightshire, which contain portions of early decorated work; Linlithgow Church, rebuilt after 1424, when it was greatly destroyed by fire; Fortrose Cathedral; St. Giles’ Church, Edinburgh; Brechin Cathedral; Elgin Chapterhouse.

The above buildings extend down to about 1450-60, which may be regarded as the limit of the decorated or middle pointed period in Scotland.

The transition to the third pointed style was gradual.

Trinity Collegiate Church, which existed till 1848, in Edinburgh, although not founded till 1462, preserved in the interior the character of good middle pointed work, and is classed by Rickman as a “decorated” structure, But the exterior shows signs of the later style, and this structure, like several others, may therefore be classed as transitional.

It must be kept in view that many of the above churches of the second pointed period were subjected to damage by fire, and having in consequence to undergo repairs at a later date, exhibit signs of a mixture of styles. Thus, Melrose, Dryburgh, and St. Giles’, Edinburgh, were destroyed by Richard II. during his expedition in 1385, and consequently show in the subsequent restorations some work of a rather late character, mingled with the earlier decorated features. This mingling of the work of different dates no doubt renders somewhat difficult the elimination of the features due to the various epochs, and has probably contributed to the erroneous view above referred to—viz., that all Scottish architecture after 1300 belongs to the same style, and should be classed as “second pointed.”

With regard to the whole of the later architecture of Scotland, however, whether we consider the middle pointed or the third pointed periods, we think there can be no doubt but that it is all the work of native architects. Had the design owed its origin to either English or French architects, it would have more closely resembled the design of the perpendicular in England or Flamboyant in France. But being entirely different from either of these styles, although partaking to some extent of the features of both, and being also much later in date than the corresponding styles of these countries, the only conclusion{58} which can be drawn is, that the architecture of the middle pointed and third pointed periods in this country was wrought out by native hands. Old forms were long adhered to and new features were slowly adopted, and when adopted were not followed entirely or exactly in accordance with the original model, but with certain distinct modifications in details.

The mouldings are generally rather massive and heavy. The buttresses (as at Melrose) strongly resemble English middle pointed work. The pier and arch mouldings are not quite so light and well marked as in England, and the tracery of the windows, although geometric, is not always so elegant as in the South.

Good chapterhouses and sacristies of this period still exist at Glasgow, Crosraguel, Pluscardine, and elsewhere, which are square, and have a central pillar supporting groined vaulting. The very elegant chapterhouse of Elgin Cathedral is octagonal, and beautifully vaulted with a central pillar.

THIRD OR LATE POINTED STYLE.

In the latter half of the fourteenth century, Gothic art, both in France and England, again showed symptoms of a change of character. In France the architects seemed to have exhausted their powers of development as regards constructional elements, and were now occupied with the elaboration of details. The earlier geometric tracery now assumed a very flowing character, which, from the flame-like shapes of the bars of the stone work, was called “Flamboyant.” In England, on the other hand, the tracery assumed a rigid form, and from the mullions of the windows being carried up in straight lines from the sill to the arch, the style received the name of “perpendicular.” (Fig. 25.) In many respects, connected with ornament and decoration, the styles of the two countries resembled each other, but in one respect they differed widely. In France the simple intersecting pointed vault was never departed from, but in England the development of the vaulting into new forms made great progress at this period. It has been mentioned that in their “decorated” work the English had begun, in the thirteenth century, to introduce “liernes” or intermediate ribs into the vaults. This process still continued and advanced till the vaulting surface became covered with ribs. (Fig. 26.) The ribs were latterly used as ornamental features, spread over the surface of the vault, which again became the supporting arched surface, as it was before the introduction of Gothic bearing ribs in the twelfth century. A favourite form of this kind of vaulting is known from its appearance as fan vaulting. In working out this kind of vaulting, it was found desirable to bring all the ribs to the same level at the apex, and in order to accomplish this it was found convenient to use arches of{59} double curvature, or four centred arches, a depressed form which is characteristic of perpendicular work.

[Image unavailable.]

Fig. 25.—York Cathedral. View of the East End. (From Britton’s Cathedrals.)

From this peculiarity there followed many changes in style almost unknown abroad. The use of the depressed arch in the vault soon led to{60} its adoption in the clerestory windows placed under the vault, and from these it spread to the other windows, and ultimately to all the arches of the building. From these features a perpendicular structure is at once recognisable. The panelling of the vaults led, in sympathy, to panelling in the wall surfaces, in the buttresses, and everywhere. A linear system of ornamentation was thus produced, which was developed to an extreme degree—the mouldings were thinned off till they became mere strings, with wide shallow hollows between, and all interruption to the stringy or liney effect thus produced was objected to. Thus the caps of shafts were almost abolished, and the thin arch mouldings carried down the piers without interruption from the arch to the base. The piers were divided up with large shallow hollows or splays, and the subordination of mouldings was lost. When caps were used they were generally small and octagonal in shape, and stood meaningless amidst a cluster of mouldings. Doorways were less deeply recessed than formerly, and the four-centred arch was usually enclosed in a square moulding, the spandrils between the square head and the arch being filled with tracery or sculpture, often of a heraldic nature.

In France the two-centred arch was adhered to, and traceried windows were frequently introduced over doorways. Some of the carving, both at home and in France, is executed with great delicacy and spirit, but much of the foliage is of a very conventional form peculiar to the period. In running ornaments the stems frequently become more important than the leaves, thus carrying out the thin linear character of the style.

The English architects always showed a fondness for wooden roofs, and at this the latest period of Gothic these open timber constructions became very common. In France, on the contrary, vaulted roofs were preferred till the revival of classic art.

THIRD OR LATE POINTED STYLE IN SCOTLAND.

During the latter part of the fifteenth and in the sixteenth centuries the erection of cathedrals and monasteries in Scotland was almost entirely superseded by collegiate churches. These structures are generally designed on a cruciform plan, with a central tower over the crossing. They have usually a porch at the south-west and a sacristy at the north-east angle, and occasionally one or more chantry chapels attached. Except in the larger examples of collegiate churches, such as St. Giles’ and Trinity College, Edinburgh, aisles are rarely introduced, and groined vaulting, although used in the above structures, is also uncommon. The churches are generally covered with pointed barrel vaults, for the most part plain, but sometimes ornamented with ribs applied to the barrel surface. The latter style of decoration is sometimes employed in the vaulting over the{61}

[Image unavailable.]

Fig. 26.—Winchester Cathedral. West End of the Nave. (From Britton’s Chronological History of English Architecture.)

{62}

presbytery, so as to distinguish it by its richness. This class of vaulting carries out in its simplest elements the principle adopted at this period in England of making the vaulting surface more important than the ribs, and using the latter as ornaments upon the surface of the vault.

The exterior of the churches is generally marked by rather heavy buttresses, crowned with small and debased-looking pinnacles. The buttresses have often a great many set-offs. In other examples buttresses are entirely omitted. The doorways vary considerably. The semi-circular arch, which is sometimes preserved in the earlier styles, is now of very frequent use, not only in doorways, but also in pier arcades and clerestories (as at Paisley and Dunkeld). Elliptic arches and three-sided door heads are also used.

At this period we find indications of English influence in a few perpendicular traceries, as at Melrose Abbey, and of French influence in some Flamboyant forms, and in the three or five sided apse which frequently forms the eastern termination of the churches. Western and central towers are usual features, generally rather squat in form, and sometimes surmounted with a short spire, having numerous small lucarnes and pinnacles. Four of these towers were once finished with spires of open work resembling a crown, but the number is now reduced to two—viz., St. Giles’, Edinburgh, and King’s College, Old Aberdeen.

The piers are often of a plain circular form, and the arches have frequently plain chamfers instead of mouldings. The caps of piers are peculiar and heavy, the abacus consisting of a deep series of mouldings. Grotesque ornaments and large flowers are common, and frequently of rather coarse design; but in some instances, as in the cloisters of Melrose, the ornaments are beautifully sculptured.

A revival of early enrichments, such as the dog-tooth or nail-head, is a curious characteristic of this period, as it was also in the case of the late domestic architecture. Other early features are also revived, such as detached shafts, with well-marked caps and bases of early form. This is specially observable at Iona and in Argyleshire and the Western Islands, where, as already mentioned, a peculiar style prevailed.

In course of time, as pointed out elsewhere,[60] the ecclesiastical elements were invaded by the features of domestic architecture, and a mixed, but picturesque, style was developed which had more of a Scottish than a Gothic aspect.

Many examples of Scottish structures of the third period will be illustrated. The buildings, though comparatively small, are numerous and interesting, as they illustrate a specially Scottish branch of Gothic architecture. They consist largely of collegiate edifices, and amongst them is the well-known collegiate church of Roslyn.{63}

A number of churches showing the mixture of domestic and ecclesiastical features which prevailed in the latter half of the sixteenth and seventeenth century have already been illustrated, as above indicated.

That series of churches will be continued so as to exhaust the subject.

The contrast they present with the churches of the earlier centuries is very striking, and affords much food for reflection.

[Image unavailable.]

{64}

[Image unavailable.]

Egilsay Church. From South-West.

{65}

THE CELTIC MONASTIC AND ECCLESIASTICAL STRUCTURES IN SCOTLAND,

CHIEFLY AS ILLUSTRATED AND DESCRIBED IN THE WORKS OF THE LATE T. S. MUIR.

It has been shown in the Introduction that Christianity was brought to Scotland in the sixth century by the Celtic missionaries from Ireland, and that, after it had endured for seven centuries, the monastic Church of the Columbans, was superseded by the Roman ecclesiastical system. Each of these phases of Christianity possessed its own form of architecture—the one derived from the features peculiar to the Celtic style of building, and the other from the development of the Romanesque architecture general throughout Europe. The latter began to take effect in Scotland about the beginning of the twelfth century, while the former, which had existed from a very early date, continued to prevail in certain parts of the country long after that period.

We shall first consider the structures of the oldest or Celtic style. The earliest examples of ecclesiastical architecture in Scotland are, doubtless, the rude structures built with uncemented stones, which still survive in some of the remote islands off the coast, chiefly in the Western seas.

These islands, as well as the mainland of Scotland, have been visited again and again by the late Mr. T. S. Muir, who has embodied the results of his peregrinations in his volume on the Characteristics of Old Church Architecture in Scotland (1861), and in his Ecclesiological Notes on some of the Islands of Scotland (1885)—the latter containing a resumé of a number of charming little volumes produced by Mr. Muir at different times. Mr. Muir’s account of his repeated visits to the outlying islands is very quaint and entertaining, and shows that he has been inspired with an enthusiasm for ecclesiology very rarely equalled. He has certainly been the discoverer of many extremely interesting structures, which serve to show the connection between the early Christianity of Ireland and Scotland and the gradual development in this country of a style of ecclesiastical architecture similar to that of the parent isle.

The condition and features of the numerous cells and churches which Mr. Muir visited many years ago, when they were in a more perfect state than they now are, have been so fully described and illustrated by him{66} that it would appear to be a work of supererogation to follow his footsteps and investigate them over again. We have, therefore, adopted his descriptions and illustrations, and have prepared an abstract of the numerous materials scattered throughout his works, arranged, as far as possible, in accordance with the historical sequence of the types of the buildings, and described in Mr. Muir’s own words.

Dr. Joseph Anderson has pointed out, in his Scotland in Early Christian Times, that the early churches of Scotland, like those of Ireland, consisted of a single oblong chamber, with one door and one window, and that these structures were frequently found associated with beehive huts and surrounded by a cashel or rampart.[61]

We have in Scotland several examples of similar churches associated with beehive huts, and sometimes surrounded by a wall. Examples also occur of groups of chapels resembling the well-known similar groups in Ireland.

The following are descriptions of these structures, chiefly extracted from Mr. Muir’s works.

I. SIMPLE OBLONG CHURCHES, ASSOCIATED WITH BEEHIVE CELLS AND CHURCHES IN GROUPS.

EILEAN NAOMH, Argyleshire.

An extremely interesting example of the remains of an early monastic establishment on the Irish model is that on Eilean Naomh, one of the

[Image unavailable.]

Fig. 27. Fig. 28.

Eilean Naomh. Beehive Hut.

Garvelloch Islands, which lie about three miles west of Lunga, off the coast of Argyleshire. About the middle of the island, and on the south-east side, stand the ruins of several structures. “One of the largest and{67} most entire is obviously a church internally 21 feet 7 inches in length, constructed, like all the other buildings, of rude masonry, in which no lime or cement of any kind has been used. Excepting the gables, which are wanting, the walls are perfect, but present nothing in the way of detail more important than a square-headed doorway of slightly tapering form in the west end, and a small square-headed window splayed on both sides, but mostly on the interior, in the east end, flanked on its south by a projecting shelf of slate, which seems to have been an altar.”[62] The enclosures of what were probably the garden and the burying-ground are visible south of the church.

[Image unavailable.]

Fig. 29.—Eilean Naomh.

Twin Beehive Huts.

Mr. Muir then describes “another building, an underground cell of irregular oval shape (Fig. 27), measuring 5 feet 4 inches by 4 feet 5 inches, with a depth of rather more than 4 feet. The roof is formed simply by a few heavy slabs laid across the walls on a level with the ground outside, and the entrance is by a slanting aperture (Fig. 28), just where the roof and the walls unite. Two other buildings (Fig. 29), forming a part of this curious group, remain to be described. These are dome-shaped and joined together; the larger one internally 14 feet in diameter, the other about a foot less. The two buildings communicate with each other by means of a square-shaped doorway through the point of contact, and the larger one with the outside by another doorway of the like kind facing the south-west; but with the exception of a square aperture at the ground, more like a gutter hole than a door, there is no external opening in the smaller building.”[63] The dome of the smaller structure is complete, but that of the larger is ruined. (Fig. 30.)

The island of Naomh was often visited by Columba, and the establishment of which the above fragments are the remains is believed to have been that originally founded by St. Brendan, and afterwards refounded by Columba. Near the shore St. Columba’s well still survives.

One cannot fail to recognise in the above description a striking{68} resemblance to the early monastic establishments of Ireland. We here find the same dry-built quadrilateral church, with door having sloping jambs, and the same beehive huts with domed roofs.[64]

[Image unavailable.]

Fig. 30.—Beehive Huts on Eilean Naomh. (From Scotland in Early Christian Times.)

SKEABOST, Skye.

“In an islet in the river Snizort at this place there is an open burying-ground

[Image unavailable.]

Fig. 31.—Skeabost, Skye. East Elevation.

{69}

containing a group of five or six chapels, the shell of two pretty entire, the others reduced nearly to the ground. Of the former, the one least perfect (Fig. 31) is a featureless building, externally 82 feet in length; the other—probably that mentioned in the Originales Parochiales as dedicated to St. Columba—is externally 21 feet in length, and has a flat-headed window (Fig. 32), 2 feet in height and 6 inches wide, in the east end, the west end blank. In

[Image unavailable.]

Fig. 32.—Window, St. Columba, Skeabost, Skye.

the larger building there is a basin of a baptismal font, square, with rounded corners.”[65]

“On making the shore one is immediately struck with the intensely ecclesiastical character of the spot. From end to end the islet is covered with the remains of chapels.”[66]

Here we find a group of chapels which were formerly surrounded by a marsh, while fragments of an enclosing wall or rampart can also be traced.

MUGSTOT, Skye.

“Mugstot, properly Monkstead, stands on a slightly elevated spot surrounded by a swampy meadow, formerly the bed of a lake, some two or three miles from Uig, in the direction of Kilmuir Kirk. Like Skeabost, it exhibits a group of greatly ruinated buildings, three in number, standing in a line from north to south. The southernmost building, which is 22 feet long inside, and pointed east and west, is the least dilapidated, and evidently the Chapel of St. Columba mentioned by Martin. The intermediate ruins are little more than the foundations of an oblong building, 49 feet in length, and standing north and south.” Then follows a description of what has apparently been a circular cashel. “The other building is of oval form, measuring internally about 62 feet east and west, and 42 feet north and south, the walls composed of irregularly-shaped stones, mostly of large size, uncemented, but fitly put together. This building is very much broken down, but least dilapidated on the east, where it is still some 7 or 8 feet high. Within the area are observable the foundations of walls crossing each other at right angles, the spaces between having probably been vaulted cells.”[67]{70}

HOWMORE, South Uist.

At Mr. Muir’s first visit there were here remains of a group of five chapels (Fig. 33) all close together, but on his second visit he found one removed. “The missing one was a very characteristic building, the smallest of the group, with a very narrow rectangular window and a short sloping doorway in the east end. Externally it measured only 17½ feet in length.

[Image unavailable.]

Fig. 33.—Hoghmore, South Uist.

Of those still remaining, the largest has been about 60 feet in length. Scarcely anything of it is standing more than the east wall, a long cruciform couplet [widely splayed inside and looking like first pointed],[88] in which shows that the building had been the finest and largest of the lot. The next largest is internally rather more than 54 feet in length. Of it, also, the only remains is the east wall [pierced with a narrow flat-headed window (Fig. 34), 2 feet long and 6 inches wide, extremely rude].[68] The{71} two other chapels are each about 20 feet in length, not so much reduced, but with no features deserving notice. [In the east gable there is a flat-headed window of very small size, and on the south side there is one much of the same kind; on the north side are remains of a doorway—the west end blank.][69] In two of the chapels the altar is still extant, and there are also fine memorial slabs.”[70]

“Of the chapels, the largest is externally 20 feet in length,”[71] with small flat-headed windows—west end blank. Of the two other chapels, the largest is 19 feet 4 inches in length, with flat-topped window. The other (now removed), 17 feet 7 inches long externally, by 11 feet 6 inches wide; walls rudely built. The doorway, with inclining jambs and flat head, was in the east end; above, in gable, a flat-headed window, 14 inches long by 3 inches wide.

[Image unavailable.]

Fig. 34.—Howmore. East Window.

KILBAR, Barra.

In a burying-ground, “three dilapidated chapels, resembling very much those at Howmore. The largest (Fig. 35) (supposed to be that of St. Barr), (1) is externally 42 feet in length; the end walls nearly away, the north and south walls nearly entire. The north side has a rude triangular-headed doorway (Fig. 36) enclosed in a semi-circular arch, and a triangular-headed window on its east. In the south wall there are three windows of the same form—two of them together near its east end, and one near the west end. Against the east end the altar remains almost entire. The next largest chapel (2) is externally 30 feet in length; it is divided by a dead wall into two unequal apartments, each having a flat-headed doorway on the south. The east end contains a flat-headed window 16 inches in length by 3½ inches wide, and there are windows of like kind in the side walls, the west one blank. Of the third and smallest chapel (4), externally 18 feet 3 inches in length, very little is left. At my first visit (July 1855) both ends were entire, the east one containing a small flat-topped window, the west one blank; now (July 1866) the only detail is a narrow window at the eastern extremity of the north wall, the head round, and formed of one stone.”[72]

Another chapel at a little distance has been removed.{72}

[Image unavailable.]

Fig. 35.—Kilbar, Barra.

[Image unavailable.]

Fig. 36.—Kilbar, St. Mary.

{73}

II. HERMITS’ CELLS.

The above descriptions apply to groups of chapels similar to those in Ireland. We shall now consider Mr. Muir’s descriptions of the rude hermitages which he discovered on some of the remotest rocks round the coast.

THE CHAPEL OF ST. RONAN, North Rona.

The small solitary island of Rona lies about thirty-eight miles north-eastwards from the Butt of Lewis, and about the same distance from Cape Wrath. It is about one mile long and the same in width. Such an island, so far from land, formed a meet spot for the dwelling of an early Anchorite, and here is still preserved the Chapel of St. Ronan. The island was twice visited by Mr. Muir, who thus describes the chapel:—

“Of this rude and diminutive building [the eastern chamber] not much can be said. On the outside it is in most part a rounded heap of loose stones, roofed over with turf. Within you find it a roughly-built cell (Fig. 37), 9 feet 3 inches in height, and at the floor 11 feet 6 inches long and 7 feet 6 inches wide. The end walls lean inwardly a little, the side ones so greatly that when they meet the flat slab-formed roof they are scarcely 2 feet apart. (Fig. 38.) Beyond the singularity of its shape, there is

[Image unavailable.]

Fig. 37.—Teampull Rona.

nothing remarkable in the building, its only minute features being a{74} square doorway in the west end, so low that you have to creep through it on your elbows and knees; a flat-headed window without splay on either side, 19 inches long and 8 inches wide, set over the doorway (see Fig. 38.); another window of like form and length, but an inch or two wider, near the east end of the south wall; and the altar stone, 3 feet in length, lying close to the east end.

“Attached as a nave to the west end of the cell, and externally co-extensive with it in breadth, are the remains of another chapel, internally

[Image unavailable.]

Fig. 38.—Teampull Rona. Interior West End Elevation.

14 feet 8 inches in length, and 8 feet 3 inches in width. Except the north one, which is considerably broken down, all the elevations are nearly entire, the west one retaining a part of the gable. A rude flat-headed doorway, 3 feet 5 inches in height and 2 feet 3 inches wide, in the south wall, and a small window of the same shape eastward of it, are the only details.

“At what time either of these buildings was put up it is impossible to{75} say. Both are alike rude in their masonry, and between them there is scarcely a difference in the character of their few inartistic details; but be the age of the larger one what it may, the cell, which may be termed the chancel of the structure at large, is certainly by many hundred years the older erection, and in all probability the work of the eighth or ninth century.”[73]

We have here an example of an ancient oratory enlarged by the addition of a nave into a church with nave and chancel.

TEAMPULL SULA SGEIR.

On a narrow and lofty rock, not more than one-third of a mile in

[Image unavailable.]

Fig. 39.—Teampull Sula Sgeir.

length, situated ten or twelve miles to the south-west of North Rona and {76}about forty miles from the Butt of Lewis, there exists “a rude chapel, with a stone roof, called Tigh Beannaichte (blessed house), internally 14 feet in length.”

“In a comparatively level spot, closely surrounded by rocks, there is a low, rough, oval-shaped chapel (Fig. 39), internally measuring no more than 14 feet in length [8 feet wide at the middle, and 6 feet 4 inches at the ends],[74] the extreme antiquity of which there seems no reason to question. On the outside (Fig. 40) the roof of this primitive cell is of curved form, but inside the rude vaulting, which may be said to commence almost from the ground, finishes somewhat short of the summit in so many heavy slabs laid horizontally across. Externally the building is a little dilapidated at both ends, and so is the roof; but within it is quite perfect, and seemingly noways altered from its original state. Entrance to it is by a low and very narrow flat-topped doorway, with sloping jambs [3 feet 5 inches in

[Image unavailable.]

Fig. 40.—Teampull Sula Sgeir.

height, 16 inches wide at top and 22 inches at bottom][74] in the south wall. On its east is a small squared recess, and there is another recess of the same kind in the west wall. The only window is a small one, of squared form [2 feet 8 inches in length], in the east end, under which is an altar, flanked by slabs, set on edge, and raised on a slightly elevated dais, as is shown on the annexed plan.”[75]{77}

FLANNAIN ISLES, OR SEVEN HUNTERS.

Several wild unapproachable Islands lying to the Westwards of Lewis.

Eilean Mòr, the largest of the group (about one-third of a mile in extent), has precipitous sides and a flat grassy plain on the top, which slopes to the south-west.

[Image unavailable.]

Fig. 41.—Teampull Beannachadh. West End.

“The chapel of St. Flann, or Teampull Beannachadh (blessing) as it is commonly called ... stands nakedly about the middle of the slope, unenclosed and with no indications of having ever been surrounded by a burial-ground. (Figs. 41, 42.) It is a very primitive looking thing, composed of rough stones joggled compactly together without lime. The form is a squared oblong, but not strictly regular, the external lengths of the north and south walls being respectively 11 feet 11 inches and 12 feet 2 inches, the east and west walls, 10 feet 3 inches and 9 feet 2 inches respectively; [within the dimensions are—length 7 feet 3 inches; width, 4 feet 5 inches.] [76]

{78} The walls vary in thickness from 2 feet 5 inches to 2 feet 11 inches, taper a little, and are covered with a stone roof internally flat, but following the obtusely pointed or cradle form of the gables on the outside. Externally,

[Image unavailable.]

Fig. 42.—Teampull Beannachadh. East End.

the total height of the cell is only 8 feet 6 inches; internally, 5 feet 9 inches. A narrow squared aperture, scarcely 3 feet in height [1 foot 10 inches in width],[77] in the west end, is at once doorway and window, besides it there being no opening of any kind in the building.”[78]

III. CELTIC CHURCHES STANDING ALONE.

The number of single churches scattered over the islands and the adjoining mainland has at one time been very large. Many of these are now reduced to mere traces, but the ruins of a considerable number still exist in tolerable preservation.

We shall consider these in several sections, in accordance with their different characteristics. The simplest type is first described, but the age of the structures is not thereby indicated.{79}

1. Churches built in the simple Celtic style of one oblong chamber. A few of these structures are evidently very ancient, the walls having been built without cement, or having doors with inclined jambs. These will be first described.

2. They will be followed by a long list of churches on the same general plan, but in which some modifications of the original arrangement of one door and one window are introduced. The number of windows is often increased; but they are not arranged on a uniform plan, being generally distributed so as to suit the locality. The windows were no doubt open and unglazed, and seem to have been placed so as to be well sheltered, and as little exposed to the prevailing wind as possible. In some cases there is no window even in the east gable, and the west and north walls are frequently blank. In most examples the windows and doors are narrow and flat-headed, but round-headed doors and windows are also occasionally used, showing the Norman influence. These structures all belong more or less to the primitive type of Celtic churches, but their primitive features cannot be relied on as fixing their date. Some may be very early, while others may be later even than the pointed buildings to be afterwards described. The primitive type and primitive features, such as narrow flat-headed windows and doors, undoubtedly continued in use long after more advanced forms had been introduced.

3. A more reliable mark of the order of succession of these early churches is the existence of an architecturally distinguished chancel. At what point in the development of the architecture this feature was introduced it is impossible to say; but from the extremely rude nature of the other elements in such examples as that at Lybster in Caithness (described below), it must clearly have been at an early period. We there find the plan of nave and chancel combined with such primitive features as a low west doorway, with inclining jambs and flat lintel, and the opening to the chancel from the nave shaped exactly like the west doorway.

4. Examples are also found of the addition of a chancel or nave to an older simple oblong church, thus showing that the chanceled church was a later form of plan than the primitive single-chambered church. The examples of these ancient churches with added chancel or nave will be first given, and then the churches built on the plan of nave and chancel.[79]

5. In many instances the use of the pointed arch and ornaments of Gothic character is quite distinct. These churches are evidently of a date between the thirteenth and sixteenth centuries. Although in other parts of the country first pointed work would be assigned to the thirteenth{80} century, that rule does not apply in the Western Highlands and Islands, where first pointed features are often continued till much later times, and where the later styles of Gothic are scarcely represented.

(A) CHURCHES DRY-BUILT AND CHURCHES WITH SLOPING JAMBS.

TIGH BEANNACHADH, Lewis.

Numerous ruins and fragments of chapels are found on the west coast of Lewis. Among these, near Gallowhead, the great west headland of the island, stands (Fig. 43) Tigh Beannachadh (blessing house), “a not

[Image unavailable.]

Fig. 43.—Tigh Beannachadh, Gallowhead.

greatly dilapidated chapel [a simple oblong], internally 18 feet 2 inches in length [by 10 feet 4 inches], with a broken east window, having an altar beside it and a doorway, and a niche in each of the side walls; the{81} south doorway entire and flat-headed, the masonry very rude and without lime.” “It would seem to be a very old building.”[80]

DUN OTHAIL, Lewis.

On a narrow “shelf, in the face of a high precipice, under Dun Othail, about ten miles south of the Butt, is found the ground work of a chapel, internally 17 feet long and 11 feet 3 inches wide, with remains of the south doorway. The walls are 4 feet thick, and there is no cement used.”[81]

CARINISH, North Uist.

At the south end of the island, Teampull-na-Trianaide (Trinity Church) consists of two not greatly dilapidated buildings of unequal size, the larger and more ruinated one internally 62 feet in length. The only detail,

[Image unavailable.]

Fig. 44.

a broken round-headed doorway near west end of north wall. Connected with it on that side by a low semi-circular vaulted passage (Fig. 44), lighted by a small flat-headed window on each side, is the other chapel,{82} 23 feet in length. This building is probably of considerable age. Windows are rude, flat-headed, and 3 feet long.[82] See Note by Captain Thomas.[83]

(B) SIMPLE OBLONG CHURCHES WITH MODIFIED FEATURES.

1. CARA, off Gigha, Kintyre.

A chapel, 29 feet long externally; masonry rude, but with a good deal of character. East and west ends nearly entire. Doorway about

[Image unavailable.]

Fig. 45.

middle of north side. Window in north wall 3 feet 4 inches long and flat-headed. (Fig. 45.) No opening in east end.[84]{83}

2. EILEAN MUNDE, Lochleven.

An island near the mouth of Glencoe, containing ruins of a church internally 50 feet long, with two flat-headed windows in south side and one in north side. East end blank.[85]

3. CHURCH OF HOLY CROSS, South Galston, Lewis.

Church, 18 feet 7 inches long by 12 feet wide. Windows flat-headed, one in east end and one in east end of both side walls; west end blank. Doorway, broken, is south-west.[86]

4. TEAMPULL PHEADAIR, Lewis.

Remains, 63 feet long externally. In east end a flat-headed window 3 feet 5 inches high and 6 inches wide; in south wall five windows of much larger size, and apparently of comparatively modern date. North side and west end blank.[87]

5. ST. AULA, Gress, Lewis.

Church, 18 feet 10 inches long by 14 feet wide, slightly dilapidated. One window narrow and flat-headed in west end, and in south wall flat-headed door and window. Over door a stone with date 1685, in which year the building probably underwent repairs.[88]

6. TOEHEAD, Harris.

Church, internally 21 feet by 10 feet 2 inches. Windows, one in east end, one in west gable, one in south wall, and one, together with doorway, in north wall, are mere flat-headed slits, the east one 8 inches wide. Under east window stone altar, still entire.[89]

7. NUNTOWN, Benbecula.

A small chapel, externally 25 feet by 16 feet, within enclosed burying-ground, almost perfect shell, windows small, narrow, and flat in head, two in each side and one in east end; the latter 19 inches high and 5 inches wide. Doorway, a rude flat-headed aperture, surmounted by a square niche, is in west end.[90]{84}

8. PABBA, Sound of Harris.

Ruins of St. Mary’s Chapel, externally 40 feet 9 inches in length and 19 feet 9 inches wide. Doorway flat-headed, 2 feet 2 inches wide, in west end. Above it, narrow flat-headed window, and a similar window near east end of both side walls.[91]

9. KILMUIR, Skye.

Church of “considerable age,” much altered. Doorway and windows small, flat-headed, and deeply recessed inside. Arched recesses in side walls for tombs.[92]

10. TRUMPAN, Skye.

Old chapel, 51 feet long externally. In east end one short narrow window and two in north wall, all flat-headed. Rudely arched doorway in north elevation.[93]

The following show signs of Norman influence.

11. ST. CARMAIG, Kiels, Knapdale.

[Image unavailable.]

Fig. 46.—Kiels, Knapdale. Exterior East Elevation.

{85}

The church is a rudely constructed oblong, externally 42 feet in length by 21 feet in width, roofless. Windows—one close to east end of north

[Image unavailable.]

Fig. 47.—Keils, Knapdale. Interior East Elevation.

wall, two in south, and one with round arch in middle of east elevation. (Figs. 46, 47.) West wall blank. Windows flat except east one.[94]

12. KILMORY, Knapdale.

Church, rudely constructed oblong, internally 38 feet in length by 17 feet in width. Walls well preserved. Doorway near west end of south wall. Four windows; one near east end of side walls, and two together in east elevation. Side windows small rectangular apertures; east one slightly moulded and semi-circular top.[95] (Figs. 48, 49.){86}

[Image unavailable.]

Fig. 48.—Kilmory, Knapdale. Exterior East End Elevation.

[Image unavailable.]

Fig. 49.—Kilmory, Knapdale. Interior East End Elevation.

{87}

13. TIREE (Ithica Terra of Adamnan).

Kirkapoll.—A very rudely-constructed chapel, internally 36 feet 9 inches long. In west end a plain round doorway (Fig. 50), 6 feet high,

[Image unavailable.]

Fig. 50.—Kirkapoll, Tiree. Doorway.

rudely arched with slates, and having a small Latin cross on its south side. In south wall a round-headed door and two round-headed

[Image unavailable.]

Fig. 51.—Kirkapoll, Tiree. Window.

{88}

windows, with great splay internally (Fig. 51); the north elevation blank.[96]

On a neighbouring hillock there is another chapel, internally 23 feet 5 inches long, with walls and gables entire. The windows are round-headed, one in north wall and one in south, and doorway in south wall; east and west walls blank.

Kilchenich, Tiree.—Ruined chapel, 33 feet 5 inches long. Only details—small round-headed doorway in west end.[97]

(C) CHURCHES WITH A CHANCEL OR NAVE ADDED TO AN OLDER STRUCTURE.

1. ST. COLUMBA, Balivanich, Benbecula.

Occupying a swampy spot, formerly the bed of a lake, are remains of a chapel probably belonging to the monks of Iona. Externally 56 feet in length and 19 feet in width. (Fig. 52.) All the windows are flat-topped and narrow; one in east end, three in south wall, and one in north wall. East wall only is perfect.[98]

[Image unavailable.]

Fig. 52.—St. Columba, Balivanich. Plan.

Was built in a remote age. The mortar is washed out of the joints. The only door is at north end, with inclined jambs, and so low as to require stooping position on entrance; 4 feet 7 inches high; covered with undressed lintel. Little rectangular windows like portholes. Chancel 14 feet long by 15 feet broad; nave 33½ feet long and 14{89}¼ feet broad. East wall 5 feet thick; east window 2¾ feet by 6 inches wide, greatly splayed at sides inside. Chancel walls—2 feet 2 inches thick—do not bond into nave. Nave window in north wall 14 inches by 7 inches. South wall windows—east one 10 inches square, the other 14 inches by 8 inches. Chancel probably added by Lady Amy end of fourteenth century.[99]

2. EILEAN MOR.

A small island lying off the Knapdale coast. “A little way up from the landing-place stands the half-roofless, though in other respects scarcely at all ruinated, shell of ‘Kilvicoharmaig, the Mother Church of Knapdale,’ surrounded by an open and nearly obliterated burying-ground. Its external plan (Fig. 53) is a simple oblong, measuring 37 feet 5 inches in length and 20 feet in width. Internally the building is divided into chancel and nave, the division being a gabled wall open by a semi-circular arch composed of long thin slates. An apartment, which was probably a comparatively modern contrivance, appears to have gone over the nave, as there is a fireplace and chimney in the upper part of the west wall, not bearing marks of antiquity.

“The chancel is covered by a low waggon vault, between which and the external roof there is a chamber lighted by a square window in the apex of the west gable. In the east end of the chancel (Fig. 54) are two small round-headed windows placed considerably apart, the north one, like the window at the neighbouring Kiels, having its interior sill underdrawn and levelled for an altar.

[Image unavailable.]

Fig. 53.

“In the interior south wall is a large round-headed recess, containing the tomb and headless effigy of an ecclesiastic, and in the wall opposite are two smaller recesses of the same kind—the eastern one having a window behind and a square lychnoscopic-looking aperture on one side near the ground.{90}

“The chancel evidently belongs to an early period, and in style mostly resembles Norman, though some alterations (designed, there can be no doubt, to procure more shelter) have somewhat modified the pristine character of its detail. Originally the entrance was by a round doorway in the north side of the nave; but this has been built up, and another one, square and smaller, opened through the wall opposite. The window lights have all been reduced by the inserting of a slate pierced with a short and narrow lancet—that on the south, in the east end, plain

[Image unavailable.]

Fig. 54.—Church of St. Carmaig, Eilean Mor. Exterior Elevation of East End.

pointed, the other one trefoiled. But the most important alteration is in the chancel arch (Fig. 55), which has been lessened by blocking to a small flat-topped doorway with a square hole right through the wall on each side of it; over each of these holes, within the chancel, is an ambry of the usual square form.”

In a recess among the rocks are remains of a rectangular building, measuring internally 11 feet 3 inches by 10 feet 10 inches—the walls rudely built without cement, and more than 4 feet in thickness. This is{91} the Chapel of St. Carmaig, “made by his own hands” soon after he came to the place for retirement and devotion. The entrance to the building

[Image unavailable.]

Fig. 55.—Exterior West Elevation of Chancel.

is a narrow flat-headed doorway of primitive character in the east wall. This structure communicates with a natural cave, and probably existed as a religious cell long before the neighbouring Kilvicoharmaig was erected.[100]

3. ST. COLUMBA’S, Ey., Lewis.

A long narrow building of two compartments, divided by a thick wall, containing arched passage. Eastern compartment internally 62 feet in length by 17 feet in width; western one 23 feet by 16 feet 3 inches. Different parts erected at different times from character of masonry. In eastern or larger compartment, windows are mere flat-headed slits, flush outside, widely splayed inside; east one 4 feet 4 inches by 7½ inches; south one 3 feet 8 inches and only 3 inches wide. In western division masonry less primitive looking; resembles Norman. Windows—one in{92} west end, one in north side, and one, together with door, in south side; all round-headed, flush outside, and widely splayed inside.[101]

4. ST. COLUMBA, Kiels, Kintyre.

Long narrow building, with small round-headed windows and doorway in side walls only.

Length outside 75 feet 3 inches; width only 18 feet 10 inches; unbonded juncture 29 feet from east end, shows that chancel has been extended to west; masonry of usual rude description; stones of added part are squared and like Norman work. Plain round-headed doorway on south-west, and two or three small round-headed single windows.[102]

5. KILCHOUSLAN, near Campbeltown, Kintyre.

Chapel, rather more than 58 feet in length, nearly entire; all apertures

[Image unavailable.]

Fig. 56.—Kilchouslan. Plan.

square-headed. North wall blank; seems to have been lengthened by about 20 feet; fissure at junction similar to that at Kiels.[103]

[We give Plan and View (Fig. 56, 57) of this church, originally 36 feet 7 inches long by 17 feet wide internally. The and windows are square-headed and built with freestone, now much decayed; the remainder of the

[Image unavailable.]

Fig. 57.—Kilchouslan. View from South-West.

{93}

walls is built with whinstone. The added chancel is marked by the freestone corners of the east end of the original church, which still exist. The chancel measures 19 feet in length by 17 feet in width. The east wall is now demolished.]

6. KILCHENZIE, near Campbeltown, Kintyre.

[We also give Plan and View of this structure (Fig. 58, 59). A simple oblong church, 40

[Image unavailable.]

Fig. 58.—Kilchenzie. Plan.

feet 11 inches long by 17 feet 3 inches wide internally, with one round-headed window, 6 inches wide, cut out of a single stone in south wall. A chancel, 27 feet 4 inches long by 17 feet 3 inches wide, has been added, of which the junction is quite apparent. One small pointed window in east end of chancel.]

[Image unavailable.]

Fig. 59.—Kilchenzie. View from South-East.

IV. CHURCHES BUILT WITH CHANCEL AND NAVE.

1. ST. MARY’S, Lybster, Caithness.

A rudely constructed building (Fig. 60) consisting of chancel and nave. Flat-headed doorway, 3 feet 5 inches high, with inclining jambs,{94} in west end (Fig. 61), and possibly another door in south wall. No

[Image unavailable.]

Fig. 60.—St. Mary’s, Lybster. Plan.

windows except, perhaps, one high up in east gable. Chancel entrance same as west doorway.[104]

[Image unavailable.]

Fig. 61.—St. Mary’s, Lybster. View of Doorway in West End.

{95}

2. CHURCH OF JOHN THE BAPTIST, South Bragair, Lewis.

Not much wasted; consisting of chancel and nave; respectively 12 feet 8 inches and 19 feet 10 inches long inside, with flat-headed windows—one east and one south in chancel, and one in west end of nave. Chancel arch and south-west doorway broken; former seems to have been pointed.[105]

3. ST. MICHAEL’S, Borve, Barra.

Consists of nave and chancel; respectively 23 feet and 7 feet 10 inches in length inside. Only ground plan left.[106]

(This and St. John’s, Bragair, the only churches in Lewis with chancel and nave constructively separated.)

(D) CHURCHES WITH POINTED OR LATE FEATURES.

1. ST. CATAN’S, Gigha, off Kintyre.

Old church, oblong, 33 feet long and 15 feet 2 inches in width. One long lanciform window in east end (Fig. 62); stone font.[107]

[Image unavailable.]

Fig. 62.—St. Catan’s, Gigha. East End.

{96}

In Islay numerous traces of chapels are found, of which the following are the best preserved; some have lancet windows, and the others, with square or round heads, do not appear to be very old.

2. KILDALTON, Islay.

Church, 60 feet long. East end contains two long lanciform windows, recessed semi-circularly within—one in west gable and one in each side wall. In south wall a canopied piscina and effigy of mailed figure.[108]

3. KILNAUGHTON, Islay.

Church, internally 38 feet long; west end blank. Small narrow window in east gable.[109]

4. KILNEAVE, Islay.

Church, 30 feet long, and not very old. Two windows, short and wide—one in east elevation and one in south wall. Arches semi-circular, of thin stones.[110] (Fig. 63.)

[Image unavailable.]

Fig. 63.—Kilneave, Islay.

5. KILCHIERAN, Islay.

East end and fragment of south wall of chapel. No window, but two recesses in east wall inside, with ambry and projecting piscina.[111]{97}

6. ST. NINIAN’S, Sanda.

An island off the east coast of the Mull of Cantyre. The church is an oblong, 32 feet 9 inches. (Fig. 64.) Walls pretty entire. Doorway

[Image unavailable.]

Fig. 64.—St. Ninian’s, Sanda. Plan.

plain, chamfered, and flat-headed, at north-west. Windows small and flat-headed. (Fig. 65.) Small circular piscina. Lying inside, bowl of font.[112]

[Image unavailable.]

Fig. 65.—St. Ninian’s, Sanda. South-East Window.

7. ST. COLUMBA’S ISLE, Lewis.

At the mouth of Loch Erisort is St. Columba’s Chapel, externally 35 feet 6 inches in length and 18 feet 7 inches in width. East elevation{98} nearly entire; contains flat-headed window, 4 feet by 6 inches, and in west gable smaller one same shape. South side contains a narrow lanciform window, and broken doorway on left. North side nearly gone.[113]

8. PENNYGOWAN, Mull.

Chapel, 39 feet 9 inches long internally. Three narrow single-light windows, with heads slightly curved; doorway similar. East end blank.[114]

9. LAGGAN, Mull.

Chapel, 35 feet long internally. North side, long lanciform window and round-headed door; heads of one stone; east end of south side long, narrow round-headed window; west end, window with drip-stone; east end blank. Basin of octagonal font.[115]

10. INCHKENNETH, near Ulva.

Remains of church; seems to be of early first pointed date; simple oblong, 40 feet 8 inches long by 19 feet 8 inches wide, with small ruined sacristy on south-east. Flat buttresses at corner of east end, which contains two long lancet windows enormously splayed inside. Side walls have each one similar window, and broken doorway in north wall. Circular piscina.[116]

11. ST. MOLUAC, Raasay.

First pointed. Internally 46 feet in length. In west end two short narrow lancets, semi-arched inside, one in middle of wall, the other aloft in gable. In east end one similar. In south wall two windows and flat-headed doorway, and inside a large semi-recess in wall.[117]

12. KILLEAN, Kintyre.

Perhaps Mother-Church. Details more elaborate than usual, vaulted, and sacristy or chantry chapel at north-east. A south-west doorway, and another near east end of south wall, and apparently an unusually distinguished chancel. Narrow round-headed lights on both sides. East end a very long couplet, formerly separated by a buttress; tooth ornament round exterior openings; moulded label, string and cornice, and corner nook shaft.[118]

13. KILBRIDE, Knapdale.

Large, not much ruined.[119]{99}

14. EORRAPIDH, Lewis.

Teampull Moluach. Simple oblong; internally 44 feet long by 17 feet 9 inches wide, with north-east sacristy and south-east chapel, both roofed with lean-to. (Fig. 66.) Doorway at south-west, semi-arched;

[Image unavailable.]

Fig. 66.—Teampull Eorrapidh, Lewis. Plan.

east window round head, rear arch pointed; west window smaller, round head with round rear arch. At top of east and of side walls two small square windows close together, and to west one large and round-headed of one stone. Windows in side buildings mere slits, flat in head.[120]

15. OLRIG, Caithness.

Walls of old church apparently first pointed.[121]{100}

16. KILCHIEVEN OR KILCOIVEN, Kintyre.

Simple oblong, a good deal demolished; 51 feet 8 inches long by 17 feet 8 inches wide internally. North-west pointed doorway; remains of two-light window in south wall, and hole in south wall for piscina. (Fig. 67.)

[Image unavailable.]

Fig. 67.—Kilchieven Church. Plan.

[Image unavailable.]

Egilsay, Interior of Choir.

{101}

CHURCHES IN ORKNEY AND SHETLAND.

DRAWN AND DESCRIBED BY SIR HENRY DRYDEN, Bart.

About forty years ago the ancient churches of Orkney and Shetland were minutely examined by Sir Henry Dryden, who then made measured plans and drawings of the buildings, showing their condition at that time.

In 1870 Sir Henry deposited copies of his drawings (copied by Mr. William Galloway) and descriptions of these churches in the hands of the Society of Antiquaries of Scotland. As these drawings and descriptions contain much information, which, from the natural decay of the structures, is now lost, it appeared to us that the information collected so long ago by Sir H. Dryden would form an interesting chapter in this work on the ecclesiastical architecture of Scotland.

This view has been adopted by Sir Henry, who has most kindly agreed to allow his drawings and descriptions of the ruined churches of Orkney and Shetland to be embodied in this book. The consent of the Council of the Society of Antiquaries of Scotland has also been freely given, and these valuable drawings and descriptions of ancient churches, which are rapidly disappearing, are now published for the first time.

The descriptions are arranged, as far as possible, in the order of the type of the plans, commencing with the oldest type of simple oblong, one-chambered churches, and then continuing with the churches containing architecturally distinguished choir and nave. (See Note by Sir Henry Dryden, pp. 172, 173.)

CHAPEL ON THE BROUGH OF DEERNESS.

The brough is on the east coast of Deerness, and measures on the top about 400 feet north and south by 240 feet east and west. It is separated from the mainland on the south-west by a narrow ravine or “geo,” which is almost wet at high water. (Fig. 68.)

The brough is highest on the north, and at that part is about 90 or 100 feet high. (Fig. 69.) The coast hereabouts is steep and rocky. The use of the word brough for a detached rock, when no fort is placed on it, is not unfrequent.

The chapel (Fig. 70) is near the centre of the brough, enclosed in a yard 57 feet by 45 feet, of which only the foundation remains. The{102}

[Image unavailable.]

Fig. 68.—Brough of Deerness.

[Image unavailable.]

Fig. 69.—Chapel on Brough of Deerness.

{103}

entrance into this is not evident. The chapel is a parallelogram, 24 feet 5 inches by 17 feet 4 inches outside. The west wall is 3 feet 2 inches, and the others 3 feet 11 inches thick. Only about 4 feet 6 inches and 5 feet in height remain above ground. It stands nearly true east and west, the west end facing a little south of west. It is built of clay slate from 1 foot to 3 feet long, and 2 to 7 inches thick, now much covered with yellow lichen. It has only one doorway (Fig. 71), which is in the west

[Image unavailable.]

Fig. 70.—Chapel on Brough of Deerness. Plan.

end, and apparently was only 2 feet wide; but the west wall is irregular, and appears to have been altered and repaired. The upper part of the doorway is gone, but probably it was square headed, with a stone lintel. The jambs are not splayed, and have no rebate for a door, nor is there any bar hole.[122] By digging at the west doorway it appeared probable that the floor inside was about 6 feet below top of sill of east window, but the level is uncertain, as the interior is much covered with debris.

Apparently there was only one window, which is in the east end. (See Fig. 71.) The top is gone, so that it is doubtful whether it was flat or arched. One jamb is gone and the other somewhat mutilated, but 1 foot 9 inches in height of it remains. The window had a clear opening of 1 foot 3 inches, with jambs splayed inside, to 3 feet 6 inches in width. It appears to have had the outer 11 inches of the jambs parallel, and to have contained glass. On a part of the east wall is built a beacon used for the survey.{104}

In the north wall, near east end, is an ambry 2 feet 4 inches wide, not less than 2 feet 4 inches high (top is gone), and 1 foot 11 inches recessed. It has no traces of having had a door.[123] Supposing the floor to have been 6 feet below sill of east window, probably the side walls were about 8 feet high, and the points of the gables about 18 feet from floor. The roof was probably of large slabs of stone along the eaves and above them, either of smaller slabs or of “divots,” fastened down with “simmons” as on houses.

[Image unavailable.]

Fig. 71.—Chapel on Brough of Deerness. Elevations.

The external length is equal to the diagonal of the square of the width. About 35 yards south of the chapel is a tank or well.

On the south edge of the brough are stones which appear to have once formed a wall, and at this point is the entrance from the “geo.”

Spread over the top of the brough are foundations of at least 18 huts.{105} They are mostly parallelograms, of about 24 feet by 12 feet outside, and the walls 2 feet 6 inches and 3 feet thick. These were for the use of devotees who used this as a place of pilgrimage.

A survey of our coasts and lakes will show how strong a partiality existed in early times for selecting as sites for churches and monastic establishments small islands, isolated rocks, or promontories difficult of access—for instance, the two St. Michael’s Mounts, Lindisfarn, Iona, Ireland’s Eye, Inisfallen, &c. Nor was this taste for isolation peculiar to the coasts. We find throughout Europe, and, indeed, in the East also, numbers of peaks difficult of access, bearing such buildings. The brough of Deerness and the brough of Birsay are good examples.

CHAPEL ON THE NORTH SHORE OF HEAD OF HOLLAND.

This is situated within a few yards of the shore, and not many feet above water level. It is only a heap of ruins, but the measures are just ascertainable. It is a parallelogram, measuring 37 feet east and west by

[Image unavailable.]

Fig. 72.—Chapel near Shore of Head of Holland. Plan.

15 feet 4 inches north and south inside. The north and south walls are 2 feet 6 inches thick, and east and west ends 3 feet 3 inches, and are of the red sandstone of the locality. There was a door in the south wall. Planned in 1870. (Fig. 72.)

HALCRO CHAPEL, South Ronaldshay.

This is now wholly destroyed, and even the foundations taken out, but the measures were obtained by Mr. G. Petrie so soon after the removal of the latter that the thickness of the walls could be accurately determined.{106}

It was a parallelogram, 21 feet by 14 feet inside. The walls were 2 feet 6 inches thick. The place of the doorway was not ascertained. Planned in 1870. (Fig. 73.)

[Image unavailable.]

Fig. 73.—Halcro Chapel, in South Parish, Ronaldshay. Plan.

ST. TREDWELL’S CHAPEL, Papa Westray.

This chapel is situated on a little holm in a fresh water loch on the east side of Papa Westray. (Fig. 74.) It appears probable that a Pict’s

[Image unavailable.]

Fig. 74.—St. Tredwell’s Chapel. Plan and Section.

{107}

house was constructed on this holm, and that the chapel was built on its ruins. This St. Tredwell is the same as St. Triduana, whose day in the Roman calendar is October 8th. She is not mentioned by Alban Butler. The chapel was much frequented in its day, and many benefits were said to

[Image unavailable.]

Fig. 75.—St. Tredwell’s Chapel. Plan and Elevations.

be obtained from the Saint by her devotees. It is a plain parallelogram (Fig. 75), 20 feet 3 inches east and west by 13 feet 10 inches north and south inside, and stands west by south and east by north. There is a narrow doorway near the west end of the south side. Only the lower portions of the walls remain, except at north-west angle, which measures 8 feet high; but here we have, as usual, the unfortunate information that within memory the east gable and south wall were standing. The thickness of the wall on the north is 3 feet 11 inches; east, 4 feet 2 inches; south, 4 feet 3 inches; and west, 4 feet 9 inches. It is stated that there was a window in the east end, and that the doorway was flat headed. No trace of a window remains, and only about 3 feet 6 inches of the door jambs remain. These have a rebate into which a door is fitted, but whether in a wooden frame or not cannot be ascertained. The original floor appears to have been 10 feet above water level.{108}

There is no means of assigning a date to the building, but the difference in the thickness of the walls makes it possible that it has been altered since its first erection. Planned 1870.

CHURCH AT SWENDRO, Rousay.

This is in a graveyard, close to the west shore of Rousay, about a mile north of Westness. It consists of a long parallelogram, and, but for a stoup near the door, and apparently an ambry near the east end, might be taken for a post-Reformation building. It has been used till within memory. It stands about east and west. (Fig. 76.) It is 52 feet 11

[Image unavailable.]

Fig. 76.—Chapel near Westness, Rousay. Plan and Elevation.

inches east and west by 14 feet 5 inches north and south inside; and the walls are 2 feet 6 inches on north and south, 2 feet 11 inches on east, and 3 feet 8 inches on the west. It is now roofless, and in some parts broken. From the floor to the top of side walls is 9 feet 10 inches.

There is one doorway near the west end of south wall. (See Fig. 76.) This is flat headed and rebated, measuring 3 feet 4 inches clear width. To the west of this doorway and low down is a window 2 feet 11 inches by 1 foot 4 inches clear, flat headed, and splayed inwards and outwards. Between the window and the doorway (inside) is a recess, probably for holy water. To the east of the doorway is a window 3 feet 3½ inches by 1 foot 4 inches, flat headed, and splayed as before. The head is nearly as high as the eaves. Farther east is another similar window. About midway along the north wall is a window 2 feet 1½ inch by 1 foot, clear{109} opening, flat headed, and splayed as before. The head is nearly as high as the eaves. In the east end (Fig. 77) is a window, of which the sill is nearly as high as the eaves, 4 feet by 1 foot 2 inches, clear opening, with flat head, and splays in and out; under this window, and across the end inside, is a sort of shelf at the height of the top of the altar. In the west end is a

[Image unavailable.]

Fig. 77.—Chapel near Westness, Ronsay. Sections and Elevation.

window above the level of the eaves, 3 feet 5 inches by 1 foot 4 inches. There is a seat inside, along the west end and part of the north side. The east and west gables are in steps, which remain tolerably entire. The floor of the church is gone. In the yard are numerous rough tombstones, and a few more modern. Outside the north-west corner of the yard is the foundation of a small, strong, rectangular building, which has more the appearance of a fort than a church; but close to it, as is stated, were found some carved stones of the red sandstone, now at Westness, one of which appears to be the cap of an elaborate church doorway, with three shafts on each side. Planned 1870.

ST. OLA, Kirkwall.

This church stands in Bridge Street Lane, and is now a carpenter’s shop and warehouse, the property of Mrs. John Reid. It formerly was enclosed in “a close” or court, and was once converted into a “poorhouse,” from which the close was called “Poorhouse Close.” It has been{110} so much mutilated in its several conversions that little can be stated of its original style and arrangement.

It stands about west by south and east by north. It consists of one parallelogram, 35 feet by 18 feet inside. (Fig. 78.) The south side

[Image unavailable.]

Fig. 78.—St. Ola, Kirkwall. Plan.

abuts on the lane, and a house is attached to the west end, from which house into the chapel a modern doorway has been cut.

[Image unavailable.]

Fig. 79.—St. Ola, Kirkwall. Details.

{111}

The south wall is 2 feet 11 inches thick, the west 3 feet 6 inches.

The original entrance is on the south, 17 feet from the exterior west angle. (Fig. 79.) It is 3 feet 5 inches wide, with a semicircular head and continuous mouldings of a hollow, ornamented with four-leaved flowers and a filleted roll, like many of the mouldings in the cathedral, except as to the flowers. When the street was paved about thirty years ago the ground was raised, the jambs were covered up 9 inches, two stones were inserted just below the impost and the arch raised. What the height of the side walls was is not now evident. They are now about 20 feet above the original floor at the entrance. Probably the ridge was about 24 feet high.

The east end has no trace of an original window, but a modern one has been inserted. In the south wall near the east angle is a modern window, but probably in the place of an original one. The other original windows cannot be traced. Probably there was a step at 10 feet or 11 feet from the east end, and perhaps a screen. A few feet east of the entrance inside was a stoup or piscina (see Fig. 79.). In the north wall near the east angle remains an ambry (see Fig. 79.) 1 foot 4¾ inches wide, 2 feet 1 inch high, and 1 foot 3½ inches recessed. The head is an ogee arch under a hood moulding, and it is flanked by buttresses with finials. The bottom of this ambry is 5 feet 1 inch above what appears to have been the original level of the floor. The moulding of this resembles that of the entrance, except in having no flowers.

In the east wall near the south angle is a smaller ambry, also ogee headed and less ornate, the bottom of which is 2 feet 6 inches above the floor. The use of the ogee is very rare in Scotland. The only curves of that kind in St. Magnus are in fragments of Bishop Tulloch’s tomb.

South of the chapel in what is now the lane were found, in forming the lane, gravestones and human bones. Close by the chapel was lying, in 1855, a stone, having on it, sculptured in relief, apparently a shield, under a mitre, but too much defaced to be recognised, and below the shield, “Robertvs ...,” and a date or letters illegible. Bishop Robert Reid held the see from 1540 to the Reformation; and as the mouldings (especially the four-leaved flower and the ogee arch) point to the fifteenth century, perhaps the chapel may be a late example of the style, and be assigned to him. His coat of arms is a stag’s head cabossed.

The parish in which the town of Kirkwall is situated is that of St. Ola, and it is certain that in this part of the town was the parish church, dedicated to the great warrior saint of Norway—St. Olaf.

The fact of burials having been made close to this building makes it probable that this was the parish church; not a chapel of ease or of private endowment. Of course, this building was not the first parish church, though it may have occupied the site of the first, and probably did so.{112}

It was probably after the constitution of Kirkwall as a royal burgh, about 1470, that the cathedral became practically the parish church, and St. Ola became merged in Kirkwall. The name Kirkwall (Church-bay), being wholly Norse, is some evidence that the name was caused by a Norse, not a Culdee, church. The situation could hardly fail to induce settlement of the Norsemen there. In the name Egilsey we have inference of a different origin, as will be hereafter mentioned. But supposing that the conjecture as to the name of Kirkwall is correct, it does not prove that there was not a Culdee church there.[124] Planned 1855.

Note by Geo. Petrie, Kirkwall, Corr. Mem. Soc. Antiq. Scot.

According to Jo. Ben, whose description of Orkney is dated in 1529, St. Ola’s Church was reduced to ashes by the English, probably during one of their many raids on the islands about that time. One of the raids was on 13th August 1502. As apparently corroborative of Sir Henry Dryden’s conjecture, that St. Ola’s Church was the parish church before the cathedral was so styled, an old charter in my possession proves that not only was the church known as St. Ola’s Kirk, but it had “St. Olaf’s Kirkyard,” “St. Olaf’s Burn,” and “St. Olaf’s Brig” in its vicinity. I think the fair inference from this is, that a church built here during the early part of the Norsemen’s possession of the islands was dedicated with its “kirkyard” to St. Olaf. The name soon extended to the neighbouring small stream or burn, and the “brig” by which it was crossed; and in the course of time embraced a considerable portion of the surrounding country. It is very probable that St. Ola’s Kirk occupied the same site on which stood the older building, from which the town was named by the Norsemen Kirkevaag (Kirk-bay), which was anciently pronounced “Kirkwaw,” and appears in that form in some old documents in my possession.

The fact that St. Ola’s Church had been destroyed in the beginning of the sixteenth century renders it almost certain that Sir Henry Dryden must be correct in attributing the erection of the church, of which there are considerable remains, to Bishop Robert Reid, as the style of architecture, as shown by Sir Henry, is in keeping with the period to which he supposes the building to belong.

The charter I have referred to is dated at “Kirkwall in Orknay ye last of July” 1580, and granted by “John Tailyor and Henrie Tailyor brether germane, and airis to our umqle fayir (father) Andro Tailyor, to our weil-be-louit friend Magnus Paplay” of “All and Haill ane hall, ane seller, ane chalm. yr.aboue wyt. yaird and pt.nents yr.to p.tene.g quhatsomeuir lyand adjacent to Sanct Olaiffis brig, Kirk and Kirkyaird of the samy. having on the Est pt. y.roff the housses p.tene.g to Symound{113} Beatoun; on the West pt. Sanct Olaiffis Kirk and yaird of the samy.; on the South pt. the housses p.tene.g to Johnne Vysshart and Sant Olaffis burne yr. betuixt and to ye North pt. Sanct Katereins quoyis.”

THE FOLLOWING CHURCHES ARE OF THE TYPE CONTAINING CHANCEL AND NAVE.

CHURCH ON THE ISLAND OF WYRE.

This stands on a flat piece of ground about the middle of the island, in a walled burial-ground, still used. The chapel has no roof, and is much filled up with rubbish. Large parts of the south wall have tumbled, as well as smaller portions of other walls. (Fig. 80.)

It is built of grey whinstone, without any freestone dressings. The stones average about 1 foot 6 inches long by about 5 inches thick. It

[Image unavailable.]

Fig. 80.—Church, Wyre, Orkney. From South-West.

consists of chancel and nave, with a door at west end—all built at the same time. (Fig. 81.) The extreme exterior length is 35 feet 10 inches, and width 18 feet 4 inches. It stands west by south and east by north. The nave is 19 feet 2 inches by 12 feet 10 inches inside.

The west entrance is 2 feet 6 inches wide at bottom, with semicircular head, the feet of which are set back at the impost 2½ inches on each side. (Fig. 82.) This mode of putting the arch on was probably done to give a support to the centre on which the arch was built. The jambs are parallel, 3 feet 2 inches thick, and have no rebate for a door, nor any traces of there having been one.[125] There is no cap. The impost is 4 feet{114} 11 inches above original stone sill. The whole interior is from 1 foot 6 inches to 2 feet deep in rubbish.

The west wall is 3 feet 2 inches thick, the north and south about 3 feet.

There are no windows on the north or west of the nave. There are two on the south side, but only one of these appears original. This has a

[Image unavailable.]

Fig. 81.—Church, Wyre, Orkney. Plan and North and South Elevations.

clear opening of 1 foot 10 inches by 8 inches, with a flat head. The jambs splay inward to 2 feet 3 inches in width. The outer edges are broken, so that it is uncertain whether it had an external chamfer.

The upper part of the side walls is in many places destroyed, but as far as can be now ascertained, the top of the nave walls was 11 feet 5 inches above the sill of west door. The chancel walls were only 4 or 5 inches lower.

The upper part of all the gables is gone.{115}

The chancel arch is exactly like the west entrance in every way. The jambs are 3 feet thick. A springer of the gable-coping remains at the north-east angle, 1 foot wide, 7 or 8 inches thick, and of 1 foot projection. In 1852 the springer at the south-west angle was existing. The chancel is 7 feet 10 inches by 7 feet 2 inches inside.

There is one window on the south which appears to have been round headed, and 2 feet 7 inches by 11 inches. The jambs splay inward to

[Image unavailable.]

Fig. 82.—Church, Wyre, Orkney. Sections and East and West Elevations.

2 feet 11 inches in width. The outer edges are broken, but there seems to have been an external splay. There is no ambry, and no trace of altar or altar place.

The springers of the gable-coping remain at the south-east and north-east angles. These are 1 foot wide and about 8 inches thick, and project 1 foot.

The roofs of nave and chancel were either of tie-beam construction or of rafters coupled half-way up, and covered with stone slates.{116}

My conjectural restoration makes the ridge of the nave roof 19 feet above the sill of the west entrance. This chapel closely resembles in size and form the chapel at Lybster, in Caithness, described farther on in this work (p. 162). Probably Wyre Chapel is of the twelfth or thirteenth century, but the characteristics are not decisive enough to approximate more closely to its date. It is called “Cubberow” Chapel, from its vicinity to Cubberow Castle.

The exterior length of the nave is equal to the diagonal of the square of its exterior width. The chancel is nearly square.

CHURCH ON THE ISLAND OF ENHALLOW.

This church, till lately, was unknown for many years, having been converted long ago into a cottage. On the small island Enhallow (the Holy Island), on the south-west slope of it, and about 200 yards from the shore, is a cluster of four cottages, in which four families lived. In 18—fever broke out among them, and the owner, Mr. Balfour, took the whole

[Image unavailable.]

Fig. 83.—Church, Enhallow, Orkney. Plan.

off the island, and pulled the roofs off the cottages. In this clearance the church was discovered. Having been altered and added to in its church time, and having since been altered and added to in its domestic time, its history is very puzzling.

It is of grey whinstones, mostly from 1 foot to 2 feet long (average 1 foot 6 inches), and 6 inches to 2 inches thick. The exterior length is 52 feet 8 inches, and the extreme width 23 feet 4 inches. It stands nearly exactly east and west. (Fig. 83.) The nave is 20 feet 7 inches by 12 feet{117} inside. On the west of this, and entered through a round-headed arch, 4 feet 3 inches wide, with parallel jambs 2 feet 8 inches thick, is a building 7 feet 9 inches and 7 feet 5 inches inside, with walls 2 feet 7 inches thick, without any doorway to the outside, and with only one small square window to the south, perhaps not original. It is in the position of a tower, but it is not likely that a tower of that size would have been added to so small a church, and the walls are too thin. The size and character of the arch into it (Fig. 84) are against the notion that it was a

[Image unavailable.]

Fig. 84.—Church, Enhallow, Orkney. Sections and East Elevation.

priest’s room, supposing the room to be cotemporary with the arch. So little remains of the side walls that with regard to the windows and roof and height we are left to conjecture. There is no appearance of its having been higher than the nave. It most resembles a chancel on the west, and there is in Uyea, Shetland, a chapel with an adjunct, apparently original, in that position. If we may suppose that the west arch was the original entrance to the church, and that the south doorway was of later date, then this building may have been a sacristy, cotemporary with the south doorway. The floor of the late cottage was about 1 foot 3 inches above what appears to have been the floor of the west arch, which is 5 feet 5 inches below the top of cap. The north wall is 2 feet 10 inches thick, and the south wall 2 feet 6 inches. They are about 10 feet 6 inches or 11 feet above the supposed sill of the west arch.

The south doorway is of ecclesiastical date, even if the jambs are not original. The north doorway is perhaps domestic, though resembling{118} that on south. They have the usual rebate and wooden frames fixed in them, and have lately been the doors of the cottage.

The heads are square. (Fig. 85.) Probably at the beginning of the domestic period the south one was altered in some degree, and the north one made or altered. If the building at the west end was the original chancel, these entrances are not cotemporary with that, being in wrong position for that arrangement.

[Image unavailable.]

Fig. 85.—Church, Enhallow, Orkney. North and South Elevations.

It is not certain whether the present chancel on the east is cotemporary with the nave, or whether there was an earlier one or none; but the present chancel arch is clearly an addition of a much later date than the nave. (See Fig. 84.) It is 4 feet 1 inch wide, pointed, has red freestone caps chamfered, and the mark of insertion is clear on the north side of it. It will be seen that the nave is 11 feet 3 inches wide at west end, and 12 feet at east, and in the south-east corner there is a slight projection and roughness. This may be the junction of a former south wall of the nave which got out of repair, or it may be the junction of the jamb of the chancel arch. When the chapel came to be used for a cottage it was divided into two stories. (Fig. 86.)

On the north (Fig. 87) is one window, square headed, 2 feet by 1 foot 2 inches clear, with splayed jambs, but without freestone dressings or external chamfer, and in north-east corner is an ambry 3 feet 9 inches by 3 feet 9 inches, and 1 foot 6 inches recess. The bottom is 3 feet 6 inches above the original floor. The position is peculiar.{119}

[Image unavailable.]

Fig. 86.—Church, Enhallow, Orkney. Sections.

[Image unavailable.]

Fig. 87.—Church, Enhallow, Orkney. Sections.

{120}

On the south is a window like that on the north, and three small ambries, perhaps one or all domestic.

The windows and doors on the north side of the nave and chancel are higher than on south side, owing to the slope of the ground.

The chancel is 12 feet 8 inches by 8 feet 9 inches inside, set out symmetrically with the nave. (See Fig. 83.) When it was made domestic a doorway was cut in the north wall. For some reason the upper part of the south wall was pulled down, and a casing put outside the lower part. A fireplace and chimney were made in the east wall, and a new face put outside the whole east end, including the added piece on the south, for no break or juncture is visible outside the east end. On the north is one window 2 feet by 1 foot clear, with splayed jambs, but no freestone dressings, and no external chamfer.[126] To the east of it is a small ambry. The window and ambry on the north are on a higher level than on the south.

When the casing was added on the south, the window was shifted out, or a lintel put in the added piece. Red freestone quoins and two sills (or possibly one, a square head) are lying near, and the jambs of the south window are much broken. Probably this sill, jamb stones, and head formed the south window, and are cotemporary with the chancel arch, having, perhaps, supplanted a window like that on the north.

Outside the south door of nave is a square addition, measuring 8 feet 1 inch by 7 feet 7 inches inside, now only 6 feet high, containing a radiating stair of five freestone steps. (See Fig. 83.) The west wall of it is 3 feet, and the south and east 2 feet 3 inches. There is no evidence of what this was, or led to, but the building certainly is ecclesiastical by the character of the work. The entrance to it from outside is on the east. Perhaps the stair led to a priest’s room or parvise over the porch, which, however, must have been very small; or it led to a bell turret. There are several jamb stones of red freestone belonging to a doorway lying about, and one (apparently in its proper position) is in the jamb of the outer entrance of this porch. (Fig. 88.) This makes it probable that this building is cotemporary with chancel arch. The red freestone window jambs, above mentioned, may have come out of this porch. Whatever the upper part of this porch was, the roof must have been higher than the eaves of the nave.

Plaster, apparently ancient, remains on the south wall of chancel lower part—on jambs of north window of chancel on east side of the chancel arch in the ambry on north side of the nave.

The roof was either of tie-beam arrangement, or of rafters coupled half-way up and covered with stone slates, or “divots.” The ridge of the nave roof was about 18 feet above sill of west arch.

The general history may be thus conjectured. In the eleventh or{121} twelfth century a chapel was built of nave and chancel at the east end of the nave, and an entrance in the west end of the nave. In the fourteenth

[Image unavailable.]

Fig. 88.—Church, Enhallow, Orkney. Details.

century a new chancel arch was inserted, north and south doorways made, sacristy built at the west end, and a porch and parvise made outside the south doorway. After it became domestic the changes before described were made in the chancel. At a later date other additions were made. (Fig. 89.)

If we suppose that the west building is the original chancel, the original entrance was in the place now occupied by the chancel arch.

[Image unavailable.]

Fig. 89.—Enhallow. View.

{122}

The proportion of the inside of the nave is that of the “vesica piscis”—the width to the length as the base of an equilateral triangle to the length of two such triangles on opposite sides of that base, and the internal length of the chancel is equal to the diagonal of the square of the internal width.

Barry mentions a tradition that neither rats, mice, nor cats will live on the island, which tradition agrees with the name of the island.

CHAPEL AT LINTON, in Shapinsay.

This chapel is near the shore at the south-east part of the island. It consists of nave and chancel, and stands nearly exactly east and west. (Fig. 90.) The extreme length is 35 feet 9 inches, and the width 19 feet

[Image unavailable.]

Fig. 90.—Linton Chapel. Plan and Elevations.

5 inches. About 7 feet in height of the east end of the nave, including the arch into the chancel (Fig. 91), remains; but of the rest only about{123} 2 feet and 3 feet remain. It is built of whinstone without any freestone dressings.

The nave is 18 feet by 13 feet 7 inches inside. The walls are 3 feet thick.

[Image unavailable.]

Fig. 91.—Linton Chapel. View.

The entrance is in the south wall near the west angle, differing in this point from most of the early chapels, and is 2 feet 8 inches wide with parallel unrebated jambs.[127] The upper part of the entrance is gone, but probably it was a semicircular arch. (Fig. 92.) Nothing can be stated

{124}

[Image unavailable.]

Fig. 92.—Linton Chapel. Section and Elevations.

Fig. 92.—Linton Chapel. Section and Elevations.

Fig. 92.—Linton Chapel. Section and Elevations.

Fig. 92.—Linton Chapel. Section and Elevations.

Fig. 92.—Linton Chapel. Section and Elevations.

of the windows. The chancel arch (see Fig. 92.) is semicircular, of rough stone, 3 feet wide, with plain parallel jambs, and the arch is set back on the jambs at the impost, which is about 5 feet 6 inches high from the supposed floor of the nave. The inside is much filled with rubbish. It is uncertain whether there was a step at the chancel arch. The chancel is 7 feet 6 inches by 7 feet inside, narrower than the nave by the thickness of the walls. The north and south walls are 2 feet 10 inches thick, and the east wall 3 feet 4 inches. Only about 2 feet in height of the east wall remains, though within the memory of man the east gable was standing and a cross on it.

Nothing can be stated of the windows. The exterior length of the nave and the interior width are in the proportion of the vesica piscis. The chancel is nearly square.

This chapel bears close resemblance in form and size to Wyre Chapel, and is probably about the same date. It is supposed by the owner that Linton Farm formed part of St. Catherine’s lands, and that this chapel was dedicated to that Saint.

CHAPEL IN WESTRAY.

This is in the “West Graveyard,” which is still used, though the chapel has been for many years a ruin. It consists of nave and chancel, and is built of the schist of the locality. It stands east and west, within two degrees. (Fig. 93.)

{125}

[Image unavailable.]

Fig. 93.—Chapel in Westray. Plan and South Elevations.

The nave originally measured 19 feet east and west by 13 feet 4 inches north and south inside, but was elongated long subsequently to its erection, so that latterly it was 46 feet 7 inches by 13 feet 4 inches inside. The original length is shown by a break in the south wall at 24 feet 7 inches from the south-east angle of the nave, and by the position of the

[Image unavailable.]

Fig. 94.—Chapel in Westray. Sections.

original doorway, which at the elongation was stopped up. There is also a tradition that the church was enlarged, and when certain people within memory were pulling it down, an old inhabitant begged them not to “pull down the Danes’ work,” alluding to the chancel and eastern part of the nave. Of the elongation little more than the foundations remain; but it is evident that there was not a door in the west end or north side, so that it must have been somewhere in the south wall, between the old blocked doorway and the south-west angle. The side walls are 3 feet thick. Of the old part of the south wall, fortunately, we have considerable part. (See Fig. 93.) The old doorway is nearly complete. It had plain parallel jambs, without rebate, 2 feet 4 inches apart, a plain projecting abacus, and a semicircular head set back at the impost. To the east of that is a window entire. It has a semicircular head, and measures 2 feet 7 inches high by 11½ inches clear opening, with jambs splayed to the width of 1 foot 7½ inches.

The chancel arch remains entire. (Fig. 94.) It has plain angular jambs 4 feet apart, a plain abacus of schist and a semicircular head.{126} The impost is 5 feet 7 inches above what appears to be the old floor. (Fig. 95.) The wall is 2 feet 9 inches thick. The chancel is 9 feet 1 inch east and west by 6 feet 8 inches north and south inside. It had a

[Image unavailable.]

Fig. 95.—Chapel in Westray. View from North-West.

cylindrical vault, of which part remains. (Fig. 96.) It springs from the level of the impost of the chancel arch, and is slightly set back at the impost, as many of the old arches were, to give support to the centering.

[Image unavailable.]

Fig. 96.—Chapel in Westray. View from South-East.

It had one window, which was in the east end, which is now gone; but within a few years the east gable was existing. According to an old inhabitant the east window was like the south one in the nave. The vault is 1 foot 3 inches thick.

In the graveyard is lying what appears to be the saddlestone of one of the gables, of the red sandstone of Eday.

This chapel probably is of the twelfth century, and possibly of the thirteenth. Planned 1870.{127}

CHURCH ON EGILSEY.

The island on which this church stands is about three miles north and south and one mile east and west. The church is on the west side of it near the Howa Sound, which separates Egilsey from Rousay, and is a conspicuous object from all sides, as the island has no prominent points, and the church is on the highest ground.

The flood tide runs from north-west to south-east. There is a landing-place at the south point and on west side, but not at north point. The name Egilsey or Egilshay is derived from an ancient form of the Gaelic word eaglais, a church (derived from ecclesia), with the Norse addition of ey, an island.

[Image unavailable.]

Fig. 97.—Church on Egilsey. Ground Plan.

Professor Munch infers that the Norsemen founded a church here, and called the island after it; and if this is the case, the date of the erection of the church is put very far back, unless we suppose this to be a second church. It was dedicated to St. Magnus; but this might be a second dedication, and probably was so. At the end of this article are further remarks on this point. The church is complete, except the roofs and the upper part of the tower, and was used up to about 18—as the place of worship. It consists of a chancel nave and tower at the west end of the nave, and stands nearly exactly east and west. (Fig. 97.)

The only alterations which appear to have been made in the building are two or three windows. The ground plan shows a proportion which, if not intentional, is singular. If four circles of the exterior diameter of the tower are laid down in a line, and the first occupied by the tower, the second and third fill the inside of the nave, and the fourth takes in the chancel, including the side walls, but excluding the east wall. The whole is of grey whinstone, without any freestone dressings, and has become very picturesque in colour, from the rich grey lichen on some parts and bright yellow lichen on others.

The masonry is chiefly in courses, but the size of the stones very irregular, some being as large as 4 feet long and 1 foot 6 inches deep.{128} The interstices are filled with very small stones. Here and there irregular blocks are inserted.

The whole is built with mortar.

The extreme length is 62 feet 9 inches, and the extreme width is 21 feet 7 inches.

The nave is 29 feet 9 inches by 15 feet 6 inches inside. The north and south walls are 3 feet thick. On the north and south, opposite each other, are two doorways 2 feet 6 inches wide. These have round arched

[Image unavailable.]

Fig. 98.—Church on Egilsey. Section from West to East.

heads and rebated jambs without chamfers. On the north side of the nave is a window 3 feet 3 inches high and 8½ inches wide at the outside of the wall with semicircular head. (Figs. 98-100.) The jambs are splayed inwards to 2 feet 9 inches wide. On the south is a similar window. It is to be observed that these windows have no external chamfer—that is, the outer edges of the jambs are acute angles. This peculiarity is found in early Irish churches.[128] They were not originally glazed, but probably had a frame fitted into them, when required, covered with parchment. On this south side are two windows, not original—one close to the east wall and low down, the other high up over the south doorway, (see Fig. 102.)

The side walls are about 15 feet 4 inches high from the floor, equal to the internal width of the nave.{129}

On the west of the nave is the tower, which is circular, 14 feet 10½ inches diameter externally, and 7 feet 8 inches diameter internally. An arch 2 feet 5 inches wide leads from the nave into it. (Fig. 101.) The jambs are 3 feet 7 inches thick, and the head is semicircular. The tower appears to have been built with the nave, although the stones in the tower are on the average smaller than those in the nave, which difference may be accounted for by the unfitness of large stones, when not freestone, for circular work.

[Image unavailable.]

Fig. 99.—Church on Egilsey. Section from East to West.

The tower seems to have contained four chambers, including the one on the ground.

Above the tower arch, at 16 feet 3 inches from the floor of the nave, but under the nave roof, is an arched opening in the tower 5 feet 4 inches high and 2 feet 3 inches wide. A similar opening is found in many early churches in England, the use of which is not ascertained.

Arches in the same position are in St. Magnus.

The nave roof appears to have been of a “square pitch”—that is, the angle at the apex is about a right angle. Of the construction of the roof we know nothing, except that it was not vaulted.

Probably all the rafters were framed in couples, and the covering formed of coarse slates.

Each end of the roof is terminated by a wall 1 foot 2 inches wide, formed of corby-steps, standing up above the roof as usual. The ridge of{130} the roof was about 25 feet above the floor. Above the roof of the nave in the east side of the tower is an arched opening 4 feet 1 inch high and 1 foot 9 inches wide. At about 7 feet above this is a smaller opening in the east side, and similar ones in the three other sides of this story. The top of the tower is now about 11 feet wide, and about 48 feet from the floor of the nave. It is stated that about 15 feet was taken off the top. Probably it was surmounted by a conical roof.

[Image unavailable.]

Fig. 100.—Church on Egilsey. North Elevation.

On the south side, and near the ground, is a window, but this is a modern work. There is a small window in the second story looking north. (See Fig. 99.)

The chancel is 14 feet 11 inches by 9 feet 5½ inches inside; the side walls 2 feet 9 inches thick, and the east wall about the same. It is roofed with a plain barrel vault, of which the semicircular chancel arch forms part. (See Fig. 101.) The impost of this arch is 5 feet from the floor of the nave. Probably there was a step here or a little farther east.

The pressure of the vault has forced out the jambs of the arch (that is, the side walls), and given the arch a horse-shoe form. Dr. Wilson lays some stress on this peculiarity of form, taking it to be intentional, but it is purely the result of lateral pressure.

The east end has no window. On the north is a window 1 foot 7½ inches high and 11 inches wide at the outside, with a semicircular head, below the impost of the vault. The jambs are splayed inward to 2 feet{131} 1 inch in width, without an external chamfer. On the south is a similar window. (Fig. 102.) Probably, like the nave windows, they were not originally glazed.

Over the vault of the chancel is a chamber, entered from the nave by a semicircular arch 6 feet 4 inches high and 2 feet 2 inches wide, over the chancel arch. (See Fig. 101.)

[Image unavailable.]

Fig. 101.—Church on Egilsey. West and East Elevations.

It is lit by a flat-headed window in the east end, 1 foot 6 inches high. This probably served as a depository for books, muniments, &c.

It is called by the country people “Grief House,” and supposed to have been a prison, &c.

The side walls of this chamber are 2 feet 4½ inches thick, and the east wall 2 feet 7½ inches.

The ridge of the chancel roof was 20 feet 9 inches above the floor of the nave. [Figs. 103, 104 show the appearance of the building from south-east and north-west.]

It remains too approximate to the date of this church.

There was a church in Egilsey when St. Magnus was murdered in 1110. The attaching so large a tower to the church tends to show that this was a church of a superior order when it was built.{132}

The style of architecture (Fig. 103, Fig. 104) (discarding certain indications of an earlier date) prevents our assigning to it a later date than the beginning of the twelfth century. When we contrast it with the Kirkwall Cathedral, begun in 1137, we are forced to give an earlier date than that to Egilsey. This opinion is corroborated by the churches at Orphir and the Brough of Birsa. The islands were conquered by the Norsemen in 876, and reconverted to Christianity in 998. The church, therefore, was probably not built between those dates. There were Christians in these islands before the arrival of the Norsemen. The name of the island, as

[Image unavailable.]

Fig. 102.—Church on Egilsey. South Elevation.

before mentioned, is evidence that there was a church of distinction in Egilsey when they arrived.

Neale[129] supposes that the church to which St. Magnus fled was on the east side of the island; supposing Haco to have come from Birsay by the north of Rousay to the east of Egilsey. Haco’s starting point is not certain; but if it was Birsay, he would naturally have come by the south of Rousay to the west of Egilsey.

There is some confusion about the Episcopal Church and residence. Barry (p. 162) quotes Torfœus as stating that Bishop William lived in Egilsey. Neale (following Barry) has made the same statement.

Torfœus twice states that the bishop resided at Birsa.

The Saga is still more to the point, and states that at the time of St.{133} Magnus’s death William the Old was bishop, and the see was then at Birsa. But Torfœus, in three or more other passages, states that Bishop William was in Egilsey—not necessarily residing there.

We must understand (if Torfœus is right) that he generally lived in Birsa, but often officiated at Egilsey. We may thence infer that Egilsey was an important church in Bishop William’s time, and that it was fixed

[Image unavailable.]

Fig. 103.—Church on Egilsey.

on as the place of meeting of Haco and Magnus from being frequently the bishop’s abode. We do not, however, find the bishop mentioned in the account of the murder of St. Magnus as adviser or mediator.[130]

Wilson, in his Prehistoric Annals, p. 587, has a notice of this church, to which the reader is referred. He supposes it to be the work of Irish Christians before the expedition of Harold in 876, and to be the church which caused the Norsemen to give its present appellation to the island.

There is at all events nothing to disprove this, but if we put the tower for the moment out of the question, there is little to induce the assignment of so early a date. The absence of freestone, the round arches, the chancel vault, the small number and size of the windows, do not necessitate a date earlier than the twelfth century.

The tower, then, is the feature which specially points to an earlier{134} period. Dr. Wilson apparently inclines to class this tower with the later round towers of Scotland and Ireland.

When, however, we compare it, there appears little or no resemblance except its circularity.

The round towers, with one or two exceptions, are detached buildings, though situated within a few feet of churches, have their entrances at

[Image unavailable.]

Fig. 104.—Church on Egilsey. North-West View.

several feet from the ground, and have jambs inclined towards each other upwards. They have other differences of construction, which, however, may be in part accounted for by the difference of the available materials.

The Irish tower which most resembles Egilsey is the smaller one of the two at Clonmacnoise. This is an integral part of the church, and joined to the south-east angle of the nave. The entrance to it is on the ground, from the chancel. To this church Dr. Petrie assigns the date of some years before 1000 (p. 271). In many particulars the tower at Egilsey approximates more closely to the round towers of Norfolk, which are of the twelfth and thirteenth centuries. There is no evidence of another church in another place having existed in the island; nor account of the building of any church in the island.

These, however, are very slight evidences of the antiquity of the present church.

There does not appear to be positive evidence that the Christian priests were exterminated by the Norse conquest; though it is probable{135} that they would fly westward. If, however, we give up the idea of its Norse origin, we ought to find resemblances between it and the ancient Irish churches of the eighth, ninth, and tenth centuries. These we do find. First, the size of Egilsey is close on the authoritative size of the more important of the ancient churches, presuming the present foot to be about equal to the ancient Irish foot. The authorised Irish size is 60 feet by 27 feet; Egilsey is 62 feet 9 inches and 21 feet 7 inches. The lowness of the chancel, the chamber or “croft” over it, the second chamber in the tower with an arch from it into the nave over the tower arch, the number and size of the windows, the peculiarity of their splays, having no exterior chamfer, the character of the masonry, all resemble the early Irish churches. On the other hand, three great criteria of an early Irish church are not found in Egilsey—the approximation of the jambs of doors and windows towards their imposts, the horizontal heads to the doorways, and the east window. It seems, however, probable that the difference of the materials induced one of these differences. It was difficult to get in Orkney lintels strong and long enough for heads of doorways, though we find them in the broughs. The rebates in the doorways are again of a very early date.

It seems on the whole fair to suppose Egilsey to have been built after the traditional Irish form, but with modifications; and soon after the reconversion of the islands to Christianity in 998. If built before that time, we must refer it to the beginning or middle of the ninth century.

Unfortunately Neale, when in Orkney, was unable to see this church, and has given a cut, professing to be an approximate likeness of the tower, which is very erroneous in several particulars. The etching in Muir’s “Sketch” is also wrong in proportion.

In the Orcadian of January 1855 is an account by Mr. Petrie of the finding the remains of Bishop William “the Old” in the cathedral in 1848. His bones, and the chest containing them, were moved when the cathedral was reseated in 1856. The leaden plate bearing the inscription, and a bone article (doubtless the cross handle of his walking stick) found in the chest, are now in the Edinburgh Museum.

CHURCH ON BROUGH OF BIRSAY.

The brough contains about 40 acres, and is separated on the east from the mainland by a rocky channel, which is about 150 yards wide, and dry at low water. The surface of the brough slopes down from a high cliff on the west to a cliff of about 20 feet high on the east. The chapel is about 50 yards from the shore at the point nearest to the mainland. (Fig. 105.) It is enclosed in a yard about 33 yards east and west, by 27 yards north and south, of which the wall is destroyed. At the edge of the cliff are traces of a wall. The chapel consists of nave, chancel, and{136} apse, all well defined, and all apparently built at the same time. (Fig. 106.) The material is grey whinstone, and no traces of freestone dressings appear. It stands nearly east and west, but the west end facing a little to the north of west.

[Image unavailable.]

Fig. 105.—Church on Brough of Birsay. Plan of Site and Towers.

The extreme exterior length is 57 feet, and extreme width 21 feet 3 inches.

The west wall is 3 feet 8 inches thick; the north and south walls of nave and aisles 2 feet 9 inches; the wall of apse 2 feet 4 inches. There were no buttresses.

[Image unavailable.]

Fig. 106.—Church on Brough of Birsay. Plan.

The interior is filled with debris to the depth of about 2 feet 6 inches above the floor, and the exterior to about the same depth. Partial excavations were made for this plan. Of the west end, only 3 feet in height of wall remains (Fig. 107); of the north wall (Fig. 108) a little more, and of south wall a little less; of the north wall of chancel, 8 feet 6 inches; of south wall of chancel, about 2 feet; of the apse, about 2 feet 4 inches. The nave is 28 feet 3 inches by 15 feet 6 inches inside.{137} The only entrance to the church is in the west end, 3 feet 8 inches wide. The jambs are parallel, without any chamfer, and there is no rebate for a door nor appearance of hinges; and original plaster remains on the jamb down to the sill and all across it. There is no appearance of the insertion of a wooden frame. This mode of making jambs of doorways is to be seen at Lybster in Caithness, Wyre, Lynton in Shapinsay, Uya in Shetland, and in some of the oratories in Ireland, &c.[131] Were there doors in these doorways,

[Image unavailable.]

Fig. 107.—Church on Brough of Birsay. East and West Elevations and Sections.

and, if so, where placed and how hung? It is known that in many cottages in old times the door was an animal’s hide hung across the opening, and probably this may have been the case in these unrebated church entrances. Possibly this plain jamb may be an evidence of antiquity; though Egilsey and Kirk of the Ness in Yell have the usual form of jamb. Probably this doorway was surmounted by a semicircular arch, though many of the ruder chapels had square-headed doorways with a{138} large stone lintel, as at Lybster, Caithness. There are very few instances of the passage between a nave and chancel being square-headed. Where there is a semicircular arch on plain jambs, as in the doorways beforementioned, and in some chancel arches, as at Linton, Shapinsay; Kirk of the Ness, Yell; Wyre, &c., there is generally a peculiarity which may be mentioned here—the feet of the arch are set back on the jambs at the imposts two or three inches on each side. This was probably to support the centre on which the arch was built, instead of supporting it by props from the floor.

[Image unavailable.]

Fig. 108.—Church on Brough of Birsay. North Side Elevation.

In the north-east and south-east corners are two circular spaces 5 feet 6 inches in diameter (see Fig. 108.), the south one of which contains a freestone stair step, and the north one some broken stone. Probably both were staircases; but how high they reached, to what they led, and what was the superstructure we can only conjecture. One or both may have led to turrets, or to priests’ rooms over the chancel arch, or chancel or nave. We cannot suppose a rood-loft to have existed here. The support of the west side of the stairs is now gone, but we must suppose that a block of masonry existed which included the circle of the staircase. Against this, the seat on the south apparently runs past the spot at which it should have stood, and there are no decisive traces of a junction in the north and south walls. There is no other solution of the difficulty. This very massive separation between nave and chancel is probably unique. M‘Cormac’s chapel at Cashel has a turret and a chamber in nearly the same positions as these staircases; but the construction in that case is clear.[132]

A stone seat, 1 foot 2 inches high and 1 foot 2 inches wide, ran all round the nave—at least, it was traced at west doorway and at the east{139} end of the south wall of the nave. The roof was probably of tie beam construction, and covered with stone slabs.

The entrance to the chancel is 4 feet 3 inches wide, of which 4 feet in height of the jambs remain. They are 3 feet 7 inches thick from west to east, but if the construction was that suggested above, the jambs were 7 feet from west to east, including an entrance into each turret 2 feet wide. (Fig. 109.) The entrance to the chancel was probably surmounted by a semicircular arch of whinstone, plastered, about 8 feet or 9 feet high to the apex, with string-course caps 4 or 5 inches deep. The angles were not chamfered.

[Image unavailable.]

Fig. 109.—Church on Brough of Birsay. Entrance to Chancel, and Interior Elevation of West End.

There is a step in this entrance of only 2 inches, and from that to the east end of the apse was flush originally. The pavement is of flagstones. This low position of the original altar is peculiar.

The chancel is 10 feet 9 inches east and west, and 10 feet 3 inches inside. Only one window remains, which is in the north wall of chancel, and this has lost its lintel (Fig. 110). The clear opening was 3 feet by 10½ inches, with, as stated, a square head. The window has an internal and external splay, each widening to 1 foot 10½ inches. This form is peculiar. There was probably a frame, fixed in the narrow part of the opening, containing glass. In this wall, just east of the window and lower, is a square ambry, 3 feet high by 2 feet 8 inches wide, and 1 foot 11 inches in recess. The use of so large an ambry is not evident. The bottom of it is only 2 feet above the floor. There is no appearance of its having had doors. In the north-east part of the nave of Enhallow Chapel is a similar recess, and one in the same position as this in the chapel on the Brough of Deerness. It is possible, but not probable, that these were{140} Easter sepulchres. In the Kirk of the Ness, North Yell, is a larger one. Of the south wall of the chancel so little remains that nothing can be stated as to window piscina or sedile.

It is remarkable that the floor was originally level to the end of the apse, and no elevation given to the altar, which was probably at the chord of the apse; but in later times they built a reredos which blocked off the apse, and then they appear to have made steps to the altar. Some part of the altar remains. It appears to have been 4 feet 1 inch by 2 feet 7 inches. Possibly the reredos did not reach many feet high, so that the upper part of the apse appeared over it.

[Image unavailable.]

Fig. 110.—Church on Brough of Birsay. Section from West to East.

As there were no buttresses, it is not likely that the chancel was vaulted. The roof was probably of tie-beam construction, or of rafters coupled half-way up, as in cottages, and covered as the nave roof. It is probable that the apse was vaulted, and the arch into it may be conjectured to have been 10 feet high, and semicircular, and to have formed part of a plain vault, as at Orphir and St. Margaret’s Chapel at Edinburgh. The ground plan is somewhat in the form of a horse-shoe internally. Probably there was a small window in east end, and this must have been at a lower level than the one on the north.

The interior of the nave is of the proportion of the vesica piscis. The width of the chancel is less than of the nave by the thickness of the side walls. The interior of the chancel is square. It is stated in Barry[133] to have been dedicated to St. Peter, and to have been a place of pilgrimage. The writer was informed that many years ago a skewer was found, with a skull, outside the chapel. This was probably the pin of a winding sheet.

There can be little hesitation in assigning this church to about 1100.{141} It is recorded that Earl Thorfin built Christ’s Church in Birsay, and that the body of St. Magnus was buried there. It appears probable that if St. Peter’s had been built as long after his death as his canonisation, it would have been dedicated to him. Even if it had been built in memory of St. Magnus before his canonisation, and dedicated to some other saint, probably the dedication would have been changed after his canonisation. As it is recorded that Thorfin built Christ’s Church, it is probable that if he had, St. Peter’s would have been recorded also. It is more probable that it was built by his second son, Erlend, the father of St. Magnus.

This church bears considerable resemblance to Old Bewick, Northumberland, figured in Muir’s “Sketch”; to Moccas and Kilpeck in Herefordshire, and to St. Margaret’s Chapel, Edinburgh.

Mr. Leask of Boardhouse, in 1867, made an excavation in the church, to determine, if possible, whether foundations exist of the walls supposed to have enclosed the west sides of the circular recesses. He found none and found plaster on the north wall of the nave, where the supposed wall should have joined. Possibly the supposed walls were taken down during the time the chapel was used. He found in the north wall of the nave, at 5 feet west of the angle of the recess, an entrance 2 feet 4 inches wide. The position is very unusual. Planned 1866.

CHURCH AT ORPHIR, Orkney.

This highly interesting fragment stands near the east end of the parish church, and probably the reason why it has not obtained that notice which it deserves is, that the larger and most interesting part of it was destroyed before 1758, to build or enlarge the present parish church. It consisted originally of a circular nave, and apsidal chancel added to its east part. (Fig. 111.) The chancel remains, but only 9 feet on each side of it of the circular nave. Fortunately we have a short record of its size and form in Sinclair’s Statistical Accounts, xix. 417, quoted in Wilson, Prehistoric Annals, 598. It is there stated:—“In the churchyard are the remains of an ancient building called the Girthhouse, to which great antiquity is ascribed. It is a rotundo, 18 feet in diameter and 20 feet high, open at top; and on the east side is a vaulted concavity, where probably the altar stood, with a slit in the wall to admit the light; two-thirds of it have been taken down to repair the parish church,” &c. In the translation of Torfœus by the Rev. A. Pope is this note by the translator (p. 108), who visited Orphir in 1758:—“The temple of Orphir, or Gerth-house, was a rotundo 22 feet in diameter, and 61 feet perpendicular wall above ground. The cupola, with the open for the light, was of an elegant cast, and the light was all from the open, and lighted the house sufficiently. There was a small slit in the east side for light to the priest, who stood in a niche elegantly done. The work was very firm; and{142} though at that time there was a breach made in order to get stones to repair the parish kirk, yet the stones crumbled to pieces before they could be loosed,” &c.

In the Orcadian, July 1861, is an account of this church by Mr. G. Petrie. It is there stated that the present parish church was erected in 1829. (See also his notice of the ruins, in the Archæological Journal, 1861, No. 71, p. 226-230.)

[Image unavailable.]

Fig. 111.—Church at Orphir. Plan and Section through Apse.

It is evident that the east wall of the parish church could not have co-existed with the old nave, for the new church stands on part of it.

From these several statements we must infer that part of the old church was pulled down before 1758 to build or enlarge, not to repair, the parish church, and possibly a farther portion pulled down in 1829.

We must understand the “cupola” to be a conical roof, and “the open for the light” to be a glazed lantern on it, which, however, was probably not original. (Fig. 112.) “Open at top,” in Sinclair, must refer to this lantern. The framework of it must have been of wood, as at Ely.

The curvature of the two parts of the nave wall still remaining gives an interior diameter of about 19 feet, thus corroborating the diameters given by Pope and Sinclair. Neither of these persons had seen the church perfect; and the differences in the measures given by them show that their informants did not speak from exact data. The “61 feet{143} perpendicular wall” is a gross mistake either of printer, or translator, or his informant. Even the “20 feet high” seems over the mark, though this may be a loose approximation to the height of the side walls.

[Image unavailable.]

Fig. 112.—Church at Orphir. Elevation of Apse, and Details.

Supposing the preceding conjectures as to the shape of the roof to be correct, the top of the “fleche” surmounting the lantern would be about 40 feet. Then, supposing that Pope was told that the height was 41 feet, and the height of the side walls 20 feet, he might have added them together.

The diameter was less open to error than the height. One writer, however, might give the outer diameter and the other the inner.

It is built of yellow Orphir freestone. The nave walls are 3 feet 9 inches thick, well built; and probably the entrance was at the west, as in the other round churches.

It is highly improbable that Pope is right in stating that “the light{144} was all from the open”—that is, that there were no windows in the nave walls. Probably there were four single lights.

The chancel, which is little more than the apse, is 7 feet 2 inches wide and 7 feet 9 inches deep, or long, with wall 2 feet 8 inches thick. The arch into it is semicircular, and forms part of a plain unribbed vault, as at St. Margaret’s Chapel at Edinburgh. (See Fig. 111.) The impost of the vault arch is 6 feet 5 inches above what appears to have been the floor, and the top, consequently, 10 feet 6 inches high. Outside the vault was originally probably a solid stone roof, the apex of which was about 14 feet

[Image unavailable.]

Fig. 113.—Church at Orphir. Elevations of Apse.

from the floor. This height (supposing also that there was a step at the chancel arch) would oblige the walls of the nave to be about 15 feet high. The chancel has no buttresses. There is one window in the chancel, in the east end, 2 feet 5 inches by 10½ inches clear, opening with jambs splayed inward to 1 foot 8 inches wide. (Fig. 113.) The outer edges are chamfered, and the head semicircular. The impost is at the same level as of vault. It has a groove for glass.

A stone lying down appears to be part of a stoup.

The exterior width of the chancel is half the exterior width of the nave.

On the south side of the nave is the trace of a building in the form of a parallelogram, and other indications of buildings. Pope states that before his visit in 1758, large foundations had been found in digging earth for the Bow of Orphir, near the Gerth-house.{145}

The “four round churches” of Britain are—Cambridge, consecrated in 1101; Northampton, probably shortly before 1115; Maplestead, 1118; and London, 1185.[134] To these must be added the small Norman chapel in Ludlow Castle, and we may safely add, as a sixth, Orphir. The church of the Holy Sepulchre at Jerusalem was the type of all, and the Crusades were the means of importing the form into Britain. In conjecturing the date of Orphir, we may take into account that there was a palace of the Earl Haco (son of Paul I.) at Orphir, according to Torfœus. He went to the Holy Land and back, and died in 1103. The same writer describes the palace of Earl Paul II. at Orphir, and states that a temple stood opposite the wall of the palace. This earl died about 1136. If this statement is to be believed, this must be the church mentioned, and hence we get 1090-1137 as the limits within which this church was built.

Earl Ronald founded the cathedral about 1138, and soon after went to the Holy Land, accompanied, of course, by some of his high officers. He died in 1158. We may fairly conclude that this round church had some connection with one of these expeditions. As Earl Ronald needed all his money for the cathedral, we cannot suppose that he had any hand in building Orphir; but it is not improbable that some one of his wealthier followers built it, and we may, from the dates of the other churches and these facts, fix on 1090-1160 as limits of the date of its erection.

In the Edinburgh Museum is a stone article, presented by D. Balfour, Esq., found at this church. It is circular, 4¼ inches diameter, ¾ inch thick, with a small square hole in centre. Its use is not evident. Planned 1855.

CHURCHES IN SHETLAND.

These are all Chancel Churches except Culbinsbrough, which is Cruciform.

Canons Ashby, Feb. 21, 1868.

Sir,—Last year you inserted in the Orcadian accounts by me of some of the ruined churches in Orkney; I now send you accounts of some of those in Shetland. Every year destroys some portion of these ruins, and of the most complete in Shetland a considerable portion has fallen since I made the plans of it in 1855. Though the owners of these humble ruins do not value them, they have a value with historians and antiquaries as examples of the ecclesiastical architecture of the North in its least elaborate state, and evidences of the religious condition of the islands in past times. We find no St. Magnus and no Egilsey in Shetland; but still the ruins which exist there are worthy of record.{146}

The number of churches which once existed in Shetland is extraordinary. For instance, Unst, which is about 6 miles by 3 miles, had at least twenty-four. Of most of the Shetland churches every trace but a name or a tradition is gone; of others only a heap of stones remains; of others a few fragments of wall enable us to make approximate plans, and one only is tolerably complete. A little labour with pick and spade would enable us, in many instances, to determine more about them than is possible in their present state. No people ought to be more impressed with religion and the uncertainty of life than the Shetlanders. The effects of the storms on sea and land, the terrible tideways among the islands, and the barren nature and exposed position of much of the land, make life a continued struggle for safety or for food. Doubtless the tradition concerning nearly every church was true of some—that they were built as thankofferings for escape from an ocean grave. The churches of which I send an account are Culbinsbrough, Bressay, Noss, West Sandwick, Yell, the Ness (Yell), Uya, and Norwick, Haroldswick, Kirkaby, and Colvidale, all in Unst.

I have to acknowledge the assistance of Mr. J. T. Irvine, formerly of Yell, and of Mr. Sandison of Uya, and to thank many friends in Shetland for hospitality and information.—I remain, your obedient servant,

H. Dryden.

CHAPEL OF NOSS, Bressay.

This ruin is near the sound which separates Noss from Bressay, on an elevation of about 20 feet or 30 feet above the water. The dedication is unknown.

It consisted of a nave and chancel (Fig. 114), of which only a fragment

[Image unavailable.]

Fig. 114.—Chapel of Noss. Plan.

of the north wall of the chancel remains, about 4 feet or 5 feet high. The nave was about 18 feet 6 inches by 14 feet, and the chancel about{147} 12 feet east and west, by 10 feet north and south, as shown by the ridge in the turf.

Nothing certain can be stated of the door or chancel arch. Planned in 1852.

KIRKABY, Westing, Unst.

This is in the west part of the island, in a walled churchyard, about 80 feet north and south, and 60 feet east and west. By remains outside the south-east part of the wall, it is evident that the church has been

[Image unavailable.]

Fig. 115.—Kirkaby, Westing. Plan.

built on the ruins of a brough or other ancient building. The dedication is unknown. The church consisted of a nave (Fig. 115) about 13 feet 9 inches by 12 feet, and a chancel about 10 feet by 7 feet inside. The walls were about 2 feet 9 inches thick. The chancel arch was equal in width to the chancel. About 2 feet in height of the north wall of the nave and of the north wall of the chancel remains, and traces of the rest sufficient to approximate to the size. The entrance was probably in the west end. The chancel inside equals in length the diagonal of the square of the width.

Plan by Mr. J. T. Irvine, 1863.{148}

MEAL COLVIDALE, Unst.

This is in the south-east part of the island, in a yard about 112 feet east and west by 85 feet north and south. (Fig. 116.) The dedication is unknown. The nave is about 12 feet by 11 feet inside; the chancel 7 feet 9 inches by 7 feet 6 inches inside; and the walls 3 feet thick.

[Image unavailable.]

Fig. 116.—Meal Colvidale. Plan.

About 2 feet in height of the north wall of the nave, and about the same of the north wall of the chancel, and a fragment of the interior face of the south wall of the chancel remain. Traces indicate the outline. The nave is very short. The chancel arch was equal in width to the chancel. The door was probably in the west end.

Plan by Mr. J. T. Irvine in 1863.

ST. JOHN’S KIRK, Norwick, Unst.

This is in the north-east part of the island, on the south side of a bay. It is dedicated to St. John.

It consists of nave (Fig. 117), about 26 feet 6 inches and 13 feet 6 inches inside, and chancel about 16 feet by 8 feet 8 inches. The walls are 2 feet 4 inches thick. Only about 2 feet in height of the central portion remains, that is about 12 feet 6 inches of the east part of the nave, and about 10 feet of the west part of the chancel. The chancel arch was equal in width to the chancel. The doorway was probably in the west end.{149}

In the churchyard are several crosses and coped coffins of rude construction. Some also at Sandwick, Unst. The nave equal in length

[Image unavailable.]

Fig. 117.—St. John’s Kirk, Norwick. Plan.

inside to double its width. Chancel equal inside to vesica piscis.

Plan by Mr. J. T. Irvine in 1863.

When Low visited it, it was nearly entire, and the altar remained.

CHURCH AT UYA.

The island of Uya, or Uyea, is not more than 2½ miles by 1 mile across. It lies to the west of Unst. The ruin is near the east shore. The dedication is unknown.

[Image unavailable.]

Fig. 118.—Church at Uya. Plan, South Elevation, &c.

{150}

It consists of a nave and a building like a chancel to the west of the nave (Fig. 118), and lies true east and west.

About 7 feet 6 inches high on an average of the side walls remain. The material is the grey whinstone of the island, and the blocks from 4 feet by 1 foot by 1 foot downwards.

The nave is 16 feet 9 inches by 13 feet inside. The east wall of the nave is 3 feet 6 inches thick, and the others now vary from 2 feet 10 inches to 3 feet 1 inch. The side walls vary from 6 feet to 7 feet 6 inches in height. No window remains, but probably there was one on the south side.

In the east end is an arch or doorway (Fig. 119), 2 feet 2 inches wide, with parallel unrebated jambs, and a semicircular head of one rectangular

[Image unavailable.]

Fig. 119.—Church at Uya. Elevations and Sections.

order, with simple unmoulded projections for caps. The arch is formed by overlapping the stones as in the cells of broughs. At the west end is an opening 2 feet 6 inches wide, of similar character, except having a ruder arch and no caps. Above this arch, 6 feet 4 inches in height of the gable remains. Through this is the west apartment, resembling a chancel, which is 10 feet east and west by 10 feet 2 inches north and south, and has walls 2 feet 3 inches thick.

There is an entrance in the north wall near west end, apparently not original. The west gable is 9 feet 6 inches high. The eaves appear to have been 8 feet above the ground. In the south wall of the nave, and{151} near the west end of it, is a rough stone stoup built into the wall. (See Fig. 118.)

This little chapel is a puzzle, and has been mentioned before under Enhallow, Orkney. Is the apartment in the west original, and if so, what is it?

It is in the same position as the adjunct at Enhallow. If original, it probably was a sacristy. The writer, in taking the plans in 1855, did not observe on the spot that this adjunct was on the west, which was not noticed till the plans were laid down at a distance, and no opportunity has occurred since of minutely inspecting the building. Muir (Eccles. Notes) is incorrect in his plan.

The east archway (entrance) appears original, yet too small for a chancel arch. Supposing the adjunct on the west was original, and a sacristy, and that the east arch is original, it must have been a chancel arch, and there must have been a chancel, now gone.

The position of the stoup seems to indicate that the arch from the nave into the west adjunct is the original west entrance, and that the adjunct is not original. There are no other church arches in the islands formed as these are by overlapping stones.

In the churchyard are some rude crosses, formed of slabs 2½ inches thick. These were placed upright at the foot or head of graves. One is about 2 feet high, the limbs of the cross being 7½ inches wide and pattee. The limbs of another are 8½ inches wide.

KIRK OF NESS, North Yell.

This church is at the north-east angle of Yell, near the base of the ness bounding Cullavoe. The land is flat hereabouts, and near the sea level.

It is the most complete of the old churches of Shetland, and is said to have been dedicated to Olave or Olaf, the great warrior saint of the North. It is enclosed in a walled yard about 110 feet by 100 feet. (Fig. 120.)

It consists of nave and chancel, with bell-cot on the west gable, and lies nearly true east and west. The roof is gone, but the church was used down to 1750. (Fig. 121.)

[Image unavailable.]

Fig. 120.—Kirk of Ness. Plan.

The material is the grey stone of the district, placed at random, some of the blocks being very large, and the interstices filled with small stones.{152}

The nave is 20 feet 5 inches by 14 feet 10 inches inside. (Fig. 122.) The west end is 3 feet 6 inches or 3 feet 8 inches thick; the north and south walls about 3 feet 3 inches. The side walls are 11 feet 10 inches or 12 feet high from the floor. In the west end is a square-headed doorway,

[Image unavailable.]

Fig. 121.—Kirk of Ness. View from South-East.

2 feet 7 inches wide and 5 feet 4 inches high externally, with rectangular jambs rebated for a door. (Fig. 123.) The interior width is 3 feet 5 inches. The internal head is also square. Holes for the insertion of a wooden bar for securing the door remain in the north and south jambs. In the south wall, and

[Image unavailable.]

Fig. 122.—Kirk of Ness. Plan.

close to the west end of it, is another square-headed doorway, externally 1 foot 9 inches wide, and 5 feet 9 inches high, with internal head square as of west doorway, and bar-holes as before. (Fig. 124.) In the north wall is a square-headed window, of which the west side and the top are gone, owing to the west portion of the north wall having fallen down. This window is nearer the west than the east angle of the nave. In the south wall (Fig. 125) is a square-headed window, 3 feet by 1 foot 1 inch externally, splayed inwards to 3 feet 4 inches by 2 feet 2 inches. The external angles of the jambs are not chamfered, nor are there grooves or rebates{153} for glass. (See account of Egilsey.) The top of the sill is 7 inches above the level of the impost of the chancel arch. This window is nearer the east than the west angle of the nave, and its position shows that the south door is original. At 9 feet above the top of the west

[Image unavailable.]

Fig. 123.—Kirk of Ness. East and West Walls and Chancel Arch.

doorway (inside) is a square-headed window (see Fig. 123.), 3 feet by 1 foot 1 inch externally, splayed inward to 3 feet 2 inches by 2 feet 3 inches. At 2 feet 2 inches above this (outside) is another opening, 2 feet 4 inches wide, for a bell. The west face of the bell-cot is 7 feet 10 inches wide. The top is gone, but about 2 feet 3 inches in height of the jambs remain. The jambs are parallel both ways, and about 1 foot 6 inches thick from east to west. The ridge of the roof was about 3 feet higher than the bottom of the opening for the bell, and whether this opening{154} originally came through to the inside of the church is doubtful. Possibly this bell-cot is not original. The ridge of the roof was about 24 feet 7 inches above the floor under the chancel arch.

The chancel is 13 feet by 11 feet 3 inches inside. The north and south walls are 3 feet 2 inches, and the east one 3 feet 6 inches thick. The chancel arch (Figs. 123 and 126) has no projecting jambs, but springs from

[Image unavailable.]

Fig. 124.—Kirk of Ness. North and South Elevations.

the chancel walls at 5 feet 7 inches above the floor, and the feet of the arch are set 3 inches back on the jambs at the impost, as at Wyre and Linton in Orkney. (See account of church on Brough of Birsay.) The spring is 3 inches higher on the south than on the north. There is no cap. The arch is semicircular, and consists of one rectangular order 3 feet thick. The stones of the arch average 1 foot 6 inches in length, but are thin. The top of the gable is 19 feet above the impost. The abutments of this arch were not sufficient, and the nave and chancel walls have spread, and a considerable fissure has taken place at the crown of the arch. In the north wall, at the east corner, is a square-headed window, 2 feet by 1 foot externally, splayed inward to 2 feet 5 inches by 2 feet. In the south{155} wall, exactly opposite this window, is a similar one, 1 foot 7 inches by 1 foot. (See Figs. 124 and 125.) The top of the external opening of this window is 7 inches below the south impost of the chancel arch. The top of the window on the north is 3 inches lower than on the south—the same difference as in the two springs of the chancel arch. In the west angle of the nave and chancel is a similar window, 1 foot 9 inches

[Image unavailable.]

Fig. 125.—Kirk of Ness.

by 1 foot externally, and splayed as the others. This is at a trifle higher level than the last mentioned window.

Between these two windows on the south is a sedile (see Fig. 125.), 4 feet 7 inches high by 2 feet 1 inch wide, and 1 foot 8 inches deep, with a segmental head. The bottom is 1 foot 8 inches above the floor. It is evident that there was no step in the chancel, and no step at the altar.

On the north side, a little west of the window, is a square-headed recess (see Fig. 125.), 3 feet 4½ inches by 2 feet, and 1 foot 11 inches recessed—probably an ambry, possibly an eastern sepulchre.

In the east gable, at 8 feet 9 inches above the level of the impost of the chancel arch, is a window about 1 foot 3 inches by 11 inches, splayed{156} inward. The top of the gable is now 16 feet 9 inches above the level of the impost of chancel arch, but was originally a little higher—probably about 23 feet—above the level of the floor at the chancel arch.

What is the date of this church? The chancel is larger than of any of the churches described, and has a sedile and, perhaps, Easter sepulchre. The chancel arch resembles Egilsey, but is not part of a vault. It has

[Image unavailable.]

Fig. 126.—Kirk of Ness. View of Chancel Arch.

the peculiarity at the impost. The doors and windows are flat-headed. The former have rebates, which is not the primitive form, though Egilsey has them—the latter have the early form of jambs. Taking all the points, it may be assigned with probability to the fourteenth century.

The interior length of the nave is equal to the diagonal of the square of the width. The length of the chancel is that of an equilateral triangle on the east end of the nave. The height of chancel walls is equal to the width of the chancel.{157}

According to Mr. Irvine there was, a few years ago, a rude cross gravestone here, like those at Uya.

A bell, which in 1856 was lying on the shore at Cullyavoe, once hung at this church. It is said to have been obtained from a wrecked ship, but is evidently a church bell. It has an inscription in Dutch, and the date 1694. The late Mr. Irvine of Midbrigg had a small bell, said to have come from this church. It had no inscription.

Since 1856 the chancel arch and gable over it have fallen.

The church was surrounded with an enclosing wall.

CHURCH AT CULBINSBROUGH, Bressay.

This ruin is on the north-east coast of Bressay, on a small low promontory. It is enclosed in a “garth” or churchyard, the wall of which is ruinous, and which appears not to have been used for many years.

[Image unavailable.]

Fig. 127.—Church at Culbinsbrough. Plan.

The dedication is not known. It originally consisted of a nave, north and south transepts, and chancel, and lies about west by north and east by south. (Fig. 127.) There remain now only the lower portion of the north transept, lower portions of the chancel, and a small fragment of the east wall of the south transept. It is built of the grey stone of the locality in rude courses of moderate-sized stones. On the north side of the nave, and at the west end, is a modern wall about 3 feet high, but as{158} this is on the foundation of the original north wall, it is probable that it marks the extent westward of the old nave. Assuming this, the nave was 21 feet 6 inches by 10 feet inside. The walls were probably 2 feet 3 inches thick. The position of the doorway is not evident, but probably was in the west end. Traces of the south wall remain. The north transept is 12 feet north and south by 8 feet 6 inches east and west inside. The north wall is 2 feet 3 inches thick, and the east and west walls 2 feet thick. The north end is 9 feet high, and retains the window, which is square-headed (Fig. 128), 1 foot 9 inches high, and 1 foot 3 inches

[Image unavailable.]

Fig. 128.—Church at Culbinsbrough. East and North Elevations.

wide outside. It is slightly splayed inwards. The sill is 5 feet above the present ground, but the original level of the floor has not been ascertained.

The height of the eaves and of the original apex of gable cannot be ascertained, but it is probable that the eaves of the whole church were not more than about 7 feet high, and the ridges of roofs about 12 feet high.

The chancel is 6 feet east and west and 10 feet north and south inside. The walls 2 feet 7 inches to 3 feet thick. About 5 feet 6 inches in height of the east gable remains. The sill of the east window appears to have been 4 feet 7 inches above the ground outside—about the same level as the window in the north transept. The width and height of the east window cannot be ascertained as the gable is gone. Probably there were no arches at the cross. The proportion on which it was formed is not evident; but these proportions may be observed in it. The interior of the chancel is in the proportion of the vesica piscis. The length of the north transept is twice that of the chancel, and half that of the nave.{159} The interior has been used as a burial-place since the disuse of the church, and two altar tombs remain in the nave. One is without inscription, but the other is of a Dutch captain who died in 1636. The inscription is in Dutch. This is the only cross church in Orkney or Shetland of which any remains exist, and on that account is of importance. In this churchyard was found, about 1850, a very interesting tombstone, which has been presented to the Museum of the Society of Antiquaries of Scotland by the Rev. Dr. Hamilton of Bressay. This stone stood erect. It is 4 feet high, 1 foot 4½ inches wide at top, and 11 inches wide at bottom, and 1¾ inch thick. Both faces are ornamented with carving in low relief. On one face the upper portion contains a square of interlaced work, within which is a circle containing an interlaced cross. Below are two dogs, head to head, with their mouths open, and tails curled over their backs. Below them are two bishops, face to face, with low mitres, and holding pastoral staves. They resemble the bishops of the Norse chessmen. On the other face, in the upper part, is a circle of interlaced work. In the spandrils above it are two nondescript animals, with their mouths open, apparently eating a man—one the feet, the other the head. Below the circle are two bishops as on the other face, between them a man on horseback. Below there is a nondescript four-legged animal with its tail over its back—possibly a lion or dog. Other small spaces are filled with interlaced work. On the two edges is an inscription in Ogham characters, which has been the source of much discussion; but the stone is somewhat chipped, and the decipherers have not had a good chance. Amongst many translations is this—on one edge, “The cross of Natdods daughter here;” on the other edge, “Benres of the sons of the Druid here.” Probably this stone is of the ninth or beginning of the tenth century.

GENERAL CHARACTERISTICS.

There is no cross church in Orkney, and only one in Shetland.

In Ireland there is no circular, octagon, or cross church, except, of course, the cathedrals and some monastic churches.

There is no aisle in Orkney or Shetland.

There are no plinths or basements to any of these churches.

The doors are chiefly in the west ends. Both square and round heads occur. Several have no rebates. (See Birsay.) St. Ola, Deerness, and perhaps Uya have no chancels, but all the rest have decided chancels. There is no instance of a chancel door. Orphir, Egilsey, The Ness, Culbinsbrough, Norwick, Kirkaby, and Colvidale have or had chancel arches equal in width to the chancels. In England this fashion rarely occurs; where it does it is late. It is constructively weak.{160}

Enhallow has a chancel arch with projecting jambs of about the English proportion.

Birsay, Wyre, Linton, perhaps Uya, and probably Noss have or had very narrow chancel arches.

In our early churches the chancels were small in comparison with the naves, and in cathedrals the ritual choir was under the cross or west of it.

They elongated the choirs in the thirteenth century, and soon placed the ritual choir east of the cross.

Orphir and Egilsey had windows with circular heads. Birsay, Wyre, Enhallow, and Culbinsbrough had at least some windows with flat heads. The Ness has all flat. No instance remains of a double light, or of a transom, or of a triangular head, which is not unfrequent in Ireland.

At Egilsey, Enhallow, and the Ness are no grooves for glass or rebates, or external chamfers. At Orphir and Birsay are grooves and chamfers. (See account of Egilsey.) Of the six churches which retain the east ends—St. Ola, Orphir, Deerness, Wyre, Egilsey, and the Ness—four have no east window, except that in the latter there is a small opening high up in the east gable. In the early Irish churches it is very unusual not to have an east window. Probably no apse was without an east window.

As far as can be made out at present, there was no step to the chancel and no platform for the altar, except the inserted step and altar at Birsay. In some the chancel windows are singularly low, as at Wyre and Egilsey. No piscina remains, and only one sedile, but several ambries.

There are only four cases where we can judge of the pitch of the roofs. The Ness had a roof including about 85 degrees, Egilsey about 88 degrees, Enhallow the same, and Wyre about 95 degrees. Probably all had rude stepped coping on the gables.

MONUMENTS.

The grave stones found in connection with these churches are of four kinds.

1. Keel-shaped slabs placed horizontally on graves, as at Sandwick in Unst, sketched by Mr. Irvine.

2. Upright stones nearly rectangular, with crosses engraved on them, as at Sandwick, etched by Mr. Irvine, and at Norwick and some other places. This class includes the elaborate monument from Culbinsbrough.

3. The same shaped stones, without any ornamentation, found at many of the old burial-grounds.

4. Upright stones cut into the form of crosses, as at Uya.

Mr. Irvine has sent the following information:—“I believe from the{161} earliest times in Scotland the foot-stone of the grave was the chief stone, and not as now the head-stone, and that the east face of the foot-stone was the principal face to be attended to, from the idea that the dead rose at the resurrection to an upright position facing east. Compare the stone with the ancient incised markings from St. Peter’s Church, Orkney, now in the Edinburgh Museum, with the one I have etched from Sandwick, Unst, and I believe it will be seen that the keel stone existed to both. Therefore, I believe that the interment belonging to many of the standing stones will be found on the west side and not on the east.” The coffins were often formed of six or more slabs of stone.

PROPORTIONS.

The designs for churches in the ages of architecture were not made at random. Doubtless there existed certain rules of proportion; but doubtless they varied with times, places, and persons.

Various attempts have been made in modern times to discover these rules, and in some instances with apparent success. It unfortunately happens that we have not often an intact ground plan, and if the original plan was simple, the additions render it complex. In many cases these additions were made without any regard to the proportion of the original. It appears probable that these proportions were geometric rather than arithmetical—that is to say, made by simple operations of the compasses and rulers, rather than by any proportions of numbers. The small churches of the North are valuable from not having been altered by additions.

Though in the foregoing notes the proportions on which the churches were built may not have been ascertained in all cases, yet in some the coincidences are too remarkable to be chance. Although, no doubt, a system of proportions was extended to the elevations and certain details, yet as to most of these in the churches here enumerated we are in ignorance, because most of the superstructure is gone. It appears that there were, in fact, only two figures on which the proportions were founded—a circle, a square, and an equilateral triangle. For most purposes of proportion the circle and square are identical. The vesica piscis is two equilateral triangles on opposite sides of a common base, and hence equal in proportion to the half of one such triangle.

There is, however, one proportion in which a square is not equivalent to a circle—the diagonal of the square the proportion of which to the side is nearly as 10 to 7. The height or length of an equilateral triangle is to half its base nearly as 7 to 4.

All these proportions are somewhat flexible, inasmuch as they may include the side walls and exclude the end walls, or the reverse; or they may include both, or they may exclude both; or they may be applied in{162} one way to the nave, and in another to the chancel, and in another to the tower. But the proportion must not be deemed as ascertained unless the figure really fits within 2 or 3 inches.

DATES.

As to the dates of these buildings we have but little to guide us. Only fragments of the buildings are left, and those of the plainest description.

Scotch architecture has some mystifying peculiarities. Dates have been suggested from architectural and historical evidence for Orphir, Birsay, and Egilsey. Orphir, 1090-1160; Birsay, 1100; Egilsey, 1000. Wyre has been assigned to the twelfth or thirteenth, the Ness to the fourteenth, and St. Ola to the sixteenth century.

It may be fairly observed that there must have been churches erected in the fourteenth and fifteenth centuries. Where are the remains of them? Possibly some of the ruins described are of those centuries.

It does not appear impossible that from evidence yet to be collected, a nearer approximation to the dates of these buildings may be got.


As a supplement to the foregoing drawings and descriptions of the ruined churches of Orkney and Shetland by Sir Henry Dryden, we add an account, also kindly supplied by Sir Henry, of the chapel at Lybster, in Caithness, which has a strong affinity to the churches of the Orkneys, and drawings and description of the chapel on the island of Inch Kenneth, lying on the south-west of Mull.

CHAPEL AT LYBSTER, Parish of Reay, Caithness.

This is not the Lybster on the east coast.

This chapel (Fig. 129) was stated, in 1726, to be dedicated to St. Peter. It is described and illustrated by Muir in his Ecclesiastical Sketch of Caithness and Orkney, 1861. He states that it was dedicated to St. Mary.[135]

It consists of nave and chancel, both unroofed. (Fig. 130.) Muir, in his plan, places the chancel to the north of the nave, but it is in the usual position.

The nave is 17 feet 10 inches east and west, by 10 feet 11 inches north and south inside. The north wall of the nave is 3 degrees south of true west and north of true east, supposing the variation to be 24 degrees west of north. The walls of the west end and the east end of the nave are 4 feet 2 inches thick; the north and south walls of the nave are 3 feet 11 inches thick. The walls are of the whinstone of the district, in irregular courses, from 3 to 10 inches deep, and “spawled”—that is, made into courses by smaller stones. The north wall of the nave is 8 feet{163} high above the present ground level, and is apparently about its original height. The south wall is partly broken. The west wall is 11 feet 8

[Image unavailable.]

Fig. 129.—Chapel at Lybster. View from South-West.

[Image unavailable.]

Fig. 130.—Chapel at Lybster. Plan, South Elevation and Section.

{164}

inches, and the east wall 15 feet 2 inches above the present ground. The latter gable was about 1 foot 6 inches higher than at present, and the west gable, of course, level with it. I did not ascertain the original level of the floor, but it must have been at least a foot below the present ground, so that the total height of the gables was about 16 feet 2 inches.

[Image unavailable.]

Fig. 131.—Chapel at Lybster. West End, Doorway, and Chancel Entrance.

In the west end (Fig. 131) is an entrance 2 feet 3 inches wide at bottom and 1 foot 9 inches at top. The head is horizontal; the jambs are parallel, and there is no sign of hinges for a door. The jambs are now 3 feet 11 inches high. The soffit of the head is flush between the outside and the inside. Another entrance has been made in the south wall near the west end, but the wall is broken here, and the form of the head is uncertain. There is now no trace of a window, but one may have existed in the place of this doorway.{165}

The entrance to the chancel is 2 feet 9 inches wide at the bottom and 2 feet 1 inch at the head, which is flat, like the west entrance. The chancel is 11 feet 3 inches east and west, by 10 feet 9 inches north and south inside. The walls are 2 feet 4½ inches on the north and south and 2 feet 7 inches on the east. The walls are about 1 foot lower than the north wall of the nave. This chancel has been rebuilt, probably on the old foundation, and is used as a family burying-place.

There is no trace of an entrance or a window, but I think the wall has been rebuilt since the disuse of the chapel, so that the original chancel may have had a window. There is no stoup or ambry.

Planned 1871.

CHAPEL, EFFIGY, AND CROSS ON INCH KENNETH, Mull, Argyleshire.

Inch Kenneth is about half a mile across at the mouth of Loch na Keal, on the west side of Mull.

The chapel (Fig. 132) adjoins the burial-ground, which is on the south-east part of the island, and at 50 or 60 feet above the water.

[Image unavailable.]

Fig. 132.—Chapel on Inch Kenneth. View from North-East.

The ground falls sharply from the north-east to the south-west. The burial-ground is on the west of the chapel, and on higher ground. There is an enclosed burial-place adjoining the south side of the chapel for the Macleans of Brolas.

The chapel (Fig. 133) is a plain parallelogram, 40 feet 9 inches east and west by 19 feet 8 inches north and south inside. It is deflected 10{166}

[Image unavailable.]

Fig. 133.—Chapel on Inch Kenneth. Plan.

[Image unavailable.]

Fig. 134.—Chapel on Inch Kenneth. Section and North Elevation.

{167}

degrees 30 minutes to the north of true east, assuming the magnetic meridian to be 21 degrees west of true north.

It is of a light-coloured hard sandstone. It has long been unroofed, and is mutilated in other parts.

[Image unavailable.]

Fig. 135.—Chapel on Inch Kenneth. Details of Doorway.

The doorway (Fig. 134) is in the north wall, near the west end, on the side sheltered by the hill; but all the freestone has been taken out, except two stones of the inner order of the east jamb.

The jambs (Fig. 135) and arch were of two orders. Judging by the remains of wall it had no hood and no cap. I did not make out whether it had been a pointed or a half-circular arch, as there is only a small portion of the masonry fitting the back of the outer order above the west impost remaining to judge by. Probably pointed.

The sill of the doorway is covered by rubbish, and the whole of the interior is covered to about 2 feet depth. I had not opportunity for excavation.{168}

The east end (Fig. 136) remains to 15 feet high, a little above the eaves. The side walls (Fig. 137) are about 12 feet high, and the west wall remains to a little way up the gable.

[Image unavailable.]

Fig. 136.—Chapel on Inch Kenneth. East End—Exterior and Interior.

The facing of the south wall and the south-west angle have disappeared. The weakness of foundation and the position of the east end on a steep slope caused, at some period, the east end to lean outwards

[Image unavailable.]

Fig. 137.—Chapel on Inch Kenneth. South Elevation.

{169}

considerably; and to obviate further decay, large clasping buttresses (see Fig. 132.) were made at north-east and south-east angles, at some period much after the building of the chapel, but long ago.

In the east end are two plain lancets (Fig. 138), 4 feet 8 inches high and 8¾ inches wide, with wide splays to the inside.

There is no groove for glass, and so it probably was fixed in a wooden frame.

[Image unavailable.]

Fig. 138.—Chapel on Inch Kenneth. East Windows.

On the north is, near the east end, a square-headed light (Figs. 139, 140), 4 feet 8 inches by 1 foot. It has no glass groove. The internal head is not now arched, but probably was so at first.

On the south, and nearly opposite the last, is a light, 4 feet 8 inches by 9 inches, with a square head and internal arch. (See Fig. 140.)

Between this and the east wall is a projecting stone with hollow in it, but no drain. (See Fig. 139.) It is difficult to assign a date to this, but I think, probably, it is of fourteenth or fifteenth century.

In the centre of the chapel is a flat tombstone, with floriated decoration. In the burial-ground is a cross of slate, now prostrate. It appears of very late date, but has traditional form and ornaments.{170}

In the burial-place on the south side of chapel is a floriated tombstone (Fig. 141), also an effigy in relief (Fig. 142). This is 6 feet 7½ inches long from the top of the cap to the heels. The figure is in relief of about 4 inches average, flattened on the upper surface, like many others in that

[Image unavailable.]

Fig. 139.—Chapel on Inch Kenneth. North and South Windows—Interior.

[Image unavailable.]

Fig. 140.—Chapel on Inch Kenneth. South-East and North Windows—Exterior.

{171}

district, and is in the same stone as the slab, as usual. The slab is 7 feet 2¼ inches by 2 feet 8 inches, of hard freestone. He has no metal armour except his skull-cap or morion, which has a raised longitudinal rib and a narrow brim. The head rests on a simple pillow of 3 inches relief. He wears a quilted dress reaching to the knees, and over that, apparently a

[Image unavailable.]

Fig. 141.

surcoat. The face has no protection; the hair is long and curly, falling over the shoulders; he has no beard and no moustache. Below the chin falls the broad end of a tie (?) of some kind. The right arm, in a quilted sleeve, is extended by the side, and in the hand is a cannon (?) ball. Lying over the waist is a circular target, 1 foot in diameter and 2 inches thick, and on this is a shield (presumably to receive the arms either in sculpture or paint) of 10½ inches width and 1¼ inch thickness.{172}

The legs are in close-fitting hose, or perhaps bare, and the junction of the boots is not shown. The feet rest against a lion or dog. He has a waist-belt, from which depends a long, broad, straight sword, of equal width to the end. The upper part of the scabbard and the guard are

[Image unavailable.]

Fig. 142.

concealed by the target. The left arm holds the target, and is therefore partly concealed by it. Dependent from the belt at the right hip is the dirk. On each side of the head is a figure 10¼ inches high, much worn, in a loose cloak, and in the attitude of prayer. These may represent children or professional mourners.

It is possible that the shield which is in relief on the target is to represent a metal or a wooden plate fastened to the target.

It is likely that the cannon ball is a memorial of some incident.


Sir Henry Dryden, in reading over the foregoing description of the Orkney and Shetland churches after they were arranged in type, has requested the following note to be inserted:—

Note by Sir Henry Dryden.

All the plans and sections are much reduced from the originals; therefore, the statements of the scales are not true, but the scales given are correct, having been reduced with the plans.

Of the original drawings, some general plans are to the scale of ½ an inch to 40 feet, and ½ an inch to 10 feet. All the chapels are to the scale of ⅜ of an inch to 2 feet, doors and windows ⅜ to 6 inches, and mouldings ⅜ to 3 inches.

The elevations in the originals are tinted with sepia, and have no{173} masonry indicated. The artist who has prepared these reductions has indicated the masonry, but has made it much too regular, both in courses and size of stones.

The drawing here shown is a more accurate representation of the general style of the masonry.

[Image unavailable.]

The degrees and minutes prefixed to arrows are the readings of a prismatic compass, with 360 degrees at south, 90 degrees at west, and so on. All were taken west to east and east to west.

[Image unavailable.]

{174}

TRANSITION FROM CELTIC TO NORMAN ARCHITECTURE.

Having in the preceding chapters dealt with the churches in Scotland which may be regarded as of Celtic descent, we now turn to those in which the Roman or Norman influence begins to make itself apparent.

A few structures exist in Scotland in which both the Celtic and Norman influences can be traced, and which are interesting as examples of the transition from the one style to the other. We have noted in the foregoing descriptions the gradual introduction in the later Celtic churches of features characteristic of Norman work, such as round arched openings and upright jambs, not to mention the pointed and more advanced details of later examples. But the gradual approach of Norman architecture, and its encroachment on the Celtic forms, is more particularly noticeable in some of the early towers in the East of Scotland. In that part of the country of which the Frith of Tay forms the centre, and which was then the central region of Pictavia, there exists a series of early ecclesiastical towers, eight in number. Six of these towers are situated south of the Tay—three of them being on the south side of the Ochil Hills, and three on the north side. Those on the south side are the tower of St. Regulus at St. Andrews and the towers at Markinch and Dunblane; while the towers on the north side of the Ochils are at Abernethy, Muthill, and Dunning. The towers on the north side of the Tay are those at Brechin and Restennet. These places are all known to have been the sites of Culdee establishments, which were ultimately absorbed into the Roman system.

The towers of Abernethy and Brechin are round towers, similar in design to the round towers of Ireland.[136] These two towers contain many features which indicate their Irish derivation, while one of them—that at Abernethy—shows the impress of the Norman influence in its details.

The other towers above mentioned (which are described under their respective heads) are all square in plan; but that of Restennet shows considerable affinity with Celtic modes of construction. The Church of St. Regulus probably marks the next step in the Norman advance, while the remaining towers, although simple in details, are quite distinctly Norman in their features.

The Round Tower of Brechin is the one which approaches most{175} nearly to the Celtic or Irish forms. Its masonry is built with large stones, but they are not laid in regular courses. The doorway is some feet above the ground, and is ornamented with details quite Irish in character. This tower will be more fully described under the head of Brechin Cathedral.

ABERNETHY ROUND TOWER, Perthshire.

This remarkable edifice stands on the south-west side of the Churchyard of Abernethy, a small town situated at some distance from the south side of the Tay, and about three miles west from Newburgh. There can be no doubt that this peculiar form of round tower owes its existence to the presence of the Irish clergy, who returned to Scotland in the ninth century.[137] Abernethy was distinguished as an ecclesiastical site at a very early date, a church having been founded here in the sixth century by King Gastnaid[138] in honour of St. Bridget. Abernethy was then, and for a long period thereafter, the chief seat of the Government of Pictland. In the ninth century, Constantin, the son of Kenneth M‘Alpine, removed the see of the Scottish Bishopric from Dunkeld to Abernethy, where it remained till transferred by Kenneth III., 966-970, to St. Andrews.

[Image unavailable.]

Fig. 143.—Abernethy Tower. Plans.

The monastery at Abernethy was in the hands of a Culdee establishment in the eleventh century, but about 1200 the church was granted by William the Lion to his favourite Abbey of Arbroath, and the Abbey was secularised. In 1272, the monastery was revived as a Priory of Canons regular of St. Augustine.

The once important place of Abernethy has now dwindled into a small quiet country town, of which the ancient Round Tower is the only important feature.

The tower stands partly within the churchyard and partly without it, on the east side of the adjoining roadway, and the level of the ground{176} on the side next the latter is two or three feet deeper than that of the churchyard. The doorway (Fig. 143) is situated on the north side of the tower and within the burial-ground. It stands (Fig. 144) about 2 feet 6 inches above the ground, and has had in recent times a few steps built in front of it. The doorway has a plain fillet, 6 inches broad and projecting 2 inches, wrought on the jambs and round the circular arched head. It is 7 feet 8 inches from the sill to the crown of the arch. The jambs incline inwards, the opening being 2 feet 8 inches at the base, and 2 feet 4 inches at the spring of the arch. The round head is hollowed out of a single stone, and the thickness of the wall behind it is arched with several voussoirs. The jambs are each in two stones, which extend through the thickness of the wall. The wall is 3 feet 6 inches thick at the doorway, and the internal diameter of the tower at that level is 8 feet 2 inches.

The structure is over 72 feet in height, and is divided in the interior into six stories in the height by projecting string courses, 10 inches by 8 inches, bevelled on the lower side, which carried the joists. There was no staircase, access from floor to floor being by means of ladders. The second, third, and fourth stories are lighted by means of small round-headed and angle-headed windows, with inclined jambs.

The top story has four large windows facing the cardinal points. These windows are the most remarkable features of the edifice.

The openings have inclined jambs, being 1 foot 8 inches at base and 1 foot 5 inches at top, and the height from the sill to the springing is 4 feet 9 inches. Each window has two orders on the exterior—a plain inner order and an outer order, containing a shaft wrought on the jamb angle. The inner order has plain square-edged jambs and round arch. The outer order has also a square-edged round arch, springing from the caps of the shafts. This arch, however, is not concentric with the inner arch, but is carried considerably above it, leaving a flat space or shield between the arches. The caps and bases of the shafts are now much decayed, but they have a distinctly Norman character.

Above the highest string course the wall rises about two feet, so as to form a parapet. The diameter within this wall is 8 feet 8 inches, and the wall is about 2 feet 6 inches thick. The top of the wall is covered with broad stones, each the full width, which have an ogee moulding wrought on the outer edge.

The masonry of the tower is constructed in regular courses of ashlar work, carefully wrought to the circle. The lower twelve courses are of a hard grey freestone, and the portion above consists of a yellowish freestone of similar workmanship, which is softer, and has decayed considerably both on the exterior and interior. This difference in the materials of the lower and upper portions has led to the belief that the upper part has been rebuilt at a later date than the lower part.{177}

{178} 

[Image unavailable.]

Fig. 144.—Abernethy Tower. View from North-East.

The tower is slightly less in diameter at the top than at the bottom, but it tapers so little that the difference is scarcely observable.

In this tower we find features which belong both to the Celtic and Norman styles of building. The circular form of the tower and the disposition of its parts, the door raised some feet above the ground, the small windows in the lower stories, the four large windows in the top story, and the inclining jambs of door and windows, all point to the Irish origin of the design; while the distinctly Norman character of the details of the four upper windows, and the regular coursing and dressing of the masonry, show the influence of the Continental style of the twelfth century.

RESTENNET PRIORY, Forfarshire.

The remaining towers of the group above enumerated are all square on plan, and certain of them are connected with churches, and form a part of them. In these respects, therefore, they differ considerably from the towers of Abernethy and Brechin. They were all probably built during the twelfth century. Possibly Restennet is an exception. It is the only one of the square towers which has very marked features of a pre-Norman character. The outside dimensions of the Tower of Restennet (Fig. 145) are 15 feet 11 inches from north to south by 15 feet 6 inches from east to west, and the walls are 2 feet 8 inches in thickness.

There is, on the ground level of the tower, a narrow doorway in the south side, and a wide archway into the church through the east wall. There is also a wide archway in the west wall, opening into what has been a nave, added at a later date; but this opening appears to have been cut through at a late period.

The south doorway (Fig. 146) is 2 feet 4 inches wide by about 8 feet high. The soffit of the arch is cut out of single stones. The style of masonry used in the construction of the doorway is peculiar. The thickness of the wall is made up of three courses, the two outer ones being large slabs set on edge, and the interior course being built with smaller stones from a different quarry. The latter are of red and the former of grey sandstone. The outer and inner stones forming the lintel are hollowed out with a semi-circular arch opening. Round the exterior of the doorway there is a raised margin, about eight inches in breadth, with small projection, similar to the margin of the door at Abernethy. Except this ancient feature, there is no other attempt at decoration.

The arch in the east wall (Fig. 147) is 8 feet 4 inches wide, and is stated by Mr. Galloway[139] to have been 15 feet 8 inches high from the original floor level to the soffit. The space comprised within the tower{179}

[Image unavailable.]

Fig. 145.—Restennet Priory. Plan.

{180}

was by this archway included in the original church, which opened into it exactly like the archway of the tower at Dunning Church (q.v.), compared with which, however, this opening has a very archaic appearance.

[Image unavailable.]

Fig. 146.—Restennet Priory. South Doorway of Tower.

There are no floors in the tower, and no stair or means of access to the upper story, and the tower stands open from the ground to the apex of the spire.

Above the arches just described, the tower contains two stories (Fig. 148). In the first story there is a small opening on the east side, about 1 foot 8 inches wide and 4 feet 8 inches high, contained within the space of the choir roof; and on the south side there is another opening, about half this size. A small round opening, a few inches wide, in the west wall (Fig. 149) completes the lights on this story. The highest story, which is separated from the one below by a string course, contains an opening with a straight-sided arch on each face, and each of these openings has an external back-set fillet or margin.

How the tower was originally finished it is now impossible to say; but the string course above the second story is the present termination of the original work. The tower has a decided taper of about two feet in the height.

The building above the second story is probably a work of the fifteenth century, but there appears to be no written account of the erection of the spire. With the exception of the tower, no part of the original Church of Restennet remains, but a fragment of a return wall at the base of the south-east angle of the tower shows that it was connected with some building.

The existing ruin (see Fig. 145.) consists of a choir to the east of the tower. The south wall of this choir probably occupies the original position of the south wall of the ancient church. Assuming that the tower was in the centre of the west wall of the choir, the original church would be about 14 feet wide, and possibly entered through the tower by the narrow doorway in the south side.

The present choir is a first-pointed structure. It is roofless, but otherwise fairly entire, and measures about 67 feet long by 21 feet 6 inches wide internally. A part of the centre of the north wall appears to have been taken down and rebuilt at a late period. In a plan of the priory, made by Dr. Jamieson of Forfar, and preserved in the Hutton Collection (Advocates’ Library), the church is shown as being ruinous in 1796. The restoration which has since then taken place probably{181} accounts for the absence of the buttresses and of the hood mouldings of two of the rebuilt lancet windows on the north side (see Figs. 148 and 149). On the south side the buttresses have all been pulled down, but otherwise the wall remains intact, with first-pointed corbels along the top of the wall. In the east wall, the apex of which is gone (Fig. 150), there were

[Image unavailable.]

Fig. 147.—Restennet Priory. Archway in East Wall of Tower. [140]

three lancet windows, which had banded nook shafts in the interior, and a simple splay externally. At the east end, on the south side, there is a piscina (Fig. 151), a sedilia recess, a locker, and a tomb of late work. On the north side there has been a similar recessed tomb, now built up. The font shown in Fig. 152 is lying inside the choir, but its base is gone. It measures 2 feet 4 inches in external width by 1 foot 9 inches inside, and 18 inches high, with a square hole in the centre. It appears to be of late date.

The east wall has angle pilaster buttresses, with scarcely any projection to the east, but having a few inches projection to the north and{182}

{183} 

[Image unavailable.]

Fig. 148.—Restennet Priory. View from North-East.

south respectively. The south wall of the church appears, from a return and tuskings at the east end, to have continued further eastwards. In the south wall, adjoining the tower, there is a plain, round, arched doorway. As will be seen from the plan, the present choir is not in the line of the centre of the tower. Probably the existence of earlier monastic buildings on the south side may have prevented extension in that direction; and so, in order to get the width required for the new choir, it was necessary to extend the building northwards. From the presence of the sloping skew recess on the west face of the tower, it is obvious that the nave, which now no longer exists, and is only indicated by this roof mark, was built nearly in continuation of the walls of the choir. In Dr. Jamieson’s time, when the foundations of the nave existed, it was so, and is shown in his drawings running westwards to the west wall of the cloister, a distance of about 59 feet. The plan shows that the west enclosing wall is broken off just at the point where the west wall of the nave joined it.

[Image unavailable.]

Fig. 149.—Restennet Priory. View from North-West.

On the south side of the tower and choir there are raglets, indicating where the monastic buildings have abutted against them. Of these buildings all that exist are the boundary walls, shown on plan. These contain a doorway to{184} the south, and another to the west. They are quite plain, with segmental arched heads. In front of the west door lies a flat tombstone, probably

[Image unavailable.]

Fig. 150.—Restennet Priory. Interior of East End.

the one referred to by Dr. Jamieson as being dated 1553. Dr. Jamieson further mentions that the courtyard was paved, and that the present trees and shrubs, which encumber and confuse the place, are recent. In describing the situation of the priory, he says that it stands on ground which “juts out into a lake, or loch, of the same name. This, although now drained in part, has nearly surrounded it. There is a small neck on the west, where it is said there was a deep ditch and a drawbridge.”

[Image unavailable.]

Fig. 151.—Restennet Priory. Piscina.

The date of the foundation of the priory is not known, but it is recorded that David I. granted to the Prior and Canons 20s. yearly from the rents of the burgh of Monros, as well as the teinds of these rents.[141] The monastery was dedicated to St. Peter, and was of the Order of St. Augustine. Between 1159 and 1163 it was attached to Jedburgh by Malcolm {185}IV.

After the Reformation, it continued to be the parish church of Forfar, where, says Dr. Jamieson, there was only a private chapel, “an aisle of the old church, till it was pulled down a few weeks ago, as they are about to build a new church.”

[Image unavailable.]

Fig. 152.—Restennet Priory. Font.

Further particulars of the history of Restennet, and of its early Celtic importance, with a very minute and illustrated description, will be found in the Archæologia Scotica, Vol. V., Part 2. There can be no doubt of the great antiquity of the tower; and, as pointed out by Mr. Galloway in the above paper, its features associate it with Irish architecture. It may, therefore, be classed along with the towers of Abernethy and Brechin; but it is of a ruder, and possibly earlier, type than they are.

ST. REGULUS’, OR ST. RULE’S, St. Andrews, Fifeshire.

This remarkable edifice stands in the ancient churchyard at a distance of fully 100 feet south-east from the Cathedral of St. Andrews (q.v.) St. Regulus’ was, doubtless, the Cathedral Church of St. Andrews before the edifice, afterwards constructed as the Cathedral, and now ruinous, existed.

The early occupation of the site of St. Andrews for religious purposes is referred to in the Introduction.[142] Cellach was the first Bishop of St. Andrews, about the beginning of the tenth century. He was succeeded by ten Culdee Bishops, the last of whom was Fodath, who performed the ceremony of the marriage of Malcolm Canmore and Queen Margaret. The settlement of the Culdees became broken up and partly secularised, and under Bishop Robert (1121-59) Canons regular were introduced in 1144, who gradually absorbed the Culdees into their community.

Dr. Joseph Robertson[143] states it as his opinion that “no one acquainted with the progress of architecture, who diligently peruses the Historia B. Reguli et Fundationis Ecclesiæ S. Andreæ, will have much difficulty in identifying the building [of St. Regulus] with the small ‘basilica’ reared by Bishop Robert, an English Canon regular of the Order of St. Augustine, between the years 1127 and 1144.” Robert, Prior of Scone, was elected Bishop in the reign of Alexander I., but was not consecrated till the reign of David I., in 1138. The passage, referred to by Dr. Robertson is as follows:—

“But before the newly-elected Bishop (Robert, Prior of Scone) was consecrated, King Alexander, who was now in his last illness, left his{186} sole surviving brother, King David (who now is), heir both of the kingdom and of his devotion to the Church and his care of the poor. The undertakings of his late brother he endeavours to carry to completion. He has founded many monasteries for monks, canons, and nuns, and on these he has bestowed many benefactions; while to the servants and handmaids of Christ themselves he has done many acts of kindness, on which we cannot here enlarge. He obtained that the Bishop of St. Andrews, Robert, already mentioned, was consecrated by Thurstan, Archbishop of York. This being done, Robert returned to his see, and

[Image unavailable.]

Fig. 153.—St. Regulus Church. Plan.[144]

proceeded to put in practice what he had in his view—viz., the enlargement of his church, and its dedication to divine service. On this work he expended the seventh part of the altar dues which fell to him, reserving them for his own use. But inasmuch as the outlay was small, the building made correspondingly small progress, until, by the Divine favour and the influence of the King, offerings flowed in, and the work went on apace. The basilica was thus founded, and in great part constructed.”—Chronicles of the Picts and Scots, p. 191.

There can be little doubt that the building still surviving is the basilica of Bishop Robert. Its architectural features correspond with his date, and there is no other structure to which the above notice would apply. The similarity of St. Regulus’ in many points to the early churches of Northumbria has already been adverted to.[145]

The edifice (Fig. 153) consists of a chamber 26 feet long and 19 feet 10 inches wide internally, with walls about 34 feet high. The great height of the building, as compared with its width and length, is one of the points which connect it with the pre-Norman structures of Northumbria. There appears to have been an eastern apse, of which only portions of the foundations next the main structure now remain. A lofty square tower (Fig. 154) at the west end of the oblong chamber is the most striking feature of the building. It is about 110 feet high, and measures about 21 feet 4 inches square over the walls.{187}

[Image unavailable.]

Fig. 154.—St. Regulus’. West Side of Tower.

{188}

At the east end of the main building a lofty archway (Fig. 155) opens towards what was probably the apse. The opening is 9 feet wide by

[Image unavailable.]

Fig. 155.—St. Regulus’. View from South-East.

25 feet 6 inches high. Each jamb has three attached shafts (Fig. 156), with somewhat rude caps and bases, and bold mouldings in the arch. The existence of this archway clearly indicates that there was a building{189} towards the east of it, and we have no doubt that it was an apse; while the main building was the chancel, and the nave stood (as will be shown) to the west of the tower.

The tower is pierced with an archway in each of its east and west walls. The lower part of the west wall of the tower projects about 2 feet 2 inches on each side beyond the side walls, with a breadth of about 2 feet 5 inches, and finishes upwards in a roughly-tapering form at the level of the top of the western arch. (See Fig. 154.) These projecting portions of wall have somewhat the appearance of side buttresses to the tower, but they are more like the remains of the east wall of a nave, which now no longer exists. They have not the character of originally-built early buttresses, but have rather that of the remains of projecting walls, dressed up at a later period. Besides, it is a characteristic of the structure that it has no buttresses flanking the other arches. There is observable on the west face of the tower the mark of a roof. This mark, if produced on each side to about the level of the top of the chancel walls, would indicate the roof of a nave about ten or twelve feet wider than the tower. There seems to be no other way of explaining the mark of the roof and the projecting portions of the side walls except by supposing that there was at one time a nave to the west of the tower. This would also give a reason for the existence of the

[Image unavailable.]

Fig. 156.—St. Regulus’. Details of East Arch.

east and west arches in the tower, which otherwise are somewhat unintelligible.

The arch opening from the chancel to the tower is 9 feet 10 inches wide by 27 feet high, and is of a plainer description than the apse archway.

[Image unavailable.]

Fig. 157.—St. Regulus’. Arch Moulding of West Arch of Tower.

The jambs have a square recess or nook on each face of the wall with a shaft in each recess; and the arch above is quite plain, with square edges. The western arch, from the tower into the supposed nave, is shown in Fig. 154. It is 10 feet 4 inches wide by 28 feet high. Both of the archways in the tower are now built up. The moulding of the west arch, as far as visible, is shown in Fig. 157. The capitals of all the shafts are rather shapeless and clumsy, but the necking and arch mouldings are of good design. The arches are all slightly of the horse-shoe form.

The three-arched openings above described are all of about the same{190} dimensions, and as the two eastern ones cannot be called doorways, so neither can the western one be considered as merely the entrance doorway to the church, but would rather appear to be the arched opening from the nave into the tower and chancel. When we consider that this church was once a cathedral, as well as the church of a monastery, and also, perhaps, served the purpose of a parish church, it seems probable that it must have been a larger building than the simple oblong chamber to the east of the tower which now survives. Considerable discussion has taken place with reference to the probable arrangement of the plan. Some have supposed that the church consisted of the simple oblong chamber which still exists, with an eastern apse and western tower; while others maintain that the existing oblong was the choir, that there was a western nave, and that the tower was central. Sir G. Gilbert Scott points out that in the latter case St. Regulus’ would be parallel to Jarrow Church, while in the former case the church may have had a lofty western porch, as had those of Wearmouth and Barton-upon-Humber. Sir Gilbert, however, thinks that the large size of the western arch, and the mark of

[Image unavailable.]

Fig. 158.—St. Regulus. Belfry Window.

the roof on the tower, suggest a nave.[146] The seals of the church, dated 1204 and 1214, which are preserved at Durham, show a nave and chancel.

The chancel is lighted by four windows, two on each side, placed at about 14 feet above the ground. (See Fig. 155.) They are round headed, the circles being cut out of a single stone on the outside, but arched on the inside. The openings are 6 feet 6 inches high and 1 foot 10 inches wide, and have broad splays internally.

The building has a cornice at the wall-head, containing a series of simple corbels. A string course runs round the tower below the top story, and above it there is a belfry window on each face, about 3 feet wide by 8 feet 9 inches high. Each window is divided into two openings by a rounded centre shaft (Fig. 158), and there were round nook shafts at each side, but these have now fallen away. There are a few small openings on each face at different stages. The tower is crowned with a cornice, having two rows of simple corbels similar to those of the chancel cornice. On the east side there is an opening into the space which was covered by the chancel roof. The floors of the tower have been of timber, and there is one set-off in the inside of about 6 inches, at a height of about 64 feet. There was no access stair. At the north-west corner of the chancel, and at the wall-head level, there are two caps which have a very distinct appearance of being of first pointed date.{191}

NORMAN ARCHITECTURE.

A general description of the features which distinguish this style of architecture has been given in the Introduction,[147] together with a short summary of the Scottish structures in the Norman style.[148] The more minute features will be referred to in the descriptions of the various churches. It may, however, be pointed out that few structures survive in Scotland which exhibit elevations of façades, such as the east and west fronts of churches, or the north and south façades of transepts, which show the true Norman character. In all Norman churches of any importance in other countries the façades forming the end elevations in the above positions are composed of several stories, piled up one above the other. (See Fig. 17.) In the later styles, the design of the façade is generally composed of one predominating feature, such as a large traceried window, or a series of lofty lancets (like the Five Sisters of York), rising above a single lower story, which generally contains a doorway. But in Norman architecture the façades are usually divided up into a series of stories, one over the other—an arrangement which, to a certain extent, fails to give the impression of one large structure, such as is conveyed in the façades of the later Gothic styles.

In Scotland proper there is only one building of magnitude in which this storied style is preserved—viz., the Abbey Church of Kelso. The same features may, however, be still observed in the façades of the transepts of Kirkwall Cathedral, Orkney. At St. Andrews Cathedral the original storied Norman east end was subsequently altered. In other large Norman churches, such as Dunfermline Abbey, the façades have been removed or altered. The smaller churches in the Norman style are not of sufficient height to give expression to this peculiarity.

It has been shown in the preceding chapter that some of our early Celtic structures were transitional, and contained some signs of the approach of the Norman style; but after its introduction, in the twelfth century, that style at once became universal in the civilised parts of the country, and all the churches of that date of which any portions survive were erected in accordance with the Norman fashion. It has been often remarked that the twelfth century was the great church-building epoch in Scotland, as elsewhere, and the number of these Norman edifices still traceable in the south and east of the country is very large.

The parish churches are generally small and aisleless, most of them being single oblong chambers, with an eastern chancel, sometimes with an eastern apse, and occasionally there was a western tower. St. Nicholas’, Aberdeen, was cruciform, and had a central tower.{192}

During the Norman period monasticism prevailed, and almost all the large churches were conventual. These churches were always designed on the cruciform plan, and contained choir, nave, and north and south transept, each portion having side aisles, and the transepts usually only an eastern aisle. The small churches and side aisles were frequently vaulted, but the large churches appear to have been designed for wooden roofs.

The details and ornaments of the style are often very elaborate, and invariably correspond with those in use in England at, or rather earlier than, the corresponding period. In the early examples, the design was very simple, and ornament was sparingly used; but as time advanced the style was gradually enriched, until towards the close of the period the ornament became very elaborate, especially in the arched heads of doorways, as at Kelso, Jedburgh, and Dunfermline.

A common feature in Norman buildings was an arcade running round the walls below the windows. Almost every Norman structure of importance in Scotland contains this arcade, either in the interior or exterior, or both, and the caps and arches are generally elaborately and richly carved with ornaments. Here, and generally throughout Norman structures, the chevron or zig-zag enrichment is a characteristic feature. The other enrichments of the period in other countries consist of the billet, the bird’s beak, faceted sinkings, grotesque heads, rosettes, &c., all of which are found in the Scottish examples. The doorways are generally the points where the carving is richest, and it naturally followed that the doorways are often preserved where the other parts of the buildings are altered or rebuilt. The windows are always single, and simple in details.

Some of the towers above enumerated are amongst the earliest examples of Norman work which survive. They contain some reminiscences of the early defensive purpose of such structures. They are extremely simple in design, being square on plan, and carried up, without break or buttress, to the parapet, where they were finished with a gabled roof, forming the saddleback arrangement still preserved in the tower at Muthill.

The only break in the height is formed by string courses, which mark the unequal stories. A small wheel stair usually leads to the top. The doorway in some instances is placed several feet above the ground.

Amongst these towers are to be found most of the small fragments which still survive of the extensive building works encouraged by David I. in the first half of the twelfth century.

In the following descriptions the churches are arranged, as far as possible, in the order of their probable dates, commencing with the oldest and simplest, and continuing with the later and more elaborate examples.{193}

MARKINCH TOWER, Fifeshire.

The Church and Churchyard of Markinch stand on the top of a small hill, round the base of which lie the houses of the town. The church and its Norman tower are thus conspicuous objects as seen from the railway in approaching from Kirkcaldy, which is about seven miles distant to the southward. The inch, or island, is believed to have derived its name from having been formerly surrounded by a marsh.

[Image unavailable.]

Fig. 159.—Markinch Church Tower. Plans and Details.

A church was consecrated here in 1243, and dedicated to Saints John Baptist and Modrest. There was at one time a Culdee cell in this locality, but afterwards the church belonged to the Priory of St. Andrews.

The only part of the original structure which survives is the tower, which is undoubtedly an ancient Norman building.

It is nearly square on plan (Fig. 159), being 16 feet from north to south by 17 feet from east to west. The tower rises (Fig. 160) without a break (except a string course at each floor) to the height of four stories,{194}

{195} 

[Image unavailable.]

Fig. 160.—Markinch Tower. From South-West.

or 73 feet to the top of the parapet. The original entrance (Fig. 161) is by a door, two feet wide, at the north-west angle. The sill is now about two feet above the ground, but it doubtless stood several feet higher originally. From the doorway a wheel stair leads to the upper floors. The stair and upper floors were lighted by small windows, with round heads. These are now built up, except one in the south side, which has been changed into a trefoil head. The top story is lighted by a window in each face. Each of these windows (see Fig. 159.) consists of two openings, divided by a central shaft. On the exterior each opening is arched, with a small semi-circular arch, cut out of one stone; but in the interior both openings are spanned by one arch. The arrangement of the shafts is peculiar, the central shaft being placed so as to be in the centre of the abacus which carries the small arches, while the side shafts are wrought upon the angles of the jambs, and do not stand in the same plane as the central shaft. The caps are Norman, of the usual cushion form, with heavy abacus; but they and the bases are now much decayed.

The original mode of finishing the tower is now matter of conjecture, but it was doubtless (as stated by Mr. Muir) finished with a saddleback or gabled roof. It is now terminated with a modern cornice, above which a heavy modern spire has been erected, the top story being domed in order to carry the spire.

[Image unavailable.]

Fig. 161.—Markinch Tower. From North-East.

The top story is slightly diminished in size, and is set back over the string course. The lower string courses are of three-sided section, and have been{196} carved with the ordinary Norman enrichment of the lozenge (see Fig. 161.). These are now nearly wasted away. The church attached to the tower is entirely modern, and a modern doorway of entrance has been cut through the tower.

MUTHILL CHURCH, Perthshire.

The parish of Muthill lies about three miles south of Crieff. The ancient church, with its venerable tower, remained entire and in use as the parish church till about the year 1818, when, unfortunately, it was abandoned for a new building erected about that time. We are enabled to give a view[149] of the old church (Fig. 162), made by John Claude Nattes about the year 1799, from which it will be seen how eminently picturesque the old structure was, and how deplorable is the ruin which has overtaken it in the last half-century.[150]

The church (Fig. 163) consisted of the ancient square tower at the west end, with a nave having north and south aisles, and an aisleless choir. The tower is one of the best preserved of the Norman towers in Scotland. It is nearly square on plan, and measures about 15 feet 3 inches on each side, with walls about 3 feet 2 inches thick. It has two offsets (Fig. 164) on the outside of the two upper stories, and a string course above the lower stage. This string course is of the usual Norman section, and is ornamented with the lozenge pattern, except on the east face, where it is plain. The walls are built plumb inside, with neither corbels nor projecting courses to carry floors. The tower is about 51 feet 3 inches high from the ground to the eaves, and about 16 feet 6 inches more to the apex of the gables. The latter, with their crow-steps, doubtless belong to a late period; but they probably represent the original mode of termination of the tower. The roof must be at least some centuries old. It is constructed with timbers about seven inches square, in the manner shown on section (Fig. 165); they are fixed together with wooden pins. With slight repairs and attention, which it greatly{197}

[Image unavailable.]

Fig. 162.—Muthill Church. From South-East. (From Sketch by Nattes, about 1799.)

{198}

requires, the roof would last for generations to come. We may remark that several cracks in the masonry, which were very conspicuous when we sketched the tower about fifteen years ago, have now been filled up.

The belfry stage has an opening in each face. Those on the west and north sides (see Fig. 164.) consist of large arches, each containing two smaller ones. They are alike, and measure about 3 feet 5 inches wide on the inside by about 5 feet 10 inches high to top of large arch, and about 4 feet 2 inches of daylight. They are divided with a central octagonal shaft, with round responds set well back in the wall. The shafts have all cushion capitals, those of the responds being slightly higher than those of the central shafts. The arches springing from these caps are very rudely formed. Each of these two windows is wider at the springing of the arch

[Image unavailable.]

Fig. 163.—Muthill Church. Plan.

than at the base by about 2½ inches, and the responds taper even more. The latter have no bases, while the centre shafts have only the merest fillet. The south window (Fig. 166) has a square lintel. It is about 3 feet 8½ inches wide by 4 feet 1½ inch high, and has no taper. The opening is divided by a mullion, placed flush with the outer face of the wall. The east window is a single light, about 1 foot 7 inches wide inside, increasing by 2 inches to the outside. It is 3 feet 11 inches high, and is 2 inches wider at the lintel than at the base. We have minutely described these windows, as they are peculiar in their differences, and are undoubtedly original. We know of no reason why the north and west ones should be so much more ornamental than the other two.

This tower appears to have stood quite isolated, like that of Dunblane Cathedral. There is nothing to indicate that it was attached to any{199} building. There are no roof ragglets, but only the faintest mark caused by the pointing where the roof of the present ruin joined the walls. What position the tower occupied in regard to the early church, which

[Image unavailable.]

Fig. 164.—Muthill Church. View of Tower from North-West.

doubtless stood here, cannot now be ascertained. There seems to have been a doorway on the west face of the ground floor (see Fig. 164.), about 4 feet wide, formed with a flat arch about 7 feet 6 inches above the present level of the ground; but it is doubtful if the door came to the{200} level of the ground, which seems to have been raised in the course of centuries. A door opened into the church on the east side of the tower. It is about 3 feet wide by 6 feet 2 inches high, and has also a flat arch; but it is not easy to say whether these doors are original or are insertions. In the basement floor on the north and south sides there is a square-headed window, about 7 or 8 feet above the floor. The one on the north side is 12 inches wide by about 1 foot 10 inches high, and is divided by a mullion placed similarly to that in the south belfry window.

From the foregoing description, it seems not unlikely that the same ideas which prevailed with the builders of the round towers actuated the men who built this one. It probably contained the bells, and was used as a place of safety detached from the church.

The tower is enclosed on three sides by the church. From the east face of the tower the nave measures 46 feet 1 inch in length, and, including the tower, the central aisle of the nave measures 58 feet 10 inches in length by 20 feet 6 inches in width, and the total width inside, including the aisles, is 45 feet 5 inches. The total length of the church inside, including the chancel, is 105 feet 5 inches, and the width of the chancel is 16 feet.

[Image unavailable.]

Fig. 165.—Muthill Church. Plan and Section of Top Story of Tower.

The walls of the main nave are wider than the tower. The south aisle (see Fig. 166.) is divided into three bays, and the north aisle into two bays. The piers are octagonal, with corresponding responds. There are no capitals on the piers, and the bases have simple splays; the splayed arches of the arcade die against the piers (Fig. 167). From the floor to the springing of the arches is 6 feet 7½ inches, and to the soffit of the arch at the apex is 17 feet 4½ inches. The chancel arch, which is 13 feet 11 inches wide, is treated in a similar manner to the other arches, and is a few feet higher.

The roof of the church is shown on the sketch by Nattes as being in one span; so that there does not appear to have been a clerestory over the nave arcade. Now only the foundation of the north aisle wall remains, and the chancel walls are reduced to a few feet in height; while at the west end they have almost disappeared, showing how badly used the place has been during this century. The entrance to the church was by a square-lintelled doorway in the centre of the south wall of the nave, and there appears to have been a priests’ doorway in the south side of the{201}

[Image unavailable.]

Fig. 166.—Muthill Church. View from South-East.

{202}

chancel. There is a door through the east wall of the north aisle, which possibly led into what may have been a sacristy or vestry. At the west

[Image unavailable.]

Fig. 167.—Muthill Church. West Window and Respond.

end of the north aisle there seems to have been a chapel, lighted with a west window.

The windows of the church, of which three remain entire in the south

[Image unavailable.]

Fig. 168.—Muthill Church. Plan of Windows in South Aisle.

{203}

aisle (Fig. 168), contain three lights in each. They are of good design, and resemble windows in the north side of Dunblane Cathedral. The east window in the south aisle of the nave is completely demolished, and only one jamb remains of the west window of the north-west chapel. Over each of the end windows of the south aisle there are small pointed windows, widely splayed towards the

[Image unavailable.]

Fig. 169.—Muthill Church. Remains of Sedilia.

inside. One of these is shown in Fig. 164. An ambry at the east end of the south aisle, and a roughly-formed recess or ambry on the north side of the chancel, with the remains of a sedilia, complete the ecclesiastical appurtenances of the church, so far as they have been spared, if, indeed, the latter can be said to have been spared. It is situated in the usual place, near the east end of the chancel; but only a portion of the west corner remains. (Fig. 169). It is moulded, having a hollow set in a splay, with a stop chamfer above the seat level. How it was finished along the top nothing remains to indicate. There were three seats, graduated in height—an unusual feature in Scotland. The lowest seat, which is 1 foot 11 inches wide, is the narrowest; the centre one is 2 feet 3 inches; and the east one appears to have been the widest, but, the wall being broken down, the exact dimensions cannot be given.

Opposite the sedilia are the mutilated remains of two figures. (Fig. 170). They are life-size, and are cut out of one stone. They have

[Image unavailable.]

Fig. 170.—Muthill Church. Monument.

recently been protected by a strong iron hearse, and the following inscription on the wall behind tells who they were, viz.:—“In memory of Ada, daughter of Henry, Seneschal of Strathearn, and of Sir Muriel Drummond, first Knight of Concraig, who died 1362, whose effigies beneath have wasted by the long Lapse of Time. This Tablet has been{204} placed by their Descendants, the Drummonds of Megginch, late of Lennoch, in Strathearn. A.D., 1880.”

The edifice, now in ruins, was built by Michael Ochiltree, who was first Dean, then Bishop of Dunblane. Keith (Catalogue) says:—“It is to be supposed that he built the Church of Muthill while he was Dean only, that church belonging to the deanery.” He was Dean in 1425, and Bishop in 1430. When he died is not known, but he was Bishop in 1445, and his successor, Robert Lauder, was Bishop in 1449. Spottiswood says that Ochiltree was “a wealthy prelate, and well esteemed; and so purchased to his see a great part of the forfeited lands of Strathearn, adorned the Cathedral of Dunblane, built the bridge of Knaik and Machant, with the Church of Muthill, and did in his time divers other good works.” He crowned James II. in Holyrood in 1437, and his effigy is shown in the nave of Dunblane Cathedral.

ST. SERF’S, DUNNING,[151] Perthshire.

The village of Dunning is situated in Lower Strathearn, about 1¾ mile south-east of the railway station of the same name. The following historical facts connected with the church and district are from a scarce “History of Dunning,” by the late Rev. John Wilson, minister of the parish.

“Dunning,” Mr. Wilson says, “when first heard of in authentic history, formed part of the ancient Stewartry or Earldom of Strathearn, and dates back to a remote antiquity,” the Earls or Courts Palatine of Strathearn dating from before the Norman Conquest. When the foreign immigrants arrived in Scotland, in the twelfth century, under David I., “there were families of the ancient Scottish or Celtic blood who held their own, and maintained their native customs amid the new-fangled innovations of the Saxon and Norman chivalry. One of the most famous of these native magnates was Malis, Earl of Strathearn, who acted a prominent part in the disastrous Battle of the Standard.”

In the course of time this reserve on the part of the native nobles wore away, and we find that Gilbert, the grandson of Malis, “took charters from the king for the lands which his fathers had held by their swords. He connected himself by marriage with the new-comers, and rivalled the most zealous of the followers of King David in his munificence to the Church.” He “richly endowed the neighbouring Abbey of Canons Regular at Inchaffray, annexing to it the tithes of many of the surrounding parishes,” as is shown by the foundation charter of the Abbey in the library of the Earl of Kinnoull, “dated in the year 1200 from the incarnation of our Lord, in the thirty-fifth year of the reign of King William.{205}

[Image unavailable.]

Fig. 171.—Tower of St. Serf’s, Dunning. From North-West.

{206}

In a charter of confirmation, nineteen years later, Gilbert, in addition to his former liberality, grants to Inchaffray, “Ecclesiam sancti servani de Dunnyne,” the “church dedicated to St. Servanus, or Serf, at Dunning;” so that we have here proof of the existence of a church at Dunning in the year 1219, and it may be inferred that it did not exist in the year 1200, from its not being mentioned in the charters of that year. The date, therefore, of the erection of this church is narrowed to the early years of the thirteenth century, and there need be no hesitation in assigning to that time the present tower and certain other portions of

[Image unavailable.]

Fig. 172.—St. Serf’s, Dunning. Plan.

the structure. This tower, although similar in general form to those at Muthill and Dunblane, is considerably later in date. It is an example of Norman work continuing to be used in Scotland for some years after 1200, the pointed form of the arch being the only indication of the coming change of style.

The tower (Fig. 171), which is of Norman architecture, is placed at the west end of the church (Fig. 172). It is built in three unequal tapering stages, and without buttresses, to a height of about 75 feet to the ridge. The two stories above the church roof have small square-lintelled windows, but in the belfry stage double windows are introduced (Fig. 173). Both lights are contained within a plain square-edged round arch, without imposts, and the two lights, which have plain round arches, are separated by a central shaft with cushion cap. The crow-stepped gablets of the saddle-backed roof are probably of later date, but they, no doubt, indicate the original style of finishing the tower. The turret stair, shown on plan (see Fig. 172.) stops about half-way up, access above being obtained by wooden ladders. The elaborately-carved and pointed archway (Fig. 174), opening from the tower into the church, is a most noteworthy{207}

[Image unavailable.]

Fig. 173.—St. Serf’s, Dunning. South-East View of Tower.

{208}

[Image unavailable.]

Fig. 174.—St. Serf’s, Dunning. Archway in Tower.

{209}

[Image unavailable.]

Fig. 175.—St. Serf’s, Dunning. Plan of Tower and Detail of Archway.

{210}

feature, and was quite concealed from view till disclosed during the course of some recent repairs. Figs. 175, 176, and 177 show the details of this archway.

[Image unavailable.]

Fig. 176.—St. Serf’s, Dunning. Details of Arch.

Considerable portions of the old church still remain. The building,

[Image unavailable.]

Fig. 177.—St. Serf’s, Dunning. Apex of Archway.

as it now stands, is 68 feet long by 25 feet wide on the outside at the east end, and 26 feet 9 inches at the west end. The total length, including the tower, is 82 feet, the height of which to the ridge is 75 feet.

The church has been greatly altered at various times; an aisle has been added on the north side, and the ancient north doorway (Fig. 178) has been disfigured and almost concealed by an outside staircase being built across it. The west gable wall of the church, however, and a good part of the north wall and the east wall are original. The ancient corbels at the north parapet{211} still survive (see Fig. 178.), and the raggle of the original roof is seen against the east side of the tower (see Fig. 173.). It is thus quite evident that the existing building is in great part on the site of the Ecclesia

[Image unavailable.]

Fig. 178.—St. Serf’s, Dunning. Doorway, &c., on North Side.

sancti servani de Dunnyne. There appears to have been a chancel, as Mr. Thomson informs us that during alterations about twenty-five years ago the bases of the pillars were found in situ.{212}

CRUGGLETON CHURCH, Wigtonshire.

The parish of Cruggleton now forms part of the parish of Sorbie, with which it was united in the seventeenth century. The old church of Cruggleton is situated near the coast about three miles from Garleston,

[Image unavailable.]

Fig. 179.—Cruggleton Church. Chancel Arch, from West.

{213}

and about the same distance from Whithorn, to the priory at which it belonged before the Reformation. The church of Cruggleton, being abandoned, fell into decay. The view (Fig. 179), for which we have to thank Mr. Galloway, shows its condition before it was recently restored by the Marquis of Bute, under Mr. Galloway’s careful superintendence. The building is still surrounded by its burial-ground. The plan (Fig. 181) shows a simple oblong church, 34 feet in length by 20 feet in width, with an oblong chancel 20 feet 3 inches long by 16 feet wide. The side walls were considerably damaged, but enough of them remained

[Image unavailable.]

Fig. 180.—Cruggleton Church. Chancel Arch. From South-East.

to enable the outline to be distinctly traced. The best preserved and most important feature was the chancel arch, which was 8 feet in width. Its architecture, which was extremely simple, was of the early Norman style. It had three orders on the side next the nave (see Fig. 179.), each side having two nook shafts, built in courses and provided with cushion caps. The inner jambs were plain, and the aperture in the wall was simply faced with a square ingoing of ashlar, and enclosed on the side next the chancel (Fig. 180) with a single square-edged arch springing from a very plain impost.{214}

Mr. Muir points out that when he visited the church the walls, “except the west one, which wants the gable, are at about their full height; but

[Image unavailable.]

Fig. 181.—Cruggleton Church. Plan.

most of the dressed stones have been torn from the corners of both compartments, the chancel arch and other parts easily got at.” He could not discern traces of there having

[Image unavailable.]

Fig. 182.—Cruggleton Church. North Doorway as Restored.

ever been more than two windows, “that on the east a small and very plain round headed one, widely splayed within, and the west one of the same shape, but much broader, and set square in the wall.” In the restoration carried out by Mr. Galloway great care has been taken to restore every part (so far as precedent could be obtained) to its original condition. As an example of Mr. Galloway’s patient research we may quote his account of the steps by which the original design of the south doorway was ascertained. “To begin with, a stone or two of the internal sconsions remained in situ. This gave the position and size internally of the long demolished doorway. Part of the paving and massive rubble steps at the outside{215} also remained. Of the external features there seemed at first to be no trace. The discovery of one stone threw a flood of light on it. This was the base of a column which had never been shifted out of its position, but simply lifted and laid on its side, with the bottom bed outwards, so as to look like an ordinary courser. I also found about the same place several plain arch stones, also a capital of simple form, and from these materials, and especially the base found in situ, there could be no doubt that the external features were a plain ring like that of the chancel arch carried on engaged columns. In taking down some of a dry stone dyke a large rybat and an arch stone checked and chamfered were found, which could only be part of the actual doorway. The only uncertainty is the height; the original may have been lower, but we cannot be certain. I adhered to the proportions usual in other examples.” Fig. 182 shows the restored doorway, “a recovery out of the long forgotten past.”

MONYMUSK CHURCH, Aberdeenshire.

A few remains of the ancient church of Monymusk still survive and are incorporated with the modern church now erected on the old site. The village is situated in the valley of the Don, about one mile from the station of the branch railway to Alford, and is about seven miles up the valley from Kintore Junction. Monymusk is a place of great antiquity, being one of the oldest seats of the Culdees in the North of Scotland. A church is said to have been founded here by Malcolm Canmore, who

[Image unavailable.]

Fig. 183.—Monymusk Church. Plan.

vowed it to St. Andrew, and marked off the tower with his spear before engaging in battle against the Mormaer of Moray. Dr. Skene[152] points out that the community of Keledei at Monimusc were connected with St. Andrews, having probably been founded by the Bishop of St. Andrews. The church here, like that at St. Andrews, was dedicated to St. Mary. The Culdees first appear at Monymusk in 1170, and it is said that Gilchrist, Earl of Mar (1199-1207), built them a convent on condition{216} that they should subject themselves to canonical rule. Disputes having arisen between the Culdees and the Bishop of St. Andrews, an arrangement was finally come to, by which the Keledei were allowed to retain their lands and dues, they promising to do nothing to the prejudice of the church of St. Andrews or the parish church of Monymusk. They were thus brought under the more direct control of the Bishop who is called the

[Image unavailable.]

Fig. 184.—Monymusk Church. View from South-West.

founder of their house, and they were thus assimilated to the state into which the Keledei of St. Andrews had been brought. Like them, they consisted of a prior or head, with twelve members, and, like them, were excluded from all parochial functions. In 1245 the Keledei of Monymusk had entirely disappeared, and instead we have a confirmation by Pope Innocent II. to the “prior and convent of Monymusk of the Order of St. Augustine.{217}

The remains of the ancient Norman church establish the antiquity of the foundation. These consist of the lower part of the tower and the chancel arch. The church, as it now stands (Fig. 183), is a plain oblong modern structure 45 feet in length by 20 feet 3 inches in width internally, with a north wing or aisle, and galleries in the north, west, and east divisions entered from outside stairs. The ancient tower at the west end and the ancient chancel arch at the east end clearly fix the length of the original structure, and the modern side walls probably mark the position of the original side walls. To the east of the chancel arch there is an apartment about 15 feet square, used as a vestry, and in continuation of this structure to the eastward are the roofless walls of a building 34 feet in length. This enclosure is used as a burial-place. It has a modern doorway in the north wall, and all the walls are so covered with ivy that no traces of ancient work, if such exist, can be discovered.

[Image unavailable.]

Fig. 185.—Monymusk Church. Chancel Arch.

The west tower (Fig. 184) is 22 feet by 23 feet externally. It appears to have been almost entirely rebuilt, except the doorway in the west wall, which seems to be ancient. It has plain square jambs and round arch head, with hood mould enclosing the arch stones. The opening in the west wall of the tower leading into the church has been by a round archway 9 feet in width, now built up. This wall has been much altered, but there appear to have been Norman imposts to the arch. The chancel arch (Fig. 185) is 8 feet 6 inches wide. It has had a large attached centre{218} shaft and two smaller side shafts in each jamb. The north centre shaft has been removed and a wooden substitute introduced. The shafts have all had Norman caps of the cushion pattern (see enlarged sketch in Fig. 185.), but they are now so battered as to be scarcely distinguishable. The arch is much concealed under the east gallery. To the right of it is a monumental tablet of the seventeenth century, which bears the arms of Leslie and Forbes impaled.

From the style of the architecture of the Norman remains, it seems most probable that they form part of the convent erected by the Earl of Mar in the beginning of the thirteenth century.

ST. BRANDON’S, Birnie, Morayshire.

Birnie is believed to have been the original seat of the Bishop of Moray before he migrated, in the first place, to Kineddar, then to Spynie, and finally to Elgin. Simeon, the fourth Bishop, was buried here in 1184. The church is situated about three miles south from Elgin, near the river Lossie, and the road to it from Elgin passes through a pleasant, well cultivated country, diversified with numerous undulations and woods.

[Image unavailable.]

Fig. 186.—Birnie Church. Plan.

The church, which is dedicated to St. Brandon, stands on the top of a small alluvial hill and is conspicuous from a distance. It is evidently ancient, and, although perfectly plain externally, impresses one at sight, from the nature of its masonry, as being of Norman workmanship. The stone work is all of square dressed freestone ashlar, both externally and internally. The west wall was rebuilt in 1734 (the date on the belfry), when the church was shortened by a few feet, and although the old materials were reused, the inferiority of the new workmanship to the old is very apparent.

As it now stands, the edifice (Fig. 186) consists of nave and chancel, without aisles. The former measures 42 feet long by 18 feet 6 inches wide internally, and the latter is 16 feet long by 13 feet wide. The{219} nave has a doorway in the south wall, and another immediately opposite it in the north wall. The chancel has a small round-headed window in each of the north and south walls, and it is remarkable that there is no window in the east wall. There is also a doorway in the south wall of the chancel, which has evidently been added or enlarged at a comparatively late period. Every part of the building, both externally and internally, is perfectly plain. The only portion which presents the smallest approach to ornament is the chancel arch (Fig. 187). The opening is 7 feet 6 inches in width, and is flanked at each side by a substantial semi-circular attached shaft, which has a moulded base and a heavy Norman cap of the pattern founded on the cushion, with

[Image unavailable.]

Fig. 187.—Birnie Church. Chancel Arch and Font.

numerous subdivisions. The upper part of the cap has also a small stepped ornament, similar to what exists at Jedburgh and elsewhere. The square abacus of the caps carries an arch which forms one square order, and the angles of the jambs support another square order on each side of the first. The architecture, though simple, is good, and, together with the chancel arch, indicates a rather advanced date in the Norman period, probably towards the end of the twelfth century. Within the chancel arch there stands a very interesting relic of Norman design, probably of older date than the church. This is the stone font, the upper part of which consists of a semi-hemispherical stone basin, with{220} portions cut off vertically, like a cushion cap, while the top plinth has small portions at the angles cut off, thus making it an irregular octagon. The pedestal on which the basin rests is circular, and is fluted with small spirals passing round it. This, we understand, was supplied recently.

The church also contains a very rare and interesting specimen of the ancient square shaped Celtic bell, which may possibly indicate that the present church was preceded by a Celtic monastery, of which this is a relic, but of which no record remains.

ST. ORAN’S CHAPEL, Iona, Argyllshire.

St. Oran’s Chapel is the name given to a small edifice which stands in the ancient burial-ground situated a short distance south-west from the cathedral. The name of the churchyard is “Relig Oran,” being so called from Oran, one of St. Columba’s companions, who was probably the first of his followers who died on the island.

As stated in the Introduction,[153] this chapel is supposed by Dr. Reeves to have been built by Queen Margaret about 1074. The chapel (Fig. 188) is a plain oblong, 30 feet long by 16 feet wide internally. As often happens in West Highland chapels, there is no window in the east wall.

[Image unavailable.]

Fig. 188.—St. Oran’s Chapel. Plan.

The only light was obtained from two narrow windows near the east end, one in the north and the other in the south wall, immediately opposite one another.

The entrance doorway (Fig. 189) is in the west wall. It is more elaborate than most of the West Highland chapels, having (Fig. 190) two nook shafts on each side with plain cushion caps, surmounted by a semi-circular arch in two orders with a label, all of which have been elaborately carved with Norman enrichments. Those of the label consist of a series of round and rather pointed knobs. The outer order seems to have been carved with a bird’s head ornament, and the inner order with a kind of chevron. All the carved work, however, is greatly decayed by exposure to the weather. The building has a gable at each end, and has had a wooden{221} roof. In the interior of the south wall a somewhat elaborate monument (Fig. 191) has been inserted, which, from its style, is evidently of late date. The canopy consists of two orders, one of an ogee form, with weather table, which has been ornamented with crockets, and has a crucifixion introduced in the pinnacle at the top of the arch. The label terminations at each side

[Image unavailable.]

Fig. 189.—St. Oran’s Chapel. View from West.

consist of animals like lions of an exaggerated size. The inner arch has a large cusp which has been filled with Celtic carved scroll work, but it is now much decayed. A broken piscina stands at the west side of the monument. A number of very interesting and finely carved Celtic monumental slabs are preserved in the chapel, and a great many more, some of{222}

[Image unavailable.]

Fig. 190.—St. Oran’s Chapel. West Doorway.

{223}

them said to be the monuments of Scottish, Irish, and Norwegian kings, lie exposed in the churchyard, and are gradually wasting away. They are all elaborately carved with the floral ornament peculiar to this part of the country, while some also contain the dog-tooth ornament, which was revived here at a late date. This will be further referred to in connection with Iona Cathedral.

[Image unavailable.]

Fig. 191.—St. Oran’s Chapel. Monument.

Mr. Romilly Allen has shown that the Norman carved work in England was executed between 1135 and 1190, and that hardly any carving exists on churches of an earlier date. It could, therefore, not be looked for here till towards the end of the twelfth century. The carved work in the west doorway of the chapel, being of a somewhat advanced character of ornament, can, therefore, scarcely be earlier than about the beginning of the thirteenth century.{224}

THE CHAPEL IN EDINBURGH CASTLE, KNOWN AS “ST. MARGARET’S CHAPEL.”

When treating of Edinburgh Castle in the Castellated and Domestic Architecture of Scotland,[154] this chapel was briefly described and illustrated; but it has been thought of sufficient importance to be included in this volume, with additional illustrations[155] and descriptive matter.

[Image unavailable.]

Fig. 192.—St. Margaret’s Chapel, Edinburgh Castle. Plan and Sections.

{225}

The exterior walls of the chapel (Fig. 192) form an oblong, measuring 31 feet 7 inches from east to west, by 16 feet in width at the east end and 14 feet 4 inches at the west end. The angles of the structure are thus not right angles. Although the building is extremely simple in its external aspect, it is more ornamental and of a more developed form of plan in the

[Image unavailable.]

Fig. 193.—St. Margaret’s Chapel, Edinburgh Castle. Elevations.

interior. The plan comprises a nave with a chancel arch, and a chancel which has a round apse formed within the square east end of the exterior. The nave is 15 feet 10 inches long by 10 feet 4 inches and 9 feet 9 inches wide at the east and west ends respectively. The chancel is 9 feet 7½ inches long, and the same width at the west end. The total interior{226} length is 27 feet 4½ inches. The nave is waggon vaulted, without ribs; and the apse is roofed with a vault forming the quadrant of a dome. The nave vault is about 10 feet 8 inches high. (See sections, Fig. 192.)

The chapel stands on the extreme summit of the Castle rock, and the rock which is seen rising against it on all sides, except the north (on which side the level outside is nearly the same as that of the floor), has, it is understood, in recent years been partially cut away on the south, east, and west sides. (Fig. 193.) This operation has to be kept in view in considering the masonry of the exterior walls, for on those three sides there has necessarily been a certain amount of underbuilding, which is consequently of a much more modern character than Norman masonry.

[Image unavailable.]

Fig. 194.—St. Margaret’s Chapel, Edinburgh Castle. View from South-West.

The genuine surviving Norman masonry begins below the line of the south windows (see Fig. 194.). The first two or three courses, which extend up to the sills of the south windows, are built of reddish stone, above which are five courses of a bluish grey stone, the upper course being above the windows. All the masonry above that level on the south and north sides is later work.

The masonry of the north and east sides has been greatly interfered with, as has also that of the west end, where, however, there are several consecutive Norman courses. The east wall appears to have been carried to a greater height than the other walls (Fig. 194), as if some higher building had been attached to the chapel.{227}

The alterations above referred to show that the side and end walls have been raised, and we have no doubt that the upper part of the west gable above the window, with the ridge course, is modern, or at least of a date long subsequent to the original building.

The present porch in front of the entrance door on the north side, near the west end, is quite modern, although the doorway itself is ancient. A

[Image unavailable.]

Fig. 195.—St. Margaret’s Chapel, Edinburgh Castle. Elevation of Chancel Arch.

square-headed doorway, with splayed opening, has, possibly in the sixteenth or seventeenth centuries, been cut through the west wall (see Fig. 194.). There are indications of a narrow doorway having formerly opened into the chancel on the north side. It is now built up, and forms an ambry on the inside. (See Fig. 192.)

There are three windows in the south wall, one of them being in the{228} chancel. There is also a window in each of the end walls, the one in the west end being at a considerably higher level than the other (see Fig. 194.). All the windows are splayed widely on the inside, and slightly so on the outside, and they are round arched. They are all about 8 inches wide by about 2 feet high. The two westmost windows in the south

[Image unavailable.]

Fig. 196.—St. Margaret’s Chapel, Edinburgh Castle. Chancel Arch Details.

wall, and the high window in the west gable, give light to the nave; the east window in the south wall, and that in the east wall, light the chancel, the former being in the south side, and the latter in the centre of the circular apse.{229}

There is a locker on the north side of the chancel, and a piscina projects, without any recess in the wall, from the south side. This piscina

[Image unavailable.]

Fig. 197.—St. Margaret’s Chapel, Edinburgh Castle. Chancel Arch.

has a very new look, as if it had been rewrought or renewed; but we have no reason to doubt but that it faithfully represents the original piscina. It has the usual drain.{230}

The chancel arch (Fig. 195), while quite in proportion to the chapel, is little larger than an ordinary doorway. Its opening measures 5 feet 1 inch wide by 6 feet 4 inches to the springing of the arch, and 9 feet in height, measuring from the nave floor to the soffit of the arch, and there is a step up to the chancel. Each jamb (Fig. 196) has two monolithic shafts, set in nooks, with cushion cups. The arch, which is in two corresponding orders, is decorated with the ordinary chevron design. (Fig. 197.) Enclosing the arch is a label moulding, enriched with a lozenge pattern. The arch on the chancel side is quite plain.

The arched roof of the nave, which is built with carefully-dressed stones, seems to be of a later date than the walls, the masonry being finer, and of a different and lighter coloured stone.

The existence of this chapel was long lost sight of, till the late Sir Daniel Wilson, in the course of his explorations in Old Edinburgh, discovered the true nature of the building. He thinks that it is in all probability the chapel used by Queen Margaret during her residence in the Castle before her death in 1093, and that it is probably the most ancient chapel in Scotland. It does not, however, appear to be a very early specimen of Norman work, but rather a fairly-advanced example of the style, both in plan and decoration. Had the chapel been erected in the eleventh century, it would certainly have been of a much ruder style of architecture. No Norman building of that period can be shown to exist in Scotland. Sir Daniel supposes it to be earlier than the Norman part of Holyrood, which was founded in 1128; though probably no part was erected till a considerable time thereafter. Now, the doorway on the south side of Holyrood (the only Norman portion of that building remaining) is not unlike the chancel arch here. The caps of the shafts, the chevron decoration of the arches, and the enriched label are all similar in design, and there is no reason whatever for supposing the one to be older than the other.

After the chapel was discovered, it was intended to be used for its original purpose; a font was gifted to it, and the windows were filled with stained glass. It has now, however, degenerated into a shop for the sale of nicknacks to tourists.

DUNFERMLINE ABBEY, Fifeshire.

Situated north of the Forth, or “Scots Water,” in the heart of the old Pictish kingdom, Dunfermline was from an early period occupied as a secure and pleasant site by the kings of Scotland. Here Malcolm Canmore had his tower (of which a few crumbling remains still survive), and here he entertained the royal fugitives from England, and married the Princess Margaret, one of these refugees, in 1070.{231}

The King and Queen ended their lives in 1093, within a few days of each other—the first at the siege of Alnwick, and the other in Edinburgh Castle.

According to Turgot, her confessor and biographer, Queen Margaret, immediately after her marriage, founded a church “in that place where the nuptials were celebrated.” This church was dedicated to the Holy Trinity in 1074. It became the place of royal sepulture, and Queen Margaret was buried there a few days after her death. From that time onwards there are continuous references to grants to the Church of the Holy Trinity, and to interments of royal personages therein.

As no notice has been preserved of the erection of any new church till the building of the choir in the first quarter of the thirteenth century, it has been supposed that the nave of the existing structure (which is in the Norman style) may have been the church founded and erected by Queen Margaret. But the style of the building forbids this supposition. None of the English cathedrals were founded till the end of the eleventh century, and few were carried out till the expiry of the first quarter of the twelfth century. Scotland would certainly not be in advance of England in its style of architecture, and we know that little, if any, Norman work was executed in this country till the days of David I. Professor Innes is, therefore, no doubt right when he says—“The original church of Canmore, perhaps not of stone, must have been replaced by a new edifice when it was dedicated in the reign of David I.[156] The style of the structure is early Norman, and would naturally follow the erection of Durham Cathedral, which took place about twenty-five years earlier.

Probably the original church of Malcolm stood where the new choir was afterwards erected, and David I. added the Norman nave to it. The nature of the site seems to favour this view, as the ground to the west slopes rapidly away, and scarcely allows room for the west end of the nave; while the conventual buildings, for want of suitable space, have had to be carried with an archway over a public street.

It is believed that Alexander I. contemplated the erection of the church into an abbey, and had possibly made arrangements for the introduction of monks. At any rate, in the year of the accession of his successor, David I. (1124), canons of the Order of St. Augustine were brought from Canterbury and established at Dunfermline.

It was, no doubt, soon after that event that David I. carried out extensive works at the new monastery, and probably added the Norman nave to the then existing church of his parents, Margaret and Malcolm. The monastery continued to flourish, and was largely endowed. The early church was soon found to be too small, and it was resolved to rebuild it, so as to form a new choir and transept worthy of the dignity{232} and importance of the convent. This was accordingly carried out between 1216 and 1226, when the choir, with its aisles, the transept, and the presbytery were erected. Abbot Patrick, who had formerly been Dean

[Image unavailable.]

Fig. 198.—Dunfermline Abbey. Plan.

and Prior of Canterbury, presided at Dunfermline during the whole of the above time. After him came Abbot William (II.), whom we find appealing to Pope Honorius III. for certain patronages and presentations{233} on account of the great expense incurred during the last ten years in carrying on the extended fabric, whereby the monastery had been greatly impoverished. Again, in 1231, a similar appeal was made to Pope Gregory IX., both on account of the expenses of the church,

[Image unavailable.]

Fig. 199.—Dunfermline Abbey. Plan of Nave.

and also because the number of canons had been increased from thirty to fifty.

In 1249 a dispute arose regarding the consecration of the new choir, but Honorius IV. decided that a new consecration was not necessary, as the consecrated walls of the older part (the nave) continued in use. In the same year Queen Margaret was canonised, and in 1250 her{234} body was transferred from the old church to the new Lady Chapel, in presence of all the chief men in the kingdom. “The translation of the saintly foundress was probably arranged,” says Professor Innes, “to give solemnity to the opening of the new church.”[157] Soon after this the abbey is described by Matthew of Westminster, who probably saw it, as of vast extent, and containing such magnificent palaces that three kings, with their trains, might be accommodated within its walls.

“This sumptuous pile was destroyed and levelled with the ground by the soldiers of Edward in 1303, excepting only the church and a few dwellings for the monks.”[158]

The Exchequer Rolls inform us of the great expense sometimes incurred in connection with the tombs of the illustrious persons buried in the abbey.[159]

The monastic buildings were, as we have seen, on a very magnificent scale; but of the church, and all the splendid structures connected with the abbey, there now only remain (Fig. 198) the Norman nave, the base of the Lady Chapel, and part of the refectory and kitchen.

[Image unavailable.]

Fig. 200.—Nave Piers and Wall Responds.

The nave (Fig. 199), which is wonderfully well preserved, measures about 106 feet long inside, by about 55 feet wide between the aisle walls. The piers are circular, and measure 4 feet 4½ inches in diameter. The plan of these, with that of the wall responds (Fig. 200), indicates that the original intention (which was carried out) was to groin the aisles. The two eastern bays between the eastern pillars are built up with solid masonry, and only a portion of the arches is seen. The original respond at the east gable wall, against which these arches rested, has long since disappeared, in connection with the erection of the later church.

The two western bays, and the triforium arches above them (one on each side), have also been filled up with solid building in order to strengthen the western towers. The southern of these arches is shown in Fig. 201. The pillars which support the west towers are of greater size than the others, and are of a different section. One of the pillars and the corresponding arch of the north arcade are of late Gothic work, and may be part of the repairs ordered by the Privy Council in 1563,[160] or of the work done in 1594, under the direction of William Schaw, Master of Works, who at that time built the north-west tower and steeple{235}

[Image unavailable.]

Fig. 201.—Dunfermline Abbey. Interior of West End of Nave.

{236}

[Image unavailable.]

Fig. 202.—Dunfermline Abbey. West End.

{237}

[Image unavailable.]

Fig. 203.—Dunfermline Abbey. North Porch.

{238}

(Fig. 202), as well as the porch on the north side of the nave (Fig. 203). At the same time, also, certain great buttresses (Fig. 204) were built against the outer walls, which are now conspicuous features of the structure.

The great western doorway of the church (Fig. 205) remains unaltered, and is a good example of Norman work. It consists of five orders, having round and octagonal shafts alternately, chiefly with cushion caps, but some are ornamented with scrolls (Fig. 206). The abacus is heavy, and is carved with sunk diapers. The orders are continued round the arches, and contain chevron ornaments (much decayed), rosettes, and diapers. The outer order contains large heads and geometric figures in the alternate voussoirs, an arrangement similar to that at Dalmeny and Whithorn, where also the geometric figures resemble those adopted here. The original north doorway (Fig. 207), which is partly concealed by Schaw’s porch, is similar in design, with the addition of an arcade above the arch (see Fig. 203.), somewhat resembling, but plainer than that over the doorway of Dalmeny Church, on the south side of the Forth. The south doorway of the church on the opposite side from the porch is a late work. There appears to have been another south doorway at the east end of the nave, but it is now built up. The whole of the aisle walls are arcaded in the interior (Fig. 208) up to the height of the window sills, but the arcade has been partly cut away for monuments.

The general design of the nave recalls that of Durham Cathedral, at the founding of which King Malcolm Canmore was present. The same circular piers, with zig-zag ornaments and massive cushion caps, and also clustered piers, occur in each (Fig. 209), and the small circular bases, resting on great square plinths, are common to both (see also p. 37, Fig. 18.). The arches between the main piers (Fig. 210) consist of bold mouldings, with the label ornament running round the outer moulding. The triforium at Dunfermline is extremely simple (Fig. 211), consisting of a single opening with plain jambs and round arch, with a large roll and fillet in the centre of the thickness of the wall, supported on single attached shafts with cushion caps. The clerestory is also very simple. It contains one window in each bay, with plain recessed arch, supported on single shafts with cushion caps. The aisles (Fig. 212) are vaulted and groined. The transverse arches are flat, with a roll on each side, and the diagonal groins spring from the detached shafts of the responds (see Fig. 208.). The windows of the aisles (see Fig. 209.) are single round-headed lights, having plain sconsions with one recessed shaft on each side, and the arch enriched with chevron mouldings. Externally (Fig. 213) they are of similar design.

Fig. 208 shows the wall shafting and springing of the ribs in the aisles, and the mouldings of the nave arcade, with the arcading beneath the{239}

[Image unavailable.]

Fig. 204.—Dunfermline Abbey. Part of North Side.

{240}

[Image unavailable.]

Fig. 205.—Dunfermline Abbey. Western Doorway.

{241}

windows. It also shows the original aisle windows on the inside, while Fig. 213 shows their appearance on the exterior. It will be observed in the latter that there is the same sunk or label ornament on the drip-stone as there is over the arches of the main arcade. Above the aisle window (see the same Fig.) are the lights of the triforium gallery. These have triangular heads, formed by two stones. They appear to have been rounded or moulded on the edge, and spring from sunk shafts having carved capitals. They are now very much decayed, and have all been restored except two on the north side.

Judging from the existence of the large west end pillars already referred to, it was evidently intended from the beginning to have two western towers. The northern one

[Image unavailable.]

Fig. 206.—Dunfermline Abbey. From North Side of Western Doorway.

was destroyed to a considerable extent at the Reformation,[161] along with the upper part of the adjoining gable. In its present state it was designed and built by William Schaw, and is a very effective example of the architecture of his time (see Figs. 202 and 204). The bold corbelling at the top of the tower recalls the somewhat similar treatment of the towers of St. Machar’s, Aberdeen, and other examples derived from domestic architecture. The south-west tower appears to have escaped the fury of the Reformers, and to have remained intact, although in a ruinous state, till 1807, when it fell, having been struck by lightning. Three years later the present top was put on the old walls. The Lady Chapel at the east end, built to receive Queen Margaret’s shrine, is now reduced to a small fragment (see Plan), consisting of part of the south and east walls, which remain to the height of about 2 or 3 feet. It has been a small structure of about 26 feet 9 inches by 22 feet, of delicate and refined first pointed work, as is apparent from the bases of the wall arcading and the edge of the surrounding seat, enriched with nail-head ornaments, which still exist (Fig. 214). The Lady Chapel appears from an old view[162] to have been a low structure, reaching only to the sill of the great east window of the choir, and it was evidently vaulted in two compartments.

Of the choir of the thirteenth century (shown on the Ground Plan, see Fig. 198.) not a single stone exists, having been removed to make room for a modern church; but before the latter was built (begun in 1818), considerable remains of the choir and apparently the whole of the foundations were{242} standing. These ruins were measured and drawn by Mr. J. Baine, C.E., Edinburgh, in 1790, and by the Rev. Mr. Syme in 1805. From their

[Image unavailable.]

Fig. 207.—Dunfermline Abbey. Northern Doorway.

{243}

labours the author of the Annals (Mr. E. Henderson) made a complete plan of the church in 1827, and from it the ground plan of the choir now

[Image unavailable.]

Fig. 208.—Dunfermline Abbey. Aisle.

given has been filled in.[163] The choir was a prolongation of the present nave, having transepts, and also a great aisle on the north side, the walls of which latter remained till this century. There was a lofty central tower{244}

[Image unavailable.]

Fig. 209.—Dunfermline Abbey. View of Nave looking West.

{245}

of two stories, with three windows in each story facing the four sides. Altogether this church must have been a magnificent structure, and was adorned with many altars and shrines. It was to that part of the church specially that the zeal of the Reforming party was directed, when upon the 28th March 1560, “the wholl lordis and barnis that were on thys syde of Forth, passed to Stirling, and be the way kest doun the Abbey of Dunfermling.”—(Lindsay, Chronicle of Scotland, Vol. II. p. 555.)

The interior length of the whole church from the west doorway to the Lady Chapel at the east end is 268 feet 6 inches, and the length of the exterior is 280 feet.

[Image unavailable.]

Fig. 210.—Dunfermline Abbey. Details.

The edifice occupies a lofty and commanding situation, from which the ground falls away on the west and south sides. The monastic buildings stood on the south side of the nave at a considerably lower level than the church. Of these structures, as is shown by the dark walls on the Plan, considerable remains still exist. The ground between the dark walls and the church has, in recent years, been levelled up, the outer portions of the monastic buildings serving as retaining walls. With the exception of these outer walls, the site of the monastery is thus buried. The refectory stood on the south side of the cloister, and the whole length and height of its south and west walls still exist. There is also a small portion of the return of its north wall, adjoining the west gable wall. Indications of its east wall also exist, thus enabling its dimensions to be fixed at 103 feet in length by 34 feet in width. The south wall (Fig. 215) was divided into seven bays, and in six of these there are lofty two-light windows (Fig. 216). The eastern bay is occupied by the pulpit or reading-place, from which one of the brethren read aloud during meals. This place, which occupies the whole of one bay, is about 15 feet long, and is corbelled outwards on a cusped arch (see Fig. 215.) about 4 feet 6 inches wide. It is lighted from the outside by two windows, which have mullions and tracery, still entire, flush with the face of the wall. On the side next the hall there are two lofty openings.

Adjoining the refectory on the south-west is a large tower, beneath which runs a public road, called St. Catherine’s Wynd, through a “pend{246}” or archway, whence the building is called the “Pend Tower.” The outside of the refectory and “Pend Tower” (see Fig. 216.) is very

[Image unavailable.]

Fig. 211.—Dunfermline Abbey. Triforium and Clerestory.

{247}

imposing, with the simple row of lofty buttresses and windows along the top. The west gable wall of the refectory (Fig. 217) is still entire, and has a large window of seven lights. The tracery of this

[Image unavailable.]

Fig. 212.—Dunfermline Abbey. North Aisle.

{248}

window is in good preservation (Fig. 218), and is one of the most favourable examples of a kind of tracery developed in Scotland during the fifteenth century. At the north-west corner of the refectory is the staircase tower (see Fig. 217.), which leads down to the offices below, and upwards to the refectory roof, over which access was obtained to the upper

[Image unavailable.]

Fig. 213.—Dunfermline Abbey. Exterior of Aisle and Clerestory Windows.

story of the “Pend Tower.” In the north wall of the refectory, near the west end, are the remains of a flue, which may have belonged to a fireplace. The “Pend Tower” is still entire, wanting only the cape house and roof. It served as a connecting passage between the abbey buildings and the royal palace beyond. A door led from the refectory (see Plan, Fig. 219.) by a passage into a groined chamber, and from thence into a room{249} in the palace situated over the kitchen. The kitchen is a lofty room, now roofless, having remains of large fireplaces and some curious recesses. Below the kitchen, but entering from another part of the palace, there is a large vaulted apartment with central pillars. (Fig. 220.) These pillars were continued up through the kitchen, and probably to the room, now gone, which stood over the kitchen. Another arched passage led from this apartment through below St. Catherine’s Wynd and up to the monastery. The building known as the palace was, doubtless, intimately connected with the monastery, and the kitchen shown on the plan may have been used in connection with both.

Returning to the vaulted chamber in the “Pend Tower,” a long narrow vaulted passage leads from it along the refectory wall for the length of two bays. It is vaulted across from side to side for the length of the first bay, and then in the second bay one half-arch springs at right

[Image unavailable.]

Fig. 214.—Dunfermline Abbey. The Lady Chapel.

angles to the first arch from the end of the passage to meet the cross vault. This probably indicates that steps lead down in the passage to the level of the rooms below the refectory. But the place cannot be properly seen, being chocked full with the grass and rubbish thrown in from the churchyard. This passage is a very effective feature, as seen from the outside. It is supported on arches thrown from buttress to buttress, and is covered with a stone roof above (see Fig. 216.).

Within the “Pend Tower,” on the first floor, there is a five-sided room with a fireplace, which appears to have been a sort of guard room. It is vaulted, and has ribs irregularly placed, as shown on plan. This part of the ruins is now a receptacle for rubbish, and is almost blocked up. Over this, and entering from the circular stair adjoining, is the room shown in Fig. 221. It is groin vaulted, and had a fireplace of good design. To save this “Pend Tower,” with its fine vaulted apartments,{250}

[Image unavailable.]

Fig. 215.—Dunfermline Abbey. South Wall of Refectory.

{251}

a proper roof ought to be placed over it. Beneath the tower is the “Pend” or archway uniting St. Catherine’s Wynd and Monastery Street.

[Image unavailable.]

Fig. 216.—Dunfermline Abbey. The “Pend Tower” and part of Refectory.

The above passage and staircase are additions made, without doubt, at the time when the tower was built. This is clearly seen in Fig. 216.{252} From this drawing it is obvious that the arches were thrown between the already existing buttresses of the refectory, and in the second bay the arch is at a low level to permit of the descending stair already referred to. The builders have just managed to save a very beautiful doorway

[Image unavailable.]

Fig. 217.—Dunfermline Abbey. West End of Refectory.

belonging to the earlier building, now hardly seen in the shadow of the overhanging addition.

To the east of the refectory there is a narrow chamber with the remains of a two-light window in the south wall, and projecting south{253}wards from this is the lower part of the wall of the fratery reaching as high as the floor of the refectory. On the east side of the fratery extends

[Image unavailable.]

Fig. 218.—Dunfermline Abbey. Interior of West Window of Refectory.

{254}

the south wall of a building called, on the plan, the Bailery Prison. These fragmentary structures exhaust the remains of the monastic

[Image unavailable.]

Fig. 219.—Dunfermline Abbey. Plan of “Pend Tower,” &c.

buildings. The chapterhouse, and the buildings on the east side of the cloister (shown in outline on the plan), are taken from the old plan already referred to, but their accuracy cannot be guaranteed.

As already mentioned, the monastery was burned by Edward I. in 1303-4; but, according to Tytler,[164] the church escaped. Froissart, however, narrates that in 1385 Richard II. burned the abbey and town. It is impossible to say to what extent these devastations were carried, but we doubt if any of the existing monastic buildings belong to an earlier date than that last mentioned. Perhaps the south wall may be older, and has been restored. The tracery of the refectory west window belongs to the end of the fifteenth century. The “Pend Tower” was built after the refectory was finished, as it abuts against the westmost buttress (as seen in Fig. 216.) in a way it would not have done had the whole been of one construction; also, the corner buttress has been cut away, as may be seen at the right-hand side of Fig. 221.

William Schaw, Master of Works, besides the buildings already referred to, erected, in 1594, certain of the immense buttresses which form such conspicuous features in all the views of the abbey. He likewise built, and doubtless designed, the Queen’s House, and the Bailie and Constabulary House, shown in the plan. In connection with the latter houses,{255} there are considerable remains of buildings still existing (as shown on Plan) to the north-west of the abbey, and there seems every probability that they formed part of the structures of the abbey and of the Queen’s House. They are extremely picturesque as seen from the low ground to the west. (Fig. 222.) The lofty house on the right hand dates probably

[Image unavailable.]

Fig. 220.—Dunfermline Abbey. Room below Kitchen.

from the end of the seventeenth century, and is a fine example of its period. The adjoining buildings are considerably earlier, and in the lower parts, where they are buttressed, they are probably of pre-Reformation times. The upper portions are somewhat later, and are very likely part of the work of Schaw. The porch to the latter buildings is on the other{256} side, and is quaint and well known from being seen from the church. William Schaw died in 1602, and was buried in the nave, where the monument to his memory (Fig. 223) was erected by order of Queen Anne.

[Image unavailable.]

Fig. 221.—Dunfermline Abbey.

The palace, which was intimately connected with the abbey, has been described elsewhere.[165]{257}

[Image unavailable.]

Fig. 222.—Dunfermline Abbey. Old Buildings to North-West of Church.

{258}

[Image unavailable.]

Fig. 223.—Dunfermline Abbey. Monument to William Schaw.

{259}

ST. MAGNUS’ CATHEDRAL, Kirkwall, Orkney.

In approaching Kirkwall from the sea, the chief object which meets the view is the great mass of the cathedral. The town gradually comes into sight, with its harbour and quays; but attention is irresistibly fixed on the huge church, which overtops everything else.

When the quaint old streets, with the gables of the houses facing the narrow roadway, are traversed, and the open space round the cathedral is reached, the visitor’s admiration of the structure is by no means diminished. He enters by one of three splendid doorways in the west end, which recall the portals of the cathedrals of France rather than those of England.

The first view of the interior is striking and impressive. (Fig. 224.) The long perspective of the great round pillars and arches on each side of the nave, surmounted by the round arched triforium and clerestory, and the lofty roof covered with simple vaulting, give an impression of size and height which is larger than is borne out by after measurement. This appearance of great size has often been remarked of St. Magnus’, and, no doubt, arises from the height and length of the edifice as compared with its width, which between the piers is only 17 feet, while the length of the nave is 111 feet, and the height to the apex of the vault is about 50 feet. The cathedral is found to be complete in all its great divisions. (Fig. 225), Plan.)[166] The nave has side aisles, which are vaulted, and the side walls are arcaded with interlacing Norman arches. The choir is, unfortunately, excluded by a glass screen from the general view of the cathedral, owing to the east end being still used as the parish church. The choir is of considerable length, being 85 feet 6 inches long by 47 feet 6 inches wide, and has main piers, triforium, and clerestory, of about the same height as the nave. It is also vaulted, and has vaulted side aisles. The longitudinal section (Fig. 226) shows the comparative heights of the nave and choir.

The transept is 90 feet long by 17 feet wide, and has a great appearance of height, but is not vaulted. It has no aisles, but has a vaulted chapel projected to the east from each division of the transept. Fig. 227 is a section through the transept from north to south.

The choir contains six bays, and the nave eight bays.

When the exterior is examined, it is found to present at a glance a general history of the structure, and the changes which have taken place in it. The layers and masses of the different coloured stones which have been used in the edifice at different times tell their own tale.{260}

[Image unavailable.]

Fig. 224.—Kirkwall Cathedral. The Nave, looking West.

{261}

[Image unavailable.]

Fig. 225.—Kirkwall Cathedral. Ground Plan.

{262}

Fig. 228 shows the north elevation of the whole cathedral.[167] The oldest work (which, however, comprises several periods) is constructed with dark slaty stone, having red freestone dressings. This masonry comprises the whole of the outer walls of the choir, the transept, and the greater part of the nave. It is evident, however, that this style of masonry includes not only much Norman work, with its round arches and flat buttresses, but also some later work, which has pointed windows and boldly-projected buttresses. The Norman work (Figs. 228 and 229) may be observed in the transept, and several bays of the nave and choir nearest the transept, while the pointed work is specially noticeable in the eastern half of the choir.

In the clerestory walls of the choir (Fig. 230) great changes are observable. The lower part of the wall, which contains the windows, is built with dark red freestone, while the upper part is of whitish freestone, clearly showing that the clerestory has been raised, together with the parapet. The old line of the eaves is further apparent from the row of Norman corbels which marks the original level before the wall was raised. These corbels are specially visible on the north side of the choir clerestory, but a few also remain on the south side. The new corbel table under the parapet consists of corbels of well-known first pointed form.

Turning to the nave, it will be observed (see Fig. 228.) that the whole of the clerestory wall (except the two westmost bays) is built with whitish freestone, while the windows are of small size and are pointed. The clerestory of the nave thus corresponds with the raised part of that of the choir in the stone used, but differs from it in the windows, which are narrow. The parapet and corbel table of this part of the building, and indeed throughout nearly the whole structure, are similar to those of the choir, and in the later work have evidently been copied from the earlier ones. In the transept the alterations are plainly seen in the heightened portions of the north and south gables (see Figs. 229 and 230), which are carried out with red freestone ashlar, and in the details of the upper window of the north transept and the rose window of the south transept, which are all of a later character than the Norman work of the lower parts of the transept. In the south transept there may also be noticed a pointed doorway (Fig. 231) built with party-coloured stones, which has been inserted by cutting into the old Norman arcade of the interior. This is distinctly seen in the elevation of the interior (Fig. 232). Probably, when this was done, the older doorway which existed at the east end of the nave south aisle, in the usual position for access to the cloister, was built up, the intention of having a cloister being abandoned. Some traces of the impost of the arch of the original doorway, carved with Norman enrichments, may still be seen.{263}

[Image unavailable.]

Fig. 226.—Kirkwall Cathedral. Longitudinal Section from West to East.

{264}

The two westmost bays of the nave (see Fig. 228.) are built almost entirely from top to bottom with red freestone, having a slight admixture of white stone. This indicates a considerable alteration, and it will be found that these two bays were rebuilt at a late period, when a new west

[Image unavailable.]

Fig. 227.—Kirkwall Cathedral. Section through Transept from North to South.

{265}

[Image unavailable.]

Fig. 228.—Kirkwall Cathedral. North Elevation.

{266}

front was erected and the cathedral was extended westwards. It may be mentioned that the cathedral stands alone in the middle of a large churchyard. There are no other ecclesiastical structures connected with it, such as cloisters or chapter house. The Bishop’s Palace,[168] however, is not far off. It has been a fine stately edifice, but is now greatly ruined.

Before considering more minutely the order of construction of the cathedral, it is desirable to glance at the conditions under which it was designed and carried out.

Under the rule of the Norsemen, in the ninth and tenth centuries, any early symptoms of Christian influence which may have previously existed in Orkney had died out. But after the conversion of the inhabitants of Orkney to Christianity, about the year 1000, traces of Christian worship became observable. The first actual Bishop of Orkney was William the Old, who held the bishopric for sixty-six years, and died in 1168. He must, therefore, have been consecrated in 1102. His see was first at Birsay (see p. 135), but was removed to Kirkwall on the erection of the cathedral in 1137-52. The Bishop of Orkney was one of the suffragans of the metropolitan see of Throndhjeim, which was erected in 1154. It was not till 1472 that the see was placed under the metropolitan Bishop of St. Andrews.

The possession of the Orkneys was sometimes divided between two relatives. In the beginning of the twelfth century two cousins, Hacon and Magnus, shared the government; but in 1115 the latter was treacherously slain in the island of Egilsay by Hacon, who thus obtained the whole earldom.

Some time after, however, a new claimant for Magnus’ share arose in Rognvald, the son of Magnus’ sister, who made a vow that if he succeeded in establishing his claim he would erect a “stone minster” in honour of his predecessor, St. Magnus, the latter having been canonised. Rognvald was successful in his project, and immediately proceeded to fulfil his vow by founding at Kirkwall a cathedral dedicated to St. Magnus.

The building was designed and superintended by the Norwegian Kol, the father of Rognvald, who had the principal oversight of the whole work. The relics of St. Magnus were brought from Christ’s Kirk, in Birsay, to be deposited in the cathedral as soon as it was ready to receive them; but in the meantime they rested in the Church of St. Olaf, an older edifice which then existed at Kirkwall.[169]

The Cathedral of St. Magnus was thus designed and erected by a Norwegian earl, while the bishopric was under the authority of the Norwegian Metropolitan of Throndhjeim. It is thus practically a{267}

[Image unavailable.]

Fig. 229.—Kirkwall Cathedral. View of North Transept and Choir.

{268}

[Image unavailable.]

Fig. 230.—Kirkwall Cathedral. View from South-East.

{269}

Norwegian edifice, and is by far the grandest monument of the rule of the Norsemen in Orkney.

In these circumstances, it is not to be expected that the architecture should in every detail follow the contemporary styles which prevailed in

[Image unavailable.]

Fig. 231.—Kirkwall Cathedral. Doorway in South Transept.

Britain; but it is astonishing to find how closely the earlier parts correspond with the architecture of Normandy, which was developed by a kindred race—the successors of Rollo and his rovers, who settled in that country at an earlier date.{270}

[Image unavailable.]

Fig. 232.—Kirkwall Cathedral. Interior of Doorway in South Transept. The shaded voussoirs are of yellow and the remainder of red freestone.

{271}

There can be little doubt that the Romanesque architecture which prevailed in the North of Europe found its way at a comparatively late

[Image unavailable.]

Fig. 233.—Kirkwall Cathedral. View of the Crossing from the Nave.

date into Scandinavia. The Norman form of that style would naturally follow the same course amongst the kindred races in Norway{272}

[Image unavailable.]

Fig. 234.—Kirkwall Cathedral. Choir, looking East.

{273}

and Denmark, just as it did in England and Scotland, and from Norway it would be transplanted into Orkney. We find that the “transition” style and pointed styles follow here a similar course to that observed in other countries, although, no doubt, with certain modifications, such as might be looked for at so great a distance from the centre of origin.

Sir Henry Dryden, who has given a great deal of study to Kirkwall Cathedral, finds the differences of the architecture there as compared with that of England so great that the usual terms in England are not applicable; but we believe that, with some allowances, the same general stages of progress can be observed at St. Magnus’ as in the South.

It is well known that French architects were sent for to carry out the Cathedral of Upsala, while the architecture of the Cathedral of Throndhjeim is English in character. A certain mixture of design is traceable in the details of these northern structures, but the general scope of the architecture follows that of the rest of Europe.

The Cathedral of St. Magnus was, as above mentioned, begun by Earl Rognvald in 1137, and was, doubtless, carried on with as great expedition as possible. It was a gigantic work to be undertaken in this situation at the time, and difficulty arose with regard to funds. This, however, was overcome by allowing the proprietors of lands in Orkney to redeem their property by a single payment of a sum per acre, paid at once, instead of according to the usual practice, on each succession.

The first parts of the cathedral built (shown by black tint on Plan) were the three westmost or Norman bays of the choir, with their aisles, both the transepts, the crossing (afterwards altered), intended to receive a tower over it, and two bays of the nave, which served to form an abutment for the crossing. These portions are all (where unaltered) in the earliest style of Norman work in the edifice. The round piers and responds of the choir, the two south piers and one north pier of the nave (with their cushion caps) (Fig. 233), the main arches (with their label mouldings in the choir and transept) (see Figs. 227 and 234), the round arched and labelled windows in choir, transept, and nave (see Fig. 228.), and the interlaced arcades in the latter (Fig. 235), all point to a somewhat advanced period of Norman work.

The choir originally terminated with a central apse beyond the third pier (as shown by dotted line), but it is impossible to say whether the side aisles also had apses, or whether the aisle was continued round the apse.

The Norman windows of the choir aisle have three external orders, with a label ornament in the outer order. The single shafts have cushion caps, and the windows are largely splayed internally.

An interlacing arcade of round arches, with single shafts and cushion caps (some with volutes), runs round the north, south, and west sides of{274}

[Image unavailable.]

Fig. 235.—Kirkwall Cathedral. The Crossing and South Transept.

{275}

the transept. (See Fig. 235.). The large arches leading into the east chapels were formed originally, but the chapels were built later. The lower string course of the transept is enriched with a four-leaved flower. (See Fig. 232.)

[Image unavailable.]

Fig. 236.—Kirkwall Cathedral. Doorway in the North Aisle of Nave, &c.

{276}

It seems likely that soon after the completion of the above portions attention was given to the continuation of the nave westwards for several bays. The piers have the same round form as the original ones, but the caps are no longer octagonal, but round (see Figs. 224 and 233), and instead of the cushion form, the caps are moulded. The north

[Image unavailable.]

Fig. 237.—Kirkwall Cathedral. South Aisle of Nave.

aisle wall opposite the three bays, west from the crossing, would appear to have been built early (see Figs. 228 and 229). The buttresses are of the flat Norman form, the three eastmost windows are moulded in three orders, with a label enrichment like the choir aisle windows, while the two windows to the west of above, although round, have mouldings of a first{277} pointed character, and were, doubtless, finished at a later time (see aisle window in Fig. 236.). In the south aisle of the nave the east window is similar to those of the north side, but the others, extending as far as the south doorway, have, in the interior, mouldings indicating a more advanced date. (Fig. 237.) Externally, these windows have been restored. There would appear to have been a good deal of time spent over these aisle walls extending as far as the north and south doorways, and the main piers and arches within them were probably erected at the same period. Both of the above aisle walls have a Norman interlacing arcade (see Fig. 237.) running along the interior below the windows. In these arcades, and those of the transepts, various varieties of chevron ornament occur. The north aisle doorway (see Fig. 236.) is Norman in detail, but seems to have been restored at a late date. The interior mouldings are similar to those of the three west doorways. The doorway in the south aisle retains its old Norman arch and shafts in the interior, but has been altered externally (Fig. 238). The nave piers may have been continued as far as the above doors about this time, together with the triforium, but the upper part of the nave walls and the vaulting are later.

After the Norman period above described, a distinct change of style is observable. This is prominently seen in the piers and arches of the crossing (see Figs. 233 and 235), which are of an advanced transition style, and appear to have been introduced in lieu of the old Norman piers. Possibly, however, the older piers are preserved and encased in the new. The latter (Fig. 239) are arranged in the form of clustered shafts, approaching first pointed in plan. The bases and caps of the shafts are of transition character, being very like those of Jedburgh Abbey, a good transition example. Some, however, have a tendency to foliage, but all are much damaged. The arches are in distinct orders, like first pointed work, and the inner order of those next the nave and choir is enriched with a large boldly relieved chevron ornament (see Fig. 233.). The windows in the choir nearest the main arches of the crossing, and the triforium openings into the transept, appear to have been altered and rebuilt at the time of this operation. The upper part of the north transept was probably raised and its windows inserted at this time, as they are of transition character; but the raising of the south transept and introduction of the rose window in it is of a somewhat later date. This circular window (see Fig. 235.) is very similar to that in the east window of the choir. The chapels on the east side of the transept are also of the transition period. Both internally, including the vaulting, and externally, including the pointed windows (see Figs. 229 and 230), the work of these chapels is very advanced transition in style. Of course, it must be understood that the style is referred to, not the date. The transition style may not have penetrated to Orkney till a long time after it had been abandoned further south, possibly not till the middle of the thirteenth{278} century. The space between the south chapel and the choir aisle has been built up and formed into a small vaulted chamber, which has no

[Image unavailable.]

Fig. 238.—Kirkwall Cathedral. South Doorway of Nave.

opening communicating with the chamber in the south chapel. It enters from a window in the aisle changed into a door. The use of this chamber is unknown. The large windows in the triforium of the transept, adjoin{279}ing the crossing, are cut across by the aisle roofs. This arises from the aisle roofs having been raised at a late period. The vaulting of the original choir, and the vaulting shafts, with their corbels (see Section, Fig. 226.), probably also belong to the transition period.

The completion of the nave, as far as the original west wall, was probably next undertaken. The piers (as above mentioned), although round on plan like the original ones, have round moulded caps like those further east. The arches over the piers were, no doubt, executed at the

[Image unavailable.]

Fig. 239.—Kirkwall Cathedral.

same time, and the triforium carried up. The latter consists of three orders of plain arches, with chamfer on edge, except some on the north side, which have a bead and fillet on edge, thus indicating a somewhat advanced date.

It is not easy to say when the clerestory and vaulting of the nave were executed; but, from the circumstance that the clerestory is built with whitish stone, similar to the raised part of the clerestory of the choir, we are inclined to believe that it was carried out about the same{280} period as the heightening and vaulting of the choir, to be afterwards referred to.

Steps are introduced at the bottom of the nave triforium arches, which, however, can scarcely be seen from below. Their object is to raise the floor of the triforium, so as to give height for the aisle vaults.

The next alteration of the cathedral effected a complete revolution in the eastern portion of the edifice. The apse was taken down, and the choir, with its aisles, was extended by three bays to the eastward. (See Fig. 234.) The junction of the extended work with the old is quite apparent in the large pier on the left.

The style of this extension of the choir has in many points a strong resemblance to advanced first pointed work, but it exhibits some peculiarities of detail. The piers of the new bays consist of clustered shafts, but the arrangement of the shafts is peculiar, having rounds and hollows passing into one another, and with fillets on edge, more like decorated work than first pointed. The bases are of early form, and the caps, which generally resemble first pointed work, have also features which recall the French “Crochet caps” of the period.

Possibly some of the Frenchmen engaged at Upsala or Throndhjeim may have been brought over to the work at St. Magnus’, and have here left the mark of their French extraction. Some of the caps, which have a square abacus, have small leaves introduced at the junction of the circle with the square—an arrangement common in bases, but very unusual in capitals. (See Main Pier, Fig. 240.)

The main arches over the piers (see Fig. 234.) are not pointed, but semi-circular (a form of common occurrence in Scotland). Otherwise the sections of the mouldings, and the arrangement of the orders in distinct divisions, are quite first pointed in style.

The triforium consists of plain chamfered semi-circular arches and jambs in three orders, with plain impost mouldings, being a continuation of the design of the triforium of the earlier part of the choir.

The clerestory has simple pointed windows, moulded on sconsion, but without cusps, at the same level as the Norman windows in the western part of the choir.

A vaulting shaft is carried up between the piers. It springs from the pier caps, and is very small up to the triforium, where it thickens and runs up to the triforium caps, and above that point is carried up as a triple shaft to the cap which receives the springing of the vault.

The clerestory windows appear to have been built before the vaulting was arranged, seeing that they are placed very low in the red part of the wall. But when the vaulting was designed, it was found desirable to raise the walls so as to get proper height for the arches. This was done in whitish stone, and shows distinctly on the exterior, as above stated. A row of Norman corbels on the north side marks the original height of the{281} clerestory wall. These corbels appear to have been moved from the Norman part of the choir, and inserted in their present position when the choir

[Image unavailable.]

Fig. 240.—Kirkwall Cathedral. East End of South Aisle of Choir.

was lengthened. A few corbels remain in their original position on the south side of the choir. The vaulting of the old part of the choir was also altered at the time when the new vaulting was built. The design of{282} the extended choir aisles corresponds with that of the choir, and is very beautiful, though somewhat foreign in character. (See Fig. 240.) The ribs of the choir and aisle vaults have all bold sections of first pointed form.

The east end of the cathedral is of this period. The great east window (see Fig. 234.) fills the whole space available. This window, including its mouldings, measures (according to Sir H. Dryden) 37 feet 2½ inches by 16 feet 7½ inches. It is well designed, and has side shafts of first pointed form, while the tracery is perhaps a little more advanced. The great rose in the arch, which expands over the whole of the mullions and arches of the tracery, is (as pointed out by Sir H. Dryden) quite peculiar and unique. The three-arched recesses under the east window indicate that the altar stood free from the wall. On the exterior, the junction of the new buttresses with the old Norman ones is distinctly seen. (See Fig. 230.) The former are of red freestone, and project with water tables in stages, while the latter are flat and shallow. The side windows have plain splays in the jambs, and have no caps, one round-headed window on the south side has two lights, and a doorway is formed beneath it. A large base course goes round the choir and marks the new work. It is also continued round the transept chapels at a lower level. Besides the raising of the clerestory walls, above referred to, the aisle walls of the choir have also been raised. On the north side (see Fig. 229.) this is effected by leaving the old parapet and building a second parapet above it, while on the south side (see Fig. 230.) the old parapet has been removed and the wall heightened with red ashlar, and a new parapet placed at the higher level. Several square windows have been cut in the lower part of the north choir wall. These are modern, and are not shown in the sketch. Their object is to admit light under a gallery which has been inserted in the north aisle. The floor of the choir has been raised, and is now reached by several steps from the transept; but the steps to the sanctuary are believed to have been where shown on the plan. As already mentioned, the clerestory and vaulting of the six eastmost bays of the nave was probably executed soon after the choir was finished, the outer wall of the clerestory being built with the same whitish stone as the heightened part of the choir. The windows are small and of plain-pointed form, like those of the choir. Some of them have the appearance of having been cut up into the vaulting, as if they had been inserted or heightened after the vaulting was built. It is to be remarked that while the parapets of the nave and choir are on the same level on the exterior, the vaulting of the nave is several feet lower than that of the choir.

The three western doorways (Fig. 241) and the pointed doorway in the south transept (see Fig. 231.) must be assigned to a period rather later than the choir. The wall containing the three west doorways is built out{283}

[Image unavailable.]

Fig. 241.—Kirkwall Cathedral. West Doorways.

{284}

of the square with the nave walls. It is supposed to have been erected outside the church, with the view of lengthening it, while the original west front stood at a point distant one bay from it. The new west wall seems to have been left unfinished for a considerable time, the upper part of the west front having, from its style, evidently been built at a much later period than the doorways. When the new west wall was completed, the old west front would be removed. This necessitated the building of the westmost pair of piers. While this operation was in progress, the next pair of piers and arch above have yielded, and the piers remain much inclined to the west.

[Image unavailable.]

Fig. 242.—Kirkwall Cathedral. Interior of West Doorways.

The three west doorways and that in the south transept are specially remarkable from their presenting probably the finest examples in Great Britain of the use of coloured stones in the construction. This is chiefly observable in the exterior, but is also carried out in the interior of these doorways (Fig. 242). The north doorway (Fig. 245) and central doorway (Fig. 244) of the west front have the colours arranged in concentric rings in the arches, red and yellow alternating. In the south doorway (Fig. 243) the same colours radiate and alternate, and in the doorway of the south transept the red and yellow stones are arranged chequerwise. (See Fig. 231.) Fig. 246 shows the plan of the central doorway.{285}

[Image unavailable.]

Fig. 243.—Kirkwall Cathedral. Plan and Elevation of South Doorway of West End.

{286}

[Image unavailable.]

Fig. 244.—Kirkwall Cathedral. Elevation at Central Doorway of West End.

{287}

[Image unavailable.]

Fig. 245.—Kirkwall Cathedral. Plan and Elevation of North Doorway of West End.

Fig. 245.—Kirkwall Cathedral. Plan and Elevation of North Doorway of West End.

{288}

The shafts have all been detached, as shown in the plans. They have been renewed; but, as Sir H. Dryden suggests, no doubt correctly, they were probably at first in red and yellow stone alternately.

The caps have been very elaborately carved with foliage, which is now much decayed. It looks later than the enrichments of the arches, which consist of early ornaments, such as the dog-tooth and chevron, much undercut. These enrichments, and the foliage which ran up the jambs of the doorway, are now greatly decayed, especially the portions carved in the yellow stone. In the case of the south transept doorway, the stonework, which is much wasted, has been roughly repaired with cement. The central doorway has five orders of mouldings, and the north and south doorways four orders. The south transept doorway has also four orders.

[Image unavailable.]

Fig. 246.—Kirkwall Cathedral. Plan of Central Doorway of West End.

Notwithstanding the damage they have sustained, these doorways are still amongst the most charming portions of the edifice; and, as regards the coloured decoration of their masonry, they stand almost alone in this country.

In the interior the west doorways and responds of piers (Fig. 242) are constructed with alternate bands of red and yellow stone, and the sconsion moulding is enriched with a ball ornament. The sconsion of the doorway of the north nave aisle has a similar enrichment, showing that it must have been restored at a late date, as already mentioned.

The buttresses between the west doorways are, so far as original, also carried up in alternate red and yellow courses. (See Fig. 241.) The upper part of the gablet over the centre doorway is of the seventeenth century, and bears the shield of Sir George Hay of Kinfauns, who rented the lands of the bishopric in the beginning of the seventeenth century. A crozier is added to the shield in connection with the lands of the see. (See enlarged sketch in Fig. 244.){289}

The upper part of the west front is of late construction, having probably been carried out when the two west bays of the nave were built. These bays, as above mentioned, were added to the cathedral at a late period, and are almost entirely built with red freestone. The piers are designed in imitation of the old nave piers, but the caps and bases have different mouldings, and the plinth of the base is round, while that of the older bases is square. (See Fig. 242.)

The triforium and clerestory are also constructed in imitation of the older parts of the nave. The three west bays of the nave and two bays of the aisles remained without vaulting till they were covered with the present wooden vaults, when the building was repaired by the Government in 1848.

The aisle windows in these bays are narrow, and have trefoiled cusped heads, being the only cusping in the cathedral (see Fig. 236.), except those in the large round windows.

The parapet of the north side of the nave is evidently a very late piece of work. It is supported on large trefoil ornaments, or inverted fleurs-de-lys, cut square into the wall, without chamfer or moulding. (See Fig. 236.)

This ornament extends along the six eastmost bays of the nave, the two westmost bays having a plain parapet on the same level. On the south side of the nave the aisle wall has been raised with red ashlar (like the choir south wall), and an ordinary parapet placed above it.

The buttresses in the west part of the north side of the nave are of a late pattern, with two set-offs, and those on the south side of the nave have been repaired and altered.

In the south side of the nave a new exterior doorway (see Fig. 238.) has been substituted for the old Norman doorway, the shafts and arch of the latter remaining in the interior. The new doorway is said to have been inserted by Bishop Reid in the sixteenth century. This is the same Bishop whom we meet with as Prior of Beauly and Abbot of Kinloss (q.v.)

The doorway has the late form of a three-sided arch, and the mouldings are those common at the period (sixteenth century). In the centre of the lintel is the shield for a coat of arms, now obliterated, but a mitre is still traceable. A benitier adjoins the doorway, and there seems to have been a wooden porch or awning over it.

The tower over the crossing (see Fig. 230.) has been considerably operated upon in modern times. The old wooden spire was destroyed by lightning in 1671, and the tower consequently required repairs. The parapet and pinnacles are modern, as also the pointed and slated roof; but the lower part seems to be of considerable age (see Section, Fig. 227.). The part within the roof of the church is apparently of transition date, and the upper part, with the large pointed windows, is probably of fifteenth century work.{290}

An unusually wide wheel stair leads from the north-west and south-west angles of the transept to the upper parts of the edifice. These stairs are connected with passages which circulate all round the clerestory and triforium in the thickness of the walls (Fig. 247), and give access to every part of the building. They also pass round the tower at each story, and are connected with small wheel stairs in the angles, by one of which access is obtained to the roof.

There would appear to have been, at one time, numerous fine monuments in the cathedral, but they have all disappeared.

An arched recess, with a gablet over it, in the south nave aisle (see Fig. 237.) is now empty, but is supposed, by Sir H. Dryden, to have been erected for some member of the family of the Strathernes, Earls of Orkney.

The altar tomb of Bishop Tulloch, who died soon after 1455, stood between the two eastmost pillars of the choir. It was a handsome erection, and appears to have had a canopy, but not a fragment now exists. A stone cist was discovered between the two east piers of the choir (north side) during the repairs in 1848. It contained a skeleton doubled up, and an ivory crozier and a plate of lead inscribed, “Hic requiescit Wilialmus senex felicis memorie,” and on the back “primus episcopus.” Bishop William the old died in 1168. The cist and bones were carted away with the rubbish in 1856, but the ivory staff handle and the lead plate are preserved in the Museum of the Society of Antiquaries at Edinburgh.

Numerous slabs, with inscriptions of the seventeenth century, have been erected against the nave walls.

At one time the cathedral possessed some fine specimens of woodwork. The canopy over the Bishop’s throne (shown by Billings) has now disappeared.

The alms dishes, which are of brass, 2 feet 5 inches diameter, are of Dutch workmanship of the seventeenth century. They are large and fine of their kind.

The tower contains four bells. Three of these were given by Bishop Maxwell. The great bell (3 feet 5½ inches diameter and 2 feet 9 inches high) has, on a raised shield, the Bishop’s arms, a saltier, with annulet in centre, and under it “NLTAS.” Also the following inscription:—“Made by Master Robbert Maxvell, Bischop of Orkney the yaer of God MDXXVIII the year of the reign of King James the V., Robert Borthwik made mein the castel of Edinbrugh.” There is also in a medallion, containing in seven lines, the following:—“Taken et brought againe heir by Alexander Geddus marchant in Kirkwa and recasten at Amsterdam Jully 1682 years by Claudius Fremy city bell caster. It weighs 1450 P.” On a medallion, a figure with a sword, and, under it SCT MAGNVS. The latter inscription shows that this bell was sent to Amster{291}dam

[Image unavailable.]

Fig. 247.—Kirkwall Cathedral. Plan at Level of Clerestory.

{292}

to be recast, which was required, in consequence of a crack or rift having occurred in it.

The second bell (3 feet 1 inch diameter and 2 feet 5 inches high) bears the following inscription in black letters:—“Maid be maister robert maxvell bischop of Orknay in ye secund yier of his consecration in the zier of god Im Vc XXVIII zeiris ye XV zier of ye reign of King James V.” On a medallion is a figure with a sword, and, under it, “Sanctus Magnus.” Below, “robert borthvik.” Also, on a medallion, the arms of Scotland, and on another, the arms of Maxwell, and on another part, “Ihs.”

The first bell is 2 feet 9 inches diameter and 2 feet 5 inches high. The inscription, in black letters, raised in three lines, is, “Maid be maister robert maxvel byschop of Orknay, ye secund zeir of his consecration ye zeir of gode Im Vc XXVIII zeirs ye XV zeir of Kyng James y V. be robert borthvik maid al thre in ye castel of Edynbrugh.” There are also, on a medallion, a figure of St. Magnus, on a shield the arms of Maxwell, as before, and on another part, “Ihs.” Robert Borthwick, above mentioned, was master gunner to King James IV.

The fourth bell is small (1 foot 8 inches diameter and 1 foot 4 inches high), and is not hung. (See description of St. Magnus by Sir Henry E. L. Dryden, Bart.)

The fabric of the cathedral does not appear to have suffered at the time of the Reformation, but in 1606 an attempt was made by the Earl of Caithness to destroy it. This happened during the rebellion of E. Patrick Stewart, who had taken possession of the Tower, and used it as a place of strength. The demolition was, however, prevented by the intervention of Bishop Law.

The building would appear, in 1701, to have received very improper usage at the hands of the Town Guard, who occupied it as a public place, shooting guns and “drinking, fiddling, piping, swearing and cursing night and day” within the church, and so rendering it unfit for public worship. Great repairs were required in the early part of this century, and the Government, under the belief that the cathedral was Crown property, expended a good deal of money in putting it in good condition in 1848. It was afterwards discovered that the building belonged to the town, when the local authorities took possession of it and replaced in the choir the galleries which had been removed. The choir still continues to be used as the parish church.

ST. BLANE’S CHURCH, Bute.

This interesting ruin stands in a remote valley near the south end of the island of Bute, being about three miles south from the parish church of Kingarth. The site is at a considerable elevation, and commands a fine{293} view of the hills of Arran to the south. A lofty and precipitous wooded hill shelters the valley from the northwards. The building stands on a slightly elevated platform, enclosed with a retaining wall. This enclosure forms an upper churchyard, while another enclosure below it forms a lower churchyard. In former times the upper burial-ground was reserved for men, and the lower one for women.

At first sight the structure at once impresses one as being a Norman building (Fig. 248), from the style of the masonry of the lofty central wall and the east end, which stand out prominently from amongst the ruins. On closer inspection, the church is found to consist (Fig. 249) of an oblong nave, 50 feet 6 inches in length internally by 16 feet 8 inches in width, and a chancel, 26 feet 3 inches long by 13 feet 11 inches wide, separated by the lofty wall above referred to. The latter contains a chancel arch, 5 feet 3 inches in width.

The masonry of the nave is undoubtedly Norman, being in courses of carefully-dressed freestone, with upright joints all breaking band. The west wall has, on account of the slope of the ground, been brought up from a depth of several feet below the level of the floor, and the lower portion is thickened, and has exterior set-offs about the floor level. A base of peculiar form is carried round the building. (See Figs. 248 and 249.) The side and west walls are now reduced to a few feet in height, and there thus remains no trace of any windows. There have been two entrance doorways, opposite one another, in the north and south walls near the west end, of which only some fragments remain.

The chancel arch (Fig. 250) is of good Norman design. On the side next the nave it is in two orders, the inner order having a simple linear or, perhaps, bird’s-beak enrichment, and the outer order is enriched with two series of chevrons, one on the face and the other on the soffit, which leave on the angle a raised lozenge form between them. The arch is enclosed with a label of three-sided section, enriched with a lozenge pattern, and having a small Greek cross in the centre of the arch. Each order rests on the cap of a shaft, the inner shafts being half-rounds, and the outer shafts complete cylinders set in nooks; but these shafts have now disappeared. The caps vary in design, but are of good Norman character.

The bases are much decayed. The abacus of the shafts forms a string course, which was continued round the interior of the nave. It is carved with a saltier-like ornament. A similar string course probably ran round the exterior of the nave. The side of the arch next the chancel is plain, the outer order only having a simple roll on the edge. (See Fig. 248.) The central wall between the nave and chancel is in good preservation, and is carried up with freestone courses resembling the ashlar work of the nave; but the work is coarse, and has probably been rebuilt. Three buttresses, built with whinstone, have been erected at a late period against the south wall of the nave, which seems to have shown signs of weakness.{294}

[Image unavailable.]

Fig. 248. St. Blane’s Church. From North-East.

{295}

The Norman masonry of the nave extends both on the north and south sides for about 13 feet into the chancel, when it stops suddenly against a whinstone wall. A fragment of the Norman string course is traceable on the exterior of the north wall at the west end, and the same base as that of the nave runs along this Norman part of the chancel. There are the remains of a doorway in the south wall.

The remainder or eastern portions of the side walls of the choir are composed in their lower part of whinstone rubble work (both on the exterior and interior), while the upper portions of the side walls are built with freestone, similar to that used in the nave, but executed with very inferior workmanship, especially as regards the jointing and coursing of

[Image unavailable.]

Fig. 249.—St. Blane’s Church. Plan.

the stones. The lower rubble portions of the side walls contain no openings, but the upper freestone portions contain windows. The window in the north wall (see Fig. 248.) is a single-pointed light, with freestone ingoings and sconsion arch. There has at one time been a similar one-light window in the south wall, but at a later date a two-light window has been introduced instead of it. The latter being placed at a higher level than the former, part of the older window still remains below the sill of the later one. The older windows in the side walls are moulded on the jambs; the later one is splayed. A piscina has also been inserted in the south wall close to the window.

The eastern wall of the chancel, like the east portions of the side walls, has the lower part built with whinstone rubble, and the upper portion with freestone. As the ground slopes to the east, the east end{296} wall is carried deeper than the side walls. The lower portion (which extends also for a short way along the north and south sides) is brought up with whinstone rubble for about two feet (see Fig. 248.), when a

[Image unavailable.]

Fig. 250.—St. Blane’s Church. Chancel Arch.

freestone splayed base (quite different from, and at a lower level than, that of the nave) is laid above it. The wall over the base is carried up in the interior with whinstone rubble for nearly four{297} feet (see Fig. 250.), and on the exterior with rubble mixed with freestone for two courses. Above this the wall is built in the interior for two courses, and in the exterior for four courses, with carefully-constructed and jointed freestone blocks, similar to those of the nave walls. A set-off occurs on the exterior above these courses. The upper part of the wall and the exterior of the gable are composed of freestone, built irregularly, like the upper portions of the side walls. The upper portion of the interior is of similar work up to the top of the windows, above which it is of rubble work.

In the east wall there are two single-light pointed windows, similar to the window in the north wall. They have the same mouldings, and similar sconsion arches. The inner sills are stepped in three courses. An ambry is inserted in the east wall.

There is some difficulty in explaining the sequence of the construction, and the comparative dates of all the different portions of the chancel.

In a paper by Mr. William Galloway, in the Archæologia Scotica, Vol. V. p. 217, a very interesting and ingenious theory is propounded thereanent. It is there supposed that the whinstone rubble work is actually a portion of an ancient chapel erected at a very early date, and that the Norman work was built around it, in order, so far as possible, to preserve the venerable remains of the primitive structure. This, it is pointed out, would explain the finely coursed work which occurs above the rubble work on the exterior and interior of the east end wall and adjoining portions of the north and south walls. As regards the inferior freestone work of the upper part of the walls, it is assumed that these are the result of an alteration which took place in the thirteenth century.

If this theory were correct, it would enhance very greatly the interest of the structure, not only by the extreme antiquity it would assign to it, but also by proving the great veneration with which it was regarded, and the unusual tenderness with which it was treated by the twelfth century builders.

It must, however, be confessed that an inspection of the building does not tend to confirm the theory. Several points arise which do not appear to be met by it, such as—(1) How does the splayed freestone base of the east end happen to be laid in the middle of the rubble work? Such a base is practically unknown in ancient Celtic structures. (2) On the north wall of the choir a string course and moulded base exist in the Norman portion, and have apparently run along the outside. Would these simply be butted against the supposed ancient rubble work, or how would they be terminated? (3) Is it at all consistent with the usual action of Norman builders to leave small fragments of ancient rubble work and incorporate them in their structures? Or was it not, on the contrary, their invariable practice to remove such early work? Is it not more reasonable to suppose that the different styles of work which are{298} seen here are the result of alterations and repairs? A study of the building itself certainly tends to strengthen that impression. After a careful inspection of the structure, one feels it impossible to believe that the different portions of the work were other than the result of alteration and patching. It is admitted that the matter is rather puzzling; but we venture to make the following suggestions as to the history of the building.

The chancel was probably all built originally in the Norman style of its existing west half. Some accident overtook it, and the east half was demolished. In rebuilding it whinstone rubble work was chiefly used, but a splayed freestone base course was inserted, where it still remains. The Norman-like courses above the rubble work were derived from the old materials of the demolished Norman portion, and were reused without alteration, as nearly as possible, in the same manner as originally.

It is generally supposed that the imperfect work of the upper portions of the walls is of thirteenth century date, but it is more probably much later. The irregular and inferior workmanship alone seems to prove that, and the windows are of a form which might belong to any date. The sconsion arches are not unlike those of the church at Rothesay, which is not earlier than the end of the fifteenth century.

DALMENY CHURCH, Linlithgowshire.

This edifice is the completest of our Norman parish churches, consisting (Fig. 251) of a chancel with eastern apse and a nave or main building, separated from the chancel by an elaborate chancel arch. As usual in parish churches of this period, there are no aisles. Although the above divisions are complete, the church has not entirely escaped alterations and additions. On the north side projecting wings have been added, which contain a gallery and a north porch, and staircase leading to the gallery. The south front and east end are, however, almost untouched, and show the work of the twelfth century, uninjured save by natural decay.

The church stands beside the quiet and pleasant rural village of Dalmeny, about one mile inland from South Queensferry, and about eight miles west from Edinburgh. Little is known of its history. A charter is signed by Robert Avenel, “parson of Dumanie,” about 1166-82, and in the thirteenth century, during the reign of William or Alexander II., the church was granted to the monks of Jedworth. It is believed to have been dedicated to St. Adamnan,[170] and the fact of the neighbouring church of Cramond being dedicated to St. Columba tends to confirm this belief, as it has been pointed out by Dr. Skene that these{299} two saints’ names are generally found together in the dedication of churches.

The edifice consists of a nave 42 feet long by 18 feet wide, with a projection in the south wall, which contains the doorway. It has three small windows in the south wall. In the interior of the south wall there is a recess, now linteled over, which may have contained a monument.

[Image unavailable.]

Fig. 251.—Dalmeny Church. Plan.

From the rough nature of the masonry at the west end of the nave, a tower would appear to have been intended to be built there. Part of the commencement of its side walls exists, and into these the two buttresses shown on Plan have been toothed or joined at a later period.

The nave (Fig. 252) opens to the chancel with a splendid chancel arch, having three orders decorated with elaborate chevron ornaments, enclosed with a hood moulding carved with an enrichment somewhat resembling the dog-tooth (Fig. 253). The soffit of the arch contains a similar faceted enrichment. The arch is carried on three attached shafts on each side, built in ashlar, and provided with subdivided cushion caps and plain bases.

[Image unavailable.]

Fig. 253.

The chancel (Fig. 254) is 16 feet long by 15 feet wide, and is vaulted with bold diagonal groin-ribs, enriched with chevron ornaments and springing from grotesque corbels (Fig. 255). It has one small window on{300} the south side, with plain splay in the ingoing and plain sconsions and arch.

The apse is semi-circular, and is entered from the chancel by an

[Image unavailable.]

Fig. 252.—Dalmeny Church. Nave, looking East.

enriched arch (see Fig. 254.). The arch has two orders carved with chevron ornaments and a hood mould with faceted enrichment. The shafts and caps are similar to those of the chancel arch. The apse is vaulted like{301} a single square bay, with boldly moulded groin-ribs springing from large corbels carved with grotesque heads (Figs. 256 and 257). The wall is of

[Image unavailable.]

Fig. 254.—Dalmeny Church. View of Apse from Chancel.

plain ashlar, and the apse is lighted by three plain window openings (Fig. 258), the central one of which has been enlarged.{302}

The exterior of the church (Fig. 259) is built with the usual cubic ashlar of the period. All the windows in the building (Fig. 260) have a single pair of shafts with cushion or carved caps, and an arch, of one order, carved with chevron ornament, and a hood mould enriched with faceted patterns. The choir and apse have a boldly projected cornice supported on corbels carved with grotesque heads. The choir has the side walls carried up in the form of a parapet above the cornice, having evidently been raised at some period to the same height externally as the nave. A string course runs round the building immediately below the windows, of which it forms the sills. It is enriched with a carved floral pattern.

The doorway (Fig. 261) is placed in a projecting part of the south wall, and is surmounted by an arcade of interlacing arches, with corbel course above, carved with grotesque heads.

The doorway has two nook shafts on each side, the outer one round

[Image unavailable.]

Fig. 255.—Dalmeny Church. Corbels.

and the inner one octagonal. These are detached and in single stones. They carry enriched caps, three of them having foliage and volutes imitated from the Roman, and one with traces of an animal. A string course, enriched with scrolls, forms an abacus above the caps, and from the abacus spring the arch mouldings in two orders, with carved hood mould beyond.

The inner order of arches contains thirteen voussoirs, each of which is sculptured with a figure. These figures (Fig. 262) are very similar to those often found on the ancient sculptured monuments of Scotland, and have also considerable analogy with the figures carved on the Norman churches of England and on the Continent, thus indicating (as pointed out in the Introduction) the connection between the former and the latter. Commencing at the right-hand voussoir of the inner order, we have (No. 1) a clear representation of the Agnus Dei, bearing the cross in sign of victory; No. 2 seems to represent a serpent, possibly with a{303} human head; No. 3 represents a winged quadruped with a bird’s head; No. 4, a lion (a favourite emblem both in Norman work and Scottish monuments); Nos. 5 and 6 are too much decayed to be intelligible; No. 7 seems

[Image unavailable.]

Fig. 256.—Dalmeny Church. View from the Apse, looking West.

to be a hare running and an animal with scrolled tail at rest; No. 8, a winged bird and serpent; No. 9, a winged dragon with tail passing into a divided scroll, part of which it is biting with its bill; No. 10, a winged{304} griffin; No. 11, a bird with a fish’s tail pecking at a serpent; No. 12, two

[Image unavailable.]

Fig. 257.—Dalmeny Church.

seated human figures clasping hands; No. 13, a nondescript bird and serpent.

[Image unavailable.]

Fig. 258.—Window in Apse.

The outer order of the arch contains eight projecting heads of grotesque form, but some of them much decayed. Alternating with these heads are voussoirs carved with figures somewhat similar to those of the inner order. These, so far as can be made out, are—No. 1, a man with a pair of horses; No. 2, a lion, perhaps crowned; No. 3 seems to represent a number of darts radiating from a centre; No. 4, a centaur or Sagittarius shooting an arrow at an undefined object; No. 5, two seated{305}

[Image unavailable.]

Fig. 259.—Dalmeny Church. From South-East.

{306}

figures, one holding a spear or pastoral staff. At each side of the arch, and resting on the string course, are two detached figures, which recall the figures similarly placed at Whithorn Priory. That on the right represents a man holding a spear, that on the left, although apparently a human figure, is too far gone to be clearly made out.

This doorway is particularly interesting from being, as we believe, the only example in Scotland of similar well-preserved sculptures upon a church. In England, as pointed out by Mr. Romilly Allen, sculpture

[Image unavailable.]

Fig. 260.—Dalmeny Church. Window in Nave and Choir.

of this description is common on Norman structures after 1135, especially on doorways and fonts. It is difficult to form an idea of the meaning of many of these sculptured figures, occurring, as they do, in the strangest juxtaposition. On this point Mr. Romilly Allen observes[171] that “one of the most remarkable features in Norman sculpture is the way in which the Agnus Dei is associated with what appears to us to be the most incongruous surroundings, such as animals, serpents, and a bird at Parwich in Derbyshire; animals and a figure holding a pastoral staff at Hagnaston{307} in Derbyshire; a tree with birds and Sagittarius and Leo at Stoke Subhampton in Somersetshire, &c.” Such descriptions would well apply

[Image unavailable.]

Fig. 261.—Dalmeny Church. Doorway.

{308}

to the doorway of Dalmeny Church, where we have associated with the Agnus Dei, Leo, Sagittarius, serpents, birds, dragons, and human figures, one, perhaps, bearing a pastoral staff.

Numerous similar figures may be also seen on the sculptured monuments

[Image unavailable.]

Fig. 262.—Dalmeny Church. Figures on Inner and Outer Orders of Doorway Arch.

{309}

of Scotland, and thus a connection is observed between these remarkable erections and the sculpture of Norman buildings, which brings the earlier monuments into close connection with the later, and provides them a place in the general history of art in the country. Sculptures of a similar description have, at one time, existed at Dunfermline and Jedburgh, but they are now too far wasted away to be intelligible.

LEUCHARS CHURCH, Fifeshire.

Situated four and a half miles from St. Andrews, and one mile from Leuchars Railway Junction, this church, like that of Dalmeny, forms one of the best-preserved examples of our parish churches of the Norman period. Though not complete, like Dalmeny, the choir and apse of Leuchars, which alone remain, are even more richly decorated with the

[Image unavailable.]

Fig. 263.—Leuchars Church. Plan.

characteristic ornaments of the style than the former. As usual, the church is without aisles.

It is scarcely possible to ascertain the date of these early structures, but we find from the registry of the Priory of St. Andrews that the Ecclesia de Lochres existed in the year 1187. There are letters by Orabile, Countess of Mar, attesting that she was present when her father,{310}

[Image unavailable.]

Fig. 264.—Leuchars Church. View from North-East.

{311}

Nes, the son of William, gave the Church of Leuchars, in Fife (Lochres), to the Canons of St. Andrews, 1171-1199.

Orabile was married to Robert de Quinci. Between 1210 and 1219 Syer de Quinci, Earl of Winchester, gave to the Canons of St. Andrews three merks of silver yearly from his mill of Leuchars for the souls of his

[Image unavailable.]

Fig. 265.—Leuchars Church. 1. Details of Apse. 2. Details of Choir. 3. Corbel in Apse.

grandfather and grandmother, of his father, Robert de Quinci, and his mother, Orabile.[172]

The church (Fig. 263) now consists of a choir, 19 feet 9 inches long by 18 feet wide, with a circular apse, 12 feet 6 inches wide and 12 feet deep. There are traces of an arch at the west end of the choir, which opened into the nave; but the latter is now rebuilt.{312}

[Image unavailable.]

Fig. 266.—Leuchars Church. Interior of Apse.

{313}

The general view (Fig. 264) shows the exterior of the semi-circular apse, with its arcade of two stories, the shafts of the upper tier resting on the arches of the lower one, and all the shafts bearing cushion caps. Those of the lower story are double shafts, and those of the upper story are double

[Image unavailable.]

Fig. 267.—Leuchars Church. Exterior of Choir, &c.

shafts, with a broad fillet between them. All the arches are enriched with chevron and billet mouldings, and the upper tier has an extra order of elaborate billet-work. The string course between the two arcades is carved with zig-zags (Fig. 265). The cornice is supported on a series of boldly-carved grotesque heads, all varying in design.{314}

On the top of the apse vault there has been built, in the seventeenth century, an incongruous turret, which, although not of bad design, is extremely out of place. To support this belfry, a plain arch has been introduced in the interior amongst the Norman work of the apse. (Fig. 266.)

The design of the exterior of the choir (Fig. 267) is similar to that of the apse, there being two arcades, one above the other, surmounted by a cornice, with corbels carved as grotesque heads. The lower arcade, however, has interlacing arches (see Fig. 265.), which indicate a late period of the style. The two arcades are separated by a string course, enriched with scroll floral ornament.

In the interior (see Fig. 266.) attention is drawn to the elaborate carving of the chancel arch, which has two orders of complex chevron ornament, and an outer order or hood mould of four rows of billets. The soffit of the arch is also enriched with chevrons, so arranged as to form a row of lozenge ornaments in the centre. The chancel arch is carried on a central attached shaft and two plain nook shafts, built in courses, with simple cushion caps and plain bases.

The chancel is vaulted with heavy moulded groins, springing from the cushion caps of short single shafts resting on grotesque heads. (See Fig. 265.) A small window is introduced in each of the divisions formed by the shafts, and each window has a pair of nook shafts in the interior and enriched arch above. The lower part of the apse is plain, and is separated from the upper part by a string course, enriched with faceted ornaments.

BUNKLE CHURCH, Berwickshire.

There exist in Berwickshire the remains of a number of Norman churches which, unfortunately, are very fragmentary. This is the more to be regretted, as the portions still remaining of some of them show that they must have been equal, if not superior, in richness of detail to most of the better preserved specimens in other parts of the country. The fragments at Edrom and Legerwood are of the finest Norman architecture, while the extreme simplicity of the work at Bunkle seems to indicate that it is very early in the style. At Chirnside and St. Helen’s but little is left; indeed, the latter is now almost only a memory of the past.[173]

The numerous remains of Norman parish churches scattered throughout Berwickshire point to the direction from which the Roman influence gradually spread over the country.{315}

Amongst these fragments, the small piece of Bunkle Church (Fig. 268) which survives is one of the earliest. It is situated about 4½ miles north-west from Chirnside Station, on the Duns Branch Railway, and stands in the immediate neighbourhood of the fragmentary ruins of

[Image unavailable.]

Fig. 268.—Bunkle Church. Plan and View of Apse.

Bunkle Castle. The building appears to have been entire till about 1820, when it was demolished, and the materials used in the erection of the existing parish church, which adjoins it. Only the semi-circular apse, with the arch leading into it, remains of what was the original parish church. The building is extremely plain, and Mr.{316} Muir[174] suggests that it may be of even earlier than twelfth century date. The apse is about 11 feet in width, and projects 7 feet internally. It has a small round-headed window to the north-east, and another to the south-east, but none to the east. These windows are placed high, and are 18 inches wide on the outside, and are widely splayed inwards. Adjoining the south-east window are the remains of a piscina, about 14 inches square by 11 inches high. The entrance to the apse from the choir is preserved. It is 7 feet 6 inches in width, and 7 feet 10 inches high to the springing of the arch. The wall is 3 feet in thickness. The jambs are plain, and the semi-circular arch is also plain, having one deep square-edged order extending the full thickness of the wall. The impost is a simple fascia, with a small splay on the under edge. The apse is vaulted with a plain semidome similar to that of St. Margaret’s Chapel in Edinburgh Castle, and the roof is formed with overlapping stones. A few stones are observable in the walls of the new church which are carved with zigzag ornaments, and were, doubtless, derived from the old building.

EDROM CHURCH, Berwickshire.

Of the ancient parish church of Edrom, situated about one mile from Edrom Railway Station, there still survives a Norman doorway of beautiful workmanship. (Fig. 269.)[175] It has been preserved by being made the entrance to a burial vault at the west end of the church. This doorway (Fig. 270) is one of the finest of the style in Scotland, and is of considerable size, being 11 feet high and 4 feet 8 inches wide. It has two shafts (one of them a nook shaft) in each jamb, and the ashlar work of the wall forms the support of the outer order. The arch contains three orders, all elaborately carved with Norman enrichments. The inner enrichment (Fig. 271) consists of a series of chevrons; the central order is also ornamented with two sets of chevrons, arranged so as to form lozenge shapes between them, which are filled with delicate carvings. The outer order contains a repeating ornament, arranged in squares, and the whole is enclosed with a small label carved with a delicately foliaged ornament.

The caps of the shafts are somewhat remarkable. Fig. 271 shows those of each side. The cushion caps and the elaborately carved scrolls of the left central cap correspond with ordinary Norman work, but the peculiar and twisted serpent-like forms of the right jamb are remarkable.

It is not quite clear that the doorway is in its original state. There are three capitals on each side, only two of which have shafts. It is not{317} unlikely that the remaining two capitals had either shafts or some kind of decoration continued to the base, as at Iffley or Middleton; Stoney,

[Image unavailable.]

Fig. 269.—Edrom Church. Norman Doorway.

Oxfordshire; or Kirkham Priory, Yorkshire (see Parker’s Glossary). It{318} is also probable that the opening was square-headed, and the tympanum filled with a shield, as at Abercorn and Linton.

The lands and church of Edenham, with Nisbet, were granted to

[Image unavailable.]

Fig. 270.—Edrom Church. Doorway.

St. Cuthbert’s monks by Gospatrick, Earl of Dunbar, and confirmed, in 1139, by David I. The investiture is in favour of the Prior of Coldingham.{319}

[Image unavailable.]

Fig. 271.—Edrom. Caps of Shafts.

[Image unavailable.]

Fig. 272.—Edrom. Angle Buttresses.

[Image unavailable.]

Fig. 273.—Edrom. Arms on Buttress.

[Image unavailable.]

Fig. 274.—Edrom. Shield on Aisle.

{320}

An aisle of some interest is attached to the church. It contains in a panel occupying the position of a niche on one of the buttresses a modern inscription giving the history of the aisle, viz.:—“Founded by Robert Blackadder, Archbishop of Glasgow, in the year 1499.” The only portions of the aisle still preserved which are of any interest are the two angle buttresses (Fig. 272). Both of these have had niches with canopies and corbels for supporting figures. The canopy of one is gone, but a sundial occupies its place. The archbishop’s arms and initials (Fig. 273) are carved on the buttress. His family name is derived from a place of the same designation in the parish. Another shield (Fig. 274), with arms almost obliterated, occurs a little further west.

LEGERWOOD, Berwickshire.

[Image unavailable.]

Fig. 276.—Legerwood Church. Window.

Legerwood stands in the hilly region, about four miles north-east from Earlston Station. The parish church is old, and has been often repaired. Attached to it, but entirely cut off by a wall, are the roofless

[Image unavailable.]

Fig. 275.—Legerwood Church. Plan.

ruins of the original Norman chancel (Fig. 275), which is complete, and measures internally 17 feet 4 inches square. It is fairly preserved, and contains some good Norman work. The chancel arch is entire, but is partly concealed on the face with plaster, and the ingoing is entirely hidden by the stone wall, which separates the chancel from the church. There is a 10 inch diameter round shaft in each internal angle, which is continued up as high as the walls, but there are no indications of vaulting. A small round-headed window, 9 inches wide, is introduced in the centre of the east and north sides (Fig. 276), and apparently a doorway has existed in the south wall. The chancel arch has been large, being about 14 feet 8 inches wide,{321} including the columns, and is enriched with shafts and carving; but, unfortunately, it is so built up that only portions are visible. The caps and mouldings, so far as they can be seen, are shown in Fig. 277. The

[Image unavailable.]

Fig. 277.—Legerwood Church. Caps.

ornament consists largely of square facets, with various forms of sinkings. A small recess, 11 inches deep, 15 inches wide, and 17 inches high, which occurs in the north wall, is

[Image unavailable.]

Fig. 278.—Legerwood Church. Recess in North Wall.

shown in Fig. 278. It has not been fitted with a door.

Masons’ marks are distinctly chiselled on the stones of the chancel. Throughout the chancel there are clear indications of coloured decorations, consisting of a cross or star in red on a circularly-shaped ground of white. Fig. 278 shows one on the wall, and another in the recess.

Till the Reformation the Church of Legerwood belonged to Paisley Abbey, to which it was granted in 1163; but “John Priest of Ledgureside” is found witnessing a charter granted in 1127 by Robert, Bishop of St. Andrews, in favour of the Priory of Coldingham. The modern church appears to occupy the site of the original nave, as{322} its east wall and part of the return of the side walls are old. The nave measures 47 feet 10 inches long by 27 feet 9 inches wide. A piece of stone carved with Celtic interlaced work is built into the south wall near the west end, and on the corner there is a double sundial, bearing the initials W. G., and the date 1682.

CHIRNSIDE CHURCH, Berwickshire.

Another fragment of Norman work survives at Chirnside in the doorway of the ruined church, situated about one mile from Chirnside

[Image unavailable.]

Fig. 279.—Chirnside Church. Doorway.

{323}

Railway Station. The village stands high, and commands an extensive view. The church has been much restored, but the ancient Norman walls in great measure remain. Its size can, therefore, be determined, being 78 feet in length by 23 feet ½ inch in width. The only architectural feature remaining is the doorway on the south side. (Fig. 279.) It is contained in a shallow projection of 9½ inches, which is 10 feet 2 inches in breadth. The doorway is 2 feet 10¾ inches wide, and the height to the lintel is 6 feet 10 inches. The arched head is somewhat peculiar, consisting of two segmental arches, resting on caps placed at different levels.

Each jamb contains two nook shafts (the two outer shafts being modern), with simple bases and cushion caps, the inner cap being lower than the outer. A bead runs round the jambs and square lintel, and the tympanum is plain. Each cap carries an order, the inner order being enriched with a series of chevrons, and the outer order with mouldings. The soffit in both orders is plain. The outer order is enclosed in a small label, which has a break at the termination—a very unusual feature in Norman work.

At the sides of the doorway there are remains of a projection, probably a porch. The church had a western tower, which was taken down in 1750. It was vaulted in stone.

The Church of Chirnside, before the Reformation, was under the patronage of the Collegiate Church of Dunbar. In the taxation of 1176 the Ecclesia de Chirnesyd is valued at 50 merks. The church is probably somewhat older than that date.

ST. HELEN’S CHURCH, Berwickshire.

The ruins of this church stand in a lonely and lofty situation overlooking the sea, about three miles eastward from Cockburnspath. The fabric is now in a greater state of dilapidation than is shown by the annexed views, which are copied from a sketch by James Drummond, R.S.A., engraved in the Proceedings of the Society of Antiquaries of Scotland.[176] It is accompanied by a description and plan by Mr. Thomas S. Muir, from which it would appear that about the middle of this century the east gable wall, which was then entire, was taken down, the stones being used for agricultural purposes, and that most of what is shown of the chancel arch shared a similar fate. The dimensions can still be ascertained from the ruins.

The church (Fig. 280) was a Norman structure, with the exception of the west gable wall, and consisted of a nave about 30 feet 9 inches long by 18 feet wide, and a chancel 15 feet 2 inches long by 11 feet 6½ inches{324} wide. The total internal length was thus about 48 feet 11 inches. The building was barrel vaulted throughout. The apertures where the north and south walls of the nave are shown broken down (see Fig. 280.) probably indicate the position of a north and south doorway. There were two windows

[Image unavailable.]

Fig. 280.—St. Helen’s Church. Plan.

in the south wall, with three shallow arched recesses beneath. (Fig. 281.) These recesses measure 11 inches deep by about 3 feet high, and have not been fitted with doors. Their purpose is unknown. The chancel arch, when entire, measured about 7 feet in width. The stone shown in

[Image unavailable.]

Fig. 281.—St. Helen’s Church. View looking East.

the foreground of Fig. 281 gives an idea of the section of the jambs of the arch, only part of which now remains. A broad band connected with the caps runs along the north and south walls of the nave. The band is decorated with a circular rosette ornament. As will be seen from{325} this view, the arch was flanked on each side by a square recessed opening, similar in position to those at the chancel arch at Tynninghame, but the recesses at the latter are arched. Beneath each of these there is a small opening, as shown on view, about 6 inches square, which goes into the wall for about two feet, but the place is now too ruinous to permit of the matter being further investigated.

The north wall of the chancel is almost entire, and has had no opening. The south wall is nearly all gone, and, as already stated, nothing remains of the east wall. The narrow east window, with its wide internal splay, appears to have been set in a recess, and enriched round the arch and down the jambs with a single chevron ornament.

[Image unavailable.]

Fig. 282.—St. Helen’s Church. West Gable Wall.

The west gable wall (Fig. 282) has been rebuilt in the fourteenth or fifteenth century. It is without opening of any kind, save the numerous putlog holes used for the masons’ scaffolding when erecting the building.

This was the church of Aldcamus, incorporated before the year 1750 in the parish of Cockburnspath. The manor of Aldcamus was granted by King Edgar (1098-1107) to Durham, and “thenceforth belonged to the monastery of Coldingham, as a cell of Durham.”[177] How long after this date the church was built we do not know; but as Chalmers remarks in a footnote that it was the manor, not the church, which Edgar granted to Durham, it may be doubted whether the church then existed. It appears to have fallen into ruin about the time of its annexation to Cockburnspath.{326}

TYNNINGHAME CHURCH, Haddingtonshire.

The few relics which survive of this ancient monastery lie buried in a thick clump of trees, which stands between the modern mansion of Tynninghame and the river Tyne, about three miles north-east from East Linton. This was one of the churches dedicated to St. Baldred, of which there were several on the East Coast. That Saint seems to have selected the Bass Rock as his place of abode, whence his fame spread through the adjoining regions. He is believed to have come from the establishment of the Columbans at Lindisfarne, whose diocese extended as far as the Frith of Forth. He died in 606. The foundation of Tynninghame was laid by St. Baldred, or Blathere,[178] and the church continued as a separate parish till 1760, when it was united to Whitekirk.

[Image unavailable.]

Fig. 283.—Tynninghame Church. Plan.

What remains of the structure is of Norman architecture, and exhibits elaborate ornamental work of that style. The plan of the church (Fig. 283) is in part still traceable. The west end of the choir, with its great arch (Fig. 284), is fairly preserved, and the outline of a rectangular choir, about 18 feet in length by 17 feet in width, is observable, although the side walls are greatly demolished.{327}

[Image unavailable.]

Fig. 284.—Tynninghame Church. West End of Choir.

{328}

The nave, if it ever existed, has entirely disappeared. At the east end an enriched chancel arch still survives (Fig. 285), and also portions of pillars, which indicate that there has been an eastern apse.

The western arch (see Fig. 284.) is supported on a series of nook shafts, some of which are broken away. These carry simply formed caps, with

[Image unavailable.]

Fig. 285.—Tynninghame Church. Arch of Apse.

square abacus, carved with scale work. The arch contains three orders enriched with ornaments and a label. The first and third orders are enriched with very elaborate chevron ornaments; the central order has the billet and the hood mould, a series of small semicircles placed back to back. An arched recess occurs in the wall at each side of the central{329} arch. That on the north side is original, and is ornamented with the chevron. The arch on the south side has been renewed. It is not clear what purpose these arches served, but most probably they contained altars. Arched recesses in this position, although not common, are sometimes found in Norman churches. The arch of the apse (see Fig. 285.) is enriched in three orders, and the caps of the shafts have volutes (Fig. 286). Two of the pillars which formed part of the apse survive. The details of the caps and central band are shown in Fig. 286.

Many of the smaller ornaments of this structure are very beautiful, and are well preserved. On the south side (see Fig. 284.) there remains the recessed pointed arch of a monument, in which parts of a decayed recumbent effigy are visible. The three shields on the top give it a picturesque effect.

[Image unavailable.]

Fig. 286.—Tynninghame Church. Caps in Apse.

The ruined church is now used as the family mausoleum of the Earls of Haddington.

STOBO CHURCH, Peeblesshire.

This church is situated in the valley of the Tweed, six and a half miles west from Peebles, and within one mile of Stobo Railway Station. It is

[Image unavailable.]

Fig. 287.—Stobo Church. Plan.

{330}

[Image unavailable.]

Fig. 288.—Stobo Church. View from South-East.

{331}

a Norman structure, to which some alterations and additions have been made in the sixteenth and seventeenth centuries. The building is still used as the parish church. The roof and interior fittings are modern, as are also the skews and gabled skew putts, of which latter there was no suggestion in the old work. But the most serious injury inflicted on the

[Image unavailable.]

Fig. 289.—Stobo Church. Norman Doorway.

structure was the entire destruction of the Norman chancel arch at the restoration of the building in 1868, “in order to insert a modern pointed one.”—(Transactions of the Aberdeen Ecclesiological Society, 1887, p. 6.)

The building (Fig. 287) consists of a nave about 40 feet long by 18 feet 7 inches wide, with a chancel about 24 feet 4 inches long by{332} 16 feet wide, thus making the total interior length about 67 feet 4 inches. There is a tower at the west end, about 20 feet square over the walls, and 11 feet by 9 feet 6 inches inside. The tower has originally opened into the church with what appears to have been a round arch, which is now partly concealed by a gallery and other erections. This opening has been reduced in size, as shown on the plan, to a doorway about three feet wide. The doorway is pointed, and of old date.

As the whole building is harled or rough cast on the outside and plastered on the inside, it is impossible to say definitely whether the tower is Norman or later. The work of the sixteenth and seventeenth centuries consists of the south porch (Fig. 288), built up against the Norman doorway (Fig. 289), and a north aisle or chapel, which opened from the nave with a round arch, now built up. This chapel, which is ruined, was barrel vaulted. The windows in the south wall are also of this period. The mullions and tracery of those of the nave are modern, as is also a monument erected against the interior of the east wall, which may possibly conceal a Norman east window. The four-light window in the south wall of the chancel (Fig. 290), although of this late period, is quaint and pleasing, the small circle in the apex giving it quite a touch of originality.

[Image unavailable.]

Fig. 290.—Stobo Church. Window in South Wall of Chancel.

A round arched recess for a monument in the north side of the chancel also belongs to this period. It has contained a coat of arms, which is effaced.

The original windows in the north side of the chancel remain. The daylight is about 7 inches wide by about 2 feet high. There has been a Norman doorway in the north side of the nave. It has a plain arch, and was probably not unlike the doorway in the opposite wall, which is of very simple design, with octagonal shafts. The capitals are slightly mutilated.

The window to the west of the porch is modern, as are the doorway and stair in the tower. The latter is of wood, and leads to the gallery already referred to. There does not appear to have been a stone stair in the tower. The belfry is late, as is the present tower roof. It is impossible to say how the tower was originally finished.

The walls being lined with wood on the inside, the usual fittings are{333} concealed, the only feature visible being the locker, shown on Plan, near the east end. It is widely splayed in the ingoing, and is not Norman. The south chancel door is probably of the period of the adjoining windows.

Stobo Church, like most of the churches of Peeblesshire, “belonged to the diocese of Glasgow at the epoch of Earl David’s Inquisitio in 1116, and both the church and manor were confirmed to that see, by several bulls of successive Popes, in the twelfth century.” In Bagimont’s Roll (1275) it is mentioned as the “Rectoria de Stobo” and the “Vicaria de Stobo.”[179] It was the church of a Plebania,[180] having subordinate churches or chaplainries within its territory, over which its priest, who was styled dean, exercised a certain authority. There were four subordinate parishes—viz., Broughton, Dowie, Drummelzier, and Tweedsmuir. In 1116 the rectory of Stobo was converted into the valuable prebend of Tweeddale in Glasgow Cathedral.

DUDDINGSTON CHURCH, Mid-Lothian.

This ancient Norman edifice has formed the place of worship for the locality since the twelfth century, and is still used as the parish church. It is picturesquely situated on the north side of Duddingston Loch,

[Image unavailable.]

Fig. 291.—Duddingston Church. Plan.

immediately under the south side of Arthur’s Seat, and within a mile of Edinburgh.{334}

[Image unavailable.]

Fig. 292.—Duddingston Church. From South-East.

{335}

The structure has undergone many alterations during the six centuries of its existence, but still retains its original Norman character to a greater extent than at first sight might be supposed; indeed, it is one of the best preserved examples we have in Scotland, although the introduction of a

[Image unavailable.]

Fig. 293.—Duddingston Church. South Doorway.

few prominent features in later times, such as the windows and buttresses, have somewhat detracted from its antique appearance.

The building appears to have originally consisted of a nave and chancel; if it had a tower, it must have been of smaller dimensions than the present one, as the base of the west wall abuts against the side walls{336} of the present tower instead of returning along it, as it would otherwise in all likelihood have done.

The nave (Fig. 291) measures about 33 feet 4 inches long, and was probably about 19 feet wide inside. The chancel is about square, being 16 feet 1½ inch from east to west by 15 feet 6 inches wide, the total inside length of the church being 52 feet 9 inches.

On the outside a series of pilaster buttresses divided the nave into four bays; these still exist along the south side, measuring about 2 feet on the face, and having a projection of 9 inches, with a large base returned round them. To these pilasters massive buttresses (Fig. 292) projecting three feet have been added. At the corners of the church the original angle pilasters remain unaltered. The old doorway in the west bay of the south side (Fig. 293) still continues unchanged, except that it

[Image unavailable.]

Fig. 294.—Duddingston Church.

is built up, and has an incongruous granite slab occupying the whole space. The opening of the doorway is about 4 feet 2 inches wide. The arch is richly sculptured with the chevron in two orders, the inner order being supported on shafts decorated with the chevron in a manner not found, we think, anywhere else in Scotland. On one of these shafts there are two sculptured scenes. The upper one represents the Crucifixion. (See Fig. 293.) The lower one (Fig. 294) shows a figure holding aloft a drawn sword; beside the sword, in the shade where the shaft disappears at the jamb, there is what looks like a key, possibly the symbol of St. Peter, so that the subject may be the incident of cutting off the ear of the High Priest.

The chancel arch (Fig. 295) is the only Norman feature now remaining in the interior. It is in two orders, having on the outer order the usual chevron ornament, with a notched hood moulding similar to what is found at Dunfermline. The inner order has a bold bead on the edge. The arch is quite plain on its inner face towards the chancel. It is carried by three semi-shafts (Fig. 296), with cushion caps and simple bases. The abacus has been carved with facets.

On the exterior of the chancel there occur on the north and south sides (see Fig. 292.) characteristic Norman corbels supporting the wall-head parapet. These consist generally of the usual bridled heads and monstrous faces, but they are now very weather-worn.

The north wall of the nave has been taken down and a north aisle added (see Plan), apparently in the year 1631, as that date (Fig. 297) is carved on a window lintel of the east wall. In the north gable of this aisle there are two traceried windows, somewhat after the style of the Perpendicular Period. (Fig. 298.) It will be observed that the mouldings of the loop form of the tracery do not mitre with the arch mouldings.{337}

At a later period a central window, without tracery, has been placed in the north wall of the aisle. It corresponds exactly with the windows

[Image unavailable.]

Fig. 295.—Duddingston Church. Chancel Arch.

seen in the south side, and with the one in the east wall of the chancel, judging from which it was probably at this later period that all the{338} present windows, seen in Fig. 292, were inserted. The original windows were, doubtless, the usual small windows found in Norman churches, and when they came to be enlarged, the builders probably increased the buttresses to compensate for the weakening of the wall, and added the conical finials on them and on the gables (see Fig. 292.). It is obvious that to this period also the upper part of the tower belongs. The lower part of the tower, although not of the original structure, is, we are inclined to think, of considerable antiquity; it opens into the church with a plain, round arch. The staircase shown in it and on the north aisle lead to galleries.

[Image unavailable.]

Fig. 296.

Jamb of Chancel Arch.

[Image unavailable.]

Fig. 297.

Lintel in East Wall, North Aisle.

[Image unavailable.]

Fig. 298.

Window in North Aisle.

During the reign of William the Lion (1165-1214) the church and lands of Dodin-ston were acquired by the Abbey of Kelso, but from whom they were acquired is not known. There were several persons of the name of Dodin, but the one who gave his name to this place does not appear to be known. But there was a “Hugo filius Dodini de Dodines-tun” who witnessed a charter to the Canons of Holyrood in the time of William the Lion (Dalrymple Collection, Pref. lxvii.; also, Caledonia, Vol. II. p. 791.)

In 1296 John Combale, the vicar of Dodinestun, swore fealty to Edward I.

In the ancient Taxatio (end of twelfth century), Duddingston Church is rated at twenty-five merks.{339}

ST. ANDREW’S CHURCH, Gullane, Haddingtonshire.

The village of Gullane lies in the parish of Dirleton, about four miles north-west from Drem Station, and half-a-mile from the sea.

The old church of St. Andrew is now a roofless ruin, thickly clad with ivy, and standing in the middle of the ancient churchyard. The church was bestowed early in the thirteenth century on Dryburgh Abbey by Sir William de Vaux, and in 1446 it was erected into a collegiate institution by Sir Walter de Haliburton. Both these knights were the proprietors of the Castle of Dirleton in the vicinity.

The structure (Fig. 299) consisted of nave and chancel, the chancel being entered from the nave by a semicircular chancel arch, almost the only remnant of the edifice of the twelfth century which survives.

[Image unavailable.]

Fig. 299.—Gullane Church. Plan.

The chancel as it now stands is 35 feet in length by 15 feet 6 inches in width internally. The eastern portion is a comparatively recent addition, and has a square east wall, but it is believed that the chancel formerly terminated towards the east with an apse. Part of the old south wall of the chancel, extending to about 20 feet in length, still remains. It contains two pointed windows, with late mouldings on the exterior, probably fragments of the restoration of the fifteenth century, at the time when the church was made collegiate. These windows have been reduced to mere slits by being built up with slabs in the interior. This filling up was probably inserted when the place was converted into a burial-ground for a private family, in order to prevent entrance through the windows.

The south wall of the nave is still about 72 feet in length, but the north wall is reduced to about 43 feet long. The west end is gone, and the nave has been divided up into private burial-places. The windows which remain in the south wall of the nave have been much altered in Presbyterian times, having had flat lintels, &c., introduced.{340}

The chancel archway (Fig. 300, 301) is 8 feet in width. It has square jambs on both sides of the wall, and a central half shaft on each jamb of the opening. The caps of these shafts (see Fig. 301.) are fairly preserved, and

[Image unavailable.]

Fig. 300.—Gullane Church. West Side of Chancel Arch.

{341}

show a form of volutes, with a cabled necking and a three-sided abacus, which was continued as a string course along the walls on each side.

The arch has been built up, but the two plain orders of the east side are visible, and the outer order on the west side (Fig. 300), carved with a bold chevron and finished with a three-sided hood, is well preserved. There can be no doubt as to this part of the structure being of Norman origin, and the north wall of the nave has a three-sided string course, which seems to indicate the same date, but the remainder of the structure

[Image unavailable.]

Fig. 301.—Gullane Church. East Side of Chancel Arch.

has been greatly altered. The earth inside the choir has been filled up to near the caps of the chancel arch. A round arch in the north wall of the chancel appears to belong to a side door at the original level of the floor.

An “aisle” or wing has been built out to the north from the nave. It has been entered by a large semicircular arch from the nave, and has had a large north window, but these openings are now built up. This erection seems to be of about the time of the Reformation.{342}

UPHALL CHURCH, AND ST. NICHOLAS’ CHURCH, Strathbroc, Linlithgowshire.

The Church of Uphall is a Norman structure throughout, and consists of nave, chancel, and a western tower. It has been subjected to various

[Image unavailable.]

Fig. 302.—Uphall Church. Plan.

alterations and extensions, but the original plan is still perfectly clear, and is shown by Fig. 302, which ignores the changes, except the addition of the south aisle or wing. The building has no side aisles.

The nave measures about 35 feet long by 15 feet wide, and the

[Image unavailable.]

Fig. 303.—Uphall Church. Doorway.

{343}

chancel 30 feet 6 inches long by 13 feet wide. The doorway (Fig. 303) is in the usual place at the west end of the south front. It is of Norman design, having a nook shaft at each side, with cushion cap and plain square abacus. The arch is round, and has two orders, the inner order being square edged, and the outer composed of mouldings, and having a moulded label. It is probable there was some piece of carving beneath the arch, or else the square lintel is an alteration. A stoup adjoining in the south wall has a pointed opening, and probably dates from the fifteenth century. There is another doorway opposite in the north wall, which is perfectly plain, and, so far as it can be seen, it appears to be original; but, as the lower parts of the walls are covered with wood boarding, other requisites which may exist, such as ambries and piscina, are concealed. None of the windows are original, so far, at least, as they are seen on the exterior, and the whole masonry on the inside is covered. The east window in the south wall (Fig. 304) has a horizontal arched lintel, with radiating joints, and probably dates from late in the fifteenth century. It is impossible to say whether there were windows in the east wall or not, and, as regards the north wall, it has nearly all been taken down between the west door and the chancel arch, in order to admit a modern addition. The chancel arch itself has been taken away, and the

[Image unavailable.]

Fig. 304.—Uphall Church. Window in South Wall.

wall above removed, and the place occupied by it has been filled up with lath and plaster, and slated on the outside.

The western tower (Fig. 305) has been appropriated as the burial-place of the Buchan family; so that it now forms no part of the church. It is entered by a fanciful Norman door in the west end. The windows in the tower are all modern, and so, we need hardly say, is the belfry. The upper part of the tower has been rebuilt at a late period, probably during the fifteenth century alteration.

The south aisle probably dates from the seventeenth century, and was built by the Shairp family, whose mansion house of Houston is in the neighbourhood. It is now partly used as their burial aisle, and is a quaint structure, forming an agreeable contrast to the modern additions.

The parish of Uphall was formerly called Strathbroc, and at this place, near the modern mansion of Kirkhill, and about one mile east from Uphall, stood the old parish church, dedicated to St. Nicholas, which was abandoned in the sixteenth century, when the Church of{344} Uphall became the parish church. What kind of building it was before this does not appear to be known. The Rev. Mr. Primrose, who has devoted much attention to the antiquities of the locality, suggests that it was the chapel of some order of monks.

[Image unavailable.]

Fig. 305.—Uphall Church. Western Tower and South Wing.

Of the Church of Strathbroc only two relics now remain. The one is the font (Fig. 306), of which the basin only is old. It was rescued from the adjoining farm steading, where it served a useful, if not dignified, purpose, and placed on its present base, and now stands in the Roman Catholic Church of Broxburn. It is octagonal in shape, and contains (Fig. 307) the letters M· and IHS·, repeated twice. Two of the faces bear the inscriptions

STA
ECCLESIA·

and NICOLAS·, and two faces are vacant.{345}

The other relic of St. Nicholas is the bell which now rings in the parish church of Uphall. It contains the inscription “Campanum Sancti Nicholai de Strathbroke, 1441.”[181] Mr. Primrose states that the bell was recast in 1503, and contains the Seton arms—Kirkhill at this period belonging to that family.

[Image unavailable.]

Fig. 306.—Strathbroc Church. Font.

[Image unavailable.]

Fig. 307.

{346}

ABERCORN, Linlithgowshire.

The ancient church of Æbbercurnig, or Abercorn, lies in a sheltered spot amidst the fine woods surrounding the grounds of Hopetoun House, about three miles west from Queensferry.

[Image unavailable.]

Fig. 308.—Abercorn Church. South Doorway.

It is believed that when the Northumbrian kingdom was extended to the Forth in the seventh century, a church was founded here in 675, under St. Wilfrid, as a central point from which to superintend the northern part of his diocese. Under Trumuini, this church became the see of the earliest bishopric in Scotland, during the years from 681 to 685. But the victory of the Picts over the Northumbrians at Dunichen caused the latter to retire from Lothian, and drove the monks back to Whitby. The site, however, continued to be occupied by a church, and part of the existing structure belongs to the Norman period. It has been very greatly altered in modern times—so much so, that a round-headed doorway (Fig. 308) in the south wall is now almost the only portion remaining which can be

[Image unavailable.]

Fig. 309.—Abercorn Church. From South-East.

identified as of Norman date. This Norman doorway has the usual nook shafts, with cushion caps, and the lintel within the round arch is square. The tympanum is filled with stones, arranged in zig-zag patterns, and is one of the few examples in Scotland of a tympanum filled with a shield containing ornament of any kind.

Several burial-places have been added on the south side of the church{347} since Reformation times. (Fig. 309.) These can generally be identified by the coats of arms they bear.

To the north-east of the church there has been erected, probably in the eighteenth century, a house of two stories as a place for the lord of the manor, from which he obtained access to his private gallery, erected about that time at the east end of the choir, which it still disfigures.

In the churchyard there are many interesting tombstones, and amongst them are two stone monuments of rather unusual form. (Fig. 310.)

[Image unavailable.]

Fig. 310.—Abercorn Church. Monuments.

These consist of solid stones, doubtless intended to be laid over graves, triangular in section, with the ridge rising to the centre. One has the sides carved with figures of fish-scale pattern, arranged in rows; the other has the scales of a squarer shape. The ends are broken. They are good specimens of the hog-backed form of tombstones.

KELSO ABBEY, Roxburghshire.

In 1113, David, Earl of Huntingdon, introduced thirteen Reformed Benedictine monks from Tiron, in France (hence called Tironenses), and settled them at Selkirk, near his castle there. But the place was not found suitable, and in 1128, after David had become king, the monks, with the consent of the Bishop of Glasgow, were removed to Kelso, where they were established near the royal castle of Roxburgh. The foundation of the new abbey was laid in 1128, and the church was dedicated to the blessed Virgin Mary and St. John the Evangelist. The monastery soon became the richest and most powerful in Scotland. In 1165 the Pope granted permission to the abbot to wear the mitre, and the abbot claimed precedence of all the superiors of monasteries in Scotland. But in 1420 this precedence was decided by James I. in favour of the Prior of St. Andrews. Many of the abbots of Kelso were men of learning and celebrity, and were employed in important offices in and out of the kingdom, and others were promoted to bishoprics.

During the War of Independence the abbey, which lay near the Border, suffered severely. The monastery was laid waste, and the monks were supported by contributions from the other houses of the order. In 1344, the buildings of the abbey having been destroyed by fire, David II. granted permission to the monks to cut wood in Selkirk and Jedwart Forest, to enable them to carry out the necessary reparations.{348}

In 1511 the abbacy passed into the hands of the Bishop of Caithness, as commendator, and its decline soon followed. After the Battle of Flodden, in 1513, David Ker of Cessford took possession of the abbey, and had his brother made abbot. In 1522-3 invasion and havoc spread over Teviotdale. Lords Ross and Dacre pillaged the town, sparing the

[Image unavailable.]

Fig. 311.—Kelso Abbey. Ground Plan.

abbey; but in 1523 Lord Dacre sacked and burned it. The abbot’s house and buildings surrounding it, the Chapel of the Virgin, and the cells of the dormitory were all reduced to ashes; the lead was stripped from the roof, and the abbey rendered uninhabitable. All religious services were stopped, and the monks had to retire in want and poverty to a village{349} near. From 1536 till 1558 James Stewart, natural son of James V., filled the office of abbot, and drew the revenues. In 1542 the Duke of Norfolk,

[Image unavailable.]

Fig. 312.—Kelso Abbey. South Side of Chancel and South Transept.

{350}

and in 1545 the Earl of Hertford, again attacked and further destroyed the monastery. On the latter occasion the defenders sought refuge in the tower, which they defended till darkness enabled some of them to escape. The shattered walls seem still to have afforded some shelter; but they

[Image unavailable.]

Fig. 313.—Kelso Abbey. From South-East.

were again still further reduced by Lord Eure in 1546. Finally, in 1560, when a few monks still remained, the buildings were attacked by the mob, and all the remaining fittings and furnishings destroyed. In 1559 the revenues and property of the abbey had been taken possession of by the Lords of the Congregation in the name of the Crown.{351}

These were afterwards distributed amongst the favourites of James VI., and were finally conferred on Sir Robert Ker of Cessford, who was created

[Image unavailable.]

Fig. 314.—Kelso Abbey. Crossing and North Transept.

{352}

Lord Roxburgh in 1599. The abbey still belongs to his successor, the Duke of Roxburgh, and the remains of the late Duke are buried in the south transept.

In 1649 a vault was thrown over the transept, so as to convert it into a parish church, and above this another vault served as a prison. This is shown in Grose’s view, made a century ago.

[Image unavailable.]

Fig. 315.—Kelso Abbey. From West.

During service on a Sunday in 1771, a panic was caused by the fall of a fragment of cement, and the church was thereafter abandoned. The ruins were partly disencumbered by the Duke of Roxburgh, 1805-16, and in 1823 the buildings were repaired by the noblemen and gentlemen of the county.[182]{353}

After the many batterings and the long neglect the abbey church has endured, it is astonishing to find even the fragments which still exist.

The edifice has consisted (Fig. 311) of a choir or chancel of considerable length, with north and south aisles, and of a transept and nave, without aisles. The north and south divisions of the transept and the nave form three arms of equal length round the three sides of the crossing, above which rises the massive square tower.

The church has been originally constructed in the late Norman style of about the end of the twelfth century, passing into the transition style; but the upper part of the tower has been rebuilt at a later period.

A portion of each of the departments of the church survives, but in the case of the chancel there remains only a fragment. The chancel is the only part which had aisles, but these have now entirely disappeared; and of the chancel itself, all that remains (Fig. 312) is two of the south main piers, with their arches, and two stories of arcades above, which represent the triforium and clerestory. This arrangement is peculiar, and the effect is striking.

[Image unavailable.]

Fig. 316.—Kelso Abbey. West Doorway.

The main piers consist of a circular column, five feet in diameter, with smaller attached half-columns on three sides to carry the moulded arches between the main piers and the arches between the latter and the aisles. The piers have caps of the usual Norman modified cushion pattern, and the arches were moulded and arranged in several orders. The arcade immediately over the main arches has a row of single round shafts, with spreading Norman caps, which carry a series of moulded arches, occupying the position of the triforium. The upper arcade, which takes the place of the clerestory, has shafts of triple form, with wide-spreading bases and caps of Norman and transition design. On the latter rest the round boldly-moulded arches. The arches opposite the windows in the outer wall are slightly larger than the others. It will be observed that there is no main vaulting shaft carried up over the main piers, as is almost invariably the case, for the purpose of strengthening the wall. On the contrary, the triforium arcade{354} is continuous, and no provision is made to support the side wall, except the single shafts of the running arcade, which have a very weak effect. In the usual arrangement the triforium arches are separated by a substantial piece of wall, including a vaulting shaft, and the triforium arch, which is generally subdivided into several subordinate arches, is introduced between the vaulting shafts.

That is a much more substantial form of construction, and also more satisfactory to the eye, than the plan adopted here of a simple continuous arcade.

[Image unavailable.]

Fig. 317.—Kelso Abbey. North End of Transept.

The clerestory is designed on the same principle as the triforium, and consists of a continuous arcade, without the interruption of the vaulting shafts.

In the view of the exterior of this portion of the choir (Fig. 313), the outside of the windows of the clerestory is visible, being simple round-headed openings, with flat buttresses between them. The remainder of the wall is plain, but, judging from the level of the triforium window, the vaulting of the aisle, which was very high, and partly covered the windows, seems to have been added at a later date. The choir was 28 feet in width from centre to centre of the piers, only two of which survive.

The crossing is square, and measures 28 feet from centre to centre of the piers; but of these the north-east one is wanting. The piers are about nine feet square, that at the south-east angle standing detached in consequence of the opening into the south aisle, while those at the north-west and south-west angles are incorporated with the walls.

The piers are designed as a series of shafts set in square nooks (four on each of the complete sides), with a larger semicircular shaft at each angle. (See Figs. 312 and 314.) The shafts are all built in courses with the piers. They have transition bases and caps. From{355} the latter spring large pointed arches, with plain chamfered orders. The pointed arch indicates the transitional character of this part of the building. It was probably introduced in this position to give strength to sustain the tower.

As already mentioned, the three arms of the cross branching to the north, south, and west from the crossing are of equal size. This is a

[Image unavailable.]

Fig. 318.—Kelso Abbey. Doorway of North Transept.

very unusual arrangement, the western arm or nave being generally much the longest division of the church. We have not heard any satisfactory explanation given of the shortness of the nave of Kelso. This arrangement of plan has apparently been part of the original design, as the western doorway (Figs. 315 and 316) is one of the most prominently Norman portions of the edifice. The upper part of the west front (see{356} Fig. 315.), although much broken away, has been in the transition style; while the Norman arcading, which runs round the interior of the nave, was continued across the west end.

The nave and the north and south transept each measure about 22 feet in width by 18 feet in length. Each contains four stories in height (Figs. 315 and 317), consisting of an interlacing arcade of Norman work in the interior of the ground level, and three stories of windows above. The upper arcades of the choir do not extend round the nave and transepts, except in a portion of the south transept. (See Fig. 312.) Another arrangement was found desirable in those portions where there were no aisles, as windows could be obtained in that case; while, with aisles (as in the choir), the first floor was darkened by the roof of the

[Image unavailable.]

Fig. 319.—Kelso Abbey. Plan of Doorway in North Transept.

aisles. The windows in the different stories of the nave and transept have all round arches, both outside (see Fig. 315.) and inside, the former having one plain square-edged order supported on nook shafts. Of these the caps and bases only are now for the most part in existence. The exterior is marked at each angle by broad and shallow Norman buttresses, with nook shafts in the angles, and an interlacing arcade running round the lower story, both internally and externally.

In the façades of the west end and north transept the windows of the different stories have been grouped so as to form distinct designs. In the west end, over the great west doorway (see Fig. 315.), there has been an arrangement of tall windows of apparently lancet form, having on either side an interlacing arcade of round arches, supported{357} on tall banded shafts. This is now, unfortunately, greatly destroyed. Above the arcade there runs a horizontal flat cornice, enriched with several rows of carved ornaments, and this was surmounted by a large opening of quatrefoil shape, surrounded with numerous mouldings and enrichments. The angle buttresses have been crowned with octagonal turrets.

[Image unavailable.]

Fig. 320.—Kelso Abbey. Section through Transept from North to South.

The north wall of the north transept (see Fig. 317.) has a fine transition door-piece (Fig. 318), which occupies the two lower stories. The next two stories have two windows in each, separated by a small buttress, the upper one of these stories having three arches in the interior. (See Fig. 314.) Above these stories is a small circular window, with a curious saving arch over it, and the whole is crowned with a top story,{358} containing three round-headed openings, and a gable with a small circular aperture. The buttresses at the angles are crowned with circular turrets, which have been finished with a projecting parapet, the corbels for carrying which still survive. The upper part of the gable shows signs of having been altered.

It may be pointed out that the west front and the façade of the north transept are good illustrations of the Norman and Transition styles

[Image unavailable.]

Fig. 321.—Kelso Abbey. Plan at Triforium Level, showing Passages in Walls, &c.

of designing such elevations. The north transept shows the early manner of dividing the façade into several stories, piled one above the other; while the west front, which is chiefly in the transition style, indicates the beginning of the later form of façade, in which the whole front is treated as a single design.

The west doorway and the north door-piece are especially interest{359}ing. The former is a remarkably rich specimen of the elaborate carved work which characterised the late Norman period. Unfortunately, the south half of this door-piece has perished. But, from what remains (see Fig. 315.), it is evident that it consisted of a large door-piece, or quasi-porch, projecting upwards of 5 feet, and finished with a sloping gable, with

[Image unavailable.]

Fig. 322.—Kelso Abbey. Plan at Clerestory Level, showing Passages in Walls, &c.

stone roof. The jambs (see Fig. 316.) contained five detached shafts set in nooks, and having Norman bases and carved caps. Over each of these shafts there springs a circular order, carved with rich Norman ornament, now, however, very much decayed. The jambs of the doorway also formed moulded shafts, supporting their order in the arch.

The door-piece in the north wall of the transept (see Fig. 318.) is also{360} a prominent feature. It projects about 4 feet 6 inches from the main wall, is carried up two stories, and is roofed in with a sloping stone roof.

The lower story contains the doorway (Fig. 319), which is 5 feet 6 inches wide, and has plain jambs. It is set back about 3 feet 6 inches, and the ingoing for about 2 feet is square, and contains two shafts of ordinary size, with a small one between them; then follows a nook containing a shaft, and then the jamb. The shafts have the usual Norman caps and bases. The mouldings of the arch (see enlarged outline in Fig. 319.) are peculiar in their profile. They are enriched—the outer one with small medallions, the central one with the billet, and the inner one with rosettes. Above the archway there is an arcade of interlacing round arches, the shafts, which are gone, having Norman caps. The tympanum of the gable is covered with a reticulation of round beads or rolls.

[Image unavailable.]

Fig. 323.—Kelso Abbey. Upper Stages of Tower.

The tower (see Figs. 315 and 320), of which the south and west sides and a small portion of the north and east sides remain, is 35 feet square over the walls. It is carried up with plain masonry externally, but the interior has immediately over the great arches of the crossing an arcade of round moulded arches, supported on triple shafts similar to those of the choir. Above this arcade is another story containing simple round arched openings, which are lighted on the exterior by circular windows containing quatrefoils. Over this tier is the top story, which contains three pointed and deeply-recessed windows on each side of the tower. Broad flat buttresses are placed at each angle of the tower, similar to those of the main building, and these were, no doubt, originally finished with turrets like those of the transepts.

It has already been said that the upper part of the tower is later than the lower part. This is apparent from the pointed windows of the top story, and the quatrefoiled circular windows of the story beneath. The{361} lower story immediately over the great arches is, without doubt, of about the same date as the choir.

The approach to the upper floors is now by one staircase in the north-west angle of the transept, but there were, doubtless, other similar staircases in parts of the structure now removed. This staircase gives access to passages which run round the building on every floor (Figs. 321 and 322) between the arcades and the outer walls. In the angles of the tower there are small wheel stairs leading to every floor, and passages running round the tower on every story (Fig. 323.) These arcades and passages have tended to weaken the structure, which it has been found necessary to strengthen with numerous iron tie-rods, iron beams, &c.

There was an outer door in the south-west angle of the transept, and another in the north wall of the nave adjoining the crossing.

[Image unavailable.]

Fig. 324.—Kelso Abbey. Caps and Enrichments of Arcade.

The style of the caps of the arcade on the ground floor (Fig. 324) is somewhat florid and unusual. The interlacing arches are also in some places much carved and ornamented, and some portions are wonderfully well preserved.

A recess for a tomb is seen in the south wall of the transept (see Fig. 312.), and in the recess beneath there are two ambries or lockers and a piscina, the only one remaining in the building.

To the south of the transept there is a vaulted chamber, 26 feet long by 10 feet 6 inches wide, which may have been the sacristy. It has a wide entrance from the west, and an arcade with detached shafts and round arches has run along each side. There has been a window at the east end, and in the north-east angle a passage leading at a doorway to the exterior, and also probably into the church.{362}

ST. MARTIN’S CHURCH, Haddington.

This ruined structure stands on a slightly-elevated site at the east end of the Nungate, a suburb of the town of Haddington, on the right bank of the Tyne. The Nungate is joined to the town by an ancient bridge of three wide arches and two smaller ones. St. Martin’s belonged to the Abbey or Nunnery of Haddington, which was situated about one mile to the east of the town. The nunnery was founded in 1178 by Ada, Countess of Northumberland, widow of Prince Henry (son of David I.), and mother of Malcolm IV. and William the Lion. The abbey is now entirely demolished, and not a stone of it remains. St.

[Image unavailable.]

Fig. 325.—St. Martin’s, Haddington. Plan.

Fig. 325.—St. Martin’s, Haddington. Plan.

Martin’s Chapel is the only ecclesiastical structure connected with it which still survives. In 1567 the prioress, with consent of the chapter, disponed the greater part of the lands of the abbey, which were conferred by Queen Mary on William Maitland of Lethington.

The chapel has all the appearance of being very ancient, “and probably existed as a church when Alexander de St. Martin gave over to the prioress and nuns his lands and tenements of St. Martinsgate.”[183]

It is a simple oblong (Fig. 325), 55 feet in length by 16 feet 6 inches in width internally, and appears originally to have had no buttresses; but several have been added at a later date. The side walls are 4 feet 6 inches in thickness, but do not appear to have been sufficiently strong{363} to resist the thrust of the barrel vault with which the building was covered, and a portion of which (Fig. 326) still exists.

In the east wall there is an opening (Fig. 327) with plain jambs and round arch, which is sometimes called the doorway, but which is clearly the chancel arch. From excavations made a few years ago, it was ascertained that there were foundations of a choir 12 feet square, with a square east wall. The arch is, doubtless, late Norman in design, having a simple moulding on each jamb to form the imposts, and a plain moulding running

[Image unavailable.]

Fig. 326.—St. Martin’s, Haddington. Interior of West End.

round the exterior of the arch stones on the side next the church. The remains of a piscina adjoin the opening on the south side. The round-headed windows in the side walls are tall and narrow, widely splayed towards the interior, and covered with a large round arch on the inside sconsion. There have originally been two entrance doors opposite each other in the north and south walls, near the west end. The west wall (Fig. 328) had a single-light window, similar to those in the side walls; but it is now destroyed. The south doorway has been renewed, but some portions of{364}

[Image unavailable.]

Fig. 327.—St. Martin’s, Haddington. View from South-East.

{365}

the jambs of the north doorway still exist in a mutilated state. The sconsion arch is segmental.

The vault is lofty, and there has evidently been a story above it, as is apparent from the windows in the west gable. The gables are very steep and lofty, and are so constructed in order to admit of rooms in the top

[Image unavailable.]

Fig. 328.—St. Martin’s, Haddington. View from South-West.

story. The plan of having an upper story of this kind was not uncommon in early churches.

The window in the west gable is pointed, and it and the gables themselves may be of later date than the original Norman church.

As already mentioned, three buttresses have been built against each of{366} the side walls. These are entirely constructed with ashlar work of a white freestone, and those at the east and west ends have the ashlar work let irregularly into the old walls, as would undoubtedly be the case in an addition. Besides, they have steep water-tables, such as were introduced in the first pointed style, but were not used in the Norman period. The old walls are built with irregularly-coursed brown freestone, which is greatly worn away, and presents quite a marked contrast to the buttresses, which have stood the weather well. A peculiarity of the old walls is that they have numerous holes, about 10 inches square in three courses in the height, running right through the wall. These may have been putlog holes, used for scaffolding; but the extraordinary thing is that they should all be left open. Possibly they were only closed with a stone on the outside and inside, so as to be easily made available at any time if required, and these stones may now have fallen out. Similar rows of holes may be observed in the walls at St. Helen’s and elsewhere.

The church is surrounded by a burial-ground, which was used for interments within recent years, but is now abandoned.

KIRKLISTON CHURCH, Linlithgowshire.

Some portions of the old Church of Kirkliston, situated about seven miles west of Edinburgh, including the tower and two ancient doorways, stand in the churchyard, on the high north-west bank of the Almond Water, in the village of Kirkliston. The main body

[Image unavailable.]

Fig. 329.—Kirkliston Church. Plan.

{367}

of the church, so far as can now be ascertained, was an oblong structure (Fig. 329) about 60 feet in length by 26 feet in width externally, but part of the north wall has been removed, so as to allow the church to be extended. The old tower (Fig. 330) stands at the west end of the structure. It is about 21 feet square, and has the solid buttresses projecting on both sides of the angles, which indicate early work—transition

[Image unavailable.]

Fig. 330.—Kirkliston Church. View from South-West.

or first pointed. A square projection at the south-east angle of the tower contains a wheel staircase. The windows are mere slits. The roof of the tower is evidently comparatively new. It has a picturesque seventeenth century belfry on the east gable.

There is an old archway in the east wall of the tower, which connected it with the main building of the church.{368}

[Image unavailable.]

Fig. 331.—Kirkliston Church. South Doorway.

{369}

In the south wall of the church there still exists, though partly restored, a splendid Norman doorway. (Fig. 331.) The doorway itself measures 4 feet 9 inches in width, and the whole door-piece measures 14 feet 7 inches over all. Besides the attached rolls on the jambs, which form shafts with caps, there are seven detached shafts on each side, arranged alternately large and small, with three large ones at each outer angle. These had all caps of transition form, but the carving is now almost completely destroyed. The arch, which is semicircular, has numerous mouldings, which are not arranged in the usual square orders, but have

[Image unavailable.]

Fig. 332.—Kirkliston Church. North-East Doorway.

received a freer treatment. The divisions may be regarded as composing four orders, of which the inner order and the third order are enriched with chevron ornaments. The hood moulding has also been carved with the chevron, but the ornament has now almost all disappeared.

The wall of the church in which the above doorway stands is undoubtedly of considerable antiquity, the cornice which carried the original parapet being still in situ. (See Fig. 330.)

At the north-east angle of the existing church another Norman door{370}way, removed from elsewhere in the building, has been re-erected. (Fig. 332.) The round arch consists of three plain square orders, which spring from the enriched caps of two nook shafts and the jamb moulding. Most of the caps have a transition character, and the carving is fairly preserved.

At the south-east angle of the church is erected the burial-house of John, Earl of Stair, born 1672, died 1747. Over the moulded doorway is the inscription, “Virtute decet non id sanguine niti. 1629.”

Kirkliston from an early period belonged to the Knights Hospitallers of St. John, who held much land in the locality. The church, as altered, is still used as the parish church of Kirkliston.

[Image unavailable.]

Fig. 333.—St. Mary’s. Ratho. View of West End.

{371}

ST. MARY’S CHURCH, RATHO, Mid-Lothian.

The village of Ratho lies about one and a quarter mile south from the railway station of the same name, and about eight miles west from Edinburgh.

The parish church is dedicated to St. Mary, and the “Lady’s Well,” in the vicinity, is still in use. Although greatly altered and mostly

[Image unavailable.]

Fig. 334.—St. Mary’s, Ratho. South Doorway.

rebuilt, the church still retains some indications of its Norman origin. The view (Fig. 333) shows the west end of the church, crowned with its belfry. The buttresses indicate considerable age, but it is scarcely possible to fix their date. The only Norman relic preserved is the doorway in the south-west wall (seen in the sketch). It is built against by the wall of a wing, so that only a portion of the doorway remains visible. This consists (Fig. 334) of one jamb, which had a nook shaft and a cushion cap, carrying a plain round arch with a hood mould, carved with a zigzag or saw-tooth ornament.

Ratho Church was connected with Holyrood Abbey, and was a rectory. In 1444 the tiends and patronage were, with the consent of the Archbishop of St. Andrews, made over to the College Kirk of Corstorphine, which was then established. By this means four prebendal stalls were endowed.

ST. PETER’S CHURCH,[184] PETERHEAD, Aberdeenshire.

The remains of the Church of St. Peter, Peterhead (Fig. 335), consist of the side walls of the chancel and the entire chancel arch, with a square tower projecting outwards in the centre of the west wall of the nave. No other portion of the nave remains. The tower and west wall are late, but the chancel is of the Norman period. The arch is quite plain, and is supported on square jambs having Norman cushion caps.

There is a supposed reference to the church in the Book of Deer, in 1132, concerning a gift consecrated to St. Peter, Columcille, and Drostan, who “were the tutelar saints of the Churches of Peterhead, St. Colms, and Deer, which were the only churches in the district dedicated to these saints.”[185] Their endowments were then gifted to the great Columban{372} Church of Dunkeld, with which they remained till the founding of the Abbey of Deer, in 1218, when, it is believed, the patronage of the Church

[Image unavailable.]

Fig. 335.—St. Peter’s, Peterhead. View from South-East.

of St. Peter, at Peterhead, was conveyed to that abbey by the charter of foundation, now not known to exist.

ST. MARY’S CHURCH,[186] RUTHERGLEN, Lanarkshire.

Only the merest fragment of this ancient church now remains, consisting of the east wall (Fig. 336), with an eastern tower attached to it. The masonry of the east wall shows it to be of the Norman period. There has been no opening of any kind in this wall. The returns of the chancel walls are only indicated on the east wall by the slightest traces in the jointing, so completely have they been cut away. The eastern tower (Fig. 337) is quite a unique feature in Scotland. It had no connection with the church, although built against it, and is of later erection by probably two or three centuries. The doorway is low and lintelled, and has a simple splay. The upper part of the tower has apparently been rebuilt, and, with the slated roof, dates doubtless from the seventeenth century.{373} The tower is about 10 feet 6 inches square inside, and about 34 feet high to the top of the masonry. It contains no stair.

In Ure’s History of Rutherglen it is stated that there was a nave with side aisles, 62 feet long by 25 feet wide, “exclusive of the additions on the back and front;” that is, exclusive of the side aisles. Assuming these to have been eight or ten feet wide, we should have a church nearly corresponding in size with the present erection, built about a century ago, and occupying the site of the nave, as shown in outline on the plan, on which are also indicated the nave piers. The nave was thus about 62 feet long by 45 feet wide, and the chancel was about 42 feet long by 20 feet wide inside. Ure, by a mistake easily made, gives the dimensions of the chancel as ten feet less in length. He also mentions that there were five pillars on each side of the nave. This may mean four whole pillars and two halves (the responds), as shown in the plan, which, however, merely pretends to approximate to something like what the original was.

[Image unavailable.]

Fig. 336.—St. Mary’s, Rutherglen. Plan.

Ure gives a drawing of the interior of the church, with detailed sketches of some of the capitals of the piers. Four of these capitals are preserved in a garden rockery in Rutherglen, and the annexed sketch (Fig. 338) shows them as they are seen lying there half covered up and concealed. The upper one, which shows the bed of the capital, is a respond from one of the end walls, and the diameter of the column, as indicated by the inner circle, is 18 inches, the breadth across the abacus being 2 feet 5 inches. The enrichments of these capitals correspond with those indicated by Ure in his view, and he informs us that the pillars, of which there were five on each side, “are smooth and round, except the middle ones, which are octagonal.” He further says that the arcade “arches are pointed, but the point is hardly discernible,” and with this the view in his book agrees. Above the arcade he shows a small square window, probably measuring about 2 feet each way, and widely splayed{374} inside. Immediately above this was the roof. The walls were “about 20 feet high, including the pillars on which they are supported.” It is satisfactory to find Ure’s description of the church supported by the

[Image unavailable.]

Fig. 337.—St. Mary’s, Rutherglen. Tower, &c.

remaining fragments. The lower member, shown in Fig. 338, is a carved stone, probably part of the chancel arch. It is enriched with the alternate billet ornaments so frequent in such arches during the Norman period.{375}

The church was dedicated to the Virgin Mary, and was granted to the Abbey of Paisley by William the Lion before the year 1189, and it continued in their possession down to the period of the Reformation. There were several altars, with endowed chaplains.

[Image unavailable.]

Fig. 338.—St. Mary’s, Rutherglen. Norman Caps.

The church stands near the west end of the cemetery, on the north side of the main street. The entrance from the street is through a picturesque lych-gate of Renaissance design, dated 1663. (See Fig. 337.) It is surmounted by a sundial, dated 1679.

The cemetery is mentioned in the charters of Paisley (No. 85) in the year 1262, when the widow of John of Perthie grants to Paisley a piece of land lying between the church of the Virgin Mary and the river Clyde.{376}

LAMINGTON CHURCH, Lanarkshire.

The Norman doorway of this ancient church is still preserved. The church has been altered and the doorway built up; but, doubtless, some of the old walls still exist.

The church and village were founded by one Lambin, in the twelfth century. The doorway (Fig. 339) is in the north wall of the church. It

[Image unavailable.]

Fig. 339.—Lamington Church. North Doorway.

is an elaborate example to find in this remote and quiet pastoral district. The arch mouldings and ornaments are well preserved, but, unfortunately, the shafts are wanting. The caps are quite plain. There are three orders of mouldings, all enriched with characteristic Norman ornaments. It will be observed that in that of the outer order the spaces between the rings gradually diminish from the caps to the crown of the arch.{377}

ST. BOSWELLS CHURCH, Roxburghshire.

The Church of St. Boswells stands near the right bank of the Tweed, at a point about half-way between the village of Lessudden and Maxton Railway Station. The village of St. Boswells is stated to have formerly stood near the church, but it has gradually and entirely disappeared, and the nearest village to the church is now Lessudden, which is fully a mile off. The situation is very fine, and the views of the Tweed, with its wooded banks, in the vicinity are very beautiful.

[Image unavailable.]

Fig. 340.—St. Boswells Church. Fragments.

The place is of great antiquity, and is supposed to have derived its name from Eadwine of Northumbria. The church, which has been entirely rebuilt, contains a few small relics of the Norman edifice which undoubtedly once stood on the site. These consist of some carved corbels (Fig. 340) and other fragments, which are evidently of Norman date, and which have been preserved by being built into the restored church.

The Church of Lessudden was bestowed on Dryburgh Abbey in the middle of the twelfth century.{378}

SMAILHOLM CHURCH, Roxburghshire.

As in Berwickshire, so in Roxburghshire, a large number of Norman churches were erected during the Norman period. We have not attempted to compile a list of these, as in most cases almost no trace of them now remains, or so little that it can only be detected by an antiquarian. There is, for example, the Church of Hassendean, of which Cardonell gives a view of the chancel arch, granted by David I. to the Bishop of Glasgow. This, judging from Cardonell’s view, must have been a rich and important structure, with an eastern end similar to what we

[Image unavailable.]

Fig. 341.—Smailholm Church. Plan, and View from South-East.

find existing at Leuchars and Dalmeny. The Church of Upper Crailing was granted in 1147 to the Abbey of Jedburgh; and at the same time Ganfrid de Percy grants to the same abbey the lands adjacent to the Church of Oxenham; and Ranulph de Sulis at the same time gives to the abbey the Church of Castletown, and a little later in the century the Church of Hownam and Eckford are similarly bestowed. The Church of Smailholm (Fig. 341) is distinctly a Norman structure throughout its entire length. David I. granted the manor of Smailholm to David Olifard, and in the ancient Taxatio (beginning of the thirteenth century) the Church{379} of Smailholm was rated at 45 marks. Walter Olifard, who died in 1242, gave the Church of Smailholm to Coldingham Priory.

Merely the shell of this building is Norman. It was greatly altered in the seventeenth century, when probably the chancel arch was cut out; and in later times it has suffered severely, so that all its original architectural details have been destroyed.

The church consists of a nave, about 46 feet 6 inches long by 17 feet 3 inches wide; a chancel, 25 feet 9 inches long by 14 feet wide—being a total length of about 72 feet 3 inches. The present doorway to the nave is, doubtless, in the position of the original one, and has been enlarged. The chancel doorway is of the seventeenth century, and the windows adjoining are probably enlargements of the originals made at the same time. There were no windows in the north wall, and one in the west wall is quite modern.

There is a sundial on the south-west corner, bearing the date 1622, which date is probably the date of the alterations referred to and of the erection of the belfry.

LINTON CHURCH, Roxburghshire.

This church stands about six miles south from Kelso, and one mile and a-half from Morebattle. It occupies part of a sandy mound on which, at one time, there also stood the Castle of Linton. There was a church

[Image unavailable.]

Fig. 342.—Linton Church. Tympanum in Porch.

here at an early date, records of Linton Church being found as far back as 1127. It was then presented to the Monks of Kelso by Sir Richard Cumin for the salvation of the soul of Prince Henry, eldest son of David I. The lands of Linton soon after passed into the hands of the{380} Somervilles, as the reward granted to William de Somerville for having destroyed a worm or dragon which had long been the terror of the neighbourhood. This exploit is traditionally commemorated in a sculpture in

[Image unavailable.]

Fig. 343.—Linton Church. View from South-East.

the tympanum of the doorway of the ancient church (Fig. 342), in which the knight is represented on horseback thrusting his spear into the mouth of the monster. It seems more likely, however, that the sculpture has rather an ecclesiastical connection, and may possibly represent St. George

[Image unavailable.]

Fig. 344.—Linton Church. Plan.

and the Dragon, being an allegorical representation of religion, or faith overcoming evil. Possibly, the existence of the sculpture may have given rise to the traditional account of it. In 1858, this sculpture was removed from the old doorway and inserted over the entrance to a new{381} porch, then erected. The porch is seen in the sketch of the church. (Fig. 343.) This sculptured tympanum is remarkable as one of the few examples of sculpture in a similar position in Scotland.

There is also a Norman font connected with the church, which was long used in a blacksmith’s shop.

The walls of the church are old, but it has been almost entirely restored and renewed. (Fig. 344.)

DUNS CHURCH, Berwickshire.

Not a stone of this church now remains. The chancel existed till the year 1874 as a burial vault, when the minister of the parish, “under the pretext of improving the churchyard,”[187] had it removed. The greater

[Image unavailable.]

Fig. 345.—Duns Church. Plan.

part of the church was taken down in 1790, when a new church was built on its site. We are enabled by the kindness of Mr. Ferguson, Duns, to give a copy of an old plan which appears in his work on the Churches of Berwickshire, and to the same source we are indebted for the following historical notes regarding it.{382}

The Rectory of Duns is mentioned in Bayamund’s Roll (1275), and in the ancient Taxatio (end of the twelfth century) the parish is rated at 110 merks; so that it must have been a building of considerable antiquity and importance.

In 1296, the Rector, Henry de Lematon, took the oath of allegiance to Edward I.

From a photograph in Mr. Ferguson’s possession, of what remains of the walls of the chancel the masonry looks very like Norman work. If one might judge from the plan (Fig. 345), it evidently consisted of a long nave and a chancel, with a north and south aisle or wing not opposite each other, and probably built at later periods, such as are common in connection with Scottish churches. The nave was about 72 feet long by about 19 feet wide. The chancel was almost a square of about 17 feet, thus corresponding with the Norman chancels of Ledgerwood and Duddingston.

The two narrow and widely splayed windows seen in the east gable indicate early work, as do also the north and south doors near the west end of the nave; the other numerous openings, especially of doorways, were probably alterations.

ST. LAWRENCE CHURCH, LUNDIE, Forfarshire.

In the course of some recent operations on this church under the superintendence of Mr. T. S. Robertson, architect, Dundee, it was discovered that it had been a Norman structure. Of the original building not much now remains, except the ashlar walls and a narrow window with a wide internal splay and an outside check for a shutter. This window is situated near the east end of the north wall.

The apse appears to have been taken down, in 1786, during some alterations, and the chancel arch, indicated in the sketch (Fig. 346), was built up. A tomb house was erected on the site of the apse, where it

[Image unavailable.]

Fig. 346.—Lundie Church in 1786.

still remains. The building was of small dimensions, being about 40 feet long by 18 feet 6 inches wide.{383}

The fragment, of which a sketch (Fig. 347) is annexed, was found built in a wall near the church. It appears to have been the top of a sacrament house of late date.

The church, which belonged to the Priory of St. Andrews, was dedicated to St. Lawrence, Martyr. In the early taxations of the Priory it is described as “the Church and Chapel of Lundie.”

[Image unavailable.]

Fig. 347.—Sacrament House, Lundie.

KIRKMAIDEN CHURCH, Wigtonshire.

The parish of Kirkmaiden has long been incorporated with that of Glasserton. Formerly Kirkmaiden formed the port of Whithorn, and its roofless church still stands close to the burial-ground near the sea-shore.

It consists (Fig. 348) of a nave, 37 feet 6 inches long by 18 feet wide internally, and the walls are 4 feet in thickness. They are little reduced from their original height, and the west gable is also little diminished.

[Image unavailable.]

Fig. 348.—Kirkmaiden Church. Plan.

There are only three openings in the walls—viz., a doorway and two windows, all in the south wall. These were, till recently, greatly destroyed, but they have been restored by Mr. Galloway,[188] who has no doubt, judging from what remained, that they were all originally round-headed, and has rebuilt them accordingly.{384}

So far as these indications go, this would appear to have been a Norman church. There is an apparent chancel at the east end, but its dimensions and origin are not distinct. It is now appropriated as the “Monreith Vault” (the mansion of that name being in the vicinity), and contains a good deal of modern work.

One peculiarity of the east chamber is, that the north wall is in line with the north wall of the nave, while the south wall is set back four feet from the line of the south wall of the nave.

There is an arch between the nave and chancel, but it has not the appearance of a genuine chancel arch, being rudely formed with thin slatey stones. A wing, 14 feet long by 12 feet wide, is jutted out at the back or north side of the chancel. The walls are little over 2 feet in thickness. There is a square-headed doorway in the south-west angle, and an ambry or recess in the north wall. A roughly-built archway, similar to that into the nave, but smaller, opened from the nave into the north aisle, but is now built up.

The nave seems to be of Norman date. The choir has evidently been altered at a late period, and the north wing or aisle may have been built in post-Reformation times as a burial vault.

The ground to the north rises rapidly, and was filled in to the height of the walls, till cleared out by Mr. Galloway.

There would appear to have been some kind of extension to the west, but only the lower parts of walls and buttresses now remain. This portion was also filled with earth, and on being cleared out, remains of ten skeletons were discovered. This west wall is at the extremity of a long retaining wall, which encloses the present burying-ground, and runs along close above the shore.

The place is very curious and romantic, lying near the sea at the foot of high cliffs, and densely wooded all round.

HERDMANSTON FONT, Haddingtonshire.

This is one of the few minor relics of the Norman period which have descended to our time. It stands in the burial vault of the Sinclairs of Herdmanston, adjoining the mansion house of that name, about five miles west from Haddington.

The font is of yellow freestone, in one piece, and although somewhat worn and battered in part, is still in a good state of preservation. The base is partly damaged, and the surface of the top is somewhat broken away towards the front (Fig. 349), so that it measures a little higher at the back than at the front.

As will be seen from the Plan (Fig. 350), the central part consists of four rounded shafts, having a boldly pronounced base moulding. The{385} basin is in the form of a Norman cushion capital, with four rounds on each face, the abacus having a splayed projection of about a quarter of an inch. The font has evidently been meant to be placed against a wall, as all its parts—base, shaft, and capital—abut against a square haffit perfectly plain on the back, to admit of its standing in such a position. The ends of this haffit are very much broken.

The dimensions of the font are—base, 7 inches high; shaft, 17 inches; capital, 11 inches; total height, 2 feet 11 inches. Width across shafts, 13¼ inches; capital, 16¾ inches across front, and from back to front,

[Image unavailable.]

Fig. 349.—Herdmanston Font.

including haffit, 17¼ inches. The basin, which is rounded (see Plan), is 11¾ inches wide by 5 inches in depth. It is flat in the bottom and has no perforation.

In the thirteenth century, John de Saint Clair erected a chapel at Herdmanston by leave of the Canons of Dryburgh, to whom he granted two acres of land, with a condition that his chapel should not injure the mother church of Salton, which belonged, in the time of David I., to Dryburgh Abbey.[189]

The vault at Herdmanston stands east and west. It is about 31 feet 10 inches long by 14 feet wide, and has a small west window, with a sconsion arch on the inside, and a smaller window in the south wall. The{386} structure, which is barrel vaulted, is of considerable age, but it is not the chapel erected in the thirteenth century; and as the font is a work of

[Image unavailable.]

Fig. 350.—Herdmanston Font. Details.

the twelfth century, it is evident that it was not made for the chapel of Herdmanston.

[Image unavailable.]

From Dunfermline Abbey.

{387}

THE TRANSITION STYLE

The term “transition” might be applied to any of the periods during which one Gothic style is passing into another, as the buildings erected at such periods partake of a transitional character. But the change from the round arched and elaborately ornamented Norman to the pointed arched and plainer style of the first pointed period being more marked than that between any of the other Gothic periods, it has been generally agreed to reserve the term “transition” for the architecture of the end of the twelfth century, when the Norman style gradually gave place to the first pointed Gothic style.

The chief elements which mark the Transition style are the gradual introduction of the pointed arch and its use along with some of the decorative features of the Norman style. The pointed arch shows the advent of the new style, but the ornaments of the old style continue to linger for a time. The first pointed style was not complete till these old ornaments were abandoned, and the more vigorous enrichments of the new style were introduced. The other constructive features of the Norman style gradually changed at the same time as the arch. The buttresses by degrees assumed the projecting form of the first pointed style, and the pinnacles and spires of the latter style were in course of time introduced.

During the progress of the Transition there was naturally a considerable mixture of architectural elements. The round and the pointed arch were used indiscriminately, and were frequently employed together in the same structure, round arches being sometimes placed above pointed arches. Of this there are examples in the nave of Jedburgh Abbey and the south transept of Elgin Cathedral. In other instances, although the building is chiefly Norman, the pointed style is introduced in certain positions; as, for example, at Kelso Abbey, where to all appearance, contemporarily with the Norman walls, the piers and pointed arches of the crossing are in the first pointed style. At Dundrennan Abbey we find the older Norman work partly converted into first pointed by alteration, and in other examples, such as Coldingham, there is a mixture of the features of the two styles.

In many of the examples of the different periods, given or to be given, some Norman features may be discovered which, it might be thought,{388} entitled the structures to be ranked as transitional. The buildings, however, have been arranged under the various periods to which the most prominent, not the most ancient, portions of their architecture belong.

In England the period of Transition extends from about 1180 to 1200; but, as we shall find, the corresponding period in Scotland extends considerably into the thirteenth century.

DUNDRENNAN ABBEY, Kirkcudbrightshire.

The greater part of this very interesting structure has been demolished, but what remains is so fine as to make one regret all the more the hard usage the demolished portions have met with.

The abbey stood in a small, but deep, valley on a few acres of comparatively level ground lying on the west side of a little stream called the Abbey Burn, about a mile and a-half from the sea. The edifice is concealed in this remote and buried situation, and is with difficulty discovered after traversing a hilly road of six or seven miles south-east from Kirkcudbright. But when found, the quiet and secluded site, and the peaceful aspect of the grey ruins, surrounded with ancient trees, are very charming.

The monastery has been of considerable extent (Fig. 351). The church was large, being 209 feet from east to west by 108 feet from north to south of the transept, and comprised a great nave with double aisles, a choir without aisles, north and south transepts with eastern aisles, and a tower and spire 200 feet high over the crossing. The monastic buildings which surrounded the cloister garth were of the usual description, and, to judge from the remains of the chapter house, were of exceptionally fine design.

Of all these extensive structures the great nave and the tower and spire have almost entirely disappeared, and there now survive only portions of the north and south transept and choir, a beautiful fragment of the chapter house, some walls of cellars on the west side of the cloister garth, and other walls containing a few carved caps which show how fine the design of the cloisters must have been.

The abbey was founded by David I. about 1142, and was colonised by Cistercians from Rieval in Yorkshire. Its history is little known. Robert I. and David II. both conferred lands upon it. In 1568, after her flight from Langside, Queen Mary was welcomed at Dundrennan by Abbot Edward Maxwell, brother of Lord Maxwell. The abbey was then entire, and contained all its inmates. The queen embarked for England from Port Mary, at the mouth of the Abbey Burn.

In 1587 James VI. annexed Dundrennan to the Royal Chapel of{389} Stirling, and the Maxwells became the heritable bailies of the lands.[190] The ruins now belong to the Maitlands of Dundrennan. It is not known how the structure was reduced to its present dilapidated condition. By some it is stated to have been destroyed by fire, while others attribute its condition to neglect. It has undoubtedly met with the usual fate of

[Image unavailable.]

Fig. 351.—Dundrennan Abbey. Plan.

our old abbeys, and was used as a quarry till 1842, when it was put in repair by the Commissioners of Woods and Forests, and it is now in fair preservation.

The nave of the church (see Fig. 351.) was 134 feet long within the{390} walls, and comprised eight bays. The central division was 31 feet wide,

[Image unavailable.]

Fig. 352.—Dundrennan Abbey. Western Doorway.

and each aisle 16 feet wide, giving a total width of 63 feet internally. Of this part of the church only portions of the west end and south wall remain. The west wall contains the original western doorway, which is of simple Transition design. The doorway had three nook shafts besides the jambs, and the arches are in four orders of plain mouldings (Fig. 352). The caps, which have square abaci, are peculiar from the large quantity of very small nail head ornaments with which they are decorated (Fig. 353). The inner mouldings were renewed by the Government in 1842. The west wall retains the responds of the main piers of the nave, and a portion of one of the piers, being the westmost of the south arcade of the nave, also exists, both showing a

[Image unavailable.]

Fig. 353.—Cap of Western Doorway.

{391}

[Image unavailable.]

Fig. 354.—Dundrennan Abbey. From South-West.

{392}

bold early pointed section (see A on Plan). There were seven piers on each side of the nave, besides the west responds and the piers of the crossing. A good deal of early pointed work is also carried into

[Image unavailable.]

Fig. 355.—Dundrennan Abbey. Wall Shafts in Clerestory of Choir.

the transept, but it is clear, from the architecture of the building, that the transepts have been originally erected in an earlier style, and that the first pointed work is the result of alteration. This is especially apparent in the north transept, the external walls of which, on the west and north, are distinctly Norman, in character (Fig. 354). The round arched windows (with square recesses or nooks for shafts on the outside), the broad buttresses with small projections, and the form of the caps are quite characteristic of that style. The same remarks apply to the south transept so far as the outer walls survive. In the choir also the Norman character of the early work is distinctly seen. Only portions of the side walls of the choir remain, the east end having been entirely demolished. In the upper or clerestory windows of the side walls are found very characteristic examples of late Norman work. The large plain round openings of the clerestory and the triple shafts with Norman caps and corbels (Fig. 355) are unmistakable features. The choir and transept were apparently at first completed in this style late in the twelfth century, and sometime in the thirteenth century it has been desired to build the nave on a larger scale. It has then been also resolved to rebuild the interior of the transept, including the piers at the crossing, in the same style as

[Image unavailable.]

Fig. 356.—Arch of Doorway in Choir, and of Arcades in Cloisters.

the nave, so as to bring the transept as far as possible into harmony with the new design. The pointed work is evidently of an early character (see Fig. 354.). The squat round-headed windows of the clerestory, with their broad internal splay occurring above the pointed windows of the triforium, indicate a period of Transition. The use of the square abacus is also general throughout the work. The very acute form of the main arches of the transepts has probably arisen from the three bays having to be fitted into the space between the old north and south end walls, and at the same time requiring to be carried up as high as the main arches of the{393} new nave. The piers of the transept are 13 feet from column to column, while those of the nave were about 16 feet from column to column. The outer walls of the east aisles of the transepts, which were part of the original Norman structure, were not renewed at the time of the above alteration, but they have now been demolished, only fragments being left, from which, however, the form of the vaults can be inferred.

[Image unavailable.]

Fig. 357.—Dundrennan Abbey. Monument in North Transept.

The smaller details of the eastern part of the building are greatly destroyed. The sedilia and what seems to have been a fine monument in the choir are broken in pieces. A door has been formed in the north and south side walls of the choir leading into the east aisle of the transepts. There are evident additions made, probably during this century, when the

[Image unavailable.]

Fig. 358.—Dundrennan Abbey. Plan and Details of West Wall of Chapter House.

piers of the tower were rebuilt. The doorway into the south transept aisle (Fig. 356) is distinguished by a large trefoiled head, enriched with small nail head ornaments similar to those in the west doorway, but there{394}

[Image unavailable.]

Fig. 359.—Dundrennan Abbey. Exterior of West Wall of Chapter House.

{395}

is some doubt whether this is not a restoration. It will be observed that the section of the piers of the nave and transept, and also the piers of the crossing (see Fig. 351.), bear a close resemblance to those of Sweetheart Abbey. But the forms here are earlier, the fillet on the outer angle being absent at Dundrennan, though present at Sweetheart.

In the north wall of the aisle of the north transept, and in a round arched recess (Fig. 357), lies the sculptured effigy of a knight wearing a suit of chain armour, and with legs crossed. This is said to be the

[Image unavailable.]

Fig. 360.—Dundrennan Abbey. Ornaments over Windows of Chapter House.

statue of Alan, Lord of Galloway, who was interred in the abbey in 1234. There seems also to have been a fine monument in the choir, and numerous portions of cusped and carved work are to be seen piled up in the nave, which may be fragments of this or some other ruined structure of the same nature.

The cloister garth is on the south side of the nave, and measures about 105 feet by 102 feet. The walls surrounding the cloisters are for the most part old. In the north-east angle is the ancient doorway to the nave, and in the north-west angle a more modern doorway. On the east{396}

[Image unavailable.]

Fig. 361.—Dundrennan Abbey. Interior of West Wall of Chapter House.

{397}

side, adjoining the south transept, is the slype from which a wide door (doubtless modernised) leads into the transept. To the south of the slype stood the chapter house, which must have been a very beautiful building, measuring 51 feet from east to west by 34 feet from north to south internally. From some fragments of shafts which remain, and from the responds against the west wall, it appears to have been vaulted in three spans from north to south, with four bays from east to west, but the vaults have now entirely disappeared. The front wall next the cloisters, however, fortunately survives (Fig. 358).

It is a splendid specimen of first pointed architecture (Fig. 359). In the centre is the doorway, and on each side a window, divided into two openings by a central shaft. The doorway and windows were, as usual, designed to remain open, so that the brethren in the cloisters might hear all that passed in the chapter house.

The features are all beautifully designed, and the details are of the purest and most elegant forms (see Fig. 358.), the whole being enriched with finely carved dog-tooth and other ornaments.

[Image unavailable.]

Fig. 362.—Dundrennan Abbey. Caps in Cloisters.

In the arch mouldings a very profuse employment of the fillet is noticeable. The panels in the tympanum over the double arch of the windows, both in the exterior and interior, are filled in with plain, but finely designed, geometric figures (Fig. 360), and the simple bold cusps of the doorway have been carved with foliaceous scroll work, now almost obliterated by decay.

Internally the design of this front wall (Fig. 361) corresponds almost exactly with that of the outside, but is, perhaps, even more effective from containing the vaulting shafts and the springing of the broken groins.

The west wall of the chapter house is altogether a very exquisite piece of pointed work, and was probably executed just before the disturbances of the end of the thirteenth century, which interrupted, and for a time stopped, all architecture in Scotland. The style is clearly later than the early pointed work of the transept, the round abaci and the filleted mouldings contrasting with the square abaci and the pointed or round mouldings of the transept.

On the west side of the cloisters is a row of ruinous cellars, still partly vaulted, but not very accessible. On the south side are the door to{398} what may have been a large chamber, probably the refectory, and some remains of domestic buildings. (See Fig. 361.)

The north and east walls of the cloister still retain the remains of some sharply cut caps, of what has been an arcade, with arches about 3 feet 6 inches apart. The designs have evidently been very varied and full of spirit (Fig. 362), but it is scarcely possible to find one sufficiently well preserved to enable a complete sketch to be made.

The monuments of this abbey are not numerous, but they are interesting. In the recess of the north side doorway of the west end (now built up) is a large figure of an abbot, with his crozier, standing on the prostrate body of a man. This is known as the Abbot’s Stone. Another monument is called the Cellarer’s Stone, and shows a figure standing on serpents. It is dated 1480. There is also a monument containing a female figure, with an inscription partly defaced, but bearing the date of 1440. A plain monument to Frater Blackmore is probably of the fourteenth century.

JEDBURGH ABBEY, Roxburghshire.

The town of Jedburgh occupies a site about ten miles south from Kelso, in the narrow valley of the river Jed, a tributary of the Teviot. The main street rises gradually on the west side of the valley till a wider point is reached, on which stood the monastery, above a bend of the river. On a still higher point, at a short distance south of the abbey, stood the Castle of Jedburgh, the subject of constant contention in Border warfare.

The position of the abbey on the height above the river as seen from the level “haugh” on the opposite side, with a broad expanse of water in the foreground, is commanding, and forms a very attractive landscape.

A Priory of Canons Regular from Beauvais was established here by David I. while Prince of Cumbria, in 1118. In 1147 the priory was raised to the dignity of an abbey, and it was probably after this distinction that the oldest portions of the existing structure were erected.

The abbey was dedicated to the Virgin, and was amply endowed by David I. and the nobles of the district. Little is recorded of its history, but the abbots were occasionally men of distinction.

In 1285, when John Morel was abbot, King Alexander III. was married in the abbey with much ceremony to Iolanda, daughter of the Count de Dreux.

Jedburgh formed a strong Border outpost, and was often attacked and damaged in the wars with England. Under Edward I. the roof of the abbey was stripped of its lead, and the conventual buildings were so damaged that, in the year 1300, the monks had to seek refuge in other houses of their order. During the fifteenth century the abbey frequently{399}

[Image unavailable.]

Fig. 363.—Jedburgh Abbey. Plan.

{400}

suffered from hostile invasion, and in consequence had to undergo considerable repairs, as will be pointed out in connection with the crossing and tower.

[Image unavailable.]

Fig. 364.—Jedburgh Abbey. South Side of Choir.

{401}

Notwithstanding the frequent harrying and damage it sustained, the fabric of the Abbey Church is still in a wonderful state of completeness, but the monastic buildings which stood on the south side of the church have been entirely swept away.

The church (Fig. 363), Plan) consists of a choir, with side aisles extending eastwards for two bays, beyond which was an aisleless presbytery, the east end of which is demolished; a nave of nine bays, which had vaulted side aisles (now greatly destroyed); a central crossing, with a square tower above; a north transept, well preserved; and a south transept, of which the south end is destroyed.

The choir and presbytery, as already mentioned, have been greatly damaged, and the east end is destroyed. It has been suggested that the choir may have terminated with an eastern apse, but of this there is no proof. What survives (Fig. 364) consists of the two bays next the crossing, the lower portions of which are in the Norman style. The main piers have the peculiarity of being carried up as massive cylindrical columns to the height of the arch over the triforium. This arrangement is unique in Scotland, but is not unknown in England. A somewhat similar design is carried out at Gloucester Cathedral, where the massive cylindrical piers are of great height, but they are not divided into two stories. At Romsey Church, Hampshire, however, the same arrangement occurs as at Jedburgh (Fig. 365), the tall round piers being divided by an intermediate arch, which supports the upper gallery or triforium.

[Image unavailable.]

Fig. 365.—From Romsey Church, Hampshire.

At Jedburgh the lower story has the round arch and vaulting ribs supported on corbels (Fig. 366), projected from the round face of the piers.{402}

[Image unavailable.]

Fig. 366.—Jedburgh Abbey. South Aisle of Choir, looking West.

{403}

A similar plan is adopted at Romsey and also at Oxford Cathedral. The upper or triforium arch at Jedburgh is round and moulded, and contains a well wrought chevron ornament. It rests on large caps of the divided cushion pattern. The main arch is formed into two openings by a central round shaft and two half round responds, with massive cushion caps carrying plain arches.

The clerestory is of Transition work, having one lofty stilted and pointed arch and two smaller pointed arches in each bay. These spring from clustered shafts, consisting of four smaller shafts grouped into one. They have plain bell caps and foliaged caps alternately, all with square abaci. The arches have bold mouldings and a label.

At the time when the transitional clerestory was erected, the eastern part of the choir appears to have been built, as the remains of two lofty pointed windows are preserved to the east of the cylindrical piers (Fig. 367). These lofty arches have sprung from shafts with Transition caps at the level of the triforium floor, and a pointed arcade beneath seems to have been continued round the east end of the choir and presbytery.

The same Norman style of architecture as in the choir is continued in the south and north transepts, and appears to have originally also extended into the nave. This is apparent from the mode in which the string course over the triforium runs along on the north side from the choir to the nave, where it is broken off. That the Norman nave has probably extended westwards from the crossing is further evidenced by the existence of the west end wall, with its great doorway and windows and the south doorway to the cloister, which portions are all of characteristic Norman design.

Whether the Norman nave had only been projected, but never completed—only the west wall with its doorway and windows and the south doorway being erected—or whether the nave had been finished and afterwards destroyed, it is impossible to say. It is, however, evident that the Norman work in the choir and in the western and south doorways must have preceded the Transition work in the choir and nave by a considerable amount of time. The styles in both cases are quite distinct, and there is evidently a considerable hiatus between them. They do not follow one another by gradual development.

The nave is 129 feet in length and 27½ feet in breadth in the central aisle, and measures about 57 feet in width internally over the aisles.

It is divided into nine bays, each of which (Fig. 368) comprises a main arch resting on clustered piers, a triforium with one round arch containing two pointed arches, and a clerestory forming a continuous arcade, with four pointed arches in each bay. The main clustered piers contain (Fig. 369) four principal shafts at the angles and four intermediate shafts between them. The former are brought to a point on the face, the latter are flatter. The caps are simple and of an ordinary transitional{404}

[Image unavailable.]

Fig. 367.—Jedburgh Abbey. South Side of Choir and Crossing.

{405}

[Image unavailable.]

Fig. 368.—Jedburgh Abbey. The Nave, looking West.

{406}

form (Fig. 370), each with a square abacus. The bases are also simple and stand on a massive square plinth, a feature not uncommon in Norman work. The arches of the main arcade are somewhat acutely pointed, and the mouldings are bold, and resemble first pointed work. (See Fig. 369.)

[Image unavailable.]

Fig. 369.—Jedburgh Abbey. Details.

In the triforium (Fig. 370) the principal arches are round, being an example of the round arch placed above the pointed arch. Each round arch is divided into two openings by smaller pointed arches, which contain first pointed mouldings (Fig. 371). The larger arches spring from clustered{407}

[Image unavailable.]

Fig. 370.—Jedburgh Abbey. Details.

{408}

shafts with bell caps and square abaci. The central pillars of the smaller arches vary in section. Those in the east part of the nave consist of four shafts united into one (being the same section as those of the clerestory of the choir), while those in the portion of the nave to the west of the centre are composed of two shafts. The shield between the smaller arches is perforated with a small circle. The simple constructional main arches of the triforium are seen on the exterior (Fig. 372), where also the corbels to carry the timbers of the roof of the triforium gallery are visible.

[Image unavailable.]

Fig. 371.—Jedburgh Abbey. Plan of one half Bay of Clerestory.

The clerestory shafts are of trefoil section both on the exterior and interior (Fig. 373), and have foliaged caps of first pointed design. In the interior the caps have the angles of the abaci cut off so as to make them octagonal. The arches are all pointed, and contain first pointed mouldings. A corbel table supports the cornice on the exterior, and there are two small ornamental arches between every two corbels (Fig. 374). Over each main pier a small buttress is introduced in the exterior of the clerestory,{409}

[Image unavailable.]

Fig. 372.—Jedburgh Abbey. View from North-West.

{410}

and a plain standard in the interior. These buttresses are projected on small corbels, and do not rise above the arches. It is thus evident that it was never intended that the central aisle of the nave should be vaulted, there being no suitable buttresses provided to resist the thrust of a vault. The side aisles, however, were vaulted, but the vaults are now demolished, only some fragments of the ribs being left, as shown in Fig. 372.

As already mentioned, the west end of the nave (see Fig. 374.), and especially the western doorway, are quite Norman in character. The west doorway (Fig. 375) is a noble specimen of its period. The ingoing

[Image unavailable.]

Fig. 373.—Jedburgh Abbey. Clerestory Details.

is deeply recessed, and has contained five free nook shafts on each side, besides the door jamb, with intermediate shafts and elaborate enrichments. The caps are foliaged, and of late Norman character. In the arch there is an order over each shaft, and intermediate enrichments and mouldings. The ornaments consist of the chevron, both solid and under cut, and other greatly relieved enrichments and rosettes.

The jambs of the doorway and the arch over it contain heads and other ornaments in panels, now much decayed. The doorpiece projects some feet, and on the north side of the projection a small round arch (see Fig. 374.) can be traced.

The doorpiece is surmounted by three little gablets. The central one{411}

[Image unavailable.]

Fig. 374.—Jedburgh Abbey. West End and part of North Side.

{412}

contains a trefoiled arch, and those at the sides seem to have contained a similar arch, but they are now much decayed.

The west wall has flat buttresses of Norman character (see Fig. 374.) at each side of the central aisle, and the upper portion of the wall has a central round-headed window, flanked on each side by three small pointed arch heads, the caps carrying which rested on long single free shafts, now gone. The central window has deep mouldings, but no enrichment. The west front has been finished with an octagonal turret at each side, as at Kelso Abbey, and the gable contains a central circular window, which has been filled with tracery at a late date. The west end walls of the aisles have each contained a circular headed window of Norman design, with a chevron ornament in the arch and a nook shaft at each side.

The south doorway (Fig. 376), leading from the cloister into the nave above referred to, is of late Norman design. It is extremely rich in its decoration, though somewhat decayed. It contains the remains of several shafts and enrichments in the jambs, and the caps have been very elaborate in their carving. The round arch head contains four orders of mouldings. The inner order and the door jambs are both carved with the same chevron ornament; the next order consists of plain mouldings; the third order is enriched with figures comprised in small semicircles; and the outer order contains a deep series of zig-zags. The whole is enclosed with a small label. The doorpiece projects, the outer angle having a bold bead, and a small cornice runs along the top.

The above description of the nave and its Norman west end and doorways will make clearer what has already been indicated with regard to the completion or restoration of the edifice in the Transition period. The suggestion is that the lower part of the walls of the choir and the western wall and doorway and south doorway being all of Norman work, it seems probable that the whole building was set out and partially executed in Norman times, and that the work was either stopped for a considerable period and then resumed, or that the structure, after being completed, was destroyed, and had to be restored in the late Transition style.

The Transition work is well advanced in style, and may be regarded as being of the date of the end of the twelfth century, or beginning of the thirteenth century.

The Norman north transept, as already mentioned, is fairly well preserved, but both the north and south transepts have undergone great repairs about the end of the fifteenth century. The crossing appears to have been so greatly damaged by the assaults of the fifteenth century that it was found necessary to rebuild it. The restoration is distinctly visible (see Fig. 364.) in the south-east pier of the crossing, the style of which is quite different from that of the Norman work adjoining in the{413} choir and south transept (Fig. 367), and the junction of the new work with the old is very apparent. This pier has clearly been rebuilt. It is plain next the crossing, but next the aisle it consists of a series of

[Image unavailable.]

Fig. 375.—Jedburgh Abbey. West Doorway.

{414}

shafts (see Fig. 366.), with a moulded cap of late date. The upper mouldings of the cap form a continuous straight line, while the bells of the caps are broken round the shafts; a style of cap common in Scotland at the end of the fifteenth century.

This pier and the south aisle of the choir beside it appear to have been restored by Abbot John Hall (appointed 1478), whose name occurs on the pier and on one of the bosses. The south-west pier of the crossing has also been rebuilt. This work was carried out by Abbot Thomas Cranston (appointed 1482). On a shield on this pier (see Fig. 367.) are carved the arms and initials of Abbot Cranston—three cranes and two pastoral staves—saltierwise.

The same abbot’s initials are placed on the north side of the west arch of the crossing, where the chamfer begins, and on the lower part of the north-west pier. The south-west pier, the north-west pier, and the arch between them would thus appear to have been rebuilt by Abbot Cranston. The base inserted by him is different from the old Norman base.

About half-way up the south-east pier, rebuilt by Abbot Hall, the springer of an arch (see Fig. 364.) may be seen projecting to the west. Abbot Hall has evidently intended to throw an arch across the transept at this point, but Abbot Cranston changed his plan, and the arch was not carried out. The mouldings of the portions executed by the two abbots differ in their respective parts of the structure.

To the north of the original Norman north transept an addition to the transept has been erected. It is cut off from the old transept by a wall, and thus forms a separate chapel, measuring 27 feet in length by 22 feet in width internally.

This chapel is vaulted with the pointed barrel vault usual in Scotland in the fifteenth century, and, consequently, the side windows are low (see Fig. 372.), their pointed arch being kept below the springing of the vault. The window in the north end wall, however, is of large dimensions. The windows are all filled with good fifteenth century tracery, similar to that in the restored south aisle of the choir (see Fig. 364.).

This part of the edifice is now used as a mortuary chapel for the family of the Marquess of Lothian.

The tower over the crossing (see Fig. 372.) is 33 feet square and 86 feet in height. It contains three pointed and cusped lancets on each side, and is without buttresses. It appears to have been erected about 1500. At the top, near the north-west corner, are engraved the arms and initials of Abbot Robert Blackadder, who was afterwards promoted to the offices of Bishop and Archbishop of Glasgow. He was appointed to that see in 1484, and died 1508. His arms are a chevron between three roses.

Soon after the abbey had been restored as above described it was again attacked, pillaged, and burnt by Surrey in 1523. The damage then caused was once more repaired in 1544. The abbey is described by{415} Sir Ralph Eure as “the strength of Teviotdale,” and by Hertford as “a house of some strength which might be made a good fortress.”

These generals of Henry VIII. had evidently cast their eyes on it as

[Image unavailable.]

Fig. 376.—Jedburgh Abbey. South Doorway of Nave.

an obstacle in their path, and resolved to get rid of it. The abbey was pillaged and burnt by both (by the first in 1544 and the last in 1545), and never recovered from the devastation it then suffered.

In 1559 the monastery was suppressed, and the revenues went to the{416} Crown. In 1574-5 the roof of the refectory was removed, and the timber used for repairing the tower. The Abbey Church stood in a ruinous state till the nave was partly roofed in at the triforium level to form a presbyterian place of worship. It remained in this condition till 1875, when a new church was erected, and the old abbey was cleared out.

The crown arch of the tower fell in 1743. The groined arches of the aisles continued in existence till the end of last century. In 1793 the south aisle was removed, and a wall built between the pillars to make the church more comfortable.

The ruins of the abbey are now well cared for and protected.

KINLOSS ABBEY, Morayshire.

This was one of the monastic establishments founded in Moray by David I. in order to extend the benefits of civilisation to the remoter regions under his sway.[191] The story told with reference to this foundation is similar to the legend regarding Holyrood. The king had lost his way in the wood while hunting, and was guided by a deer to an open place, where, as was afterwards revealed to him by the Virgin, he was to found a church in her honour. The abbey was founded in 1150, and colonised by King David’s favourite order of Cistercians from Melrose. It was endowed with lands by its founder, and subsequently received grants from his successors—Malcolm, William the Lion, and Alexander II.—as well as from private donors. Robert I. presented the abbey with fishings. Edward I. and Edward III. both visited Kinloss, the former in 1303 and the latter in 1336.

The chartulary of Kinloss Abbey is not preserved, but its traditions and an account of the abbots has been written by John Ferrerius, a native of Piedmont, who was for several years an inmate of the establishment. Robert Reid, afterwards Abbot of Kinloss and Bishop of Orkney, formed his friendship while a student in Paris, and brought him over to this country about 1528, where he acted as lecturer and instructor of youth.

Ferrerius gives a long account of the different abbots and the various works executed by them, which would have been of great interest had the buildings survived; but they are now, unfortunately, reduced to such mere fragments that it is impossible to trace the various structures referred to.

In 1528 Robert Reid was installed as abbot. Abbot Reid is associated with several of our ecclesiastical edifices, especially Beauly Priory and{417} Kirkwall Cathedral. He occupied a somewhat prominent position in the country, and was sent on several embassies to Henry VIII. and Francis I. Under him the abbey lands were erected into a burgh of barony. In 1530 he received the gift of the Abbey of Beauly in commendam, where he erected many new buildings. He also added greatly to the abbey of Kinloss, and amongst other improvements he built a spacious fire-proof library, and enriched it with many volumes. The new abbot’s house, the remains of which are seen in the view (Fig. 377), was also erected by him about 1537. In 1538 he invited Andrew Bairhum, a celebrated painter, to come to Kinloss, where he was occupied for three years in painting altar pieces. He also brought William Lubias, an intelligent gardener, to Kinloss from Flanders, who introduced great improvements in the cultivation of fruit trees into the country. In 1541 Abbot Reid, while retaining his existing preferments, was appointed to the Bishopric of Orkney. There, too, he erected many new structures.

It is to the liberality of this enlightened prelate, who was a great encourager of learning, that we owe the foundation of the College of Edinburgh. When the Court of Justice had been instituted by James V., Bishop Reid was appointed president in 1549.

Bishop Reid was succeeded in the abbacy of Kinloss by his nephew, Walter Reid. He was the last abbot, and by him a great part of the lands of Kinloss and Beauly were alienated. He subscribed the first covenant in 1560, and was married, and his wife after his death became possessed of the abbey. Certain of the lands and fishings, however, were assigned to Edward Bruce, who was commendator after the Reformation, and in whose favour they were raised into a temporal lordship as Lord Bruce of Kinloss. From him are descended the Earls of Elgin.

Till about 1650 the buildings of the abbey are believed to have remained tolerably entire. They were conveyed, in 1645, to Brodie of Lethen, by whom the materials were sold, to be utilised in the construction of Cromwell’s citadel at Inverness. The chapter house had been used as a place of worship up to that time, and it was found necessary to erect a new church in lieu of the chapter house, which had been removed.

From the above cause the remains of Kinloss Abbey, as already mentioned, are mere fragments. The outline of the cloister garth, which measures about 100 feet by 90 feet, can be traced (Fig. 378), the walls on the south and west sides being fairly preserved. On the north side the foundations of what was, doubtless, the south wall of the nave of the church are visible, and on the east side part of the wall of the south transept still stands. Of the church there only survives a small and tottering fragment of the south transept, with part of the eastern chapels and a long vaulted chamber to the south, which is on a lower level than the transept. A small portion of old wall is observable to the north, opposite the south transept, and is probably a survival of the north tran{418}sept wall. This gives an indication of the probable position of the church, as shown by clotted lines on the Plan. The church consisted of the usual divisions of nave, choir, and transepts, with a tower over the crossing. The tower was erected by Abbot Guthrie about 1470-80, and it fell in 1574.

There have been vaulted apartments on the south side of the long vaulted chamber lying south of the transept, as is apparent from the remains of pointed arches on the outside of the south wall (see Fig. 377.). This sketch also shows the height of the transept chapel above the vault to the south of it. Similar remains of pointed arches on the west side of

[Image unavailable.]

Fig. 377.—Kinloss Abbey. Abbot’s House from South-East, and portions of the Church.

the west wall of the cloister show that vaulted apartments ran along that side also.

All appearance of ornamental work or hewn work of any kind has been removed, with the exception of one archway in the south wall of the cloister and an arched recess adjoining (Fig. 379). These seem from their style to have been part of the original abbey. The ornament of the gateway is distinctly transitional in character, and was probably erected in the beginning of the thirteenth century. Although the arch is circular, the dog-tooth of the hood mould is first pointed, while the large undercut cross enrichment is a survival of Norman character. The round{419} abacus of the caps, however, is decidedly first pointed in style. This seems to have been an archway leading into the cloister. The arched recess to the eastward, which was doubtless a monument, is rather later in

[Image unavailable.]

Fig. 378.—Kinloss Abbey. Plan.

style, but seems to belong to the thirteenth century. The corbels which carried the roof timbers of the cloister walk still survive. They are moulded in the first pointed style. The water table above the roof is also partly preserved.{420}

[Image unavailable.]

Fig. 379.—Kinloss Abbey. Archway in South Wall of Cloister, and Abbot’s House from North-West.

{421}

The abbot’s house (see Figs. 377 and 379) stands to the south of the abbey. It consists of an oblong structure, which now measures about 50 feet in length by 27 feet in width within the walls, with several vaulted cells on each side, all now in ruins, and thickly clothed with ivy. The best preserved parts of the structure are the east wall, with its gable, and the round tower at the south-east angle, which contained the entrance doorway and staircase. Over the doorway is a panel (Fig. 380) with ogee arched head containing the shield of Abbot Reid (a stag’s head) and his initials and crozier.

The plan of the abbot’s mansion resembles that of a baron’s house of the sixteenth century. The basement appears to have contained the kitchen, with cellars, and a passage with small windows. On the first floor would be the hall, with small rooms opening off it, and bedrooms on the upper floor.

The ruins stand on level ground near the mouth of the Findhorn, a short way from Kinloss Station, between Elgin and Forres.

The ground has always been fertile, and is well watered by a stream which passes close to the ruins. The whole space in which the ruins of the abbey stand is now enclosed with a wall, and used as a burial-ground.

[Image unavailable.]

Fig. 380.—Kinloss Abbey. Panel in Abbot’s House.

THE NUNNERY, Iona.

When Reginald, Lord of the Isles, in 1203, introduced Benedictine monks into the Monastery of Iona, a convent for Benedictine nuns was founded in the island, of which Beatrice, sister of Reginald, was the first abbess. The deed of confirmation of the nunnery still exists at the Vatican, dated 1203.

The ruins of the building, which apparently was erected soon after that time, still survive. (Fig. 381.) They consist of a quadrangle about 68 feet square, having the church on the north side; foundations of the chapter house and other apartments on the east side; and the refectory on the south side. There may have been other buildings on the west side, as the walls are broken at the ends; but, if so, they are now removed.

The church is an oblong structure, 58 feet in length by about 20 feet in width. It has been divided into nave and choir, and has had a northern aisle extending along both.

The choir is about 20 feet square, and has been vaulted. It is separated from the nave by a group of shafts at each side (Fig. 383), which supported a round arch with early mouldings (Fig. 382), and there are{422}

[Image unavailable.]

Fig. 381.—The Nunnery, Iona. Plan.

{423}

vaulting shafts in the angles of the east wall. The choir has had two windows to the east, separated by a small piece of wall. The floor is raised two steps above the level of the nave. There is a doorway in the north wall leading into the eastern portion of the aisle, which may have been the Lady Chapel or sacristy. This building is vaulted, and has an upper story, approached by a very narrow stair in the thickness of the north wall.

The chapel on the ground floor has had an altar to the east, and a piscina in the south wall. The east window is a mere slit, and has a straight-sided arch head, doubtless a late insertion.

The arch in the west wall of this chamber (Fig. 384) has Norman responds and mouldings, and the groins of the vault have simple rolls.

The nave has three round arches (see Figs. 383 and 384) opening into the north aisle. These arches spring from circular pillars and responds, which have caps of apparently Norman design. They are much decayed, but the ornament has some resemblance to that of the caps in the chapter house and high aisle of the cathedral. The arches are now built up, but the mouldings seem to correspond with those of the chancel arch. The doorway from the cloister, in the south-west angle of the church, has two nook shafts supporting a round arch.

[Image unavailable.]

Fig. 382.—The Nunnery, Iona. Arch Mouldings of Chancel Arch at A on plan.

The most of the above portions of the structure appear to belong to the transition period, and were probably erected soon after the convent was founded. The choir and sacristy are undoubtedly original, but the nave and aisle and upper part of the structure appear to have been rebuilt, probably at a late date. The upper part of the nave is of an undefined character. The small windows have round arches, and might be transition work; but they are placed over the piers, not over the arches, as was invariably the case in early buildings.

The west wall is very plain. It has a tall round-headed window on the church level, with a string course stepped over it, and a small window is introduced in the gable, which might be of almost any period. A series of corbels occurs in the south-west wall over the doorway. They are carved with grotesque heads, and appear to have supported a wooden floor—perhaps an organ gallery. There has been a doorway in the north wall of the aisle. It had two nook shafts, but it has now almost disappeared. A portion of a cross wall is visible in the aisle, with what may have been the seat of an altar against it.

Within recent years considerable excavations and repairs have been{424}

[Image unavailable.]

Fig. 383.—The Nunnery, Iona. View from South-East.

{425}

[Image unavailable.]

Fig. 384.—The Nunnery, Iona. View from North-West.

{426}

made in the building. The position of the cloister garth has been defined by a low wall; and the site of the chapter house on the eastern side, with its stone seat running round it (see Fig. 383.), has been disclosed. The other apartments on this side remain indefinite, but the position and walls of the refectory on the south side are distinct. This part of the structure has had an upper story, probably a dormitory. The south, east, and west walls, with their small windows, are still preserved. There was, no doubt, a dormitory over the east side of the quadrangle, but the walls there are now only a few feet in height.

At a distance of about 30 feet north from the convent church stands another building, said to have been the parish church. (See Fig. 381.) It is dedicated to St. Ronan, and is a simple oblong chamber, 37 feet long by 16 feet wide internally.

It has a small window in the centre of the east wall, and the seat of the altar still remains. In the north and south wall, near the east end, are the remains of two windows, which have apparently been rather wider than the east window.

The doorway has been at the north-west angle, and has had a single nook shaft in each jamb; but that part of the structure is now much destroyed. The whole building is constructed with the plain rubble work usual in West Highland churches.

Numerous very fine specimens of Celtic carved work are preserved in the monumental stones which have been found and are preserved in the convent.[192] Amongst these is the monument of the last prioress. On it are carved the figure of the prioress, surmounted by a rude Gothic canopy, and an inscription bearing the date of 1543. It also contains the ancient symbols of the mirror and the comb.

ST. NICHOLAS’ CHURCH, Aberdeen.

This church, said to be the largest mediæval parish church in Scotland, is still preserved and used as the principal church of Aberdeen; but only two portions of the ancient work remain—viz., the transepts and the crypt at the east end, below the choir. The nave was rebuilt about the middle of last century by Gibbs, the well-known architect of St. Martin’s-in-the-Fields Church, London, and the Radcliffe Library, Oxford. It is, of course, in the Renaissance style of the time, and the interior is very dignified. The choir was entirely taken down in 1835 and rebuilt in the most tasteless fashion. The walls of the crypt and transepts were all refaced except the north front of the transept, which, however, is of no great architectural value, having been altered considerably in the seven{427}teenth century; in any case, it forms a pleasing contrast to the very rigid and inartistic new masonry. The central tower, with the leaded spire, was burned in 1874, and the existing central spire was thereafter erected. In these circumstances, it is only the interior of the transept and crypt which come within the scope of the present work.

The transepts (Fig. 385) measure internally about 103 feet by 20 feet 10 inches, and are of the transitional style of the end of the twelfth century. The openings into the nave and choir are now built up. There

[Image unavailable.]

Fig. 385.—St. Nicholas’ Church, Aberdeen. Plan.

seems always to have been a solid wall between the transept and the nave aisles, with only a small opening of communication in each of about the size of an ordinary doorway. These openings are of a very plain and simple design (Fig. 386). The piers which carry the central tower (Fig. 387) are of the usual transitional type, having graceful capitals and square abaci supporting round arches. These are shown in detail in Fig. 388. They are not visible in the choir and nave.

On each side of the north transept there are two original clerestory{428} windows, those on the east side are seen in Fig. 389, and one of them, which would overlook the roof of the choir aisle (Fig. 390), has angle shafts, with carved caps and mouldings. The present large north window of the transept (seen in Fig. 389.), the tracery of which is of very late work, has remains of its original features, and in the low pointed recess seen in the same view there is a transition attached shaft, with carved cap and square abacus. There is only a shaft on one side of the recess (as shown on Plan). The pointed arch of this recess, as well as the tomb alongside, below the large window, are of later work.

On the west side of the north wall there has been a round arched doorway, of which traces are yet visible. This is probably the doorway referred to in the following extract of the 10th January 1518—“The said day, the toone consentit and ordanit thair masteris of Kirkwerk to translat thar (        ) and passag to the rudloft, and big up Sanct Nichell dur, and mak a fair wyndo in that gavill of thar croce kirk.”[193]

[Image unavailable.]

Fig. 386.—St. Nicholas’ Church. Doorway between Transept and Nave Aisles.

The “fair wyndo” is, doubtless, the window in the north end wall just referred to as having been altered, and seen in Fig. 389. The foregoing are the only original features of the upper church now remaining, all else is of the fifteenth and following centuries, and consists generally of the wide pointed openings leading into the choir; and in the south transept of a fifteenth century sculptured tablet of fine design (Fig. 391) with the following modern inscription beneath—“The above stone represents the Chantry or Annual Mass to be sung for his soul. Founded by William Leith, of Barns, Provest of Aberdeen in 1351, who, with many of his Descendants, is Interred underneath.” The monument has had an inscrip{429}tion, now illegible, and has suffered considerably either from neglect or mischief.

The crypt at the east end of the choir is shown on Plan in its proper relation to the transepts, but it is on a lower level. Although, as already stated, no part of the choir now remains, the walls drawn in outline are

[Image unavailable.]

Fig. 387.—St. Nicholas’ Church. The Crossing.

built on the site of the old walls, and show that the choir consisted of five bays, with an apse. The total interior length from the east wall of the apse to the tower is about 102 feet. It may be mentioned that the total internal length of the existing church from the west end of the nave to the apse is about 234 feet.{430}

The crypt was approached by two stairs, one from the north and another from the south aisle of the choir. These are now swept away, and only their round arched openings remain as recesses in the walls of the crypt. As these recesses are at a considerable height, most of the steps were probably in the crypt. The stairs shown on the Plan with the windows and doors are all quite modern. The latter lead out to the street, which is at the level of the floor.

The length of the crypt (which corresponds with the width of the choir) is about 65 feet. The crypt consists of one central and two side aisles, with an eastern apse. The plan of these divisions indicates that the central aisle of the choir was only about 3 feet wider than the side aisles, a very unusual arrangement, the side aisles being generally much narrower than the central one. The width of the crypt is about 16 feet, and the length at the apse is about 36 feet 6 inches. It is internally a very picturesque and interesting structure, but it has been badly treated at the time of the rebuilding of the choir. The wonder is that it escaped from being rebuilt, like the rest of the church. It is at present proposed to restore the building by removing the lath and plaster from the walls, and laying the floor at the original level, and also to fill the windows with stained glass. We may express the hope that before this is done the distressing effects of the stained glass in the crypt of Glasgow Cathedral will be duly considered.

[Image unavailable.]

Fig. 388.—St. Nicholas’ Church. Details of Piers of Crossing.

The roof is groined throughout, the three compartments in the length (Fig. 392) being separated by pointed arches, which spring from moulded caps on octagonal responds. The ribs are the same in all{431} the compartments, except that in the centre and north a length of the ridge rib is omitted (see Plan). The opening into the apse has a stunted

[Image unavailable.]

Fig. 389.—St. Nicholas’ Church. North Transept.

round arch (Fig. 393), and is a prominent example of the love of the Scottish builders for this form of arch all through the Gothic period. This is the only place in the crypt where the width is sufficient to allow{432}

[Image unavailable.]

Fig. 390.—St. Nicholas’ Church. Clerestory Window.

of such an arch reaching the roof without the necessity of undue gabling above the arch, and it further has the effect of giving a dignity and effect of separation to the apse which it would not have possessed with a pointed arch. Each compartment of the apse has a central boss, two of these are shown (Fig. 394). All the intermediate ribs spring from corbels at a lower level than the caps of the responds (Fig. 395), from which the separating arches spring, and the long diagonals of the centre compartment cut through these caps and rest on the notch formed in the centre of the wide diagonal respond at the opening to the apse (see Fig. 392.).

There is a considerable amount of carved woodwork—bench ends and backs of seats—in the crypt, some of the fifteenth or sixteenth century (Fig. 396), and some of a later period. These are probably part of the work done by John Ferdour, “wricht,” who, in 1507, contracted to make twenty-four stalls and other furniture “substanciusly and honourable as he may,” as they are begun, “and bettir gif he can” (p. 77).

The height from the present floor, which is about 18 inches above the original level, is 13 feet 4 inches to the centre rib and 7 feet to the top of the respond caps. The walls, being plastered, hide the wall ribs and any of the usual architectural features, if any such exist.

The choir so recently taken down superseded an older one.

[Image unavailable.]

Fig. 391.—Tablet in South Transept.

{433}

[Image unavailable.]

Fig. 392.—St. Nicholas’ Church. Crypt, looking South-East.

{434}

It does not appear to be quite certain when the latter was begun, but throughout the Council Register there are numerous references to the “kyrk werk,” and to the “reparacion of the perise kirk of Sanct Nicolace.” These references begin in 1442 and continue for about a century. In 1474 there is a contract for delivering six score stones of lead to “Schir Andro

[Image unavailable.]

Fig. 393.—St. Nicholas’ Church. Crypt, looking North-West.

Wricht, maister of the kirk wark” (p. 32), and three years later “Alexander of Charmyr,” alderman, was appointed “vpper and principale maister of wark of the bigeing of Sanct Nicholace qveyr for twa yeris to cum” (p. 33). Sir Andrew was probably an ecclesiastic, and he and Chalmers appear to have been the paymasters.{435}

[Image unavailable.]

Fig. 394.—St. Nicholas’ Church. Bosses in Crypt.

[Image unavailable.]

Fig. 395.—Plan of Piers in Crypt, with Caps and Ribs.

{436}

In 1483 David Menzis, elder, was master of the kirk work, and purchased a boat load of lime for the building, and in the following year “Maistre Johne Gray, mason,” was appointed “to the bigging of Sanct Nicolace wark.” He engaged to work in his own person, and to superintend the masons and other workmen. He was “to be lele and trew to the said wark for al the dais of his life, unto the completing and ending of the same” (p. 41). It would appear that there were but few skilled workmen employed in the building, as only some five or six men are mentioned by name in the register. They are frequently referred to, and appear to have been bound to remain at the building during the pleasure of the Council. In the same year that Gray was appointed the feeing of a single mason was a matter of so much importance as to occupy a whole sitting of the Town Council and “diuerse of the communite” (p. 41), and in the year following (1493) three masons were sent to Cowie (a few miles south from Aberdeen) to work there for a year quarrying stones for the church. The shifts and expedients to find funds for the building run through all the deliberations of the Council. In 1495 about fifty

[Image unavailable.]

Fig. 396.—St. Nicholas’ Church. Carved Bench End.

citizens advanced the money “to pay Johne Ferdour for the making of the roff and tymmir of the queyr” (p. 56), and in 1500 a contribution of “salmond and money” was made for lead for the church. This offering was not sufficient, and we find other negotiations had to be gone into to raise funds, and it was not till 1510 that they were able to order the master of the kirk work, George Bisset (a new master), to “cause the plumbar to pass and ende his werk, and theik the body of thar kirk with leide” (p. 80), and at last, in 1513, a gilded “weddercok” is set up on “Sanct Nicholace stepill.{437}

COLDINGHAM PRIORY, Berwickshire.

The picturesque village of Coldingham, with the remains of its ancient priory, lies in a small valley about 3½ miles eastward from Reston Railway Station, and within a mile of the sea.

The great precipice of St. Abb’s Head, overlooking the German Ocean, is only a few miles off. It is believed that Ebba, daughter of the Northumbrian King Ethelfrid, and sister of King Oswy, in the bright days of that kingdom, about the middle of the seventh century, founded the monastery of Urbs Coludi, or Coldingham. There Ethelrida, Queen of Egfrid, took the veil, and she afterwards founded the church and monastery of Ely, of which she became abbess.[194]

The Convent of Coldingham was several times sacked by the Danes, and after its destruction by them in 870, it remained desolate till it was restored in 1098 for a colony of Benedictines.{438}

[Image unavailable.]

Fig. 397.—Coldingham Priory. Plan.

{439}

The foundations of an early church with an eastern apse were found in excavations made in 1854. The outlines of this early church, as shown on a plan prepared by Mr. Hunter, in 1858, for his history of the priory, are drawn in outline on Fig. 397. These were, doubtless, the remains of the church erected in 1089. It had the circular apse of the early Norman churches.

The Priory of Coldingham was refounded at the above date by Edgar, son of Malcolm Canmore and Queen Margaret. His charter is still preserved at Durham. The church was dedicated to St. Cuthbert and St. Ebba, and granted by Edgar to St. Cuthbert’s Canons Regular of Durham, in acknowledgment of assistance he had received from England. It was colonised by Benedictine monks, sent to it by the abbot of Durham.

The priory thus remained long subordinate to the English Church, although upon Scottish soil. The Canons of Durham controlled it, and drew its revenues till 1504, when it was annexed to the Scottish Crown. In 1509, the priory was at length detached from Durham, and placed under the rule of the Abbey of Dunfermline, in which position it remained till the Reformation.

In the unsettled period of Robert III., and the regency of the Duke of Albany, the monks found it desirable to place the convent and its revenues under the protection of Archibald, Earl of Douglas, who appointed the Laird of Home as his under-keeper, and the Homes continued to be the bailiffs of the priory till the Reformation, when it fell entirely into their hands.

In order to provide support for the Chapel-Royal in Stirling, which James III. had founded, he attempted to suppress the Priory of Coldingham and annex its revenues, and this was approved by the Parliament of 1485. However, the proposal was opposed most strenuously by the Homes and Hepburns, and tended to bring about the rebellion by which King James lost his life.[195]

The buildings of the convent are said to have suffered severely from fire on three different occasions—viz., in 1216, in 1430, and in 1544. The structure was also greatly damaged by Cromwell, and since his time has served as a convenient quarry to the villagers. The result of the dilapidations thus caused has been that but little of the monastery now remains. The church is said to have consisted (see Plan) of nave and choir, each 90 feet by 25 feet, and transept, 41 feet by 34 feet. At the north-west angle of the latter rose a massive square tower 90 feet in height.

Of these once extensive structures there now only remain the north and east walls of the choir, and some fragments of the south transept. The nave has been entirely removed, and the great tower fell rather more than a century ago. In 1662, the west and south walls of the choir were{440}

[Image unavailable.]

Fig. 398.—Coldingham Priory. View from North-East.

{441}

rebuilt to render that portion of the edifice suitable for a place of worship, and in 1854-55 the choir was restored, its west and south walls being again partly rebuilt, a south porch added, and the corner turrets carried up to their present height. The whitewash was also removed from the beautiful work of the interior.

[Image unavailable.]

Fig. 399.—Coldingham Priory. North and East Sides of Interior.

The church thus restored is 84 feet in length by 23 feet in width internally, and comprises the ancient north and east walls of the priory choir. The choir never had aisles, the walls having evidently been designed to form the exterior of the building. They are two stories in height (Fig. 398), the ground floor consisting of a series of double round arches, inserted in the intervals between flat Norman-like buttresses. The arches are carved with chevron ornaments, and they spring from slender{442} shafts, each having a square abacus and refined cushion cap. The bases rest on flat corbels, round which a string course breaks. All this Norman-like work is exceedingly fine, and very unlike genuine Norman design.

[Image unavailable.]

Fig. 400.—Coldingham Priory. Caps of Lower Arcade.

Its refined character shows that it is of transition style. On the upper story the spaces between the buttresses contain in each a single lancet window, with a nook shaft on each side, and bold first pointed mouldings in two orders in the arches. The shafts have strongly marked early first{443} pointed features in the foliaged caps, with square abaci, central band, and beaded base resting on a string course stepped up to receive it.

The above design extends round the east end, and the whole of the north side, except the two bays at the west end of the latter, where the design is interrupted so as to admit of a porch which seems formerly to have existed there, but is now removed. The angle turrets have a nook shaft at each projecting corner like Norman work. They have now been restored on top with modern masonry.

The design of the interior of the north and east walls (Fig. 399) is very beautiful. It is carried out, like the exterior, in two stories. The lower story consists of a continuous pointed arcade, placed close to the wall, with single detached shafts and bold first pointed arch mouldings. The bases of the shafts rest on a stone bench 1 foot 6 inches high, and the caps are varied with rich transition and first pointed carving (Fig. 400). Curious trefoil and vesica openings are inserted in the spandrils. (Fig. 403.)

[Image unavailable.]

Fig. 401.—Coldingham Priory. Plan of Upper Gallery.

The upper story consists of a detached arcade, having a passage behind it in the thickness of the wall (Fig. 401). The arcade comprises an alternation of high and low pointed arches, two of the latter occurring between every two of the former. The shafts are alternately cinquefoil and double in section, as shown in the geometrical drawing (Fig. 402). All these details are prominently first pointed in style, the caps being elaborately carved with foliage of that period, and the mouldings being bold and distinct (Fig. 403). The little bits of foliage introduced at the points of the arches and ends of the labels and strings are also characteristic of early first pointed work.

That the design is late transition or very early pointed work is apparent from all the details. The lower story of the exterior having refined Norman ornaments, and the early date of the first pointed work being emphasised by the whole of the abaci of the caps being square in form, possibly this portion of the edifice may be due to restorations executed after the fire of 1216.

The portions of the south transept still left are very fragmentary, and there are now no traces of a north transept, although in Mr. Hunte{444}r’s plan some indications of such a structure are shown. At the north-west angle of the south transept there is an arch, which has been rebuilt, being partly made up of old fragments, but the lower part seems to be ancient. The lower portions of two piers on the east side of the transept still survive (Fig. 404), and exhibit good mouldings. These seem to have formed the piers between the transept and an eastern aisle. When

[Image unavailable.]

Fig. 402.—Coldingham Priory. Elevation of part of West Side.

Grose’s views were drawn in 1789, one of the pier arches still stood, and a corresponding arch of the north transept is also shown as then existing. Part of the west and south walls of the transept, with the shafts (or at least the bases of the shafts) of an arcade, similar to that of the choir, is also still preserved. This building shows a doorway in the south-west angle.{445}

Lying at a distance of 76 feet south from the church, and at a somewhat lower level, are the walls of a great hall (see Fig. 397.). The wall, which runs east and west, is fully 100 feet in length, and has attached to it pilasters of segmental form, measuring 1 foot 10 inches across, at

[Image unavailable.]

Fig. 403.—Coldingham Priory. Interior of North-East Angle.

{446}

intervals of about 12 feet. From excavations recently made, the width of this building has been ascertained to be 28 feet. The south wall has been 5 feet in thickness, and seems to have been buttressed.

There are three doorways in the north wall, with steps leading down into the building. Part of the east wall also remains, in which is a recess 4 feet 6 inches wide, with splayed jambs, and having an ambry in the back of it. The structure has been vaulted, as is apparent from the remains of ribs and corbels. Part of it may have been the refectory. Unless steps are taken shortly to preserve this building, it will probably very soon disappear.

There seem to have been buildings along the east, extending from this hall to the church. These may have formed the eastern side of a court or cloister, of which the hall formed the southern side and the church the north side.

[Image unavailable.]

Fig. 404.—Pier in South Transept.

The east wall of the cloister, which partly remains, has traces of an old doorway (see Plan) about 4 feet 6 inches wide, now built up. It was secured by a sliding bar, the channel for which is still in existence. This doorway is shown in Cardonnell’s Picturesque Antiquities of Scotland as a round arched door. Above it is shown a pointed arched window, and at about 20 feet to the south a great pointed archway, not unlike the arching of the “Pends” at Arbroath. This great archway is also shown by Grose, but the above-mentioned doorway with the sliding bar is not seen in Grose’s view owing to a wall hiding it from his point of view; however, he shows the pointed arched window above. Both the above authors indicate that a wall ran eastward at right angles.

There are several grave-slabs at Coldingham, of which four are illustrated. Three of these are small in size, and the fourth is considerably larger. That shown in Fig. 405 has bevelled edges, with a foliaged cross containing thirteenth century carving. At the top of the cross there is{447} a wasted bust, and at the foot there are Calvary steps. The slab measures 2 feet 2 inches high by 11½ inches wide at the top, tapering to 8 inches at foot. The other three crosses are apparently of a later date.

Figs. 406 and 407 are, like Fig. 405, of small size, the first measuring 32 inches high by 10⅜ inches at the top of the slab, and tapering to 8⅛ inches at the base, and the latter 27 inches high by 10 inches without taper.

Fig. 406 is of an elaborate and peculiar design. On the flat slab a shallow bead with a circular head encloses the design. This consists of two stars at the top, and then of three upright flat-beaded figures about 6 inches high, with corded lines across them; then a Greek cross, a star, and, finally, a double row of three stars. The arrangement of the stars somewhat resembles the similar features at the chancel arch of Legerwood, Berwickshire. The small slab (Fig. 407), which may be

[Image unavailable.]

Fig. 405.

[Image unavailable.]

Fig. 406.

 

Fig. 407.

 

Fig. 408.

Coldingham Priory. Grave Slabs.

{448}

supposed to have covered the grave of a child, appears also to have had an incised sword.

Fig. 408 is 5 feet 2 inches by 16½ inches at the head, tapering to 14 inches at the base, and has bevelled edges, with a flat bead at the sides only. It bears the incised outline of a sword, with a large carved knob for the pommel.

[Image unavailable.]

Fig. 409.—Cushion Capital.

There are several stones at Coldingham preserved from an earlier church than the existing one. Fig. 409 represents one of these, being a Norman cushion capital from a respond. The fragment is 14¾ inches wide by 11 inches high.

DRYBURGH ABBEY, Berwickshire.

Situated on the north bank of the Tweed (and, consequently, in Berwickshire), this once important abbey belonged to the series of monastic establishments founded in the twelfth century in the valley of the Tweed. It occupies a beautiful position amongst fine woods on an elevated peninsula, surrounded on three sides by a loop of the river Tweed, about five miles below Melrose.

It is said that a religious establishment existed here under the presidency of St. Modan, in the eighth century, but the evidence is scanty.

The monastery, of which the fragmentary remains are still visible, was founded, in 1150, by Hugh de Morville, Constable of Scotland, and received a charter from David I. The canons introduced into it were of the Premonstratensian order, from Alnwick, and, from their dress, were called White Friars.

A large part of the domestic buildings seems to have been erected within fifty or sixty years of the date of the foundation, as they are built in the transition style of the beginning of the thirteenth century. The church appears to have been in progress during the thirteenth century, as in 1242 the Bishop of St. Andrews, owing to the debts incurred in building the monastery, and other expenses, gave the canons permission to enjoy the revenues of the churches under their patronage—one of their number performing the office of vicar in each parish.

The canons took the oath of fidelity to Edward I. in 1296, upon which their property was restored to them. Their possessions were widely spread, and extended into several counties, as appears from letters addressed by Edward regarding them to the sheriffs in the counties of Fife, Berwick, Roxburgh, and Edinburgh.

Amongst the distinguished men connected with the abbey was Ralph Strode, a friend of Geoffrey Chaucer and John Wiclif. He devoted himself{449}

[Image unavailable.]

Fig. 410.—Dryburgh Abbey. Plan.

{450}

to philosophic studies, and was the author of several works. In the fifteenth and sixteenth centuries Andrew Forman was superior of Dryburgh, a man much occupied with affairs of Church and State under James IV. and V. He was appointed, in 1501, to the Bishopric of Moray, and held at the same time the priories of Coldingham and Pittenweem, and the Commendatorship of Dryburgh. Afterwards he became Archbishop of Brouges, and finally Archbishop of St. Andrews.

Lying, as the abbey did, in the path of the invaders from the South, it received many unfriendly visits, and suffered much at the hands of

[Image unavailable.]

Fig. 411.—Dryburgh Abbey. East Side of Monastic Buildings.

the English. In 1322 the monastery received a destructive visit from Edward II. on his return from an unsuccessful invasion of Scotland. His army camped in the grounds of the abbey, and next morning set it on fire, when great damage was done. Large contributions were received from Robert I. for the repairs of the damage thus caused.

The buildings were again destroyed, in 1385, by Richard II. on his retreat from Scotland, on which occasion he likewise burnt the abbeys of Melrose and Newbotle. In 1544 the edifice once more suffered at the hands of Lord Eure, when the fittings were carried off.

The abbacy was held in commendam from the beginning of the six{451}teenth century, and, in 1587, it was annexed to the Crown. Finally, it was erected into a temporal barony, with the title of Lord Cardross, in favour of the Earl of Mar, from whom it has passed, by purchase, through the hands of several proprietors.[196]

The monastery (Fig. 410) has consisted of the usual buildings surrounding the cloister, having the church on the north side, standing about ten steps above the level of the cloister garth. The sacristy, chapter house, fratery, and other apartments stretch from the transept southwards along the east side; and above these, on the upper floor, were the dormitories, entering by an open staircase from the south transept, in a similar manner to the dormitories at Pluscardine, Melrose, &c. Along the south side of the cloisters lay the refectory, which, owing to the slope of the ground, was raised on a basement floor of vaulted cellars. On the west side of the cloister garth there are now only a few vaulted cellars. A small stream runs along on the south-west side of the monastic buildings, and beyond the stream are the remains of what seems to have been a detached chapel.

The oldest portions of the structure are those forming the eastern range (Fig. 411), which, from their style of architecture, are evidently of transition date, or about the beginning of the thirteenth century. The sacristy is 28 feet long by 13 feet wide. It has a stone bench round the walls and three steps in the floor. There is a door from the transept and an outer semicircular-headed doorway of transition character from the cloister (Fig. 412.) Access is also obtained by a small door in the north side to a wheel-stair leading to the upper floors, and visible as a projecting turret at the south-east angle of the transept (see Fig. 412.).

The east window of the sacristy is remarkable, having two round-headed windows, surmounted by a visica-formed aperture (see Fig. 411.).

The sacristy has a piscina in the south wall near the east end.

The apartment next the sacristy is 28 feet long by 11 feet wide. It has now been appropriated as a mausoleum, but may have originally been a parlour. There is an ambry in the south wall near the east end. The doorway is semicircular, and of Norman character (see Fig. 412.).

The east window is plain, and consists of two round-headed openings enclosed in a large semicircle (see Fig. 411.). The above two apartments are on the level of the cloisters; but the floor of the chapter house, which is next in order, is several feet below the level of the cloister walk.

The ordinary central doorway and side windows opening from the cloister (see Fig. 412.) are, however, placed in their usual position on the level of the cloister walk. The door is thus some five feet above the floor, and if the doorway was used for access to the chapter house, it must have been provided with a stair down, of which there is now no trace. The{452}

[Image unavailable.]

Fig. 412.—Dryburgh Abbey. Transept and East Side of Cloisters.

{453}

[Image unavailable.]

Fig. 413.—Dryburgh Abbey. Doorway of Chapter House.

{454}

[Image unavailable.]

Fig. 414.—Dryburgh Abbey. Interior of Chapter House.

{455}

side openings were unglazed, and were used for seeing and listening to what was proceeding in the chapter house below.

The doorway (Fig. 413) is large and deeply recessed, having three shafts on the sloping ingoing, and plain mouldings above in the round arch, divided into several orders. The jambs and arch over them are enriched with a bold dog-tooth moulding. The outer arches of the windows on each side of the doorway are plain semicircles, filled in with two pointed lights, having a central shaft.

[Image unavailable.]

Fig. 415.—Dryburgh Abbey. Carved Figure in Chapter House.

The chapter house is 48 feet in length by 23 feet in width, and retains its round barrel vault (Fig. 414), which is about 20 feet in height. It has three pointed windows in the east end (see Fig. 411.) and two similar windows in the side walls, where the chapter house projects beyond the general line of the buildings. In the interior a round arched arcade runs along the east side, supported on single shafts, and there are traces of a similar arcade having run round the side walls. There is an entrance doorway in the south wall, which is probably not original, and the approach to it has been modernised. The east gable wall over the chapter{456} house still exists (see Fig. 411.) It has simple flat buttresses of a Norman type at the angles and between the windows, but the pointed arches indicate transition work.

Amongst the fragments of carved work preserved in the chapter house is that shown in Fig. 415. It represents the pascal lamb slain,

[Image unavailable.]

Fig. 416.—Dryburgh Abbey. South-West Angle of Cloisters.

and is surrounded by a wreath of foliage, above which are the letters I H S. The vine leaves flowing from the lamb may represent the branches springing from the true vine.

To the south of the chapter house is a large apartment, 50 feet in length by 23 feet wide. It has been vaulted at a late period, and the{457} vaulting shafts still remain attached to the east, west, and south walls. Their details are of the third pointed period. There is a fireplace in the centre of the west wall, and an outer doorway at the south end of the same wall. The apartment was lighted by three plain round arched windows in the east wall, one of which has had tracery inserted in after times. At the north-west angle, opening from the level of the cloister, there is a round-headed doorway, and traces of a staircase, which doubtless served as the day access to the dormitory. The large apartment just described was probably the fratery or monks’ day room. This is the more likely from its having a fireplace, where the monks might warm themselves

[Image unavailable.]

Fig. 417.—Dryburgh Abbey. Arms of John Stewart, 1555.

in cold weather. At the south-east angle of the room, and in the thickness of the wall, a narrow staircase leads up to where the dormitories were situated. South of the fratery is the slype or passage 10 feet in width, with arched openings to the east and west. It has also a doorway to the fratery, and another to the apartment on the south side. The latter now only exists in part, the south end of the range having been destroyed.

The range of buildings above described still retains its eastern wall to the full height of two stories (see Fig. 411.), the upper story being, doubtless, the dormitory. The wall is all built in a simple early style, with flat buttresses between the windows, and the latter are plain round-headed{458} openings, with a single recessed order. The hood mould is in some cases carved with a notch ornament.

On the south side of the cloister, where the refectory once stood, there

[Image unavailable.]

Fig. 418.—Dryburgh Abbey. West End of Nave—Interior.

are now only the ruins of the vaulted basement on which it stood. At the east end of this range there is a doorway from the cloister giving access to a staircase, which led down to the lower level of the fratery, &c. The remainder of the south side was probably all occupied by the refectory,{459}

[Image unavailable.]

Fig. 419.—Dryburgh Abbey. Western Doorway.

{460}

which would thus be about 77 feet in length by 27 feet in width. The west wall is almost all that survives. It is ivy clad, and contains a picturesque circular window, with radiating tracery (Fig. 416). Adjoining

[Image unavailable.]

Fig. 420.—Dryburgh Abbey. North and South Ends of Transept.

this wall in the south-west angle of the cloister there is an arched recess in the west wall, apparently intended for a tomb and monument; but it is empty. Over the doorway in this angle is a large shield (Fig. 417),{461}

[Image unavailable.]

Fig. 421.—Dryburgh Abbey. North Transept and Choir.

{462}

which contains the arms of John Stewart, who was commendator in 1555. On the shield are the initials “J. S.,” with the crozier in the centre. He was brother of the Earl of Lennox, and uncle to Lord Darnley, who married Queen Mary. The arms are those of the Stewarts of Lennox.

The cloister occupies a space of 93 feet by 91 feet. It has been surrounded by a vaulted walk, which has entirely disappeared. It is evident that the cloister walk was at least partly vaulted from the small remains of the springing of the vaults which are visible in the eastern wall on each side of the doorway to the chapter house (see Fig. 413.). From the way in which these springings die away to nothing against the wall, without corbel or support of any kind, it is apparent that the vaulting must have been of a late date. The corbels which supported the top of the wooden roof over the vaulting are also still visible in the east wall.

The south wall of the nave of the church extends along the north side of the cloister. At the north-east angle is the doorway which led from the cloister into the nave. It is a handsome specimen of the transition style, having a circular arched head deeply recessed in four or five orders, springing from three shafts, and two moulded members in the jambs. It is noteworthy regarding this doorway that the two inner orders of the jambs and arch had been removed and erected in private grounds, and, after many years’ absence, were restored to their original position only a short time ago.

The nave of the church is entered through this handsome doorway by ten steps up from the cloister. It presents a scene of terrible destruction. All the piers of the nave are demolished, and only slight traces of the north wall remain; of the south wall, more is preserved. The west end wall (Fig. 418), however, has to some extent escaped destruction, and shows by the responds attached to it the form of the nave piers, with their caps and bases. The position of the piers along the nave is now roughly indicated by a collection of fragments arranged, as nearly as possible, in the original position and form. The mouldings indicate a late date, and were, doubtless, restorations; but the responds, which were not so liable to destruction, are of first pointed date. The responds which form part of the west wall show that there was a central nave 28 feet wide and side aisles, each about 13 feet 6 inches wide, making a total width of 55 feet. There have been side chapels in the nave, apparently divided by walls, some portions of which remain, with ambries in the chapels.

The western doorway (Fig. 419) has a round arched head, but its details show that it is of late design. This part of the edifice has apparently been restored in the fifteenth century, after the destruction of the abbey by Richard II. in the end of the fourteenth century.

The transept has a slight projection to the north and south. It is 80{463} feet in length internally from north to south and 37 feet in width, including an eastern aisle.

This part of the building and all to the east of it are evidently of

[Image unavailable.]

Fig. 422.—Dryburgh Abbey. Choir-Aisle and North Transept.

{464}

thirteenth century work, but, unfortunately, only a few detached portions remain. These include (see Fig. 412.) the very picturesque gable of the south transept, with its large window filled with simple pointed tracery, rising in steps above the roof of the dormitory (Fig. 420). The arch through which the stair to the dormitory passed is visible in this wall. (See Fig. 420.)

To the east of the transept is a choir of two bays, with aisles, beyond which is an aisleless presbytery, 42 feet long by 24 feet wide, now almost reduced to foundations. The buttresses and base course are traceable, and a doorway in the north-east angle, which probably led to a small staircase. The portion of the structure still preserved to the north is a part of the north transept wall, with the eastern aisle of the transept and the two north bays of the choir (Fig. 421).

These portions are of very beautiful design, both internally and externally. The exterior (Fig. 422) is of very simple, but elegant, first pointed work, while the interior shows symptoms of somewhat more advanced design. The angle pier of the crossing and the piers of the choir consist of round shafts with fillets, divided by square angles. These are surmounted by moulded caps, with round abacus and first pointed mouldings. From these spring the pier arches, composed of three orders of plain splays, with hood moulding. Over the main arches is a low triforium marked by string courses above and below. It has flat arched openings filled in with circles having six cusps.

The clerestory is of beautiful design. Each bay contains an arcade of three arches, the central one, which is opposite the window, being larger than the side arches. The arches are supported on detached piers, behind which runs a gallery. These piers each consist of two shafts, with central fillet. They have first pointed round caps, over which a round block receives the arch mouldings as they descend.

A small portion of the north end of the transept adjoins the above, which shows that the structure has been carried up in two stories of richly moulded windows (see Fig. 420.), all in the same style as the adjoining portion of the choir. The remaining portion of the aisle is vaulted with moulded ribs springing from responds and corbels corresponding in style with the choir.

The whole of this part of the church is of very fine design and workmanship, but it is, unfortunately, a mere fragment. Additional interest attaches to it from its forming the last resting-place of Sir Walter Scott and members of his family.{465}

AIRTH CHURCH.[197]

This ruined church adjoins the old Castle of Airth, which lies half a mile from the Forth and eight miles south-east of Stirling. The church is in part a building of considerable antiquity, dating from the transition period about the end of the twelfth or the beginning of the thirteenth century, but it has undergone many alterations, and only a small part of the early structure remains. The building as it now stands (Fig. 423) consists of a

[Image unavailable.]

Fig. 423.—Airth Church. Plan.

nave and chancel, having a south wing or aisle, containing the Airth vault, and forming a transept, with a tower at the re-entering angle of the Airth aisle, and with indications of an aisle on the north side of the choir. There are also two burial vaults attached to the building, one on the north side and the other at the south-west angle, called respectively the Bruce and{466} Elphinstone aisles. The internal length of the church is 79 feet 3 inches by about 19 feet 9 inches in breadth. The most ancient part of the church (Fig. 424) is on the north side of the nave, and consists of a bay of what has been a nave arcade, opening into a north aisle. One pillar and respond (tinted black on the Plan), with the connecting round arch, still

[Image unavailable.]

Fig. 424.—Airth Church. North Arcade.

stand. The original arcade probably consisted of three bays extending to near the west gable, where there are indications, at the ground level, of what appears to have been the western respond. Whether there was originally a south arcade or not cannot now be determined, as this part has been entirely rebuilt, and all traces of the north and south aisles of the nave, if there was a south aisle, have perished. The existing north{467} bay is 11 feet 3 inches wide, and the pillar, which is circular, is about 17 inches in diameter. It has a capital, carved with simple foliage (Fig. 425), and has a square abacus. The arch has a double set of plain arch stones, with plain soffit.

The few details which survive are extremely interesting, and show this to have been a building of some importance. Behind the above bay now stands the burial aisle of the Bruces of Powfoulis. It bears over the doorway the initials of Sir James Bruce and his wife, Dame Margaret Rollox, of Duncrub, and on another part the date 1614. It seems probable that this, as well as the other aisles shown on Plan, contained, on the upper floor, the family seats or galleries of the respective houses whose arms they bear, and a burial vault beneath.

[Image unavailable.]

Fig. 425.—Airth Church. Cap of Pillar.

Judging from the few details left, the Airth aisle is a structure of the fifteenth century. It measures about 24 feet 3 inches long by 13 feet 3 inches wide, and has contained a large traceried south window, which is now destroyed, and brought to the condition shown in Fig. 426. The external hood moulding of the window remains with nicely carved terminations (Fig. 427). Beneath this window is seen the top of an arched tomb, in which probably the recumbent effigy (Fig. 428) once lay. There is a small square-headed window in the east wall, divided by a mullion; but, as appears from its mouldings, it is an insertion of perhaps the seventeenth century. Adjoining this is the usual ambry. Beneath this aisle is the burial vault (indicated by dotted lines on the Plan), which is reached by the stair shown. On the outside of the east wall there is a niche for a statue (Fig. 429). It has the usual canopy and bracket so frequent on the churches of this late period. The bracket (Fig. 430) contains the Bruce arms—viz., the chief and saltier; the chief being{468} charged with two incised cinquefoils, which may point to an alliance with the Livingstone family. The same arms, but without the cinquefoils,

[Image unavailable.]

Fig. 426.—Airth Church. The Airth Aisle, looking South.

appear beneath each of the first crow steps of the gable. This aisle was probably erected by Alexander Bruce of Stenhous and first of Airth (1452 to 1483), who was a son of Sir Robert Bruce of Clackmannan,[198] and is stated to have married (first) Janet, daughter of the first Lord Livingstone, by whom he had no issue. It was probably “our Ladie Aisle, founded and situated on the south side of the Kirk of Airth,” the chaplainrie of which was presented by Sir Alexander Bruce of

[Image unavailable.]

Fig. 427.—Airth Church. Terminations.

{469}

Airth, the patron, to Robert Bruce, younger, his son, on 30th October 1572.

[Image unavailable.]

Fig. 428.—Airth Church. Effigy.

The effigy (see Fig. 428.), which, as already stated, probably occupied the tomb in the Airth aisle, lies at present in a mutilated state in the

[Image unavailable.]

Fig. 429.—Niche for Statue.

 

Fig. 430.—Bracket.

 

Fig. 431.—Stone in Airth Castle.

{470}

eastern portion of the church. There is no certainty whom the recumbent figure represents, but it is in all likelihood an effigy of one of the ladies of either the family of Erth or of the Bruces of Airth. It has been stated that another effigy lies beside the one referred to, but we understand from a person who has examined the ground that nothing of the kind is to be found. This effigy, which is 6 feet 3 inches long by 1 foot 10 inches in breadth, is greatly mutilated; but the coverlet extending from the waist downwards is well preserved, and is very finely carved, and, so far as we know, is unique amongst Scottish figures.

In Airth Castle is preserved the stone shown in Fig. 431. It appears to have been taken from the church and to have formed a part of a piscina or ambry. The fragment measures about 2 feet high, with an opening about 12½ inches wide. It doubtless belonged to the Airth aisle.

[Image unavailable.]

Fig. 432.—Airth Church. Stone in South Gable of Elphinstone Aisle.

The Elphinstone aisle, which is separated from the nave by a semicircular arch, presents no architectural features of note; but on the exterior of the gable towards the south there is a well-preserved stone (Fig. 432), with shield bearing the Elphinstone arms, parted per pale with those of Livingstone and Calendar quarterly, with the motto “Cavis Cavis” (Caus Caus), the date 1593, and at either side the letters M A ♢ E and I ♢ L ME, the initials of Alexander, fourth Lord Elphinstone, and his wife Jane, eldest daughter of William, sixth Lord Livingstone.

The tower contains, on the lintel of the doorway, the inscription I V L Y + THE + 15 + 1647, doubtless the date of its erection. The other parts of the church appear to be of late seventeenth century work, and need not be further referred to.{471}

LASSWADE CHURCH, Mid-Lothian.

Lasswade is a village on the south bank of the river Esk, about six miles south from Edinburgh. The old Parish Church stood, till 1866, in the ancient churchyard, on a height above the south side of the river. “It became a mensal church of the Bishopric of St. Andrews in the twelfth century, forming a prebend of St. Salvator’s Church; but was annexed to the Collegiate Church of Restalrig, in the reign of King James III.[199]

[Image unavailable.]

Fig. 433.—Lasswade Church. Plan.

The old structure having become unsuitable, a new church was erected in 1793, and the old building was allowed to fall into ruins. Some portions, however, were preserved, and converted into mausoleums. In one of these aisles lie the remains of Henry Dundas, first Lord Melville; in another is buried the poet Drummond of Hawthornden.

The old church (Fig. 433) consisted of a single oblong chamber 20 feet in width, with a tower 16 feet square at the west end. The aisles, or{472}

[Image unavailable.]

Fig. 434.—Lasswade Church. East, West, and North Elevations.

{473}

mausoleums, above referred to, are projected from the north side. The westmost is roofed with stone slabs, and has a picturesque appearance.

The tower and a portion of the church were of considerable age, and may be classed as Transition work. In 1866 the tower had become much crushed and dangerous. While steps were being taken by the heritors

[Image unavailable.]

Fig. 435.—Lasswade Church. South Elevation.

to have it strengthened the tower fell. The accompanying drawings were made before that event.

The tower (Fig. 434) was three stories in height, besides the gables of the saddle roof which crowned it. The entrance to the tower was from the inside of the church by a round-headed doorway (see East Elevation), with simple impost and plain arch with hood moulding. Above this was a large round-arched opening into the roof of the church. The two lower stories had narrow pointed windows. The top story had{474} double-pointed lights, with central mullion in each face. This story had an enriched cornice, above which rose the east and west gables, each with a small round-headed window. A door had been knocked into the tower on the south side (Fig. 435), which, doubtless, helped to weaken it.

In a portion of the south wall of the church, near the tower, there was preserved an original doorway (see Fig. 435.) about 5 feet 6 inches wide. It resembled that to the tower in design, having plain jambs, with a string course forming the imposts, and a plain round arch above, enclosed with a hood moulding. All the above features seem to point to the structure being one of the first half of the thirteenth century.

Annexed is a sketch of the effigy of a knight in armour (Fig. 436), which is lying in the churchyard. There is no record of the knight’s name.

[Image unavailable.]

Fig. 436.—Effigy in Churchyard.

BATHGATE CHURCH, Linlithgowshire.

About one mile east from the town of Bathgate stands the old ruined church, surrounded by an ancient burial-ground. It is a long, narrow,

[Image unavailable.]

Fig. 437.—Bathgate Church. Plan.

{475}

ivy-covered building (Fig. 437), measuring internally about 91 feet 2 inches from east to west by 19 feet 5 inches from north to south, with walls from 3 to 4 feet in thickness. The doorway, which was probably round arched, is almost the only feature of its architecture left. The opening is unusually wide, showing 7 feet of daylight (see Fig. 437.), and, judging from its details, the church belonged to the transitional period. The doorway was decorated with shafts placed in square nooks or recesses, with carved capitals having the square abacus, a certain feature of early work. (Fig. 438.) Both inside and outside the walls are so entirely covered either with ivy or tombstones that almost no part of the masonry can be seen; only one small window on the north side, about six inches wide, being partly visible.

[Image unavailable.]

Fig. 438.—Bathgate Church. Caps.

The grave slab (Fig. 439) has lately been fixed into the south wall. Some time ago it was lying on the floor. It measures 6 feet 2 inches long by 2 feet 3 inches wide, and bears a beautifully lettered inscription to the memory of Andreas Crichton. In the centre of the slab there is a cross, with the Calvary steps, and beneath the cross limb a shield with the Crichton arms (a lion rampant), and on the dexter side a long sword.

In the Exchequer Rolls for the year 1497, Andrew Crichton of Drumcorse (the name of the estate adjoining the church on the north) first comes into view. On the 1st May 1502, Crichton entered office as the Chamberlain of the Lordship of Linlithgowshire. He presents his accounts yearly, his last being rendered from July 1513 to July 1514, when he presumably died. His monumental slab was, doubtless, carved shortly after that date.

There is a very beautiful recumbent statue (Fig. 440) lying in the church. It appears to be an early work, but no record exists to tell whose memory it commemorates.{476}

[Image unavailable.]

Fig. 439.—Bathgate Church. Slab in Church to Andreas Crichton.

{477}

Malcolm IV. (1153 to 1165) granted the church of “Bathket,” with certain lands, to Holyrood.[200] Robert, Bishop of St. Andrews, who died about 1159, confirmed those grants. There was, further, a Papal confirmation in 1164. In 1251, by a taxation of churches in the diocese of St. Andrews, the vicar of the Church of Bathgate was to receive 12 merks of the altar dues, to be assigned him at the sight of William, Archdeacon of Lothian, and Master Alexander, of Edinburgh. This was confirmed by Bishop Gamelin.

[Image unavailable.]

Fig. 440.—Bathgate Church. Effigy.

The church and lands were afterwards given by the monks of Holyrood to Newbotle, in payment of arrears of rent for lands and salt works in the Carse of Callender, and this was confirmed by Bishop Landels, of St. Andrews, in 1327.[201] The church remained with Newbotle, and was served by a vicar till the Reformation.

The old church was probably abandoned in 1739, when a new church was erected in the town of Bathgate.{478}

[Image unavailable.]

From Dryburgh Abbey.

{479}

INDEX.

A, B, C, D, E, F, G, H, I, J, K, L, M, N, O, P, R, S, T, U, V, W.

Abb’s, St., Chapel, 437.
Abercorn Church, description, 346.
Aberdeen Cathedral, 47.
—— St. Nicholas, description, 426.
Abernethy Tower, 11, 15, 26;
description, 175.
Adamnan, 11.
Aidan, St., 11.
Airth Church, description, 465.
Alexander I., 29.
—— II. and III., 50.
Allen, J. Romilly, 2.
Alnwick, 47.
Anchorites, 1.
Anderson, Dr. Joseph, 2, 3, 66.
Antiquaries of Scotland, 101.
Arbroath Abbey, 38, 47, 48, 49.
Arched style of building, 32.
Architecture, Scottish, of Fourteenth to Sixteenth Centuries, 50.
—— Division of, 53.
—— Ceases to be like English, 52.
—— Connection with French, 52.
Ardoilean, 8.
Armstrong, R. B., 465.
Augustine, St., 12.
Aula, St., Gress, Lewis, 83.

Bangor Monastery, 5.
Bathgate Church, description, 474.
Bede, 12.
Beehive Cells, 7, 24, 68.
Benedict Biscop, 12.
Beverley Minster, 54.
Birnie, St. Brandon’s, description, 218.
Birsay, Brough of, 135.
Blane’s, St., Bute, description, 292.
Boniface, St., 14.
Boswell’s, St., description, 377.
Brandon’s, St., Birnie, 218.
Brechin Cathedral, 49, 57.
—— Tower, 26, 48.
—— Maison Dieu, 48.
Brendan, St., 67.
Brude, King, 10.
Bunkle Church, description, 314.
Burgundy, 35.
Bute, St. Blane’s, 292.
Buttresses introduced, 34.

Caithness Cathedral, 47.
Cambuskenneth Abbey, 30.
Candida Casa, 3, 5.
Canmore, Malcolm, 15, 29.
Canterbury Cathedral, 12.
Cara, Gigha, Kintyre, 82.
Carinish, North Uist, 81.
Carmaig, St., Eilean Mor, 90.
—— Knapdale, 84.
Cashels, Irish, 7.
Catan’s, St., Kintyre, 95.
Cathedrals, Scottish, 49.
Caves, 5.
Cellach, 15.
Celtic Art, 1.
—— Church, 65.
—— Churches standing alone, 78.
—— —— built with chancel and nave, 93.
—— —— with pointed or late features, 95.
—— Structures in Scotland, 65.
Chancel architecturally distinguished, 79.
—— added to nave, 79.
Chirnside Church, description, 322.
Churches, dry built, 80.
—— oblong, modified, 82.
—— with nave and chancel added, 88.
—— on islands, 105.
{480}—— in Orkney, 113.
Clonmacnoise, 10.
Coalisport, Loch, 10.
Coldingham Priory, 30, 48;
description, 437.
Columba, St., 5, 10, 67, 69.
—— Church, Balivanich, 88.
—— —— Ey., Lewis, 91.
—— —— Kiels, Kintyre, 92.
—— Isle, Lewis, 97.
Columban Church, 11, 12, 13.
—— Churches, 25.
Collegiate Churches, 51, 60.
Comgall, St., 5.
Cormac’s Chapel, 28.
Crosses, 9, 10, 17, 20.
Cross, St., Church, 36.
Crosraguel Abbey, 57, 58.
Cruggleton Church, description, 212.
Culbinsbrough Church, Bressay, 157.
Culdees, 14, 15, 30.
Culross Abbey, 48.
Cuthbert, St., 5, 12.

Dalmeny Church, 38;
description, 298.
Dalriada, 10.
David I., 29, 30, 38.
Decorated Architecture, 52, 53.
Deerness, Brough of, 68, 101.
Denis, St., 40.
“Deserts,” 8.
Devenish, Round Tower, 27.
Dioceses, Scottish, 29.
Doorways, 55.
Drummond, James, 2.
Dryburgh Abbey, 38, 47, 48, 49, 57;
description, 448.
Dryden, Sir Henry, 3, 68, 101, 172.
Duddingston Church, 39;
description, 333.
Dunblane Cathedral, 38, 48, 49, 50.
Dundrennan Abbey, 30, 47, 48;
description, 388.
Dunfermline Abbey, 38;
description, 230.
Dunkeld Cathedral, 47, 49, 62.
Dunning, St. Serf’s, description, 204.
Dun Othail, Lewis, 81.
Duns Church, description, 381.
Dunstaffnage Castle, 48.
Durham Cathedral, 37.

Edinburgh Castle, Chapel, 29;
description, 224.
Edrom Church, 316.
Edward I., 51.
Egilsey, Orkney, Church on, 26, 127.
—— Choir, 100.
Eilean Naomh, 66.
—— Mòr, 77, 89.
—— Munde, 83.
Elgin Cathedral, 47, 48, 49.
English Cathedrals, 40, 43.
England, Church in, 12.
Enhallow, Orkney, 116.
Eorrapidh, Lewis, 99.

Farne Island, 12.
Finnian, St., School of, 5.
First Pointed Style, 39.
—— —— in Scotland, 46.
“Flamboyant” Style, 2, 57, 58.
Flannain Isles, 77.
Fortrose Cathedral, 57.
France, Architecture in, 40, 42, 43.

Galloway, William, 297.
Gallowhead, 80.
Germany, 35.
Giles’, St., Edinburgh, 49, 51, 57, 60, 62.
Giric, King, 15.
Glasgow, Bishop of, 29.
—— Cathedral, 47, 48, 49, 50, 57, 58.
Gothic Architecture in Scotland, 2.
Gullane, St. Andrew’s, 339.

Haddington, St. Martin’s, description, 362.
Halcro Chapel, South Ronaldshay, 105.
Head of Holland, Church at, 105.
Helen’s, St., Church, description, 323.
Herdmanston Font, description, 384.
Hermits’ Cells, 73.
Hexham, 12.
Holy Cross Church, Lewis, 83.
Holyrood Abbey, 30, 38, 47, 48.
Howmore, South Uist, 70.

Inchcolm Abbey, 29, 48.
—— Oratory, 24.
Inch Kenneth, Ulva, 98.
—— Mull, 165.
Inchmahome, 48.
Iona, 10, 11, 14.
{481}—— Cathedral, 49, 62.
Iona, Carved Slabs, 23.
—— The Nunnery, description, 421.
Irish influence, 2, 9.
—— Style of building, 8, 9.
—— Round Towers, 26, 27, 28.
Islands, Churches on, 8.
—— Western, Architecture of, 65, 80.

Jarkow, 12, 13.
Jedburgh Abbey, 38, 49;
description, 398.
John the Baptist, Church of, Lewis, 95.
—— St., Kirk of, Unst, 148.

Kelso Abbey, 38, 49;
description, 347.
Kentigern, St., 11.
Kevin, St., Cell of, 9.
Kiels, Knapdale, 84.
Kilbar, Barra, 71, 72.
Kilbride, Knapdale, 98.
Kilchenich, Tiree, 88.
Kilchenzie, Kintyre, 93.
Kilchieran, Islay, 96.
Kilchieven, Kintyre, 100.
Kilchoman Cross, 22.
Kilchouslan, Kintyre, 92.
Kildalton, Islay, 96.
Killean, Kintyre, 98.
Kilmory, Knapdale, 85.
Kilmuir, Skye, 84.
Kilnaughton, Islay, 96.
Kilneave, Islay, 96.
Kilrimont, 11.
King’s College, Aberdeen, 62.
Kinloss Abbey, 30;
description, 416.
Kintyre, 3, 10, 82.
Kirkaby, Westray, Shetland, 147.
Kirkapoll, Tiree, 87.
Kirkliston, description, 366.
Kirkmadrine, Crosses at, 4.
Kirkmaiden, description, 383.
Kirkwall, St. Magnus’ Cathedral, 38, 48, 50;
description, 259.
—— St. Ola, 109.

Laggan, Mull, 98.
Lamington Church, description, 376.
Lanark Church, 50.
Lasswade Church, description, 471.
Late or Third Pointed Style, 58.
—— in Scotland, 60.
Legerwood Church, description, 320.
Leuchars Church, 38;
description, 309.
Lewis, Butt of, 75.
Lincluden College, 57.
Lincoln Cathedral, 45, 47.
Lindisfarne, 11.
Linlithgow Church, 57.
Linton Church, Roxburghshire, description, 378.
Linton, Shapinsay, 122.
Logierait Cross, 18.
Lombardy, 35.
Lundie, St. Lawrence, description, 382.
Lybster, Caithness, Church, 162.

M‘Alpine, Kenneth, 14.
M‘Lean’s Cross, Iona, 21.
Madoe’s, St., Cross, 17.
Magnus’, St., Cathedral, 259.
Margaret, Queen, 15, 28, 29.
Markinch Tower, description, 193.
Martin’s, St., Church, Haddington, description, 362.
—— Cross, Iona, 21.
Mary’s, St., Lybster, 93, 94.
—— Ratho, description, 371.
—— Rutherglen, description, 372.
Meal Colvidale, Unst, 148.
Medan’s, St., Cave, 5.
Melrose Abbey, 30, 47, 49, 51, 52, 55, 58, 62.
—— Old, 11.
Michael’s, St., Barra, 95.
Middle Ages, art of, 2.
Middle Pointed Style, characteristics, 53.
—— —— in Scotland, 55.
Moluac, St., Raasay, 98.
—— Teampull, Lewis, 99.
Monasteries established, 31.
—— in Scotland, proportions, 49.
Monkwearmouth, 12, 13.
Monymusk, 30;
description, 215.
Mugstot, Skye, 69.
Muir, T. S., 2, 26, 65.
Muthill Church, description, 196.

Nattes, J. Claude, 196.
Ness, North Yell, 151.
Netherlands, 2.
New Abbey, 50.
Newbattle Abbey, 30.
Nicholas’, St., Aberdeen, 39;
{482}description, 426.
Nicholas’, St., Strathbroc, description, 342.
Ninian, St., 3.
Ninian’s, St., Sanda, 97.
Norman Architecture, 1, 28.
—— —— in Scotland, 191.
—— Immigrants, 30.
—— Influence, 79, 84.
—— Style, 35.
—— —— in Scotland, 38.
Norsemen, 14.
Northumbria, Church in, 11, 12.
Noss Kirk of Bressay, 146.
Nunnery, The, Iona, description, 421.
Nuntown, Benbecula, 83.

Ola’s, St., Kirkwall, 109.
Olrig, Caithness, 99.
Oran’s, St., Iona, 220.
Oratories, Irish, 8.
“Orders” in Architecture, 33.
Orkney, 3.
Orkney and Shetland, Churches, 101.
—— Characteristics, 159.
—— Dates, 162.
—— Monuments, 160.
—— Proportions, 161.
Ornament, 35.
Oronsay, Cross at, 22.
Orphir, Orkney, 141.
Oswald’s, St., Oxstall, 47.
Oxstall, St. Oswald’s, 47.

Pabba, Harris, 84.
Paisley Abbey, 47, 62.
Palladius, St., 5.
Papa Westray, 106.
Parochial divisions, 31.
Patrick, St., 5.
Pennygowan, Mull, 98.
Periods of Architecture, 2.
Perpendicular Style, 2, 57, 58.
Peterhead, St. Peter’s, 371.
Peter’s, St., Peterhead, description, 371.
Petrie, Dr., 3, 26.
Piers, 55.
Pillar Stones, 9.
Pluscardine Abbey, 58.
Pointed Arch, 79.
—— Style, 40.
Pre-Norman Churches, 13.

Ratho, St. Mary’s, description, 371.
“Raths,” Irish, 6.
Reeves, Dr., 3.
Regulus’, St. Andrews, 13, 28;
description, 185.
Reilig Oran, 28.
Restennet Priory, 13, 48;
description, 178.
Richard II., 51, 57.
Rievaux Abbey, 47.
Ripon, 12.
Robert I., 51, 55, 57.
Roman Church, 12, 14, 15, 65.
—— Masonry, 32.
Romanesque Architecture, 1, 28, 32, 35.
Ronan, St., 73.
Round Churches, 145.
Rossie Priory, Cross at, 19.
Royal Domain, France, 40.
Rutherglen, St. Mary’s, description, 372.

St. Andrews, 15, 30, 38, 47, 49.
Salisbury Cathedral, 41, 44.
Saxon Influence, 1.
Scone, 29, 47.
Sculptured Stones, 3, 15, 16.
Sculptures, Symbolic, 10.
Seven Hunters, 77.
Shetland, 3.
—— Churches in, 101, 145.
Skeabost, Skye, 68.
Skellig Mhichel, 7.
Skipness, St. Columba’s, 48.
Slabs, cross bearing, 9, 15, 17.
Smailholm Church, description, 378.
Spires with open work, 62.
Stobo Church, 39;
description, 329.
Stokes, Miss, 3.
Strathbroc, St. Nicholas’, description, 342.
Subordination of Arches, &c., 35.
Suger, Abbé, 40.
Sweudro, Rousay, 108.
Sweetheart Abbey, 49, 57.
Symbols, 16.

Teampull Chalumchille, 89.
—— Pheadair, Lewis, 83.
—— Rona, 73, 74.
—— Sula Sgeir, 75, 76.
—— Na-Trianaide, 81.
Thomas, Captain, 82.
{483}Tigh Beannachadh, 76, 77, 78, 80.
Toehead, Harris, 83.
Transition Style, 387.
—— from Celtic to Norman, 174.
Tredwell’s, St., Chapel, 106.
Trinity College, Edinburgh, 57, 60.
Trophime, St., Arles, 33.
Trumpan, Skye, 84.
Turgot, 29.
Tynninghame Church, description, 326.

Vaults, Barrel, 33.
—— Groined, 34.
—— Late, 58.
—— Pointed, 40.
Vigeans, St., Cross, 20.

Uphall Church, 39;
description, 342.
Urquhart, 30.
Uya Church, Shetland, 149.

Wattle Construction, 6.
Wenlock Abbey, 47.
Westness Chapel, 108.
Westray, Orkney, 124.
Whithorn, Crosses at, 4.
William the Lion, 38.
Wilson, Sir Daniel, 2.
Winchester Cathedral, 61.
Winifred, St., 12.
Wooden Roofs, 60.
Wyre, Orkney, 113.

{484} 

{485} 


ARCHITECTURAL

ARCHÆOLOGICAL AND HISTORICAL WORKS

RECENTLY PUBLISHED

By DAVID DOUGLAS
{486}


Five Volumes Royal 8vo, 42s. net each volume, with about 500 Illustrations in each volume.

THE

CASTELLATED AND DOMESTIC
ARCHITECTURE
OF SCOTLAND

FROM THE TWELFTH TO THE EIGHTEENTH CENTURY

BY
DAVID MACGIBBON AND THOMAS ROSS
ARCHITECTS

“One of the most important and complete books on Scottish architecture that has ever been compiled. Its value to the architect, the archæologist, and the student of styles is at once apparent. It consists almost exclusively of what may be called illustrated architectural facts, well digested and arranged, and constituting a monument of patient research, capable draughtsmanship, and of well-sustained effort, which do the authors infinite credit.”—Scotsman.

EDINBURGH: DAVID DOUGLAS{487}


One Volume 8vo, 21s., with nearly 300 Illustrations.

THE ARCHITECTURE OF

PROVENCE

AND

THE RIVIERA

BY

DAVID MACGIBBON

AUTHOR OF “THE CASTELLATED AND DOMESTIC ARCHITECTURE OF SCOTLAND”

EDINBURGH: DAVID DOUGLAS{488}

Two Volumes 8vo, fully Illustrated, 12s. each (sold separately).

SCOTLAND

IN

EARLY CHRISTIAN TIMES

THE RHIND LECTURES IN ARCHÆOLOGY—1879 AND 1880.

By JOSEPH ANDERSON, LL.D.

KEEPER OF THE NATIONAL MUSEUM OF THE ANTIQUARIES OF SCOTLAND

Contents of Vol. I.—Celtic Churches—Monasteries—Hermitages—Round Towers—Illuminated Manuscripts—Bells—Crosiers—Reliquaries, etc.

Contents of Vol. II.—Celtic Medal-Work and Sculptured Monuments, their Art and Symbolism—Inscribed Monuments in Runics and Oghams—Bilingual Inscriptions, etc.

EDINBURGH: DAVID DOUGLAS{489}


Two Volumes 8vo, fully Illustrated, 12s. each (sold separately).

SCOTLAND

IN

PAGAN TIMES

The Iron Age

THE RHIND LECTURES IN ARCHÆOLOGY FOR 1881

The Bronze and Stone Ages

THE RHIND LECTURES IN ARCHÆOLOGY FOR 1882

By JOSEPH ANDERSON, LL.D.

KEEPER OF THE NATIONAL MUSEUM OF THE ANTIQUARIES OF SCOTLAND

Contents of Vol. I.The Iron Age.—Viking Burials and Hoards of Silver and Ornaments—Arms, Dress, etc., of the Viking Time—Celtic Art of the Pagan Period—Decorated Mirrors—Enamelled Armlets—Architecture and Contents of the Brochs—Lake-Dwellings—Earth Houses, etc.

Contents of Vol. II.The Bronze and Stone Ages.—Cairn Burial of the Bronze Age and Cremation Cemeteries—Urns of Bronze Age Types—Stone Circles—Stone Settings—Gold Ornaments—Implements and Weapons of Bronze—Cairn Burial of the Stone Age—Chambered Cairns—Urns of Stone Age Types—Implements and Weapons of Stone.

EDINBURGH: DAVID DOUGLAS{490}


One Volume 8vo, fully Illustrated, 15s.

THE

PAST IN THE PRESENT:

WHAT IS CIVILISATION?

By SIR ARTHUR MITCHELL, M.D., LL.D.

Contents.

I.The Spindle and Whorl.
II.Craggans and Querns, etc.
III.Beehive Houses, etc.
IV.Cave Life.
V.Stone, Bronze, and Iron Ages.
VI.Superstitions.

EDINBURGH: DAVID DOUGLAS{491}


W. Stephen.

History of the Scottish Church. By W. Stephen, Rector of St Augustine’s, Dumbarton. Demy 8vo. Vol. I. now Ready. 12s. 6d.

Robert Milne.

The Blackfriars of Perth. The Chartulary and Papers of their House. Edited, with Introduction, by Robert Milne, D.D., West Kirk, Perth. Demy 4to, 21s.

James Watson.

Jedburgh Abbey: Historical and Descriptive; also the Abbeys of Teviotdale, as showing the Development of Gothic Architecture. By James Watson. Second Edition. Sm. 4to, Illustrated, 10s. net.

Earl of Southesk.

Origins of Pictish Symbolism. With Notes on the Sun Boar, and a New Reading of the Newton “Inscriptions.” By the Earl of Southesk. Sm. 4to, 9s.

David MacRitchie.

Scottish Gypsies under the Stewarts. By David MacRitchie. Demy 8vo, 6s. net.

David MacGibbon and Thomas Ross.

The Ecclesiastical Architecture of Scotland, uniform with “The Castellated and Domestic Architecture of Scotland.” By David MacGibbon and Thomas Ross. 3 Vols. Vol. I. now ready. 42s. net.

{492}

William P. Skene.

Celtic Scotland. A History of Ancient Alban. By William P. Skene, D.C.L., LL.D., Historiographer-Royal for Scotland. Second Edition, carefully Revised by the Author, with a new Index to the entire work. 3 vols. demy 8vo, 45s.

Vol.I.HISTORY AND ETHNOLOGY. 15s.
Vol.II.CHURCH AND CULTURE. 15s.
Vol.III.LAND AND PEOPLE. 15s.

“Forty years ago Mr Skene published a small historical work on the Scottish Highlands which has ever since been appealed to as an authority, but which has long been out of print. The promise of this youthful effort is amply fulfilled in the three weighty volumes of his maturer years. As a work of historical research it ought, in our opinion, to take a very high rank.”—Times.

E. W. Robertson.

Scotland under her Early Kings. A History of the Kingdom to the close of the Thirteenth Century. By E. William Robertson. 2 vols. demy 8vo, cloth, 36s.

Historical Essays, in connection with the Land and the Church, etc. By E. William Robertson, Author of “Scotland under her Early Kings.” 1 vol. demy 8vo, 10s. 6d.

Rev. James B. Johnston.

The Place-Names of Scotland. By the Rev. James B. Johnston, B.D., Falkirk. 1 vol. crown 8vo, 7s. 6d.

This book, for which the author has been collecting materials during the last five years, contains an introduction, general and philological, followed by a list of the important place-names in Scotland, with explanations of their meaning, and with their old spellings, each dated so far as known.

Lord Cockburn.

Circuit Journeys. By the late Lord Cockburn, one of the Judges of the Court of Session. Second Edition, 1 vol. crown 8vo, 6s.

“One of the best books of reminiscences that have appeared.”—Morning Post.

“Delightful alike for its pleasant landscapes; its sound criticisms on men, law, and books; for its sharp things said in a good-natured way.”—Academy.

“Valuable for their topographical descriptions; and they form an indirect contribution to the social history of Scotland.”—Scotsman.

Sir Daniel Wilson.

The Lost Atlantis and other Ethnographic Studies. By Sir Daniel Wilson, LL.D., F.R.S.E. 1 vol. demy 8vo, 15s.

Contents.—The Lost Atlantis—The Vinland of the Northmen—Trade and Commerce in the Stone Age—Pre-Aryan American Man—The Æsthetic Faculty in Aboriginal Races—The Huron-Iroquois: a Typical Race—Hybridity and Heredity—Relative Racial Brain—Weight and Size.

EDINBURGH: DAVID DOUGLAS.{493}


Two Volumes Demy 8vo, Illustrated, 25s.

THE HEREDITARY

SHERIFFS OF GALLOWAY

THEIR “FORBEARS” AND FRIENDS

THEIR COURTS, AND CUSTOMS OF THEIR TIMES

WITH NOTES OF THE EARLY HISTORY, ECCLESIASTICAL
LEGENDS, THE BARONAGE AND PLACE
NAMES OF THE PROVINCE



BY THE LATE
Sir ANDREW AGNEW, Bart.
OF LOCHNAW

EDINBURGH:
DAVID DOUGLAS, 10 CASTLE STREET
1893


{494}

ICELANDIC SAGAS, Translated by Sir GEORGE DASENT

Two Volumes Demy 8vo, with Maps and Plans, 28s.

THE NJALA SAGA

B U R N T   N J A L

FROM THE ICELANDIC OF THE NJAL’S SAGA

BY
SIR GEORGE WEBBE DASENT, D.C.L.

Graystee


Small 4to, with Illustrations, 7s. 6d.

THE GISLI SAGA

GISLI THE OUTLAW

FROM THE ICELANDIC

BY
SIR GEORGE WEBBE DASENT, D.C.L.
EDINBURGH: DAVID DOUGLAS


{495}

Demy 4to, Illustrated, 42s. and 84s.

THE

HISTORY OF LIDDESDALE

ESKDALE, EWESDALE, WAUCHOPEDALE

AND THE

DEBATEABLE LAND

Part I. from the Twelfth Century to 1530

BY

ROBERT BRUCE ARMSTRONG

CRUKILTON CASTLE

EDINBURGH: DAVID DOUGLAS


{496}

One Volume 8vo, Illustrated, 7s. 6d.

SCOTLAND

AS IT WAS AND AS IT IS

BY THE

DUKE OF ARGYLL

ROB ROY’S HOUSE, GLENSHIRA

A HISTORY OF RACES, OF MILITARY EVENTS,
AND OF THE RISE OF COMMERCE

EDINBURGH: DAVID DOUGLAS{497}


Two Volumes 4to, 21s.

ARCHÆOLOGICAL ESSAYS

BY THE LATE

SIR JAMES Y. SIMPSON, Bart.

EDITED BY THE LATE
JOHN STUART, LL.D.
AUTHOR OF THE “SCULPTURED STONES OF SCOTLAND”

ANCIENT ORATORY IN THE ISLAND OF INCHCOLM

Contents.

1. Archæology.
2. Inchcolm.
3. The Cat Stane.
4. The Magical Charm-Stones.
5. Pyramid of Gizeh.
6. Leprosy and Leper Hospitals.
7. Greek Medical Vases.
8. Was the Roman Army provided with Medical Officers?
9. Roman Medicine Stamps, etc., etc.

EDINBURGH: DAVID DOUGLAS{498}


Two Volumes Demy 8vo, 19s. 6d.

S O C I A L   L I F E

IN FORMER DAYS

CHIEFLY IN THE PROVINCE OF MORAY

Illustrated by Letters and Family Papers

By E. DUNBAR DUNBAR
LATE CAPTAIN 21ST FUSILIERS

THUNDERTON HOUSE.

EDINBURGH: DAVID DOUGLAS{499}


One Volume Demy 8vo, price 14s.

EARLY TRAVELLERS
IN SCOTLAND


1295-1689

EDITED BY
P. HUME BROWN
AUTHOR OF ‘THE LIFE OF GEORGE BUCHANAN’

EDINBURGH:

DAVID DOUGLAS, 10 CASTLE STREET.{500}


P. Hume Brown.

George Buchanan, Humanist and Reformer: a Biography By P. Hume Brown. Demy 8vo, 12s.

“There is, perhaps, no eminent Scotsman who has stood in better need of an impartial and scholarly biography than George Buchanan; and Mr Hume Brown is to be congratulated on having in the present volume produced a model of its kind.”—Scotsman.

Tours in Scotland, 1677 and 1681. By Thomas Kirk and Ralph Thoresby. Edited by P. Hume Brown. Demy 8vo, 5s.

A lucky accident having brought these two interesting narratives to light since the “Early Travellers in Scotland” was published, it was thought desirable to reprint them uniform with that book.

Scotland Before 1700. From Contemporary Documents. Forming a Companion Volume to “Early Travellers in Scotland.” By P. Hume Brown, Author of “The Life of George Buchanan,” &c. Demy 8vo, 14s.

Bishop Forbes.

Kalendars of Scottish Saints. With Personal Notices of those of Alba, etc. By Alexander Penrose Forbes, D.C.L., Bishop of Brechin. 4to, price £3, 3s. A few copies for sale on large paper, £5, 15s. 6d.

“A truly valuable contribution to the archæology of Scotland.”—Guardian.

Thomas S. Muir.

Ecclesiological Notes on some of the Islands of Scotland, with other Papers relating to Ecclesiological Remains on the Scottish Mainland and Islands. By Thomas S. Muir, Author of “Characteristics of Church Architecture,” etc. Demy 8vo, with numerous Illustrations, 21s.

Sir Samuel Ferguson.

Ogham Inscriptions in Ireland, Wales, and Scotland. By the late Sir Samuel Ferguson, President of the Royal Irish Academy, Deputy Keeper of the Public Records of Ireland, LL.D., Queen’s Counsel, etc. (Being the Rhind Lectures in Archæology for 1884.) 1 vol. demy 8vo, 12s.

Miss Maclagan.

The Hill Forts, Stone Circles, and other Structural Remains of Ancient Scotland. By C. Maclagan, Lady Associate of the Society of Antiquaries of Scotland. With Plans and Illustrations. Folio, 31s. 6d.

“We need not enlarge on the few inconsequential speculations which rigid archæologists may find in the present volume. We desire rather to commend it to their careful study, fully assured that not only they, but also the general reader, will be edified by its perusal.”—Scotsman.

Prof. Baldwin Brown.

From Schola to Cathedral. A Study of Early Christian Architecture in its relation to the life of the Church. By G. Baldwin Brown, Professor of Fine Art in the University of Edinburgh. Demy 8vo, Illustrated, 7s. 6d.

The book treats of the beginnings of Christian Architecture, from the point of view of recent discoveries and theories, with a special reference to the outward resemblance of early Christian communities to other religious associations of the time.

Patrick Dudgeon.

A Short Introduction to the Origin of Surnames. By Patrick Dudgeon, Cargen. Small 4to, 3s. 6d.

EDINBURGH: DAVID DOUGLAS

FOOTNOTES:

[1] Skene’s Celtic Scotland, Vol. II. p. 46.

[2] Skene, Vol. II. p. 32.

[3] Romilly Allen, Early Christian Symbolism, p. 88.

[4] Proceedings of Antiquarian Society of Scotland, Vol. IX. p. 568.

[5] For an account of explorations and illustrations of crosses discovered by Sir H. E. Maxwell, see Ayr and Galloway Association, Vol. V. p. 1, and Vol. VI. p. 34.

[6] T. S. Muir, Ecclesiastical Notes, p. 226.

[7] Ayr and Galloway Association, Vol. VI. p. 17.

[8] Skene, Vol. II. p. 56.

[9] Dunraven’s Irish Architecture, Vol. I. p. xviii.

[10] Reeves’ Adamnan, p. 177.—Dr. Reeves quotes many instances of churches formed with wattles. Thus, the first church erected in Britain, at Ynswitrin, had the walls of the chapel constructed of twisted twigs; St. Gwynllyw, circa 580, founded a temple constructed with boards and twigs. In Ireland, when St. Kieran was preparing to build his church, a friendly wild boar is said to have appeared and cut off twigs and ploughed up turf with his tusks so as to furnish the Saint with materials. St. Kevin constructed his oratory with wattles. At Raithin, St. Carthacus built himself a cell with reeds which Columba had provided. St. Voloc also built his abode with reeds and twigs.

[11] This name belonged to the Irish till about the tenth century, when it was transferred to the inhabitants of the existing Scotland.

[12] Petrie, p. 446.

[13] For illustrations of raths and cashels, see Lord Dunraven’s Notes on Architecture.

[14] Petrie, p. 129.

[15] J. Anderson, Scotland in Early Christian Times, 1st Series, p. 83.

[16] Petrie, p. 132.

[17] Ibid. p. 136.

[18] Dunraven, Vol. II. p. 141.

[19] Petrie, p. 162.

[20] Dunraven, Vol. I. p. xx.

[21] See Dr. J. Anderson’s Lectures on Scotland in Early Christian Times.

[22] Romilly Allen, pp. 82, 84.

[23] Ibid. p. 136.

[24] Skene, Vol. II. p. 88.

[25] Skene, Vol. II. p. 121.

[26] Ibid. p. 128.

[27] Ibid. p. 137.

[28] Skene, Vol. II. p. 212.

[29] “Pre-Conquest Churches of England.”—Reliquary, 1893.

[30] Skene, Vol. II. p. 227.

[31] Skene, Vol. II. p. 229.

[32] Ibid. p. 268.

[33] Skene, Vol. II. p. 309.—This round tower, no doubt, owes its origin to the Irish influence referred to, but, as will be pointed out, there are architectural reasons for assigning the structure to a later period.

[34] Ibid. p. 320.

[35] Ibid. p. 331.

[36] See Scotland in Early Christian Times, by Dr. Joseph Anderson, Vols. I. and II.

[37] Early Christian Times, Vol. II. p. 95.

[38] Anderson, Vol. II. Lecture IV.

[39] Romilly Allen, Lecture VI.

[40] Anderson, Vol. II. p. 80.

[41] Ibid. p. 130.

[42] Romilly Allen, p. 238.

[43] Proceedings of the Society of Antiquaries of Scotland, Vol. III. pp. 127, 153, 206, 225; Muir’s Ecclesiastical Notes, p. 65.

[44] Anderson, Vol. I. p. 64.

[45] For Illustration see p. 64.

[46] Anderson, Vol. I. p. 59.

[47] Petrie, p. 291.

[48] Ibid. p. 395.

[49] Ibid. p. 320.

[50] Reeves’ Adamnan, p. 410.

[51] Skene, Vol. II. p. 368.

[52] Ibid. p. 374.

[53] Celtic Scotland, Vol. II. p. 376.

[54] Innes, Sketches of Early Scotch History, pp. 10-12.

[55] Innes, Sketches of Early Scotch History, p. 17.

[56] “Scottish Churches and Cathedrals,” by Dr. Joseph Robertson, Quarterly Review, 1849, p. 117.

[57] See Castellated and Domestic Architecture, Vol. I. p. 90, and Vol. III. p. 72.

[58] Castellated and Domestic Architecture, Vol. III., Introduction.

[59] Muir, Old Church Architecture of Scotland, p. 67.

[60] Castellated and Domestic Architecture, Vol. V., p. 130.

[62] Characteristics, p. 141.

[63] Ibid. p. 142.

[64] For a further example of a primitive church and cells, see the Brough of Deerness, described by Sir H. Dryden in the following pages. It will be observed that the simple oblong church, with door in west end and one window in east end, is surrounded with a number of ruins of stone huts, which were no doubt the dwellings of the monastic family of the establishment; while near the land side are the remains of the cashel or fortification of the platform.

[65] Notes, p. 35.

[66] Ibid. p. 272.

[67] Characteristics, p. 163.

[68] Notes, p. 50.

[69] Notes, p. 51.

[70] Ibid. p. 280.

[71] Ibid. p. 51.

[72] Ibid. p. 52.

[73] Notes, p. 93.

[74] Notes, pp. 97-98.

[75] Characteristics, p. 205.

[76] Notes, p. 60.

[77] Notes, p. 60.

[78] Characteristics, p. 180.

[79] The churches in Orkney and Shetland present many fine examples of chanceled buildings. These, although described in Mr. Muir’s works, are more fully treated in the descriptions and illustrations kindly supplied by Sir H. Dryden, and now printed for the first time.

[80] Notes, p. 41.

[81] Ibid. p. 43.

[82] Notes, pp. 48 and 276.

[83] This church (Trinity) 61½ feet long; breadth, 21 feet. North wall has a round-headed window of undressed stones at east end, 2½ feet wide, splaying to 4½ feet inside. Arch of door obtusely pointed. On north side a small chapel connected by round-arched porch, not bonded into church. Entrance to chapel has inclined jambs. Chapel 23 feet long by 13½ feet broad inside; walls 2½ feet thick. In east wall small rectangular window, and an ambry on each side of window. Similar window in south wall. Small chapel, believed to be very ancient. Chapel of Carinish probably rebuilt by Amy M‘Ruari about 1390.—Captain Thomas, Archæologia Scot., Vol. V. p. 226.

[84] Notes, pp. 11 and 264.

[85] Notes, p. 23.

[86] Ibid. p. 42.

[87] Ibid. p. 42.

[88] Ibid. p. 44.

[89] Ibid. p. 44.

[90] Ibid. p. 278.

[91] Notes, p. 61.

[92] Ibid. p. 269.

[93] Ibid. p. 270.

[94] Notes, p. 180.

[95] Ibid. p. 192.

[96] Dr. J. Anderson regards this as a church mentioned in a document by Pope Gregory XI., of date 20th September 1375.—Scotland in Early Christian Times.

[97] Notes, p. 30.

[98] Ibid. pp. 49, 278; Characteristics, p. 226.

[99] Teampull Chalumchille, Captain Thomas, Archæologia, Vol. V. p. 239.

[100] Characteristics, p. 132, and Notes, p. 200.

[101] Notes, p. 39.

[102] Characteristics, p. 50.

[103] Ibid. p. 51.

[104] Notes, p. 107. See also drawings and description of this church by Sir Henry Dryden (below).

[105] Notes, p. 42.

[106] Ibid. p. 283.

[107] Ibid. pp. 10, 262.

[108] Notes, p. 13.

[109] Ibid. p. 13.

[110] Ibid. p. 14.

[111] Ibid. p. 15.

[112] Notes, p. 8.

[113] Notes, p. 55.

[114] Ibid. p. 25.

[115] Ibid. p. 26.

[116] Ibid. p. 28. See also illustrations and description of this church by Sir Henry Dryden (below).

[117] Ibid. p. 38.

[118] Characteristics, p. 51.

[119] Ibid. p. 55.

[120] Notes, p. 43.

[121] Ibid. p. 109.

[122] See account of doorway in chapel on Brough of Birsay for notice of this point.

[123] See account of doorway in chapel on Brough of Birsay for notice of this point.

[124] See the first article on “Ancient Orcadia” in the Orcadian of ... 1860.

[125] See account of Chapel on the Brough of Birsay.

[126] See account of windows in Egilsey.

[127] See observations on these entrances in notes on the Brough of Birsay.

[128] See Petrie’s Round Towers, pp. 162, 181-5.

[129] Ecclesiastical Notes on the Orkneys, &c.

[130] See account of the early Bishops of Orkney by Professor Munch, in Bannatyne’s Miscellany, Vol. III., 1855.

[131] See Petrie’s Round Towers, and Wilson’s Prehistoric Annals.

[132] See Petrie’s Round Towers.

[133] History of Orkney, p. 34.

[134] Britton, Arch. Ant., Vol. I.; North, Arch. Soc., Part 10, 1860; Billings’ Temple Church.

[135] See Scotland in Early Christian Times, by Joseph Anderson, LL.D., p. 62.

[139] In an interesting paper by him in the Archæologia Scotica, Vol. V., Part 2.

[140] Figs. 146 and 147 are from sketches by Mr. T. S. Robertson, architect, Dundee, whom we have to thank for assistance in connection with this church.

[141] Historical Manuscript Commission, 14th Report, App., Part III., p. 175 and 187.

[143] Quarterly Review, June 1849, p. 120.

[144] The lines on south side of tower show foundations now exposed, and a built-up door in south wall of tower is not shown, being apparently not original.

[145] Introduction, p. 13.

[146] Lecture II., p. 24.

[149] From a drawing in the possession of Mr. David Douglas, publisher.

[150] The sketch is a very slight and hurried one, and is not at all finished in detail; but it is enough, when taken with the other drawings, to enable a fair idea to be formed of the completed church. The tower has had a clock dial, placed so as to conceal the south windows. The traceried windows of the south aisle of the nave are indicated, along with the lintelled doorway and a raised window, which may have been over an outside stair in connection with a gallery. The east window of the aisle is shown built up, with a square shuttered window inserted where the mullions formerly were, and the small window above has been enlarged for light to the gallery. The view of the chancel is particularly interesting, this part of the church having now almost disappeared. In the choir a mullioned window of three lights is shown above the sedilia, and a small door is knocked through the latter. The east end is shown lighted by three simple lancet windows.

[151] We are greatly indebted to the Rev. Mr. Thomson, Dunning, for assistance in regard to this church.

[152] Celtic Scotland, Vol. II., pp. 389-92.

[154] First Volume, p. 462.

[155] We have to thank Sir Henry Dryden for liberty to use the measured drawings of St. Margaret’s Chapel, made by him in 1866.

[156] Introduction to Registrum de Dunfermlyn, p. 25.

[157] Introduction to Registrum de Dunfermlyn, p. 25.

[158] Ibid. p. 25.

[159] Castellated and Domestic Architecture of Scotland, Vol. V. p. 522.

[160] See Annals of Dunfermline, by the Rev. Ebenezer Henderson, p. 211.

[161] Annals of Dunfermline, p. 205.

[162] Ibid. p. 342.

[163] We are indebted for the loan of this Plan, drawn by Mr. Henderson, to Mr. Robertson, Dunfermline, custodier of the buildings.

[164] Tytler, History of Scotland, Vol. I., year 1303-4.

[165] Castellated and Domestic Architecture of Scotland, Vol. I., p. 514.

[166] We have to thank Sir Henry Dryden for permission to use the ground plan and other drawings and descriptions relating to St. Magnus, published in the transactions of the Architectural Institute of Scotland, 1858-61.

[167] We have to express our indebtedness to the late Mr. Robert Matheson, Architect, Edinburgh, for the foregoing sections and elevation and the plan of the triforium, with which he was good enough to supply us so long ago as 1866.

[168] See Castellated and Domestic Architecture of Scotland, Vol. I. p. 519.

[169] See the Orkneyinga Saga, Introduction by Dr. J. Anderson.

[170] Statistical Account.

[171] Early Christian Symbolism, p. 255.

[172] Illustrations of the Shires of Aberdeen and Banff, Spalding Club, p. 692.

[173] The churches of Berwickshire have been very fully treated by Mr. J. Ferguson, Duns, in a paper reprinted from the Transactions of the Berwickshire Naturalists’ Club, 1890. We are much indebted to Mr. Ferguson and Mr. George Fortune, architect, Duns, for assistance in regard to these churches.

[174] Characteristics, p. 12.

[175] This illustration is from a drawing by Mr. John Dickson, solicitor, Banff, lent by Mr. Ferguson.

[176] Vol. III., p. 298.

[177] Caledonia, Vol. II. p. 393.

[178] Celtic Scotland, Vol. II. p. 223.

[179] Caledonia, Vol. I., p. 954.

[180] Origines Parochiales, Vol. I.

[181] Caledonia (Linlithgowshire), p. 866, and Transactions of Antiquarian Society, Edinburgh, First Vol. (1792), p. 150-5.

[182] Morton’s Annals of Teviotdale.

[183] Robb’s Guide to Haddington, p. 44.

[184] In connection with this church, we have to thank Mr. James Reid, jun., Peterhead, for his ready assistance.

[185] Transactions of the Buchan Field Club, by James Aiken, Peterhead. 1889.

[186] We are greatly indebted to Mr. George Gray, Town Clerk of Rutherglen, for assistance in connection with the notice of this church.

[187] The Pre-Reformation Churches of Berwickshire, pp. 7 and 38.

[188] To whom we are indebted for the Plan.

[189] Caledonia, Vol. II. p. 529.

[190] M‘Kerlic’s Galloway, Vol. V., p. 68.

[191] The particulars of the history of Kinloss Abbey are extracted from the “Records of the Monastery,” by Dr. John Stewart.

[192] These are beautifully illustrated by the late James Drummond, R.S.A., in his West Highland Monuments.

[193] Extracts from the “Council Register of the Burgh of Aberdeen” (Spalding Club, p. 94.)

[194] There are scanty, but distinct, traces of two churches on St. Abb’s Head, about three miles north from Coldingham. They are situated about half a mile apart, one to the west of the promontory and the other to the south-east, and both stand on high cliffs overlooking the sea.

The one to the south-east, called St. Abb’s Chapel, (1) is situated in the centre of a churchyard, all the remaining tombstones of which were thrown into the sea during some law proceedings regarding the right of access by the public to St. Abb’s Head. At the time Carr wrote his History of Coldingham Priory (published 1836), the walls of the church were standing to a height of some three or four feet; now only the grass-covered foundations remain. These indicate a chancelled building, the outside dimensions of which are:—length of chancel from east to west about 21 feet, width

about 24 feet; length of nave 56 feet by 30 feet in width. The chancel is full of rubbish, especially at the place where the arch is usually situated; but it is not unlikely that by digging here some remains might be found sufficient to indicate the style and period of the building. From Carr’s description it appears to have been a Norman building, as he speaks of a “small Saxon arch” (the term frequently used by writers about the beginning of the century for a Norman arch) as visible in his time (p. 243).

The other chapel at St. Abb’s Head (2) is in very much the same state as the one just described, except that more of the masonry is visible. It measures, on the inside, about 69 feet long by 22 feet wide, with walls about 4 feet thick. In the centre of the west wall there is a recess, about 6 feet long by 2 feet 6 inches wide; and at the north-east corner there is a notch about 9 feet square, cut out of the chapel, as it were, forming, to all appearance, a chancel, narrower than the nave on one side instead of in the centre. The remains are very scanty.

[195] Caledonia.

[196] Morton’s Monastic Annals of Teviotdale.

[197] We are indebted to Mr. Robert B. Armstrong, F.S.A., for the use of drawings, and to Major W. Bruce Armstrong for some interesting notes.

[198] Original birth brief in the possession of the Comte de Bruce from Charles I., dated 13th July 1633, to Adam Bruce, younger son of Anthony Bruce of Waltoun, ancestor of the Comte de Bruce, deducing his descent, through the families of Bruce of Waltoun, Lethbertschielles, and Airth, from the house of Clackmannan, in which it is stated that Alexander Bruce of Airth was legitimate son of Sir Robert Bruce of Clackmannan.

[199] Collegiate Churches of Mid-Lothian, by D. Laing, p. cxx.

[200] Chart, Newbotle, 159. Caledonia, Vol. ii., p. 888.

[201] Ibid.

[Image of the back cover
is unavailable.]

*** END OF THE PROJECT GUTENBERG EBOOK THE ECCLESIASTICAL ARCHITECTURE OF
SCOTLAND FROM THE EARLIEST CHRISTIAN TIMES TO THE SEVENTEENTH CENTURY; VOL.
1/3 ***

This file should be named 63940-h.htm or 63940-h.zip

This and all associated files of various formats will be found in:
http://www.gutenberg.org/6/3/9/4/63940/

Updated editions will replace the previous one--the old editions will
be renamed.

Creating the works from print editions not protected by U.S. copyright
law means that no one owns a United States copyright in these works,
so the Foundation (and you!) can copy and distribute it in the United
States without permission and without paying copyright
royalties. Special rules, set forth in the General Terms of Use part
of this license, apply to copying and distributing Project
Gutenberg-tm electronic works to protect the PROJECT GUTENBERG-tm
concept and trademark. Project Gutenberg is a registered trademark,
and may not be used if you charge for the eBooks, unless you receive
specific permission. If you do not charge anything for copies of this
eBook, complying with the rules is very easy. You may use this eBook
for nearly any purpose such as creation of derivative works, reports,
performances and research. They may be modified and printed and given
away--you may do practically ANYTHING in the United States with eBooks
not protected by U.S. copyright law. Redistribution is subject to the
trademark license, especially commercial redistribution.

START: FULL LICENSE

THE FULL PROJECT GUTENBERG LICENSE
PLEASE READ THIS BEFORE YOU DISTRIBUTE OR USE THIS WORK

To protect the Project Gutenberg-tm mission of promoting the free
distribution of electronic works, by using or distributing this work
(or any other work associated in any way with the phrase "Project
Gutenberg"), you agree to comply with all the terms of the Full
Project Gutenberg-tm License available with this file or online at
www.gutenberg.org/license.

Section 1. General Terms of Use and Redistributing Project
Gutenberg-tm electronic works

1.A. By reading or using any part of this Project Gutenberg-tm
electronic work, you indicate that you have read, understand, agree to
and accept all the terms of this license and intellectual property
(trademark/copyright) agreement. If you do not agree to abide by all
the terms of this agreement, you must cease using and return or
destroy all copies of Project Gutenberg-tm electronic works in your
possession. If you paid a fee for obtaining a copy of or access to a
Project Gutenberg-tm electronic work and you do not agree to be bound
by the terms of this agreement, you may obtain a refund from the
person or entity to whom you paid the fee as set forth in paragraph
1.E.8.

1.B. "Project Gutenberg" is a registered trademark. It may only be
used on or associated in any way with an electronic work by people who
agree to be bound by the terms of this agreement. There are a few
things that you can do with most Project Gutenberg-tm electronic works
even without complying with the full terms of this agreement. See
paragraph 1.C below. There are a lot of things you can do with Project
Gutenberg-tm electronic works if you follow the terms of this
agreement and help preserve free future access to Project Gutenberg-tm
electronic works. See paragraph 1.E below.

1.C. The Project Gutenberg Literary Archive Foundation ("the
Foundation" or PGLAF), owns a compilation copyright in the collection
of Project Gutenberg-tm electronic works. Nearly all the individual
works in the collection are in the public domain in the United
States. If an individual work is unprotected by copyright law in the
United States and you are located in the United States, we do not
claim a right to prevent you from copying, distributing, performing,
displaying or creating derivative works based on the work as long as
all references to Project Gutenberg are removed. Of course, we hope
that you will support the Project Gutenberg-tm mission of promoting
free access to electronic works by freely sharing Project Gutenberg-tm
works in compliance with the terms of this agreement for keeping the
Project Gutenberg-tm name associated with the work. You can easily
comply with the terms of this agreement by keeping this work in the
same format with its attached full Project Gutenberg-tm License when
you share it without charge with others.

1.D. The copyright laws of the place where you are located also govern
what you can do with this work. Copyright laws in most countries are
in a constant state of change. If you are outside the United States,
check the laws of your country in addition to the terms of this
agreement before downloading, copying, displaying, performing,
distributing or creating derivative works based on this work or any
other Project Gutenberg-tm work. The Foundation makes no
representations concerning the copyright status of any work in any
country outside the United States.

1.E. Unless you have removed all references to Project Gutenberg:

1.E.1. The following sentence, with active links to, or other
immediate access to, the full Project Gutenberg-tm License must appear
prominently whenever any copy of a Project Gutenberg-tm work (any work
on which the phrase "Project Gutenberg" appears, or with which the
phrase "Project Gutenberg" is associated) is accessed, displayed,
performed, viewed, copied or distributed:

  This eBook is for the use of anyone anywhere in the United States and
  most other parts of the world at no cost and with almost no
  restrictions whatsoever. You may copy it, give it away or re-use it
  under the terms of the Project Gutenberg License included with this
  eBook or online at www.gutenberg.org. If you are not located in the
  United States, you will have to check the laws of the country where
  you are located before using this ebook.

1.E.2. If an individual Project Gutenberg-tm electronic work is
derived from texts not protected by U.S. copyright law (does not
contain a notice indicating that it is posted with permission of the
copyright holder), the work can be copied and distributed to anyone in
the United States without paying any fees or charges. If you are
redistributing or providing access to a work with the phrase "Project
Gutenberg" associated with or appearing on the work, you must comply
either with the requirements of paragraphs 1.E.1 through 1.E.7 or
obtain permission for the use of the work and the Project Gutenberg-tm
trademark as set forth in paragraphs 1.E.8 or 1.E.9.

1.E.3. If an individual Project Gutenberg-tm electronic work is posted
with the permission of the copyright holder, your use and distribution
must comply with both paragraphs 1.E.1 through 1.E.7 and any
additional terms imposed by the copyright holder. Additional terms
will be linked to the Project Gutenberg-tm License for all works
posted with the permission of the copyright holder found at the
beginning of this work.

1.E.4. Do not unlink or detach or remove the full Project Gutenberg-tm
License terms from this work, or any files containing a part of this
work or any other work associated with Project Gutenberg-tm.

1.E.5. Do not copy, display, perform, distribute or redistribute this
electronic work, or any part of this electronic work, without
prominently displaying the sentence set forth in paragraph 1.E.1 with
active links or immediate access to the full terms of the Project
Gutenberg-tm License.

1.E.6. You may convert to and distribute this work in any binary,
compressed, marked up, nonproprietary or proprietary form, including
any word processing or hypertext form. However, if you provide access
to or distribute copies of a Project Gutenberg-tm work in a format
other than "Plain Vanilla ASCII" or other format used in the official
version posted on the official Project Gutenberg-tm web site
(www.gutenberg.org), you must, at no additional cost, fee or expense
to the user, provide a copy, a means of exporting a copy, or a means
of obtaining a copy upon request, of the work in its original "Plain
Vanilla ASCII" or other form. Any alternate format must include the
full Project Gutenberg-tm License as specified in paragraph 1.E.1.

1.E.7. Do not charge a fee for access to, viewing, displaying,
performing, copying or distributing any Project Gutenberg-tm works
unless you comply with paragraph 1.E.8 or 1.E.9.

1.E.8. You may charge a reasonable fee for copies of or providing
access to or distributing Project Gutenberg-tm electronic works
provided that

* You pay a royalty fee of 20% of the gross profits you derive from
  the use of Project Gutenberg-tm works calculated using the method
  you already use to calculate your applicable taxes. The fee is owed
  to the owner of the Project Gutenberg-tm trademark, but he has
  agreed to donate royalties under this paragraph to the Project
  Gutenberg Literary Archive Foundation. Royalty payments must be paid
  within 60 days following each date on which you prepare (or are
  legally required to prepare) your periodic tax returns. Royalty
  payments should be clearly marked as such and sent to the Project
  Gutenberg Literary Archive Foundation at the address specified in
  Section 4, "Information about donations to the Project Gutenberg
  Literary Archive Foundation."

* You provide a full refund of any money paid by a user who notifies
  you in writing (or by e-mail) within 30 days of receipt that s/he
  does not agree to the terms of the full Project Gutenberg-tm
  License. You must require such a user to return or destroy all
  copies of the works possessed in a physical medium and discontinue
  all use of and all access to other copies of Project Gutenberg-tm
  works.

* You provide, in accordance with paragraph 1.F.3, a full refund of
  any money paid for a work or a replacement copy, if a defect in the
  electronic work is discovered and reported to you within 90 days of
  receipt of the work.

* You comply with all other terms of this agreement for free
  distribution of Project Gutenberg-tm works.

1.E.9. If you wish to charge a fee or distribute a Project
Gutenberg-tm electronic work or group of works on different terms than
are set forth in this agreement, you must obtain permission in writing
from both the Project Gutenberg Literary Archive Foundation and The
Project Gutenberg Trademark LLC, the owner of the Project Gutenberg-tm
trademark. Contact the Foundation as set forth in Section 3 below.

1.F.

1.F.1. Project Gutenberg volunteers and employees expend considerable
effort to identify, do copyright research on, transcribe and proofread
works not protected by U.S. copyright law in creating the Project
Gutenberg-tm collection. Despite these efforts, Project Gutenberg-tm
electronic works, and the medium on which they may be stored, may
contain "Defects," such as, but not limited to, incomplete, inaccurate
or corrupt data, transcription errors, a copyright or other
intellectual property infringement, a defective or damaged disk or
other medium, a computer virus, or computer codes that damage or
cannot be read by your equipment.

1.F.2. LIMITED WARRANTY, DISCLAIMER OF DAMAGES - Except for the "Right
of Replacement or Refund" described in paragraph 1.F.3, the Project
Gutenberg Literary Archive Foundation, the owner of the Project
Gutenberg-tm trademark, and any other party distributing a Project
Gutenberg-tm electronic work under this agreement, disclaim all
liability to you for damages, costs and expenses, including legal
fees. YOU AGREE THAT YOU HAVE NO REMEDIES FOR NEGLIGENCE, STRICT
LIABILITY, BREACH OF WARRANTY OR BREACH OF CONTRACT EXCEPT THOSE
PROVIDED IN PARAGRAPH 1.F.3. YOU AGREE THAT THE FOUNDATION, THE
TRADEMARK OWNER, AND ANY DISTRIBUTOR UNDER THIS AGREEMENT WILL NOT BE
LIABLE TO YOU FOR ACTUAL, DIRECT, INDIRECT, CONSEQUENTIAL, PUNITIVE OR
INCIDENTAL DAMAGES EVEN IF YOU GIVE NOTICE OF THE POSSIBILITY OF SUCH
DAMAGE.

1.F.3. LIMITED RIGHT OF REPLACEMENT OR REFUND - If you discover a
defect in this electronic work within 90 days of receiving it, you can
receive a refund of the money (if any) you paid for it by sending a
written explanation to the person you received the work from. If you
received the work on a physical medium, you must return the medium
with your written explanation. The person or entity that provided you
with the defective work may elect to provide a replacement copy in
lieu of a refund. If you received the work electronically, the person
or entity providing it to you may choose to give you a second
opportunity to receive the work electronically in lieu of a refund. If
the second copy is also defective, you may demand a refund in writing
without further opportunities to fix the problem.

1.F.4. Except for the limited right of replacement or refund set forth
in paragraph 1.F.3, this work is provided to you 'AS-IS', WITH NO
OTHER WARRANTIES OF ANY KIND, EXPRESS OR IMPLIED, INCLUDING BUT NOT
LIMITED TO WARRANTIES OF MERCHANTABILITY OR FITNESS FOR ANY PURPOSE.

1.F.5. Some states do not allow disclaimers of certain implied
warranties or the exclusion or limitation of certain types of
damages. If any disclaimer or limitation set forth in this agreement
violates the law of the state applicable to this agreement, the
agreement shall be interpreted to make the maximum disclaimer or
limitation permitted by the applicable state law. The invalidity or
unenforceability of any provision of this agreement shall not void the
remaining provisions.

1.F.6. INDEMNITY - You agree to indemnify and hold the Foundation, the
trademark owner, any agent or employee of the Foundation, anyone
providing copies of Project Gutenberg-tm electronic works in
accordance with this agreement, and any volunteers associated with the
production, promotion and distribution of Project Gutenberg-tm
electronic works, harmless from all liability, costs and expenses,
including legal fees, that arise directly or indirectly from any of
the following which you do or cause to occur: (a) distribution of this
or any Project Gutenberg-tm work, (b) alteration, modification, or
additions or deletions to any Project Gutenberg-tm work, and (c) any
Defect you cause.

Section 2. Information about the Mission of Project Gutenberg-tm

Project Gutenberg-tm is synonymous with the free distribution of
electronic works in formats readable by the widest variety of
computers including obsolete, old, middle-aged and new computers. It
exists because of the efforts of hundreds of volunteers and donations
from people in all walks of life.

Volunteers and financial support to provide volunteers with the
assistance they need are critical to reaching Project Gutenberg-tm's
goals and ensuring that the Project Gutenberg-tm collection will
remain freely available for generations to come. In 2001, the Project
Gutenberg Literary Archive Foundation was created to provide a secure
and permanent future for Project Gutenberg-tm and future
generations. To learn more about the Project Gutenberg Literary
Archive Foundation and how your efforts and donations can help, see
Sections 3 and 4 and the Foundation information page at
www.gutenberg.org 

Section 3. Information about the Project Gutenberg Literary 
Archive Foundation

The Project Gutenberg Literary Archive Foundation is a non profit
501(c)(3) educational corporation organized under the laws of the
state of Mississippi and granted tax exempt status by the Internal
Revenue Service. The Foundation's EIN or federal tax identification
number is 64-6221541. Contributions to the Project Gutenberg Literary
Archive Foundation are tax deductible to the full extent permitted by
U.S. federal laws and your state's laws.

The Foundation's principal office is in Fairbanks, Alaska, with the
mailing address: PO Box 750175, Fairbanks, AK 99775, but its
volunteers and employees are scattered throughout numerous
locations. Its business office is located at 809 North 1500 West, Salt
Lake City, UT 84116, (801) 596-1887. Email contact links and up to
date contact information can be found at the Foundation's web site and
official page at www.gutenberg.org/contact

For additional contact information:

    Dr. Gregory B. Newby
    Chief Executive and Director
    gbnewby@pglaf.org

Section 4. Information about Donations to the Project Gutenberg
Literary Archive Foundation

Project Gutenberg-tm depends upon and cannot survive without wide
spread public support and donations to carry out its mission of
increasing the number of public domain and licensed works that can be
freely distributed in machine readable form accessible by the widest
array of equipment including outdated equipment. Many small donations
($1 to $5,000) are particularly important to maintaining tax exempt
status with the IRS.

The Foundation is committed to complying with the laws regulating
charities and charitable donations in all 50 states of the United
States. Compliance requirements are not uniform and it takes a
considerable effort, much paperwork and many fees to meet and keep up
with these requirements. We do not solicit donations in locations
where we have not received written confirmation of compliance. To SEND
DONATIONS or determine the status of compliance for any particular
state visit www.gutenberg.org/donate

While we cannot and do not solicit contributions from states where we
have not met the solicitation requirements, we know of no prohibition
against accepting unsolicited donations from donors in such states who
approach us with offers to donate.

International donations are gratefully accepted, but we cannot make
any statements concerning tax treatment of donations received from
outside the United States. U.S. laws alone swamp our small staff.

Please check the Project Gutenberg Web pages for current donation
methods and addresses. Donations are accepted in a number of other
ways including checks, online payments and credit card donations. To
donate, please visit: www.gutenberg.org/donate

Section 5. General Information About Project Gutenberg-tm electronic works.

Professor Michael S. Hart was the originator of the Project
Gutenberg-tm concept of a library of electronic works that could be
freely shared with anyone. For forty years, he produced and
distributed Project Gutenberg-tm eBooks with only a loose network of
volunteer support.

Project Gutenberg-tm eBooks are often created from several printed
editions, all of which are confirmed as not protected by copyright in
the U.S. unless a copyright notice is included. Thus, we do not
necessarily keep eBooks in compliance with any particular paper
edition.

Most people start at our Web site which has the main PG search
facility: www.gutenberg.org

This Web site includes information about Project Gutenberg-tm,
including how to make donations to the Project Gutenberg Literary
Archive Foundation, how to help produce our new eBooks, and how to
subscribe to our email newsletter to hear about new eBooks.