| Note: | Images of the original pages are available through Internet Archive/American Libraries. See http://archive.org/details/countryhousewith00chat |
FRIENDLY CONTRIBUTIONS FOR 1842.
EDITED BY
LADY MARY FOX
LONDON:
J. MURRAY, ALBEMARLE STREET.
MDCCCXLIII.
C. WHITTINGHAM, TOOKS COURT,
CHANCERY LANE.
HITHERTO the Contributions have appeared in a small volume: but a friend having furnished me with the Manuscripts of the following Letters, in order to do justice to the beautiful designs, it has been necessary to increase the size of the work. I trust that the merit of the drawings will reconcile my subscribers to the increased price.
The observation on the style fittest for domestic architecture, the description of the proposed house and the designs, are by Monsieur De Chateauneuf; to these, Mr. Eastlake kindly added a very valuable Letter on the Principles of Interior Decoration.
Monsieur De Chateauneuf is already known in this country by his elegant work, Architectura Domestica, and his design for the new Royal Exchange; all who have visited Hamburg must be well acquainted with the refined taste which characterizes the buildings erected under his superintendance.
It is but justice to M. De Chateauneuf to state that his letters were written merely as matter of amusement, and arose out of a discussion with a friend, as to which was the best style to be adopted for domestic architecture; the letters have been translated4 from the German, and unfortunately have not had the advantage of being submitted to the writer for correction.
It is proposed that the next volume should contain a reprint of the late Mr. Whately's admirable work on Modern Gardening; this it is hoped will be considered as a fit companion to the "Country House." I take this opportunity of thanking Mr. C. Knight and Mr. Jackson, who kindly furnished me with the blocks from which the vignettes have been printed.
MARY FOX.
ROYAL SCHOOLS OF INDUSTRY,
AT KENSINGTON, THE POTTERIES, AND
SHEPHERDS' BUSH.
Patron:
His Royal Highness the Duke of Sussex.
Patronesses:
| Lady Elizabeth Whitbread, | Honourable Miss Fox, |
| Lady Augusta Gordon, | Lady Calcott, |
| Lady Mary Fox, | Mrs. Valpy. |
| Lady (V) Holland. | |
It is now ten years since the first of these Schools was established, and instruction is now afforded to nearly one hundred and fifty children of the poorer class, who, but for this aid, would linger on in idleness and ignorance.
The teaching is not merely confined to reading and writing; the main object of the Schools is to inculcate habits of industry, and to teach the principles and practice of the Christian Religion.
On the formation of the Schools, the plan of self-support was adopted, each child contributing a weekly payment—Infants, 1d.; Girls who are taught to work, and the6 younger Boys, pay 2d.; and the elder Boys, who are taught to write, 3d. Although these payments go some way towards the maintenance of the Establishment, yet the funds hitherto have been found very inadequate, and the deficiency has been supplied by voluntary contributions, the produce of bazaars, ladies' work, &c. One of the most successful sources of profit has been a small Volume, printed under the title of "Friendly Contributions;" the profits from the sale of this Work have been applied to the support of the Schools: three Volumes have already appeared, and the present forms the fourth.
It is conceived that it is unnecessary now to urge one word in favour of the absolute necessity of affording education to all; the question is narrowed to the consideration of what are the most efficient means by which this great object is to be accomplished; it is hoped that, notwithstanding the many excellent charities which claim the attention of the benevolent, few will be found unwilling to aid an Institution which, in addition to teaching to read and write, instils habits of industry and inculcates the principles of Christianity amongst the children of one of the poorest and most populous districts around London.
Dear Sir,
AS I am about to build a new house, I have determined to avail myself of your assistance, should it be convenient to you to give it. I do not by so doing intend that it should be supposed I think that the many very intelligent architects in this country are incapable of giving me good advice; but independently of my friendship for you, and great respect for your talents, I wish to consult one who is not likely to be so much wedded to the routine of modern Italian villas, Elizabethan houses, and thatched cottages, as is the case with most of our English professors: not that I mean to say anything in disparagement of a Palladian villa, always beautiful, though not always best suited to our climate. I am also fully sensible of many of the beauties of2 the old Elizabethan houses, and also of some of the imitations of them; and a small thatched cottage is very pretty.
I shall begin by stating the sort of house we want, and give a short description of the ground on which it is proposed to build it, in order that you may in the first place, give your notions as to the site, and the style which you would recommend. On the style, perhaps you would give us your views in detail, pointing out, as far as your leisure and inclination will permit, the merits of each, and which on the whole you prefer.
As regards the ground, we have no park, but sufficient extent of land to make a large paddock very park-like: it would not suit our views to have a park: the situation is not romantic; but as the ground is poor and wild, we shall command more ornament than profit. To the north or north-west there is a rising terrace, well sheltered with high trees; this slopes down for about a quarter of a mile into the valley of the Cray; the aspect is therefore south-east, and this comes best according to the slope of the ground. If you prefer that the house should stand high, you may have in front a good terrace of at least two hundred yards long and eight feet high; if lower down the hill (half way), the terrace will not be so good, but there will be better shelter from the north wind, and at the back there will be rising ground, through which the walks of the pleasure ground may be conducted, and still the house will be well above the valley. In front, looking over this valley, and across some fine orchards (for which Kent is celebrated) and some waving fields of corn, there is a mass of wood on a rising hill, about equal to the hill on which we are situated; on the right there is a fine view of Knocholt beeches; in the valley there is the town of Footscray, seen through the orchard at about half a mile distant, and by a little dexterous cutting and levelling we shall be able to get a glimpse of the small winding river.
On the right of the hill on which we are to build, there is a small spring at present rising in some swampy ground covered with alders; this we propose to clear, and shall be enabled, if you think it worth while, to enlarge into a small sheet of water. With this general view, you will see that we are well off as to aspect, have woods in the distance, and a valley (of no great beauty indeed, but still a valley) with a quiet stream, and this is always pleasing. I think it may be considered as a fair average specimen of English scenery, such as is met with in the southern counties.
Now as regards the house. There must be a good dining-room, a good general morning room, which will serve as drawing-room, and a large3 library; one or two small rooms, in which to receive persons on business, &c. As regards bed-rooms, offices, &c. this will be matter of future consideration, when we have settled the important matter of site and style. I should, however, mention, that, as circumstances may make it desirable to add to the size, it will be advisable that there should be that irregularity in the plan as will admit of this, so that it may be in the end, a house costing from £10,000 to £12,000.
With respect to the offices, I think we make a great mistake in England, as we manage to hide them, and lose all the benefit of increasing the size and importance of the house by these additions. I know, however, this is a very difficult point to manage, and merely throw it out for your consideration.
The general building material in this part of the country is brick, though we are enabled, at no very great cost, to get some stone for window or door frames, &c.
I have been reading a little about the sites of ancient villas, but shall not trouble you with my views until I receive your answer: recollect we have a bad and variable climate, though we go out as much in the winter as summer; so that there must be at once shelter from the sun for our short summer, and warmth and shelter during the long winters and cold springs.
H. B.
FOR your letter, accept my thanks. It is doubly flattering to me, being a foreigner, to be commissioned to make the designs for the country house you intend to build. Yet while I derive great satisfaction from the task, I am impressed with the difficulties attending it, one of which is, that I am at present prevented by business from discussing the matter with you in person, and am therefore compelled to put my ideas upon paper. Simple as the commission appears, it however involves considerations of some moment, and which render it necessary that I should previously state to you my opinion in detail in regard to the style I propose to adopt. I have not forgotten what you once said to me, namely, that in order to make himself intelligible to others, it is essential that the artist should be clear as to his own meaning. I even suspect that opinions once defined, if not clearly and sincerely put down, may lead to misapprehension, and (inasmuch as they5 commit the person who gives them) to the misleading of the artist himself. You invite me, however, to give my opinion, and having freely stated the difficulties of the undertaking, I begin with more confidence.
What then, with a view to your individual taste, is the style I would recommend as most suitable for the intended situation and purpose? And if such a question is now become not an uncommon one, you must allow that, sixty years ago, no one would have thought of proposing it to an architect for his consideration. Every architect would then have at once answered it by saying, "In that style which is in general use, and according to my own particular views of it." Or during any of the various epochs of the art, would any one have thought of suggesting to a Greek, an Italian, or native of the north of Europe, &c. to build in any other style than that belonging to their respective countries? It ought also to be borne in mind, that if we occasionally meet with an intermixture of styles, it is only in buildings of transition periods, during the change from one mode to another; and such periods were of only short duration, because the previous style had already outlived itself. Circumstances are now totally altered. We recognize and practically adopt various styles indiscriminately: nor is it difficult to explain how it happens that we now employ one and then another. For this, two reasons may be assigned: the first (a very meritorious one) is, that we with a generalizing view, anxiously study and investigate the most difficult examples of art. The second reason however, is of a very unsatisfactory nature, which is that in our weak hands no style has been so naturalized among us as to constitute a permanent canon by which to regulate the modifications of any and every architectural purpose. This is the cause of that indecision of style which manifests itself more or less in modern edifices, and of that changeableness of taste which has hitherto hindered us from establishing the art upon fixed principles, regulated according to the high requisites which our modern cultivation requires.
We seem to be of opinion that variety of character is attainable only by variety of style: hence our Museums are classically antique, our churches after the mode of the middle ages, and so forth, according as the buildings happen to belong to the class in which any particular period was most distinguished for buildings of that class. The character of such examples strikes us by its expressiveness; nor do we find it difficult, with models before us that we are now acquainted with and understand, to produce the same kind of effect and expression by merely copying their physiognomy and style. He, however, who is well grounded in the study, is aware that at different6 periods the art was treated according to its own principles as resulting from different modes of culture; and that consequently the adoption of a style previously discarded, though it may suit the vitiated taste of the artist, as the haut gout pleases the fastidious palate of the Epicure, yet it can never be pleasing to a really cultivated taste. You may think me somewhat fantastical, but it appears to me that we cannot read Homer with perfect relish in a saloon à la Louis Quatorze, or Shakespeare beneath the roof of a Grecian impluvium; and that it is only where the character of the surrounding forms and objects in some degree accord, at least do not harshly contrast with our mental occupation, that we can fully abandon ourselves to the imaginings of genius. I might, however, without impropriety, substitute "character" for "style" in the question you put to me, and my answer would then be: Let it be as noble and as cheerful as possible. Still the making a distinction between style and character does not entirely get rid of the difficulty; for a person who is as intelligent as you are in matters of art will say, "Even if you hit the character, the mere desire to invent an appropriate style does not of itself satisfy me, and on this account I wish you to state more explicitly which of former styles you intend mainly to select." This I will now attempt to do, and begin by stating it as my opinion, that the most perfect architectural style is that which admits at the same time of a refined style both of sculpture and of painting:—that which, while it serves as the vehicle of graceful embellishment, can maintain an equal excellence in itself. Such, as it appears to me, is the ideal which an architect of the present day ought to keep in his mind's eye. Yet before we proceed to inquire which of the principal styles we are acquainted with possesses such a quality in the most eminent degree, it will be proper to consider what is the kind of relationship which the three separate arts of architecture, painting, and sculpture, bear to each other.
According to the usual metaphor, the consanguinity is that of sisterhood. Yet in my opinion this is somewhat incorrect. In its origin and development every organic style of architecture has preceded the other two arts, consequently the relationship in which it stands to them may more properly be termed maternal, it being under her fostering protection that they have afterwards grown up: nor would it be difficult to exemplify this sort of connexion between the three arts by instances taken from different styles of architecture; and one who has applied himself to studying the motives and principles governing the formation of those different styles, will easily follow me in my remarks.
7The two daughter arts were unknown to, or did not exist for the earliest Asiatic architecture; on which account, imposing as its gigantic remains are, they oppress the mind by the feeling they excite of stern and monstrous vastness. In the Egyptian style the growth of the children arts appears to have been stunted and repressed by the servitude in which they were kept; nor have any later race or nation attempted to rival the massiveness of its edifices, tattooed over with hieroglyphics.
It is only in the genuine architecture of ancient Greece itself, and in the Italian style of the fifteenth century, that we meet with all the three arts growing up to completeness together, and as is universally acknowledged, brought to a very high degree of refinement and perfection.
Notwithstanding the long continued progressive formation and manifold development of Gothic architecture, that style failed to attach to, and as it were to incorporate with itself the two kindred arts, which were checked both by unfavourableness of climate, and by war and political disturbances. Architecture was therefore compelled to trust chiefly to its own power and resources, employing sculpture and painting merely as subordinate decoration. And who shall say that this style, so full of creative power, would not have preserved itself more pure, have avoided falling into the cold and gloomy on the one hand, the bizarre and overloaded on the other, could it have availed itself of the assistance of sculpture and painting, so that they should have accompanied it in all the varieties of its times and developments? This was to an extent the case with Arabian architecture,[1] which, both in regard to the dominion it obtained and its organization, has many points of similarity with the nearly contemporary Gothic style, notwithstanding the marked distinctions which prevail between them. This reminds me of the remark of a poetical friend, who once said to me, "Like a rainbow on the horizon of art, Gothic architecture stretches itself across Europe from Byzantium to Portugal; while Arabian architecture may be compared to its reflection, somewhat flattened however, commencing from the same point, and crossing along the north coast of Africa till it reaches Spain: or to a reflection in the water, whose wavy surface occasions some little difference of appearance; and in fact we behold both styles united together in the amphibious city of Venice."8 This simile would be more literally appropriate had the uses to which the two styles were applied been more nearly alike.
[1] As regards Arabian architecture, the parent art may be said to have been entirely childless, depending entirely on its own resources, discarding all representation of animal life, whether in painting or sculpture.
With respect to modern architecture, it may be said that it has quite rejected the services of the other two arts, and, as I fear, greatly to its own detriment; while these latter arts, notwithstanding the eminence they have attained apart from architecture, are not so solidly united as they otherwise would be, nor capable of so completely developing their powers, had the union of the three been complete.
It is well known that, owing to the fetters imposed upon them in Egypt by the religion of the people and its priesthood, it was only in Europe that sculpture and painting could at different epochs attain to maturity. But it is not perhaps so generally known or considered, that it is one characteristic mark of European architecture, that it has at all times, whether those of its progress and advancement, or its decline, availed itself of natural forms, both vegetable and animal, for purposes of decoration; while the Asiatic styles were confined to geometrical figures for the ornaments.
The above cursory glance at the history of the art, may at least serve to shew how incumbent it is upon the architect of the present day to make himself acquainted with the creative power and processes of his art, by studying them as they actually manifest themselves at different epochs, and according to the different views and purposes to which the art was applied. By so doing, however, he is in some danger of being worked upon by conflicting impressions, occasioned by the diversity of styles and the opposite tastes they exhibit. Yet, unless I am greatly mistaken, the whole system of the art, as developed in the different styles, must henceforth have considerable influence upon our modern architecture.
Limiting our views for the present to those architectural productions in which a union with the other arts is more directly attainable, we find Grecian or early Italian architecture the predominating style. The last grafted on the former, may be said to be more or less complete in the greater or less proportion in which it derives its nourishment from the parent stem. If we look, for example, to the progress or course of painting in Italy, that art flourished there in proportion to the nourishment it derived from the antique. The works of Mantegna, M. Angelo, Leonardo da Vinci, and Raphael bear testimony to this; and those great men would probably have attained to a higher degree of excellence, had they been as well acquainted with the sculptures of the Parthenon, and the Greek bronzes, as they were with the works of the Romans. Most assuredly a knowledge of the architecture of the time of9 Pericles, or of that of Pompey, would not have been without its influence upon such men as Bramante, San Gallo, and Baldassore Peruzzi, nor have failed of being turned to account by them: observe, however, that this remark is not intended to depreciate what they actually accomplished, nor to disparage the style which they formed. These explorers had unquestionably discovered new veins in the rich mine which had been opened by the Greeks; as the Romans, who were the immediate imitators of the Greeks, had already extended the one first of all worked. In all subsequent operations, as in what the French term the Renaissance style, nothing more was done than to go on excavating, seldom, however, with sufficient pains or caution, so as to separate completely the gold from the dross. When, therefore, I propose to make a design in the "Greek style," I wish you to observe that I understand by this term a striving after the purity of this canon, but at the same time with a reserved right to the free use of those modes and motives with which later European architecture supplies us. If a determinate name must be given to the style, I propose I should call it, "the Renaissance style of the nineteenth century."
But many may say, "How conveniently he contrives to get rid of the Gothic architecture!" while others will exclaim, "According to such principles, a very pretty sort of medley is likely to be produced." In answer to the first set of objections I reply: "If you can introduce modern sculpture and painting into Gothic architecture without prejudice to them or it, I will say that you have attained a great end." To the others I should reply: "You misunderstand or pervert my meaning. I have not spoken of a merely mixing up of different styles, but of compounding them together; between which two processes there is, I conceive, a wide difference, the ingredients being merely put together in the one case, without losing their respective qualities; while in the other they amalgamate with each other, and produce an entirely new combination: and it is in accomplishing combinations of this kind that the power of genuine art manifests itself; and the distinction may be likened to the difference between a mechanical and a chemical combination. Nor are some compound styles of architecture less beautiful than others which are quite unmixed."
I know not whether these remarks will prove of much service to you, but I trust they will at least enable you, after seeing what are my views generally on the subject, to make your own suggestions in return for my further guidance.
I am, &c.
A. C.
Dear Sir,
THANKS for your letter in answer to mine, or rather in part answer to it, for you have confined yourself solely to a discussion of the style to be selected. A subject which has hitherto, I think, not been sufficiently considered; at least in England. I believe that amateurs order a Grecian Palladian, or Elizabethan house without having much speculated on what are the different merits or demerits of each, but merely with reference to some one example which may be in their recollection, and which may have pleased them; or what is oftener the case, they submit to be guided by the bent of their architect, who in general, are wedded to some particular favourite style. Thus, we have Mr. ——, all Gothic and11 Elizabethan; Mr. ——, all Italian, with a dash of the Byzantine, Renaissance, &c.
I am, I own, much pleased as well as instructed by this discussion, and I hope you will not consider me as intruding too much upon your time and patience, if I venture to seek further elucidations of some of the positions in your letter. I quite agree it is clear that as yet we have a style to choose, and that in future ages, no architect will be able to apply any definite character to our present mode of building. I must, however, premise what indeed my letter will fully prove, that your partiality has induced you to give me credit for greater knowledge in matters of art, especially as regards architecture, than I possess.
I agree that the style which best admits of being combined with the sister arts (or filial if you please) of painting and sculpture, must be the one to adopt, and that it is clear their union is always a mutual improvement. It seems you come to the conclusion that the pure Greek style of architecture is that which best admits of this union. Now, as regards domestic architecture, I am not sure that I have any very clear perception of what is pure Greek style. I suspect our notion as regards a house of pure Greek style, is a cube of building of mock stone with a portico, if a large house; or if a small one, with some thin paste-like pilasters, and a certain number of parallelogram holes cut into the walls for windows, with two smaller cubes for wings; and, in the inside, a repetition of the outside, in the shape of the rooms; that is, two oblong rooms for dining and drawing rooms, with an oblong hall placed the other way: the usual accompaniment of folding doors, and two or three small and often dark rooms at the back. There are certainly some changes rung on these forms, but the theme is always the same. I call Sir R. Smirties' Post Office a gigantic small Grecian house. I am aware that the Palladian improvements, or additions, (which ever you will) have multiplied the resources, and have given us much to delight; namely, the circular dome, pillars, and gallery, and the consequent change in the disposition of the apartments. I mention these points to let you see the nakedness of the land, and trust to your kindness for better instruction.
You assume that the Grecian style is the best adapted to pictorial and sculptural decoration, but I do not see the reason of this; in fact, without a more precise definition of what you mean by Greek style, as adapted to domestic architecture, I do not see how this can be shewn. You state that the Gothic style is not so well adapted to the union with the filial arts, and that hitherto when so used they were subordinate only. I shall be the more ready12 to agree when I have some further exposition on this point. Though not so distrustful as our Royal Society who adopt "Nullius in verba" as their motto, yet cling to an old monkish law maxim of Lord Coke; I may say of your position what he says of law, "Lex plus laudatur quando ratione probatur." I am aware that the Gothic churches are often overloaded with ornament, and that the sculpture often seems as if merely stuck on, and the pictures are hung up as ornaments, not as part and parcel of the building; and, I believe, that tapestry was often called in aid to decorate our cathedrals, and with great effect; but is it of necessity so? Are there no exceptions? at all events, it is not so in the Byzantine style, which approaches so nearly to the Gothic; and, as regards the Arabian, (take for instance the Alhambra) the fair daughters unite in great harmony with their beautiful mother. You have besides omitted, I think, one point in which Gothic architecture has been greatly aided by the pictorial art, namely, the painted windows:
I begin to feel that it is probable I have entirely mistaken what you mean by Grecian style, and that it does not preclude the use of arches, groined ceilings, domes, &c. I have been the more diffuse on this point because I own I have a leaning to what we have called Elizabethan; conceiving, whether true or not, that there is more fitness in it for domestic architecture than in the Grecian style; that the regularity and repetition of form, which in a great building is delightful, in a small one does not please from the diminutive size of the objects. And, again, as regards the material and colour, as we use Grecian style in this country, the material is either white stone or white stucco, which in our climate appears cold, and does not give half so much the notion of warmth and comfort as the fine rich-toned red brick; and what refers to the exterior, is perhaps equally applicable to the interior. Although in a building on a grand scale the mind is pleased with symmetry and regularity, "in little" this is irksome, and gives the notion of poverty, in fact, too soon lets you into the secret of the whole house; there is no surprise, no discovery to make. Shew me a Palladian villa a mile off, and I could draw you the plan of the inside at once. Indeed, I could walk blindfolded into the drawing-room, dining-room, library, and boudoir,13 and go up to bed in the best bed-room, without a guide, or a light. Here are no
A good deal also, I am willing to own, arises from association and national prejudices; some of our most delightful houses are built in this style, and they have, at all events within, signs of harmony in the style of decoration, and in the accessories. The gardens and out-buildings were often made more appropriate and better suited to the house than in any other architectural attempts that we have made; and, I believe, no Englishman ever fancied building a house that did not have the large bay window and the large fireplace (against all principles of good grates and Arnott's stoves I admit,) and the low groined passage and the panelled hall in his mind. But it seems you think it most difficult
or rather say coy than willing. I beg you will not suppose I am opposing your views, all I mean is to canvass and to be sure that I understand them.
I have to repeat that I agree entirely that the style is best which is most susceptible of uniting the three arts; but I only wish to know why the Greek is most susceptible; and what is the kind of sculpture and painting you wish to unite; in order to see that such a union is suitable to our climate, and can be obtained at a reasonable cost, for you must bear in mind that I want to build a country-house, not a palace!
It is a long time since I was in Italy, and when I was there I did not pay so much attention to architecture as I should do, if I were to go over the same ground again, now that I have got a house to build; but there is a strong impression on my mind that the other parts of Europe may rival or surpass us in palaces and grand architectural monuments, yet that there is no country which would present so many good hints in domestic architecture as England; always referring to the great points, convenience, and comfort; for I own, as fitness is the guiding principles of all perfection in building, I conceive it essential in purely domestic architecture, that a character of fitness for habitation and comfort should always be prominent.
I am a great admirer of Balzac, and I think one of his best descriptions of still life is the account of the house in his "Recherche de l'absolu;" it is so14 good that I should be tempted, if it were not too long for a letter, to copy and send it to you as a model, if not of what a house should be, at least of how one should be described.[2]
Yours, &c.
H. B.
[2] Unfortunately these letters were written long before the appearance of Mr. Fonnereau's very intelligent and instructive Observations on Architecture were printed.
Dear Sir,
BUT for the trouble of answering your letter I should have been much amused by your remarks upon what, at no very distant period, used to pass for Grecian architecture; but thank heaven we have passed over that barren tract of human invention. Continuing in the same strain, you would fain have me believe you are one of those pilgrims to the shrine of art, who fancy they have now luckily gained a verdant and flowery oasis; or rather that they have discovered the true Eden itself, which it seems is no other than the Elizabethan style; and to complete all, you treat me as the evil spirit, harbouring deadly enmity against this fair paradise.
It is easy enough for you to give your opinions off-hand on these matters, but with us the case is different: the architect finds it less difficult to exhibit his ideas in his design, than to explain all the motives which lead to it,—how the ideas exactly arose, and how far they may have been influenced, either by our studies or our fancy. I must be allowed, therefore, to return to my16 former examination of the subject of style, and my deduction from such examination.
You will call to mind that the principal different manners which have prevailed in Europe, are, first the Greek style, and the additions made to it by the Roman adaptation of it, then the Gothic in its different periods, and the different treatments of such periods in the different countries; and under this period may be added the partial adoption of the Arabian style in the south. Then this great æra of the revival or Renaissance style, as it seemingly arose in Italy, France, Germany, Flanders, and England. This being, as regards England, your boasted Elizabethan style.
It is only very recently that my attention has been bestowed on that style which in the north of Europe succeeded to the Gothic; whereas, till then, it had been all along imagined that the Italians alone had comprehended the spirit of the antique, and been able to revive it in a newer form of their own; an error against which we should be upon our guard. Why should we not recognize the various modes of treating the antique, as we find them in different countries; and admit them to be all emanations from one common source and principle. In like manner, the Gothic principle or style was in common adopted and worked out through the whole of Europe, and was in common consentaneously abandoned wherever it had flourished; and the elements of ancient architecture became as commonly substituted for it. And this abandonment of the Gothic, it may be remarked, is the first instance in all history, when the creative power of a people (and, by people, I do not mean a single nation, but the whole of Christendom, united by one common religion) has survived the style of architecture, originally invented and brought to perfection by themselves.
This last subject would be an interesting and fertile one to investigate, and would throw considerable light on the development of the human mind throughout Europe. Such consideration, even confined merely as regards architecture, would be one too far from the present subject now to discuss. Since, however, the Gothic as well as the revival of the antique principle have extended over all Europe, in order to attain a knowledge of either, we should not confine ourselves to isolated specimens of particular countries. It is only by taking a survey of the entire field of Gothic architecture, that we can rightly comprehend its varied powers. Is it possible I would ask, from the mere acquaintance with English Gothic to imagine, or from its elements to compose a tower like that of the Minster of Freiburg in Brisgau, or a loggia of similar character to that called the Loggia da Orcagna, at Florence? On the other17 hand an acquaintance with continental Gothic alone will furnish no idea of the peculiar character of the English perpendicular class. The Renaissance style which is fraught with so much plasticity and variety, springs also but from one root. In like manner as it is impossible for a botanist to understand all the species of one particular family without tracing all that are found in different parts of the globe; so too, is it impossible to become acquainted with the power of any one style of architecture without a similar comparative study of all its specimens, as exhibited in the works of different nations which have adopted it. To the north of Europe must justly be allowed the merit of having exhausted the whole circuit of Gothic architecture, and the application of its principles; this was certainly not accomplished in Italy. It is therefore on this side of the Alps that we observe many of the motives and principles of the Gothic retained to a very late period not disturbed, as was the case in Italy, by types from the antique. At the same time it must be admitted, that when the style founded upon this latter, began to find its way northwards, the two sister arts, painting and sculpture, though they followed in the train of architecture, did not strike root very deeply, but were for the most part treated capriciously and mechanically as mere handicrafts; and this was especially the case in England. It is therefore remarked with some truth, that the Renaissance style is characterized in Italy by greater delicacy and beauty than elsewhere; in France and the Low countries by greater richness, and in England by capriciousness and extravagance. Lest, however, the term itself, Renaissance, should be thought too loose and vague, it may be proper to define it as used to signify "that style which everywhere succeeded immediately to the Gothic."
In Italy, this first period of the proper application of the antique terminates with the tendency of Michael Angelo, to destroy the true proportions of his buildings by colossal details; on the other parts of the continent it disappeared in consequence of the diffusion of M. Angelo's taste by the Jesuits; and in England it terminated at the time of Wren. Accordingly, this architectural period extends very little beyond a single century, commencing in other countries about the time when it was already on the decline in Italy.
In what I have just been stating, I must be understood to allude to one uniform aim, namely, the free appropriation and adaptation of the elements of the antique style to modern purposes; consequently it is evident that the so-called Elizabethan style is only one of the links of a progressive series of such attempts. You must, therefore, admit that architecture which is capable of producing independent works out of its own resources, and from its own18 principles, is degraded to what is little better than mere decoration and scene painting, when, (apprehensive of falling into contradiction and want of harmony, unless it retains all the individual particulars of extant examples,) it timidly strives to imitate the dialect of a single province. How short a time, however, must the impression produced by such mummery last! and how long the impression of a work of architecture is destined to remain! It is because we are ashamed of, or mistrust the results of our own study and conviction, that we venture to exhibit ourselves to posterity, merely as the copyists of examples; the repute of which is already established, and which may be learnt and repeated by rote? At various periods men have shewn themselves either barbarous or puerile in their notions on art; yet never till now such slavish copyists, such mere plagiarists, such mocking-birds in style. You may judge by this sally in what an ill humour I am, at finding that you would shut me up in a cage and there make me sing. If you examine your Elizabethan architecture with some little critical attention, you will hardly fail to perceive that, with all its richness of expression, the elementary sounds are no more harmonious than the crowing of a cock, or the braying of an ass.
All this concerns merely the style, as style; for in other respects we often meet with much that deserves praise; convenient arrangement, and contrivance, striking effect, and much cleverness of construction and execution, although so far from being pure or refined, the taste displayed may be decidedly vulgar and coarse. I freely confess that the merits I have just mentioned, were retained in the architecture of the north of Europe during the sixteenth and seventeenth centuries: I say retained, because the Gothic style that was then abandoned, had been treated with masterly and skill, and shewed disciplined artificers in all that belongs to mechanical execution; consequently, the ability thus produced had only to employ itself upon a fresh task. At the end of the last century, on the contrary, so completely had every thing like a school of the art disappeared, that at the University of Gottingen, architecture was taught as supplementary to the elementary course of mathematics. Is it then to be wondered at that we should have been filled with stupid wonder at the sublime works then newly brought to light, or that we should have set about copying them for the nonce, out of the affectation of classical purity, but without bestowing any study on the peculiar motives to be detected in them, or on the necessary alterations to be made in consequence of new exigences?
If we allow that as far as it proceeded, Grecian architecture is stamped by perfect beauty, it is of little moment to our argument whether it was so19 comprehensive as it might have been, and had sufficiently developed itself for those purposes which we now more especially require; since the perfection it did actually attain in the direction it took, ought to be sufficient to inspire the artist. It was not necessary that the latter should surrender up the freedom belonging to him as such, and confine himself to following Grecian motives and intentions. In fact, the peculiar charm,—the grace and freshness of Grecian architecture become withered as soon as we begin to treat it according to dry systematic rules. The Vitruvius, capable of legislating for it according to its genius and true spirit perhaps is not yet born! For indulging at such length in these somewhat abstract remarks upon style alone, I must again entreat your pardon. You ask for some more distinct and explicit ideas on the subject; and are apparently, like many others, of opinion, that the remains of a few temples, such as we behold in Stuart and Revett, comprise nearly the whole of Greek architecture. The chief point for our present consideration is, how far it had accommodated itself to buildings for domestic purposes: and here I must remind you that Pliny's description of his villas are still extant. It must, indeed, be confessed that those two residences do not belong to the epoch of Pericles; yet they belong nevertheless to that same series of actual Greek plans and constructions which have been preserved to us at Pompeii and Herculaneum, and which Sir W. Gell's tasteful delineations have rendered so familiar to all. Many remains of the same class in the vicinity of Rome, and more especially in the Golfo di Gaeta, at Puzzoli, and in the environs of Naples, sufficiently attest the fancy and variety with which the ancients availed themselves of the conditions imposed by peculiarities of ground and locality,—contrived to combine the advantages of coolness and shade on the one hand, with the glow of sunshine on the other; to provide a frame and foreground for the prospect from the house; and to produce happily imagined effects and picturesqueness of character by means of the irregularity and declivity of the ground.
Each of those ancient villas presents us with a new idea, and may be taken as an architectural study. Look, for instance, at those examples of the kind on the Lake of Albano and the Gulf of Gaëta, where the dwelling itself is connected with grottoes offering cool retreats, either for sitting in or for the purpose of baths, and upon entering which the visitor is so fascinated by the magic effect of reflected light from the water, that he almost fancies the whole scene to be a visionary and unearthly one. Water, it may be observed, either gushing in a stream, or exhibiting an expanded mirror-like20 surface, appears to have been considered by the ancients indispensable to the charm of a villa residence. In both the destroyed cities, even the smallest town houses offered upon entering them the reflection of the sky on the surface of the water contained in the basin of the impluvium. In larger dwellings, water was introduced more abundantly, and also in greater variety of modes; and residences upon the coast were built out quite into the sea. Besides much else that they have derived from the ancients, the modern Italians have retained this fondness for the combination of water and architecture, as many of their villas testify. For examples of the kind I refer you to the Villa Madama near Rome, and also to several at Frescati; and yet there the water and the architecture are not so intimately connected as in the villas and houses of the ancients. The climate of the north, in a great measure, prevents our availing ourselves of water as a means of producing reflection of light in the interior; but we may imitate this principle in a due arrangement of light and shade, and also in some cases by the use of mirrors in place of water.
Another very great, though little regarded point of excellence and architectural effect in the latter consists in the covered ambulatories and porticoes, which, indeed, were intended chiefly as a defence against heat and sun, yet recommend themselves equally to us, as affording protection from rain and wind. Nevertheless it is rarely but in cloisters that we find this architectural convenience retained. Great attention seems also to have been paid by the ancients to planning the internal communication in such a manner, that the domestics could pass to and fro, and have access to the different rooms, without incommoding those occupying any of the suite; and in this sort of arrangement they frequently exhibit so much ingenuity and contrivance, that we may study for some time ere we shall be able to surpass them.
For the present, these few hints and suggestions must suffice; but I could discourse to you for days together of the varied effects of light, the manifold diversity of form, the richness of play in regard to decoration, and all the combinations and beauties, both with respect to circumstances of locality and arrangement, that are to be met with in the remains of ancient domestic architecture.
Among other questions which you have submitted for my consideration, is, whether pure Greek architectural forms and details will bear to be united with such a material as coloured brickwork? And by way of removing your doubts, I beg to remind you of the highly praised brick edifices of King Mausolus, described by Vitruvius. Texture and colour of materials are to21 be considered merely as the vehicle made use of by the artist, and may be employed in one style almost equally as well as in another. Another doubt suggested, is whether arches and vaulting can properly be admitted into the style above-named? Now, were you to consult the Delphic oracle, it would probably return you some such answer as the following: When the edge of an aperture in a wall forms a right angle, the archivolt may still descend to the base without being interrupted by an impost. In vaulting, the diagonal crossing lines must be considered as secondary ones.
Perhaps this will but ill satisfy you, and you will say that, instead of solving one enigma, I have merely added another. Yet of one thing you may be assured, namely, that those difficult problems and mysteries in art, which have been expounded in formal terms, have been already actually decyphered, and explained more clearly by the practical solution of them in productions of art.
It seems you think I have not yet given you any satisfactory reason for my position, that the present improved state, both of painting and sculpture, renders it difficult to reconcile them with the conditions required by Gothic architecture. I admit this would be otherwise were we to go back to the hard dry style of the Van Eyck school. I can only say that such an attempt has been made by some of the best artists in Germany, and that after persisting in the trial for some time, they have now abandoned the imitation of the early German style, and have preferred the Italian. At any rate, my opinion is not contradicted by history, since the latter informs us that the powerful impression produced by the broad handling and simple masses of the ancient works of sculpture, then first discovered in various parts of Italy, had the effect of giving the representation of nature an entirely new direction. It is also a striking circumstance that, owing to the fresh impulse which both painting and sculpture hence received, not only the taste for Gothic architecture declined, but the system itself was opposed both by painters and sculptors, who attempted to make architecture subsidiary to their productions. Such being the case, as they alleged, in regard to ancient art. With what eagerness not only the learned men of Italy, and the architects who were urged on by them to the study of classical antiquity, but also both sculptors and painters, entered the lists against Gothic art, is sufficiently evident from Ghiberti's journal; and again afterwards, when a decided victory had been already obtained over it, from Raphael's report to Leo X. on the ancient edifices and other remains at Rome.
It is perhaps not so generally known, that in more northern countries it22 was the painters who set up for reformers in architecture. Holbein, there is reason to think, erected the first specimen of the antique in England: the portal of Wilton House, for his patron the Earl of Pembroke, still existing. About a hundred years later, Rubens, with the view of giving the death-blow to the still lingering taste for Gothic architecture in the Netherlands, made drawings of the Palaces of Genoa, and caused them to be disseminated in engravings. At the present day, indeed, we may be excused for smiling at the classical zeal of the worthy Peter Paul, who, in his preface to that collection of designs, inveighs against Gothic architecture as barbarous, at the same time that the plates themselves which he gives, are little better than hideous caricatures of the modern Genoese style, which, at the best is by no means remarkable for purity of taste.
Should Gothic architecture, which is just now employed upon a liberal scale, and with more or less of true feeling for it, in your country ever obtain firm footing there again, depend upon it my professional brethren who have, I think, adopted it without due consideration of the present condition of the other fine arts, will have to encounter serious, and, perhaps, unforeseen difficulties from the painters and sculptors. Were some gifted sculptor to apply himself to architecture, I am persuaded he would drive us all out of the field, for the charm with which that art is capable of investing architecture by a skilful union of the flesh-like sculpture with the hard bones of architecture, would produce an irresistibly fascinating effect.
From this long letter you will collect that, whilst on the other hand I do not mean to be confined either to a servile imitation of a pure Pompeian house; so, on the other, I do not mean to be tied down to repeat your Elizabethan architecture, or the Gothic of Germany or England. Nor do I propose to give you a fac-simile of any building of the Renaissance school. To the best of my power, I propose (as the best style) that which adopts the pure broad principles of beauty in building, and which were, I sincerely believe, best propounded by the Greeks; and which all experience has shewn to be best suited to receive addition from the highest style of painting and sculpture; and which are, in fact, parts of architecture. How far I may succeed is another point.
It is indeed difficult in all cases, even to select what is best; but with the most lofty aspirations, I am aware that I may indeed fall very short of the execution of my wishes; perhaps, I have already done myself some harm in this very discussion of style, by preparing you to expect too much.
Yours, &c.
A. C.
Dear Sir,
THE letter you send in answer to mine, on the question of the most preferable style, I must allow, contains many good reasons in support of your opinion and views; and laying aside prejudice and early associations, I am willing to admit that it is wise to adopt that style which possesses the most completely the elements of beauty, and which is most susceptible of being united to painting and sculpture, essential accessories of architecture, or rather, important branches of that art. Some of the facts which you mention are very interesting and striking, indeed, convincing; and the more I have reflected on the subject, the more I feel the advantage of breadth,24 and the superior beauty of the simple and grand lines of Grecian architecture; and my curiosity to see the mode in which you will follow out your precepts by your example, is hourly increasing, although I am quite aware that one specimen of a building will not be sufficient to illustrate the general positions you have, I think, so well established.
I almost wish that you had been tempted to extend your letter, already long, for the purpose of entering still further into a subject of such interest. I should be curious to learn to what extent the arts of painting and sculpture had been applied, in conjunction with the Gothic; and where they had most failed, and to ascertain whether those instances fully corroborate your positions. As regards your oracular distinction between the two styles, I am not sure I quite understand you. I shall, however, leave this till the termination of the discussion of the plan. The merits of the arrangements and contrivances of the ancient villas, as ascertainable from the descriptions extant, and the plans of those of Pompeii had not entirely escaped me. In addition to the published information, I recollect to have received, many years since, much information and instruction on the subject from Mr. Cocherell, soon after his return from Italy; he having devoted much attention to the arrangement of ancient villas, and having selected some very interesting materials to illustrate the ingenuity of the contrivances, and the judicious selection of the sites, &c.
Every part of your letter is tantalizing, and makes me regret that you have merely touched on subjects of such deep interest; whilst reading it, I forgot that I had commissioned you to give me the plan of a house, not to write a complete treatise on ancient and modern architecture. Conceding to you the choice of the style, convinced by your reasons and arguments in favour of its superior beauty and capability, I own to you I do so reluctantly, not without a sigh, and not without much hesitation. Although, abstractedly, a building constructed on the principles you advocate, may have more beauty than our own Gothic or Elizabethan, and may be more susceptible of a union of the three arts; yet there is one part of the subject to which you have not adverted, and on which, perhaps, you are not likely to feel so strongly as we do in England, the most aristocratic country in the world. Some of our most beautiful houses are in this the rejected style, and with them are connected all the prejudices and associations of antiquity, of ancestral dignity and greatness; and a house of this kind carries the mind back to other times, and awakens recollections that it has been enjoyed by a long line of ancestry, and hence, perhaps, has in a great degree arisen the desire of many who have built modern houses, to imitate those of the elder time; not indeed25 from any attempt actually to devise and construct a forgery, but to avail themselves to a certain degree of the associations to be derived from the recollections associated with the buildings of former ages, and in the construction of which, at least, the most skill and talent had been employed; and again perhaps, the very clumsy and unsuccessful adaptation of the principles of the revived Grecian and Roman, or Palladian architecture, to our modern houses, (especially in the smaller ones,) may have tended to keep alive the prejudice in favour of that style, which even if it were not the best, was at least the best executed; more especially in its adaptation to the fitness of domestic arrangements and comfort. Whilst I have been advocating the merits of our Elizabethan houses, you must not suppose I refer to the multitudes of grotesque little villas which grow up every summer round London; or to those alterations and adaptations, by which one sees Gothic spires, plastered over with stucco, starting up out of one half of an old farm house; the walls notched into battlements, and uncouth animals set a grinning against each other over the gate posts, and the hall crammed and fortified with rusty swords and pikes of all ages and fashions. And on the other half, Venetian windows slices of pilasters, balustrades, and other parts of Italian architecture. Although I have not such a greedy appetite for every thing Gothic, as Horace Walpole had, yet I own I partake somewhat of his feelings, as expressed in a letter from Stowe, when he says, "The Grecian Temple is glorious, this, I openly worship, but in the heretical corner of my heart I adore the Gothic building." Though I own the character he gives of the Gothic building he so adores is barbarous enough, for he says, "That some unusual inspiration of Gibbs has made it pure and venerable, with a propensity to the Venetian, or Moresque Gothic; and the great column near it puts me in mind of the Place of St. Mark." Strawberry Hill, however, is a sufficient proof of his knowledge and taste for pure Gothic. There is one point on which I entirely agree, which is that the style of decoration should be consistent with the style of the architecture. I think we have been more deficient in attention to the style of decoration, than even to the choice of the style of the building itself; and nothing is now more common than to plaster the walls of a modern London house with the Gothic paper of Henry VII.'s Chapel, and to fill it with a load of old carving of all ages and times; and to finish with a cartload of Louis XIV.'s clocks, and other similar ornaments: but of this, more when we come to discuss the decoration of your rooms.
BY my first letter you will see I have explained to you the site, and I think the next point which we have to settle will be the advantages and disadvantages of aspect; and whether the house should be placed at the top of the low hill I have mentioned to you, or half way down, or at the bottom. I think in general, the modern fashion has been to seek a lofty spot, without reference to shelter; so that the architect's work should shew well to the surrounding country. My object is that the house should be placed in the most convenient spot as to shelter, with the best aspect suitable to our uncertain climate, always27 taking care that there be sufficient drainage, an essential, though often a neglected point.
Having explained the essential, I come next, to the ornamental; I do not think it is so necessary that the house should form a handsome feature of the surrounding landscape, as that it should form an harmonious picture in combination with the grounds in immediate connexion with it; I must refer you again to a description of the locale. I have nothing to add to this. You will see that the spot I have chosen has somewhat of an amphitheatrical shape, and that I have the means of making a terrace; that I am well backed at the north by trees and hill, and open well to the south-east. You have the choice of aspect within the range of south-east to south-west; yet the house, for meteorological reasons, should not be placed too low down in the valley. I refer you to Mr. Professor Daniell's essays on the subject of the difference of temperature between the top and bottom of a hill; this, though it applies principally to the position of a garden, has some weight even in the site of a house.
It will be necessary that the approach should be from the south-west; and as regards plantations and protection from wood, I am well defended on all sides. I had meant to have added some observations on the picturesque, of which we fancy we are the discoverers; but at present, I have not time. I may, perhaps, (if I find you inclined to enter into the subject,) send a few remarks on this; particularly, as I believe it is considered that the ancients did not, in the situations of their houses or buildings, consult those principles of taste which we call the picturesque. I think Dr. Copplestone, in his lectures on ancient poetry, states this, and yet one should judge otherwise, from seeing the sites of many of the Roman buildings in this country. That at Bignor in Sussex is particularly beautiful, nay, grand; but yet it was low: perhaps, the advantage of a running stream was the general cause in former times of building quite down in the valley.
I think it will be an object to have as much veranda as possible, closed in and very wide, but not, perhaps, in front of the best windows; but somewhere so as to have both a shaded and a winter's sheltered walk.
I must apologize for the indefiniteness of this letter, but I think I have given enough to serve as a text for the answer. The style and site settled, I propose we should at once come to materials to be used, ground plan and elevation. As regards offices, I will mention such as are essential; as you may, in consideration of the plan, like to know this; there will be one small lodge at the entrance on the south-west, and should have no objection to a28 back entrance at the north; as this may be used as a labourer's cottage. There will be a double coach-house, stables for six horses; a small ice-house and gardener's cottage. The two latter may be arranged so as to form part of the garden wall. I mean the kitchen garden, which will be at some small distance from the house, at the back, or north; but I mean it to be connected with the house by the flower-garden and plantations.
Yours, &c.
H. B.
Dear Sir,
WE come now to fix upon a part of the grounds that shall appear most healthy, neither too confined nor too exposed; commanding a good prospect, yet well sheltered. This is a very material point, and not indeed altogether free from difficulty; nevertheless, proper attention to the two circumstances just mentioned would perhaps, in the generality of cases, lead at once to the selection of the most favourable site for building upon; both as regards prospect from the house, and the view towards it; so that as regards the latter, it would display itself to the utmost advantage. With respect to the mode of combining buildings with the surrounding scenery, the following principles and directions are laid down by the ablest of our writers30 in the German language, on the subject of landscape gardening.[3] "If due care be taken to distribute the masses of light and shade, so that they shall judiciously relieve and balance each other, satisfactory effect, as regards the general grouping and composition of the scenery, can hardly fail to be secured. Grass, water, and level lawns, which throw no shadow upon other objects, but merely receive those which the latter cast upon them, are to be considered as lights in landscape gardening, while trees, woods, buildings, and rocks, (should there be any) afford the artist his shadows and darker tints. In making use of these contrary elements, care must be taken lest breadth of effect be destroyed, and a disagreeable spottiness substituted for it; in consequence of there being too many separate and partial effects independent of each other; or else by there being too great a proportion of unbroken light. On the other hand an equal fault is committed, if a few dark masses of shadow are allowed so to predominate, as to overpower all besides; or again, if lawn and water exhibit naked unbroken surfaces of light too harshly defined; whereas they ought to be left partially to lose themselves in indistinctness, or the shadow of deep vegetation; or to detach themselves from a darker background as brilliant lights opposed to it. With respect to buildings, these ought never to stand perfectly isolated, because in that case they become spots, and look as if they had no business there, nor belonged to any of the rest. Besides, a partial concealment is always advantageous to every kind of beauty, and it is highly desirable that the imagination should be interested by there being something for it to exercise itself upon, and to divine. The eye frequently rests with more satisfaction upon a chimney peeping out in the distance, and emitting a gray volume of smoke from amidst the dense foliage of trees that embower and exclude from sight the building whose presence is so indicated, than it does upon a large formal mansion standing fully exposed to view, with no shelter or skreen on any side, with nothing to break its outline, with nothing to render it an appropriate and consistent feature in the general scene." From the beginning of what I have here extracted, you perceive that this writer treats the subject in a masterly manner, taking a comprehensive view, and is guided by such sound theoretical principles, as to be able to determine beforehand, the results of his art with almost as much certainty as an architect can judge of an intended building from its ground plan.
[3] Prince Puchler Muskau. Andenkungen über Landshaftgärtnerei. Stuttgart, 1834.
31Having determined upon the precise site, that which seems most recommended by considerations of healthiness, convenience, &c.; we have next to attend to what appertains exclusively to architectural treatment and character. The general idea of the building, as to its chief masses and parts, extent and arrangement, being sketched out, regard must be had to the greater or less space of the immediate site; to obtaining for it due effect of light and shade, and a background calculated to set it off, upon all which circumstances, it depends nearly as much as a work of sculpture does. In like manner as statues in general have only three sides from which they are calculated to be seen, so also have buildings; nor can I help being of opinion that much harm has been done of late years, both in architecture and sculpture by the attempt at equal display on all sides. The greater part of antique statues were evidently intended to have a wall or background behind them; nor is there, perhaps, any thing more at variance with the effect which statues ought to produce, than the present frequent practice of erecting them in the centre of large squares.
Nearly all productions of architecture, more especially structures adapted for habitation, offer one side stamped as the principal or front, and another, which is its reverse; in which respect they bear a greater analogy to living beings than to plants; the latter having no definite foreside, on the contrary, any part becoming the front, that is towards the spectator. Such being the case, the same rules that are to be observed for displaying a statue, or representation of a living figure to advantage, ought to be attended to in regard to the position of buildings. Agreeing with you that a sheltered situation is the most desirable for your intended villa, I will attempt to explain it upon the theory of the following general principles; namely, upon our beholding any building of the kind, it ought immediately to be evident wherefore it is so placed, and that by being placed precisely where it is, it is part and parcel of its immediate vicinity.
But to confine myself to our particular instance. I think I shall be able to provide an exceedingly agreeable site for your residence, as I learn that a supply of water may be obtained in the grounds, capable of floating superficies of about fifty thousand square feet, and depth in proportion. Accordingly I propose, after the manner shewn in the accompanying ground sketch, (Plate I.) to avail myself of this circumstance, in order to give animation to the now comparatively tame and lifeless character of the place. The reservoir on the upper terrace would keep the basin constantly filled to the level of the lower terrace, before the water escapes into the valley below. By this means, a32 sheet of water may be provided almost in the centre of the grounds, and my plan suggests, that the house itself should be erected immediately on the north shore of this artificial lake. On the spot where I have placed it, the ground floor would be about fifty feet above the level of the brook itself, and that part of the grounds through which it runs, consequently would not be exposed to any injurious exhalations from the lower grounds.
I need hardly point out to you the unusual agreeableness and even piquant effect of a residence so situated; and when I send my plans for the house itself, you will see what are the apartments that will occupy this side of the building, and what a charming prospect they will command of the lake immediately below, and the grounds on its opposite banks. At present I will only remark as regards the increased effect thus to be gained, that a building immediately on the edge of a piece of water appears more considerable than in any other situation; and that the reflected image of the architecture will form a brilliant contrast to the darker reflections of trees and foliage. Besides which, the most favourable point of distance for viewing the building itself on this side, would thus become fixed—being that from the opposite bank of the lake.
A very cursory examination of the plan of the ground will convince you, that the whole of the buildings you require are massed together in one group. Such an arrangement certainly contributes to convenience; and I agree with you by shewing the various offices, instead of attempting to mask or screen them, the house itself may be made to possess greater importance and apparent extent; that is, you will get a large looking country house at a small cost. It may be further remarked, that by adopting such treatment of the plan, some kind of architectural foreground is introduced into the prospects seen from the house itself, together with much contrast and variety, and that too without incurring unnecessary or extra expense, since the same accommodation must be provided. Another advantage is, that the subordinate buildings of this kind attached to the main structure, may be made use of as a kind of connecting link between the more artificial and studied regularity of the latter, and the natural objects in its immediate vicinity; without which sort of intermediate transition, a house is apt to have the appearance of a mushroom structure that has over night started up out of the ground.
From the north east angle of the house, the stables extend northwards, while the conservatories run in an eastern direction from the same point. By this means an open avenue is left before the north side of the house: and on the east side a flower garden, which is screened towards the north. The33 piece of ground enclosed on two sides by the stables and hothouses or conservatories, and therefore not exposed to view from the house itself, would be occupied as the stable-yards, &c. Further on, towards the upper terrace, is the fruit and kitchen garden, stretching out more eastward. At the end of the conservatories is the gardener's lodge, the upper part of which forms a small dovecot.
I have not yet said any thing of the west side of the house, although it forms one of the principal elevations of the external designs, the carriage entrance porch being placed there; the approach to which latter is over a bridge, and by the road which runs to the south-west towards the village. You therefore perceive that, before they actually arrive, visitors will obtain a distinct view, across the lake, of the entire range of the buildings from east to west; from the gardener's lodge and tower along the line of south front and terrace, to the bridge itself; of which group of architecture, the greater part, would be reflected in the water, from which it appears immediately to rise up.
You will observe, I have not carried the approach to the house in a curved or serpentine direction line, as is generally done, whereby the object to which the visitor is hastening, is now seen and now again suddenly lost sight of; but in a straight line, so that the building displays itself more and more plainly to the eye at every step.
From the high road, the approach is on the north-east; and of the portico lodge and gate at that entrance into the grounds, the sketch prefixed to this letter will afford you an idea. The direction of the drives and paths, the arrangement of the plantations and groups of trees, wherein I have taken care that the greater part of the fine elms shall remain untouched.
The source of the stream and the weir, from which the superfluous water finds its way into the lower valley, would almost of course suggest the propriety of erecting seats at those points of the grounds.
A more detailed description of the house follows by next post, with the plans and elevations.[4]
Yours, &c.
A. C.
AT length I have sent my notions on the site, and generally as to the house with which I trust you are satisfied. Now that I come to more particular description, and to speak of my design in detail, my confidence is somewhat abated, it being exceedingly problematical how far my ideas will accord with your own wishes and expectations. To the best of my ability I have endeavoured to meet both; to fulfil the conditions belonging to the particular subject and occasion; for be it remarked, every production of art is like every poem, a composition on some particular occasion or theme; and if it fails of its purposed aim as such, it may be said to be a failure altogether, and doomed to oblivion; or rather, in my case, to be stuck up as a monument of my ignorance. All that I dare hope as yet, is that the drawings have not been met with a hasty and decided "It won't do;" but that you at least35 suspend your judgment until I explain more fully my ideas and the motives which have guided me.
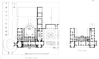
The principal sitting-rooms face the south, by which means they will have not only the most favourable aspect, but as it so happens, the best prospect also; therefore, so far you are not likely to start any objection; neither, I presume, will any exception be taken at the situation and aspect of the dining-room, which is towards the east; which last circumstance has induced me almost, as a matter of course, to place the entrance at the west, or opposite end of the house, it being on many accounts objectionable; (with regard to quiet and privacy,) to make the corridor, or inner vestibule running behind and serving as the communication between the principal apartments immediately connected with, or in continuation of the first entrance into the house from the open air; for one reason, because it is hardly possible in such case to prevent a continual current of cold air through the whole of that part of the building. Another point here attended to, is to place the dining-room beyond the other sitting apartments, so that it shall be the last and the most distant from the entrance. Attention to these circumstances have led to that arrangement of the space afforded by the plan which I have adopted. In order both to give some play to that part of the plan, and to avoid all sky-lights, I have broken the north side of the plan by a small court; surrounded on three sides by the house, in such manner that from the corridors, &c. turned towards it, a free prospect of the court and grounds shall present itself from various points of view; whereby an architectural foreground, and the natural scenery beyond it are combined; so that you feel yourself in every part of the house quite in the country.
Permit me now to receive you at the entrance, and be your cicerone over the building; in which character I must, before we proceed further, call attention to the exterior of this part, as you will have perceived by the designs it is carried up loftier than the rest, for the purpose of breaking the outline, and of providing a conspicuous and important feature in a distant view of the building. This tower-like portion of the structure does not carry with it any formidable appearance; it has neither battlements nor watch-turrets, for which there exist no historical grounds. On the contrary, crowned by a rich cupola roof, and ornamented with statues, it serves to announce that the house belongs to a lover of the arts and muses, who may be supposed here to enjoy at once, the refinements of literature and art, and the beauties of cultivated nature. The ground floor of this mass of the building is occupied by the entrance vestibule, which has a vaulted ceiling whose arches descend36 rather low, and which is lighted directly, by only a single small window at some distance from the floor, but which receives a strong reflected light through the doorways. It is highly desirable that a vestibule, entered immediately from the open air, should be moderately lighted, in order that the eyes may not be too much strained at first, but accustom themselves to in-door light; and also that the other rooms may derive additional effect from the contrast. Most assuredly too, a subdued degree of light will suffice for a vestibule which is not intended for a sitting-room, nor for reading, writing, or any other occupation, consequently, it very properly admits of a kind of Rembrandtish effect, which here becomes rather a merit than a defect; especially as it tends to set off all that follows. A group of statues against the wall facing the entrance, would here produce a good effect on account of the stream of light which would fall upon it from the window, and would make a pleasing impression on the visitor as soon as he had crossed the threshold. Instead of seeing from this vestibule any of the other parts of the house, the situation of the rooms, or those who may be passing through the corridors, we have first to turn to the left, where we perceive the staircase, not however exposed to full view, but merely so as to allow the upper part of it to be seen through a screen, formed of columns placed upon a lofty stylobate; which I conceive would produce a more than ordinary picturesque bit of interior architecture. We do not, however, enter the staircase, but pass on to the hall or inner vestibule, which affords immediate access to the sitting-rooms. Perhaps I may as well mention here, that the servants' hall, &c. for the men-servants would be in the basement at this end of the house, consequently would be just by the entrance.
The hall or inner vestibule is a spacious room overlooking the small flower-court above mentioned, the avenue leading to the stables, and the larger trees on the north side of the house. A small door opens into the court, while one of rich architectural character forms the entrance to the suite of rooms occupying the south or water front of the building. This last mentioned doorway leads into a small ante-room, right and left of which are two moderate sized drawing-rooms, capable of being used as one when the company is numerous. The folding doors being thrown open, and the smaller intermediate room becoming the centre-piece of the triple apartment thus formed. In front of these three rooms is an open loggia on a somewhat lower level, there being a descent to it of four steps, looking immediately upon the water; this loggia would form a sheltered terrace immediately connected with the sitting-rooms which it would also serve to screen from the sun.
37The library, which, according to your wishes, is made one of the principal suite of rooms, is the last of those in this front, it being on the south-east angle. It has an alcove or deeply recessed bay with a window in it, which not only affords a very agreeable little snuggery, bower, or whatever else you may term it, for reading or studying, or meditating in apart, but also gives additional spaciousness and variety to the whole apartment. From this room a jib or concealed door opens to the small private staircase, and another of the same kind leads into the flower garden. The larger door on the north side of the room, is that by which we enter the dining-room, to which, as it is upon a lower level, there is a descent of a few steps. The reason for this difference of level is that the room being more spacious requires to be of more height than the others, and also that it may be upon the same level as the terrace looking out upon the flower garden.
Beyond the dining-room, is the serving room, and behind that the kitchen, which, however, does not form part of the body of the house, but is included in the same range of buildings as the stables, being under the same roof. Attached to it is a kitchen court, and it is connected with the rest of the house by the servants' staircase, which last leads both down to the cellars and rooms in the basement, and to those above for the female domestics, to the childrens' rooms, &c.
The stables and conservatories call for no other explanation than what the drawings themselves supply; we will therefore now return to the principal staircase, on one side of which are two rooms not yet mentioned, one of which may be used as a business room.
On ascending the stairs, we have first two stranger's rooms on the left, on the right a billiard-room in the tower, and an upper hall or corridor over that below, and of the same size though not so lofty; this would serve for the children to play in and exercise themselves in winter or bad weather. On the south side of this are two sleeping, and two sitting-rooms, the larger of which might be used as a winter breakfast-room. The larger of the two sleeping-rooms, namely, that over the library is the one you would yourself occupy, it being adjoining the private staircase. On the south side of it is an alcove, raised a few steps above the rest of the floor; and on the east a small dressing-room looking out upon the flower garden. The upper part of the tower contains two other handsome sleeping-rooms, which, as they command a fine prospect, may be appropriated either to visitors or to the grown up members of your family.
It has been my endeavour to give an agreeable variety, play and contrast 38to the different parts of the interior, which I hope will not displease you; and I trust that the drawings and descriptions of the several apartments, their architectural character and decoration, which will form the subject of my next letter, will shew that while I have adhered to one uniform style throughout, I have neglected neither the variety in the individual parts, nor harmony and unity of expression in the ensemble, but have reconciled together those two, somewhat contrary, yet highly desirable qualities.[5]
Yours, &c.
A. C.
My Dear Sir,
FROM the two letters, and the accompanying plans, I think I fully understand your views. On the whole I am much pleased with the design, and own your example has fully supported your precepts; and bating all pleasure to be derived from associations, as I have before noticed, I willingly subscribe to your views, as to the beauty of the principles of Grecian architecture applied as they have been in your pleasing design. There are only two points on which, perhaps, you have allowed your imagination to carry you too far: first, you have taken rather a poetical notion of the means to be applied in building, what will, I fear be a very expensive 40structure, and larger than was intended; and next as regards the lake, on the borders of which you propose to place the house. I fully subscribe to your notions as to the beauty which would be gained by the proposed sheet of water, and feel all the advantages of the broad expanse of light, and the extent and variety to be derived from the reflection of the building in this natural mirror, &c.; but there are disadvantages, some of which are not to be overcome, and others, of which in my opinion, more than counterbalance all that is to be gained in beauty and variety.
I suspect you have been misinformed as to the possibility of making the lake as you propose, and next the expense to execute this perfectly and so as to ensure that it should always be filled with fresh and transparent water, would be very considerable, and indeed at times it would be impossible to accomplish this at any cost. But our climate I think is an insuperable objection to have a house actually bordering on still water; recollect how few months in the year the notion of the coolness of water would add pleasure to the prospect from the library or drawing-room window, and how often one should shudder at the very notion of it; moreover that according to our apportionment of the seasons for town and country those very months will be passed in London,—April, May, June, and generally July, being the time when "every body is in town." Although I believe the neighbourhood of water may not always be unwholesome, still there is much prejudice to overcome on this subject; not a toothache, cold, or rheumatic twinge would be felt by a person in the family, from the stable to the drawing-room, but would be attributed to the pond, for when angry, nobody would call it the lake; malignant malaria would be discussed in every variety of tone and phrase, and Dr. Chambers would think it his duty to enter his protest against any patient of his ever venturing to make a visit of twenty-four hours to the proscribed spot. I am, however, not sorry that you had conceived the notion of the lake, because it has given an opportunity of shewing what a beautiful accessory water becomes to a house, applied as you have suggested, and because I believe you will have no difficulty in substituting some broad expanse either of turf or gravel, which, though it will not give you the reflections of the buildings and the play of light you require, will still afford a flat surface for the receiving the shadows, and will not interrupt the harmony and simplicity of the general lines of your building. The loggia though it may not look out upon the water as you propose, will always be delightful as affording shelter in the winter, and shade in the summer; and the portico is, I think, a valuable addition. Our unhappy rage for adaptation or rather perversion of41 the Grecian portico; hitherto the portico has increased rather than diminished, the distance which has to be traversed in cold and rainy weather, from the door to the carriage. The perfection of this maladaptation is to be seen in our unfortunate National Gallery, where is annually erected a tarpaulin lean-to in order to prevent people being drenched in rainy weather in their progress to the entrance door, the access to which is opposed by an inaccessible portico. I quite agree with you that there being no historical associations connected with the site, it is right that the tower should have no battlements, and should not show any angry front where no defence against invading enemies, (whether chartists, socialists, or bread-taxing tories), is intended. I agree in the advantage to be derived from the variety of line and the grandeur of the tower, and am willing that the ornaments you propose of statues should indicate (as it will truly) the propensities of the owner, especially as terra cotta affords the means at a small cost, of obtaining examples of fine statues. However, as regards the shape of the tower, and especially the cupola, some doubts of its beauty have been expressed, more however by others than myself, though I cannot help feeling that, if this part partook more of the tall tower of the modern Italian buildings, finishing with the nearly flat roof and long projecting eaves, the effect would be more picturesque and less pretending. I mention this merely for your consideration, and am quite willing that your greater knowledge and better taste should determine its shape.
As regards the exterior in general, I have little or nothing further to suggest, except that I may observe that I have remarked in most of the best modern houses the cornices and ornaments are in my opinion too thin and minute, and this, I take it, is owing to the too servile copying from buildings designed for a country where the sun shines nearly throughout the year, and where the light colour of the material (unstained by damp or weather) marks more sharply and completely the light and shade than is the case in our gloomy season, and where the walls are soon disfigured and weather-stained. Although I assume that the project of the lake is to be abandoned, yet I should wish still that the ground floor should be at least raised as much above the level as it at present is. Although every facility of access to the gardens and grounds is desirable in a country house, yet I think it is disagreeable to be on an actual level with the walks; both from the interior and from the exterior, it gives the notion of the house springing from the earth as a mushroom, as you have observed. I will now follow you through the building at your invitation, observing that I agree as to the choice of aspects42 and the arrangements of the rooms. With reference to this, the west is well arranged so as to avoid that aspect for any of the rooms to be generally inhabited, and I subscribe to the notion that the entrance should be somewhat gloomy, at least enough so, as to create a feeling of pleasure on emerging into more light. As regards the large hall, perhaps for the size and style of the house there is a little too much sacrificed to it; but as I think it is an object of importance to obtain an open and airy access to the whole suit of rooms, and as this will afford ample scope for ornament, and casts of statues and bas-reliefs, and perhaps fresco ornamental painting, I am willing that some sacrifice should be made. The two rooms beyond the staircase will be useful, and indeed are necessary. I have already appropriated one as a gun room and audience chamber for those whose shoes may not be clean enough to be admitted to the best library.
I like the disposition of the two drawing-rooms; perhaps, however, it may be worth consideration whether it may not be better to make some sacrifice of symmetry, and convert them into two rooms, one large and one small; keeping the small one at the end next the staircase, and making it either octagon or circular; either shape is pleasing, and admits of variety in decoration. In that case it would be advisable to make separate entrances to each room for the interior hall: indeed, if the present arrangement is retained, this may be desirable, so as to avoid using the middle room entirely as a passage room. As regards the library, I have no observation to make on its shape or disposition. I assume that the two windows will sufficiently light it. At first I thought that it might be advisable to have the means of shutting off the recess by sliding doors from the large room, making a kind of inner library or study of it; but I presume, as this would leave but one window, the large room would be too dark. I think it would be desirable that there should be an entrance to the dining-room across the hall and through the corridor, as well as through the library. There might be occasions where it may be inconvenient to pass through the library to the dining-room, although this might be considered as the usual and grand entrance. I do not see where you have placed your fire-place in the library. I should conceive from its size, that you might want either two fire-places, or at least one stove and one fireplace to warm so large a room. The mention of fireplaces reminds me that I see no chimneys in the drawing, I suppose they are hidden by the balustrade. I shall be glad if this is so, as it will be well to get rid of so unsightly an object as chimneys generally are.
As regards the kitchen, it certainly is well placed with reference to the43 convenience of access to the dining-room; but though not under the same roof with the house, I should fear that not only the smell of the cooking, but the noise of the offices may reach the dining-room. This is a common evil, and one which it is essential to avoid. When we come to discuss the offices more in detail, this point must be well considered. I approve of the dining-room windows opening on the flower-garden, as this will also (unless when we are alone) be the breakfast room, and occasionally the morning room in hot weather; perhaps, however, to avoid any notion of coldness, only one of the three windows should go down to the floor and open on the garden.
As regards the kitchen, there must be added some additional offices, such as scullery, out-door's larder, &c. &c. but as I see space sufficient for these in the direction of the orangery, this will make no material alteration in your plan. In addition to the wine and beer cellars, I think the servants' offices may be well included in the space under the east and south fronts, particularly as I think it will be necessary that some sleeping rooms for servants should be obtained in the attics, and I presume your plan will admit of this without deranging your elevation; though I am aware something must be sacrificed in the height of the rooms; but though there may, for the purpose of protection of the lower part of the house, be a sleeping room for one or two men-servants, yet I think the women's sleeping apartments will not be conveniently arranged on the basement story. As it is important to economize, I should suggest to you that it will not be necessary to continue the basement story on the west front, and perhaps not under the interior or large hall. As regards the arrangement of the sleeping-rooms, if the attics are obtained, I think those you propose sufficient. If any more should be required, perhaps the large corridor or hall might be abridged, and at all events the billiard room may be made into another bed-room, and the billiard table taken down to the hall: increasing moral habits and the spread of useful knowledge, prevents our employing so much time as formerly in mere games of amusement, and I observe that the billiard room is somewhat going out of fashion, and that where it remains, is rarely used. I should, however, be sorry to give it up altogether. It is a very useful and innocent assistant with a dull party on a rainy day, or during a long evening at Christmas; and occasionally is a good "bore escape." The dressing-room at the east angle is inaccessible except through the bedroom, but this is an evil which cannot be in all cases avoided.
I have thus given you in detail the observations which occur to me on going over your plan, and except such alterations as occur to you as necessarily arising out of the rejection of the lake, I would not wish that any alteration44 should be made, and I shall be glad to receive from you the details as to the interior, and your opinion as to the few alterations I have suggested.
You have not stated to what use you design to put the building at the top of the north-east end; this, I presume, is to remain open, and so merely designed as a balance for the tower. Perhaps, however, it may be put to some use, either as a store or lumber room: I think it adds much to the picturesque appearance of the whole. Although I have rejected the lake, I should be sorry to lose the bridge in the approach, but as the ground in front slopes, a terrace may be well substituted, and perhaps the bridge may remain as passing over some road, or may form some part of the arrangement as to the angles of the terrace.
As regards your observations of the position of the house, I agree with what you state, but when I consult you in detail on the order and disposition of the grounds, I propose to make some suggestions on the subject. With respect to the materials, I assume you mean to have light coloured brick with stone at the angles, and for the moulding. I presume the additions of painting and sculpture (one of the grounds for the rejection of the Gothic) will play their proper part in the interior; as in the exterior, except in respect of the figures in the tower, no addition is gained from them in the elevation.
Yours, &c.
H. B.
Thanks for your letter approving of my design in the principal parts of the interior; I shall now briefly point out the materials which I would recommend to be employed for the floors, walls, and ceilings.
For the entrance hall, I propose that the doorcases, chimney-piece, and the socle or dado should be carried up about four feet high, and should be of yellowish Derbyshire marble, and the walls in stucco, but made to show the joints of different courses, and marbled in fresco of a lighter tint than the rest, while the vaulted ceiling should have the ribs coloured white and brown upon a pale blue ground; for here in the lower part of the tower it46 will, I conceive, be most proper to indicate as forcibly as possible to the eye, solidity of material and construction.
In the second or inner hall, which we enter from the preceding one, and beyond which is obtained a view of the staircase, as seen through the columns placed on a stylobate, serving as a screen to the stairs, the walls might be marbled of a light greenish tint, intermixed in the socle with brown lines. The columns and entablature should be white; and the ceiling panelled in wainscot, with coffers or compartments containing ornaments in relief on a green ground. As regards this part of the interior, I would remark that should such be deemed preferable, there would be no objection to filling in the upper part of the screen (that is, the openings between the columns) with glass. While this would prevent all draught from the staircase, and in some degree intercept sound also, it would not in anywise affect the general design; but rather might be made to conduce to it, by adopting some ornamental pattern, of course in a corresponding style. Both in this and the preceding vestibule, the floor should be paved with marble or coloured stone, as should also that of the corridors; but the large hall should have a parquetted wood flooring, because that room will occasionally be made use of for dancing. In this last, the walls should be wainscoted and panelled with oak, to the height of about seven feet; and the doorway which forms the entrance to the suite of sitting-rooms should be distinguished by richness of carved decoration in the same material. I further recommend the application of embellishment of inlaid woods or marquetrie of different colours, for the cornice or upper mouldings of this wainscoting, so as to produce a rich border or band along the walls, above which there will remain space for pictures in frames, (inclining forwards) and even if these paintings are of no very great value in themselves as works of art, they will be of use as contributing to the general design, and add greatly to its effect. The upper part of the walls might be painted in fresco in imitation of grey marble streaked with red, which last mentioned colour should be that of the coffers in the wainscoted ceiling.
The ante-room or first room of the suite being smaller than the others, should have a coved ceiling, in order to diminish its apparent height; and this might be painted with Arabesque ornaments on a white ground, somewhat after the manner of several of the ceilings of Julio Romano in the Villa Lanti. The walls of this and of the two adjoining rooms should be hung with silk or other stuff of a quiet sober hue, so as to give the greatest relief to the pictures, I taking it for granted that you would be inclined to place here the principal part of such pictures as you may possess.
47Though the ceilings of the two drawing-rooms should not be much ornamented, yet they may be relieved by the introduction of gilding in parts. For all these rooms I propose that the doors, &c. should be white with gilt mouldings. In the library, the ribs or bands of the vaulted ceiling should be gilt upon a white ground; and as regards the bookcases or shelves for books, they ought to be of some light coloured wood, highly polished, and not go higher than the corbels or consoles from which the vaulting springs, in order that there may be sufficient space for busts, vases, and other ornaments of that kind upon the cornices; and this will avoid the inconvenience of having the upper shelves quite out of reach, except with the help of high library steps—always inconvenient. For the lunettes or arched spaces between the corbels, I have not proposed any particular decoration, as they might be filled up by reliefs and casts let into the wall.
The dining room with the arcs-doubleaux and compartments of its vaulted ceiling afford scope for fresco painting of a superior style; and the pencil of our friend Eastlake, who has already shown so much classical talent in decorating the dining-room in London, might render this one of the most striking and charming apartments of its kind in England. It is true that fresco is so little practised in your country, and consequently its process so imperfectly understood, that he would probably have to encounter some difficulties at the outset; but I flatter myself I could be of considerable assistance to him, as regards the practical details, having already succeeded in introducing that mode of painting in spite of most unfavourable circumstances. I would advise that the pictures should be confined to the ceiling and the lunettes, and that the walls should be merely stuccoed, as being upon the whole more in accordance with the destination of the room itself, and affording a quieter background to the company seated around the dinner-table; at the same time that the frescoes in the upper part of the room would thereby show to greater advantage. You will observe that the fresco requires a bold broad style, and has an advantage over oil, as it is very effective even when not seen by a strong or favourable light. Should somewhat more of decoration be thought advisable, I would suggest the adoption of glass-mosaic in narrow upright pannels at intervals. Of this species of embellishment, which was much used by the Romans, and after, much in vogue throughout Italy during the middle ages, for pulpits, monuments, &c. I have lately introduced an application in a room fitted up by myself, the effect of which is allowed to be singularly striking and good.
The remaining drawing shows the large corridor on the upper floor.
48I need hardly remark that these designs are only intended to convey an idea of the general character and style of the different rooms, as submitted to you for consideration. Much yet remains to be definitively settled, there being a variety of circumstances with which I am at present but imperfectly acquainted; nor can I possibly say what modifications of the plan I should advise, until I know wherein you consider it objectionable, or wherein it fails to meet your precise wishes. Some objections I may probably be able to combat; others may possibly, by leading me to consider the points in difference afresh, enable me to hit upon variations that may not immediately occur to me. Much will depend upon your collection of works of art, which is as yet but imperfectly known to me; much also upon my meeting with clever workmen, capable, not only of entering into my ideas, and executing without further trouble any piece of decoration that may be required, but also, as has not seldom happened to me, of suggesting valuable hints during the progress of the work. So far indeed am I from wishing you to decide at once in favour of what I propose, I am most of all solicitous that you should as completely comprehend not only the general scheme, but the contemplated effect of every part. Undoubtedly it is very pleasant to an architect to meet with an employer disposed to give him carte-blanche and permission to follow out his own ideas unrestrictedly; yet it is still more delightful to meet with one who, instead of merely passively acquiescing, assents from conviction after deliberate study of the ideas submitted to him, and from the lively interest he takes in them.
If I have ventured to propose marble, gilding, fresco painting, and glass-mosaic, do not be alarmed at the seeming extravagance, or imagine that any great expense will be incurred. In architecture the most durable materials are the most economical, and they carry with them a nobleness of appearance not attainable by even lavish ornaments, costly at first, yet of a perishable nature. Consider what large sums are expended in the course of a few years in keeping up houses that have to be repaired or refitted up from time to time as regards all but their bare walls, in consequence either of the materials getting soiled and shabby, or of the changes of fashion, which having been the only guidance in matters of taste at first, must continue to be consulted and conformed to, otherwise the whole looks out of date; whereas, that which is originally beautiful, independently of any particular fashion of the day, will so remain, let the caprice of fashion change as it will. I do really believe there are many rooms that would have cost their owners less, had they been entirely lined with marble, and otherwise ornamented with fresco49 painting and mosaic, than they have done in consequence of being furbished up every now and then by decorators and paper-hangers, and often in very questionable taste, while after all, the effect for the time is at the best of an inferior kind.
Besides by economy and a little dexterity of management even materials may be obtained at a comparatively moderate cost: works in Carrara marble, for instance, may be executed in Italy from designs sent over for that purpose, at about half the price, including freight and duty, which they would cost in England. The only inconvenience is that they cannot be furnished so promptly, it being requisite that the orders for them should be given some time beforehand. You will perhaps recollect the circumstance I have stated in respect to this matter in my "Architectura Domestica."
As to gilding—oil-gilding is cheaper than water-gilding; which last has only the advantage of looking more brilliant than the former at first. Fresco painting, again is less expensive than any mode of painting in oil; for it necessarily demands far greater rapidity of execution, and the effect being produced at once, instead of the work proceeding through all the different stages from dead colouring to the last finishing. How very poor a succedaneum for fresco painting is Gobelius tapestry! in which latter the execution is entirely mechanical, giving a mere soulless plodding transcript of the original, while as some of the colours fade sooner than the rest, the whole becomes in a short time quite inharmonious. I am moreover convinced that there are many able artists now living, who would execute designs in fresco for the same price that is paid for designs in tapestry; so that durability being considered, the saving accruing from the former would be considerable. Nor is it the least important consideration of all, that art itself would be extensively benefited by the adoption of such practice. I at least am thoroughly convinced, that a single room painted in fresco by an able artist would do more for the advancement of sound art in England than a score of commissions for oil-pictures, or than a hundred so called illustrated editions of popular works, with wood cuts. Pre-eminently gifted as is England with a true feeling for colouring, there is no doubt but that her school would be able to impart a fresh vigour to fresco painting, and would set a bright example to the continent in this branch of the art.
Yours, &c.
A. C.
N.B. Some further observations of M. de Chateauneuf's, in defence of his views regarding the fit style of architecture for a modern house, and also his design for the interior, have been omitted: I regret this, and so, I think, will the reader; the additions, however, would have made the work too expensive. The plates at the end will give a clear idea of the general plan and the elevation, and the last plate contains the proposed alteration of the tower, and omitting the lake. Editor.
TO CHARLES LOCK EASTLAKE, ESQ. R.A. Etc.
My Dear Sir,
AT length I write to claim the performance of your promise, viz. that you would give me your advice as regards the decoration of the house designed by M. de Chateauneuf, the drawings and plans for which you have seen. After some discussion, and a struggle on my part in favour of the Elizabethan, the Perpendicular-gothic, or whatever the style is to be designated, M. de Chateauneuf has triumphed, and the Italian, or revived antique, (essentially the Grecian,) has been finally agreed on.
You are aware how strongly I feel that one of the best modes of advancing the fine arts, is by paying greater attention to the interior decorations of our houses, than has hitherto been the fashion in England. The best proof of your own opinion on this subject, is the kindness with which you51 devoted much time and labour to the designing and executing for me the Pompeian room so deservedly admired. Entertaining this view on the subject of ornament, makes me the more anxious to take all possible pains in selecting the style of decoration, so as the house should prove that its owner is a lover of art, and that it should, as far as is compatible with a reasonable economy, be considered in some degree as a pattern of what might be accomplished in the matter of decoration. I never think on the subject without calling to mind the principles laid down for the ornamenting a country house, in Mr. Rogers's "Invitation to a Friend:" indeed, looking to his intimate knowledge of the whole circle of fine arts, and lastly, the specimen of refined taste which his own town house exhibits, my beau ideal is a house decorated under his direction; but as this cannot be obtained, I trust that you, who possess so much of his spirit and refinement, will, as far as may be compatible with your engagements, afford me the benefit of your assistance. Although the subject of decoration, both as regards houses and public buildings, has been hitherto much neglected in this country, I think now every one is becoming fully alive to its importance. The establishment of the Government School of Design, in which, for the first time in England, the art of design, as applied to decoration, is systematically taught;—the opportunity afforded by the building of the Houses of Parliament;—the Committee of the House of Commons, which has already reported on the subject of their decoration;—and the Royal commission entrusted with the further consideration of the subject,—cannot fail to produce within a few years a great alteration in the views and taste of the public. I may here observe, that the School of Design, and the training of young workmen, will mainly tend to assist those who may be inclined to give up the ornamenting their saloons and halls with cheap printed papers, by producing persons who will be able, at a moderate cost, to execute the original designs of eminent artists, or to copy the great works of antiquity. Hitherto, except when foreigners were introduced, it has been scarcely possible to obtain the assistance of workmen capable of executing anything beyond the commonest and simplest scrolls or straight lines; or if such assistance were obtained, it could only be procured at a cost which put any extensive scale of decoration beyond the reach of any but the affluent.
As regards the style and mode of execution of the proposed decorations, I should, of course, wish to be guided by your judgment. Whether it may be expedient merely to copy or adapt from known examples, such as the baths of Titus, and the paintings of Pompeii, or from the great masters of52 modern times, such as the designs of Raphael and Giulio Romano;—or whether an entirely new style, founded on a study of the general principles of art as applied to decoration, should be attempted, is for you to determine. Again, it may be a question, whether in different rooms a different course should be pursued, for the sake of variety. Respecting the vehicle, whether encaustic, fresco, or oil, or all three, should be used, must be determined by you.
You will observe there is the outer hall, and staircase, the inner hall, the library, the two drawing rooms, and the dining room, all requiring your attention.
The library, I should wish to be devoted as far as possible to art, especially as the books it will contain relate principally to painting and sculpture.
I remain yours very sincerely,
H. B.
P. S.—I should state that this application is made to you, with the perfect assent, nay, indeed, at the request of M. de Chateauneuf, who is desirous that his design should have the benefit of your advice, as regards its ornament: the specimen given in M. de Chateauneuf's work on Domestic Architecture, of the embellishment of the house executed by him at Hamburgh, and indeed some observations he has sent to me, sufficiently prove that he is in nowise deficient in this important branch of an architect's duty.
My Dear Sir,
I SHOULD willingly refer you to abler advisers if M. de Chateauneuf's house were as real as it deserves to be; but although the conditions which you and the architect have proposed to yourselves have led to very definite arrangements in the structure itself, a pleasing uncertainty may be assumed to exist with regard to the decorations: in a word, I can scarcely shrink from a responsibility as ideal as the subject of our speculation.
I am sorry you have again referred to a certain "Pompeian" room; believe me, too much has been said of what you know was a rough experiment, to see the effect of a particular kind of decoration for small rooms, and which, as regards its details, can only deserve attention from the skill with which Mr. Harvey executed the animals that are introduced.
The word "decoration," however appropriate to fantastic ornaments, and in some degree to insulated figures, has, as you know, been considered vilifying when applied to works that are addressed to the mind. But, as we have no other term, we must consent to use it in both meanings. It is, indeed, important to remember, that no works of art, however elevated, can dispense with the appeal, the impressive or winning appeal, to the eye. Thus much for our definition of terms.
As a general principle in decoration, I would recommend that the eye should be solely or chiefly addressed54 where a passing glance only can be given to the work, and that the attention should be more taxed where leisure and surrounding circumstances permit or invite contemplation. The reverse of this would be manifestly wrong; but the recommendation itself is not to be understood too literally. Every display has its legitimate exuberance: the "over and above" in decoration can only be that of quality, for mere taste is supposed to define all that relates to quantity. As common poetic description sometimes exalts its subject less by accumulation than by supposing costly materials where mean ones would do, so in art the augmenting excellence ascends from sense to thought. If, therefore, the intention to afford mental pleasure is very apparent even in situations where this may appear superfluous and in a manner thrown away, the impression must of itself be elevating. But the indispensable condition is, that a gradation should still be maintained; that higher excellence should still be in reserve. What must be the character of works of art to which Raphael's Corridor in the Vatican forms the mere approach? The answer is given by the perfection of the works in the Stanze. All that is to be insisted on, therefore, is a due gradation in conformity with the principle first proposed. In the remarks that follow, I cannot strictly follow the plan of the house, but must often generalize; the observations submitted, if tenable at all, will, however, be easily applicable to your purpose.
The pavement of the halls might be enriched, but I can hardly approve the occasional practice of the ancients in placing mosaic "histories" under their feet:[6] the objections are sufficiently obvious. The forms and hues employed should be merely calculated to gratify the sight. Among other preliminary considerations, I would also include the nature of the mere surface, as well as the distinction of every apartment. Thus a pavement, however decorated, should still express the character of firmness and solidity. For this reason I would banish even the lowest kind of life, (that of plants,) and every approach to perspective. Geometrical forms would thus be alone admissible: the variety is infinite; but even here I would again exclude abrupt and irregular contrasts of colour, which have sometimes the effect of making the evenness of the surface doubtful: the last consideration is even applicable to carpets. With respect to the classic fashion of inscriptions on55 the threshold,[7] I merely remark, that letters are only ornamental in architecture when disposed symmetrically, and enclosed in a regular frame-work.
[6] The passion for this kind of decoration was carried so far that the ornamented floor of the dining-room sometimes represented the scattered fragments of a repast. Plin. I. xxxvi. c. 25.
[7] Even the Mosaic floor at the entrance to bed-rooms, had inscriptions; a pavement of this kind was found at Brindisi, with the words bene dormio.
In approving the common practice of placing statues and bas-reliefs in the principal hall, I do not depart from the spirit of our first principles. A statue has generally the advantage of being seen in various points of view, and thus commands attention in situations where paintings could not. The rich effect of bas-reliefs is sufficient to recommend them; associations of classic taste are naturally connected with the classic materials of marble or bronze; and architecture, when displayed as such, seems to acquire additional solidity by the presence of sculpture. But works of sculpture of the first excellence should be admitted to the library or drawing room, and even fragments of rare beauty should be enshrined with like distinction. For the present, however, we are in the hall. I do not recommend mixing mural painting and sculpture: no painted devices should compete injudiciously with the bas-reliefs. But let us suppose that your bas-reliefs are in the outer hall, and that you have only some sculptured vases on detached pedestals in the inner hall or corridor, then by all means decorate the walls of the latter with arabesques: to these we shall return. In the staircase, also, it will be necessary to make your election between the two arts. I will assume that you decide for painting. Few people linger in a staircase; still fewer break their necks to look at a painted ceiling. If the scene affects the eye and the imagination agreeably, this may be considered sufficient. When we see the whole Pantheon on the ceiling and walls of great staircases, this undoubtedly might be defended on the ground that a mere passing impression of magnificence is intended: but the exuberance of quantity rather than of quality is here obvious. In whatever mode the walls of the staircase are adorned, the decoration should be entirely subservient to the architectural effect. This involves a more radical objection to the mythologic crowds before alluded to, because they have frequently the effect (and intentionally so) of destroying all idea of the angles of the building. I am of opinion, on the contrary, that the decorator should dispose his paintings in shapes which shall appear to grow out of and complete the architecture. The inclination of the panelling of the wall to agree with the line of the stairs, may be considered incompatible with paintings: 56 a horizontal termination, perhaps level with the chief landing-place, is essential, and the triangular spaces, or sections of such spaces, between this and the stairs, had better be left nearly plain, and not very light in colour. Of all mistakes, that of introducing painted figures, sometimes the size of life, where living figures must so often come in contact with them, is the worst.
The compartment or compartments above the horizontal line might be painted in fresco, certainly not in oil on the wall, nor in the newly revived encaustic, at least not till it has been further tried. The figures should not extend to the angles of the walls where the staircase turns; the pseudo or real compartments which form the frames might finish at a little distance from the angle; the real wall is, in short, never to be lost sight of; and whatever merits ocular illusion may have in paintings generally, it would be injudicious to attempt it here. Where the light is unfavourable for painting, the flattest style of bas-relief is still admissible. But as you are especially desirous of having your staircase coloured, I really can propose nothing fitter to gratify the eye and imagination merely, than the more refined and at the same time familiar subjects of the Greek mythology; such as the personifications of Poetry, the progress of the Hours and of Light, and so forth. Such subjects afford the best materials for mere beauty of line and drapery, for composition generally, and, if not too statue-like, for colour; and even when they suggest no profounder range of thought, (not that their import is necessarily thus superficial,) they leave an elegant impression on the mind. The objection is, that they are old; but there would be some novelty in treating them as detached compositions, instead of beclouding and peopling the whole space in the style of the seventeenth century. It is to be remarked, that Raphael and Michael Angelo bounded their compositions of this kind by definite forms, especially on ceilings. Pietro da Cortona and the machinists generally, were as intent on destroying the connection between painting and architecture as the great masters were to preserve it.
But this separation of the compositions into compartments supposes at once a great latitude in the choice of subjects. Milton's smaller poems, and many other English sources, might be preferred to classic inventions; only it should be remembered, that fresco, from the nature of its means, is privileged to aim at the ideal rather than the actual world, and that the character of the decorations required for the place must necessarily influence the selection and treatment of the subjects. Dark effects are equally unfit for the situation57 and for the powers of fresco. In the ornamented divisions of the compartments, perhaps partial gilding might be employed with better effect than colours; on the ceiling both might be introduced, (in merely decorative forms,) unless your staircase ends in light, in which case your glass must of course be ornamented, even if colourless.
Dining rooms, strictly so called and employed, are generally unadorned with pictures: this hardly seems necessary. In theory we may admit that subjects requiring some contemplation would be out of place in a room exclusively devoted to "the table;" but portraits of celebrated individuals, and landscapes, although they cannot be duly examined in such moments, may convey associations, to which the spectator, even if not particularly conversant in pictures, is supposed to be alive at all times. Portraits of the class alluded to, as historic texts, are connected with time; and landscape, especially if founded on actual scenes, suggests the conditions of place. A room used for the purpose in question, and for nothing else, is, however, not the place where fine works of art should be bestowed; and I incline to think that this is the fittest field for small frescos and arabesques. This, in short, is one of the occasions to please the eye and the imagination merely. Accordingly, in the mode proposed, no definite idea is presented to the mind, but an air of elegant and festive splendour surrounds the guests. There should, however, be endless variety; scarcely a form should be repeated in the details, although an architectural symmetry is, as usual, to be preserved in the masses.
A dining room per se is not uncommon; but a professed and exclusive breakfast room supposes a degree of order in the family migrations, to which the muses could hardly be expected to accommodate themselves. Nevertheless, to complete my catalogue, I will suppose one; or rather I will suppose that one of your drawing rooms is used chiefly as a morning room. Indeed, without condemning a family to betake themselves to particular rooms at stated hours, it may be allowable to decorate and furnish apartments on such a supposition, by way of ensuring a marked and agreeable variety of character. Lucullus had even a series of dining rooms from the "Apollo" downwards; and we learn from Vitruvius,[8] that the opulent Romans changed the scene of their banquets according to the season of the year. The morning has its own feelings even for those whom affluence frees58 from any kind of labour. The purposes of the day are unfinished—every thing is contingent. Under such circumstances the character or subject of pictures is to be adapted to the mind—not the mind to the subject. The open face of nature by sea and land may here enliven the walls, and agree with the excursive feelings of the hour. The chase and its incidents may here triumph. The English pastoral is here strictly in its place. Solemn themes, solemn effects, should not be admitted; while all that responds to buoyancy of spirit would, on the contrary, be appropriate. It need not be gravely objected, that accidental or even average states of feeling may be little in unison with the impressions which the arts profess to give; for the same objection is frequently applicable to all of the accompaniments of civilized life, nay, to the beauties of nature, which so often appeal even to cultivated human sympathies in vain. The occasional contradiction is unavoidable, where, of two conditions, one is permanent, the other mutable.
[8] De Architect, 1. vi. c. 7.
Corridors on the ground-floor, or even upstairs in houses where pictures do not abound, may be fitly decorated with arabesques. The same kind of ornament might be applied to garden pavilions, and, in the present instance, even to your portico next the lake, if there are no statues there, but not to conservatories, where the conventional forms and tints of art would contend injudiciously with nature. In these decorations it is absolutely necessary to set out with an architectural scheme, and subdivide the spaces with some attention to congruity and subordination. In the details, pleasing masses and forms are essential, because here nothing can be concealed; there is, strictly speaking, no chiaro-scuro, no perspective: form and colour are the chief means. The possibility of approaching and even coming in contact with the painted wall, suggests the necessity of a small scale in the objects, and of precision and delicacy of outline; yet, from the circumstance of the forms and hues being relieved on a light ground, they are at the same time effective at a considerable distance.[9] Stucco ornaments in very low relief, mixed with the painting, are admissible, (as they can hardly be said to come under the head of sculpture,) but they require a strong light to display them.
[9] The best examples of decorations of this kind are now accessible to all, in a recently published work by Thurmer and Gutensohn, containing the arabesques of the Vatican, the Farnesina, the Villa Lanti, and the Villa Madama: edited by Ludwig Gruner, to be had of Mr. Murray, Albemarle Street: with this work may be classed the publications of Zahn, on the ornamental inventions of Giulio Romano at Mantua, and on the decorations of Pompeii.
I cannot recommend frescos for the sitting rooms of dwelling houses.59 The sum of enjoyment to be derived from one or two large paintings is not to be compared to that which the contributions of various schools can afford, even assuming the highest merit. It is true, frescos like those of the Villa Madama near Rome, from the school of Raphael, may be beautifully executed in a small size, but they still seem fitter for open galleries than for rooms. (I have only ventured to except the dining room.) The impossibility of change in such situations is an unpleasant feeling; in a public building, on the contrary, it is satisfactory, and a staircase approaches this character. I may here observe, that a staircase covered with ancient family portraits is seldom agreeable to the eye; indeed if it were a desirable kind of decoration, centuries must often elapse before the materials would be ready. The first impression on seeing a quantity of portraits in a staircase is, that it is an accidental if not a troublesome accumulation, and that there is no room for the pictures in better situations. Far be it from me to speak with any disrespect of the taste for family portraits so peculiar to the English. The domestic "charities," it has been often observed, are pleasingly fostered by them; but I hold it not always necessary to place the portraits of the household in prominent situations. The interest such works inspire is in most cases strictly domestic and private. The portrait has, in short, no pretension to be conspicuous to all eyes till the individual is celebrated, or till the work of art is canonized. These conditions, I admit, may often exist from the first; but then, à fortiori, a staircase is not the place for such a production. The Romans appropriated one of the most public rooms of the house (the tablinum) to genealogies, records, and inscriptions relating to the family history, and covered the remaining space—often the atrium as well—with the portraits and busts of their ancestors.[10] This does not appear to have been the custom with the Athenians.
[10] Juv. Sat. 8; Plin. 1. xxxv. c. 2.
We have decided against frescos in what are called sitting rooms: your oil pictures are, however, to be selected. I shall consider the library as distinct from the drawing rooms; but it is quite possible to blend their character. The library in the ducal palace at Urbino, had a room or study adjoining it, decorated with portraits (in this case, by the way, they appear to have been frescos) of learned men of all ages. In a library, literally to be used as such, pictures of extensive interest seem to be inappropriate. They may be said to divert the attention from the business or amusement of the place. But the60 portrait of the poet, or the sage, is a source of pleasing and elevating associations, and may sometimes command a deep interest. The library may contain the cabinets of gems and medals, the collections of engravings, the terra cottas, &c.; or if the drawing room is ample enough, all these treasures of virtù may be deposited there. I prefer a library without coloured decorations; the wood-work may be carved in flat relief, even to the panels of the walls; a mode of decoration now beautifully supplied by embossed leather, which need not be dark in colour. Whatever colour appears, except in the portraits, miniatures, or illuminations hung around, should be in the books; these should strike the eye, and be, so to speak, in the foreground of the picture. Vases, or busts, may surmount the cases. The ancients preferred the latter; and many, like Asinius Pollio, collected in their libraries the authentic, and even imaginary, portraits of great men. Among the latter was the bust of Homer.[11] The light is generally so unfavourable in the upper part of modern rooms, that busts when placed so high, are reduced to mere ornaments, and require the addition of names. This, indeed, is not objectionable in any case, for the interest of a portrait commonly depends on historical associations. I see no objection even to inscribing both the subject and the name of the master under works of art generally: a volume bears its title and author's name; and pictures, to many, are as sealed books till inquiry is stimulated or interest quickened by similar means. When the description is too long to admit of this, the words "see Catalogue, No. —" might be added.
[11] Plin. 1. xxxv. c. 2.
If colour is admitted any where in the library, it might be in subjects on the ceiling, allowable here, if at all, in the region of easy chairs and occasional meditation; perhaps too, to a certain extent, in the windows. The introduction of subjects on ceilings has not been recommended generally, but in the system of arabesque painting the universal decoration of the walls requires to be carried into the ceiling. Sculpture, from the reasons already given, or rather in accordance with the same taste, is quite admissible in the library. Cicero frequently writes to his friend at Athens, to send him any good works in sculpture, fit to adorn the library and residence of a man of letters.[12]
[12] Epist. ad Attic. 1. i. c. 3, 8, 9, 10, &c. It is remarkable that a bas-relief, in the finest Greek style, representing a philosopher reading, was found in the ruins of Cicero's Tusculan villa. Some English sculptors and myself, during an excursion from Rome, first, I may almost say, discovered this marble, walled into the staircase of the Episcopal palace at Grotta Ferrata. A mould was afterwards taken from it, through the exertions of Mr. Gibson, and the cast is now common in Rome. The marble was, I think, afterwards removed to the Vatican.
61But the choicest works of taste should unquestionably be in the room most occupied in hours of calm seclusion and leisure; and in order to find wall enough for the pictures, this may be assumed to be the principal drawing room. Here, therefore, may be the best specimens of painting, and even of sculpture, if the space permits: here, the chimney-piece may be by Flaxman, and the doors of the print-case by Stothard. The pictures cannot be very large, on account of their number and the size of the room. This, the objection which in a great measure excludes the grandest works from our dwelling houses, was met by the Italians, and by Nicolo Poussin, by reducing the grand to domestic conditions. If you have only small pictures, however, you cannot cover the upper part of the walls, for you are not supposed to have any work of art here which can be sacrificed.
Enlightened connoisseurs see excellence both in the Dutch and Italian schools, but they are often embarrassed in arranging them together. I am convinced, however, from instances I have seen, that this is to be accomplished satisfactorily. It is sometimes argued, that no one reads Milton and Crabbe alternately; but this is hardly a parallel case. Many go to a gallery to look at a particular picture, and see nothing else; the eye is blind when the attention is not actively exerted. So in a room, the spectator selects his favourites—his favourites at least for the time, and scarcely looks beyond them. At another moment, he will perhaps direct his undivided attention to works which he passed over on a former occasion. A certain congruity is sometimes to be accomplished, by attending to impressions rather than names and schools. Many an Italian picture would not be out of place with the Flemish and Dutch school; while Vandyck, Rembrandt, Cuyp, and others, might sometimes harmonize in many respects with the genius of the south. The arrangement of pictures comprehends some of the difficulties which the artist experiences in the production of one; for a certain balance and repose are as essential for the eye, as an harmonious impression for the mind. Much must, therefore, depend on the nature of the materials; and the (assumed) different character of your two drawing rooms may here be an advantage.
You, I know, will not ask whether the productions of the English school are admissible in this "Tribune" as well as elsewhere. Such is the variety62 of English art, that the more refined Dutch, the Flemish, and the Italian taste, may be recognized in it by turns, and no modern pictures harmonize with the scheme of colour and effect which characterize the master-works of former ages so well as the English of the last century. Thus much of schools, and those we have not mentioned may be tried by the same tests.
With regard to subjects, the mind as well as the eye must be respected: the ethos of painting is quite compatible with familiar and homely subjects; and, on the other hand, the greatest Italian masters have sometimes sought for poetic impressions in regions where it would be unsafe to follow them. But, with this reservation, you must not be exclusive: various minds, or the same mind in various moods, will like variety of aliment. In other situations, which we have had occasion to consider, the subject has been in a great degree calculated on the probable feelings of the spectator; here, the subject is independent, because the attention is free, and the whole art appeals by turns to the whole range of thought. The leisure of cultivated human beings should be so far complimented as to assume that all the strivings of the mind are worthy to be ministered to. It is a mistake to suppose that solemn or even terrible themes are always objectionable; I believe it will be found that the grander efforts of invention (I speak of works by the ancient masters) are very generally appreciated by the gentler sex. On the other hand, the fondness for humbler subjects is not always referable to the homeliness of the incident represented. The subject often acquires elevation, and commands respect, by the evidence of mental labour and power in the artist. To a true connoisseur, this skilful application of principles derived from universal nature, supersedes the mere subject; and the idea which he recognizes, whatever may be its vehicle, is grand and poetical. Less experienced observers are often deceived by the title of pictures: "A Court Yard" (de Hooghe) sounds unpromising enough; but when it is seen that the painter has represented daylight with magical truth, and that all is subservient to this, his aim must be acknowledged to be dignified. It is to be observed too, that the influence of this high aim on the part of the artist, often extends itself to the treatment of the materials which constitute his ostensible subject. It is easy to see from the unaffected feeling, as well as from the relative character of the execution in some (though not all) of the Dutch masters, that the real subject of their meditation was noble. I should like to see a catalogue raisonné on the principle to which I have alluded, distinguishing the title of a picture from the real intention of the artist. Many frequenters of the National Gallery criticise Reynolds's Three Graces, whence it appears they are not sufficiently63 aware that the personages in question are portraits of three fashionable ladies of the day, under the name of the Graces, &c. If some titles were translated, what a contrast the real import of the work would present to the actual name! What a change, for instance, from the modesty of some of ——'s titles, "Crossing the Brook,"—"Coal-barges in the Thames: Night," to the beauty and grandeur that would have to be clothed in language! But what language would be adequate?
With respect to the colour of the walls on which pictures are hung, my opinion is singular without being novel. I am quite aware that it is necessary to consider wall, pictures, gold frames, and all, in relation to general effect: the gold, especially, is to be treated as part of the coup d'œil. But, though I remember examples of light walls hung with pictures, producing an agreeable effect, I prefer a colour which displays the pictures more, and must also maintain, that living pictures are seldom seen to the best advantage against a bright ground; the quantity of actual light (it may always be assumed) making reflected light unnecessary: my idea, in one word, is, that the wall should not be so light as the lights of the pictures; and this supposes a sufficiently low tint. Of such colours, the most agreeable is the long established rich red, which might be sufficiently allied to purple, to give value to the gold frames and the warm colour of the pictures. I need not recommend you to avoid too much unbroken polish in the frames, since this is now very generally disapproved of.
I have, as you see, exercised, apparently without scruple, the dictatorial authority with which you have invested me; but the frequent recurrence of "my opinion" becomes painful even to the arbiter who has a carte blanche to lay down the law. As a relief, I intended to have given you some extracts from an Italian ethical work (printed about the middle of the 16th century[13]) in which there is a chapter on the "ornamenti della casa;" but they would have been, perhaps, little suited to your purpose, and I have already far exceeded the space I ought to occupy. As I may not, however, again have an opportunity of alluding to this work, which is not unimportant in the history of Italian art, I wish briefly to advert to one or two points.
[13] Castiglione Saba, Ricordi ovvero Ammaestramenti, &c. Milano, 1559.
The list of pictures given seems to prove that the Italians long remained faithful to the older masters. The names of Titian and Coreggio do not appear! (I hope you will not follow the Catalogue in such defects.) This is not to be explained, by supposing that the writer speaks for himself only; for64 he repeatedly says, "Some like to ornament their rooms with the works of ——, others, with those of ——," and so on, as if professing to give a variety of tastes. I can only account for this in one way: the author lived in Milan, and it would appear that the taste of Leonardo, closely allied as it was to that of the schools of Central Italy, long continued to influence the Milanese amateurs as well as the Milanese painters.
I pass over the musical instruments, which, beside their chief use, "piacciono assai al'occhio," especially when made by Lorenzo da Pavia, or Bastiano da Verona. Donatello, Michael Angelo, Alfonso Lombardi, and Cristoforo Romano, are the sculptors he enumerates. The terra cottas are by Pagaino da Modena; the bronzes by Verocchio and Pollaiuolo. Beside antique medals, he admires those of Giovanni Corona of Venice, together with the chasings of Caradosso. Among the works of the latter, he mentions a silver inkstand in basso rilievo, "fatica d'anni venti sei! ma certo divina." Cameos and intaglios should be, he thinks, by the hand of Pietro Maria, Tagliacarne, &c. but above all by Giovanni di Castello.
Now for his list of painters: Filippo Lippi, Mantegna, Giovanni Bellini, Leonardo da Vinci, although, he adds, he left but few works.[14] Then follow the younger Lippi, and Perugino, and, heralded with appropriate honours, Raphael, accompanied by Giulio Romano. Pietro della Francesca, and Melozzo da Forlì, are characterized well, as indeed are all the painters. He next mentions some artists, all monks, who wrought in inlaid wood; (commesso, tarsia;) but his highest praises in this department are reserved for Fra Damiano da Bergamo, the artist of the choir of S. Domenico at Bologna. The engravings he speaks of are by Albert Durer and Lucas van Leyden.
[14] The author says he was an eye-witness of the Gascon crossbowmen making a target of Leonardo's model for the equestrian statue of Francesco Sforza.
Tapestries from Flanders, carpets from Syria, Turkey, and Barbary, figured leather from Spain, are all admitted to be desirable ornaments: "Tutti questi ornamenti ancora commendo perchè arguiscono ingegno, politezza, civilità e cortegiania." The author next describes his own treasures; but, except a head by Donatello and some rare books, he has nothing to boast of. His tastes are characteristic of the age: though a priest, his ambition is to have a collection of arms and armour, if wrought by a good Italian or German armourer; and above all, he aspires to the possession of a large steel mirror, of the kind made by Giovanni della Barba, a German: the mirrors of glass then in use, were, it appears, very small and imperfect. The author's judicious65 observations (to which I refer you) on the chief use of mirrors, may reconcile you to their occasional introduction over chimney pieces, which, for the rest, are by no means the best places for pictures.
The chapter ends with a pleasing story about a mirror and a lady, and Galeazzo Visconti, Duke of Milan, a story not unworthy to be a pendant for "Collalto,"[15] and which might have furnished a subject for the graceful pencil of Stothard; but it is time to make an end.
I am yours faithfully,
C. L. Eastlake.
[15] See Rogers's Italy.
finis.
Maistre, il sembleroit que ne fussiez grandement sage de nous escrire ces balivernes!
london: c. whittingham, tooks court,
chancery lane.
Transcriber's note:
The following corrections have been made:
p. 22: "expect too much" Period added after much; "pure Pompean house" Pompean changed to Pompeian;
p. 36: "into a small anti-room" anti-room changed to ante-room;
p. 40: "not a toothach" toothach changed to toothache;
p. 42: "statues and bas reliefs" bas reliefs changed to bas-reliefs;
p. 48: "particlar fashion of the day" particlar changed to particular;
p. 50: "LOCK EASTLAKE, ESQ," Comma after ESQ replaced with period;
p. 55: A misplaced line.
The original text is [relevant part enclosed
by number signs (#)]: "In approving the common practice of placing
statues and bas-reliefs in statue has generally the advantage of
being seen in various points of view, and thus commands attention in
situations where paintings could not. The rich effect of bas-reliefs
is sufficient to recommend them; associations of classic taste are
naturally connected with the classic materials of marble or #the
principal hall, I do not depart from the spirit of our first
principles. A# bronze; and architecture, when displayed as such,
seems to acquire additional" This part was moved to after "In
approving the common practice of placing statues and bas-reliefs in";
Footnote 8: "De Architect." Period replaced with comma;
Everything else retained as printed.