The Project Gutenberg EBook of Dictionnaire raisonné de l'architecture française du XIe au XVIe siècle (6/9), by Eugène-Emmanuel Viollet-Le-Duc This eBook is for the use of anyone anywhere at no cost and with almost no restrictions whatsoever. You may copy it, give it away or re-use it under the terms of the Project Gutenberg License included with this eBook or online at www.gutenberg.org Title: Dictionnaire raisonné de l'architecture française du XIe au XVIe siècle (6/9) Author: Eugène-Emmanuel Viollet-Le-Duc Release Date: December 28, 2009 [EBook #30786] Language: French Character set encoding: ISO-8859-1 *** START OF THIS PROJECT GUTENBERG EBOOK DICTIONNAIRE *** Produced by Michel Laglasse, Rénald Lévesque and the Online Distributed Proofreaders Europe at http://dp.rastko.net.


PARIS
B. BANCE, ÉDITEUR
RUE BONAPARTE, 13.
MDCCCLXIII


GÂBLE, s. m. Terme de charpenterie appliqué à la maçonnerie. Il y a encore une association de charpentiers à laquelle on donne le nom de Gavauds, et, dans le Berri, un homme qui a les jambes arquées en dehors s'appelle un gavaud. Le gâble est originairement la réunion, à leur sommet, de deux pièces de bois inclinées. Le gâble d'une lucarne comprend deux arbalétriers assemblés dans un bout de poinçon et venant reposer au pied, à l'extrémité de deux semelles (1).

Nous avons vu ailleurs (voy. CATHÉDRALE, CONSTRUCTION) qu'à la fin du XIIe siècle et au commencement du XIIIe, on reconstruisit, dans les villes du domaine royal et du nord de la France, toutes les cathédrales et un grand nombre d'églises paroissiales. Bien qu'en commençant ces édifices les ressources fussent abondantes, lorsqu'on atteignit le niveau des voûtes hautes, l'argent vint à manquer, ou du moins ne put-on le recueillir que beaucoup plus lentement. Il fallut donc employer des moyens provisoires de couvertures qui permissent d'abriter les constructions faites, tant pour éviter les dégradations causées par la pluie et la gelée que pour livrer ces édifices au culte. D'ailleurs, dans les très-grands monuments, comme la cathédrale d'Amiens, par exemple, il eût été imprudent d'élever les piles, les grandes fenêtres, le mur et le bahut qui les surmontent, de poser la charpente supérieure sur ces murs isolés, ou plutôt sur ce quillage, sans bander les grandes voûtes et les arcs-boutants qui les contre-buttent; car la stabilité de ces sortes d'édifices ne consiste qu'en un système d'équilibre, de pressions opposées, dont nous avons suffisamment expliqué le mécanisme à l'article CONSTRUCTION. Il fallait donc souvent maçonner les hautes voûtes parties par parties, puis attendre la récolte des ressources nécessaires pour élever, les murs-goutterots et les grandes charpentes. Alors on couvrait provisoirement chaque portion de voûte terminée par le procédé le plus simple et le plus économique: au-dessus des arcs-formerets, on élevait des gâbles en charpente dont le sommet était au niveau d'un faîtage posé sur des potelets suivant l'axe principal de la voûte. On réunissait ces sommets de gâbles avec ce faîtage, on chevronnait, et on posait du lattis et de la tuile sur le tout (2) (voy. le tracé A).

Les constructeurs avaient eu le soin de réserver, dans les reins des voûtes, des cuvettes aboutissant à des gargouilles jetant les eaux directement sur le sol, comme à la Sainte-Chapelle de Paris, ou dans les caniveaux de couronnements d'arcs-boutants, comme à Notre-Dame d'Amiens (v. le tracé B, en C). Ainsi pouvait-on attendre plusieurs mois, plusieurs années même, avant de se mettre à élever les tympans au-dessus des fenêtres, les bahuts et les grandes charpentes; les voûtes étaient couvertes, et les maçonneries n'avaient rien à craindre de la pluie, de la neige ou de la gelée. Dès que les approvisionnements accumulés permettaient de continuer l'oeuvre, entre ces gâbles, et sans détruire les couvertures provisoires, on élevait les piles D et les portions de bahuts G; sur ces portions de bahuts, dont l'arase supérieure atteignait le niveau des faîtages des couvertures provisoires, on faisait passer les sablières du comble définitif (voy. le tracé A, en H), on posait la grande charpente, on la couvrait et, celle-ci terminée, on enlevait par-dessous les couvertures provisoires, les gâbles de bois, et on posait les tympans sur les formerets ou archivoltes de fenêtres, ainsi que les bouts de corniches et de bahuts manquants. Des tuyaux ménagés dans les piles D (voy. le tracé B) jetaient les eaux des chéneaux E dans les gargouilles C, qui avaient ainsi été utilisées avec les couvertures provisoires et avec les couvertures définitives. Mais les yeux s'étaient habitués à voir ces gâbles de bois surmontant les formerets des voûtes, interrompant les lignes horizontales des corniches et bahuts. Lorsqu'on les enlevait, souvent les couronnements des édifices achevés devaient paraître froids et pauvres; les architectes eurent donc l'idée de substituer à ces constructions provisoires, dont l'effet était agréable, des gâbles en pierre. C'est ce que Pierre de Montereau fit à la Sainte-Chapelle de Paris dès 1245 1. Cet exemple fut suivi fréquemment vers la fin du XIIIe siècle, et notamment autour du choeur de la cathédrale d'Amiens; puis, plus tard, à Cologne.
Pendant la seconde moitié du XIIIe siècle, les gâbles de pierre devinrent ainsi un motif de décoration souvent employé. Les portails nord et sud du transsept de la cathédrale de Paris, dont la construction date de 1257, sont surmontés de gâbles qui ne remplissent aucune fonction utile, mais qui terminent les archivoltes par de grands triangles en partie ajourés, rompant la monotonie des lignes horizontales de ces immenses pignons.

Voici (3) le gâble du portail méridional de Notre-Dame de Paris. La balustrade et la galerie passent derrière ce gâble, qui n'est autre chose qu'un mur triangulaire isolé de 0,33 c. d'épaisseur. D'autres gâbles, plus petits, surmontent les niches qui accompagnent ce portail, et forment ainsi une grande dentelure à la base de l'édifice. Nous avons dit ailleurs 2 comment les constructeurs du moyen âge s'étaient servis de ces gâbles décoratifs pour charger les sommets des arcs-formerets et empêcher leur gauchissement.
Les trois portails de la cathédrale d'Amiens, très-profonds, compris entre de larges contre-forts saillants, sont couverts par des combles à double pente fermés par des gâbles pleins, donnant un angle presque droit au sommet et décorés seulement par des crochets rampants et un fleuron de couronnement. À la cathédrale de Laon, la même disposition a été adoptée; mais l'architecte de la façade de la cathédrale de Reims, vers 1260, voulut, tout en conservant ce principe, donner aux gâbles des trois portails une richesse sans égale.

Le gâble du portail central (4) représente le Couronnement de la Vierge de grandeur colossale, surmonté d'une succession de dais s'étageant, en manière de gradins, jusqu'au sommet du triangle. La statuaire est ronde-bosse; les saillies sont prononcées au point de faire presque oublier la forme primitive du gâble. Ici les lignes de l'architecture sont détruites par la sculpture.
Le XIVe siècle, tout en donnant aux gâbles une grande richesse de détails, eut toujours pour principe, cependant, de laisser aux lignes de l'architecture leur importance nécessaire. Le gâble du portail de la Calende, à la cathédrale de Rouen, est un des mieux composés parmi ceux qui nous restent de cette époque (5).

Il est entièrement ajouré au-dessus de la galerie, et orné de bas-reliefs dans des lobes au-dessous; ses rampants sont garnis de redans délicats, qui ont remplacé les crochets, comme au portail méridional de la cathédrale de Paris.
Au XVe siècle, les rampants des gâbles deviennent plus aigus encore, plus épais, plus chargés de moulures, et les découpures intérieures plus ajourées et plus maigres. À la fin du XVe siècle, souvent les rampants des gâbles forment des angles curvilignes concaves, en manière d'accolades allongées, au-dessus des archivoltes. (Voy. CONTRE-COURBE; CONSTRUCTION, fig. 106, 108; FENÊTRE, fig. 19, 26; FLÈCHE, fig. 4,6; LUCARNE, PIGNON.)
Note 1: (retour) Voy. FENÊTRE, fig. 19.
Note 2: (retour) Voy. CONSTRUCTION, fig. 108.
GALERIE, s. f. Passage couvert, de plain-pied, donnant à l'intérieur ou à l'extérieur, servant de communication d'un lieu à un autre, de circulation, aux différents étages d'un édifice; c'est plutôt l'aspect monumental que le plus ou moins de largeur et de hauteur qui fait donner le nom de galerie à un passage. La dénomination de galerie entraîne avec elle l'idée d'un promenoir étroit relativement à sa longueur, mais décoré avec une certaine richesse. On donne aussi le nom de galerie à tout passage de service, très-étroit d'ailleurs, mais très-apparent et faisant partie de l'architecture d'un édifice. On dit la galerie des Rois à Notre-Dame, la galerie des Latéraux de la cathédrale de Rouen, bien que cette dernière galerie ne soit qu'un très-fâcheux passage. Quant aux galeries qui surmontent les bas-côtés dans les églises, les archéologues sont convenus de leur donner le nom de triforium, que nous leur conserverons sans discuter la valeur de cette dénomination.
Nous diviserons les galeries en galeries de service contribuant à la décoration extérieure ou intérieure des monuments, et en galeries promenoirs, dans les châteaux ou les édifices publics ou privés.
Les architectes du moyen âge établissaient, dans leurs grands monuments, des couloirs de service à différentes hauteurs, afin de rendre la surveillance et l'entretien faciles. Les hautes façades des cathédrales, par exemple, étaient divisées en plusieurs étages de galeries qui permettaient de communiquer de l'intérieur à l'extérieur, d'entretenir les parements, de réparer les vitres des roses, et de décorer au besoin les façades, à l'aide de tentures, lors des grandes cérémonies. Nos cathédrales françaises du Nord, bâties vers le commencement du XIIIe siècle, celles dont les façades ont été terminées, sont décorées de galeries superposées. À Notre-Dame de Paris, la façade, qui a été construite entre les années 1210 et 1225, présente, au-dessus des trois portails, une première galerie, fort riche, dont les entre-colonnements sont remplis de statues colossales des rois de Juda. Cette galerie est un véritable portique couvert par un plafond de dalles épaisses. Au-dessus est la galerie de la Vierge, sous la rose; celle-ci est découverte et n'est qu'une terrasse munie d'une balustrade. Une troisième galerie, en manière de portique très-svelte et très-riche, ceint la base des deux tours et les réunit. Sur la façade de Notre-Dame d'Amiens, au-dessus des trois porches, est une galerie de service couverte, richement décorée d'arcatures et de colonnettes; la galerie des Rois la surmonte, et celle-ci supporte une terrasse comme à Paris. À Reims, à la base des deux tours occidentales, au-dessus de la rose centrale, est la galerie découverte dite du Gloria. C'est de cette galerie qu'à certaines fêtes de l'année, devant le peuple assemblé sur le parvis, le clergé de Notre-Dame entonnait le Gloria in excelsis... Une longue suite de statues colossales de rois enveloppe la base du pignon et des tours au-dessus de cette terrasse. À Notre-Dame de Chartres, on observe une disposition analogue, mais dans des proportions beaucoup plus simples, et ne s'étendant qu'entre les deux tours. On peut donc ainsi se faire une idée de ce que sont les galeries dans les édifices du moyen âge. Nous allons entrer dans de plus amples détails sur ces parties importantes des constructions.
Galeries des Rois. La plus ancienne galerie des Rois à laquelle on puisse donner ce nom, en ce qu'elle sert en même temps de passage pour le service et de décoration, est celle de la façade de Notre-Dame de Paris; on ne saurait lui assigner une date postérieure à 1220.

Elle se compose d'une suite de piles (1) portant un plafond de pierre sur des encorbellements, et devant chacune desquelles est plantée une colonne. Les rois sont posés en A et abrités sous l'arcature portée par ces colonnes.

La fig. 2 donne cette galerie en coupe; les statues des rois sont placées en A, un peu en retraite du socle des colonnes, et en B est une circulation pour le service, derrière les piliers de renfort posés au droit des colonnes. La terrasse dite de la Vierge est en C.

La fig. 3 présente l'aspect extérieur de la galerie. Par son style comme par sa composition, cette galerie est certainement la plus belle de toutes celles qui existent sur les façades de nos cathédrales françaises. On observera comme cette arcature, basse, simple par la composition générale, brillante par ses détails, forme un encadrement favorable autour des statues des rois. Quant à son effet sur l'ensemble de la façade, il est excellent. La galerie des Rois de Notre-Dame de Paris trace une zone riche et solide cependant au-dessus des trois portails et les couronne très-heureusement. La statuaire est bien à l'échelle du monument, paraît grande, sans pour cela rapetisser les membres de l'architecture 3.
Le style de la galerie des Rois de Notre-Dame de Reims est tout autre.
À Reims, cette galerie remplace celle qui à Paris enveloppe la base des tours: elle n'est qu'une décoration et ne fournit pas une circulation continue. La construction date de la fin du XIIIe siècle, la statuaire en est médiocre. Cette galerie étant donnée en détail dans l'ouvrage de M. J. Gailhabaud 4, il ne paraît pas nécessaire de la reproduire ici.
Quant à la cathédrale d'Amiens, la disposition de sa galerie des Rois est fort belle. Comme celle de Paris, elle surmonte les trois portails; mais à Amiens, entre la galerie des Rois et les gâbles des porches, est une galerie intermédiaire du plus beau style de l'art du XIIIe siècle (1235 environ).

La galerie basse (4), celle des Rois et la terrasse supérieure A sont praticables et communiquent avec les étages intérieurs des tours. Derrière la galerie basse s'ouvrent de grandes baies sans meneaux, qui éclairaient la nef centrale, à travers une autre galerie intérieure, avant la pose de la tribune des grandes orgues. D'autres fenêtres courtes sont ouvertes derrière la galerie des Rois; celles-ci donnent sur une seconde galerie qui surmonte la galerie inférieure.

Le plan (5) explique cette belle disposition, qui, malheureusement, est masquée aujourd'hui par le buffet d'orgues. On remarquera (fig. 4) que la galerie inférieure porte sur des piles composées de trois colonnes groupées devant un pilastre; des arcs de décharge richement décorés de redans et d'animaux sculptés sur le devant des sommiers reposent sur ces piles. Entre ces arcs de décharge, l'arcature est libre: c'est un simple remplissage à jour porté sur une colonne monolithe et maintenu seulement sous l'intra-dos des archivoltes par deux tenons dépendants des deux morceaux supérieurs du cercle. Ainsi l'architecte n'avait pas à craindre la rupture des parties de ce remplissage à jour sous la charge ou le tassement des parties supérieures. Une seule assise de pierre sépare la galerie basse de celle des Rois. Le dallage du passage découvert supérieur porte sur des linteaux qui forment les sommiers de l'arcature des rois. Chacun de ces sommiers est taillé en caniveau et rejette extérieurement les eaux du dallage par les têtes de gargouilles qui décorent les faces au-dessus des tailloirs.
Galeries de service des églises. Avec la galerie des Rois de la cathédrale d'Amiens, nous voyons une de ces galeries de service et décoratives à la fois qui venaient couper les lignes verticales des façades. Ces galeries, pendant le XIIIe siècle, sont passablement variées dans leur composition et leurs détails; elles prennent une importance considérable comme la grande galerie à jour de la base des tours de Notre-Dame de Paris, comme celles du portail de Notre-Dame de Dijon, ou elles ne sont que des portiques bas, trapus, comme la galerie de la façade de Notre-Dame de Laon.
La question d'art et de proportions domine dans ces cas la question de service. Cependant ces galeries ont toujours une utilité. Dans leurs grands édifices, les architectes du moyen âge établissaient des moyens de circulation faciles à des niveaux différents, afin de pouvoir surveiller et entretenir les constructions, les couvertures et les verrières, sans être obligés, comme on le fait aujourd'hui, de poser des échafaudages dispendieux et nuisibles, à cause des dégradations qu'ils occasionnent aux sculptures et parties délicates de l'architecture.
Les deux galeries superposées de la face occidentale de l'église Notre-Dame de Dijon (XIIIe siècle) sont remarquablement belles, comme composition et sculpture. Nous donnons (6) l'une de ces galeries, surmontée d'une haute frise d'ornements en façon de métopes posées entre des figures saillantes. Ces galeries étaient destinées à relier la base de deux tours qui n'ont jamais été élevées.

À l'extérieur des églises rhénanes du XIIe siècle, sous les combles, règnent souvent des galeries de circulation, particulièrement autour des absides. Ces galeries étaient prises alors aux dépens des reins des voûtes en cul-de-four de ces absides; elles sont basses, formées de colonnettes portant une arcature plein cintre, et donnent de la richesse et de la légèreté aux couronnements de ces édifices.

Nous observerons que ce parti est adopté quelquefois dans le midi de la France, notamment dans les monuments religieux construits en brique. Ainsi, au sommet de l'église des Jacobins à Toulouse, on voit une galerie de service, un véritable chemin de ronde, placé sous le chéneau, et qui, donnant dans des échauguettes placées aux angles de l'édifice, permet de faire le tour de la construction près du sommet des voûtes. Cette galerie A (7) prend jour du dehors, par les oeils B, et permet d'examiner les voûtes par les petites fenêtres C vitrées et s'ouvrant sous les formerets; elle est portée sur de grands arcs de décharge D bandés d'un contre-fort à l'autre et abritant parfaitement les verrières placées en E. Toute cette construction est en brique et présente un aspect des plus monumental.
À l'intérieur des grands vaisseaux gothiques voûtés, on trouve, au-dessus des triforiums, particulièrement en Bourgogne, des galeries de service qui passent derrière les formerets des voûtes. Nous voyons des galeries de ce genre à l'intérieur de l'église Notre-Dame de Dijon, de Notre-Dame de Semur, de Saint-Étienne d'Auxerre (voy. CONSTRUCTION, fig. 78, 79 bis. et 88). Dans les églises de Champagne et de Bourgogne, nous voyons aussi que des galeries de service sont disposées dans les bas-côtés et chapelles, au-dessus des arcatures de rez-de-chaussée, sous les appuis des fenêtres (voy. CONSTRUCTION, fig. 86, 87).
Une galerie de ce genre, fort joliment composée, existe autour des bas-côtés du choeur de l'église abbatiale de Saint-Jean à Sens 5. Sous les formerets des voûtes de ces bas-côtés s'ouvrent des triples fenêtres; la galerie passe à travers leurs pieds-droits comme elle passe derrière les piles portant les voûtes (8).

Nous ne pouvons omettre ici les galeries de service qui coupent à peu près aux deux tiers de la hauteur des bas-côtés les piles de la nef de la cathédrale de Rouen, qui passent sur des arcades et pourtournent ces piles du côté du collatéral. Cette disposition singulière, et dont on ne s'explique guère aujourd'hui le motif, a paru assez nécessaire alors (vers 1220) pour que l'on ait cru devoir bander des arcs sous les archivoltes et donner aux encorbellements pourtournant les piles une importance et une richesse considérables.

La figure perspective 9 donne, en A, le plan de la galerie au niveau B de la naissance des arcades. En C devait exister une balustrade, dont les supports sont en place, mais qui n'a, croyons-nous, jamais été posée. La nef de l'église Saint-Étienne-du-Mont à Paris, qui date du XVIe siècle, présente une disposition analogue. Ces galeries ne pouvaient servir qu'à faciliter la tenture des nefs, les jours de fête. On observera encore, à ce sujet, combien les architectes du moyen âge apportent de variété dans l'ensemble comme dans les détails de leurs conceptions. Leurs méthodes souples leur donnent toujours des moyens neufs lorsqu'il s'agit de satisfaire à un besoin, de remplir les diverses parties d'un programme.
Note 3: (retour) Voy., au 7e Entretien sur l'Architecture, l'ensemble de cette façade.
Note 4: (retour) L'Architecture du Ve au XVIIe siècle et les arts qui en dépendent. T. I.
Note 5: (retour) Actuellement chapelle de l'hospice (1230 environ).
Galeries de service des palais. On établissait souvent, dans les châteaux et palais du moyen âge, des galeries de service donnant sur les pièces principales (voy. CONSTRUCTION, fig. 119 et 120). Ces galeries desservaient un ou plusieurs étages. Au sommet des bâtiments fortifiés des XIVe et XVe siècles, elles devenaient des chemins de ronde propres à la défense et étaient munies alors de mâchicoulis (voy. CHÂTEAU, DONJON, MÂCHICOULIS). Nous voyons dans quelques châteaux les restes de ces galeries de service; elles sont quelquefois prises dans l'épaisseur même des murs, passent à travers des contre-forts, comme dans l'exemple cité ci-dessus (fig. 120, CONSTRUCTION), ou sont portées sur des encorbellements.

Dans le bâtiment méridional du palais des Papes à Avignon, du côté de la cour, on trouve encore une jolie galerie, du XIVe siècle, qui donnait entrée dans les salles du second étage. Nous reproduisons (10) la coupe transversale de cette galerie voûtée en arcs d'ogives et éclairée par de petites fenêtres ouvrant sur la cour. Le dessus de cette galerie servait de chemin de ronde découvert, crénelé et décoré de pinacles.
Ces sortes de galeries de service aboutissaient à des escaliers et se combinaient avec ceux-ci. Vers la fin du XIVe siècle, on augmenta la largeur de ces couloirs, et on arriva, à la fin du XVe siècle, à en faire de véritables promenoirs. Cet usage fut adopté définitivement au XVIe siècle, comme on peut le voir aux châteaux de Blois, de Fontainebleau (galerie de François Ier), de Chambord, etc. Alors on les enrichit de peintures, de sculptures, on les garnit de bancs. Les galeries remplacèrent ainsi fort souvent la grand'salle du château féodal.
Sauval rapporte 6 «qu'en 1432 le duc de Bethfort fit faire, au palais des Tournelles, une galerie longue de dix-huit toises et large de deux et demie: on la nomme la gallerie des Courges, parce qu'il la fit peindre de courges vertes; elle étoit terminée d'un comble peint de ses armes et de ses devises, couverte de tuiles assises à mortier de chaux et ciment, et environnée de six bannières rehaussées de ses armoiries et de celles de sa femme. Mais dans les siècles passés, ajoute cet auteur, il n'y en a point eu de plus magnifique que celle qu'acheva Charles V dans l'appartement de la reine à l'hôtel Saint-Pol.» Cette galerie était peinte depuis le lambris jusqu'à la voûte, de façon à représenter un bosquet tout rempli de plantes, d'arbres fruitiers, de fleurs, parmi lesquels se jouaient des enfants; la voûte était blanc et azur. «Outre cela, continue Sauval, le roi Charles V fit peindre encore une petite allée par où passoit la reine pour venir à son oratoire de l'église Saint-Paul. Là, de côté et d'autre, quantité d'anges tendoient une courtine des livrées du roi: de la voûte, ou pour mieux dire d'un ciel d'azur qu'on y avoit figuré, descendoit une légion d'anges, jouant des instrumens et chantant des antiennes de Notre-Dame. Le ciel, au reste, aussi bien de l'allée que de la gallerie, étoit d'azur d'Allemagne (outremer) qui valoit dix livres parisis la livre, et le tout ensemble coûta six-vingt écus.»
Les galeries des habitations privées, destinées à desservir plusieurs pièces se commandant, étaient habituellement disposées en forme d'appentis donnant un portique à rez-de-chaussée, propre à abriter les provisions de bois de chauffage, à faire sécher le linge, etc. Ces galeries, légèrement construites en bois sur des colonnes de pierre ou sur des poteaux, n'avaient que la largeur d'un corridor, 1m,00 à 1m,50 c. (voy. MAISON).
Note 6: (retour) Hist. et Antiq. de la ville de Paris. T. II, p. 281.
GALETAS, s. m. Étage d'une maison, sous le comble, destiné à garder des provisions, à tendre le linge. Beaucoup de maisons du moyen âge, particulièrement dans le midi de la France, où le besoin de fraîcheur se fait sentir, possédaient leurs galetas sous les combles (voy. MAISON).
GARDE-CORPS, GARDE-FOUS, s. m. (voy. BALUSTRADE).
GARGOUILLE, s. f. Gargolle, guivre, canon, lanceur. Ce n'est guère que vers le commencement du XIIIe siècle que l'on plaça des chéneaux et, par suite, des gargouilles à la chute des combles. Jusqu'alors, dans les premiers siècles du moyen âge, l'eau des toits ou des terrasses s'égouttait directement sur la voie publique au moyen de la saillie donnée aux corniches (voy. CHÉNEAU). À la cathédrale de Paris, du temps de Maurice de Sully; c'est-à-dire lors de l'achèvement du choeur en 1190, il n'y avait point de chéneaux et de gargouilles; plus tard, dans le même édifice, vers 1210 encore, les eaux des chéneaux s'écoulaient sur la saillie des larmiers, au moyen de rigoles ménagées de distance en distance. Nous voyons apparaître les gargouilles, vers 1220, sur certaines parties de la cathédrale de Laon. Ces gargouilles sont larges, peu nombreuses, composées de deux assises, l'une formant rigole, l'autre recouvrement (1).

Déjà cependant ces gargouilles affectent la forme d'animaux fantastiques, lourdement taillés, comme pour laisser voir leur structure. Bientôt les architectes du XIIIe siècle reconnurent qu'il y avait un avantage considérable à diviser les chutes d'eau. Cela, en effet, évitait les longues pentes dans les chéneaux et réduisait chacune des chutes à un très-mince filet d'eau ne pouvant nuire aux constructions inférieures. On multiplia donc les gargouilles; en les multipliant, on put les tailler plus fines, plus sveltes, et les sculpteurs s'emparèrent de ces pierres saillantes pour en faire un motif de décoration des édifices. La variété des formes donnée aux gargouilles est prodigieuse; nous n'en connaissons pas deux pareilles en France, et nos monuments du moyen âge en sont couverts. Beaucoup de ces gargouilles sont des chefs-d'oeuvre de sculpture; c'est tout un monde d'animaux et de personnages composés avec une grande énergie, vivants, taillés hardiment par des mains habiles et sûres. Ces êtres s'attachent adroitement aux larmiers, se soudent à l'architecture et donnent aux silhouettes des édifices un caractère particulier, marquant leurs points saillants, accusant les têtes des contre-forts, faisant valoir les lignes verticales. On peut juger de l'habileté des architectes et des sculpteurs dans la combinaison et l'exécution de ces lanceurs par la difficulté qu'on éprouve à les combiner et les faire exécuter. Dans les pastiches modernes que l'on a faits des édifices gothiques, il est fort rare de voir des gargouilles qui se lient heureusement à l'architecture: elles sont ou mal placées, ou lourdes, ou trop grêles, ou molles de forme, pauvres d'invention, sans caractère; elles n'ont pas cet aspect réel si remarquable dans les exemples anciens; ce sont des êtres impossibles, ridicules souvent, des caricatures grossières dépourvues de style.
Certains calcaires du bassin de la Seine, comme le liais-cliquard, se prêtaient merveilleusement à la sculpture de ces longs morceaux de pierre en saillie sur les constructions. Il fallait, en effet, une matière assez ferme, assez tenace pour résister, dans ces conditions, à toutes les causes de destruction qui hâtaient leur ruine. Aussi est-ce à Paris ou dans les contrées où l'on trouve des liais, comme à Tonnerre, par exemple, que l'on peut recueillir encore les plus beaux exemples de gargouilles. D'ailleurs l'école de sculpture de Paris, au moyen âge, a sur celles des provinces voisines une supériorité incontestable, surtout en ce qui touche à la statuaire.

Les gargouilles sont employées systématiquement à Paris vers 1240; c'est à Notre-Dame que nous voyons apparaître, sur les corniches supérieures refaites vers 1225, des gargouilles, courtes encore, robustes, mais taillées déjà par des mains habiles (2). Celles qui sont placées à l'extrémité des caniveaux des arcs-boutants de la nef, et qui sont à peu près de la même époque, sont déjà plus longues, plus sveltes, et soulagées par des corbeaux qui ont permis de leur donner une très-grande saillie en avant du nu des contre-forts (3).

À la Sainte-Chapelle du Palais à Paris, les gargouilles sont plus élancées, plus développées: ce ne sont plus seulement des bustes d'animaux, mais des animaux entiers attachés par leurs pattes aux larmiers supérieurs; leurs têtes se détournent pour jeter les eaux le plus loin possible des angles des contre-forts (4). Quelques-unes de ces gargouilles sont évidemment sculptées par des artistes consommés.
Nous avons indiqué, à l'article GÂBLE, comment les constructeurs gothiques, lorsqu'ils élevaient les grandes voûtes des nefs, ménageaient, provisoirement, des cuvettes dans les reins de ces voûtes, avec gargouilles extérieures pour rejeter les eaux pluviales dans les caniveaux des arcs-boutants jusqu'à l'achèvement des combles définitifs. Ces gargouilles provisoires devenaient définitives elles-mêmes, lorsque les chéneaux supérieurs étaient posés, au moyen d'une conduite presque verticale, descendant du chéneau jusqu'à ces gargouilles. Voici (5) une de ces gargouilles à double fin, provenant des parties supérieures de la nef de la cathédrale d'Amiens (1235 environ).

Les gargouilles sont doublées de chaque côté des contre-forts, comme à la Sainte-Chapelle de Paris, comme autour de la salle synodale de Sens, autour des chapelles du choeur de Notre-Dame de Paris; ou elles traversent l'axe de ces contre-forts, comme à Saint-Nazaire de Carcassonne et dans tant d'autres édifices des XIIIe et XIVe siècles, et alors elles portent sur une console (6); ou elles sont appuyées sur la tête même de ces contre-forts, comme autour des chapelles du choeur de la cathédrale de Clermont (7) (fin du XIIIe siècle).

C'est vers ce temps que la composition des gargouilles devient plus compliquée, que les figures humaines remplacent souvent celles d'animaux, ainsi qu'on le voit dans ce dernier exemple, qui nous montre un démon ailé paraissant entraîner une petite figure nue.
Il existe autour des monuments de cette époque bon nombre de gargouilles qui sont de véritables morceaux de statuaire. L'église Saint-Urbain de Troyes porte, au sommet des contre-forts de l'abside, des gargouilles fort remarquables; nous donnons l'une d'elles (8).

Pendant le XIVe siècle, les gargouilles sont généralement longues, déjà grêles et souvent chargées de détails; au XVe siècle, elles s'amaigrissent encore et prennent un caractère d'étrange férocité. Bien que les détails en soient fins et souvent trop nombreux, cependant leur masse conserve une allure franche, d'une silhouette énergique; les pattes, les ailes des animaux sont bien attachées, les têtes étudiées avec soin (9 et 9 bis). Ces parties importantes de la sculpture du moyen âge ont toujours été traitées par des mains exercées; elles conservent très-tard leur caractère original, et encore, aux premiers temps de la Renaissance, on voit, sur les édifices, des gargouilles qui conservent le style du XVe siècle. Ce n'est que pendant la seconde moitié du XVIe siècle que les sculpteurs repoussent absolument les anciennes formes données aux lanceurs, pour adopter des figures de chimères rappelant certaines figures antiques, ou des consoles, ou de simples tuyaux de pierre en forme de canons.

Pendant le moyen âge on n'a pas toujours sculpté les gargouilles; quelquefois, dans les endroits qui n'étaient pas exposés à la vue, les gargouilles sont seulement épannelées. Il en est un grand nom cette sorte qui affectent une forme très-simple (10) 7. Les gargouilles sont fréquentes dans l'Île-de-France, dans la Champagne et sur les bords basse Loire; elles sont rares en Bourgogne, dans le centre et le midi de la France; ou si l'on en trouve dans les monuments d'outre-Loire, c'est qu'elles tiennent à des édifices élevés aux XIIIe, XIVe et XVe siècles, par des architectes du Nord, comme la cathédrale de Clermont, celle de Limoges, celle de Carcassonne (Saint-Nazaire), celle de Narbonne. Là où les matériaux durs sont peu communs, comme en Normandie, par exemple, les gargouilles sont courtes, rarement sculptées, ou manquent absolument, les eaux s'égouttant des toits sans chéneaux.

Les chéneaux en plomb, posés sur les édifices civils ou religieux, portaient aussi leurs gargouilles de métal. Nous en possédons fort peu aujourd'hui de ce genre d'une époque antérieure au XVI siècle. En voici une (11) qui se voit à l'angle d'une maison de Vitré; elle date du XVe siècle et est faite en plomb repoussé (voy. PLOMBERIE). Nous ne connaissons pas de gargouilles du moyen âge en terre cuite. Dans les édifices en brique, les gargouilles sont en pierre, ainsi qu'on peut le voir aux Jacobins de Toulouse, au collége Saint-Rémond, et dans beaucoup d'autres édifices anciens de la même ville.
Note 7: (retour) Notre-Dame de Paris.
GAUFRURE, s. f. Application de pâtes sur la pierre ou le bois, formant des ornements saillants, des fonds gaufrés, ordinairement dorés (voy. APPLICATION, PEINTURE).
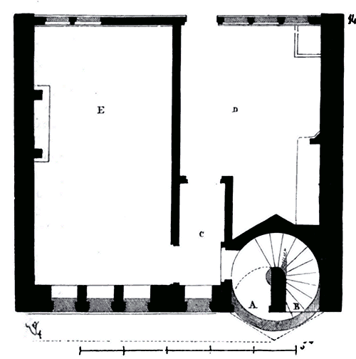
GIRON, s. m. Est la largeur d'une marche d'escalier. Le giron est dit droit, lorsque la marche est d'une égale largeur dans toute sa longueur; triangulaire, lorsque la marche est renfermée dans une cage circulaire. Alors on mesure le giron de la marche au milieu de sa longueur.
GIROUETTE, s. f. Wire-wire. Plaque de tôle ou de cuivre munie d'une douille ou de deux anneaux, et roulant sur une tige de fer placée au sommet d'un comble. Les girouettes sont destinées à indiquer d'où vient le vent. Pendant le moyen âge, il n'était pas permis à tout le monde de placer des girouettes sur les combles des habitations. La girouette était un signe de noblesse, et sa forme n'était pas arbitraire. «Les gentilshommes, dit le Laboureur 8, ont seuls droit d'avoir des girouettes sur leurs maisons; elles sont en pointes comme les pennons, pour les simples chevaliers, et carrées comme les bannières, pour les chevaliers bannerets.»--«On sait, dit encore Sainte-Palaye 9, que le premier acte de possession d'un fief, d'une seigneurie, d'une place prise à la guerre, était marqué par la bannière du nouveau seigneur, arborée sur le lieu le plus éminent, sur la tour la plus élevée.» Les girouettes anciennes sont rares; habituellement elles étaient peintes aux armes du seigneur ou découpées de façon à figurer les pièces de ces armes; quelquefois on les surmontait d'une couronne, mais cela vers la fin du XVe siècle. La plupart des girouettes ou wire-wire anciennes sont disposées de telle façon que la partie pleine est maintenue en équilibre par des contre-poids, de manière à faciliter le roulement sur le pivot de fer (1).

Les girouettes du moyen âge sont petites, haut montées sur les tiges de fer et accompagnées d'épis en plomb (voy. ÉPI). L'Hôtel-Dieu de Beaune conserve encore les anciennes girouettes de ses combles, peintes aux armes de Nicolas Rollin, chancelier de Bourgogne (1441); ces girouettes sont carrées, avec un seul contre-poids, et décorées aux deux angles extrêmes de feuilles découpées. Voici l'une d'elles (2). Nous avons encore vu au château d'Amboise, en 1833, des girouettes du commencement du XVIe siècle, aux armes de France découpées et couronnées (3).

Il y a longtemps que tous les bourgeois de France peuvent mettre des girouettes sur leurs maisons, et ne s'en font-ils pas faute.
Note 8: (retour) Origines des armoiries, p. 93. (Voy. Salvaing, Chambolas, et la Peirère.)
Note 9: (retour) Mémoires sur l'ancienne chevalerie, t. I. p. 360 (Notes).
GNOMON, s. m. Style scellé dans une dalle et donnant l'heure du jour par l'ombre qu'il projette sur un cadran. Nous voyons, dans les Olim, qu'au XIIIe siècle il y avait des gnomons sur les grands chemins. Louis IX, en 1267, fait faire une enquête par un certain chevalier, Guiters de Vilète, bailli de Tours, et un chanoine de Loches, Théobald de Compans, pour savoir si le roi a le droit de faire enlever les stalles de chevaux fixées à terre et les cadrans solaires supportés par des colonnes, toutes choses qui obstruent les chemins. Nous voyons des cadrans solaires des XIVe et XVe siècles aux angles de certains édifices du moyen âge, notamment à l'angle du clocher vieux de la cathédrale de Chartres et à l'angle du cloître de la cathédrale de Laon (voy. CLOÎTRE, fig. 16).
GOND, s. m. Morceau de fer coudé, dont la patte est scellée dans la pierre et dont le mamelon cylindrique ou légèrement conique entre dans l'oeil de la penture d'une porte (voy. SERRURERIE).
GORGE, s. f. Moulure concave. On donnait aussi le nom de gorge, autrefois, à la partie de la hotte d'une cheminée comprise entre la tablette et la corniche de couronnement sous le plafond.
GOTHIQUE (ARCHITECTURE). Voy. ARCHITECTURE.
GOUSSET, s. m. Pièce de bois horizontale posée diagonalement pour maintenir le roulement d'une enrayure composée de pièces assemblées d'équerre (1). A est un gousset (voy. CHARPENTE).

GOÛT, s. m. Un homme d'esprit a dit: «Le manque de goût conduit au crime.» Le mot étant vrai, à notre sens, nous sommes entourés de criminels ou de gens disposés à le devenir. Le goût est l'habitude du beau et du bien; pour être homme de goût, il est donc essentiel de discerner le bien du mal, le beau du laid. Le goût (car les définitions ne manquent pas, si la qualité est rare) est encore le respect pour le vrai; nous n'admettons pas qu'on puisse être artiste de goût sans être homme de goût, car le goût n'est pas un avantage matériel, comme l'adresse de la main, mais un développement raisonné des facultés intellectuelles. C'est ce qui fait que nous rencontrons dans le monde nombre d'artistes habiles qui, malgré leur talent, n'ont pas de goût, et quelques amateurs qui sont gens de goût, sans pour cela pratiquer les arts. On considère, en général, parmi les artistes, les amateurs comme un fléau, comme des usurpateurs dont l'influence est pernicieuse. Non-seulement nous ne partageons pas cette opinion, mais nous croyons que si le goût tient encore une place en France, c'est principalement au public que nous devons cet avantage. Nous prétendons ne parler ici que de l'architecture. Nous ne saurions admettre qu'un architecte obéissant à des intérêts étroits, à des passions mesquines, dont le caractère n'est ni respectable ni respecté, puisse mettre du goût dans ses oeuvres. L'homme de goût ne ment pas à sa conscience, il exprime ses pensées par les moyens les plus naturels. Avoir du goût dans les arts, c'est aimer le vrai, c'est savoir l'exprimer simplement; c'est repousser l'exagération, toujours fausse; c'est laisser voir le côté moral de l'homme, sa raison, ses affections, ses tendances et son but. Si donc ce côté moral est faible, si la raison est obscure, si les affections sont basses et le but vulgaire ou odieux, il est difficile que le goût soit satisfait.
Le bon goût, comme la vérité, ne s'impose pas, il persuade; et le jour où l'on vient dire: «Voici l'expression du bon goût», on ne se contentera pas de votre affirmation, il faudra plus que cela; il faudra que cette expression du bon goût soit discutée, prouvée par un accord intime entre vos principes et la forme qu'ils adoptent. Vos principes étant vicieux, si belle que soit la forme, le goût fait défaut. Faites que la forme soit le langage de l'idée, et vous serez artiste de goût; encore faut-il avoir des idées, les avoir bonnes et les exprimer en bon langage.
On a pensé, depuis longtemps déjà, qu'il suffisait, pour faire preuve de goût, d'adopter certains types reconnus beaux et de ne jamais s'en écarter. Cette méthode, admise par l'Académie des Beaux-Arts en ce qui touche à l'architecture, nous a conduits à prendre pour l'expression du goût certaines formules banales, à exclure la variété, l'invention, et à mettre hors la loi du goût tous les artistes qui cherchaient à exprimer des besoins nouveaux par des formes nouvelles, ou tout au moins soumises à de nouvelles applications.
Depuis le XVIIe siècle, on a mis en honneur bien des hypocrisies, et nous avons l'hypocrisie du goût, comme nous avons l'hypocrisie religieuse. Ce sont des découvertes dont, à la rigueur, nous nous serions passés. Mais de même que l'hypocrisie religieuse, c'est-à-dire l'observation extérieure des formules sans les principes, conduit à l'incrédulité et à la débauche, de même l'hypocrisie du goût amène à la dépravation, et pendant que l'Académie des Beaux-Arts contraint ses initiés à se soumettre à des formules dont elle n'explique même pas le sens, nous voyons, autour de nous, l'architecture se livrer au plus étrange dévergondage, non-seulement en dehors du sanctuaire des initiés, mais dans leur sanctuaire même. Le goût (en architecture), au lieu d'être une loi découlant d'un principe vrai, général, admis par tous et applicable à toute chose, est devenu le privilége d'une école exclusive. Il a été convenu, par exemple, que les ordres de l'antiquité romaine étaient oeuvres de goût; ce que nous admettons sans difficulté, si ces ordres ont une raison d'être; ce que nous n'admettons pas, si rien ne justifie leur emploi. L'art, réduit à certaines pratiques, déclarées seules orthodoxes en matière de goût, s'est atrophié, descendant d'un degré à chaque génération d'initiés; on est devenu architecte de goût en suivant une ornière de plus en plus étroite et profonde, et à la condition de n'en jamais sortir. Quelques architectes trouvent peut-être à cela un avantage, car rien n'est plus doux et facile, dans les arts, que de faire partie d'une coterie puissante; mais on peut affirmer que l'art y a perdu. Avec l'Académie des Beaux-Arts, gardienne jalouse du goût depuis un assez long temps, dit-elle, l'architecture, encore si vivace au milieu du XVIIe siècle, est tombée peu à peu dans un affaissement qui nous a conduits de chute en chute à l'anarchie, à l'obéissance aveugle ou à la révolte. Mais quant au goût, au bon goût, c'est-à-dire à cette connaissance exacte des besoins, des idées, du génie de notre civilisation, à cette expression vraie et tempérée de ce qu'elle a droit de nous demander, il faut chercher longtemps pour le trouver; et si, par aventure, ce goût du vrai se fait jour, il étonne la foule, et excite la censure, sinon les colères de ceux qui se donnent comme les seuls dépositaires des saines doctrines.
Toute forme d'architecture qui ne peut être donnée comme la conséquence d'une idée, d'un besoin, d'une nécessité, ne peut être regardée comme oeuvre de goût. S'il y a du goût dans l'exécution d'une colonne, ce n'est pas une raison pour que la colonnade dont elle fait partie soit une oeuvre de goût; car, pour cela, il faut que cette colonnade soit à sa place et ait une raison d'être. Si l'on vient dire: «Ce palais est mal distribué, incommode; les services ne sont pas à leur place, les pièces sont obscures, la construction est vicieuse, mais il est décoré avec goût»; c'est à peu près comme si on prétendait qu'un livre est rempli d'erreurs, que les idées de l'auteur sont confuses, son sujet mal développé, mais qu'il est écrit avec élégance. La première loi, pour un écrivain, c'est de savoir ce qu'il veut dire et de se faire comprendre; la clarté est une des conditions du goût en littérature comme en architecture. Pour exprimer ses idées avec clarté, avec élégance, faut-il avoir des idées, faut-il que ces idées précèdent la forme qui devra servir à les exprimer. Mais si, au contraire, nous nous préoccupons de la forme avant de savoir ce qu'elle devra exprimer, nous ne faisons pas preuve de goût. Si les portiques des Romains, élevés près des places publiques; si ces vastes promenoirs couverts, accessibles à la foule, laissant circuler l'air et la lumière sous un beau climat, marquaient le goût des maîtres du monde en fait de constructions urbaines, la colonnade du Louvre, élevée sur un rez-de-chaussée, inaccessible au public, n'abritant les rares visiteurs qui la parcourent ni du soleil ni de la pluie, n'étant pas en rapport de proportions et de dimensions avec les autres parties du palais, ne peut raisonnablement passer pour une oeuvre de goût. Nous admettrons bien, si l'on veut, que l'ordre est étudié avec goût, c'est-à-dire qu'il est en rapport harmonieux de proportions avec lui-même; mais ce portique, comme portique appliqué à un palais, est de très-mauvais goût.
« Sed nunc non erat bis locus...»
Il est des temps, heureux pour l'art, où le goût n'a pas besoin d'être défini; il existe par cela même que l'art est vrai, qu'il se soumet aux enseignements de la raison, qu'il ne répudie pas son origine et ne parle qu'autant qu'il a quelque chose à dire. Dans ces temps, on ne se préoccupe pas de donner les règles du goût, pas plus que parmi d'honnêtes gens on ne se préoccupe de discuter sur ce qui est licite et ce qui ne l'est pas. On commence à parler du goût quand le goût s'éloigne de l'art pour se réfugier dans l'esprit de rares artistes; on n'écrit des livres sur la vertu que quand le vice domine. Ces temps heureux sont loin de nous; ils ont existé chez les Grecs de l'antiquité, ils ont brillé pendant le moyen âge, ils pourraient renaître peut-être, à la condition d'admettre que le goût consiste dans l'observation de principes très-simples, non dans la préférence donnée à telle forme sur une autre. Quand le goût est renfermé dans les limites d'une coterie, si puissante qu'on veuille la supposer, ce n'est plus qu'une prétention funeste, dont chacun tend à s'affranchir; car le goût, le bon goût possède ce privilége de s'imposer à travers les temps et malgré les préjugés comme tout ce qui découle de la vérité. Mais à peine, aujourd'hui, si l'on s'entend sur ce que c'est que le goût. On professe, lorsqu'il s'agit d'architecture, de véritables hérésies en matière de goût; on donne, chaque jour, comme des modèles de goût, des oeuvres dont il est impossible de comprendre le sens, qui ne se font remarquer que par un désaccord complet entre le but et l'apparence. On nous dit que cette façade est de bon goût; mais, pourquoi? Est-ce parce que toutes ses parties sont symétriques, qu'elle est ornée de colonnes et de statues, que de nombreux ornements sont répandus partout? Mais cette symétrie extérieure cache des services fort divers: ici une grande salle, là des cabinets, plus loin un escalier. Cette fenêtre qui éclaire la chambre du maître est de même taille et de même forme que cette autre qui s'ouvre sur un couloir. Ces colonnes saillantes accusent-elles des murs de refend, tiennent-elles lieu de contre-forts? Mais les murs de refend sont placés à côté de ces colonnes et non sur leur axe; les contre-forts sont superflus, puisque les planchers ne portent même pas sur ce mur de face. Nous voyons des niches évidées au milieu de trumeaux là où nous aurions besoin de trouver un point d'appui. Pourquoi, si nous raillons ces gens qui veulent paraître autres qu'ils ne sont, si nous méprisons un homme qui cherche à nous en imposer sur sa qualité, sur son rang dans le monde, et si nous trouvons ses façons d'être de très-mauvais goût, pourquoi trouvons-nous qu'il y ait du goût à élever une façade de palais devant des bureaux de commis, à placer des colonnades devant des murs qui n'en ont nul besoin, à construire des portiques pour des promeneurs qui n'existent pas, à cacher des toits derrière des acrotères comme une chose inconvenante, à donner à une mairie l'aspect d'une église, ou à un palais de justice l'apparence d'un temple romain? Le goût n'est pas, comme le pensent quelques-uns, une fantaisie plus ou moins heureuse, le résultat d'un instinct. Personne ne naît homme de goût. Le goût, au contraire, n'est que l'empreinte laissée par une éducation bien dirigée, le couronnement d'un labeur patient, le reflet du milieu dans lequel on vit. Savoir, ne voir que de belles choses, s'en nourrir, comparer; arriver, par la comparaison, à choisir; se défier des jugements tout faits, chercher à discerner le vrai du faux, fuir la médiocrité, craindre l'engouement, c'est le moyen de former son goût. Le goût est comme la considération: on ne l'acquiert qu'à la longue, en s'observant et en observant, en ne dépassant jamais la limite du vrai et du juste, en ne se fiant point au hasard. Comme l'honneur, le goût ne souffre aucune tache, aucun écart, aucune concession banale, aucun oubli de ce que l'on doit aux autres et à soi-même. Le respect pour le public est, de la part d'un artiste qui produit une oeuvre, la première marque de goût. Or la sincérité est la meilleure façon d'exprimer le respect. Si le mensonge était jamais permis, ce serait envers ceux que l'on méprise. Cependant nous nous sommes éloignés des règles du goût à ce point, dans l'art de l'architecture, que nous ne montrons plus au public que des apparences. Nous simulons la pierre avec des enduits ou du ciment, le marbre et le bois avec de la peinture. Ces voussures que vous croyez en pierre sculptée ne sont qu'un plâtrage sur des lattes; ces panneaux de chêne, ce sont des planches de sapin recouvertes de pâtes et d'une couche de décoration; ces pilastres de marbre et d'or, qui paraissent porter une corniche et soutenir un plafond, sont des plaques de plâtre accrochées au mur chargé de leur poids inutile. Ces caissons du plafond lui-même, qui nous représentent des compartiments de menuiserie, ne sont autre chose que des enduits moulurés suspendus par des crampons de fer à un grossier plancher qui n'a nul rapport avec cette décoration; si bien que, dans cette salle où vous croyez voir la main-d'oeuvre le disputer à la richesse de la matière, tout est mensonge. Ces piliers qui paraissent porter sont eux-mêmes accrochés comme des tableaux; ces arcs masquent des plates-bandes en bois ou en fer; cette voûte est suspendue à un plancher qu'elle fatigue; ces colonnes de marbre sont des cylindres de stuc revêtant des poteaux. L'artiste, dites-vous, est homme de goût; oui, si c'est faire preuve de goût de se moquer de vous et de tromper le public sur la qualité de l'oeuvre.
Comment procédaient cependant ces artistes du moyen âge en France, accusés de mauvais goût par les beaux-esprits des XVIIe et XVIIIe siècles, peu connaisseurs en architecture, et par nos débiles écoles modernes, copiant avec du carton et du plâtre les robustes splendeurs de ces derniers siècles, et tombant, de contrefaçons en contrefaçons, par ennui et fatigue, par défaut de principes et de convictions, jusqu'à l'imitation du style du temps de Louis XVI, comme si l'art de ce temps d'affaissement possédait un style? comme si, pour en venir à cette triste extrémité, il était nécessaire d'envoyer nos jeunes architectes à Rome et à Athènes s'inspirer des arts de l'antiquité?
Leur première loi était la sincérité. Avaient-ils de la pierre, du bois, du métal, des stucs à mettre en oeuvre? ils donnaient à chacune de ces matières la structure, la forme et la décoration qui pouvaient leur convenir; et, lors même qu'ils tentaient d'imposer à l'une de ces matières des formes empruntées à d'autres, le goût leur traçait les limites qu'on ne saurait dépasser, car jamais ils ne cherchaient à tromper sur l'apparence. On peut bien trouver que telle rose, tels meneaux sont délicatement travaillés: personne ne prendra une rose en pierre, des meneaux en pierre pour du bois ou du fer; encore ces détails des édifices religieux ne sont-ils que des claires-voies, des accessoires qui ne tiennent pas à la véritable structure, on le reconnaît sans être architecte. Pour eux, une salle est une salle; une maison, une maison; un palais, un palais; une église, une église; un château, un château; et jamais il ne leur serait venu à l'esprit de donner à un édifice municipal la silhouette d'une église en manière de pendant, pour amuser les badauds, grands amateurs de la symétrie. Font-ils couvrir cette salle d'un berceau en bois? c'est bien un lambris que nous voyons, non point le simulacre d'une voûte en maçonnerie. Font-ils un plafond? c'est la structure du plancher qui donne ses compartiments, sa décoration. À leur avis, un toit est fait pour couvrir un édifice; aussi lui donnent-ils la pente suffisante pour rejeter les eaux; ils ne le dissimulent pas derrière un attique; dans un même palais, ils n'élèveront pas des toits plats et des toits aigus: ils adopteront les uns ou les autres partout, suivant le besoin, le climat ou la nature des couvertures. Est-ce une galerie qui passe derrière ce mur? nous le reconnaîtrons, à l'extérieur, par la manière dont les jours sont percés; est-ce une grand'salle? les fenêtres seront hautes et larges; est-ce une suite de cellules? les fenêtres seront fréquentes et petites. Partant de principes vrais, simples, raisonnés, le goût n'est plus affaire de hasard: il s'attache à quelque chose de réel; il apporte dans l'étude des détails le respect pour la vérité; il se complaît à exprimer les besoins, les nécessités du programme; à chaque instant il varie son expression, suivant le thème qui lui est donné. Savoir ne dire que ce qu'il faut et savoir dire les choses à propos est une preuve de goût dans les relations du monde; c'est faire preuve de peu de goût de donner à la maison d'un simple particulier habitée par des locataires l'apparence d'un palais. «Si le propriétaire peut payer ce luxe, direz-vous, pourquoi ne pas le satisfaire?» Soit; mais vous ne pourrez nous empêcher de trouver que l'architecte et son client ont mauvais goût, et l'extravagance de celui-ci n'excuse pas la complaisance du premier. On n'écrit pas une ordonnance de police comme un discours à l'Académie, un inventaire avec le style qui convient à un roman; et la lettre que vous adressez à votre jardinier pour lui recommander de planter des salades en temps opportun n'est pas faite comme celle que vous écrivez à un prince pour réclamer sa bienveillance. Pourquoi donc, si nous admettons ces distinctions dans la façon d'écrire, ne les observons-nous pas dans notre architecture? Nous trouvons dans l'art du moyen âge cet à-propos, marque d'un goût sûr. L'église du village ne ressemble pas à une cathédrale; elle n'est pas un diminutif de celle-ci. La maison d'un bourgeois n'est pas faite avec les rognures d'un palais. La halle de la cité ne peut être prise pour une salle de fêtes, l'hôpital pour une maison de ville; et l'étranger qui se promenait autrefois dans nos cités pouvait deviner la destination de chaque édifice à son apparence extérieure; il ne lui serait jamais arrivé de chercher un bénitier à la porte d'une mairie, croyant entrer dans une église, ou de demander, sous le vestibule d'une caserne, le nom du riche seigneur pour lequel on a bâti ce majestueux édifice.
Le goût est relatif à l'objet; il s'appuie donc avant tout sur la raison. Comme le bon sens est une des qualités (fort ancienne) de notre pays, nous avons apporté dans nos arts un goût délicat, lorsque nous avons été laissés à nos propres instincts. Malheureusement, l'architecture s'est brouillée depuis longtemps en France avec le bon sens, et par suite avec le bon goût, sous l'influence de doctrines erronées. On a reconnu, au XVIIe siècle, que l'architecture antique était un art soumis à un goût pur, ce qui est incontestable; on s'est mis à faire de l'architecture antique, sans penser que, si l'architecture antique est conforme au goût, c'est qu'elle est une expression nette, précise, de la civilisation qui l'a constituée. Mais si par cela même l'architecture antique se soumet aux règles du goût sous les empereurs romains, elle est contraire à ces règles sous la société de Louis XIV, qui ne ressemble pas absolument à la société de Tibère ou de Claude. Alors (au XVIIe siècle) on ne faisait guère entrer le raisonnement dans les questions d'art; l'architecture était une affaire de colonnades, de chapiteaux, de frontons et de corniches, de symétrie, toutes choses qu'on déclarait être de grand goût, comme on disait alors, sans définir d'ailleurs ce qu'on entendait par ce grand goût, qui n'est, à notre avis, qu'un grand engouement. Cependant (car c'est une occasion de faire preuve de goût, et de ne pas tomber dans l'exagération) il est juste de reconnaître que ce siècle (nous parlons de celui de Louis XIV) a su produire en architecture des oeuvres d'une grande valeur, toutes fois qu'elles n'ont pas abandonné complétement notre sens français. Certes, on ne peut nier que l'Hôtel des Invalides, par exemple, ne soit un chef-d'oeuvre d'architecture. Pourquoi? Est-ce parce que nous y trouvons des archivoltes romaines, des corniches romaines? Non certainement: c'est parce que cet édifice présente un plan parfaitement approprié à l'objet; partout de la grandeur, sans place perdue, des services faciles, un aspect général extérieur qui indique clairement sa destination. Mais à qui devons-nous ces belles dispositions? Est-ce à l'antiquité romaine? Sont-ce les architectes romains qui nous ont donné, entre autres choses, cette belle composition de la cour, avec ses quatre escaliers aux angles, autour desquels tourne le cloître? Non, c'est là le plan d'une cour d'abbaye française, avec son vaste réfectoire, avec ses dortoirs, son église accessible de tous les points des bâtiments, ses galeries et ses services journaliers. C'est par ces dispositions appropriées à l'objet que l'Hôtel des Invalides est une oeuvre de goût, et non parce que l'architecte a semé sur ses façades quelques profils romains; au contraire, ces détails empruntés à une architecture entièrement étrangère à notre climat, à nos usages et à notre génie, ne font que gâter le monument, ou le rendre, au moins, froid, monotone. Ces toits à pentes rapides (qui sont bien français) jurent avec ces corniches antiques, avec ces arcades qui ont le grand tort de vouloir rappeler quelque portique de théâtre ou d'amphithéâtre romain. En cela le goût ne saurait être satisfait, car le goût demande aussi un rapport, une corrélation entre l'ensemble et les détails. Quand Molière a pris à Plaute son sujet d'Amphytrion, bien qu'il ait adopté le canevas antique, il a fait parler Mercure, la Nuit, Jupiter, Amphytrion, Alcmène et Sosie, comme parlaient les seigneurs, les dames et les valets de la cour, et non comme des Grecs. Bien mieux, il a donné à ses personnages les sentiments, les idées et les préjugés de son temps; pour exprimer ces idées, ces sentiments, il n'a pas cousu des mots grecs ou latins à sa phrase française. Le nom des personnages ne fait là rien à l'affaire, et Jupiter pourrait s'appeler Louis le Grand et porter la grande perruque. Certes Molière, comme tous les auteurs illustres du XVIIe siècle, appréciait fort les anciens, avait su s'en servir; cessait-il pour cela d'être Français, et si nous l'admirons, n'est-ce pas parce qu'il est bien Français? Pourquoi donc, à l'architecture seule, serait-il permis de s'exprimer comme l'écolier limousin de Rabelais, et en quoi ce jargon peut-il être conforme aux règles du goût?
La pierre, le bois, le fer, sont les matériaux avec lesquels l'architecte bâtit, satisfait aux besoins de son temps; pour exprimer ses idées, il donne des formes à ces matériaux; ces formes ne sont pas et ne peuvent être dues au hasard, elles sont produites par les nécessités de la construction, par ces besoins mêmes auxquels l'artiste est tenu de satisfaire, et par l'impression qu'il veut produire sur le public; c'est une sorte de langage pour les yeux: comment admettre que ce langage ne corresponde pas à l'idée, soit dans l'ensemble, soit dans les détails? et comment admettre aussi qu'un langage formé de membres sans relations entre eux puisse être compris? Cette confusion, introduite au XVIIe siècle, a bientôt fait de l'architecture un art incompréhensible pour le public; nous en voyons aujourd'hui plus que jamais les tristes effets.
De l'introduction irréfléchie de certaines formes et non de l'esprit de l'antiquité dans l'architecture, on en est venu bientôt à la corruption de ces formes dont les principes n'avaient point été reconnus tout d'abord. Au XVIIIe siècle, on croyait encore pratiquer les arts romains, tandis qu'on ne faisait qu'aggraver le désordre qui s'était mis dans l'étude de l'architecture. Cependant le goût, le sentiment des convenances est assez naturel chez nous, pour que, dans ce désordre même, on trouve les traces de cette qualité française. Nos châteaux, nos édifices publics du dernier siècle ont un certain air de grandeur calme, une raison, bien éloignés des exagérations que l'on rencontre alors dans les édifices analogues bâtis en Italie et en Allemagne. L'un des signes les plus visibles de la confusion qui s'est faite dans les esprits depuis cette époque, c'est le rôle infime que l'on a donné au goût dans l'architecture. Le goût est devenu une qualité de détail, un attrait fugitif, à peine appréciable, que l'on ne saurait définir, vague, et qui dès lors n'était plus considéré par nos architectes comme la conséquence de principes invariables. Le goût n'a plus été qu'un esclave de la mode, et il s'est trouvé alors que les artistes reconnus pour avoir du goût en 1780 n'en avaient plus en 1800. Cette dépréciation du goût a fait dire, par exemple, que tel artiste ne possédait ni la théorie ni la pratique de son art; qu'il était, en deux mots, passablement ignorant, mais qu'il avait du goût. Est-il donc possible de faire preuve de goût en architecture, sans être profondément versé dans cet art? Comme preuve de la dépréciation du goût, citons un auteur sérieux, éclairé, et voyons ce qu'il dit à propos du goût 10. «De même, pour tout ce qui a rapport à l'imitation des beaux-arts 11, la faculté qu'on appelle le goût s'exerce principalement sur les qualités agréables, sur le choix d'une certaine manière d'être ou de faire que le sentiment seul comprend, et qu'aucune analyse ne peut démontrer.» Voilà qui est embarrassant, et c'est le cas de dire: «On ne peut disputer des goûts», puisqu'on ne peut démontrer s'il existe ou n'existe pas. Et plus loin: «Le goût n'est pas celui qui, dans la composition, fait découvrir ces grands partis d'ordonnance, ces lignes heureuses, ces masses imposantes qui saisissent à la fois l'esprit et les yeux; mais ce sera lui souvent qui mêlera à ces combinaisons l'attrait de la facilité, d'où résultera l'apparence d'une création spontanée.» Ainsi nous voyons que, pour un des auteurs les plus distingués qui ont écrit sur l'art de l'architecture au commencement de ce siècle, le goût est insaisissable; il ne préside point à l'ordonnance générale, il n'est appelé par l'artiste que quand l'oeuvre est conçue et qu'il ne s'agit plus que de lui donner un tour attrayant, c'est-à-dire lorsqu'il faut, en bon français, la soumettre aux exigences de la mode du jour. C'était bien la peine de parler et d'écrire sur le goût pendant deux siècles, de fonder des académies destinées à maintenir les règles du goût, pour en arriver à cette conclusion: «L'attrait de la facilité... une manière d'être et de faire que le sentiment seul comprend!»
Rapetissant le goût à ces maigres et fugitives fonctions, on a dû nécessairement rapetisser ceux qui sont considérés comme les dépositaires du goût. Aussi, les architectes ont vu bientôt une certaine partie des édifices publics sortir de leurs mains, puisque le goût n'avait rien à voir dans «les grands partis d'ordonnance, les masses imposantes.» On a pensé que leur concours était inutile s'il s'agissait de bâtir des ponts, d'élever des quais, de faire de grands travaux de terrassement, des casernes, des ouvrages militaires. Et si le public trouve la plupart de ces bâtisses laides, disgracieuses, barbares même, on peut dire que le goût n'entre pour rien là-dedans, et que lui, public, n'a point à l'y chercher. Eh bien, nos architectes du moyen âge, d'accord avec le public de leur temps, croyaient que le goût se dévoile aussi bien dans la construction d'un pont et d'une forteresse que dans l'ornementation d'une chapelle ou d'une chambre à coucher; pour eux, le goût présidait à la conception, aux dispositions d'ensemble, aussi bien qu'aux détails de l'architecture, et l'on pourra reconnaître même que cette qualité générale en matière de goût se retrouve jusque pendant le XVIIe siècle. Il suffit de voir comme étaient conçus les châteaux de Vaux, de Maison, de Coulommiers, du Rincy, de Berny, de Versailles, de Monceaux, de Saint-Germain, de Chantilly, leurs parcs et dépendances, pour s'assurer que le goût, chez les architectes qui ont présidé à la construction et à l'arrangement de ces résidences, n'était pas seulement une qualité s'attachant aux détails, un tour indéfinissable que le sentiment seul comprend et qu'aucune analyse ne peut démontrer», mais au contraire le résultat de bonnes traditions, du savoir, de vues générales, justes et larges en même temps, résultat dont les causes comme les effets peuvent être démontrés. C'est bien plutôt dans les dispositions d'ensemble que les architectes du XVIIe siècle montrent leur goût que dans l'exécution des détails. Par le fait, le goût se manifeste dans tout, préside à tout, au milieu des civilisations qui sont dans les conditions propres à son développement. Il y autant de goût dans la composition et l'ordonnance du Parthénon, dans la manière dont il est planté sur l'Acropole d'Athènes, que dans le tracé et l'exécution des profils et des sculptures.
Voyons maintenant comment les artistes du moyen âge, en France, ont manifesté cette qualité essentielle. Ainsi que nous l'avons dit plus haut, le vrai est la première condition du goût. Les architectes de ces temps possèdent de la brique pour bâtir, leur construction ne simulera pas un édifice en pierre de taille; ils adopteront, non-seulement la structure, mais la décoration que peut fournir la brique; ils éviteront, dans les bandeaux et les corniches, les fortes saillies; ce ne sera pas par la sculpture qu'ils produiront de l'effet, mais par les masses que donnent naturellement des parements de terre-cuite revêtissant un blocage. Aussi les monuments de brique élevés par les architectes du moyen âge rappellent-ils certaines constructions romaines du temps de l'Empire; employant les mêmes procédés, ils étaient entraînés à rappeler les mêmes formes, bien qu'alors les habitudes des constructeurs fussent très-différentes de celles des Romains. Ils font ressortir la grandeur de ces masses simples par des cordons délicats mais très-accentués dans leurs détails, ainsi qu'on peut les composer avec des briques posées sur l'angle et en encorbellement. S'ils mêlent la pierre à la brique, et si la pierre est rare, ils ne l'emploieront que pour des colonnes monostyles, des chapiteaux, des tablettes de corniches, des corbeaux sculptés, des appuis de fenêtres, des jambages et des archivoltes. Plus la matière est chère, plus ils sauront en rehausser le prix par la main-d'oeuvre. Économes de matériaux (ce qui est encore une preuve de goût), ils ne les prodigueront pas inutilement, les choisissant suivant la fonction qu'ils doivent remplir, la place qu'ils doivent occuper. Dans un même édifice, nous verrons des colonnes monostyles, dont le transport, la taille et la pose ont dû demander beaucoup de temps, de soins et de peine, porter des constructions en petits matériaux, montés et posés à la main. Observateurs fidèles des principes de leur construction 12, ils voudront que ces principes soient apparents; leur appareil n'est pas seulement une science, c'est un art qui veut être apprécié, qui s'adresse aux yeux, explique à tous les procédés employés sans qu'il soit nécessaire d'être initié aux secrets du praticien. Jamais la construction ne dissimule ses moyens; elle ne paraît être que ce qu'elle est. Aussi (et c'est là une observation que chacun peut faire) un édifice du moyen âge gagne plutôt qu'il ne perd à faire voir son appareil, les joints et lits de sa construction; en peut-on dire autant des édifices bâtis depuis le XVIIIe siècle? Dans la plupart de ces monuments, au contraire, la construction réelle n'est-elle pas tellement en désaccord avec les formes, qu'on est forcément entraîné à chercher les moyens propres à la dissimuler? Imagine-t-on l'effet que produirait, par exemple, la colonnade du Louvre avec des joints et lits franchement accusés comme ils le sont sur la façade de Notre-Dame de Paris? En cela donc on ne peut refuser aux architectes du moyen âge d'être vrais. On objectera peut-être ceci: que les Grecs et même les Romains n'ont pas accusé l'appareil, les moyens de la construction, le détail de la structure, et que cependant on ne saurait prétendre qu'ils ont ainsi manqué de goût en cessant d'être vrais. Les Grecs et les Romains, lorsqu'ils ont employé la pierre ou le marbre, ont eu en vue d'élever des édifices qui parussent tout d'une pièce; ils posaient leurs pierres parfaitement jointives, sans mortier entre elles, de manière à ce que les sutures demeurassent invisibles. Chez les Grecs, l'idée de donner à un édifice l'aspect d'une matière homogène, comme le serait un monument taillé dans le roc, était dominante à ce point que, s'ils ne pouvaient employer des matériaux d'une extrême finesse et pureté, lorsqu'ils bâtissaient en pierre et non en marbre, ils revêtissaient cette pierre d'un stuc fin, coloré, qui cachait absolument ces joints et lits à peine visibles. Or nous avons adopté ou cru adopter les formes de l'architecture des Grecs et des Romains, et nous construisons comme les architectes du moyen âge, en posant nos pierres sur mortier ou plâtre. C'est alors que nous ne faisons pas preuve de goût, puisque notre construction est visible, malgré nos efforts pour la dissimuler, et que nous adoptons des formes évidemment altérées si l'appareil reste apparent. Si donc, en construction, pour montrer du goût il faut être vrai, les anciens, comme les artistes du moyen âge, étaient des gens de goût, et nous ne saurions aujourd'hui prétendre au même avantage.
Passons aux dispositions générales. On ne saurait nier que nos églises du moyen âge, grandes ou petites, remplissaient parfaitement leur objet; que les plans de ces édifices, empruntés le plus souvent à la basilique romaine, mais profondément modifiés suivant les besoins et les moyens de construction, étaient bien conçus, puisque, depuis lors, on n'a rien su trouver de mieux, et que, même dans les temps où l'architecture du moyen âge était considérée comme un art barbare, on n'a fait autre chose que de copier ces plans, en les gâtant toutefois. La belle disposition des sanctuaires avec collatéraux, qui appartient au moyen âge, est non-seulement propre à l'objet, mais produit infailliblement un très-grand effet. Or cette disposition est simple, facile à comprendre, favorable aux développements des cérémonies du culte et à toutes les décorations les plus somptueuses. Partout une circulation facile, de l'air et de la lumière. Si, dans les châteaux des XIIIe, XIVe et XVe siècles, on ne découvre pas ces dispositions symétriques adoptées depuis lors, c'est qu'en réalité les besoins journaliers des habitants de ces demeures ne se prêtaient point à la symétrie. On songeait bien plutôt à trouver des distributions intérieures convenables, des moyens de défense suffisants, qu'à présenter aux passants des façades pondérées. Le goût ne consistait pas alors à chercher cette symétrie sans raison, mais à exprimer au contraire les besoins divers par les aspects différents donnés aux bâtiments. La grand'salle, la chapelle, les logis, les cuisines, les défenses, les communs, adoptaient le caractère d'architecture propre à chacune de ces parties. De même que dans la cité tous les édifices étaient marqués au coin de leur destination propre, dans le château, chaque service possédait une physionomie particulière. Cela n'était pas conforme au goût des architectes du XVIIe siècle, mais c'était conforme au goût absolu, c'est-à-dire à la vérité et à la raison. Les anciens ne procédaient pas autrement, et les diverses parties qui composaient une villa romaine n'avaient pas de rapports symétriques entre elles.
Les maisons des particuliers, pendant le moyen âge, soit qu'elles occupassent une grande surface, soit qu'elles fussent petites, laissaient voir clairement, à l'extérieur, leur distribution intérieure. La salle, le lieu de réunion de la famille se distinguaient des chambres et des cabinets par l'ordonnance de ses baies; les escaliers étaient visibles, en hors-d'oeuvre le plus souvent, et si des étages étaient entre-solés, l'architecte ne coupait pas de grandes fenêtres par les planchers. Une façade en pans-de-bois ne se cachait pas sous un enduit simulant la pierre, et les détails étaient à l'échelle de l'habitant. Si des portiques protégeaient les passants, ils étaient assez bas et assez profonds pour les abriter en laissant une circulation facile sous leurs arcades. Avant de songer à faire d'une fontaine un point de vue, on croyait qu'elle était destinée à fournir de l'eau à tous ceux qui en avaient besoin. Avant de faire de l'entrée d'un établissement public une décoration monumentale, on trouvait convenable d'abriter sous un auvent les personnes qui frappaient à la porte. La tâche de l'architecte de goût était donc de donner à toute chose une apparence conforme à l'usage, quitte à appliquer la décoration que comportait chaque partie. L'architecture ne s'imposait pas, elle obéissait; mais elle obéissait comme une personne libre, sans contrainte, sans abandonner ses principes, en mettant ses ressources et son savoir au service des besoins auxquels il fallait satisfaire, considérant, avant tout, ces besoins comme une question dominante.
Pour en revenir à des méthodes conformes au goût, nous avons donc quelque chose à faire, beaucoup à défaire; nous avons à laisser de côté ce que des esprits peu indulgents considèrent comme le pédantisme d'école, une coterie arrivée à la puissance d'une oligarchie tyrannique; nous avons à respecter le vrai, à repousser le mensonge, à lutter contre des habitudes déjà vieilles et considérées par cela même comme respectables; nous avons encore à acquérir cette souplesse dans l'emploi des moyens mis à notre disposition, souplesse qui est un des charmes de l'architecture des anciens comme de l'architecture du moyen âge et de la Renaissance. Un amateur des arts disait un jour devant nous, en admirant fort quelque groupe en terre-cuite de Bouchardon: «C'est l'antiquité, moins la roideur!» Autant de mots, autant d'hérésies en fait de goût. Les terres-cuites de Bouchardon ne ressemblent nullement aux antiques, et la sculpture antique n'est jamais roide. Ce qui est roide, gêné, contraint, c'est, en toute chose, l'imitation, la recherche, la manière. Celui qui sait, celui qui est vrai fait ce qu'il fait avec grâce, avec souplesse, avec goût par conséquent. En architecture, la seule façon de montrer du goût, c'est d'appliquer à propos des principes qui nous sont devenus familiers; ce n'est pas de rechercher l'imitation de formes, si belles qu'elles soient, sans savoir pourquoi on les imite.
Note 10: (retour) Quatremère de Quincy, Dictionnaire d'Architecture, art. Goût.
Note 11: (retour) Qu'est-ce que l'imitation des beaux-arts? L'auteur veut-il parler des arts d'imitation ou de l'imitation de la nature dans l'art?
Note 12: (retour) Voy. CONSTRUCTION.
GOUTTIÈRE, s. f. Voy. GARGOUILLE.
GRANGE, s. f. Bâtiment rural propre à renfermer les fourrages et les grains. Les moines, qui s'occupaient fort, surtout à dater du XIe siècle, de travaux agricoles, bâtirent un grand nombre de granges soit dans l'enceinte des abbayes, soit dans la campagne. À l'article ARCHITECTURE MONASTIQUE, nous avons donné quelques-uns de ces bâtiments, entourés de murs de clôture, comme le sont aujourd'hui nos fermes. Ces granges étaient en assez grand nombre et généralement bien construites, car il en existe encore plusieurs dans l'Île-de-France, la Normandie, la Champagne et la Touraine, qui datent des XIIe, XIIIe et XIVe siècles. C'est principalement à la fin du XIIe siècle, au moment où les abbayes, devenues très-riches, s'appliquaient à l'exploitation de leurs terres, que les plus belles granges et les plus vastes ont été élevées. Habituellement elles se composent de trois nefs séparées par deux rangées de piles ou de poteaux supportant une énorme charpente. MM. Verdier et Catiois, dans leur excellent ouvrage sur l'Architecture domestique au moyen âge, en donnent quelques-unes, et entre autres la belle grange monumentale de l'abbaye de Maubuisson, qui date de la première moitié du XIIIe siècle. M. de Caumont, dans son Bulletin monumental 13, signale celles de Perrières, celle d'Ardennes, celles de l'Eure; elles datent des XIIe, XIIIe et XIVe siècles. L'une des granges de l'abbaye de Longchamps, près Paris, existe encore tout entière; elle date du XIIIe siècle. Nous en donnons le plan (1).

L'entrée est pratiquée sur l'un des grands côtés, en A. Cette entrée se compose d'une porte charretière, avec porte bâtarde à côté; en B est un puits. La fig. 2 présente l'un des pignons renforcés chacun de cinq contre-forts, et la fig. 3 la coupe transversale.

La charpente est exécutée avec le plus grand soin, en beau bois de chêne, à vive arête.

La fig. 4 donne l'une des travées longitudinales 14. Ces granges sont toujours placées sur des terrains abrités, secs, nivelés avec soin, de manière à éloigner les eaux pluviales de la base des murs. Dans le voisinage des châteaux, et même quelquefois dans la bâille, des granges étaient élevées pour recevoir les approvisionnements de fourrages et de grains nécessaires à la garnison.
Les grandes abbayes avaient le soin de bâtir leurs granges sur des terrains entourés de murs de clôture, défendus par des échauguettes et de bonnes portes flanquées. Ces centres de provisions de grains et de fourrages étaient occupés par des moines que l'on détachait temporairement dans ces établissements isolés au milieu des champs, par suite de quelque faute, et pour faire pénitence. Ils étaient habités aussi par des frères convers et par des paysans. Ils contenaient donc des logements disposés près des portes, et, la nuit, les voyageurs pouvaient trouver un gîte dans ces dépendances, signalées au loin par un fanal et le son d'une cloche suspendue au-dessus de l'une des entrées. Peu à peu les granges d'abbayes, avec leurs enceintes et logis, virent se grouper autour d'elles des habitations de paysans, et devinrent ainsi le noyau d'un hameau. Nous avons en France beaucoup de villages qui n'ont pas une autre origine, et qui ont conservé le nom de la Grange. En temps de guerre, les paysans se renfermaient dans l'enceinte et s'y défendaient de leur mieux. À l'instigation de quelque seigneur rival de l'abbaye, il leur arrivait aussi de piller les granges des moines ou d'y mettre le feu, ce qui ne leur était pas d'un grand profit.
Quelquefois ces bâtiments ruraux contenaient des étables à rez-de-chaussée; telle est la belle grange qui existe encore près de l'église de Saint-Martin-au-Bois, dans le département de l'Oise. Le rez-de-chaussée est voûté et est destiné à recevoir des troupeaux; au-dessus, un vaste grenier sert de magasin aux fourrages. Les granges sont elles-mêmes, dans certaines localités, des bâtiments fortifiés, entourés de fossés, flanqués de tours; toutefois cette disposition n'apparaît guère qu'au XVe siècle, c'est-à-dire à l'époque où la campagne, en France, était continuellement ravagée par des bandes de routiers.
Note 13: (retour) T. XIV, p. 491; t. XV, p. 193, 443 et 492.
Note 14: (retour) Nous devons ces dessins, relevés avec le plus grand soin, à M. Davioud, architecte de la ville de Paris.
GRIFFE, s. f. C'est le nom que l'on donne à un appendice de la base des colonnes pendant une certaine partie du moyen âge. On sait que les bases des ordres ionique et corinthien romains se composent de tores circulaires reposant sur une plinthe carrée (1).

Il résulte de cette disposition que les tores A laissent quatre angles B, découverts, à surface supérieure horizontale, que le moindre mouvement de la colonne fait briser. Nous ne nions pas que la composition de ce détail architectonique ne soit parfaitement classique; mais, cet aveu fait, on nous permettra de considérer cette disposition comme vicieuse, au point de vue de la construction, peu rassurante même pour l'oeil, qui ne comprend pas à quoi servent ces angles minces réservés sous une charge verticale. Les anciens avaient eux-mêmes si bien senti l'inconvénient pratique de la plinthe carrée, qu'ils amaigrissaient, sous les diagonales ab, le lit inférieur de ces angles saillants (2). C'était un aveu de leur inutilité; il eût été plus simple de ne pas les conserver, et de donner à la plinthe une forme circulaire ou polygonale.

Il faut croire que les architectes romans voulurent éviter la casse des angles des plinthes de bases, car, dès le XIe siècle, nous observons déjà que, du dernier tore à l'angle de la plinthe, on laisse un appendice ou renfort qui donne un certain empattement et une plus grande résistance à ces angles. Ces premières griffes (3) sont très-simples de forme: ce sont des boutons, des ergots qui, partant du tore, s'appuient sur la surface triangulaire des quatre angles de la plinthe (voy. BASE). Mais bientôt, ces appendices étant fort près de l'oeil, on en fit des morceaux de sculpture très-soignés et souvent très-riches. Au XIIe siècle, dans les édifices rhénans, on voit des bases de colonnes cylindriques armées de griffes volumineuses, finement sculptées, qui amortissent puissamment les tores sur les plinthes.

Voici (4) une de ces griffes provenant des bases des gros piliers du choeur de la cathédrale de Strasbourg. Cet ornement donne à la base une fermeté très-convenable à ce membre de l'architecture, fermeté qui manque absolument à la base romaine; le gros tore inférieur, aplati (voy. BASE), se prête d'ailleurs à recevoir ces appendices.
Autour du choeur de l'église abbatiale de Vézelay, les gros piliers cylindriques reposent sur des bases ornées de fort belles griffes (5).

Nous en trouvons de très-remarquables, également sculptés, sur les angles des plinthes des grosses colonnes du sanctuaire de l'église collégiale de Poissy; quelques-unes (car ces griffes sont variées à chaque base) représentent des animaux fantastiques sculptés avec beaucoup de finesse (6). Ces deux exemples appartiennent à la fin du XIIe siècle. Au commencement du XIIIe siècle, les griffes sont moins variées comme forme; mais leur sculpture est énergique, bien appropriée à la place, largement modelée.

Voici (7) une des griffes provenant des bases du tour du choeur de la cathédrale de Laon. Cette feuille, terminée par un crochet, enroulée sur elle-même à son extrémité, se lie intimement au tore; elle semble avoir poussé sur sa surface et l'envelopper. On comprend que ces appendices puissants donnent de la solidité aux cornes de la plinthe et leur permettent de résister à une pression produite par un tassement irrégulier.
Quelquefois (au commencement du XIIIe siècle) la griffe n'est qu'un évidement pratiqué à l'angle d'une plinthe très-épaisse. On voit des exemples de ces sortes de griffes aux colonnes engagées des chapelles du tour du choeur de la cathédrale de Troyes (8).

La griffe la plus vulgaire adoptée à cette époque affecte la forme d'une feuille d'eau, ressemblant assez au rez-de-coeur de l'architecture antique, mais d'un modelé plus énergique. C'est ainsi que sont sculptées les griffes des bases des colonnes de la partie inférieure de la cathédrale de Paris (9). Vers le milieu du XIIIe siècle, les plinthes des bases étant presque toujours taillées sur plan octogonal, la griffe disparaît. On la voit renaître dans quelques monuments du XIVe siècle, comme à la cathédrale (ancienne) de Carcassonne(10), à la cathédrale de Sens (11) 15. Elle disparaît définitivement au XVe siècle.

On peut regretter que ce bel ornement ait été complétement abandonné; et bien que si, par aventure, un architecte s'avisait de l'employer de nouveau, comme un appendice nécessaire, rassurant pour l'oeil, on ne manquerait pas d'accuser cet architecte de nous faire rétrograder vers les temps barbares. Il ne faut pas désespérer de lui voir reprendre la place qu'il occupait si légitimement.
Note 15: (retour) Pilier de gauche à l'entrée de la nef, repris au XIVe siècle.
GRILLAGE, s. m. Réseau en fer mince ou en fil de fer destiné à garantir les vitraux contre la grêle, à préserver des sculptures du contact, quelquefois aussi des objets précieux déposés dans les trésors des églises ou des châteaux. Il reste peu d'exemples de grillages d'une époque ancienne; cependant nous en possédons encore qui datent du XIIIe siècle. Les fenêtres du chevet de l'ancienne cathédrale de Béziers conservent leurs grillages, qui sont de jolies pièces de forge.

Ils se composent (1) de montants simples et alternativement de montants auxquels sont soudées de fines brindilles de fer. Ces grillages sont scellés dans les tableaux des baies au moyen des traverses A; celles-ci sont pourvues d'oeils renflés, ainsi que l'indique le détail B. Les traverses ont 0,02 c. d'épaisseur sur 0,035m c. de largeur; les montants ont 0,015m d'épaisseur sur 0,02 c. de largeur; les brindilles ont en moyenne 0,01 c. carré, et sont retenues au moyen d'embrasses C serrées à froid. Mais ce sont là plutôt des grilles très-délicates que des grillages.

Voici (2) un exemple de grillages fabriqués avec des fils de fer et qui datent du XIVe siècle. Ce fragment a été trouvé à Rouen chez un marchand de ferrailles, et nous en avons vu un autre absolument semblable dans la cathédrale de Munich. On admettra que les anciens serruriers ou grillageurs avaient plus d'imagination que ceux de notre temps. Nos grillages modernes sont d'un aspect moins agréable.
GRILLE, s. f. Clôture à jour en fer ou en bronze. L'antiquité romaine employait souvent le bronze coulé pour les grilles de clôture. À l'exemple des anciens, dans les premiers temps du moyen âge, ce procédé fut quelquefois adopté. Tout le monde connaît les belles grilles en cuivre coulé de Notre-Dame d'Aix-la-Chapelle, et qui datent de l'époque de Charlemagne 16. Ces clôtures avaient été vraisemblablement fabriquées soit en Orient, soit par des artistes byzantins établis en Lombardie. Mais, outre que ces clôtures étaient fort chères, tant à cause de la matière employée que par les frais de modèle et de moulage, elles pouvaient être brisées facilement. Le fer, d'un emploi très-commun dans les Gaules dès une époque reculée, fut de préférence adopté pour toutes les clôtures à jour fabriquées pendant le moyen âge en France. L'art du forgeron était d'ailleurs développé chez nous, et il se perfectionna singulièrement pendant les XIe et XIIe siècles. Il faut savoir qu'alors on n'avait pas les moyens de fabrication introduits par l'industrie moderne; le fer était étendu en plaques ou corroyé en forme de barres, à la main, sans le secours de ces cylindres puissants qui, aujourd'hui, réduisent instantanément un bloc de fer rouge en fil de fer. Obtenir une barre de fer longue, d'une égale épaisseur, bien équarrie et dressée, c'était là une première difficulté, dont nous ne pouvons avoir une idée, puisque tous les fers nous sont livrés, par les usines, réduits en barres de toutes grosseurs et de sections très-variées, sans que la main du forgeron ait en rien participé à ce premier travail. Bien que l'on ne puisse méconnaître les immenses avantages de la fabrication mécanique, il est certain cependant que les forgerons ont dû peu à peu perdre l'habitude de manier le fer et d'en connaître les qualités. Il y a vingt-cinq ans, on aurait vainement cherché à Paris un forgeron capable de façonner la grille la plus simple, et si nous en trouvons aujourd'hui, c'est grâce aux recherches sur les arts industriels du moyen âge, grâce à quelques-uns de ces architectes, qui, au dire de plusieurs, ne tendent à rien moins qu'à faire rétrograder l'art de l'architecture vers la barbarie. Ceci dit, afin de rendre à chacun ce qui lui est dû, occupons-nous des grilles. On comprendra sans peine que, lorsqu'il fallait réduire à la main un morceau de fer rougi en une barre, on évitait autant que possible de donner à ces barres une grande longueur. Le forgeron, obligé de retourner le bloc sur l'enclume et de l'amener peu à peu aux dimensions d'une tringle équarrie, ne pouvait dépasser certaines dimensions assez peu étendues, et devait chercher, par des combinaisons d'assemblage, à éviter les pièces très-longues, par conséquent très-lourdes. Cela seul explique pourquoi les plus anciennes grilles sont composées autant que possible, de petites pièces de forge.
Une des plus anciennes grilles que nous connaissions, et qui soit une oeuvre d'art, se trouve dans la cathédrale du Puy-en-Vélay. Cette grille ouvrante, à un vantail, se compose d'un châssis de fer de 0,04 c. sur 0,02 c. d'épaisseur, contenant quatre traverses séparées par des montants de 0,015m sur 0,02 c., entre lesquels sont disposés des rinceaux de fer très-artistement composés. Cette grille date, pensons-nous, du commencement du XIIe siècle. En voici un fragment (1).

Dans la hauteur, on compte cinq panneaux de brindilles soudées à des embases et arrêtées aux montants par des embrasses B. Ces embrasses ne sont pas soudées, mais simplement contournées à chaud. Le fer forgé à la main présentant toujours des irrégularités, le forgeron, pour dissimuler ces défauts, a eu l'idée de couvrir les montants, les brindilles et leurs embases, de coups de poinçon et de burin qui donnent à cette ferronnerie un aspect brillant, précieux et fin. Le détail (2) indique ce genre de travail fait à froid. L'irrégularité même du travail donne un charme particulier à ces pièces de forge dans lesquelles on sent partout la main de l'homme. Les montants de cette grille sont posés de champ et portent, ainsi que nous l'avons dit, 0,015m sur 0,02 c. Les brindilles ont en moyenne 0,007m sur 0,015m.

Pendant le cours du XIIe siècle, le mode de fabrication des grilles ne se modifie guère; ce sont toujours des montants compris dans des châssis et renfermant des ornements composés de brindilles de fer à section carrée ou méplate. Quand on veut donner beaucoup de force aux grilles, les montants, comme les brindilles, se présentent de champ (3); quand, au contraire, on prétend donner un aspect léger à ces grilles, les montants et brindilles présentent à la vue leur côté large (4). Ceci peut paraître étrange, car le tracé géométral produit précisément l'effet contraire; mais les architectes du moyen âge ne se préoccupaient pas de l'effet géométral, purement de convention. Il est clair que, toute grille se voyant obliquement dans la plus grande partie de sa surface, si les fers sont posés de champ, leurs côtés larges apparaissent et se développent, ce qui donne un aspect robuste à l'ouvrage; si les fers, au contraire, sont posés de plat, leurs faces larges diminuent par l'effet de la perspective, et les surfaces étroites n'empiètent point sur les vides.

La fig. 5, qui donne le même dessin de grille, l'un, celui A, obtenu avec des fers de champ, l'autre, celui B, avec des fers de plat, fera comprendre cette loi si simple et si peu observée généralement, par suite de l'habitude que nous avons prise de ne pas nous préoccuper de l'effet perspectif en exécution. D'après le tracé géométral, la grille A semblerait légère et la grille B paraîtrait robuste, tandis qu'en exécution c'est le contraire qui a lieu.
Vers la fin du XIIe siècle, cependant, les serruriers cherchèrent, parfois, d'autres combinaisons que celles données par des enroulements de brindilles compris entre des montants et des traverses: ils assemblèrent ensemble, avec beaucoup d'adresse, des panneaux d'ornements formant, par leur réunion, de grands dessins. Cela toutefois ne fut guère employé que pour des clôtures délicates et composées de fers très-minces. M. Didron possède une très-jolie grille de ce genre, qui a été gravée dans les Annales archéologiques 17, et qui appartient certainement à la serrurerie si remarquable de la fin du XIIe siècle et du commencement du XIIIe. Ces grilles, composées de brindilles enroulées et seulement ornées de quelques coups de poinçons ou de gravures, semblèrent trop pauvres aux forgerons du XIIe siècle, lorsqu'il fallut entourer des sanctuaires, fermer certaines parties importantes des édifices religieux ou civils; bientôt ils terminèrent ces brindilles par des ornements enlevés à chaud au moyen d'une étampe ou matrice de fer trempé. C'est ainsi que sont fabriquées les belles grilles dont nous voyons encore quelques débris dans l'église abbatiale de Saint-Denis, et dont nous donnons ici un spécimen (6).

Ces grilles, qui datent de la fin du XIIe siècle, sont forgées avec une rare perfection, et il semble qu'entre les mains de l'ouvrier le fer avait acquis la malléabilité du plomb. Les ornements ne sont étampés que sur une face. Notre figure est au quart de l'exécution; en A, nous avons tracé la section d'une des brindilles, moitié d'exécution. L'abbé Suger avait fait faire pour son église des grilles en cuivre fondu, ainsi que le constatent les auteurs contemporains et Dom Doublet qui les avait vues; elles ont été détruites au commencement du dernier siècle. On observera que le système de grilles en fer composées de panneaux d'ornements compris entre des montants et traverses offrait en même temps beaucoup de solidité et de légèreté; ces panneaux pouvaient être facilement montés, démontés ou réparés, riches ou simples, très-fournis ou grêles. Il arrivait que ces panneaux étaient parfois embrevés entre des montants munis de plaques de fer débordant leur largeur et formant ainsi une suite de rainures. Beaucoup de sanctuaires d'églises étaient fermés par des grilles ainsi combinées; nous en trouvons encore un assez bel exemple dans le choeur de l'église abbatiale de Saint-Germer 18, et, de tous côtés, des débris qui nous font assez voir que leur emploi était fréquent, que ces sortes d'ouvrages n'étaient point très-rares, et que les forgerons les façonnaient sans difficulté. Des armoires contenant des objets précieux, des tombeaux, des châsses, étaient entourés parfois de grilles d'une extrême richesse, surtout à l'époque où l'art du forgeron nous fournit les plus beaux exemples de serrurerie, nous voulons parler du XIIIe siècle (voy. SERRURERIE). Ces sortes de grilles ne sont décorées que du côté de la face extérieure, et les brindilles, au lieu d'être comprises entre des montants et des traverses, sont souvent appliquées devant l'armature principale. Telle est, par exemple, la belle grille en fer qui protége le tombeau de la reine Eléonor dans le choeur de l'église abbatiale de Westminster. Nous possédons aussi, dans les magasins de l'église impériale de Saint-Denis, des fragments de grilles forgées et assemblées suivant cette méthode (6 bis), qui avait l'avantage de roidir singulièrement les châssis simples composés de montants et de traverses. Ces enroulements de brindilles finement forgées, étampées et retouchées au burin, rivées sur des châssis en fer, leur donnaient une grande richesse en même temps qu'une solidité à toute épreuve.

Les grilles de défense des trésors, des sanctuaires, des riches tombeaux, de précieux reliquaires, présentent non-seulement un obstacle aux voleurs ou aux indiscrets, mais elles sont aussi parfois armées de pointes et de chardons qui en rendent l'escalade périlleuse: telle est la grille du sanctuaire de l'église de Conques (Aveyron), dont nous donnons (6 ter) un fragment.

Cette grille, qui n'a que 1m,40 de hauteur, non compris les couronnements, présente extérieurement, au droit de chaque montant, un appendice saillant qui ôte toute idée de tenter une escalade; de plus, les montants eux-mêmes sont munis de fers pointus, barbelés, forgés avec soin. Les appendices A se terminent par de petites têtes de dragons qui semblent être les gardiens du sanctuaire. Cette grille curieuse est décrite et dessinée en géométral dans le tome Xl des Annales archéologiques de M. Didron; elle nous paraît appartenir à la fin du XIIe siècle ou au commencement du XIIIe.
Avant de présenter des modèles de grilles de clôture d'une époque plus récente, il est nécessaire de dire quelques mots des grilles dormantes et de garde scellées dans les baies vitrées, et servant à la fois de grillage et de défense. Les fenêtres de trésors d'églises, de rez-de-chaussée, de baies de châteaux, étaient souvent munies de ces sortes de grilles artistement travaillées. Nous voyons encore, à l'extérieur des baies romanes de l'église de la Brède (Gironde), des grilles du XIIe siècle, intéressantes à étudier. Leur fabrication est très-naïve, et cependant elles produisent un fort bon effet. Ces fenêtres romanes n'ont pas plus de 0,26 c. de largeur sur une hauteur de 0,90 c.

La défense (7) consiste en une seule barre verticale de fer carré de 0,03 c., avec traverses A fichées comme des clavettes à travers des renflements de la barre verticale. Ces traverses sont aplaties, 0,02 c. sur 0,007m. Des enroulements en fer plat de 0,03 c. sur 0,004m sont également traversés et maintenus, par conséquent, au moyen des traverses-clavettes A. La tige verticale est affûtée à sa partie supérieure pour entrer dans un trou pratiqué dans la clef de l'arc, et façonnée en queue de carpe à sa partie inférieure pour fournir un bon scellement. Ici donc pas de soudures, seulement de petites pièces de forge assemblées de la manière la plus naturelle. Nous avons vu aussi de ces sortes de grilles de défense posées devant des fenêtres du XIIIe siècle, et qui se composent de barres verticales en fer plat de 0,035m sur 0,02 c., avec clavettes rivées en croix, ainsi que l'indique la fig. 8 19.

Le rivet est carré afin d'empêcher les clavettes A de tourner. Il nous faut mentionner ici encore une fort belle grille dormante de défense trouvée à Agen, rue Saint-Antoine 20. Elle remplit aujourd'hui un cintre complet de 1m,60 de diamètre, et devait, pensons-nous, garnir une rose. Six panneaux, disposés en claveaux, composent le demi-cintre, et sont maintenus au moyen de deux demi-cercles et de sept barres rayonnantes (9). Nous donnons, en A, le détail de la pièce principale de l'un de ces panneaux formés de brindilles en fer carré de 0,008m, soudées au moyen d'embases B, suivant la méthode employée par les forgerons des XIIIe et XIVe siècles (voy. SERRURERIE).

Revenons maintenant aux grilles de clôtures avec parties ouvrantes. La fig. 6 nous fournit un des premiers exemples de ces sortes de grilles avec ornements étampés; mais là, les fers sont étampés et côtelés sur le plat; le travail était beaucoup plus difficile s'il s'agissait d'orner les brindilles sur le champ du fer. C'est cependant ce que firent souvent les forgerons du XIIIe siècle. On voit encore dans l'église de Braîne, près de Soissons, des portions de grilles dormantes d'un charmant dessin, forgées suivant cette méthode. Très-légères en apparence, ces grilles, dont les fers se présentent de champ, ont une grande solidité.

Nous donnons (10) un des fragments de leurs panneaux. En A est tracée la section des brindilles, grandeur d'exécution. Ces brindilles sont étampées des deux côtés en B et C, ce qui ajoute singulièrement à la difficulté d'exécution. L'épaisseur du champ diminue beaucoup à l'extrémité de chaque tigette portant un ornement, de manière à ce que ces ornements se renferment dans l'épaisseur EF.
Cependant l'art du forgeron, en France, ne restait pas stationnaire; il cherchait des moyens nouveaux, des formes qui n'avaient pas encore été employées. Dès le commencement du XIVe siècle, le système des grilles composées de brindilles contournées et étampées, assemblées au moyen d'embrasses non soudées, comme les grilles de Saint-Denis, de Saint-Germer, de Saint-Aventin 21, de Braîne, de la cathédrale de Reims, n'étaient plus guère usitées; on cherchait d'autres combinaisons, on introduisait les plaques de fer battu découpées et modelées, comme moyen décoratif, à la place des ornements étampés en plein fer. Les forgerons voulaient produire plus d'effet avec des moyens de fabrication plus simples. L'industrie se perfectionnait, mais l'art y perdait. Les rivets remplaçaient les embrasses et même les soudures; on voulait fabriquer plus vite et avec peu de dépense; il ne faut pas moins reconnaître que les ouvriers de cette époque étaient beaucoup plus habiles que les nôtres lorsqu'il s'agissait de manier le fer et de le soumettre à l'action du feu. En effet, pour qui a pris la peine de se rendre compte des procédés employés par les forgerons, ce qui doit surprendre dans la fabrication de ces ouvrages délicats, c'est l'égalité dans l'exécution et la malléabilité laissée au métal. Les fers de ces anciennes grilles, bien qu'ils aient dû passer au feu un grand nombre de fois avant d'arriver à l'achèvement de l'ouvrage, ne sont jamais brûlés; ils conservent leur souplesse, et les soudures sont faites avec une perfection et une liberté très-difficiles à obtenir aujourd'hui 22. La lime s'est chargée de rectifier les maladresses du forgeron; alors la lime ne s'attaquait jamais aux pièces apparentes: c'était le marteau seul qui laissait son empreinte sur le fer.

Voici un fragment d'une grille de clôture du XIVe siècle (11) qui explique la transition entre le système des grilles avec ornements étampés et ceux obtenus au moyen de plaques de tôle modelées, rapportées à l'aide de rivures. Ici ce n'est pas encore la tôle rapportée, mais ce n'est plus le fer étampé; le principe des montants et traverses persiste, chaque brindille est façonnée ainsi que l'indique le détail A; les feuilles découpées sont obtenues aux dépens de la brindille dont le fer a été refoulé pour former une masse, aplatie ensuite au marteau. Au lieu d'être attachées aux montants par des embrasses, comme dans les grilles du XIIIe siècle, ces brindilles sont rivées latéralement en C. Les montants passés à travers les oeils des traverses hautes sont rivées sous les traverses basses en D; de plus, ils sont recouverts sur les deux faces de deux plaques minces de fer battu retouchées et gravées au burin. Ces plaques, que nous avons supprimées dans le tracé de l'ensemble de la grille, sont figurées dans le détail E; les montants et traverses ont 0,016m de large sur 0,025m de champ; les brindilles, 0,006m sur 0,016m de champ. La grille tout entière, d'une traverse à l'autre, porte près d'un mètre 23.
Généralement, à la fin du XIVe siècle et au commencement du XVe, les plaques de fer battu servant d'ornements sont soudées aux gros fers ou aux brindilles; ce n'est que plus tard que la tôle rivée est employée comme décoration. Il existe, dans le cloître de la cathédrale du Puy-en-Vélay, une grille de ce genre très-habilement forgée. Nous en donnons un ensemble (12).

Chaque travée porte une accolade soudée aux contre-forts A (voy., en K, la section sur a b). Le sommet de l'accolade est rivé, en B, au montant-milieu de la travée qui est tors; les autres montants sont à section carrée de 0,015m de gros. Les trèfles C sont aplatis à la forge aux dépens des extrémités des redans. Les fleurons D sont en tôle et soudés aux accolades. Entre chaque montant, de petites plaques de tôle découpée et embrévées forment l'arcature E (voy. le détail G). Les fleurons du couronnement sont également en tôle et soudés avec soin aux pointes des fers. Les bases et chapiteaux des montants, les profils des contre-forts sont façonnés au marteau, sans trace de lime. On posait souvent alors (vers le commencement du XVe siècle) les montants ou traverses sur l'angle, comme l'indique le dessin ci-contre. Cela permettait parfois de maintenir les ornements de remplissage sans avoir recours aux rivets ou aux embrasses. En voici un exemple remarquable qui provient de la cathédrale de Constance (13).

On voit ici comment le fer diagonal A est maintenu prisonnier par les deux entailles qui entrent dans les deux traverses B posées sur l'angle. Dans cet exemple, les fers plats des brindilles rivées en C aux fers diagonaux se convertissent en plaques de tôle découpée à leur pli D, et ces tôles sont toutes variées, comme l'indiquent les divers tracés H.
Dans le cloître de cette dernière cathédrale, on voit encore une jolie grille du XVe siècle, sans ornements de fer battu ou étampé, mais dont la composition simple et le procédé de fabrication méritent d'être signalés (14).

De distance en distance, des contre-forts A reçoivent des traverses B, à travers lesquelles passent les montants C posés d'angle. Ces montants sont, de deux en deux, élégis à leur partie supérieure, ainsi que l'indique le détail D, pour recevoir les brindilles E et leurs rivets. Les autres montants F possèdent un tenon, qui vient s'assembler dans la corniche supérieure, à travers les brindilles, en G.
L'ornementation inférieure présente une construction analogue. Les brindilles se retournent le long des contre-forts, comme nous le voyons en I, et les traverses L les fixent à ces contre-forts, ainsi que l'indique le détail O. D'autre part, ces brindilles s'appuient le long des évidements façonnés à la partie inférieure des lances P auxquelles des rivets les attachent. Les montants F'passent, à travers ces brindilles, en R, pour venir s'assembler dans la barre horizontale S. On comprend que ce système de ferrures est fort solide; les brindilles ne sont pas seulement attachées par des rivets, mais dépendent de la structure principale, puisque les montants ou les traverses les arrêtent d'une manière sûre par des tenons. Les montants sont en fer carré de 0,015m, les contre-forts en fer de 0,03 c. sur 0,025m, les traverses en fer de 0,03 c. sur 0,02 c.
Les derniers exemples de grilles que nous venons de donner indiquent, la plupart, des couronnements plus ou moins riches. En effet, les grilles du moyen âge en possédaient toujours, à moins qu'elles ne fussent disposées pour servir d'appuis. Ces couronnements prennent parfois, à dater du XVe siècle, une grande importance, et ne sont que la prolongation décorée des montants dépassant la traverse supérieure. Dans les baies de la clôture du choeur de la cathédrale de Toulouse, on remarque des grilles dormantes, très-simples d'ailleurs, fabriquées au XVe siècle, et dont les couronnements remplissent les trilobes d'une arcature en pierre.

Voici (15) l'un d'eux. Les grilles dormantes des fenêtres de châteaux ou de maisons sont presque toujours terminées par des couronnements que l'on peut considérer comme un épanouissement des montants. Nous citerons ici les grilles des fenêtres du château de Tarascon (XVe siècle). Ces grilles se composent de montants serrés pénétrant des traverses à oeils renflés et formant avec eux des carrés parfaits.

Les deux montants extrêmes et celui du milieu sont terminés (16) par des fleurons de tôle soudée, tandis que les extrémités inférieures de ces mêmes montants sont affûtées en pointes très-aiguës. Chaque montant est scellé dans la pierre par un coude en équerre, ainsi que l'indique le profil A. Il en est de même des traverses.

Souvent les montants de grilles dormantes de fenêtres sont terminés à la partie supérieure et à l'extrémité inférieure par des pointes de fer très-ouvragées qui présentent des défenses formidables; ces sortes de grilles épineuses, dont nous présentons (17) un spécimen, étaient placées devant les fenêtres des châteaux, afin d'éviter surtout les tentatives de trahison, l'introduction d'ennemis dans une place de guerre au moyen d'échelles, par les ouvertures donnant sur le dehors. Ces grilles, profondément scellées au plomb à chaque traverse A et même quelquefois à chaque montant, ne pouvaient être arrachées qu'après un long travail. Les mesures de précaution étaient même poussées si loin que, dans certains cas, les montants et traverses étaient assemblés de telle façon qu'il devenait impossible soit de faire couler les montants dans les oeils des traverses, soit les traverses dans les oeils des montants, ces oeils étant alternativement pratiqués dans les traverses et les montants (18).

Il fallait être fort habile forgeron pour fabriquer de pareilles grilles, car chaque oeil renflé devait être forgé à mesure que l'on assemblait les traverses et les montants; c'est-à-dire que la grille devait être forgée toute brandie, ce qui devait occasionner un travail considérable. L'ouvrier devait ainsi mettre au feu chaque maille de grille un certain nombre de fois. Mais ces hommes semblaient se jouer avec les difficultés de main-d'oeuvre qui aujourd'hui nous paraissent insurmontables. L'exemple que nous donnons ici provient d'une maison de Constance. On trouve des grilles de ce genre, c'est-à-dire à oeils alternés, à Troyes, à Strasbourg, et dans beaucoup de localités du Nord et de l'Est. Elles datent des XIVe, XVe et XVIe siècles. Celle-ci (fig. 18) est du commencement du XVIe siècle. Toutefois, l'habileté des forgerons n'est pas égale dans toutes les provinces qui composent la France de nos jours.

On travaillait beaucoup mieux le fer au nord de la Loire et dans les provinces voisines du Rhin que dans l'Ouest et dans le Midi. Certaines grilles appartenant à des édifices du XVe siècle, sur les bords de la Garonne, par exemple, quoique bien composées, ne peuvent être comparées aux ouvrages de ferronnerie de l'Île-de-France, de la Picardie ou des Flandres. On voit encore, dans l'église Saint-Sernin de Toulouse, une grille (19) qui clôt le choeur au droit des piles du transsept; quoique cette oeuvre de serrurerie soit fort bien entendue, comme composition, le travail en est des plus grossiers. Les montants en fer carré, lourdement travaillés, se terminent par des couronnements E en fer battu et soudés. Des frises en tôle façonnée et ajourée A et B masquent les traverses de la grille et leurs trous renflés, ainsi que l'indique le profil D. Les tôles de la traverse b, détaillées en B, se terminent par un petit crénelage avec rosaces, dont le figuré perspectif C explique la façon. Les tôles des traverses ab, AB, sont maintenues par des rivets qui passent au-dessus et au-dessous des barres horizontales; elles sont donc entièrement indépendantes des grilles et ne servent qu'à la décoration de l'oeuvre. Ces grilles, qui datent de la fin du XVe siècle, sont des premières où la tôle rapportée et rivée remplace les plaques de fer battu et soudées. Cela simplifiait la fabrication, allait permettre de décorer la serrurerie d'une façon très-riche, mais devait peu à peu supprimer l'école des forgerons, si brillante pendant une partie du XIIe siècle et tout le cours du XIIIe. Cette école, cependant, n'était pas près de s'éteindre dans les provinces du Nord-Est, ainsi que nous venons de le dire, et la serrurerie des XVe et XVIe siècles est, comme oeuvre de forge, sur les bords du Rhin, dans les Flandres, en Suisse et en Bavière, d'une exécution parfaite. Nous ne savons pas quel fut le forgeron qui fabriqua les grilles du tombeau de Maximilien à Insbruck; mais, comme oeuvre de serrurerie, ces grilles sont supérieures à tout ce que nous connaissons en ce genre (voy. serrurerie). À la fin du XVe siècle et au commencement du XVIe, on trouve assez souvent, dans les provinces de l'Est, des grilles dont les panneaux sont façonnés ainsi que l'indique la fig. 20.

Tout le compartiment est formé d'une seule tige de fer rond de 0,012m de grosseur, se repliant sur elle-même et se pénétrant, comme le fait voir le tracé A. À l'article serrurerie, nous décrivons les procédés de fabrication de ces sortes de grilles, qu'à grand'peine, et après avoir brûlé bien des tringles de fer, nous sommes parvenus à faire reproduire par des forgerons très-habiles. Cependant ces sortes de grilles composées de tiges de fer se pénétrant en tous sens sont assez communes pour que l'on doive admettre qu'on les façonnait aux XVe et XVIe siècles sans difficultés. Elles présentaient, quoique légères, une parfaite solidité; car ce qui aujourd'hui rend les grilles peu solides, malgré le poids extraordinaire qu'on est obligé de leur donner, ce sont ces tenons et ces goupilles qui font de la serrurerie une fabrication que l'on pourrait comparer à la menuiserie. Assembler des fers au moyen de tenons et de mortaises avec goupilles eût paru aux forgerons du moyen âge et de la Renaissance une énormité; ce moyen, convenable lorsqu'il s'agit de menuiserie, ne s'accorde point avec la nature du fer et les dimensions qu'on doit donner aux parties d'une grille. De fait, nous ne savons plus souder le fer, nous l'assemblons; ce n'est plus là de la serrurerie; et cependant nous croyons savoir employer les métaux propres aux bâtiments beaucoup mieux que ne le faisaient les serruriers qui nous ont précédés de quelques siècles. Il est clair que la grande fabrication, celle des usines, s'est développée de notre temps d'une manière remarquable; mais il est certain aussi que la main-d'oeuvre est tombée bien au-dessous de ce qu'elle était il y a quelques siècles, lorsqu'il s'agit de travailler le fer. On a fait cependant encore de fort belles grilles en France pendant les XVIe, XVIIe et XVIIIe siècles; mais la tôle repoussée et rivée joue le rôle principal dans la décoration de ces ouvrages; on a perdu les procédés de soudure si habilement pratiqués par les corporations de forgerons des temps antérieurs.
Note 16: (retour) Voy. Gailhabaud, Architecture du Ve au XVIIe siècle, t. IV.
Note 17: (retour) T. X, p, 117.
Note 18: (retour) Voy. l'Encyclopédie d'architecture. Bance, éditeur.
Note 19: (retour) Maison à Saint-Antonin (Tarn-et-Garonne).
Note 20: (retour) Par M. Alaux, architecte. Cette grille, ou plutôt ce fragment de grille, est disposé aujourd'hui sous le cintre d'une porte d'habitation dont la construction remonte à une époque assez récente. Le centre de la grille n'existe plus, nous le supposons rétabli.
Note 21: (retour) Voy. Gailhabaud, L'Architecture du Ve au XVIIe siècle et les arts qui en dépendent, t. IV.
Note 22: (retour) Nous ne voulons pas paraître injuste envers notre temps: avec un peu de persistance et de bons avis on arrive encore aujourd'hui à faire fabriquer ces ouvrages de ferronnerie. D'ailleurs ce ne sont jamais les ouvriers qui nous font défaut en France. L'obstacle, c'est la routine, ce sont les préjugés; tranchons le mot: l'ignorance des chefs, ignorance passée à l'état de privilége inattaquable.
Note 23: (retour) Provenant d'une clôture, magasins de Saint-Denis.
GRISAILLE. (Voy. VERRIÈRE.)
GUETTE, s. f. Gaîte. La personne chargée de guetter au sommet des défenses des châteaux.
«Nous n'avons point de gaîte, sauriiez-vous gaitier? 24»
La gaîte était chargée non-seulement de prévenir les gens du château de tout ce qui se passait dans la campagne, mais aussi de jouer des airs à certains moments de la journée:
«Gautiers est demorez, s'acheta moïnel,
Grant buisine d'airain et cornet et fretel 25.»
Quelquefois le nom de gaite est donné au lieu où se tient le guetteur (voy. ÉCHAUGUETTE).
Note 24: (retour) Gautier d'Aupais. Fabliau du XIIIe siècle, pub. par Fr. Michel; 1835.
Note 25: (retour) Gautier d'Aupais. Fabliau du XIIIe siècle, pub. par Fr. Michel; 1835.
GUICHET, s. m. Petit vantail découpé dans le grand vantail d'une porte et pouvant s'ouvrir séparément (voy. PORTE).
GYPSERIE, s. f. Ouvrage léger en plâtre. On a fort employé le plâtre pendant le moyen âge, particulièrement pour enduire les intérieurs. Nous avons vu encore, dans le palais archiépiscopal de Narbonne, une petite rose dont les compartiments en plâtre séparaient deux salles voisines. Cet ouvrage datait du XIVe siècle. Bon nombre de manteaux de cheminées, dans les maisons, étaient faits en plâtre (voy. CHEMINÉE). On faisait aussi en plâtre des cloisons, des clôtures à jour dans les intérieurs des palais, des augets de plafond (voy. PLANCHER).

HALLE, s. f. Lieu enclos, couvert ou découvert, dans lequel des marchands, moyennant une redevance payée au seigneur dudit lieu, acquiéraient le droit de vendre certaines natures de marchandises. Dès les Xe et XIe siècles il y avait à Paris une halle qui se tenait sur un terrain entouré d'un fossé désigné sous le nom de Campelli, Champeaux, à peu près sur l'emplacement du marché des Innocents. «Au commencement du XIIe siècle, dit Sauval 26, Louis le Gros y établit un nouveau marché pour les merciers et les changeurs... Philippe-Auguste, en 1181, y transféra la foire de Saint-Lazare... Deux ans après il y fit faire deux halles entourées d'une muraille garnie de logis et fermée de bonnes portes, afin que, quand il pleut, les marchands y pussent vendre leurs marchandises et les tenir à couvert en tout temps et en toute sûreté.» Les halles se multiplièrent singulièrement à Paris pendant le cours des XIIIe et XIVe siècles; saint Louis en fit établir plusieurs vers 1263. Généralement les halles, pendant le moyen âge, n'étaient autre chose qu'un espace appartenant à un seigneur féodal ou à la ville, sur lequel on permettait la vente de marchandises. La halle se tenait sur une place, sous des porches d'églises, sous des portiques de maisons, autour des beffrois, des hôtels de ville, sous des appentis. Par le fait, la halle n'avait pas un caractère monumental qui lui fût particulier. Il n'y a donc pas lieu de nous étendre ici sur ces établissements. Sauval, cependant, mentionne la halle aux draps en gros de Paris, qui, dès 1417, «consistait en vingt travées, avait six toises de large, et était couverte d'une voûte de pierre de taille.» Mais cette halle ayant été démolie en 1572, nous n'avons aucun renseignement sur sa structure.
Note 26: (retour) L. IV.
HERSE, s. f. Harse, coulisse. Lourde claire-voie composée de pièces de fer ou de charpente assemblées, s'engageant verticalement dans deux rainures et formant un obstacle sous le passage d'une porte fortifiée. La herse se relève au moyen de contre-poids et d'un treuil; elle retombe par son propre poids. Les Romains connaissaient la herse; on la voit figurée sur des vignettes de manuscrits dès les IXe et XIe siècles. Toutefois, dans les édifices militaires encore debout, nous n'en connaissons pas qui soient antérieures au XIIe siècle.
Nous avons l'occasion de donner un certain nombre de combinaisons de herses à l'article PORTE.
HEURTOIR, s. m. Hurtoir. Marteau pour frapper aux portes. Les premiers heurtoirs paraissent avoir été de petits maillets suspendus extérieurement aux huis des portes.
«Bien sembloit l'hermitage de vieil antiquité.
Cele part est alée s'a à l'uisset hurté.
D'un maillet qui là pent a sus l'uis assené 27.»
Les anneaux de fer attachés à des têtes de bronze en dehors des portes, dès une époque très-ancienne, servaient également de heurtoirs, car ils sont souvent munis d'une boule ou partie renflée qui frappait sur une grosse tête de clou. Ces anneaux facilitaient le tirage des vantaux lorsqu'on voulait les fermer; de plus ils étaient, à la porte de certaines églises, un signe d'asile. Pour requérir l'asile, il suffisait de saisir l'anneau. À ce sujet, Lebeuf 28 dit avoir eu connaissance de cet ancien usage (mentionné d'ailleurs par Grégoire de Tours) dans l'histoire des miracles de saint Germain, recueillis par le moine Hérie d'Auxerre, sous Charles le Chauve. Au XVIe siècle, pour indiquer l'action de se servir du heurtoir, on disait tabuter à la porte 29.

Voici (1) l'un des plus anciens heurtoirs à anneau que nous connaissions en France, et qui est attaché à la porte du nord de la cathédrale du Puy-en-Vélay; il date du XIe siècle; la tête de bronze est parfaitement conservée; l'anneau seul a été enlevé.

Nous en donnons un second (2) qui date du commencement du XIIIe siècle et qui est intact; il est attaché à la porte occidentale de la cathédrale de Noyon. Ici la tête et l'anneau sont en bronze.

Mais ces heurtoirs à anneaux paraissent avoir été particulièrement destinés aux portes d'églises, par suite peut-être de cette tradition du droit d'asile. Aux vantaux des portes d'habitations, les heurtoirs sont primitivement, ainsi que nous le disions tout à l'heure, des maillets, puis plus tard des marteaux suspendus au moyen de deux tourillons. Les plus anciens dont nous ayons pu nous procurer des dessins sont très-simples de forme (3) 30 et ne sont ornés que par les gravures au burin qui couvrent la tige du marteau ainsi que les deux boucles servant à maintenir ses tourillons. Les heurtoirs du XVe siècle sont moins rares; il en existe un fort beau sur le vantail de la porte de l'Hôtel-Dieu de Beaune 31. En voici un autre qui provient de Châteaudun et qui est de la même époque (4).

Les tourillons du marteau sont garantis de l'humidité par un petit toit en appentis percé d'une lucarne. Le tout est en fer forgé d'un joli travail. L'un des plus beaux provient d'une maison de Troyes (5), et est actuellement déposé dans le musée archéologique de la ville.

Il appartient également au XVe siècle, et le marteau se meut non plus au moyen de deux tourillons, mais est suspendu par un oeil à travers lequel passe un boulon. Devant la tige du heurtoir, sur un cul-de-lampe très-délicatement forgé et ciselé, est posé un enfant nu portant un écusson armoyé, vairé de... au chef de... chargé d'un lion léopardé de... Cette petite figure est une pièce de forge très-remarquable. En A, on voit le profil du marteau, moitié d'exécution. Probablement l'écu était peint aux couleurs du blason.
Au XVIe siècle, on en revient aux heurtoirs en forme d'anneau ou de boucle, avec poids à l'extrémité, pour les portes d'hôtels et de maisons. Il en existe de fort jolis de ce genre aux musées du Louvre et de Cluny. Les heurtoirs à marteau ne furent plus guère en usage que pour les portes d'habitations rurales.
Il y avait aussi des heurtoirs aux portes des châteaux forts.--«Atant es vous, chevalier qui hurte à la porte: et on vint as creniaus 32.» Toutefois il faut admettre que ces heurtoirs ne pouvaient être attachés qu'aux huis des poternes sans pont-levis, ou aux portes des barrières extérieures.
Les heurtoirs ont disparu de nos maisons et hôtels pour faire place aux sonnettes ou timbres, qui ont cet avantage de ne pas réveiller toute la maisonnée si quelque habitant attardé veut se faire ouvrir la porte au milieu de la nuit.
Note 27: (retour) Li Romans de Berte aus grans piés, ch. XLV. Édit. Techener; 1832.
Note 28: (retour) Histoire de la ville et du diocèse de Paris, t. I, p. 374.
Note 29: (retour) Cymbalum mundi.
Note 30: (retour) Heurtoir qui nous paraît être du XIVe siècle, et qui provient d'une porte d'une maison de Vézelay.
Note 31: (retour) Voy. l'Archit. viv. et domest. par MM. Verdier et Cattois, t, I, p. 6.
Note 32: (retour) La Chronique de Rains (XIIIe siècle), ch. XXXI. Publ. d'après le manuscrit de la Bib. imp., par Louis Pâris; 1837.
HÔPITAL. (Voy. HÔTEL-DIEU.)
HORLOGE, s. f. Reloige, reloge, orloge. Dès le XIe siècle, il y avait des horloges dans les églises et dans les châteaux. Ces horloges étaient habituellement placées à l'intérieur comme de grands meubles. Cet usage se perpétua jusqu'au XVIe siècle. Toutefois des sonneries annonçaient l'heure à l'extérieur.
«Quant il ont le convers oï
Durement furent esbahi
Qu'il n'orent oï soner cloche
Ne champenelle, ne reloge 33.»
Guillaume Durand, au XIIIe siècle, dans le chapitre Ier de son oeuvre 34, considère l'horloge comme une des parties essentielles de l'Église. «L'horloge, dit-il, sur laquelle on lit et on compte les heures, signifie l'empressement et le soin que les prêtres doivent avoir à dire les Heures canoniques au temps voulu, selon cette parole: Sept fois par jour je te louai, Seigneur.»
L'abbé Pierre de Chastelux donna, vers 1340, à l'abbaye de Cluny, une horloge remarquable en ce que son mécanisme présentait un calendrier perpétuel qui marquait l'année, le mois, la semaine, le jour, l'heure et les minutes, et un calendrier ecclésiastique qui désignait les fêtes et les offices de chaque jour. Cette horloge indiquait encore les phases de la lune, les mouvements du soleil, puis quantité de petites figurines mobiles représentant le mystère de la Résurrection, la Mort, saint Hugues et saint Odilon, abbés de Cluny, la sainte Vierge, la passion, etc. Les heures étaient annoncées par un coq qui battait des ailes et chantait à deux reprises; en même temps un ange ouvrait une porte et saluait la sainte Vierge; le Saint-Esprit descendait sur sa tête sous la forme d'une colombe, le Père Éternel la bénissait; un carillon harmonique de petites clochettes jouait un air; des animaux fantastiques agitaient leurs ailes, faisaient mouvoir leurs yeux; l'heure sonnait, et toutes les figurines rentraient dans l'intérieur de l'horloge 35.
Ces horloges compliquées étaient fort en vogue pendant les XIVe, XVe et XVIe siècles. À l'extérieur même, les sonneries des horloges étaient presque toujours accompagnées de Jacquemars, qui frappaient sur les timbres avec des marteaux. Quelques beffrois de nos villes du Nord, notamment celui de Compiègne, ont conservé ces jacquemars qui jouissent d'une grande popularité. Tout le monde a vu ou entendu parler des horloges célèbres des cathédrales de Lyon et de Strasbourg. La première horloge intérieure de Strasbourg fut commencée en 1352 et achevée en 1354, sous l'épiscopat de Jean de Lichtenberg; elle se composait d'un coffre de menuiserie, avec un grand disque en bois, représentant en peinture les indications relatives aux principales fêtes mobiles. Dans la partie du milieu se trouvait un cadran dont les aiguilles marquaient les mouvements du soleil et de la lune, les heures et leurs subdivisions. Le couronnement était orné d'une statuette de la Vierge, devant laquelle on voyait, à l'heure de midi, s'incliner trois mages; un coq chantait au même instant en battant des ailes. Un petit carillon jouait des airs à certaines heures. Cette horloge fut remplacée en 1547, puis refaite en 1838; c'est celle que nous voyons aujourd'hui sur la paroi du transsept méridional, en face de l'emplacement réservé à l'ancienne horloge 36.
On voit encore dans les cathédrales de Beauvais et de Reims des horloges dont les coffres datent du XIVe siècle. Elles sont toutes deux fort bien gravées dans le recueil publié par M. Gailhabaud 37.
Sur les tours d'églises du XIIe au XIVe siècle, aucun espace n'est disposé pour le placement de cadrans pouvant être aperçus de loin; ce qui fait supposer qu'avant le XVe siècle, si des sonneries indiquaient les heures aux habitants des villes, il n'y avait point de cadrans extérieurs. On ne voit apparaître ceux-ci que vers la fin du XVe siècle. Ils sont alors couverts par de petits auvents, et façonnés soit en bois, soit en plomb, et revêtus de peintures.
Note 33: (retour) Rutebeuf, Du segrestain et de la famme au chevalier (XIIIe siècle).
Note 34: (retour) Cap. I, § XXXV.
Note 35: (retour) Hist. de l'abbaye de Cluny, par M. P. Lorain, p. 203.
Note 36: (retour) Voy. Descript. abrégée de l'horloge astron. de la cathéd. de Strasbourg, 1847.
Note 37: (retour) L'Architecture du Ve au XVIIe siècle, t. IV.
HÔTEL, s. m. On donnait le nom d'hôtel aux habitations qui, dans les villes, appartenaient à des seigneurs ou à de riches particuliers, mais qui n'avaient point le caractère d'un château, c'est-à-dire qui ne possédaient point de droits féodaux.
La résidence des souverains dans Paris s'appelait le palais. Le Louvre, bâti hors les murs, était un château. On désignait les autres résidences souveraines établies dans Paris, mais qui n'avaient point un caractère féodal, non plus sous le nom de palais, mais sous celui d'hôtel. On disait l'hôtel Saint-Pol, l'hôtel des Tournelles. On disait aussi l'hôtel de Cluny, l'hôtel de Sens, l'hôtel de Bourbon, l'hôtel de Nevers, l'hôtel de la Trémoille. À Bourges, l'habitation de Jacques Coeur est un véritable hôtel. Toutefois, pour ne pas mettre de la confusion dans l'esprit de nos lecteurs, nous avons rangé les hôtels dans l'article MAISON, la différence entre l'hôtel et la maison étant souvent difficile à établir.
HÔTEL DE VILLE, s. m. Maison commune. Le mouvement politique qui se manifesta, dès le XIe siècle, dans un certain nombre de villes, et qui eut pour résultat l'affranchissement de la commune, chercha naturellement à centraliser la conjuration en élevant un édifice propre à contenir les jurés. Toutes fois qu'une charte de commune était octroyée, le droit d'ériger une maison commune et un beffroi s'y trouvait compris. Mais, jusqu'au XIVe siècle, les communes ont à subir des vicissitudes si diverses, aujourd'hui octroyées, demain abolies, qu'il nous reste bien peu de maisons de ville antérieures à cette époque, le premier acte de l'autorité qui abolissait la commune étant d'exiger la démolition de l'hôtel et du beffroi. «Les maisons communes, dit M. Champollion-Figeac 38, appartenaient quelquefois au roi ou aux seigneurs suzerains qui en permettaient l'usage à de certaines conditions. En 1271, celle de Carcassonne provint d'un don royal, et le sénéchal y exerçait la police au nom du monarque 39... Celle de la ville de Limoges appartenait, en 1275, au vicomte de ce nom, qui permettait aux consuls de s'y assembler avec le prévôt pour discuter les affaires municipales, et elle portait le nom de Consulat. Elle avait cependant été construite par la commune; mais il fut reconnu que c'était sur un emplacement appartenant au vicomte, ce qui fut cause que la propriété lui fut adjugée sur sa réclamation.»
L'état précaire des communes, le peu de ressources dont elles disposaient pour subvenir à toutes les charges qui leur étaient imposées, devaient les arrêter souvent dans leurs projets de constructions de maisons de ville. Cependant certaines grandes cités, comme Bordeaux, par exemple, possédaient des édifices bâtis pour servir de maisons de ville, vers la fin du XIIe siècle 40. Il est certain que les villes de la Gaule situées au midi de la Loire avaient conservé, beaucoup mieux que celles du nord, les traditions municipales des derniers temps de l'Empire romain. «C'est là seulement, dit M. Aug. Thierry 41, que les cités affranchies atteignirent à la plénitude de cette existence républicaine, qui était en quelque sorte l'idéal auquel aspiraient toutes les communes.» Aussi ces villes possédaient-elles des édifices auxquels on peut donner le nom de maison commune, à une époque où, dans le Nord, on n'avait eu ni le loisir ni les moyens matériels nécessaires à leur érection. Certaines parties du Capitole de Toulouse indiquent une date fort ancienne, et cet hôtel municipal était une véritable forteresse dès le XIIe siècle.
Dans la petite ville de Saint-Antonin, située dans le département de Tarn-et-Garonne, cité autrefois importante et riche, il existe encore un hôtel de ville du milieu du XIIe siècle, qui est certainement l'un des plus curieux édifices civils de la France. Il servait de halle à rez-de-chaussée.

Le premier et le second étage contenaient chacun une salle et un cabinet. Une tour servant de beffroi couronnait un des côtés de la façade. Voici (1), en A, le plan du rez-de-chaussée. L'espace H servait de halle couverte et était mis en communication avec un marché M existant autrefois sur ce point; en P était le passage d'une voie publique sous le beffroi. L'escalier pour monter aux étages supérieurs était primitivement bâti en E; mais cet escalier, détruit depuis longtemps, a été remplacé par une vis qui est disposée en V. Le dessous du beffroi a subi quelques changements, afin de consolider les piles qui étaient fort altérées; mais ces changements laissent parfaitement voir la construction primitive. En B est tracé le plan du premier étage, auquel on arrivait par la porte F donnant sur l'ancien escalier. Ce premier étage se compose d'une salle S et d'un cabinet N ayant vue sur la place publique par la fenêtre R et sur une rue principale par celle T. Le sol de ce cabinet est élevé de quelques marches au-dessus de celui de la salle. Le plan C est celui du second étage. La porte d'entrée étant autrefois percée en F', du cabinet N' on montait à la guette du beffroi par un escalier en bois ou plutôt une sorte d'échelle de meunier passant à travers la voûte en berceau tiers-point qui couvre l'espace a,b,c,d. La salle principale S, au premier étage, est largement éclairée par une belle claire-voie qui a toujours été disposée pour être vitrée.

Nous donnons (2) l'élévation de cet édifice, dont la partie supérieure X seule est moderne 42, et (3) un détail de la claire-voie du premier étage.

En A est tracée la coupe de cette claire-voie avec le plancher B et l'arc C de rez-de-chaussée. En D, nous avons présenté la face extérieure d'une partie (1/3) du fenestrage, et, en E, sa face intérieure. Des châssis ouvrants viennent battre sur des traverses en bois hautes et basses G. La construction de tout le monument est traitée avec soin, faite en pierre très-dure du pays; la sculpture est d'une finesse et d'une pureté remarquables, tous les profils sont d'un excellent style et taillés en perfection. Des cuvettes en faïence émaillée, incrustées dans la pierre, ornaient certaines parties de la façade 43. Sur l'un des deux piliers qui coupent la claire-voie en trois travées, on remarque une statue d'un personnage couronné tenant un livre de la main droite et de la gauche un long sceptre terminé par un oiseau; sur l'autre, un groupe d'Adam et d'Ève tentés par le serpent. Ces figures en ronde-bosse, petite nature, sont d'un beau caractère et sculptées avec une extrême délicatesse de détails. La figure du personnage couronné a été l'occasion de quelques discussions. Quelques-uns ont voulu voir là Moïse, d'autres Charlemagne, d'autres encore un roi contemporain du monument. À grand'peine, sur le livre ouvert, nous avons pu, il y a quelques années, découvrir les fragments d'une inscription peinte.

Nous donnons ici les traces visibles de cette peinture sur les deux pages (4); traces dont nous n'avons pu déchiffrer le sens. Peut-être quelques archéologues seront-ils plus heureux que nous. Sans donner ici notre opinion pour autre chose que comme une hypothèse nouvelle, nous verrions dans cette statue le Christ dominateur: Christus regnat, Christus imperat.
Les colonnettes et chapiteaux de la claire-voie, son encadrement et les fenêtres, étaient colorés; sur les murs des salles recouverts d'enduits, nous avons pu constater des traces de peintures de deux époques (XIIe et XVe siècle). Derrière le portique du rez-de-chaussée était une place ayant toujours servi de marché; autrefois on ne pouvait y arriver qu'en passant sous les arcades du rez-de-chaussée.
Si nous voyons encore, dans le nord de l'Allemagne et en Belgique, des hôtels de ville d'une époque assez ancienne, comme ceux de Lubeck, d'Aix-la-Chapelle, bâtis au XIIIe siècle, ceux de Brunswick, de Dantzig, de Munster, de Ratisbonne, élevés pendant les XIVe et XVe siècles, nous ne possédons plus en France d'édifices de ce genre, sauf celui de Saint-Antonin, antérieurs à la fin du XVe siècle et au commencement du XVIe. On peut encore étudier les hôtels de ville de cette époque à Orléans, à Compiègne, à Saumur, à Luxeuil, à Beaugency, à Saint-Quentin. Entre tous, le plus complet, le plus remarquable, est certainement l'hôtel de ville de Compiègne, gravé avec beaucoup de soin dans l'ouvrage de MM. Verdier et Cattois 44.
Cet édifice se compose d'un seul corps de logis, avec grand escalier à vis dans la partie antérieure centrale; cet escalier est couronné par un très-joli beffroi. Au rez-de chaussée, au premier et au second étage, de grandes salles sont disposées à droite et à gauche de la tour centrale. Au-dessus de la porte, une large niche avait été remplie par une statue équestre de Louis XII. Deux échauguettes saillantes flanquent les deux angles du bâtiment. On observera que cette tradition avait été suivie encore dans l'hôtel de ville de Paris, élevé pendant le XVIe siècle et terminé sous Henri IV.
Les maisons de ville du Nord possédaient toujours un balcon saillant, une bretèche, d'où l'on pouvait parler au peuple assemblé sur la place. À Compiègne, ce balcon n'est déjà plus qu'une petite loge disposée à la base du beffroi, au niveau de la balustrade du comble. À Paris, la bretèche est remplacée par le large escalier avec perron qui donne accès à la cour centrale; mais à Arras, bien que l'édifice municipal date de la fin du XVIe siècle, la bretèche traditionnelle existe encore ou existait il y a peu d'années.
Plusieurs causes avaient contribué à priver les villes françaises situées au nord de la Loire des bâtiments destinés aux réunions municipales. Jusqu'au XIVe siècle, l'affranchissement des communes, bien qu'il eût eu des conséquences considérables au point de vue politique, n'avait pu que très-difficilement s'établir d'une manière durable. Vers la fin du XIIe siècle, des évêques, soit pour reconquérir l'autorité diocésaine qui leur avait été en grande partie enlevée par les établissements religieux, soit pour trouver un point d'appui dans leurs tentatives d'empiétement sur le pouvoir féodal laïque, s'étaient mis à élever à Noyon, à Senlis, à Sens, à Paris, à Amiens, à Chartres, à Troyes, à Bourges, à Reims, à Soissons, à Laon, à Cambrai, à Arras, à Beauvais, à Auxerre, à Rouen, d'immenses églises cathédrales, à la construction desquelles les populations urbaines avaient apporté une ardeur d'autant plus active, que ces édifices prenaient alors à la fois un caractère civil et religieux. Les citadins appelés par les évêques à concourir à l'édification du monument, avec l'assurance que ce monument leur serait ouvert pour leurs assemblées, regardèrent longtemps, dans ces villes dépendantes ou voisines du domaine royal, la cathédrale comme un édifice municipal. Et nous voyons en effet que, jusqu'au XVe siècle, les cathédrales servent non-seulement au service religieux, mais à des réunions politiques et profanes (voy. CATHÉDRALE). Cette habitude prise, les populations urbaines du nord de la France sentaient moins le besoin d'élever des maisons de ville, d'autant qu'ils savaient par expérience que ces édifices municipaux excitaient la défiance des seigneurs suzerains. L'ombre des cathédrales leur suffisait. Ainsi, ce n'est qu'en 1452 que Jean de Bourgogne accorde les permissions nécessaires pour bâtir un hôtel de ville à Auxerre. «Les habitants, dit Lebeuf 45, n'en avaient point eu jusqu'alors: quand il leur fallait traiter de leurs affaires, ils étaient obligés de tenir leurs assemblées dans les places publiques ou dans les églises, dans les chapitres de communautés ou dans les cloîtres religieux. C'était aussi dans ces lieux qu'on représentait les fêtes qui servaient de divertissements publics.» La cathédrale de Laon servit, jusqu'au XVIe siècle, de lieu de réunion pour les habitants de la ville. Des assemblées se tiennent pendant les XIVe et XVe siècles dans les cathédrales d'Auxerre, de Paris, de Sens, lorsqu'il s'agit de délibérer sur les affaires publiques. Ces édifices avaient conservé quelque chose de la basilique romaine; des marchés s'installaient sous leurs porches, et même, sous leurs voûtes, on vendait. Les évêques s'élevèrent naturellement contre ces habitudes; mais ce ne fut que bien tard qu'ils parvinrent à les détruire entièrement. Il ne faut pas, par conséquent, demander à la France des XIIe, XIIIe et XIVe siècles, ces vastes bâtiments municipaux des villes de l'Italie et de la Flandre; ils n'ont jamais existé parce qu'ils n'avaient pas lieu d'exister. Mais aussi est-ce dans ces provinces françaises situées au nord de la Loire que l'on voit s'élever, sous une puissante impulsion, les plus grandes cathédrales qui aient été construites dans la chrétienté à cette époque.
Pour se faire une idée exacte de ce qu'il y avait de précaire dans l'établissement municipal de la ville de Paris, par exemple, il suffit de lire ce qu'écrit Sauval sur ce qu'était la maison de ville avant le milieu du XIVe siècle. Ce ne fut qu'en 1357 que le receveur des gabelles vendit au prévôt des marchands, Étienne Marcel, la maison qui devint définitivement l'hôtel de ville. «Pour ce qui est du bâtiment, ajoute Sauval, c'étoit un pelit logis qui consistoit en deux pignons, et qui tenoit à plusieurs maisons bourgeoises.» Ce fait seul donne assez à entendre que les hôtels de ville, en France, ne différaient guère, pour la plupart, jusqu'au XVe siècle, des maisons de particuliers. Cependant Bourgueville 46 prétend que la ville de Caen possédait une maison commune «de fort ancienne et admirable structure, de quatre estages en hauteur, en arcs-boutans fondez dedans la rivière sur pilotins, laquelle flue par trois grandes arches (cet hôtel de ville était bâti sur le pont Saint-Pierre); et aux coings de cest édifice et maison sont quatre tours qui se joignent par carneaux, en l'une desquelles (qui faict le befroy) est posée la grosse orloge: ceste quelle maison, pont et rivière, séparent les deux costez de la ville, de façon que les quatre murailles d'icelle commencent, finissent et aboutissent sur ce pont, anciennement appellé de Darnetal, comme il se treuve par certaine chartre, estant au matrologe ou chartrier de la ville, de l'an 1365.» En effet, dans de vieux plans de la ville de Caen 47, on voit, figuré sur le pont Saint-Pierre, un bâtiment en forme de châtelet (car il fallait passer sous l'hôtel de ville pour traverser l'Orne) dont la face orientale est ouverte en face la grande rue qui servait de lieu de foire. Le bâtiment est flanqué de quatre tourelles et couvert en pavillon; la tour du beffroi était bâtie à l'angle sud-ouest. La salle d'assemblée, située au premier étage, avait ses fenêtres ouvertes sur la rivière, du côté de l'arrivée des navires, au nord, et, au sud, sur des prairies. La situation de cette maison commune était donc des mieux choisies pour une ville marchande et industrielle.
La disposition des maisons communes, à dater de la fin du XIIIe siècle, paraît avoir été à peu près la même dans les villes du Nord, depuis la Picardie jusqu'à Lubeck. Un beffroi s'élevait au centre de la façade et était flanqué latéralement de deux grandes salles où pénétrait un grand logis à pignons latéraux. Le beffroi servait de prison commune, de dépôt des archives et de guette avec carillon. Devant la façade s'ouvrait, à rez-de-chaussée, un portique avec grands escaliers et loge ou bretèche pour les cris publics. La ville de Lubeck possède encore les restes d'un vaste hôtel de ville qui, au XIIIe siècle, se composait de trois grands logis accolés, avec trois pignons sur la face antérieure et trois autres sur la face postérieure. Ces pignons étaient percés de très-grandes fenêtres à meneaux qui éclairaient largement ces trois salles. Le rez-de-chaussée était occupé par des services secondaires. Il n'est pas besoin de rappeler ici que les maisons des villes du Nord du XIIIe au XVIe siècle présentaient leurs pignons sur la rue. Ce parti avait été adopté pour les hôtels de ville, et à Saint-Quentin encore la maison commune, dont la construction est du XVIe siècle, conserve le principe de cette disposition. En réunissant les documents épars que nous avons pu nous procurer sur les maisons communes de ces villes riches et commerçantes du Nord, il est possible de présenter un type de ces constructions qui, plus qu'aucune autre, ont été soumises à tant de changements et de catastrophes. Comme il serait beaucoup trop long et fastidieux de donner séparément ces renseignements épars, nous avons pensé que nos lecteurs ne nous sauraient pas mauvais gré de les réunir en un faisceau et de présenter un type complet d'un hôtel de ville de la fin du XIIIe siècle.

C'est ce que nous avons essayé de faire en traçant la fig. 5, qui donne, en A, le plan du rez de-chaussée d'un édifice municipal, et en B le plan du premier étage. Sous le portique antérieur C, à droite et à gauche, montent deux rampes qui arrivent au vestibule D, précédé de la loge E. On entre à rez-de-chaussée, sous les voûtes du vestibule, dans les prisons F du beffroi, et par les portes C dans les salles H destinées à des services journaliers. Au premier étage, du vestibule D on pénètre dans la pièce I située sous le beffroi, et de là dans une première salle K servant de vestibule aux deux grandes salles L, largement éclairées par les fenestrages M.
La fig. 6 présente l'élévation perspective de cet édifice.

Toutefois il arrivait fréquemment, avant le XVe siècle, que les beffrois étaient indépendants de l'hôtel de ville. Celui de Tournay, qui date du XIIe siècle, est isolé. Celui d'Amiens, dont la partie basse remonte au XIVe siècle, était également indépendant de la maison commune, ainsi que ceux de Commines et de Cambrai. Millin, dans le tome V de ses Antiquités nationales, donne une vue de l'hôtel de ville de Lille, démoli en 1664, et reproduite d'après un dessin de la bibliothèque de Saint-Pierre. D'après ce dessin, le bâtiment principal, sans beffroi, se compose d'un corps de logis à trois étages, avec deux grands pignons et échauguettes aux angles. La base du comble est crénelée. À la suite de ce bâtiment s'élève un logis plus bas avec crénelages surmontés de lions et de deux statues de sauvages, dont l'une porte l'étendard de la ville. Ces constructions, autant que l'imperfection du dessin permet de le reconnaître, paraissent appartenir au XIIIe siècle. Si beaucoup de beffrois très-anciens des villes du Nord étaient isolés, celui de Bergues Saint-Winox (Nord), qui datait du XIVe siècle, se trouvait autrefois disposé, relativement à la maison commune de cette ville, comme l'est celui de notre fig. 6. On observera qu'à Compiègne le beffroi est au centre du bâtiment principal et sur sa face; seulement il pénètre un gros et profond logis dont les deux pignons sont placés latéralement, de manière toutefois à présenter, au premier étage, un plan pareil à celui de la fig. 5.
Note 38: (retour) Droits et usages concernant les travaux de construction, etc., sous la troisième race des rois de France. Paris, 1860.
Note 39: (retour) On observera que les Carcassonnais, chassés de l'ancienne ville après le siége mis par Trincavel, obtinrent du roi saint Louis de rebâtir une ville de l'autre côté de l'Aude (voy. ARCHITECTURE MILITAIRE).
Note 40: (retour) Voy. le Bulletin des comités historiques, février 1854; Notice sur l'hôtel de ville de Bordeaux, par M. Lamothe.
Note 41: (retour) Lettres sur l'histoire de France (XIIIe siècle).
Note 42: (retour) Cet édifice a été restauré sous la direction des Monuments historiques. La restauration s'est bornée toutefois à la construction de l'escalier postérieur, au couronnement de la tour qui menaçait ruine et à la réfection des planchers. Voy. l'Archit. civ. et domest. de MM. Verdier et Cattois.
Note 43: (retour) Nous n'avons pu trouver que des fragments de ces cuvettes de faïence, qui avaient de 0,30 c. à 0,40 c. de diamètre.
Note 44: (retour) Archit. civ. et domest. au moyen âge et à la Renaissance, t. I.
Note 45: (retour) Mém. sur l'hist. civ. et ecclés. d'Auxerre (sous la dépend. du duc de Bourgogne), t. III, p. 319.
Note 46: (retour) Les Recherches et antiquitez de la province de Neustrie, à présent duché de Normandie, etc., par Ch. de Bourgueville, sieur de Bras. Nouv. édit. Caen, 1833.
Note 47: (retour) Notamment celui de Mérian et celui gravé en fac-simile dans l'ouvrage de Bourgueville, édit. de 1833.
HOTEL-DIEU, s. m. Maison-Dieu, maladrerie, hospice, hôpital, léproserie. Rien n'établit que les anciens eussent des maisons de refuge pour les malades où ceux-ci pouvaient recevoir les soins des médecins et attendre leur guérison. À Athènes, les soldats mutilés étaient entretenus aux frais de la république 48; mais il n'est pas dit que ce secours fût autre chose qu'une pension; d'ailleurs ce fait ne paraît pas avoir existé dans les autres villes de la Grèce. À Sparte, après la bataille perdue par les Lacédémoniens contre Antigone, les maisons des citoyens furent ouvertes pour recevoir les blessés 49. Les Romains, en campagne, avaient des espaces réservés aux hommes et aux chevaux malades; mais aucun auteur ne signale, ni à Rome ni dans les villes de l'Empire, des hôpitaux destinés soit aux soldats blessés, soit aux pauvres malades. Saint Jérôme, le premier, parle d'une certaine Fabiola, dame romaine fort riche, qui fonda, vers l'an 380, un hôpital dans lequel on recevait les malades, jusqu'alors gisant abandonnés dans les rues et sur les places publiques. Dans les premiers temps du moyen âge, en effet, dans les villes de l'Italie, de la France, de l'Allemagne, il se fait de nombreuses fondations pour soigner et loger les malades, les voyageurs, les pauvres. Dans l'origine, ces fondations consistent en l'abandon d'une maison, d'un local, avec une rente perpétuelle. Naturellement, les établissements religieux réguliers, les chapitres, les paroisses même, étaient les conservateurs de la fondation. «La plus ancienne mention, peut-être, de l'Hôtel-Dieu de Paris remonte, dit M. Guérard dans sa préface aux cartulaires de l'église Notre-Dame de Paris 50, à l'année 829.» Du Breul 51 admet que cet établissement fut fondé par saint Landry, vingt-huitième évêque de Paris, vers l'an 660. Guillaume de Nangis dit, dans la Vie du roi saint Louis, que ce prince l'augmenta considérablement en 1258. Lebeuf 52 prétend que cet hôpital portait encore le nom de Saint-Christophe dans le Xe siècle; il ne trouve point de preuves que saint Landry ait établi proche de la cathédrale une maladrerie ou un Hôtel-Dieu. «On doit distinguer, dit-il, entre un Hôpital, un Hôtel-Dieu ou une Maladrerie. J'ai beaucoup de peine à croire que les Maladreries ayent été originairement proche les cathédrales qui étoient bâties dans l'intérieur des cités. Pour ce qui est des indigens qui ne faisoient que passer, j'avoue qu'on a pu leur donner l'hospitalité dans ce quartier-là sous la seconde race de nos rois... Peut-être, ajoute-t-il, qu'avec de plus profondes recherches on trouveroit l'époque du changement de l'hôpital ou maison de l'hospitalité de cette cathédrale en Maladrerie ou Hôtel-Dieu.» En 1168, sous l'épiscopat de Maurice de Sully, le nombre des lits fut augmenté par suite d'un statut du chapitre de Notre-Dame. Il fut décidé que tous les chanoines qui viendraient à mourir ou qui quitteraient lenr prébende donneraient à cet hôpital un lit garni. Trente ans après ce règlement, Adam, clerc du roi Philippe Auguste, fit don à l'Hôtel-Dieu de deux maisons dans Paris, afin que, sur le revenu de ces maisons, le jour de son anniversaire, on fournirait aux malades «tout ce qu'il leur viendroit dans la pensée de vouloir manger.»
Pendant les XIe, XIIe et XIIIe siècles, il est fondé une quantité prodigieuse d'hospices; presque toutes les abbayes avaient un hôpital dans leur enceinte. De plus, on fonda un grand nombre de léproseries hors les villes. «La maison de Saint-Lazare, dit Lebeuf 53, ne doit être considérée que comme une célèbre Léproserie. Autant la ville de Paris étoit fameuse, autant sa Léproserie l'étoit en son espèce. Ce fut dans le XIIe siècle que l'on commença à avoir une attention plus singulière de séparer les lépreux d'avec le reste du peuple: de là l'époque de l'origine de toutes ces maladreries du titre de Saint-Lazare, dont on voit encore des restes proche une infinité de bourgs et de villages du royaume... Dès le règne de Louis le Jeune, il y avoit entre Paris et Saint-Denis un hôpital de lépreux, qui consistoit en un assemblage de plusieurs cabanes où ils étoient renfermés. Odon de Dueil, moine de Saint-Denis, écrit qu'il fut témoin, comme, en l'an 1147, le mercredi onzième de juin, ce même roi, venant prendre l'étendard à Saint-Denis avant de partir pour la croisade, entra dans cet hôpital situé sur sa route, et prit la peine d'y rendre visite aux lépreux dans leurs cellules, accompagné seulement de deux personnes.» Cette célèbre léproserie, dès la fin du XIIe siècle, était gouvernée par des religieux de l'ordre de Saint-Augustin. Les léproseries étaient au nombre de 2,000 dans les États du roi de France, au XIIIe siècle, ainsi que le prouve une donation faite par Louis VIII, dans son testament du mois de juin 1225 54. Nous ne chercherons pas à établir si la lèpre fut importée en France par les croisés revenus de Palestine, ou si, comme le prétendent quelques auteurs, cette maladie existait déjà, dès l'époque celtique, sur le sol occidental de l'Europe 55. Ce qu'il est difficile de nier, c'est que cette maladie, ou une maladie certainement analogue, qui était ou que l'on croyait contagieuse, existait sur toute la surface de l'Europe au XIIe siècle, même dans les contrées qui n'avaient envoyé personne en Palestine, puisque, d'après Mathieu Pâris, on ne comptait pas moins de 19,000 léproseries en France, en Allemagne, en Angleterre, en Italie, en Espagne, en Brabant, en Suisse, en Hongrie, en Pologne, en Bohême et dans les États du Danemark. Ces établissements, situés hors des villes, ainsi que nous venons de le dire, consistaient en une enceinte dans laquelle s'élevaient des cellules assez semblables à celles des chartreux, avec une chapelle commune. Les religieux qui avaient cure du temporel et du spirituel des léproseries logeaient dans des bâtiments voisins de l'église.
Il est clair que les dispositions architectoniques n'avaient rien à voir dans ces enclos parsemés de cabanes. Il n'en est pas de même pour les hôpitaux. Il nous reste, de l'époque du moyen âge et particulièrement des XIIe et XIIIe siècles, d'admirables bâtiments affectés aux malades recueillis dans les monastères, dans le voisinage des cathédrales, ou même dans des cités florissantes. Chaque monastère possédait son aumônerie, c'est-à-dire un personnel chargé d'exercer l'hospitalité. Pendant le moyen âge, l'hospitalité était obligatoire. Dès l'époque carlovingienne, il existait des impôts destinés à secourir les pauvres, les pèlerins, les malades. Charlemagne avait, dans ses ordonnances et capitulaires, recommandé à ses sujets d'offrir l'hospitalité, et «il n'était pas permis alors de refuser aux voyageurs le couvert, le feu et l'eau 56.» Les communes rivalisèrent avec les rois, les seigneurs et les simples particuliers, dans ces oeuvres de bienfaisance. Beaucoup de villes établirent des hospices, à leurs dépens, soit dans des bâtiments neufs, soit dans des édifices abandonnés que l'on faisait restaurer en vue de cette destination. Des hospices furent même bâtis dans des lieux isolés pour servir de refuges aux voyageurs et les garantir contre les voleurs qui infestaient les routes; ces bâtiments étaient souvent fondés par des cénobites et sous la garde de religieux. Les villes étant habituellement fermées le soir, les voyageurs attardés étaient contraints de passer la nuit à la belle étoile; des maisons de refuge, sortes de caravansérails gratuits, s'élevèrent non loin des portes. «En 1202, deux nobles allemands voulurent remédier à ce grave inconvénient, et firent construire un hospice hors la porte de Saint-Denis à Paris. Un emplacement d'une contenance de deux arpents fut promptement couvert de bâtiments. Une grande salle en pierre de taille, élevée au milieu du sol au moyen d'arcades formées à croix d'osier, y fut construite pour y coucher les pauvres; elle avait vingt-deux toises et demie de long et six toises de largeur 57.» En 1310, le nombre des maisons-Dieu, maladreries et léproseries qui recevaient des secours en argent sur la cassette particulière du roi de France, était de cinq cents environ; dans la banlieue de Paris seulement, quarante-huit maladreries profitaient de ces dons. La charité publique et privée sut encore rendre son assistance plus efficace, en fondant des hôpitaux pour certaines infirmités particulières. Saint Louis donna l'exemple en faisant bâtir l'hospice des Quinze-Vingts pour les aveugles de Paris; sans parler des léproseries, on fonda, dans beaucoup de villes, des hospices pour les boiteux, pour les fous, pour les vieillards indigents, pour les femmes en couche. Les confréries voulurent aussi avoir leurs maisons de refuge, leurs hospices, et enfin, pendant les pestes qui désolèrent les villes du moyen âge, des évêques, des seigneurs laïques prêtèrent des locaux dépendant de leurs résidences pour soigner les malades, et voulurent souvent eux-mêmes les assister. À côté des désordres de toute nature et des abus sans nombre qui signalèrent cette époque, il faut donc reconnaître que tous, petits et grands, cherchaient à adoucir le sort des classes souffrantes par les moyens les plus efficaces, et que l'esprit de charité ne fut jamais plus actif que dans ces temps. Il faut dire que, souvent, tel seigneur qui fondait un hospice en mourant avait, sa vie durant, fait plus de malheureux qu'on n'en pouvait secourir de longtemps dans la maison élevée par lui. Le moyen âge est ainsi fait: c'est un mélange sans mesure de bien et de mal; aussi y a-t-il autant d'injustice à présenter cette époque comme un temps de misères continuelles que comme un âge de foi vive, de charité et de sagesse. Partout, à côté d'un mal, d'un abus monstrueux, trouve-t-on le sentiment du droit, le respect pour l'homme, pour ses malheurs et ses faiblesses. Le mot de fraternité n'est pas seulement dans les discours, il trouve partout une application pratique, et si la passion ou l'intérêt font trop souvent enfreindre cette loi sacrée, du moins son principe n'est jamais méconnu. Par le fait, nos grandes institutions de charité nous viennent du moyen âge et lui survivent; il est bon de ne pas trop l'oublier: ayant profité de la belle partie de l'héritage, peut-être serait-il juste d'être indulgents pour son côté misérable.
On comprendra que parmi tant d'édifices élevés sous l'inspiration d'une charité vive et voulant immédiatement porter remède au mal, beaucoup n'étaient que des bicoques, des maisons que l'on appropriait tant bien que mal au service des pauvres et des malades; car nombre de ces hospices se composaient d'une maison donnée par un simple bourgeois, avec une rente à prendre sur son bien. Peu à peu ces modestes donations s'étendaient, s'enrichissaient par les quêtes et devenaient des établissements importants. Cependant il nous reste encore quelques hôpitaux du moyen âge qui, au point de vue de l'art, sont remarquables. Bien bâtis, bien aérés, spacieux, ils ont aussi cet avantage, sur les constructions analogues que nous élevons aujourd'hui généralement, de laisser à l'art une large place, de ne point attrister les malades par cet aspect froid et désolé qui caractérise de notre temps (sauf de rares exceptions) les édifices publics de charité 58.
Parmi les hôpitaux les plus anciens qui existent encore en France, il faut citer l'Hôtel-Dieu de Chartres, situé près de la cathédrale, et l'hôpital d'Angers. Ce dernier surtout est remarquable par son étendue et par les services qui l'entourent. En voici le plan (1).

Il se compose d'une grande salle à trois nefs A, précédée d'un cloître, d'une chapelle voisine B, de logements, dénaturés aujourd'hui, et d'un vaste magasin ou grenier C, propre à renfermer des provisions de toutes natures. La construction de cet établissement date de 1153. La chapelle est un peu plus moderne (1184). C'est aussi vers cette dernière époque que fut élevé le grand bâtiment aux provisions.

La fig. 2 présente la coupe transversale de la grande salle, dans laquelle quatre rangées de lits peuvent facilement trouver place. La construction de ces bâtiments est excellente, traitée avec soin, les chapiteaux des piliers d'un excellent style. Le bâtiment des provisions est un édifice remarquable par ses dispositions et ses détails 59.
L'Hôtel-Dieu de Chartres date à peu près de la même époque et consiste aujourd'hui en une grande salle à trois nefs, séparées par deux rangs de colonnes et portant des charpentes lambrissées. Au fond, trois voûtes en pierre ferment les trois dernières travées. C'est une disposition analogue à celle de l'hôpital d'Angers, et qui paraît avoir été généralement suivie pendant les XIIe et XIIIe siècles.
Dans les bâtiments abbatiaux de Saint-Jean-des-Vignes de Soissons et d'Ourscamp, on voit encore de belles salles qui ont été affectées aux malades. La salle dite des Morts, à Ourscamp, est, entre toutes ces constructions hospitalières, la plus belle et la mieux entendue. C'est toujours un grand vaisseau divisé en trois nefs, celle du milieu plus large que les deux autres; le tout est couvert par des voûtes d'arête et un vaste grenier.

La fig. 3 présente le plan de cette salle avec son annexe, qui servait probablement de cuisine et de laboratoire; la fig. 4 la coupe transversale de la grande salle des malades, et la fig. 5 une de ses travées.


On observera que les fenêtres sont disposées de manière à donner beaucoup de jour à l'intérieur, celles du haut étant à vitrages fixes et celles du bas pouvant s'ouvrir pour aérer la salle. Suivant la disposition généralement adoptée à cette époque, il devait y avoir quatre rangées de lits disposés ainsi que l'indique notre plan en A; la salle pouvait en contenir facilement cent. Le long du mur, au droit des colonnes, sont percées de petites niches à hauteur de la main, pour déposer les boissons ou les pansements des malades. Une grande cheminée, s'ouvrant contre le pignon B, permettait d'assainir et de réchauffer ce vaste intérieur 60. Le bâtiment et son annexe sont isolés. Le pignon G seul est rapproché des bras de croix de l'église, à laquelle on pouvait probablement communiquer par le petit passage H. Toute la construction date des premières années du XIIIe siècle; et l'intérieur était peint de joints rouges avec archivoltes festonnées en petites arcatures.
À l'article CONSTRUCTION, fig. 123 et suivantes, nous avons donné un bâtiment dépendant de l'abbaye Sainte-Marie de Breteuil, dont une partie servait d'hospice pour les pauvres. Presque toutes les abbayes possédaient ainsi des bâtiments assez vastes pour donner asile aux voyageurs, ou même de véritables hôpitaux, comme cette grande salle d'Ourscamp 61.
La ville de Tonnerre possédait, au XIe siècle déjà, un Hôtel-Dieu situé, suivant l'usage, à côté de l'église Notre-Dame, qui servait de chapelle à cet établissement; un autre hôpital, également de la même époque, existait dans le faubourg de Bourberault. «Les dépendances de cet hôpital, dit M. Camille Dormois 62, ne consistaient qu'en une petite chapelle obscure, une très-petite maison et un jardin.» En 1204, Eudes III, duc de Bourgogne, fonda, dans la même ville, l'hôpital du Saint-Esprit; mais Marguerite de Bourgogne, belle-soeur de saint Louis, reine de Sicile, voulut doter la ville de Tonnerre d'un hôpital magnifique. En 1293, elle acheta un vaste clos près d'une source appelée Fontenille, le long de l'Armençon et des murs de la ville. Dans l'acte de fondation, il est dit que les pauvres seront hébergés dans l'établissement, les convalescents nourris sept jours et renvoyés avec chemise, cotte et soulier; qu'une chapelle sera bâtie avec quatre autels; que les frères et soeurs, au nombre de vingt, chargés des soins intérieurs, auront pour mission de donner à manger et à boire à ceux qui auront faim et soif, de recevoir les étrangers et pèlerins et de les héberger, de vêtir les pauvres, de visiter les malades, de consoler les prisonniers et d'ensevelir les morts; que les frères et soeurs auront des dortoirs et réfectoires séparés, et ne devront prendre leurs repas qu'après le service des malades. L'hôpital fut-promptement élevé, et Marguerite se fit bâtir, à côté, un logis pour pouvoir surveiller elle-même son établissement; lorsqu'elle mourut, en 1308, les bâtiments et leurs dépendances étaient complétés depuis longtemps. Il nous reste de cet hôpital la grande salle et quelques dépendances, et nos lecteurs ne nous sauront pas mauvais gré probablement de leur donner un ensemble ainsi que des détails de la partie principale de cette grande salle, en même temps chapelle et hospice.

La figure 6 présente le plan à l'échelle de 0,001m pour mètre. En A est la grande salle, autrefois précédée d'un porche B avec escalier, dont nous allons indiquer la destination. Cette salle contenait quarante cellules de boiseries, sortes d'alcôves dans chacune desquelles était placé un lit (voir en C). En D était un autel principal sous une voûte, et en F deux chapelles également voûtées. Le tombeau de la fondatrice était en E, et se composait d'une figure de bronze couchée sur un sarcophage. La sacristie des chapelles était en G. En H, un jubé, posé devant le choeur, mettait en communication deux galeries latérales qui, établissant une circulation continue au-dessus des alcôves, permettaient d'ouvrir les fenêtres et de surveiller l'intérieur des cellules. On pouvait monter à ces galeries par l'escalier latéral du porche 63 et par un escalier I qui était mis en communication avec une galerie réunissant le logis L de la reine à la grande salle. De ses appartements, situés au premier étage de ce logis, cette princesse pouvait ainsi, soit descendre dans la salle, soit inspecter les cellules en se promenant sur la galerie qu'elles portaient. En Z était une petite chapelle. Les bâtiments de service de l'hôpital sont situés en K et la cuisine en M. On communiquait de ces bâtiments avec la salle au moyen d'une autre galerie N aboutissant à une petite porte. La voie publique passe en O. En P était le cimetière; en J, le jardin de la reine, borné par la muraille de la ville et par le ruisseau de Fontenille. En R, un lavoir; en V, un bras de l'Armençon, et en S le prieuré. Deux canaux souterrains passant des deux côtés de la grande salle entraînaient dans la rivière les vidanges de l'établissement. Outre les murailles de la ville, des remparts entouraient les autres parties du clos. En X était un puits public.

La fig. 7 donne la coupe transversale de ce magnifique vaisseau, qui n'a pas moins de 18m,60 de largeur dans oeuvre sur 88m,00 de long depuis le porche jusqu'au sanctuaire. La coupe (fig. 7) montre, en A, les alcôves avec la galerie supérieure B, passant par-dessus le jubé. On aperçoit au fond les trois absides. La charpente en chêne, bien conservée, nous donne des bois d'une longueur extraordinaire; les entraits, d'un seul morceau, ont 21m,40; les arbalétriers et chevrons portant ferme, 19m,00. Elle est entièrement lambrissée en berceau plein cintre légèrement surbaissé à l'intérieur. En C, nous avons tracé l'un des chevrons portant ferme, et en D une coupe d'une travée de charpente avec le lambrissage et les ventilateurs E, de 0m,10 d'ouverture. Les fenêtres latérales, à meneaux, sont disposées pour pouvoir être ouvertes du bas jusqu'à la naissance des tiers-points, et des marches, ménagées dans l'appui, permettent de tirer les targettes. Ce vaisseau, qui existe à peu près intact, sauf le porche, produit un grand effet. C'est un des plus beaux exemples de l'architecture civile de la fin du XIIIe siècle; il n'a pas moins fallu que toute l'insistance de la Commission des monuments historiques pour obtenir de la ville de Tonnerre sa conservation. Pourquoi la ville de Tonnerre voulait-elle démolir cet édifice? C'est ce qu'on aurait beaucoup de peine à savoir probablement. Pourquoi la ville d'Orléans a-t-elle démoli son ancien Hôtel-Dieu, l'un des plus beaux édifices de la Renaissance? Combien de villes se sont ainsi, sans raison sérieuse, dépouillées des monuments qui constataient leur ancienneté, qui leur donnaient un intérêt particulier et qui retenaient des étrangers dans leurs murs! Beaucoup regrettent, un peu tardivement, ces actes de vandalisme, et s'étonnent de ce que les voyageurs passent indifférents au milieu de leurs rues neuves, n'accordant pas même un regard au frontispice à colonnes du palais de justice, ou à la façade de l'hôpital nouveau que l'on confond volontiers avec une caserne.
La disposition des lits de l'hôpital de Tonnerre, logés chacun dans une cellule avec galerie de service supérieure, mérite de fixer notre attention. Chaque malade, en étant soumis à une surveillance d'autant plus facile qu'elle s'exerçait de la galerie, se trouvait posséder une véritable chambre. Il profitait du cube d'air énorme que contient la salle et recevait du jour par les fenêtres latérales; sa tête étant placée du côté du mur et abritée par la saillie du balcon, il ne pouvait être fatigué par l'éclat de la lumière. On objectera peut-être que la ventilation de ces cellules était imparfaite; mais la salle ne contenant que quarante lits, les fenêtres latérales pouvant être ouvertes, et le vaisseau étant fort élevé, ventilé par les trous percés dans le lambrissage de la charpente, on peut admettre que les conditions de salubrité étaient bonnes.
Pour faire saisir à nos lecteurs la disposition des cellules et des galeries de surveillance, nous présentons(8) une vue perspective d'une des travées de la salle.

Les fenêtres de la galerie étaient garnies de vitraux en grisaille, celles du sanctuaire en vitraux colorés. Une longue flèche en charpente surmontait ce sanctuaire; elle était couverte de plomberie peinte et dorée, et ne fut détruite qu'en 1793. Toute la charpente de la salle est couverte en tuiles vernies avec faîtières en terre cuite émaillée.
Par l'escalier carré pratiqué vers le nord, à côté de l'une des deux chapelles du chevet, on arrivait à une salle voûtée bâtie au-dessus de cette chapelle, et servant autrefois, comme encore aujourd'hui, de trésor et de chartrier. Le tympan de la porte principale s'ouvrant sous le porche du côté de la rue était décoré d'un bas-relief représentant le Jugement dernier, dont il existe encore quelques fragments 64.
Tous ceux qui s'intéressent quelque peu à nos anciens édifices ont visité le charmant Hôtel-Dieu de Beaune, fondé en 1443 par Nicolas Rolin, chancelier du duc de Bourgogne. Cet établissement est à peu près tel que le XVe siècle nous l'a laissé, bien qu'il soit construit, en grande partie, en bois. Il se compose de trois corps de logis élevés autour d'une cour quadrangulaire. Dans le bâtiment qui donne sur la rue est placée la grande salle, avec sa chapelle à l'extrémité, la porterie et quelques pièces voûtées destinées aux provisions. Les deux autres corps de logis, devant lesquels passe une galerie à deux étages, contiennent le noviciat des soeurs, trois salles, la cuisine et la pharmacie. De grands gâbles en charpente, vitrés, donnent du jour dans les salles par-dessus les galeries du dehors, tandis que l'aération se fait par les galeries mêmes et par les faces opposées (voy. l'Architecture civile et domestique de MM. Verdier et Cattois, t. I). La cour de cet établissement, d'un aspect riant, bien proportionnée, contenant encore son puits du XVe siècle, son lavoir et sa chaire, donnerait presque envie de tomber malade à Beaune. La porte sur la rue est protégée par un auvent en charpente couvert en ardoise (voy. AUVENT).


Nous donnons (9) le plan de l'Hôtel-Dieu de Beaune, et (10) la vue de l'angle de la cour du côté de l'escalier principal desservant les deux étages. En A (voy. le plan) est l'entrée; en B, un passage de service; en C, la grande salle lambrissée 65 avec sa chapelle D, maintenant séparée de la salle; en E, le réfectoire des soeurs et le salon de la supérieure; en F, les salles aux provisions; en G, le noviciat des soeurs; en H, des salles de malades; en I, un passage donnant sur un jardin; en K, la cuisine, et en L la pharmacie; le puits est placé en O, la chaire en M, et le lavoir en P.
Examinons maintenant un de ces établissements plus modestes qui, éloignés des grands centres, voisins de quelque abbaye ou de quelque prieuré, étaient si fort répandus sur le sol français au moyen âge. Entrons dans la maladrerie dite du Tortoir, non loin de la route qui mène de Laon à la Fère (Aisne). Nous allons retrouver là les curieuses dispositions intérieures de l'hôpital de Tonnerre. La maladrerie du Tortoir date, croyons-nous, de la première moitié du XIVe siècle 66.

L'ensemble de l'établissement, compris dans un carré, contient encore trois bâtiments de l'époque de la construction (11). A, la salle des malades; B, une chapelle; C, un corps de logis à deux étages, pour les religieux probablement et pour la cuisine. Les autres bâtiments qui existent aujourd'hui dans l'enceinte sont d'une époque assez récente. Occupons-nous de cette salle A. Ses deux extrémités sont fermées par deux pignons avec cheminées. Sur le préau, à l'intérieur de l'enceinte, s'ouvre une large porte, avec guichet à côté; sur cette face, pas d'autres ouvertures que deux fenêtres relevées. Devant cette large porte était suspendu un appentis très-saillant (si l'on en juge par ses amorces et les entailles de la charpente), qui servait d'abri aux chariots amenant les malades. Pour l'usage ordinaire, on se contentait de passer par la petite porte. Sur les dehors, au contraire, cette salle de malades était percée de deux rangs de larges fenêtres disposées de telle façon que celles du bas éclairaient des cellules en bois, semblables à celles de l'hôpital de Tonnerre, et celles du haut s'ouvraient sur une galerie, à laquelle on montait par un escalier ménagé dans la travée I (voy. le plan) dépourvue de fenêtre. À Tonnerre, l'intervalle entre chaque cloison est de 2 toises (3m,95); même espace entre les axes des contre-forts de la salle du Tortoir (voy., fig. 12, un angle de la face de la salle du côté extérieur).

En supposant les cloisons des cellules de la même profondeur que celles de l'hôpital de Tonnerre, et plaçant sept cloisons dans l'axe de chaque contre-fort, la salle ayant dix mètres de large, il restait six mètres pour la circulation du côté de l'entrée, en dehors des cellules (voy. le plan), et on pouvait placer sept lits dans celles-ci, l'escalier de la galerie prenant la place d'une cellule. Or ce nombre de sept lits est très-fréquemment admis dans ces petits établissements de charité. Si nous nous rappelons que les maladreries étaient spécialement réservées aux malheureux affectés de maladies contagieuses, et que des précautions minutieuses étaient prises non-seulement pour les séparer des populations, mais aussi pour les isoler entre eux, nous comprendrons ici cette disposition des cellules avec fenêtres, qui permettaient à ces pauvres gens de voir la campagne et de se réchauffer aux premiers rayons du soleil, car ces fenêtres donnent au levant. Elles étaient d'ailleurs munies de volets à l'intérieur, de manière à éviter la trop grande chaleur. Un chemin de ronde avec mâchicoulis réunissait les bâtiments et était mis en communication, par des portes percées dans les pignons, avec la galerie intérieure. Un fossé entourait l'enceinte, ainsi qu'on peut le reconnaître en examinant les soubassements extérieurs de la grande salle. On n'arrivait au sommet des quatre tourelles que par la galerie et des échelles posées dans ces tourelles servant d'échauguettes.
Le moyen âge montrait donc dans la composition de ces établissements de bienfaisance l'esprit ingénieux qu'on lui accorde dans la construction des monuments religieux. C'est un singulier préjugé, en effet, de vouloir que ces architectes eussent été si subtils lorsqu'il s'agissait d'élever des églises, et en même temps si grossiers lorsqu'il fallait élever des édifices civils. Ce n'est pas leur faute si l'on a détruit, depuis le XVIe siècle, la plupart de ces établissements de bienfaisance divisés à l'infini, mais généralement bien disposés d'ailleurs, pour les remplacer par des hôpitaux dans lesquels, au contraire, on a cherché, peut-être à tort, à concentrer le plus grand nombre de malades possible. Louis XIV, le grand niveleur de toute chose et de tout état en France, a gratifié les hôpitaux élevés sous son règne des biens de ces nombreuses maladreries et léproseries qui n'avaient plus guère de raison d'exister, puisque, de son temps, il n'y avait pas de lépreux à soigner; mais ce n'est pas à dire que les hôpitaux du XVIIe siècle soient des modèles à suivre comme disposition, au point de vue de la salubrité, de l'hygiène, et du respect que l'on doit avoir pour les malades pauvres. Dans le peu d'hôpitaux du moyen âge qui nous sont restés, nous trouvons un esprit de charité bien entendu et délicat. Ces bâtiments sont d'un aspect monumental sans être riches; les malades ont de l'espace, de l'air et de la lumière; ils sont souvent séparés les uns des autres, comme on peut le constater dans les exemples précédents; leur individualité est respectée, et certes s'il est une chose qui répugne aux malheureux qui trouvent un refuge dans ces établissements, malgré les soins si éclairés qu'on leur donne abondamment aujourd'hui, c'est la communauté dans de vastes salles. Souvent alors la souffrance de chaque malade s'accroît par la vue de la souffrance du voisin. Sans prétendre que le système cellulaire, appliqué fréquemment dans les hôpitaux du moyen âge, fût préférable matériellement au système adopté de notre temps, il est certain qu'au point de vue moral il présentait un avantage. Nous tenons à constater qu'il émanait d'un sentiment de charité très-noble chez les nombreux fondateurs et constructeurs de nos maisons-Dieu du moyen âge.
Avant de terminer cet article, nous tenterons encore de détruire une erreur fort répandue, touchant l'établissement des léproseries. On a prétendu que la lèpre avait été rapportée d'Orient en Occident au moment des croisades; mais, ainsi que nous l'avons dit plus haut, il y avait, du temps de Mathieu Pâris, 19,000 ladreries en Europe, la plupart bâties dans des contrées qui n'avaient eu aucun rapport avec l'Orient. De plus, des 300,000 hommes conduits en Orient par le frère de Philippe 1er, 5,000 à peine parvinrent en Palestine, et très-peu revinrent en Europe. De l'armée de l'empereur Conrad III, il ne resta qu'un bien petit nombre de croisés en état de revoir leur patrie. Louis le Jeune et Richard Coeur-de-Lion revinrent presque seuls de Palestine. Comment donc ces armées, qui furent englouties en Orient, auraient-elles pu rapporter et répandre la lèpre en Occident, de manière qu'on fût obligé de fonder 19,000 maisons pour soigner les lépreux? Sans entrer dans une discussion qui ne serait pas à sa place ici, à propos de l'invasion de cette maladie en Europe et particulièrement en France, on peut toutefois reconnaître comme certain qu'elle existait. bien avant les croisades 67.
Voici la liste des principaux hôpitaux fondés à Paris du VIIe au XVIe siècle:
Hôtel-Dieu, fondé, dit la tradition. par saint Landry (VIIe siècle).
Hôpital des Haudriettes, fondé sous Clovis, et où l'on prétend que mourut sainte Geneviève. Au XIIIe siècle, la famille Haudry reconstruisit cet établissement.
Hôpital de Saint-Gervais, fondé par Gatien Masson, prêtre, en 1171, la chapelle de cet hôpital ne fut dédiée qu'en 1411.
Hôpital de Sainte-Catherine, appelé primitivement de Sainte-Opportune (1180 environ), La chapelle fut construite en 1222, puis réparée en 1479.
Hôpital de la Sainte-Trinité, rue Saint-Denis, fondé par les deux frères Escuacol en 1202. Cet hôpital possédait une fort belle salle pour coucher les pauvres. En 1210, on y ajouta une chapelle. Les enfants des pauvres étaient recueillis et élevés dans l'établissement. Cet hôpital fut successivement augmenté jusqu'en 1598.
Hôpital des Quinze-Vingts, fondé par saint Louis en 1254.
Hôpital de Saint-Marcel (anciennement de l'Oursine), fondé par Marguerite de Provence après la mort de saint Louis.
Hôpital des Jacobins, fondé en 1263. En 1366, Jeanne de Bourbon, femme de Charles V, l'augmenta.
Hôpital de Saint-Jacques-du-Haut-Pas, fondé par Philippe IV en 1286.
Hôpital tenant au prieuré de la Charité (Notre-Dame-des-Billettes), fondé par le bourgeois de Paris Roger Flamming, en 1299.
Hôpital Saint-Jacques-aux-Pèlerins, rue Saint-Denis, fondé en 1315 par Louis X. La chapelle fut terminée en 1323.
Hôpital Saint-Julien-aux-Ménétriers, fondé par deux ménétriers en 1330. En 1334, les fondateurs augmentèrent cet hôpital par l'acquisition de plusieurs maisons voisines.
Hôpital du Saint-Sépulcre, fondé par Philippe de Valois en 1333.
Hôpital du Saint-Esprit, fondé en 1361 pour les enfants.
Hôpital conventuel ou commanderie du Petit-Saint-Antoine, fondé en 1368, sous Charles V.
Note 48: (retour) Plutarque, l'ie de Solon, cap. XXXI.
Note 49: (retour) Justin, Historia, lib. XXVIII.
Note 50: (retour) Collection des docum. inéd. sur l'hist. de France. Paris, 1850. T. I.
Note 51: (retour) Le Théât. des antiq. de Paris, 1612. L. I, p. 71.
Note 52: (retour) Hist. de la ville et du dioc. de Paris, t. I, p. 22.
Note 53: (retour) Hist. de la ville et du dioc. de Paris, t. I, 2e partie, p. 481.
Note 54: (retour) «Art. 13. Donamus et legamus duobus millibus domorum leprosorum decem millia librarum, videlicet cuilibet earum centum solidos.»
Note 55: (retour) Voy. le curieux ouvrage de M. Labourt, Recherches sur l'origine des ladreries, maladreries et léproseries, Paris, 1854.
Note 56: (retour) Voy. Droits et usages concern. les travaux de construction publ. ou privées sous la troisième race des rois de France, par M. A. Champollion-Figeac, p. 166. Paris, 1860.
Note 57: (retour) Ibidem.
Note 58: (retour) Il faut reconnaître que depuis peu on a fait chez nous de grands progrès en ce genre. L'hospice de Charenton, ceux de Vincennes et du Vézinet, sont non-seulement parfaitement appropriés à leur destination; mais ce sont aussi, comme oeuvres d'architecture, des édifices faits pour donner aux malades des idées plutôt agréables que tristes.
Note 59: (retour) Voy. l'Archit. civ. et domest. de MM. Verdier et Cattois, t., II.
Note 60: (retour) Voy., pour de plus amples détails, les gravures des Archives des monum. hist., publiées par les ordres du ministre d'État; aussi l'ouvrage précédemment cité de MM. Verdier et Cattois, t. II, p. 104.
Note 61: (retour) L'abbaye d'Ourscamp appartient aujourd'hui à M. Peigné-Delacour, qui, heureusement, conserve avec un soin particulier ces restes remarquables.
Note 62: (retour) Notes hist. sur l'hôpital de Tonnerre. Auxerre, 1853.
Note 63: (retour) Les comptes de 1556, d'après l'excellent travail de M. C. Dormois cité plus haut, présentent des dépenses occasionnées par la réfection de l'une de ces galeries.«Payé à Jehan Desmaisons, charpentier, la somme de 91 liv. 40 s. pour la fasson de la grande gallery dudit hospital, contenant 20 toises de long et 2 de large... À Nicolas..., maçon, pour avoir fait la massonnerie pour soutenir les poteaux d'icelle gallery... À Jehan et Pierre les Mathieux, couvreurs, la somme de 8 liv. 13 s. pour avoir couvert l'escalier de la d. gallery... À Jehan, marchand,... pour ferrer les portes de l'hospital et les chevrons de la grande gallery,...» etc.
Note 64: (retour) C'est à M. Lefort, architecte à Sens, que nous devons un relevé minutieux de cette grande salle de l'hôpital de Tonnerre. M. Lefort a eu l'obligeance de mettre tous ses dessins à notre disposition.
Note 65: (retour) Un plafond a été établi sous la voûte en bardeau et a détruit l'aspect grandiose de cette salle.
Note 66: (retour) Voy. l'Archit. civ. et domest. de MM. Verdier et Cattois, t. II, p. 107.
Note 67: (retour) Voy. à ce sujet les Recherches sur l'origine des ladreries, maladreries et léproseries, par L. A. Labourt. Paris, 1854.
Il existait encore, en dehors de ces établissements, dans un grand nombre de communautés et dans les paroisses, des maisons ou salles pour les malades, les pauvres et les pèlerins.
HÔTELLERIE. Il existait, à l'époque gallo-romaine, sur les grands chemins, des hôtelleries à distances assez rapprochées pour que le voyageur pût trouver un gîte à la fin de chaque journée. Ces auberges, mansions, étaient de grandes hôtelleries dans lesquelles on trouvait des chevaux de poste, un gîte, à boire et à manger. Elles servaient d'étapes pour les soldats et étaient placées sous la surveillance d'inspecteurs, frumentarii et curiosi, qui veillaient à leur bonne tenue et qui étaient chargés d'espionner les voyageurs. Les hôtelleries devenaient ainsi des lieux utiles à la police secrète des préfets du prétoire, et cependant, pour avoir droit de gîte dans les mansions, il fallait se munir d'une sorte de carte de circulation, diploma tractatorium. D'ailleurs, les mansions servaient de gîte non-seulement aux simples particuliers et aux soldats, mais aux magistrats et préteurs en tournée, et à l'empereur lui-même lorsqu'il voyageait. C'est dans une mansion du pays des Sabins que Titus fut pris de la fièvre dont il mourut peu de jours après. S'il fallait montrer sa carte de circulation pour coucher dans une mansion, à plus forte raison ne pouvait-on se procurer des chevaux de relais qu'avec des lettres de poste.
Après l'invasion des barbares, cette institution des hôtelleries impériales fut, bien entendu, entièrement ruinée. Les races germaines pratiquaient largement l'hospitalité. Un Franc, un Bourguignon, ne croyaient pas pouvoir refuser l'entrée de sa maison à un étranger; aussi, dans les voyages, pendant les premiers siècles du moyen âge, avait-on pour habitude, à chaque couchée, de demander le gîte et la nourriture dans les habitations que l'on rencontrait sur son chemin. Si le propriétaire auquel on s'adressait était trop pauvre ou trop à l'étroit pour pouvoir vous satisfaire, il vous accompagnait chez un voisin mieux partagé, et tous ensemble prenaient leur repas. «Aucune autre nation, dit Tacite en parlant des Germains 68, n'accueille ses convives et ses hôtes avec plus de générosité; fermer sa maison a une personne, quelle qu'elle fût, serait un crime 69. Selon sa fortune, chacun reçoit l'hôte, offre un repas; et lorsque les provisions sont épuisées, celui qui, tout à l'heure, recevait, indique un autre asile et y conduit: ils entrent chez ce nouvel hôte sans invitation, et sont accueillis avec une égale bonté: connus, inconnus, sont, quant aux droits d'hospitalité, traités avec les mêmes égards.» En faisant la part de l'exagération dans le tableau tracé par Tacite, il est certain toutefois que les conquérants barbares des Gaules regardaient l'hospitalité comme un devoir dont on ne pouvait s'affranchir.
Cependant, du temps de Grégoire de Tours, il existait des auberges, puisqu'il en signale quelques-unes. Les établissements monastiques répandus sur le sol des Gaules dès le IXe siècle exerçaient l'hospitalité, et dans les abbayes ou prieurés des XIe et XIIe siècles il est toujours fait mention de la maison des hôtes, bâtie proche la porte d'entrée. Il n'en existait pas moins, au XIIe siècle, un nombre prodigieux d'hôtelleries sur les grands chemins et dans les faubourgs des villes, et ces hôtelleries, moins bien surveillées que ne l'étaient celles du temps de l'Empire, étaient le refuge des voleurs, des assassins, des femmes perdues, des joueurs et des débauchés. La légende de l'Enfant prodigue le représente toujours, à cette époque, dans une hôtellerie, au milieu de femmes qui l'enivrent et lui dérobent son argent. Courtois d'Arras est dépouillé dans une auberge où on lui présente tout ce qui peut séduire un jeune homme: car les hôtelleries alors étaient bien garnies, pourvues de bons lits mous de plumes, de bon vin à foison, souvent frelaté cependant, de volaille et de venaison; des filles étaient attachées à l'établissement et servaient d'appât pour attirer, retenir et dépouiller les voyageurs.
Au XIIIe siècle, les hôtelleries, tavernes, étaient le refuge de la lie des villes, et les ordonnances des rois restaient sans effet devant ces repaires de la canaille. Sous Philippe Auguste, en 1192, et pendant la régence de la reine Blanche de Castille, en 1229, des rixes terribles eurent lieu entre des écoliers de l'Université et des cabaretiers de Paris; le prévôt fut incarcéré à la suite de la première, et l'Université renvoya les clercs à la suite de la seconde, sous le prétexte qu'on ne leur rendait pas justice. Au XIVe siècle, ces désordres ne firent que s'accroître; la plupart des hôteliers étaient coupeurs de bourses, détrousseurs de passants; si bien qu'en 1315, pour ôter aux aubergistes l'envie d'assassiner les étrangers qui s'arrêtaient chez eux, il fut rendu une ordonnance dans laquelle il était dit que «l'hoste qui retient les effets d'un étranger mort chez lui doit rendre le triple de ce qu'il a retenu 70.» C'est dans une hôtellerie de la rue Saint-Antoine, à l'enseigne de l'Aigle, que Jeanne de Divion vint s'installer pour fabriquer les faux à l'aide desquels Robert d'Artois prétendait s'emparer de la succession de la comtesse de Mahaut. Ce lieu, dit M. Le Roux de Lincy, «était un petit séjour situé au bord de la rivière et plus loin que la Grève, partie de la ville alors presque déserte.» Les hôtelleries servaient aussi de repaire aux faux monnayeurs, ainsi que le témoigne ce passage du Renart contrefait 71:
«C'est hostel de gloutonnie
Plain de trestoute ribandie
Recept de larrons et houlliers
De bougres, de faux monnoiers.
Quant tous malvais voeullent trichier
Es tavernes se vont muchier
Hostel de bourdes et vantance
Plain de male perseverance.»
C'était aussi dans les hôtelleries que venaient discourir les fauteurs de troubles publics, que se cachaient les espions 72.
On comprendra que ces établissements n'étaient autre chose que des maisons, le plus souvent isolées, et n'ayant d'autre marque distinctive qu'une enseigne pendue à la porte.
Note 68: (retour) Germania, cap. XXI.
Note 69: (retour) La loi ripuaire faisait de l'hospitalité un devoir impérieux, et punissait d'une amende ceux qui y manquaient.--Les Capitulaires de Charlemagne commandent l'hospitalité sous les mêmes peines.
Note 70: (retour) Laurière.
Note 71: (retour) Manuscrit de la Bib. imp., nº 6985, f. Lancelot, fº 32.
Note 72: (retour) Voy. les Hôtelleries et Cabarets au moyen âge, par Franc. Michel et Éd. Fournier: t. I. Le Livre d'or des métiers.
HOURD, s. m. Hourt, hour, ourdeys, gourt. Échafaud fermé de planches; appliqué à l'architecture militaire, est un ouvrage en bois, dressé au sommet des courtines ou des tours, destiné à recevoir des défenseurs, surplombant le pied de la maçonnerie et donnant un flanquement plus étendu, une saillie très-favorable à la défense. Nous avons expliqué, dans l'article ARCHITECTURE MILITAIRE (voy. fig. 14, 15, 16 et 32), les moyens de construction et l'utilité des hourds; toutefois l'objet prend une si grande importance dans l'art de la défense des places du XIe au XIVe siècle, que nous devons entrer dans des développements.
Il y a tout lieu de croire que, dès l'époque romaine, les hourds étaient en usage, car il est question, dans les Commentaires de César, d'ouvrages en bois qui sont de véritables hourds. Nous en avons donné un exemple à l'article FOSSÉ, fig. 1. Dans l'ouvrage en bois qui couronnait les fossés du camp de César devant les Bellovaques, les galeries réunissant les tours sont des hourds continus protégeant un parapet inférieur 73. La nécessité pour les défenseurs de commander le pied des remparts, d'enfiler les fossés et de se mettre à l'abri des projectiles lancés par les assiégeants, dut faire adopter les hourds dès l'époque gallo-romaine. Les crénelages supérieurs ne pouvaient, en cas de siége, présenter une défense efficace, puisque en tirant, les archers ou arbalétriers étaient obligés de se découvrir. Si l'assiégeant se logeait au pied même des murs, il devenait de toute impossibilité aux assiégés non-seulement de lui décocher des traits, mais même de le voir, sans passer la moitié du corps en dehors des créneaux. À la fin du XIe siècle déjà et au commencement du XIIe, nous remarquons, au sommet des tours et remparts, des trous de hourds percés au niveau des chemins de ronde 74. Souvent alors ces trous sont doubles, de manière à permettre de poser, sous la solive en bascule, un lien destiné à soulager sa portée.
Les merlons des tours et courtines du château de Carcassonne (1100 environ) sont hauts (1m,60 à 1m,80); les trous de hourds sont espacés régulièrement, autant que le permet la courbe des tours ou les dispositions intérieures; sous leurs pieds-droits sont percés, tout à travers, quatre trous: deux un peu au-dessous de l'appui des créneaux, deux au niveau du chemin de ronde.

Du chemin de ronde (1), les charpentiers faisaient couler par le trou inférieur une première pièce A, puis une seconde pièce B, fortement en bascule. L'ouvrier passant par le créneau se mettait à cheval sur cette seconde pièce B, ainsi que l'indique le détail perspectif B', puis faisait entrer le lien C dans son embrèvement. La tête de ce lien était réunie à la pièce B par une cheville; un potelet D, entré de force par derrière, roidissait tout le système. Là-dessus, posant des plats-bords, il était facile de monter les doubles poteaux E, entre lesquels on glissait les madriers servant de garde antérieure, puis on assujettissait la toiture qui couvrait le hourdis et le chemin de ronde, afin de mettre les défenseurs à l'abri des projectiles lancés à toute volée. Des entailles G ménagées entre les madriers de face permettaient de viser. Ainsi des arbalétriers postés sur les hourds pouvaient envoyer des projectiles par des meurtrières multipliées et jeter des pierres par le mâchicoulis K sur les assaillants. Du chemin de ronde, d'autres arbalétriers ou archers avaient encore les meurtrières à demeure L, par lesquelles, au-dessous des hourds, ils envoyaient des traits aux assiégeants. La communication du chemin de ronde avec le hourd s'établissait de plain-pied par les crénelages, dont les merlons sont assez élevés pour permettre à un homme de passer. La couverture était faite de forts madriers sur lesquels on posait de la grande ardoise ou de la tuile, et si on craignait l'envoi de projectiles incendiaires, des peaux fraîches, de grosses étoffes de laine, du fumier ou du gazon. Ce blindage était fait au sommet des courtines et tours de toute place forte destinée à subir un siége en règle, le crénelage en maçonnerie ne servant qu'en temps de paix et pour la garde ordinaire. Par le fait, les créneaux étaient autant de portes qui mettaient les hourds en communication avec le chemin de ronde sur un grand nombre de points; et si le hourdage venait à brûler ou à être détruit par les pierriers de l'assiégeant, il restait encore debout une défense de maçonnerie offrant une dernière protection aux soldats qui garnissaient les remparts.
Ces sortes de hourds n'étaient pas généralement posés à demeure, mais seulement en temps de guerre. En temps de paix, ces charpentes étaient facilement démontées et rangées à couvert dans les tours et dans les nombreux réduits disposés le long des remparts, à l'intérieur. Aussi, pour faciliter la pose et pour éviter de numéroter les pièces, de les classer et de les chercher, les trous de hourds sont percés à des distances égales, sauf dans certains cas exceptionnels, de sorte que tous les madriers de garde, formant parement, coupés de longueur, glissaient indifféremment entre les montants doubles assemblés à l'extrémité des solives en bascule. On comprend dès lors comment la pose des hourds pouvait être rapidement exécutée. En effet, les montants doubles de face posés (2), et dont la section est tracée en A, le charpentier n'avait qu'à laisser couler entre eux les madriers de garde, ainsi qu'on le voit en B. Si des pierres d'un fort volume, lancées par les machines de l'assiégeant, avaient rompu quelques madriers, on pouvait de même les remplacer promptement et facilement du dedans des hourds pendant la nuit, sans avoir besoin ni de clous ni de chevilles.

Cependant, quelquefois, les hourds étaient à demeure, particulièrement au sommet des tours; alors on les hourdait en maçonnerie comme des pans de bois, ou on les couvrait d'ardoises. Il existe encore, dans le château de Laval, une tour du XIIe siècle qui a conservé un hourdage supérieur dont la construction paraît remonter au XIIIe siècle. Ce hourdage fait partie du comble et se combine avec lui (3).

C'est un bel ouvrage de charpenterie exécuté en beau et fort bois de chêne. Suivant l'usage de cette époque, chaque chevron de la charpente est armé, porte ferme et repose sur les blochets A (voy. la coupe C), lesquels sont portés sur la tête des poteaux de face D recevant une sablière S, et maintenus par les grandes contre-fiches intérieures moisées E. Ces contre-fiches viennent en outre soulager ces chevrons vers le premier tiers de leur longueur. Sous chaque poteau de face et sous chaque contre-fiche est posé un patin P qui forme bascule et mâchicoulis. En G, on voit le système du hourdage de face, lequel est voligé et couvert d'ardoises comme le comble lui-même. De distance en distance, de petites ouvertures sont percées dans le hourdage pour permettre de tirer. L'enrayure basse est maintenue par des entraits comme dans toutes les charpentes de combles coniques. Nous reviendrons tout à l'heure sur ces hourds à demeure, très-fréquents dans les constructions militaires du XVe siècle qui ne sont point couronnées par des mâchicoulis avec murs de garde en pierre de taille.
Pendant le XIIIe siècle, on simplifia encore le système des hourdages en charpente au sommet des remparts. On renonça aux trous doubles, on se contenta d'un seul rang de larges trous carrés (0,30 c. x 0,30 c. environ) percés au niveau des chemins de ronde; et, en effet, une pièce de bois de chêne de 0,30 c. d'équarrissage, fût-elle de trois mètres en bascule, peut porter un poids énorme. Or les hourds avaient rarement plus de 1m,95 c. de saillie (une toise). Il n'est pas nécessaire de s'étendre ici sur ces hourds simples, dont nous avons suffisamment indiqué la construction dans l'article ARCHITECTURE MILITAIRE, fig. 32. Mais souvent, au XIIIe siècle, il est question de hourds doubles, notamment dans l'Histoire de la croisade contre les Albigeois 75.
À Toulouse, assiégée par le comte Simon de Montfort, les habitants augmentent sans cesse les défenses de la ville:
«E parec ben a lobra e als autres mestiers
Que de dins et de fora ac aitans del obriers
Que garniron la vila els portals els terriers
Els murs e las bertrescas els cadafales dobliers
Els fossatz e las lissas els pons els escaliers
E lains en Toloza ac aitans carpentiers.
... 76»
Ailleurs, au siége de Beaucaire:
«Mas primier fassam mur ses cans e ses sablo
Ab los cadafales dobles et ab ferm bescalo 77.»
Nous avons dû chercher sur les monuments mêmes la trace de ces hourds à deux étages. Or, à la cité de Carcassonne, des deux côtés de la porte Narbonnaise, dont la construction remonte au règne de Philippe le Hardi, nous avons pu reconnaître les dispositions d'un de ces échafauds doubles, indiquées par la construction de merlons très-puissants et taillés d'une manière toute particulière.

Ces merlons (4) sont appareillés en fruit sur le chemin de ronde, ainsi que l'indique le profil A. Leur base est traversée au niveau du chemin de ronde, par des trous de hourds de 0,30 c. de côté, régulièrement espacés. Sur le parement du chemin de ronde du côté de la ville est une retraite continue B. Les hourds doubles étaient donc disposés ainsi: de cinq pieds en cinq pieds passaient par les trous de hourds les fortes solives C, sur l'extrémité desquelles, à l'extérieur, s'élevait le poteau incliné D, avec des contre-poteaux E formant la rainure pour le passage des madriers de garde. Des moises doubles J pinçaient ce poteau, se reposaient sur la longrine F, mordaient les trois poteaux GHI, celui G étant appuyé sur le parement incliné du merlon, et venaient saisir le poteau postérieur K également incliné. Un second rang de moises, posé en L, à 1m,80 du premier rang, formait l'enrayure des arbalétriers M du comble. En N, un mâchicoulis était réservé le long du parement extérieur de la courtine. Ce mâchicoulis était servi par des hommes placés en O, sur le chemin de ronde, au droit de chaque créneau muni d'une ventrière P. Les archers et arbalétriers du hourd inférieur étaient postés en R, et n'avaient pas à se préoccuper de servir ce premier mâchicoulis. Le second hourd possédait un mâchicoulis en S. Les approvisionnements de projectiles se faisaient au dedans de la ville par les guindes T. Des escaliers Q, disposés de distance en distance, mettaient les deux hourds en communication. De cette manière, il était possible d'amasser une quantité considérable de pierres en V, sans gêner la circulation sur les chemins de ronde ni les arbalétriers. En X, on voit de face, à l'extérieur, la charpente du hourdage dépourvue de ses madriers de garde, et, en Y, cette charpente garnie. Par les meurtrières et mâchicoulis, on pouvait lancer ainsi sur l'assaillant un nombre prodigieux de projectiles. Comme toujours, les meurtrières U, à demeure, percées dans les merlons, dégageaient au-dessous des hourds et permettaient à un second rang d'arbalétriers postés entre les fermes, sur le chemin de ronde, de viser l'ennemi. On conçoit que l'inclinaison des madriers de garde était très-favorable au tir. Elle permettait, de plus, de faire surplomber le second mâchicoulis S en dehors du hourdage inférieur. La dépense que nécessitaient des charpentes aussi considérables ne permettait guère de les établir que dans des circonstances exceptionnelles, sur des points mal défendus par la nature, et c'était précisément le cas des deux côtés de la porte Narbonnaise, particulièrement pour la courtine du nord (voy. PORTE), sur l'étendue de laquelle, entre cette porte et la tour du Trésau, ce système a été appliqué.
Si les courtines étaient garnies de hourds, à plus forte raison le sommet des tours devait-il être muni de cette défense nécessaire, puisqu'on avait plus d'avantage à attaquer une tour qu'une courtine; aussi les tours de la cité de Carcassonne sont-elles toutes percées, au niveau de leur plancher supérieur, de trous de hourds très-larges, bien dressés et également répartis sur la circonférence. Mais ces tours étant couvertes par des charpentes, il était indispensable de disposer celles-ci de telle sorte que l'on pût poser les toitures des hourds sans gâter celles des tours. À cet effet, on laissait au-dessus des corniches un espace vide entre les blochets, pour passer les chevrons du hourd (5), qui étaient calés sur les semelles du comble et arrêtés derrière les jambettes au moyen de clefs, ainsi que l'indique le profil A.

Le hourdage d'une tour ronde se trouvait former un plan polygonal à plus ou moins de côtés, suivant que la circonférence de la tour était plus ou moins étendue, car les trous de hourds sont toujours, comme les créneaux et meurtrières, percés à distances égales. Le mâchicoulis continu était ouvert soit le long du parement de la tour, en B, soit le long des madriers de garde, en C, suivant le lieu et l'occasion; voici pourquoi: les bases des tours (comme celles des courtines) sont montées en talus, sauf de rares exceptions. Le talus finissait ordinairement au niveau de la crête de la contrescarpe du fossé. Si l'assaillant parvenait à combler le fossé, il arrivait au sommet du talus, en G, comme l'indique le tracé M. Alors le mâchicoulis percé en C ne battait pas verticalement les mineurs attachés en G; il était donc nécessaire d'avoir un mâchicoulis, en B, le long du parement même de la tour. Si, au contraire, le mineur s'attachait à la base de la tour, au fond du fossé en F, il fallait ouvrir un mâchicoulis en C, directement au-dessus de lui, car les projectiles tombant par le mâchicoulis B, ricochant sur le talus, devaient décrire une parabole ab par-dessus la tête des mineurs. Mais si l'assaillant se présentait en masse à la base d'une tour ou d'une courtine, garanti par une galerie roulante, une gate, le projectile tombant verticalement du mâchicoulis B lui causait plus de dommages en ricochant, car il pouvait entrer ainsi sous la gate. En P, nous donnons une vue perspective du sommet d'une tour de la fin du XIIIe siècle, faisant partie de l'enceinte de la cité de Carcassonne, avec ses hourds posés et en partie recouverts de peaux fraîches, afin d'éviter l'effet des projectiles incendiaires sur toutes les pièces saillantes du hourdage.
Mais, dès la première moitié du XIIIe siècle, on avait déjà cherché à parer, au moins en partie, aux dangers d'incendie que présentaient ces hourds saillants posés sur des solives en bascule, et contre lesquels les assaillants lançaient une quantité de barillets de feux grégeois, de dards garnis d'étoupe, de résine ou de bitume enflammés, toutes matières qui, par leur nature, pouvaient s'attacher aux charpentes et produire un feu très-vif que l'eau ne pouvait éteindre. Nous voyons déjà, au sommet des tours élevées à Coucy par Enguerrand III de 1220 à 1230, des consoles en pierre destinées à la pose des hourds de bois. La combinaison de ces hourds est très-apparente et fort ingénieuse au sommet du donjon de Coucy (voy. DONJON, fig. 39). Le pied des hourds de ce donjon célèbre, le plus grand de tous ceux que possède l'Europe, est à 40 mètres au-dessus de la contrescarpe du fossé. Et bien qu'à cette hauteur les assiégés n'eussent pas à redouter les projectiles incendiaires, ils ont établi, tout autour de l'énorme cylindre, quarante-huit consoles de pierre de 1m,07 de saillie sur 0,30 c. d'épaisseur, pour asseoir le hourdage dont notre fig. 6 donne la coupe en A.

En B, on voit l'une des consoles formées de deux assises chacune. Sur ces consoles, en temps de guerre, reposait un patin C, recevant deux poteaux inclinés DE. Des moises F, posées un peu au-dessus du niveau de la ventrière des créneaux, servaient à porter un plancher destiné aux arbalétriers. En avant de ce plancher était ouvert un mâchicoulis G à l'aplomb de la base du talus du donjon au fond du fossé. Suivant le système précédemment expliqué, des madriers de garde entraient en rainure en avant des poteaux D, doublés d'un deuxième poteau pincé à sa base par les moises. Au sommet de la corniche H est élevé un talus double de pierre, sur lequel venait s'appuyer le double chevronnage II', dont le glissement était maintenu par l'équerre J. Sur le banc continu K intérieur étaient posés d'autres poteaux inclinés L, pincés par les moises M et s'assemblant dans les chevrons I'. Sur ces moises M, des longrines recevaient un plancher O, qui, au droit de chaque créneau, se reposait sur la ventrière, mais de manière à laisser entre ces planchers et celui du hourdage un mâchicoulis N à l'aplomb du parement extérieur de la tour. Le plancher O, mis en communication avec la terrasse par quelques escaliers P, permettait d'arriver au plancher du hourdage, et de poster un second rang d'arbalétriers qui pouvaient tirer par les meurtrières en maçonnerie R (voy. la face intérieure T qui représente, en T', le crénelage nu, et en T''le crénelage avec les hourds). L'angle du tir est surtout disposé pour couvrir de projectiles le chemin de ronde de la chemise du donjon. Les mâchicoulis suffisaient amplement pour battre le fond du fossé dallé, creusé entre cette chemise et la tour. Les défenseurs postés soit sur le hourdage, soit à l'intérieur, étaient ainsi parfaitement à couvert. Des pierres amassées dans l'embrasure des créneaux sur le plancher O pouvaient être poussées du pied et être jetées rapidement par le mâchicoulis N. En S sont percées les conduites rejetant à l'extérieur les eaux de la terrasse; ces conduites étaient autrefois garnies de plomb, comme la terrasse elle-même. Un fragment du plan du sommet du donjon de Coucy, avec les hourds posés supposés coupés au niveau ab (7), complète l'explication de la fig. 6.

Nous avons tenu à nous rendre compte de la manière de poser ces hourds, à une hauteur de 46 mètres au-dessus du fond du fossé, sur des consoles isolées en contre-bas des crénelages. Ayant eu à poser un échafaudage à la hauteur de ces consoles, pour placer deux cercles en fer et pour réparer les couronnements profondément lézardés par l'explosion de 1652, nous avons dû chercher naturellement quels avaient été les moyens pratiques employés au XIIIe siècle pour assembler les hourds. Or tout est prévu et calculé dans ce remarquable couronnement de donjon pour faciliter ce travail en apparence si périlleux, et nous avons été conduit, par la disposition même des maçonneries, des pleins et des vides, à appliquer les procédés qu'employaient les charpentiers du XIIIe siècle, par la raison qu'on ne peut en employer d'autres. On se rappelle (voy. DONJON, fig. 38 et 39) comment est tracé le plan de la plate-forme du donjon de Coucy. Cette plate-forme se compose d'un large chemin de ronde circulaire, pourtournant une voûte à douze pans revêtue de plomb et formant un pavillon plat, au centre duquel est percé un oeil. Ce chemin de ronde circulaire, et divisé par pentes et contre-pentes pour rejeter les eaux en dehors, pouvait être facilement nivelé au moyen de madriers posés sur cales.

Ces madriers (voy. fig. 8), sur deux rangs A et B, formaient deux chemins de bois sur lesquels étaient posée une grue dont les roues A, d'un plus grand diamètre que celles B, permettaient la manoeuvre circulaire. Le nez C de cette grue dépassait l'aplomb de la grande corniche D à l'extérieur. Comme sur les talus de cette corniche s'élevaient quatre pinacles P, il fallait que la flèche de la grue pût se relever pour passer au droit de ces pinacles. Cette flèche pivotait donc sur un tourillon G, et était ramenée à son inclinaison, puis arrêtée à la queue par la traverse F et par un boulon I. Le détail K présente cette grue de face du côté du treuil. Mais il fallait que les charpentiers pussent, à l'extérieur, assembler les pièces que cette grue péchait et enlevait par les ouvertures des créneaux. Un échafaud en bascule, indiqué en L en profil et en L' de face, permettait d'avoir un premier pont M au droit de chaque créneau et au niveau des moises basses du hourdage, et un second pont N, en contre-bas, pour pouvoir poser les patins sur les consoles et assembler les poteaux inclinés dans ces patins. Des ouvriers à cheval sur le sommet des talus de la corniche pouvaient facilement assembler les chevrons entre eux et régler le plan de chaque ferme. Ainsi, de l'intérieur du donjon, l'opération entière de la pose des hourds pouvait se faire en peu de temps et sans exiger d'autres échafauds que ces petits planchers en bascule établis en dehors de chaque créneau, d'autres engins que cette grue, manoeuvrant circulairement par le moyen de ses roues de diamètres différents. L'échafaud L en bascule était fait seulement pour un créneau et transporté successivement par la grue elle-même 78. En examinant cette dernière figure avec attention, on voit 1º que l'ouverture des créneaux est mise en rapport avec les écartements des consoles, pour que les moises pendantes O puissent passer juste le long de leurs parois; 2º que la fermeture en tiers-point de ces créneaux est faite pour permettre d'étançonner convenablement les deux solives en bascule posant sur la ventrière V; 3º qu'au moyen des deux traverses RR, des jambettes inclinées S et des chandelles également inclinées J, les solives en bascule M ne pouvaient ni branler ni s'en aller au vide; 4º que les talus de la grande corniche, dont on ne pouvait s'expliquer l'utilité, sont parfaitement motivés par l'inclinaison des chevrons qui venaient se reposer franchement sur leurs faces; 5º que la forte saillie intérieure et extérieure de cette corniche soulageait d'autant ces chevrons; qu'enfin ce qu'il y a d'étrange au premier abord dans ce couronnement colossal, nullement motivé par la présence des créneaux et des meurtrières, s'explique du moment qu'on étudie la combinaison des hourds et la manière de les poser. Mais telle est cette architecture du moyen âge: il faut sans cesse chercher l'explication de toutes ses formes, car elles ont nécessairement, surtout dans les édifices militaires, une raison d'être, une utilité; et cela contribue à l'effet saisissant de ces vastes constructions.

La fig. 9 donne en perspective les manoeuvres des charpentiers posant les hourds du donjon de Coucy. On voit comment les petits ponts en bascule des créneaux suffisaient parfaitement pour assembler ces charpentes ferme par ferme; car celles-ci placées, la circulation était de suite établie en dehors pour clouer les planches du chemin de ronde et les madriers de la couverture. Il faut bien admettre certainement que les charpentiers de cette époque étaient fort habiles au levage, et il suffit d'ailleurs, pour s'en convaincre, de voir les charpentes qu'ils ont dressées; mais les moyens pratiques employés ici sont si bien expliqués par la disposition des lieux, et ces moyens sont si sûrs, si peu dangereux, comparativement à ce que nous voyons faire chaque jour, que le hourdage du donjon de Coucy ne devait présenter aucune difficulté sérieuse 79.
Il ne fallait pas moins, pour armer une fortification de ses hourds, des ouvriers, du bois en quantité, et encore risquait-on de laisser brûler ces galeries extérieures par l'ennemi; aussi, vers le commencement du XIVe siècle, renonce-t-on généralement en France aux hourds de charpente pour les remplacer par des mâchicoulis avec mur de garde en pierre (voy. ARCHITECTURE MILITAIRE, fig. 33, 34, 36, 37 et 38, et l'article MÂCHICOULIS). Ce n'est que dans les provinces de l'Est que les architectes militaires continuent à employer les hourds. On en voit encore un grand nombre, qui datent des XIV, XVe et XVIe siècles, en Suisse, en Allemagne; mais ces hourds sont habituellement posés sur la tête des murs et ne se combinent plus avec les crénelages comme ceux des XIIe et XIIIe siècles.

Voici, par exemple, un hourdage posé au sommet d'un clocher du XIIe siècle, à Dugny près Verdun. Ce hourdage (10) est, bien entendu, d'une époque postérieure, du XIVe siècle, pensons-nous. Il se compose d'un pan de bois posé en encorbellement sur des solives et revêtu d'une chemise de planches verticales clouées sur les traverses hautes et basses de ce pan de bois. Le tout est recouvert d'un comble 80. Beaucoup de tours des environs de Verdun sont encore garnies de ces hourds élevés pendant les guerres des XIVe et XVe siècles et qui, depuis lors, ont été laissés en place et servent de beffrois.
À Constance, en Suisse, on voit encore un certain nombre de tours garnies de hourds qui datent du XVe siècle. Le bâtiment de la douane de cette ville, qui date de 1398, a conservé à sa partie supérieure une belle galerie de hourds de la même époque, galerie dont nous présentons (11) une coupe.

Ces hourds se combinent avec la charpente du comble et couronnent la tête des murs sur deux côtés du bâtiment faisant face aux quais (voy. BRETÈCHE, fig. 3). Le tracé A fait voir le système de hourdage en planches verticales à l'extérieur, et le tracé B le détail de la découpure inférieure de ces planches en sapin d'une forte épaisseur, avec leurs couvre-joints C. Comme toujours, un mâchicoulis continu est réservé en D.
On établit encore des hourds contre l'artillerie à feu; mais alors on prenait la précaution de remplacer les planches par un hourdis en maçonnerie entre les membrures. On voit des hourds de ce genre encore existants en Lorraine et en Suisse, notamment au-dessus de la tour qui termine le pont de Constance du côté de la ville. À Nuremberg, il existe encore des hourds du XVIe siècle sur les remparts élevés par Albert Dürer (voy. CRÉNEAU, fig. 18). Ces hourds sont maçonnés entre les membrures et couronnent les parapets des courtines par-dessus la grosse artillerie.
On donnait aussi le nom de hourd à des échafauds que l'on dressait soit dans des salles, soit sur l'un des côtés d'un champ, pour permettre à des personnes de distinction de voir certaines cérémonies, des ballets ou des combats en champ clos. Ces hourds étaient alors encourtinés, c'est-à-dire recouverts de riches étoffes, d'écussons armoyés, de peintures sur toile, de tapisseries. Leur intérieur était disposé en gradins et quelquefois divisé en loges séparées par des cloisons drapées. Les manuscrits du XVe siècle nous ont conservé un grand nombre de ces échafauds décorés, établis à l'occasion d'un tournois, d'un banquet ou d'une fête.
Note 73: (retour) De Bello Gallico, I. VIII, c. IX.
Note 74: (retour) Au château de Carcassonne, par exemple, où les trous de hourds sont partout conservés.
Note 75: (retour) Voy. Coll. des docum. inéd. sur l'hist. de France, 1re série; Hist. polit.; Hist. de la croisade contre les hérét. albigeois, en vers provençaux, par un poëte contemporain, trad. par M. C. Fauriel; 1837.
Note 76: (retour) Vers 6854 et suiv.«Il y parut bien à l'oeuvre et aux autres métiers;
Dedans comme dehors on ne voit qu'ouvriers
Qui garnissent la ville et les portes et les plates-formes,
Les murs et les bretèches, les hourds doubles,
Les fossés et les lices, les ponts, les escaliers,
Et dans Toulouse ce ne sont que charpentiers.
...»
Note 77: (retour) Vers 3988 et suiv.«Mais auparavant faisons un mur sans chaux ni sable
Avec un double hourd et escalier solide.»
Note 78: (retour) C'est là le procédé qui a été employé par nous lors de la restauration, sans qu'il y ait eu le moindre accident à déplorer. Trois ouvriers ont été tués pendant les reprises des lézardes, mais par suite d'une négligence dans la manoeuvre. Ce malheur est arrivé, d'ailleurs, en dehors des ponts dont il est fait ici mention, et sur lesquels on a pu barder des pierres lourdes, des pièces de fer et de bois d'un poids considérable.
Note 79: (retour) Nous le répétons: une opération absolument semblable a été faite, par les mêmes moyens, en très-peu de temps et avec des bois légers, par quatre ouvriers charpentiers conduits par un ancien compagnon habile, M. La France; ce ne sont donc pas là des hypothèses.
Note 80: (retour) Le dessin de ce clocher nous a été communiqué par M. Petitot-Bellovène, de Verdun.
HOURDAGE, s. m. Hourdeïs. Réunion de hourds (voy. HOURD).
HOURDIS, s. m. Maçonnerie de brique ou de plâtras faite entre les membrures d'un pan de bois.
HUIS, s. m. Vieux mot employé pour désigner les vantaux d'une porte; toute partie de menuiserie ouvrante (voy. PORTE, VANTAIL).
HUISSERIE, s. f. Partie de menuiserie isolée formant cloison ou barrière (voy. MENUISERIE).

IMAGERIE, s. f. Ymagerie. Ce mot s'appliquait, au moyen âge, à toute représentation de scènes sculptées sur la pierre ou le bois. Les sculpteurs de figures avaient le titre d'ymagiers à dater du XIIIe siècle (voy. STATUAIRE).
IMBRICATION, s. f. S'emploie aujourd'hui pour désigner un appareil délicat de parements, formant des dessins variés par la disposition de petites pierres taillées ou de briques. Les imbrications sont quelquefois composées de pierres de diverses couleurs, comme en Auvergne et dans certaines provinces du Midi; de pierres et de terres cuites, comme dans le cloître de la cathédrale du Puy; de briques de diverses nuances ou émaillées. Les imbrications obtenues au moyen de pierres posées de manière à décorer des parements sont fréquentes pendant les XIe et XIIe siècles. On n'en trouve plus que fort rarement dans les édifices du XIIIe siècle. Les imbrications formées de briques de nuances variées se rencontrent particulièrement dans les maisons et châteaux des XVe et XVIe siècles (voyez APPAREIL).
INCRUSTATION, s. f. Ce mot ne peut s'appliquer dans l'architecture du moyen âge en France qu'à des remplissages en plomb ou en mastic d'intailles faites dans de la pierre dure, comme, par exemple, dans des dallages, dans des pierres tombales (voy. DALLAGE). En France, on n'a pas employé ce genre d'incrustation si fréquent en Italie, et qui consiste à remplir avec des marbres de couleur, découpés, des dessins creusés dans des plaques de marbre blanc. On voit des incrustations de ce genre dans la petite église de San-Miniato près Florence, faites pour décorer le pavage, la clôture et l'ambon du sanctuaire et même la façade (XIIIe siècle). La cathédrale de Sienne, celle de Florence (Sainte-Marie-des-Fleurs), celle de Gênes, sont couvertes extérieurement d'incrustations de marbre.
INTRADOS, s, m. Surface intérieure d'un arc ou d'une voûte (voyez EXTRADOS).

JAMBAGE, s. m. Nom que l'on donne aux deux montants verticaux d'une baie, porte ou fenêtre, lorsque cette baie est terminée par un linteau. Lorsque la baie est fermée par un arc, on donne, de préférence, aux deux montants verticaux qui portent l'arc, le nom de pieds droits, AA (1) sont les jambages de la baie B (voy. PORTE).

JAMBETTE, s. f. Terme de charpenterie qui désigne habituellement la petite pièce de bois légèrement inclinée qui soulage le pied de l'arbalétrier d'une ferme ou un chevron et s'assemble dans l'entrait ou le blochet. A (1) est une jambette (voy. CHARPENTE).

JARDIN, s. m. Cortil, courtil, gardin. Dans les bourgs et les villes même (principalement celles des provinces du Nord), beaucoup de maisons possédaient des jardins. Il est fait mention de jardins dans un grand nombre de pièces des XIIe et XIIIe siècles; et souvent, derrière ces maisons, dont les façades donnaient sur des rues étroites et boueuses, s'ouvraient de petits jardins.
L'amour pour les jardins et les fleurs a toujours été très-vif parmi les populations du nord de la France, et les fabliaux, les romans, sont remplis de descriptions de ces promenades privées. Pour les châteaux, le jardin était une annexe obligée; il se composait toujours d'un préau gazonné, avec fontaine lorsque cela était possible, de berceaux de vignes, de parterres de fleurs, principalement de roses, fort prisées pendant le moyen âge, d'un verger et d'un potager. Si l'on pouvait avoir quelque pièce d'eau, on y mettait des cygnes et du poisson 81. Des paons animaient les pelouses, et les volières étaient une des occupations favorites des dames. Les intendants de Charlemagne devaient nourrir des paons sur ses domaines 82; la liste des plantes dont on devait orner les jardins est même donnée tout au long 83. On y trouve les lis, les roses, quantité de plantes potagères; le pommier, le prunier, le châtaignier, le sorbier, le néflier, le poirier, le pêcher, le coudrier, l'amandier, le mûrier, le laurier, le pin, le figuier, le noyer et le cerisier.
Dans le Ménagier de Paris 84, il est fait mention de toutes les plantes potagères et d'agrément que l'on doit cultiver dans les jardins. On y trouve les fèves, la marjolaine, la violette, la sauge, la lavande, la menthe, le panais, l'oseille, les poireaux, la vigne, le chou blanc pommé, les épinards, le framboisier, la joubarbe, la giroflée, le persil, le fenouil, le basilic, la laitue, la courge, la bourrache, la follette, les choux-fleurs, les brocoli, l'hysope, la pivoine, la serpentine, le lis, le rosier, le groseillier, les pois, le cerisier, le prunier, etc. L'auteur ne se contente pas de donner une simple nomenclature, il indique la manière de planter, de semer, de soigner, de fumer, de greffer ces plantes; les méthodes employées pour détruire les fourmis, les chenilles, pour conserver les fruits, les légumes et même les fleurs en hiver. Dans la campagne, les jardins étaient entourés de haies ou de palis, quelquefois de murs; les allées étaient déjà, au XVe siècle, bordées de huis. Le tracé de ces jardins ressemblait beaucoup à ces plans que nous voyons reproduits dans les oeuvres de Du Cerceau 85, c'est-à-dire qu'ils ne se composaient que de plates-bandes séparées par des allées et de grandes pelouses quadrangulaires (préaux) entourées d'arbres et de treilles formant ombrage.
Les abbayes possédaient de magnifiques jardins avec vergers, qui étaient souvent, pour ces établissements religieux, une source de produits considérables. Les moines faisaient exécuter des travaux importants pour y amener de l'eau et les arroser au moyen de petits canaux de maçonnerie ou de bois. Tel monastère était renommé pour ses pommes ou ses poires, tel autre pour ses raisins ou ses prunes; et, bien entendu, les religieux faisaient tout pour conserver une réputation qui augmentait leur richesse.
Note 81: (retour) De ornatu mundi, poëme de Hildebert.
Note 82: (retour) Capitularia, éd. de Baluze, t. I, ch. CCCXXXVII.
Note 83: (retour) Ch. CCCXLI et CCCXLII.
Note 84: (retour) Composé, vers 1393, par un bourgeois parisien. Publ. par la Société des bibliophiles français. T. II, p. 43 et suiv.
Note 85: (retour) Des plus excellens bastimens de France.
JESSÉ (ARBRE DE). Généalogie du Christ. Dans l'Évangile selon saint
Matthieu, il est dit que Jessé engendra David, qui fut roi, et que,
depuis ce roi jusqu'à Jésus-Christ, il y eut vingt-huit générations. Or,
dans beaucoup de nos monuments religieux, la généalogie du Christ est
représentée commençant à Jessé, duquel sort un tronc d'arbre portant un
certain nombre de rois, puis saint Joseph, la sainte Vierge et le
Christ. Ce motif de sculpture et de peinture a fourni aux statuaires et
aux peintres verriers particulièrement un de leurs sujets favoris à
dater de la fin du XIIe siècle. Beaucoup de nos cathédrales placées sous
le vocable de la sainte Vierge présentent un arbre de Jessé dans les
voussures de la porte principale. On en voit un fort bien sculpté au
portail central de la cathédrale d'Amiens, dans la voussure
intermédiaire du côté droit en entrant. Le Jessé (1) est représenté
dormant suivant l'usage, coiffé d'un bonnet juif; au-dessus de lui est
placé le roi David, couronné, et toute la succession des rois. On voit
également un arbre de Jessé, sculpté au commencement du XIIIe siècle, à
la porte centrale de la cathédrale de Laon; un du XVIe siècle au portail
de la cathédrale de Rouen, etc. Un vitrail du XIIe siècle, au-dessus de
l'entrée de la cathédrale de Chartres, représente un arbre de Jessé qui
est un des plus beaux exemples de l'art de la verrerie à cette époque;
là, Jessé est couché sur un lit, au pied duquel brûle une lampe. Il
existe également un très-beau vitrail du temps de l'abbé Suger,
représentant l'arbre généalogique, dans la chapelle de la Vierge de
l'église abbatiale de Saint-Denis. On en trouve également, du XIIIe
siècle, dans les cathédrales de Reims, d'Amiens, de Bourges, à la
Sainte-Chapelle du Palais. Un des vitraux les plus remarquables du XVIe
siècle qui existe en France se voit dans l'une des chapelles absidales
de l'église Saint-Étienne de Beauvais, et représente un arbre de Jessé;
on en trouve, de la même époque, dans les cathédrales d'Autun, de Sens,
etc. On en sculptait quelquefois sur les poteaux corniers des maisons.
Il n'y a pas longtemps qu'il existait un arbre de Jessé à l'angle d'une
maison de la rue Saint-Denis, à Paris. On en trouve un, à peu près
intact, à l'angle d'une maison de Sens.
JOINT, s. m. Séparation verticale remplie de mortier ou de plâtre entre deux pierres d'appareil. Chaque pierre d'appareil est toujours placée entre deux lits horizontaux AB, CD (1) et deux joints verticaux AC, BD (voy. CONSTRUCTION).

Dans les constructions du moyen âge, les joints, d'abord très-épais jusqu'au XIe siècle, deviennent alors très-minces, particulièrement dans les provinces méridionales et en Bourgogne, et sont presque dépourvus de mortier; ils s'épaississent vers le milieu du XIIe siècle, et les pierres étant posées à bain de mortier sans être ravalées après la pose, ces joints en mortier ne sont pas repassés au fer, mais simplement coupés à la truelle. Les constructeurs ne faisant pas de ravalements ne faisaient pas non plus de rejointoiements.
Cependant il est quelques provinces, comme l'Auvergne, où, pendant les XIe et XIIe siècles, on faisait des joints en mortier légèrement saillants sur les parements et coupés vifs aux arêtes, ainsi que l'indique le profil (2); mais ces joints ne s'appliquent généralement qu'à de petits appareils. Ils sertissent, par exemple, les imbrications composées de matériaux de diverses couleurs, en formant autour de chaque pierre un filet d'un centimètre de largeur environ, saillant d'un millimètre sur le nu du mur. Ces sortes de joints étaient faits après la pose, repassés et soigneusement recoupés au fer. Le mortier en est fort dur, mais n'a pas toujours une parfaite adhérence avec celui qui a servi à la pose et qu'il a fallu dégrader à une certaine profondeur pour rejointoyer.

On voit aussi, dans des édifices de la fin du XIe siècle des provinces méridionales voisines du Centre, comme l'église Saint-Sernin de Toulouse, par exemple, des joints saillants, mais à section convexe (3). Ceux-ci, en n'arrêtant pas l'humidité qui coule le long des parements, sont moins sujets à se dégrader par l'effet de la gelée.
La durée des joints dépend beaucoup de la qualité de la pierre employée.
Avec les calcaires poreux, avec les calcaires siliceux très-rugueux, on
fait d'excellents joints; il n'en peut-être de même avec le grès, qui
jamais n'adhère parfaitement au mortier par suite de son aptitude
particulière à absorber l'humidité. Alors les mortiers se dessèchent et
se dégradent promptement. Aussi avons-nous observé, dans quelques
monuments de l'Alsace, comme à la cathédrale de Strasbourg, par
exemple
86, que les constructeurs (pour éviter, sur des plans inclinés
ou des parements directement exposés à la pluie, la dégradation des
joints de mortier, toujours pulvérulents, surtout près de la surface
extérieure), avaient pratiqué, des deux côtés de ces joints, de petites
saignées pour conduire les eaux sur les parements et préserver le
mortier du lavage (4).
En principe, du moment qu'on ne peut poser les pierres absolument jointives, comme le faisaient les Grecs et même les Romains lorsqu'ils employaient le grand appareil, mieux vaut un joint épais qu'un joint mince, le mortier ne se conservant qu'à la condition de former un volume assez considérable. Les plus mauvais joints sont les joints coulés soit en mortier, soit en plâtre. L'eau s'évaporant ou étant absorbée par la pierre, le coulis subit un retrait, et il reste des vides dans lesquels vient se loger la poussière qui engendre des végétaux. La seule méthode à employer quand on élève des constructions en pierre, c'est de poser les pierres à la louve et à bain de mortier; le fichage est quelquefois commandé, comme, par exemple, dans les reprises en sous-oeuvre; mais il demande à être fait avec un soin extrême. Dans ce cas, dès que le mortier fiché commence à prendre, il faut le bourrer avec des palettes de fer jusqu'au refus; puis on rejointoie quelque temps après jusqu'à une profondeur de cinq à six centimètres. Bien entendu, ce que nous disons ici s'applique encore plus aux lits qu'aux joints.
Les architectes du moyen âge ont souvent simulé des joints en peinture dans les intérieurs, soit en rouge sur fond blanc ou jaune, soit en blanc sur fond ocre (voy. PEINTURE).
Note 86: (retour) Face des contre-forts du transsept exposée au vent de pluie.
JUBÉ, s. m. Ambon, lectrier, doxale, pupitre. Le jubé appartient à la primitive Église; c'était alors une tribune élevée placée en bas du choeur, entre celui-ci et les fidèles répandus dans la nef. Du haut de cette tribune se faisaient les leçons tirées des épîtres ou des évangiles, et même des prédications. Prudence rapporte que l'évêque instruisait le peuple du haut du jubé 87. Grégoire de Tours décrit le jubé de l'église de Saint-Cyprien 88. Le pape Martin Ier fit lire les canons du concile de Latran du haut du jubé de cette basilique. Les capitulaires de Charlemagne ordonnent d'y lire les règlements du prince. On chantait aussi, au jubé, l'Alleluia, les proses ou séquences; mais cet usage ne fut pas conservé. Du temps de Guillaume Durand, on chantait déjà in plano, et on ne montait au jubé que les jours de grandes fêtes pour dire les leçons.
Ce n'est pas ici le lieu de chercher à décrire les diverses sortes de jubés qui existaient dans les églises d'Orient et d'Occident pendant les premiers siècles; il est certain que l'ambon de l'Église grecque et de l'Église latine, jusqu'au XIVe siècle, n'était point du tout, comme forme, ce que nous entendons aujourd'hui par jubé. Les ambons de Saint-Vital de Ravenne, de Saint-Marc de Venise, de Saint-Laurent-hors-les-murs à Rome, de Saint-Ambroise de Milan, de la cathédrale de Sienne, de l'église de San-Miniato à Florence, sont plutôt de vastes chaires pouvant contenir plusieurs personnes que des jubés comme ceux de nos églises occidentales qui, à dater du XIIe siècle au moins, forment une séparation, une sorte de galerie relevée entre le haut de la nef et le bas du choeur. Dans les églises abbatiales d'Occident, ces jubés servaient ainsi de clôture antérieure au choeur des religieux, clôture percée quelquefois de trois portes, mais le plus souvent d'une seule. Deux escaliers y montaient: l'un à droite en entrant, du côté de l'Épître, l'autre à gauche du côté de l'Évangile; ce qui n'empêchait pas la galerie supérieure d'être d'une seule venue d'un côté à l'autre de la nef, comme une tribune. Il n'existe plus en France, malheureusement, un seul jubé d'une époque ancienne, et cependant toutes nos églises abbatiales, toutes nos cathédrales en possédaient, mais aussi beaucoup d'églises paroissiales. Il faut observer toutefois que les grandes cathédrales bâties vers la fin du XIIe siècle et le commencement du XIIIe, comme celles de Noyon, de Paris, de Chartres, de Bourges, de Reims, d'Amiens, de Rouen, n'avaient point été primitivement disposées pour recevoir des jubés et des clôtures de choeur (voy. CHOEUR). Ce ne fut que vers le milieu du XIIIe siècle que les évêques ou les chapitres firent élever des jubés devant le choeur des cathédrales. Thiers cependant prétend que la cathédrale de Sens 89, de son temps, possédait un jubé fort ancien, puisqu'il lui donne une date de huit siècles (ce qui d'ailleurs n'était pas possible, la cathédrale ayant été construite à la fin du XIIe siècle). Mais sa description est intéressante, car elle nous indique que ce jubé était, suivant la tradition primitive, séparé en deux ambons. «Ils sont, dit-il 90, de pierre, séparés l'un de l'autre; le crucifix est entre deux 91. Ils sont soutenus par-devant de quatre colonnes de pierre, qui font trois arcades en face. Ils ont chacun leur entrée du côté du choeur, et chacun leur sortie du côté de la nef, aux deux côtés de la principale porte du choeur. La plupart des autres tribunes de cette sorte n'ont que chacune un escalier par lequel on entre et on sort. Ce qu'il y a de particulier aux tribunes de Sens, est qu'on chante l'Épître dans celle qui est à gauche en entrant au choeur, et l'Évangile dans celle qui est à droite.» Non-seulement il n'est pas possible d'accorder au jubé de la cathédrale de Sens l'âge que lui donne Thiers, mais il est fort douteux même que ce jubé fût antérieur au XIIIe siècle. Jusqu'au XIVe siècle, la cathédrale de Sens ne possédait pas de transsept, conformément aux dispositions de plusieurs grandes églises épiscopales bâties à la fin du XIIe siècle ou au commencement du XIIIe; elle se composait d'une seule nef avec collatéraux pourtournant le sanctuaire et de trois chapelles: l'une carrée à l'abside, et deux orientées latéralement à la hauteur du bas-choeur actuel 92. On ne saurait indiquer dès lors la place d'un jubé contemporain de l'église du XIIe siècle. Toujours suivant les données des cathédrales de cette époque, on ne voit pas qu'une clôture ait été prévue autour du sanctuaire. Or il ne se faisait guère de jubé sans clôture. Nous ne pouvons donc considérer l'opinion de Thiers comme suffisamment fondée pour admettre que, même exceptionnellement, en France, il ait existé des jubés dans les cathédrales bâties par l'école laïque de 1160 à 1230. Nous admettrions plus volontiers que, dans ces édifices, il a pu être élevé des ambons, ou vastes chaires, comme celles de Saint-Marc de Venise, sauf le style; mais certainement le sanctuaire était entièrement ouvert et souvent de plain-pied avec le collatéral, comme à Notre-Dame de Paris, comme à Meaux, à Sens, et à Senlis primitivement. Les jubés n'apparurent dans les cathédrales qu'après l'acte d'union des barons de France en novembre 1246, c'est-à-dire lorsque les évêques durent renoncer à leur prétention de connaître de toutes les contestations judiciaires, sous le prétexte que tout procès résultant d'une fraude, et que toute fraude étant un péché, c'était au pouvoir religieux à juger les affaires réelles, personnelles ou mixtes, les causes féodales ou criminelles, et même les simples délits. Les évêques étant réduits, par la fermeté du roi saint Louis, par l'établissement de ses baillis royaux et l'organisation du parlement, à s'en tenir à la juridiction spirituelle ou à celle qu'ils possédaient comme seigneurs féodaux; ne pouvant, comme ils l'avaient espéré au commencement du XIIIe siècle, faire de la cathédrale, la cathedra, le siége de toute espèce de juridiction, se contentèrent d'en faire des églises épiscopales, et s'enfermèrent avec leurs chapitres dans ces vastes sanctuaires élevés sous une inspiration à la fois politique et religieuse (voy. CATHÉDRALE).
Nous avons donné, à l'article CHOEUR, les figurés de deux jubés, ceux de l'église abbatiale de Saint-Denis et de la cathédrale de Paris. C'est d'après ces dispositions que furent élevés les jubés de Notre-Dame de Chartres, de Saint-Étienne de Bourges, de Notre-Dame d'Amiens, de la cathédrale de Reims, de 1250 à 1500 93. Celui de la cathédrale d'Alby, qui date du commencement du XVIe siècle; ceux des églises de la Madeleine à Troyes, de Saint-Étienne-du-Mont à Paris, de Saint-Florentin, d'Arques, qui existent encore, sont des oeuvres remarquables de l'époque de la Renaissance.
On conserve, dans l'une des chapelles des cryptes de Notre-Dame de Chartres, les débris de l'ancien jubé jeté bas par le chapitre dans le dernier siècle. Ces fragments, qui appartiennent tous au milieu du XIIIe siècle, sont d'une beauté rare, entièrement peints et dorés; ils ont été découverts par feu Lassus, notre confrère et ami. Nous avons trouvé depuis peu, sous le dallage du choeur de la cathédrale de Paris, refait par l'ordre de Louis XIV, quantité de débris du jubé qui datait du commencement du XIVe siècle et était d'une finesse d'exécution incomparable. Malheureusement ces fragments ne sont pas assez nombreux pour pouvoir reconstituer d'une manière certaine et dans toutes leurs parties ces charmants monuments. De tous les jubés que nous possédons encore en France, celui de la cathédrale d'Alby est certainement le plus vaste, le plus complet et le plus précieux; chargé d'une multitude infinie de sculptures, de tailles délicates, il présente un des spécimens les plus extraordinaires de l'art gothique arrivé aux dernières limites de la délicatesse et de la complication des formes. Quelques églises de Bretagne conservent encore leurs jubés de bois; nous citerons, comme le plus remarquable, celui de Saint-Fiacre au Faouët, qui date de la fin du XVe siècle. Il est entièrement peint.
Note 87: (retour) Hymne de saint Hippolyte.
Note 88: (retour) L. I, Mirac., ch. XLIV.
Note 89: (retour) Dissertations ecclés. sur les jubés des églises. Paris, 1688.
Note 90: (retour) Chap. III.
Note 91: (retour) Il est probable que cette séparation n'était pas telle qu'il fallût descendre de l'ambon de droite pour monter dans celui de gauche, puisque l'ensemble formait trois arcades, à moins toutefois d'admettre que l'arcade du milieu n'était qu'un arc portant le crucifix.
Note 92: (retour) Cette disposition, dont nous retrouvions des traces très-visibles en élévation, est confirmée par des fouilles récentes que MM. Lance, architecte diocésain, et Lefort, inspecteur, ont bien voulu faire exécuter sous nos yeux.
Note 93: (retour) Tous ces jubés ont été détruits.
JUGEMENT DERNIER. Ce sujet est fréquemment représenté, soit en sculpture, soit en peinture, dans nos églises du moyen âge. Mais la manière de le représenter diffère suivant le temps et suivant les écoles provinciales.
C'est sur le portail des églises abbatiales que nous voyons le Jugement dernier tenant tout d'abord une place importante; mais, au XIIIe siècle, il apparaît dans les tympans des portes principales des cathédrales, des églises paroissiales et même des chapelles.
Sur la porte de la cathédrale d'Autun, dont la construction est de 1140 environ, nous voyons sculpté un des jugements derniers les plus anciens et les plus complets. Le Christ occupe la partie centrale du tympan; à côté de lui se tient un ange qui pèse les âmes et un diable qui attend les damnés. Dans le linteau, à la droite du Christ, sont les élus qui regardent le ciel. Un ange colossal prend une à une les âmes des bienheureux et les introduit, par une fenêtre, dans un palais qui représente le paradis À la gauche du Sauveur sont les damnés; un ange armé d'une épée leur interdit la communication avec les élus. Ces damnés, nus, ont la tête plongée dans leurs mains. Déjà, dans cette sculpture, l'idée dramatique domine; les expressions sont rendues avec une vigueur sauvage qui ne manque ni de style ni de noblesse. Mais c'est au commencement du XIIIe siècle que les artistes se sont plu à représenter d'une manière étendue les scènes du Jugement dernier; non-seulement alors elles occupent les tympans au-dessus des portes, mais les claveaux inférieurs des voussures. Le Jugement dernier de la porte centrale de la cathédrale de Paris est un des mieux traités. Le linteau est entièrement occupé par des personnages de divers états sortant de leurs tombeaux, réveillés par deux anges qui, de chaque côté, sonnent de la trompette. Tous ces personnages sont vêtus; on y voit un pape, un roi, des guerriers, des femmes, un nègre. Dans la zone supérieure, au centre, est un ange qui pèse les âmes; deux démons essayent de faire pencher l'un des plateaux de leur côté. À la droite du Christ sont les élus, tous vêtus de longues robes et couronnés. Ces élus sont représentés imberbes, jeunes et souriants; ils regardent le Christ. À la gauche, un démon pousse une foule d'âmes enchaînées portant chacune le costume de leur état. Les expressions de ces personnages sont rendues avec un rare talent: la terreur, le désespoir se peignent sur leurs traits. Dans la partie supérieure est, au centre, le Christ assis, demi-nu, qui montre ses plaies; deux anges, debout, à droite et à gauche, tiennent les instruments de la Passion; puis sont placés à genoux, implorant le Sauveur, la Vierge et saint Jean. Les voussures du côté des damnés sont occupées, à la partie inférieure, par des scènes de l'enfer, et, du côté des élus, par un ange et les patriarches, parmi lesquels on voit Abraham tenant des âmes dans son giron; puis des élus groupés. Cette sculpture remarquable date de 1210 à 1215; elle était entièrement peinte et dorée.
Nous trouvons le même sujet représenté à la cathédrale de Chartres, à Amiens, à Reims, à Bordeaux. Mais, dans ces derniers bas-reliefs, les âmes sont représentées nues généralement, sauf celles des élus, et les compositions sont loin de valoir celle de Notre-Dame de Paris. Le sentiment dramatique est déjà exagéré, les groupes sont confus, les damnés grimaçants, les démons plus ridicules qu'effrayants. Presque toujours l'entrée de l'enfer est représentée par une gueule énorme vomissant des flammes au milieu desquelles des démons plongent les damnés. Au XIVe siècle, ce sujet, bien que fréquemment représenté, perd beaucoup de son importance; les figures, trop nombreuses, sont petites, et les artistes, en cherchant la réalité, en multipliant les scènes, les personnages, ont enlevé à leur sculpture ce caractère de grandeur si bien tracé à Paris. On voit des bas-reliefs représentant le Jugement dernier sur le tympan du portail des Libraires à la cathédrale de Rouen, sur la porte principale de l'église Saint-Urbain de Troyes, qui datent du XIVe siècle, et qui, par leurs détails sinon par l'ensemble, présentent encore des sculptures traitées avec une rare habileté. Des vitraux de roses étaient souvent occupés par des scènes du Jugement dernier dès le commencement du XIIIe siècle. Celles de la rose de l'église de Mantes, qui appartiennent à cette époque, sont fort belles. La rose sud de la cathédrale de Sens (XVIe siècle) présente d'assez bonnes peintures de ce même sujet. Mais les meilleures peintures sur verre du Jugement dernier, de l'époque de la Renaissance, sont celles de la sainte-chapelle du château de Vincennes, attribuées à Jean Cousin. Il existe aussi quelques peintures murales du Jugement dernier en France; nous mentionnerons particulièrement celles de la cathédrale d'Alby, qui datent de la fin du XVe siècle.

KARNEL, s. m. (voy. CRÉNEAU).
KEMINÉE, s f. (voy. CHEMINÉE).

LABYRINTHE, s. m. Il était d'usage, pendant le moyen âge, de disposer, au milieu de la nef de certaines grandes églises, des pavages de pierres blanches et noires ou de carreaux de couleur formant, par leurs combinaisons, des méandres compliqués auxquels on donnait le nom de labyrinthe, de chemin de Jérusalem ou de la Lieue. Nous ne saurions dire quelle fut l'origine de ces sortes de pavages. M. Louis Pâris, dans son Mémoire du mobilier de Notre-Dame de Reims, prétend que ces pavages étaient une réminiscence de quelque tradition païenne: c'est possible; cependant il n'en est fait mention ni dans Guillaume Durand, ni dans les auteurs antérieurs à lui qui ont écrit sur les choses touchant aux églises. Les plus anciens labyrinthes que nous connaissions ne sont pas antérieurs à la fin du XIIe siècle, et le seigneur de Caumont, dans son Voyaige d'oultremer en Jhérusalem 94, en parlant du labyrinthe de Crète 95, ne dit rien qui puisse faire croire à une tradition de cette nature, c'est-à-dire qu'il n'établit aucun point de comparaison entre le labyrinthe du Minotaure et ceux qu'il avait évidemment vus tracés sur le pavé des églises de son pays. Le labyrinthe de la cathédrale de Reims s'appelait dédale, méandre, lieue ou chemin de Jérusalem. Quelques archéologues ont voulu voir, dans ces pavés à combinaisons de lignes concentriques, un jeu des maîtres des oeuvres, en se fondant sur ce fait, que trois de ces labyrinthes, ceux de Chartres, de Reims et d'Amiens, représentaient, dans certains compartiments, les figures des architectes qui avaient élevé ces cathédrales. Nous nous garderons de trancher la question. On trouve les tracés de la plupart de ces labyrinthes dans l'ouvrage de M. Amé intitulé: Carrelages émaillés du moyen âge et de la Renaissance. M. Vallet, dans sa description de la crypte de Saint-Bertin de Saint-Omer, établit que les fidèles devaient suivre à genoux les nombreux lacets tracés par les lignes de ces méandres, en mémoire du trajet que fit Jésus de Jérusalem au Calvaire. La petite basilique de Reparatus à Orléans-Ville (Algérie) montre, sur son pavé, une mosaïque que l'on peut prendre pour un de ces labyrinthes, c'est-à-dire un méandre compliqué. Or cette basilique date de 328, ainsi que le croit M. F. Prévost. Cet usage est-il venu d'Orient après les premières croisades? ou est-il une tradition locale? Nous inclinons à penser que la représentation des maîtres de l'oeuvre sur ces pavages les rattacherait à quelque symbole maçonnique adopté par l'école des maîtres laïques, d'autant que nous ne voyons apparaître ces labyrinthes sur les pavages des églises qu'au moment où les constructions religieuses tombent dans les mains de cette école puissante. Si ces méandres avaient été tracés pour représenter le trajet de Jésus de la porte de Jérusalem au Calvaire, il est à croire qu'un signe religieux aurait rappelé les stations, ou du moins la dernière; or on ne remarque rien de semblable sur aucun des labyrinthes encore existants ou sur ceux dont les dessins nous sont restés. De plus, nous trouvons des carrelages émaillés qui représentent des combinaisons de lignes en méandres dans des dimensions si petites, qu'on ne pouvait, à coup sûr, suivre ces chemins compliqués, ni à pied ni à genoux, puisque quelques-uns de ces labyrinthes, comme celui de l'église abbatiale de Toussaints (Marne), n'ont pas plus de 0,25 c. de côtés. À vrai dire, ces derniers méandres datent du XIVe siècle et peuvent passer pour une copie d'oeuvres plus grandes; mais, encore une fois, les petits ou les grands ne renferment aucun signe religieux.
Note 94: (retour) En 1418. Publié par M. le marquis de la Grange. Paris, A. Aubry, 1858.
Note 95: (retour) Page 41.
LAMBOURDE, s. f. Terme de charpenterie qui sert à désigner une pièce de bois posée horizontalement le long d'un mur sur des corbeaux, ou flanquant une poutre maîtresse, sur laquelle viennent s'assembler et porter les solives des planchers dont la construction reste apparente. A (1) est une lambourde accolée à un mur, et BB sont des lambourdes flanquant une poutre maîtresse.

Dans ce dernier cas, les lambourdes étaient maintenues contre la poutre au moyen de longues chevilles de fer, de boulons à clavettes ou d'étriers (voy. PLANCHER). On donne aussi le nom de lambourdes à des longrines de bois de faible équarrissage qui posées sur les planchers, servent à clouer les parquets; mais les parquets n'étant pas fort anciens en France, la dénomination de lambourde donnée à ces longues cales est très-moderne.
LAMBRIS, s. m. Lambruscature. Ne s'employait, au moyen âge, que pour désigner un revêtement uni de planches. Les charpentes des XIIIe, XIVe et XVe siècles sont souvent, à l'intérieur, garnies de lambris en forme de berceau plein cintre ou en tiers-point. Ce sont alors des charpentes lambrissées (voy. CHARPENTE). Ces lambris étaient toujours revêtus de peintures plus ou moins riches. On en voit encore beaucoup en Bretagne, en Normandie et en Picardie. La grand'salle du Palais à Rouen est couverte par une charpente lambrissée. La salle de l'hôpital de Tonnerre possède également une énorme charpente lambrissée (voy. HÔTEL-DIEU, SALLE). On garnissait aussi fréquemment de lambris la partie inférieure des salles ou chambres, c'est-à-dire de planches avec couvre-joints au-dessous des tapisseries. Ces lambris étaient isolés des murs et cloués sur des tasseaux scellés au plâtre dans des rainures A (1). On évitait ainsi la fraîcheur des murs, toujours assez dangereuse dans les habitations.

LANTERNE DES MORTS. Fanal, tournièle, phare. Pile creuse en pierre terminée à son sommet par un petit pavillon ajouré, percé à si base d'une petite porte, et destinée à signaler au loin, la nuit, la présence d'un établissement religieux, d'un cimetière. «Adont moru Salehedins li miudres princes qui onkes fust en Paienie et fu enfouis en la cymitère S. Nicholai d'Acre de jouste sa mère qui moult ricement y fu ensévelie: et à sour eaus une tournièle bièle et grant, où il art nuit et jour une lampe plaine d'oile d'olive: et le paient et font alumer cil del hospital de S. Jehan d'Acre, qui les grans rentes tiènent que Salehedins et sa mère laissièrent 96.»
Les provinces du centre et de l'ouest de la France conservent encore un assez grand nombre de ces monuments pour faire supposer qu'ils étaient jadis fort communs. Peut-être doit-on chercher dans ces édifices une tradition antique de la Gaule celtique. En effet, ce sont les territoires où se trouvent les pierres levées, les menhirs, qui nous présentent des exemples assez fréquents de lanternes des morts. Les mots lanterne, fanal, phare, pharus ignea 97, ont des étymologies qui indiquent un lieu sacré, une construction, une lumière. Later, laterina, en latin, signifient brique, lingot, bloc, amas de briques; [Grec phanos], en grec, lumineux, flambeau; [Grec phanês], dieu de lumière; fanum, lieu consacré; par, en celtique, pierre consacrée; fanare, réciter des formules de consécration. Le dieu celte Cruth-Loda habite un palais dont le toit est parsemé de feux nocturnes 98. Encore de nos jours, dans quelques provinces de France, les pierres levées dont on attribue, à tort selon nous 99, l'érection aux druides, passent pour s'éclairer, la nuit, d'elles-mêmes, et pour guérir les malades qui se couchent autour la nuit précédant la Saint-Jean. La pierre des Érables (Touraine), entre autres, prévient les terreurs nocturnes. Il est bon d'observer que le menhir des Érables est percé d'un trou de part en part, ainsi que plusieurs de ces pierres levées. Ces trous n'étaient-ils pas disposés pour recevoir une lumière? et s'ils devaient recevoir une lumière, ont-ils été percés par les populations qui primitivement ont élevé ces blocs, ou plus tard? Que les menhirs aient été des pierres consacrées à la lumière, au soleil, ou des pierres préservatrices destinées à détourner les maladies, à éloigner les mauvais esprits, ou des termes, des bornes, traditions des voyages de l'Hercule tyrien, toujours est-il que le phare du moyen âge, habituellement accompagné d'un petit autel, semble, particulièrement dans les provinces celtiques, avoir été un monument sacré d'une certaine importance. Il en existait à la porte des abbayes, dans les cimetières, et principalement sur le bord des chemins et auprès des maladreries. On peut donc admettre que les lanternes des morts érigées sur le sol autrefois celtique ont perpétué une tradition fort antique, modifiée par le christianisme.
Les premiers apôtres des Gaules, de la Bretagne, de la Germanie et des contrées scandinaves, éprouvaient des difficultés insurmontables lorsqu'ils prétendaient faire abandonner aux populations certaines pratiques superstitieuses. Souvent ils étaient contraints de donner à ces pratiques, qu'ils ne pouvaient détruire, un autre but et de les détourner, pour ainsi dire, au profit de la religion nouvelle, plutôt que de risquer de compromettre leur apostolat par un blâme absolu de ces traditions profondément enracinées. M. de Caumont 100 pense que les lanternes des morts, pendant le moyen âge, étaient destinées particulièrement aux services des morts qu'on apportait de très-loin et qui n'étaient point introduits dans l'église. Il admet alors que le service se faisait dans le cimetière et que le fanal remplaçait les cierges. Cette opinion est partagée par M. l'abbé Cousseau 101: «Les églises mères (ecclesiæ matrices) seules, dit M. Cousseau, possédaient sans restrictions tous les droits qui se rattachent à l'exercice du culte. Cela résultait de ce que souvent le seigneur, en faisant donation d'une église à un corps religieux, apportait à sa libéralité cette restriction, que le droit de dîme, le droit de sépulture, etc., ne seraient pas compris dans la donation.» Que les lanternes des morts aient été utilisées pour les services funèbres dans les cimetières, le fait paraît probable; mais qu'on ait élevé des colonnes de plusieurs mètres de hauteur pour placer à leur sommet, en plein jour, des lampes allumées dont personne n'aurait pu apercevoir l'éclat, et cela seulement avec l'intention de remplacer l'éclairage des cierges, c'est douteux. Si les lanternes des morts n'eussent été destinées qu'à tenir lieu de cierges pendant les enterrements, il eut été plus naturel de les faire très-basses et disposées de manière que la lumière pût être aperçue de jour par l'assistance. Au contraire tout, dans ces petits monuments, paraît combiné pour que la lampe que renferme leur lanterne supérieure puisse être vue de très-loin et de tous les points de l'horizon. M. Lecointre, archéologue de Poitiers 102, «remarque que les colonnes creuses ou fanaux étaient élevés particulièrement dans les cimetières qui bordaient les chemins de grande communication ou qui étaient dans des lieux très-fréquentés. Il pense que ces lanternes étaient destinées à préserver les vivants de la peur des revenants et des esprits de ténèbres, de les garantir de ce timore nocturno, de ce negotio perambulante in tenebris dont parle le Psalmiste; enfin de convier les vivants à la prière pour les morts.» Quant à l'idée qu'on attachait à ces monuments, au XIIe siècle par exemple, M. Lecointre nous paraît être dans le vrai; mais nous n'en sommes pas moins disposés à croire que ces colonnes appartiennent, par la tradition, à des usages ou à des superstitions d'une très-haute antiquité 103. Il est à regretter qu'il ne nous reste plus de lanternes des morts antérieures au XIIe siècle; il n'y a pas à douter de leur existence, puisqu'il en est parfois fait mention, entre autres à la bataille livrée entre Clovis et Alaric, mais nous ne connaissons pas la forme de ces premiers monuments chrétiens.

Une des lanternes des morts les mieux conservées, datant du XIIe siècle, se voit à Celfrouin (Charente)(1). La petite porte qui servait à introduire, à allumer et à guinder la lampe, est relevée de trois mètres au-dessus de la plate-forme circulaire sur laquelle s'élève l'édicule; ce qui fait supposer qu'il fallait se servir d'une échelle pour allumer cette lampe et la hisser au sommet de la cheminée. La lanterne de Celfrouin, contrairement à l'usage adopté, n'a qu'une seule ouverture au sommet, par laquelle on peut apercevoir la lumière de la lampe. Quant à la petite tablette qui se trouve disposée sous l'ouverture inférieure, elle ne saurait être considérée comme un autel, mais seulement comme un repos destiné à appuyer l'échelle et à placer la lampe pour l'arranger avant de la monter.
Une autre lanterne, plus complète que celle-ci, se trouve dans le village de Ciron (Indre); elle date de la fin du XIIe siècle. Posée sur une large plate-forme élevée de sept marches au-dessus du sol, elle possède une table d'autel et, à la droite de cette table, l'ouverture nécessaire à l'introduction de la lampe (2).

Cette porte était fermée par un vantail en bois. Nous donnons, en A, le plan général du monument de Ciron; en B, le plan au niveau de l'autel, et en C, au niveau de la lanterne supérieure.

La fig. 3 présente l'élévation et la coupe de ce monument, bien conservé encore aujourd'hui. La lanterne est à claire-voie, de manière à laisser voir la lumière de tous les points de l'horizon.

La fig. 4 présente une vue perspective et un plan de la lanterne des morts d'Antigny (Vienne), qui date du milieu du XIIIe siècle. Le monument, suivant l'usage, repose sur une plate-forme de trois marches; il est sur plan carré, possède son petit autel avec une marche, une porte latérale pour l'introduction de la lampe et quatre ouvertures au sommet pour laisser passer la lumière. L'amortissement supérieur était probablement terminé par une croix, comme les deux exemples précédents.
Les lanternes des morts perdent leur caractère de pierre levée, de colonne isolée, pendant le XIVe siècle, et sont remplacées par de petites chapelles ajourées dans lesquelles on tenait une lampe allumée (voy. CHAPELLE, fig. 20). C'est ainsi que les vieilles traditions gauloises, qui s'étaient perpétuées à travers le christianisme jusqu'à la fin du XIIIe siècle, changeaient de forme peu à peu jusqu'à faire oublier leurs origines.
Note 96: (retour) La Chronique de Rains (XIIIe siècle). Publ. par Louis Pâris. Paris, Techener, 1837.
Note 97: (retour) Il existait un pharus ignea près Poitiers, sur l'emplacement de l'église Saint-Hilaire, lors de la bataille de Clovis contre Alaric.
Note 98: (retour) Edward, Recherches sur les langues celtiques (voy. l'ouvrage de M. L. A. Labourt: Recherches sur l'origine des ladreries, maladreries, etc. Paris, 1854.)
Note 99: (retour) Ce n'est pas ici le lieu de discuter cette question qne nous nous proposons de traiter ailleurs. Nous devons dire seulement que nous considérons ces monuments comme appartenant à des traditions antérieures à la domination des Celtes.
Note 100: (retour) Cours d'antiquités, t. VI.
Note 101: (retour) Bulletin monumental, t. IX, p. 540.
Note 102: (retour) Bulletin monumental, t. III, p. 452.
Note 103: (retour) Pour ne donner ici qu'un petit nombre d'exemples de l'antiquité de cette tradition, Hérodote rapporte que, dans le temple de l'Hercule tyrien, il y avait une colonne isolée en émeraude (escarboucle) qui éclairait d'elle-même tout l'intérieur de ce temple. Le géographe Pomponius Méla prétend qu'au sommet du mont Ida, célèbre dans l'antiquité par le jugement de Pâris, on voit, la nuit, briller des feux qui se réunissent en faisceau avant le lever du soleil. Euripide dit la même chose dans les Troyennes.
LARMIER, s. m. Profil pris dans une hauteur d'assise, formant bandeau ou membre supérieur de la corniche, et destiné à protéger les parements, en faisant écouler loin des murs l'eau pluviale.

Le larmier de la corniche romaine n'est qu'un léger évidement A (1) pratiqué au-dessous de la saillie formée par le membre saillant de la corniche; par conséquent, l'eau pluviale, avant de quitter la pierre protectrice, suit la pente ab, le filet c, la doucine d et la face e. Ce principe est à peu près suivi pendant l'époque romane, et même souvent alors, le larmier faisant défaut, l'eau bave sans obstacle tout le long des profils jusqu'aux parements des murs que ces profils doivent protéger. Si l'école laïque de la fin du XIIe siècle soumettait toutes les parties de la construction à un raisonnement absolu, elle ne négligeait pas les profils; pour l'exécution de ce détail, elle abandonnait les traditions romanes; elle inventait des profils en raison des nécessités reconnues, comme elle inventait un système de construction appuyé sur de nouveaux principes. Cette école donna donc aux larmiers, c'est-à-dire aux assises protectrices des parements, le profil qui était le plus favorable au rejet des eaux. Ce profil se composait (2) d'un talus A, terminé à sa partie inférieure par un coupe-larmes B nettement découpé. Si l'on voulait éloigner davantage la goutte d'eau du parement, on ajoutait une moulure sous le coupe-larme (3) (voy. CORNICHE). Ce principe fut suivi pendant les XIIIe, XIVe et XVe siècles; vers ces derniers temps, on voulut donner plus de légèreté à ces talus, et, au lieu de les couper suivant un plan droit, on leur donna une forme concave (4).

Mais comme cet évidement affaiblissait la pierre, comme aussi le filet A paraissait épais à côté de cette surface courbe, on arriva à profiler l'extrémité du larmier, le coupe-larme, suivant le tracé (5), vers la fin du XVe siècle.

Le larmier persiste longtemps encore dans l'architecture de la Renaissance; c'est qu'en effet ce profil était certainement le plus propre à garantir les parements sous un climat où les pluies sont fréquentes. En règle générale, le filet B du larmier (fig. 2) est toujours tracé à angle droit avec la ligne du talus. Les larmiers sont puissants et épais dans l'architecture du XIIIe siècle de l'Île-de-France; ils sont plus fins et moins hauts en Champagne; ils ne se voient qu'assez tard (vers la seconde moitié du XIIIe siècle) en Bourgogne, et alors ils affectent toujours la forme d'une dalle talutée avec une mouchette profonde sous le talus (voy. PROFIL).
LATRINES, s. f. Privé, retrait. Le mot latrines ne s'emploie qu'au pluriel. On admet volontiers que nos aïeux, dans leurs maisons, palais et châteaux, n'avaient aucune de ces commodités dont aujourd'hui on ne saurait se passer (dans les villes du Nord au moins); et de ce qu'à Versailles les seigneurs de la cour de Louis XIV se trouvaient dans la nécessité de se mettre à leur aise dans les corridors, faute de cabinets, on en déduit, en faisant une règle de proportion, que chez les ducs de Bourgogne ou d'Orléans, au XVe siècle, on ne prenait même pas tant de précautions 104 .
Cependant, si les châteaux du moyen âge ne présentaient pas des façades arrangées par belle symétrie, des colonnades et des frontons, ils possédaient des latrines pour les nobles seigneurs comme pour la garnison et les valets; ils en possédaient autant qu'il en fallait et très-bien disposées. À Coucy, les tours et le donjon du commencement du XIIIe siècle ont des latrines à chaque étage, construites de manière à éviter l'odeur et tous les inconvénients attachés à cette nécessité. Les latrines du donjon s'épanchent dans une fosse large, bien construite, et dont la vidange pouvait se faire sans incommoder les habitants. Quant aux latrines des tours, elles étaient établies dans les angles rentrants formés par la rencontre de ces tours et les courtines, et rejetaient les matières au dehors dans l'escarpement boisé qui entoure le château.

Voici (1) un de ces cabinets donnant sur un palier A en communication avec les salles et l'escalier. B est la courtine, C la tour. De B en D est construit un mur en encorbellement masquant le siége E. En F est un urinoir et en G une fenêtre. Le tracé H donne l'aspect du cabinet à l'extérieur, et le tracé I sa coupe sur AX. Là il n'y avait pas à craindre l'odeur, puisque les matières tombaient dans un précipice.

La fig. 2 nous présente un cabinet qui existe encore intact dans le château de Landsperg (Bas-Rhin) 105 , et qui jette, de même que ceux des tours de Coucy, les matières à l'extérieur. Le siége d'aisances est entièrement porté en encorbellement sur le nu du mur. La figure A donne le plan, la figure B la coupe, et la figure C la vue de l'encorbellement du siége avec la chute en perspective. Comme il y avait lieu de se défier des traits qui pouvaient être lancés du dehors, on observera que le constructeur a eu la précaution de placer une dalle de champ descendant en contre-bas des deux corbeaux latéraux, afin de masquer complétement les jambes de la personne assise sur le siége, composé d'une simple dalle trouée. La nuit, il était d'usage de se faire accompagner, lorsqu'on se rendait au cabinet, par un serviteur tenant un flambeau. Cette habitude ne paraît avoir été abandonnée que fort tard. Grégoire de Tours rapporte qu'un prêtre mourut aux privés pendant que le serviteur qui l'avait accompagné avec un flambeau l'attendait derrière le voile qui tombait sur l'entrée 106 ; et dans les Mémoires de Jehan Berthelin, écrits vers 1545, nous lisons qu'un chevalier du roi, logé à Rouen à l'hôtel du Cheval blanc, «luy estant levé il se en alit aux pryvetz avec le serviteur dudit logis, lesquels tous deux fondyrent et tombèrent dedens lesdits pryvets, et furent tous deux noiez à l'ordure 107 .» Dans les Cent nouvelles nouvelles, il est également question de personnages qui se font accompagner par des serviteurs. Ceci explique pourquoi, dans les latrines du moyen âge, on laissait une place large devant les siéges, ou souvent une sorte de couloir assez long entre le siége et l'entrée.
Les fosses étaient l'objet d'une attention particulière de la part des constructeurs; nous en avons de nombreux exemples dans des châteaux du moyen âge. Elles étaient voûtées en pierre, avec ventilation et pertuis pour l'extraction. Mais c'est surtout dans la construction des latrines communes que les architectes ont fait preuve de soin. Dans les châteaux devant contenir une assez grosse garnison, il y a toujours une tour ou un bâtiment séparé réservés à l'établissement des latrines. Il y avait au château de Coucy, entre la grand'salle et le bâtiment des cuisines, des latrines importantes dont la fosse est conservée. On voit des restes de latrines disposées pour un personnel nombreux dans un des trois châteaux de Chauvigny (Poitou). En Angleterre, au château de Langley (Northumberland), il existe un bâtiment à quatre étages destiné aux latrines, lesquelles sont établies d'une manière tout à fait monumentale. On en voyait de fort belles et grandes au château de Marcoussis, à peu près pareilles à celles de Langley. Les latrines du château de Marcoussis, élevées au XIIIe siècle, adossées à l'une des courtines, se composaient d'un bâtiment étroit, couvert, mais dépourvu de planchers, et dont les cabinets (3) 108 communiquaient avec les étages des logis voisins au moyen des portes et des passages B (voir la coupe transversale A).

La fosse était en C, et sa voûte était composée de deux arcs doubleaux entre lesquels passaient les trois trémies de chute des trois étages de siéges. Ces siéges étaient au nombre de quatre à chaque étage, et du sol D (rez-de-chaussée) au comble, posé à 1m,00 environ en contre-haut de la fenêtre supérieure E, il n'y avait pas de planchers. Ainsi la ventilation pouvait se faire facilement et l'odeur n'était pas entraînée par les portes B dans les logis voisins. En F, nous avons tracé la coupe du bâtiment parallèlement aux siéges, et pour les laisser voir, nous avons supposé les appuis G en partie détruits.

Au château de Pierrefonds, dont la construction date de 1400, il est une tour, du côté des logements de la garnison, qui était entièrement destinée aux latrines. Nous donnons (4) les tracés de cette curieuse construction. En A est figuré le plan de la tour au niveau du sol extérieur du château qui est le sol de la fosse; en C est le pertuis d'extraction; en D, un ventilateur, et en E un massif de pierres de taille planté au milieu de la fosse pour faciliter la vidange des matières. Le tracé B donne le plan du premier étage (rez-de-chaussée pour la cour du château). Des salles G, on ne pouvait arriver aux latrines que par le long couloir F, muni de deux portes. La salle H possédait une suite de siéges en I et un coffre L qui était la descente des latrines des deux étages supérieurs. La coupe perspective faite sur BK fait voir, en M, la fosse avec le massif N et le ventilateur O; en P, les siéges du rez-de-chaussée; en R, les siéges du premier étage, et en S les siéges du troisième. Pour faire voir les trémies et tous les siéges, nous avons supposé les planchers enlevés. La dernière trémie S se prolongeait, par une cheminée latérale, jusqu'au-dessus des combles, de manière à former appel, et près du tuyau de prolongation de cette dernière trémie était disposé un petit foyer pour activer cet appel. Il faut bien reconnaître que beaucoup de nos établissements occupés par un personnel nombreux, tels que les casernes, les lycées, les séminaires, n'ont pas des latrines aussi bien disposées que celles-ci. Observons que, grâce au pertuis latéral d'extraction de la fosse et au massif central, il était très-facile de faire faire des vidanges fréquentes et promptes; que cette fosse contenait un cube d'air considérable; qu'elle était doublement ventilée, et que, par conséquent, elle ne devait pas dégager beaucoup de gaz dans les pièces, lesquelles étaient ventilées par des fenêtres; que d'ailleurs toutes les entrées ménagées aux divers étages de cette tour consistent en des couloirs longs, détournés, ventilés eux-mêmes et fermés par des doubles portes.
Dans le même château, les latrines du grand logis seigneurial ou donjon sont disposées, avec un soin extrême, dans une partie étroite des bâtiments recevant de l'air de deux côtés, isolées et ouvrant les fenêtres des cabinets au nord (voy. DONJON, fig. 41, 42 et 43). Il faut remarquer que les jours des grandes latrines de la garnison que nous venons de donner dans la figure précédente s'ouvrent également vers le nord. Ces précautions minutieuses apportées à la construction de ces parties importantes des habitations font place, vers la fin du XVIe siècle, à une négligence extrême. Mais c'est qu'alors on se préoccupait avant tout de faire ce qu'on appelait de belles ordonnances symétriques; que le bien-être des habitants d'un palais ou d'une maison, ce que nous appelons le comfort, était soumis à des conditions architectoniques plutôt faites pour des dieux que pour de simples mortels. En finissant, nous ne devons pas omettre de prémunir nos lecteurs contre les récits d'oubliettes que font tous les cicerone chargés de guider les amateurs de ruines féodales. Dix-neuf fois sur vingt, ces oubliettes, qui émeuvent si vivement les visiteurs des châteaux du moyen âge, sont de vulgaires latrines, comme certaines chambres de torture sont des cuisines. Plusieurs fois nous avons fait vidanger des fosses de château que l'on considérait, avec une respectueuse terreur, comme ayant englouti de malheureux humains; mêlés à beaucoup de poudrette, on y trouvait quantité d'os de lapins ou de lièvres, quelques pièces de monnaie, des tessons et des momies de chats en abondance.
Note 104: (retour) Cette négligence à satisfaire aux nécessités de notre nature physique était poussée très-loin dans le temps où l'on songeait surtout à faire de l'architecture noble. Non-seulement le château de Versailles, où résidait la cour pendant le XVIIIe siècle, ne renfermait qu'un nombre tellement restreint de privés, que tous les personnages de la cour devaient avoir des chaises percées dans leurs gardes-robes; mais des palais beaucoup moins vastes n'en possédaient point. Il n'y a pas fort longtemps que tous les appartements des Tuileries étaient dépourvus de cabinets, si bien qu'il fallait chaque matin faire faire une vidange générale par un personnel ad hoc. Nous nous souvenons de l'odeur qui était répandue, du temps du roi Louis XVIII, dans les corridors de Saint-Cloud, car les traditions de Versailles s'y étaient conservées scrupuleusement. Ce fait, relatif à Versailles, n'est point exagéré. Un jour que nous visitions, étant très-jeune, ce palais avec une respectable dame de la cour de Louis XV, passant dans un couloir empesté, elle ne put retenir cette exclamation de regret: «Cette odeur me rappelle un bien beau temps!»
Note 105: (retour) Ce dessin nous a été fourni par M. Cron, architecte. Ce château date du XIIe siècle.
Note 106: (retour) Lib. II, cap. XXIII.
Note 107: (retour) Journal du bourgeois de Rouen; Revue rétrospect. normande. Publ. par André Pottier; 1842.
Note 108: (retour) D'après un ancien dessin en notre possession.
LAVABO, s. m. Grande vasque en pierre ou en marbre répandant l'eau par une quantité de petits orifices, percés autour de ses bords, dans un bassin inférieur, et destiné aux ablutions; par extension, le nom de lavabo a été donné à la salle ou à l'aire au milieu de laquelle s'élevait la fontaine. La plupart des cloîtres de religieux possédaient un lavabo. Quelquefois le lavabo était posé au centre du préau, à ciel ouvert, plus fréquemment le long d'une des galeries du cloître ou dans un angle, et alors le lavabo était couvert; c'était une annexe du cloître vers laquelle les religieux se dirigeaient avant d'entrer au réfectoire et en revenant des travaux des champs, quand ils travaillaient aux champs. Les cisterciens, qui, au XIIe siècle, se piquaient de revenir aux premières rigueurs de la vie monastique, qui excluaient de leurs couvents tout luxe, toute superfluité, avaient cependant construit des lavabos dans leurs cloîtres, disposés non point comme un motif de décoration, mais comme un objet de première nécessité. C'est qu'en effet les cisterciens du XIIe siècle s'occupaient à de rudes travaux manuels; il leur fallait, avant d'entrer à l'église ou au réfectoire, laver les souillures qui couvraient leurs mains. Aussi voyons-nous que les lavabos des monastères cisterciens sont une partie importante du cloître. L'abbaye de Pontigny possédait un lavabo dont la cuve existe encore; celle du Thoronet (Var), XIIe siècle, possède au contraire l'édicule qui contenait la cuve, tandis que celle-ci a disparu.

Voici (1) le plan de ce lavabo; c'est une salle hexagone tenant à la galerie du cloître qui longe le réfectoire; les religieux entraient dans la salle par une porte et sortaient par l'autre, de manière à eviter tout désordre; ils se rangeaient ainsi autour du bassin, au nombre de six ou huit, pour faire leurs ablutions.

La fig. 2 présente la coupe de ce lavabo sur ab 109. Conformément à la règle de l'ordre de Cîteaux, cette salle est extrêmement simple, couverte par une coupole en pierre à cinq pans avec arêtiers dans les angles rentrants.

L'abbaye de Fontenay, près Montbard, dépendant du même ordre, possédait, le long de l'une des galeries de son cloître, un lavabo d'une remarquable construction (3) 110. En A était le réfectoire. Les religieux entraient à la file dans le lavabo par une arcade et sortaient par l'autre, comme au Thoronet. Une colonne centrale, passant à travers la vasque B, portait la retombée de quatre voûtes d'arête avec arcs doubleaux. Cette salle, assez spacieuse pour permettre à quinze religieux au moins de se tenir autour du bassin, était basse comme les galeries du cloître et bien abritée du vent et du soleil par conséquent.

La fig. 4 présente une vue perspective de ce lavabo prise du point C, en supposant la voûte coupée de a en b. C'était là un édifice dont la disposition était rigoureusement prise d'après le programme donné et qui devait présenter un aspect agréable, bien que l'architecture en fût très-simple. Les beaux matériaux calcaires dont disposaient les religieux de Fontenay leur avaient permis d'élever cette salle au moyen de gros blocs de pierre; les noyaux des piles sont monolithes, les bases et chapiteaux pris dans une seule assise. Ce mode de construction ajoutait au caractère de grandeur du monument malgré sa petite dimension. L'abbaye de Saint-Denis possédait une fort belle vasque dans son cloître qui servait aux ablutions des moines; cette vasque, déposée aujourd'hui au milieu de la seconde cour de l'École des Beaux-Arts, date du XIIIe siècle, est d'un profil remarquable et présente, tout autour, entre chaque goulotte, une tête sculptée d'un beau style 111. Lorsque les moines ne pouvaient amener l'eau dans une vasque pour les ablutions journalières, ils se contentaient d'un puits avec une auge circulaire ou semi-circulaire 112 autour ou à proximité.
Cependant, en Espagne, les couvents possédaient des lavabos magnifiques. Le voisinage des établissements arabes, dans lesquels l'abondance de l'eau était considérée comme une nécessité de premier ordre, avait dû exercer une certaine influence sur les constructions des cloîtres. C'est aussi dans les monastères du midi de la France qu'on trouvait autrefois les lavabos les mieux disposés et les plus spacieux. Il est à regretter que ces salles, qui se prêtaient si bien aux compositions architectoniques, aient été détruites partout, dès avant la fin du dernier siècle, par les moines eux-mêmes, qui ne se soumettaient plus à l'usage de se laver au même moment et ensemble. Les lavabos consistaient seulement parfois en une grande auge en marbre, en pierre ou en bronze, placée à l'entrée du réfectoire (voyez, dans le Dictionnaire du Mobilier, l'article LAVOIR).
Note 109: (retour) Voy. les gravures faites d'après les relevés de M. Questel, dans le recueil des archives des Monuments historiques, pub. sous les auspices de M. le ministre d'État.
Note 110: (retour) On voit encore en place les deux entrées du lavabo, et nous avons retrouvé, en 1844, dans les débris qui jonchaient le cloître, les fragments des piles de la salle, dont le périmètre était apparent au-dessus du sol du préau.
Note 111: (retour) Voy. la gravure de cette vasque dans les Exemples de décoration de M. Léon Gaucherel.
Note 112: (retour) Voy. le cloître de la cathédrale de Girone.
LAVATOIRE, s. m. Auge placée dans une salle près du cloître des monastères, et servant à déposer et laver les morts avant leur ensevelissement.
L'usage de laver les morts avant de les enterrer est une pratique qui remonte à l'antiquité 113 et qui s'est conservée jusqu'à la fin du dernier siècle dans quelques provinces, comme le pays basque, par exemple, les environs d'Avranches et le Vivarais. Le sieur de Moléon 114 décrit ainsi le lavatoire de l'abbaye de Cluny: «Au milieu d'une chapelle fort spacieuse et fort longue, où l'on entre du cloître dans le chapitre, est le lavatoire, qui est une pierre longue de six ou sept pieds, creusée environ de sept ou huit pouces de profondeur, avec un oreiller de pierre qui est d'une même pièce que l'auge; et un trou au bout du côté des pieds, par où s'écoulait l'eau après qu'on avait lavé le mort.» L'auteur donne un figuré de ce lavatoire que nous présentons ici (1); il ajoute qu'il y avait des pierres semblables dans l'hôpital de la ville de Cluny, dans le chapitre de l'église cathédrale de Lyon, dans le revestiaire de celle de Rouen et dans presque tous les monastères des ordres de Cluny et de Cîteaux.

Note 113: (retour) Voy. les Actes des apôtres, chap. IX; Sidoine Apollinaire, liv. III, lettre III.
Note 114: (retour) Voyages liturgiques en France. Paris, 1718.
LÉGENDE, s. f. Ce mot, en architecture, s'applique aux représentations groupées, soit sculptées, soit peintes, sur mur ou sur verre, de sujets légendaires, comme, par exemple, l'histoire de l'Enfant prodigue, l'histoire du mauvais Riche, ou bien certaines vies de saints racontées dans la Légende dorée. Les portails de nos églises du moyen âge présentent souvent des sujets légendaires sculptés sur leurs soubassements à dater de la fin du XIIIe siècle. À la cathédrale d'Auxerre, au portail de la Calende de la cathédrale de Rouen, au portail occidental de celle de Lyon, on voit de très-fines sculptures représentant des sujets légendaires. Mais c'est surtout sur les vitraux que s'étendent les séries innombrables de ces sortes de sujets (voy. VITRAIL).
LICE, s. f. Barrière, palissade, par extension, espace réservé entre les deux enceintes d'une ville fortifiée, ou entre les murs et les barrières extérieures (voy. ARCHITECTURE MILITAIRE). On donnait aussi le nom de lices aux champs clos destinés aux exercices, joutes, tournois, pas d'armes et jugements de Dieu.
Lorsqu'une armée campait et s'entourait de palis, on disait «sortir des lices» pour sortir de l'enceinte palissadée. Quand Harold vient de Londres au-devant de Guillaume le Bâtard, il fait placer son corps d'armée derrière des palissades. Le matin de la bataille, Harold va reconnaître l'ennemi,
«E de lor lices furz issu 115.»
Après la bataille de Mansourah ou de la Massoure, des espions viennent avertir saint Louis qu'il sera attaqué de grand matin dans son camp. «Et lors commanda le roy à touz les cheveteins des batailles que il feissent leur gent armer dès la mienuit, et se traisissent hors des paveillons jusques à la lice, qui estoit tele que il y avoit lous merriens, pour ce que les Sarrazins ne se férissent parmi l'ost; et estoient atachiés en terre en tel manière, que l'en pooit passer parmi le merrien à pié 116.» Ainsi, dans les campements faits à la hâte, les pieux qui formaient la lice étaient espacés l'un de l'autre de manière à permettre aux gens de pied de passer entre eux. Ces pieux formaient ainsi une suite de merlons qui n'empêchaient pas les fantassins de se jeter sur l'assaillant, mais qui arrêtaient les charges de cavalerie, et permettaient aux soldats de se rallier s'ils étaient obligés de se replier.
Les châteaux étaient toujours entourés de lices, c'est-à-dire de barrières palissadées, quelquefois avec fossés, qui protégeaient le pied des remparts et permettaient de faire des rondes extérieures lorsque l'on était investi. C'était là une tradition des populations guerrières du Nord.
«Amis, beau-frère, est Orenge si riche?
Dist li chêtis: «Si m'aïst Dex, beau sire,
Se véiez le palés de la vile,
Qui toz est fez à voltes et à lices 117!»
Ce qui veut dire que le château de la ville est maçonné, voûté et entouré de palissades de bois.
Note 115: (retour) Le Roman de Rou, vers 12,125.
Note 116: (retour) Hist. de saint Louis, Joinville. Pub. par M. Franc. Michel; 1858.
Note 117: (retour) La prise d'Orenge; Guillaume d'Orange, chanson de geste des XIe et XIIe siècles, pub. par M. W. J. A. Jonckbloet; 1854.
LIEN, s. m. Terme de charpenterie. Pièce de bois ayant un tenon à chaque bout et qui, posée en écharpe, lie le poinçon avec l'arbalétrier ou avec le faîtage d'une charpente de comble (1). A étant le poinçon et B les arbalétriers, les pièces C sont des liens; D étant des poinçons et F le faîtage, les pièces G sont des liens.

LIERNE, s. f. Nervure d'une voûte en arcs d'ogive qui réunit la clef des arcs ogives aux sommets des tiercerons. Les nervures A (1) sont des liernes (voy. CONSTRUCTION, VOÛTE).

Dans la charpenterie, les liernes sont des pièces de bois horizontales qui réunissent à leur base deux poinçons dans le sens longitudinal du comble et qui reçoivent les solives des faux planchers. Ce sont aussi des pièces de bois courbes, posées horizontalement entre les arbalétriers d'un comble conique, et qui servent à assembler les chevrons lorsque ceux-ci doivent être répartis à distances à peu près égales dans la hauteur de la toiture.

Les pièces A (2) sont des liernes. Dans les combles de tours cylindriques, les liernes sont nécessaires lorsque la charpente n'est pas disposée de manière à ce que chaque chevron porte ferme. La méthode des chevrons portant ferme étant presque toujours adoptée dans les charpentes de combles du moyen âge, il est rare qu'on ait eu recours aux liernes. On les emploie depuis le XVe siècle pour les charpentes sphéroïdes formant coupole.
LIMON, s. m. Est une pièce de bois rampante qui porte les marches d'un escalier à leur extrémité opposée au mur (voy. ESCALIER). Les limons de pierre n'étaient pas employés dans l'architecture du moyen âge, les révolutions des marches dans les escaliers à plan carré ou barlong étant alors portées sur des arcs, ce qui était beaucoup plus solide que le système de limons appareillés.
LINÇOIR, s. m. Terme de charpenterie. Pièce de bois posée horizontalement au-dessus des lucarnes ou des souches de cheminées pour recevoir les chevrons du comble.
LINTEAU, s. m. Bloc de pierre posé sur les jambages d'une porte ou d'une fenêtre pour fermer la partie supérieure. Dans la charpenterie, la pièce de bois horizontale qui remplit le même office s'appelle aussi linteau (voy. FENÊTRE, PORTE).
LIS (FLEUR DE). Voyez FLORE.
LIT, s. m. Surface horizontale de pose d'une pierre de taille. Chaque pierre de taille est comprise entre deux lits: le lit inférieur et le lit supérieur; naturellement le lit supérieur d'une pierre reçoit le lit inférieur de celle qui vient au-dessus. Les Grecs posaient leurs matériaux taillés, marbre ou pierre, à joints et lits vifs, sans mortier. Dans le grand appareil, les Romains firent de même, et cela avec tant de perfection que, dans les constructions grecques et romaines élevées en pierres de taille ou en marbre, on aperçoit à peine la suture entre les blocs. Cette méthode a quelquefois été imitée pendant le moyen âge, particulièrement dans les contrées où il existait encore un grand nombre de monuments antiques, comme en Provence et dans le Languedoc; mais l'imitation est fort loin d'atteindre la perfection de la taille antique en ce qui concerne les lits. Dans les provinces du centre et du nord de la France, on employa le mortier entre les pierres d'appareil depuis l'époque mérovingienne. Les lits de mortier sont fort épais du VIIe au XIIe siècle; ils deviennent fins et réguliers à cette époque, reprennent une épaisseur qui varie de 0,01 c. à 0,03 c. au XIIIe siècle, lorsque l'on élève les grands édifices religieux, les châteaux et les palais; puis s'amincissent de nouveau pendant les XIVe et XVe siècles, mais en conservant toujours une épaisseur de 0,01 c. au maximum. Quant aux lits taillés, ils sont planes, bien layés, sans flâches, depuis le XIIe siècle jusqu'au XVIe. Dans les constructions du moyen âge, les lits sont dressés avec autant de soin que les parements.
On appelle pierre posée en délit celle dont le lit de carrière est vertical au lieu d'être horizontal. Les matériaux calcaires se sont formés par une suite de dépôts marins, lacustres ou fluvials, et se composent ainsi d'une superposition de couches plus ou moins homogènes. Lorsque ces couches n'ont pas été fortement agglutinées par une circonstance naturelle, elles tendent à se séparer. Il est donc important de poser les pierres sur leur lit de carrière, c'est-à-dire conformément à leur position géologique. Cependant les Romains et les constructeurs du moyen âge ne se sont pas fait faute d'employer les calcaires en délit, mais alors ils choisissaient avec soin ceux qui pouvaient sans danger prendre cette position (voyez CONSTRUCTION, JOINT).
LOGE, s. f. Pièce ou portion de galerie, dépendant d'un édifice public ou privé, élevée au-dessus du sol extérieur et s'ouvrant largement sur le dehors, sans vitrines ou fermetures à demeure. La loge ressemble d'une part au portique, de l'autre à la bretèche; cependant il faut la distinguer de ces deux membres d'architecture. La loge diffère du portique en ce qu'elle est élevée au-dessus de la voie publique, possède une entrée particulière et que sa longueur est bornée, tandis que le portique est une galerie couverte dont la longueur est indéterminée. La loge tenant à des maisons diffère de la bretèche en ce point important qu'elle est ouverte aux intempéries, en dehors des appartements, tandis que la bretèche est fermée par des vitres ou volets et ajoute aux pièces une annexe saillante sur la voie publique. L'architecture française du moyen âge n'admettait guère la loge que dans les provinces méridionales, où elle pouvait avoir une certaine utilité. Dans nos climats, on préférait toujours une pièce fermée à ces salles ouvertes à tous vents, si fréquentes dans les villes italiennes des XIIIe et XIVe siècles. Les municipalités italiennes élevaient volontiers ces édifices propres aux réunions de citoyens, couverts par des voûtes ou des lambris pour éviter les rayons du soleil. C'était dans ces loges que les marchands venaient s'entretenir de leurs affaires, comme aujourd'hui dans les bourses et cercles. On concevra facilement qu'en France les parloirs, qui correspondent aux grandes loges d'Italie, devaient être clos neuf mois sur douze; dès lors, ils n'étaient que des salles plus ou moins vastes. De même aussi, dans nos maisons, il était rare de trouver sous les combles ces loges que l'usage a fait ouvrir au sommet des habitations italiennes, et qui sont disposées pour respirer l'air frais du soir. Cependant la loge n'était pas absolument bannie de nos habitations du nord. Il existait encore, il y a peu d'années, sur la place de la cathédrale de Laon, une petite maison du XIIIe siècle, dépendant autrefois du chapitre, qui possédait une loge à la base de son comble, disposée en appentis et interrompue aux angles par des échauguettes.

La figure 1 donne l'élévation perspective de la façade de cette maison. À la base du pignon, élevé en retraite, était pratiquée une loge en charpente qui se retournait sur les deux murs goutterots et passait alors sous le comble. C'était comme un chemin de ronde avec ses échauguettes.

La figure 2 présente en A le plan de la façade de la maison, à l'étage sous la loge, et en B le plan de cette loge. Les loges voisines du comble prenaient le nom de soliers, comme les combles eux-mêmes; elles servaient à la défense, elles permettaient de voir tout ce qui se passait au dehors, elles donnaient aux habitants un séchoir excellent. Observons que ces loges sont basses, bien abritées et fermées aux extrémités.
Dans le voisinage des places de marchés, on établissait aussi parfois des loges peu élevées au-dessus du sol de la voie publique sous quelques maisons, pour permettre aux marchands de traiter de leurs affaires à l'abri du soleil et de la pluie. Il existe encore à Vire (Calvados) une petite loge de ce genre, disposée sous une maison du XIVe siècle. Rien n'est plus simple que cette construction (3), qui se compose de deux piles et de deux colonnes en pierre, reposant sur un bahut; d'une aire dallée et de quelques marches posées à chacune des extrémités donnant sur la voie publique. La façade de la maison, en pan de bois hourdé de briques, repose sur les deux piles d'angles et les deux colonnes, si bien que cette loge n'est autre chose qu'un bout de portique surélevé avec bahut sous ses colonnes.

Sur les façades des hôtels de ville, des palais, des maisons de riches particuliers, il y avait quelquefois, mais fort rarement en France, des loges disposées à la façon des bretèches, c'est-à-dire portées en encorbellement sur des consoles. Ces loges, par leur petite dimension, n'étaient, à proprement parler, que des balcons couverts. Elles étaient moins rares dans les provinces de l'est et du sud-est que dans l'Île-de-France, les provinces de l'ouest et du centre. Quelques maisons de Dijon en possédaient autrefois; on en trouvait à Metz, à Verdun et vers les bords du Rhin, comme en témoignent de nombreuses gravures des XVIe et XVIIe siècles. Ces loges en encorbellement, ou plutôt ces bretèches ouvertes, étaient posées au-dessus des portails des maisons, au premier étage, et formaient ainsi une sorte d'auvent sur l'entrée.

Nous donnons (4) l'une d'elles que nous trouvons indiquée assez finement dans un manuscrit français du XVe siècle de la bibliothèque de Munich. Elle est faite entièrement de pierre, recouverte de plomb et posée au-dessus d'une porte.
Les guerres d'Italie de la fin du XVe siècle inspirèrent aux seigneurs français le goût des loges; mais les architectes du commencement de la Renaissance, qui conservaient les traditions sensées de l'art de notre pays, se décidèrent dificilement à leur donner l'aspect d'une construction ouverte sur trois côtés; ils les traitaient plutôt comme des portiques bas d'une longueur réduite, s'ouvrant seulement par la face.
Au sommet de l'escalier de la Chambre des Comptes, à Paris, il y avait ainsi un vestibule non vitré qui pouvait bien passer pour une loge (voyez ESCALIER, figure 3). Ce vestibule se composait de deux travées ouvertes sur la cour de la Sainte-Chapelle; ses arcades, dépourvues de vitrages comme celles de l'escalier, étaient flanquées de contre-forts décorés de statues 118.

La loge, premier vestibule de la chambre, était fort riche, ainsi qu'on en peut juger par notre figure 5, qui en donne une perspective extérieure. Au-dessous, à rez-de-chaussée, était la porte des logements du premier huissier et du receveur des épices. Le grand palier couvert que nous donnons ici comme une loge tenait lieu de petite salle des pas-perdus. Nous possédons à Paris un monument très-remarquable par le style de son architecture et qui était traité à la manière des loges italiennes, c'est le monument dont on a fait la fontaine des Innocents. Cette loge se composait de trois arcades, deux de face et une en retour. Dans le soubassement, au-dessous de l'arcade en retour, sur la rue, en dehors, était une fontaine. Des balustrades se trouvaient entre les pieds-droits 119. La loge et fontaine des Innocents était élevée au coin de la rue Saint-Denis et de la rue aux Fers. Pierre Lescot en fut l'architecte et Jean Goujon le sculpteur. En 1785, on la déposa pièce à pièce et on en fit le monument que nous avons vu restaurer depuis peu, monument auquel il est bien difficile aujourd'hui de donner une signification, car on ne comprend pas trop pourquoi on a eu l'idée de placer une fontaine jaillissante à six ou huit mètres de hauteur au-dessus du sol, et pourquoi, la mettant si haut, on a jugé nécessaire de la faire couler à l'abri de la pluie, sous un dôme. On admet une fontaine couverte si elle est à la portée des passants, mais un jet d'eau couronnant une pyramide de cuvettes n'a vraiment pas besoin de parapluie. Après tout, les charmantes sculptures du monument nous restent, et il y aurait mauvaise grâce à se plaindre des transformations étranges qu'on a fait subir à l'architecture de Pierre Lescot.
Note 118: (retour) Voyez l'oeuvre d'Israël Silvestre, Mérian, et, dans la Topographie de la France, Bibl. imp., de grands dessins de la façade de la Chambre des Comptes.
Note 119: (retour) Voyez l'oeuvre d'Israël Sylvestre, Marot, Mérian, Félibien.
LUCARNE, s. f. Baie ouverte dans les rampants d'un comble, destinée à éclairer les galetas. Pendant le moyen âge on a fait des lucarnes avec devanture en pierre, d'autres entièrement en bois apparent ou recouvert de plomb ou d'ardoises. Les lucarnes n'ont toutefois été adoptées que lorsque les combles ont pris une grande importance. Pendant la période romane, les charpentes des combles étant généralement plates, il n'y avait pas lieu de les éclairer par des lucarnes, puisqu'on ne pouvait y ménager des logements; mais, à dater du XIIIe siècle, les bâtiments d'habitation furent couronnés par des combles formant, en coupe, un triangle équilatéral au moins; on utilisait la partie inférieure de ces combles en y pratiquant des chambres éclairées et aérées par des lucarnes. Plus tard, on donna le nom de mansardes à ces fenêtres, et on fit à Mansart cet honneur de le considérer comme l'inventeur de ces baies, qui existaient sur tous les édifices publics ou privés du nord bien avant lui.
Nous nous occuperons d'abord des lucarnes dont la devanture de pierre pose sur la corniche, au nu des murs de face. Les XIIIe, XIVe et XVe siècles nous fournissent un grand nombre d'exemples de ces sortes de baies qui se composent de deux pieds-droits avec allège et d'un linteau terminé par un gâble et un tympan. Ces lucarnes avec face en pierre sont généralement assez élevées pour qu'une personne puisse facilement s'approcher de l'allège et regarder dans la rue; leurs baies sont même souvent garnies d'une traverse en pierre, comme dans l'exemple que nous donnons ici (1) 120.

Les pieds-droits sont épaulés par deux contre-forts qui leur donnent de l'assiette sur la tête du mur; de petites gargouilles pourtournent ces contre-forts et rejettent les eaux des noues dans le chéneau A, existant entre chaque lucarne, et muni de grandes gargouilles. Le linteau est d'un seul morceau et porte avec lui les deux petits pignons latéraux. Un second morceau de pierre forme le couronnement. Les rampants du gâble portent larmier devant et derrière, de manière à recouvrir le comble en ardoise B de la lucarne. Les jouées sont en retraite sur les pieds-droits; ce genre de lucarne est fréquent au XIIIe siècle. Quelquefois, mais rarement à cette époque, les tympans sont décorés et les rampants garnis de crochets. Cependant ces couronnements des édifices, se découpant sur les combles, ne tardèrent pas à recevoir une assez riche ornementation. Il était d'usage, pendant la seconde moitié du XIIIe siècle et jusqu'au XVIe, de pratiquer, dans les logis des palais et châteaux, des grandes salles sous les combles. On ne pouvait éclairer ces salles lambrissées que par des lucarnes très-hautes, descendant jusqu'au sol intérieur placé au-dessous de la corniche extérieure et interrompant celle-ci. Les charpentes se composaient seulement de chevrons portant-ferme, dont les entraits s'assemblaient dans les jambettes descendant en contre-bas des blochets (voir l'article CHARPENTE, figure 26). L'importance de ces lucarnes exigeait un soin particulier dans leur construction, car il fallait que leur devanture en pierre pût se soutenir d'elle-même, qu'elle reçût des pénétrations en charpente, et que les filtrations d'eau pluviale fussent évitées entre la pierre et la couverture. Conformément aux habitudes de bâtir des architectes du moyen âge, ces précautions relatives à la stabilité et à la réunion des matériaux très-divers sont minutieusement observées. Nous avons, de nos jours, remplacé ce soin dans l'étude des détails par des moyens assez grossiers, tels que solins en plâtre, raccords en zinc; mais aussi faut-il envoyer sans cesse les couvreurs réparer les vices primitifs d'une construction mal étudiée, ou tout au moins, pour terminer l'oeuvre d'une manière passable, faire succéder plusieurs fois sur ces points délicats les maçons aux couvreurs, les couvreurs aux maçons et ainsi à diverses reprises. Dans ces temps anciens d'ignorance, lorsque le maçon avait terminé son ouvrage, venait le charpentier, puis le couvreur; chacun trouvait les choses disposées pour n'avoir plus à y revenir lorsque la dernière ardoise et la dernière faîtière étaient posées.

La fig. 2 montre une de ces grandes lucarnes de combles lambrissés. En A nous en donnons la section horizontale fait au niveau a b de la face B. La corniche du bâtiment avec son chéneau est en E; la face de la lucarne est épaulée latéralement par des contre-forts F et postérieurement par les pilastres G, contre lesquels viennent s'appuyer les jouées en charpente. De petits caniveaux H recueillent les eaux du comble qui coulent le long de ces jouées pour les verser dans les chéneaux (voir la face latérale D). Sur les sablières I posées sur les jouées (voir la face postérieure C), venaient s'embréver les madriers formant chevrons et recevant les lambris intérieurs de manière à dégager le jour dormant K, les châssis rectangulaires étant seuls ouvrants. Des lucarnes de ce genre existaient au Palais à Paris, sur les bâtiments du commencement du XIVe siècle, aux châteaux de Montargis, de Sully, de Coucy et de Pierrefonds (commencement du XVe siècle), et de beaucoup d'autres palais ou châteaux. Celles du milieu et de la fin du XVe siècle sont très-communes.
Dans certaines provinces de France, comme la Bretagne, la Picardie et la Normandie, on avait pour habitude, pendant les XIVe et XVe siècles, de donner à certains bâtiments des campagnes, à des logis de châteaux, une assez faible hauteur et de les couronner par des combles énormes, car bien que ces bâtiments fussent simples en épaisseur, ils contenaient quelquefois jusqu'à dix et onze mètres dans oeuvre en largeur; or, les combles étant tracés d'après un triangle équilatéral, on comprend que les faîtages devaient s'élever beaucoup au-dessus de la corniche.

Ces bâtiments, en coupe, étaient alors disposées de cette manière (3): 1º Un étage de caves A; 2º un rez-de-chaussée B; 3º un premier étage C, à demi mansardé; 4º un étage à mi-comble D et le grenier; dès lors les fenêtres du premier étage C participaient déjà de la lucarne et ne faisaient qu'un tout avec elle. Nous possédons un fort bel exemple de ce genre de construction dans le château de Josselin, en Bretagne (4), dont la construction date des dernières années du XVe siècle.

Là, le faîtage des lucarnes est au niveau du faîtage du comble; leur face est décorée de sculptures, de chiffres, devises et armoiries; les baies sont larges, munies de meneaux, les gâbles hauts et flanqués de pinacles. La balustrade est posée sur le bord d'un chéneau jetant ses eaux par une gargouille entre chacune des lucarnes. Dans l'étage mansardé supérieur, les lucarnes formaient comme des cabinets bien éclairés, dans lesquels on pouvait se tenir pour travailler ou jouir de la vue de la campagne. L'aspect pittoresque que donnaient ces grandes lucarnes aux façades des logis engagea les constructeurs à leur accorder de plus en plus d'importance; elles devinrent quelquefois la partie principale de la décoration, vers la fin du XVe siècle et le commencement du XVIe, ainsi qu'on peut le voir encore au palais de justice de Rouen, où il semble que les façades ne sont faites que pour les lucarnes, puisque leur composition part du sol de la cour. Dans des proportions plus modestes on voit encore de belles lucarnes du commencement du XVIe siècle à l'hôtel de Cluny, à Paris, à l'hôtel de ville de Compiègne; sur des maisons de Tours, de Bourges, d'Orléans et de Caen; sur l'hôtel de ville de Saumur, etc. Les lucarnes du château de Josselin, comme celles du palais de justice de Rouen, sont de véritables pignons masquant des combles pénétrant, à angle droit, le toit principal. Dans ce cas elles servent même à maintenir la poussée des charpentes lorsque celles-ci sont dépourvues d'entraits à leur base, ou du moins elles rompent cette poussée, sur les murs goutterots, de distance en distance, et donnent à ces murs, par leur poids, une grande stabilité.
Les lucarnes en charpente, petites et modestes pendant les XIIIe et XIVe siècles, prennent de même beaucoup d'importance pendant le XVe siècle; comme les lucarnes à faces de pierre, elles n'apparaissent, dans l'architecture du moyen âge, qu'au moment où les combles cessent d'être plats et sont tracés au moins d'après une pente de 45º. Alors elles sont posées, non sur les bahuts de ces combles, mais sur leurs chevrons, pour éclairer des galetas. Toujours elles sont bien combinées comme charpente et d'une forme gracieuse, contrairement à ce qui se pratique aujourd'hui.
Les plus anciennes lucarnes de bois que nous connaissions ne sont, à proprement parler, que de grands chiens-assis, faits pour donner de l'air et de la lumière dans les greniers, mais qui ne pouvaient point recevoir des châssis vitrés; elles sont taillées dans de grosses pièces de charpente et couvertes avec de la tuile, de l'ardoise ou du plomb. Il en existait sur le comble incendié de la cathédrale de Chartres, qui datait du XIIIe siècle.

Voici (5) quelle était leur structure: Deux linçoirs A formaient un jour rectangulaire comprenant deux intervalles de chevrons. Sur les chevrons B, s'assemblaient deux potences D recevant la devanture E à leur extrémité, et de petits entraits avec chevrons F. De fortes planches de chêne étaient clouées sur ces chevrons et les reliaient avec la devanture; sur ces planches était posé le plomb, qui formait bourrelet sur le devant et sur les côtés, ainsi que l'indique le détail G. D'autres feuilles de plomb revêtaient la devanture et les jouées, compris leur épaisseur. Les bois étaient forts de 0,15 c. à 0,25 c. d'équarrissage, et nettement coupés.

On voit apparaître cependant, au XIVe siècle, des lucarnes en charpente d'une assez grande dimension, quelquefois divisées en deux baies par un meneau. Les combles de la cathédrale d'Autun en ont conservé quelques-unes qui datent de la fin du XIVe siècle et sont d'une assez belle forme (6); le bois de ces lucarnes est toujours resté apparent et est abrité par un comble en tuile très-saillant. Ces lucarnes étaient faites pour être fermées, au-dessous du linteau, par des volets avec vitrages s'ouvrant en dedans; le gâble restait ouvert.

L'église de Notre-Dame de Châlons-sur-Marne a conservé, sur la croupe de l'abside, une jolie lucarne recouverte de plomb, avec épi et girouette (7). On voit encore, sur les grands combles de la cathédrale de Reims, des lucarnes qui datent du XVe siècle, mais qui sont aujourd'hui défigurées par de nombreuses restaurations. Ces lucarnes sont, de même que celle de Notre-Dame de Châlons, couronnées par des épis. Quelques maisons en pans de bois du XVe siècle, dont les façades ne sont point des pignons, mais des murs goutterots, sont surmontées de lucarnes assez belles. Dans l'ouvrage de MM. Verdier et Cattois, sur l'architecture civile et domestique, nous en signalerons quelques-unes, notamment celles de l'hôtel-Dieu de Beaune et celle d'une maison à Lisieux. Les architectes du XVe siècle ont quelquefois adopté, pour la construction des lucarnes de charpente, la disposition des lucarnes de pierre, citées plus haut, du château de Josselin, c'est-à-dire qu'ils ont posé les lucarnes empiétant sur la hauteur du mur de face et éclairant un étage sous comble, un grenier.

Nous donnons (8) une lucarne établie d'après ce système et qui provient d'une maison de Gallardon (Eure-et-Loir). En A, nous la présentons de face et, en B, en coupe. Ici les bois sont apparents sous la ventrière C, qui est couverte d'ardoises. Le plomb ne recouvre que l'épi et le faîte. Les rampants et les jouées sont aussi garnis d'ardoises. Des châssis vitrés fermaient les baies.
Si l'on consulte les anciennes vues peintes et gravées faites d'après des châteaux et palais du moyen âge, on voit que les lucarnes remplissaient un rôle important dans ces habitations, puisque les combles contenaient beaucoup de logements. Quelquefois, comme au château de Pierrefonds, les lucarnes de pierre ou de bois se combinaient avec les crénelages des chemins de ronde et étaient alors destinées à éclairer les salles placées derrière ces passages extérieurs. Leur face portait alors sur le mur du chemin de ronde, et le jour pénétrant leur couverture arrivait dans la salle par une baie percée dans le gros mur.
Il est certain que les architectes du moyen âge, contrairement à ce qui se pratique aujourd'hui généralement, apportaient un soin minutieux dans l'étude de toutes les parties des combles, soit au point de vue de la solidité, de la bonne exécution, soit au point de vue de l'art. Pour eux, bien couronner un édifice était l'affaire importante, et ils ne pensaient pas que le rôle de l'architecte cessât à la hauteur des corniches. La composition des lucarnes avait dû nécessairement fixer leur attention, puisque ces parties importantes des combles se détachaient sur le ciel et contribuaient ainsi à l'aspect monumental des édifices. Nous devons observer, d'ailleurs, que cette tradition s'est maintenue pendant les XVIe et XVIIe siècles; car beaucoup de châteaux de la Renaissance, du temps de Henri IV et de Louis XIII ont conservé des lucarnes composées avec soin, souvent fort richement décorées de sculptures et de statues, et prenant, dans la disposition des façades, la plus grande place.
Note 120: (retour) D'une maison de Beauvais du XIIIe siècle, démolie aujourd'hui.
LUNETTE, s. f. Oeil circulaire ménagé au centre d'une voûte d'arête, en guise de grande clef, pour le passage des cloches.

MÂCHICOULIS, s. m. Trous carrés ou larges rainures pratiquées horizontalement le long du chemin de ronde d'une tour ou d'une courtine, et permettant d'en défendre le pied en laissant tomber des pierres, des pièces de bois ou des matières brûlantes. Les mâchicoulis existaient dans les hourds de bois que l'on élevait sur les remparts dans les premiers temps du moyen âge et jusqu'au XIIIe siècle (voyez HOURD). Mais les hourds étant souvent incendiés par les assiégeants, on les remplaça, vers la fin du XIIIe siècle, par des chemins de ronde de pierre bâtis en encorbellement au sommet des murs et tours, et percés de trous rapprochés par lesquels on laissait tomber sur l'assaillant des matériaux de toute nature, de l'eau bouillante, de la poix chauffée, etc. Nous avons vu, à l'article Hourd, comment au château de Coucy déjà, c'est-à-dire au commencement du XIIIe siècle, on avait remplacé les solives en bascules des hourdages en bois par des consoles en pierre. Cependant, dès cette époque, on avait établi de véritables mâchicoulis de pierre au sommet de quelques édifices, notamment sur l'une des dépendances de la cathédrale de Puy-en-Vélay, dépendance dont la construction remonte au XIIe siècle. Cette belle bâtisse, connue dans le pays sous le nom de Bâtiment des mâchicoulis, mérite une mention toute particulière, car c'est une des plus remarquables constructions militaires que nous possédions en France, une défense importante et solide placée au-dessus d'une grande salle voûtée en berceau tiers-point, défense qui peut contenir deux cents hommes et couvrir de projectiles tout le flanc sud de la cathédrale, entre celle-ci et le rocher de Corneille. C'était comme un ouvrage avancé pour le château qui couronnait ce rocher, arrêtant les assaillants sur le seul point où il était abordable, et masquant absolument le cloître et ses dépendances. Dans l'origine, c'est-à-dire au XIIe siècle, la grande salle qui servit longtemps de salle des États provinciaux était couverte immédiatement sur la voûte en berceau par une double pente en tuiles posées à bain de mortier. Au XIIIe siècle, on surmonta cette salle de la défense dont nous donnons ici le plan (1).

On n'arrivait à cette défense que par un passage étroit, communiquant à la porte A. Devant des contre-forts B s'ouvrent des mâchicoulis C, d'autres mâchicoulis D défendent le nu des murs entre ces contre-forts. Des piles E posées sur les contre-forts en arrière des mâchicoulis et d'autres piles F élevées sur le mur donnant vers le cloître portent des filières sur lesquelles reposent les fermes qui soutiennent la couverture abritant toute la surface du bâtiment. Aux deux extrémités sont des pignons.

La coupe transversale, faite sur a b (2) indique en A la grande salle des États; en B, les contre-forts. On voit comment sont disposés les mâchicoulis, dont le crénelage C est porté sur des arcs reposant sur des encorbellements. Un parapet D garantissait les défenseurs contre les traits lancés du dehors. Les meutrières sont percées dans les ventrières des créneaux et non dans les merlons, ainsi que l'indique le plan et la coupe. Par suite de la disposition des piles, la défense était complétement indépendante de la charpente. La face extérieure du crénelage donne la figure 3.

Les mâchicoulis sont solidement construits au moyen d'arcs bandés sur des assises en encorbellement. On observera la construction intéressante des grands mâchicoulis entre les contre-forts, dont les arcs jumeaux sont surmontés d'un arc de décharge qui soulage l'encorbellement du milieu. Au droit de chaque contre-fort, les chevrons de la charpente font saillie afin d'abriter les petits mâchicoulis. Toute cette construction est faite en belles pierres d'appareil de lave, et il semble qu'elle date d'hier. Son effet extérieur est saisissant. Ces mâchicoulis, en façon de larges rainures, appartiennent particulièrement aux provinces méridionales et ont précédé de près d'un siècle les mâchicoulis du nord qui consistent en une suite de trous carrés ménagés entre des consoles. Nous verrons tout à l'heure des mâchicoulis en forme de rainures dans des défenses du XIVe siècle, appartenant à la cathédrale de Béziers.
Les mâchicoulis de la grande salle du Puy ne sont pas d'ailleurs les seuls de ce genre que l'on trouve en Auvergne. L'église de Royat, près de Clermont, est couronnée par des mâchicoulis dont le style et la construction méritent d'être étudiés. Alors, les architectes chargés de diriger des travaux militaires ne croyaient pas que la laideur ou la vulgarité des formes fût une des conditions du programme imposé, sous le prétexte de tout sacrifier à l'utile. Parce que l'art entrait pour quelque chose dans leur composition, ces défenses ne perdaient rien de leur force; souple, prêt à satisfaire à tous les besoins et même à les indiquer, l'artiste savait plaire aux yeux par l'étude attentive et vraie des moindres détails. Certes, dans des travaux destinés à la défense d'une place ou d'un poste, quand l'art, comme chez les Chinois, intervient pour sculpter ou peindre, sur les créneaux, des monstres hideux, destinés à épouvanter les assaillants, on peut rire de ses inspirations; mais quand, au contraire, loin de s'amuser à ces puérilités, l'art, se soumettant à toutes les exigences de la défense, sait donner aux moindres détails une forme belle, indiquant clairement leur destination; quand il ne cherche autre chose que la structure la mieux raisonnée, la plus solide, on peut admettre qu'il est bon de lui laisser prendre sa place. Or, il est donné à l'art seul d'exprimer par des formes convenables tous les besoins, même les plus vulgaires, et nous ne verrions nul inconvénient à ce que, dans nos défenses modernes, l'aspect extérieur fût d'accord avec la réalité 121. Couronner aujourd'hui une porte, une caserne, un ouvrage défendu par des mâchicoulis, cela serait ridicule; mais il l'est tout autant, au moins, de donner à ces ouvrages militaires l'aspect d'un hôtel, de les entourer de pilastres romains, de les terminer par des corniches profilées suivant les règles de Vignole, et de border leurs baies de chambranles empruntés aux traités d'architecture qui remplissent les étalages des marchands de gravures. Tous les exemples des diverses parties de l'architecture du moyen âge que nous donnons dans cet ouvrage font assez voir que chacune de ces parties remplit exactement une fonction, et qu'on ne saurait confondre un détail d'un édifice militaire avec un détail d'un édifice civil ou religieux. Chaque monument conserve une physionomie qui lui est propre, chaque détail s'accorde avec la partie du programme qui l'a commandé, et plus le programme tend à imposer une certaine forme nécessitée par un besoin défini, impérieux, et plus l'architecture donne à cette forme un caractère accentué. Nous en aurons la preuve une fois de plus ici, si l'on veut bien nous suivre dans notre étude sur les mâchicoulis.

Voici (4) quelle est la disposition des mâchicoulis couronnant l'église de Royat. En A on voit le mâchicoulis en coupe; il est présenté de face en B. Cette construction appartient à la première moitié du XIIIe siècle; elle se compose d'une suite d'arcades portées sur des consoles. Entre chaque contre-fort de l'édifice, on compte quatre arcades. L'architecte, ayant compris que les angles, plus encore que les faces, avaient besoin d'être protégés par des mâchicoulis, a adopté une disposition d'encorbellements C qui permettent aux merlons de suivre leurs plans, et qui laissent à chacun de ces angles un large mâchicoulis en équerre. Le détail des consoles est tracé dans la figure 5, de profil en B et de face en C.

On voit ici percer le goût de l'artiste, car ces consoles sont galbées de la manière la plus heureuse. Mais si nous nous rapprochons des provinces du nord, les mâchicoulis ne se présentent guère qu'à la fin du XIIIe siècle. La facilité de se procurer du bois et aussi le grand relief des fortifications de ces contrées permettaient de conserver le système des hourds plus longtemps. Les défenses de Carcassonne, par exemple, qui ont été élevées par Philippe le Hardi vers 1285, ne présentent nulle part de traces de mâchicoulis, bien qu'il y en eût déjà dans les provinces du centre et du midi, et que ces défenses fussent établies avec un grand luxe de précautions défensives: mais Carcassonne était alors entourée, de vastes forêts, et ses remparts avaient été élevés par des architectes du nord.
Vers la même époque, en Bourgogne, où la pierre calcaire est abondante, belle et solide, nous voyons poindre les mâchicoulis. Il en existe déjà au sommet de la tour du château de Montbard; mais ces mâchicoulis ne sont point continus, ils ne forment que des sortes d'échauguettes saillantes sur chacune des faces de cette tour, dont le plan, est un carré terminé par trois pans coupés.

Ces mâchicoulis défendent donc les faces et non les angles. Nous en présentons en A (6) le plan; en B, la face intérieure; en C, la face extérieure; en D, la coupe sur a b; en E, la face latérale sur c d, et en F, la section, sur m n. Ces mâchicoulis sont couverts et présentent, à l'extérieur, l'aspect d'un merlon saillant porté sur des corbeaux, percé d'une meurtrière en forme de quatre-feuilles. Les jouées et la face de cette logette saillante sont construites au moyen de trois dalles de 0,20 c. d'épaisseur; le chaperon est fait de deux pierres. Le trou du mâchicoulis est presque à la hauteur des ventrières des créneaux, de sorte qu'il fallait nécessairement soulever les projectiles que l'on voulait laisser tomber sur l'assaillant. Quant aux merlons posés entre ces mâchicoulis, ils sont couronnés de pinacles, percés de meurtrières dans les faces longues et armés de crochets en fer, ainsi que les jouées des mâchicoulis, destinés à suspendre des volets de bois.

Une figure perspective (7) fera saisir l'ensemble de ce système de défense. Cette construction est faite de beaux matériaux que le temps n'a pas altérés. Les pinacles seuls ont été jetés bas; nous ne les avons pu restaurer qu'au moyen de fragments.
Il est clair que les assaillants placés en O, à la base de la tour (voir le plan, figure 6), ne pouvaient guère être atteints par les projectiles tombant de ces mâchicoulis; mais il faut dire que cette tour est élevée sur un escarpement de rochers et que l'assiégé comptait sur les ricochets. On ne tarda pas cependant à chercher un système de mâchicoulis continus pouvant battre toute l'étendue des remparts, et ceux-ci furent, à leur base, disposés en prévision des effets produits par la chute des projectiles, ainsi que cela avait été tenté déjà pour les hourds (voyez ce mot). On voulut aussi que les mâchicoulis pussent battre les angles saillants. Mais ces perfectionnements ne furent introduits dans l'art de la fortification des places et châteaux que vers le milieu du XIVe siècle. On voit des mâchicoulis de cette époque fort bien établis au sommet de la tour du château de Beaucaire. Le plan de cette tour, ou plutôt de ce donjon, donne la figure ci-contre (8), présentant vers l'extérieur de la forteresse le bec saillant A.

Bien que ce bec domine un escarpement de rocher considérable et qu'il soit plein, cependant il est couronné par la rangée de mâchicoulis qui pourtourne l'ouvrage.

En plan (9), les consoles de ces mâchicoulis biaisent pour arriver à former deux lignes parallèles à la pointe, ainsi que l'indique le tracé A. Le bec est donc dominé par un créneau perpendiculaire à son axe et par deux trous de mâchicoulis triangulaires; il est défendu. Nous en présentons en B la vue perspective. Le profil C est pris sur l'axe d'une arcature de mâchicoulis. On remarquera la saillie D, ménagée en contre-bas des consoles, et qui était destinée à empêcher les projectiles E, tombant par les trous, de ricocher le long des aspérités des parements, ce qui les eût fait dévier de leur ligne verticale de chute; or, la ligne verticale de chute était calculée avec grand soin par les constructeurs militaires, elle venait toujours rencontrer un talus qui faisait décrire à ces projectiles une certaine parabole en raison de leur poids et de la hauteur de la muraille. Si l'assaillant venait se loger au pied même du rempart, il pouvait facilement se garantir des projectiles tombant verticalement au moyen d'un pavois bardé de fer et rembourré d'étoupes, mais il lui était bien plus difficile de parer des coups arrivant obliquement; d'ailleurs, ces coups empêchaient les approches. Afin d'être assurés de l'effet des projectiles tombant à travers les mâchicoulis, les assiégés avaient le soin de les faire tailler. Dans des siéges longs et lorsque les approvisionnements venaient à manquer, on jetait par les mâchicoulis tout ce qui se trouvait sous la main, morceaux de bois, tuiles, cailloux, moellons. Mais si la place était bien munie, les projectiles propres à la défense par les mâchicoulis étaient faits de pierres lourdes, sphériques et d'un diamètre régulier; alors seulement on pouvait être assuré de leur effet 122. Donc si l'on veut étudier des mâchicoulis, il faut en même temps observer l'inclinaison des talus inférieurs des murailles, car ces talus sont commandés par la hauteur de cette muraille, par la saillie des mâchicoulis et par la nécessité de battre tel point du fossé, ou de l'escarpe, ou du terre-plein. Dans les fortifications du XIVe siècle et du commencement du XVe, les mâchicoulis et les talus sont combinés simultanément pour produire un certain effet imposé par les besoins de la défense.

Soit (10) en A la coupe du rempart avec mâchicoulis, le rempart peu élevé au-dessus du fond du fossé G; il s'agit dès lors d'empêcher l'assaillant de s'approcher assez pour pouvoir poser des échelles, le talus formera un angle accusé avec le nu du mur vertical, alors les projectiles seront renvoyés loin du point H (pied du talus) et rouleront en ressautant au fond du fossé. Plus le projectile sera lourd et plus la parabole IK se rapprochera de la ligne droite et s'éloignera du point H. Si l'ennemi arrive au point H, des projectiles d'un poids médiocre pourront l'atteindre. S'il comble partie du fossé et qu'il arrive au niveau L, il reçoit le projectile obliquement et dans toute sa force.
En supposant que les remparts B sont assez élevés pour ne pas craindre les échelades, le talus formera avec la verticale un angle plus obtus, et le projectile viendra tomber obliquement près du pied du talus. En supposant encore que le rempart est peu élevé au-dessus de la contrescarpe du fossé, mais que celui-ci est profond (C), le talus sera disposé de telle façon que le projectile le rasera dans toute la hauteur à une faible distance. Si le rempart est construit sur un escarpement de rocher (D), le talus sera tracé de maniène que le projectile viendra tomber au pied de ce rocher afin d'en écarter les mineurs. Ceci fait comprendre combien il était important d'avoir des projectiles sphériques et d'un poids connu pour défendre le pied des remparts au moyen des mâchicoulis, suivant la nature de l'attaque, et comment la section des talus devait être tracée en raison de la nature des lieux. Or, si nous savons aujourd'hui que les officiers du génie calculent avec précision les angles des bastions et la coupe des remparts pour obtenir certains effets, nous pouvons être assurés qu'au XIVe siècle les architectes militaires n'apportaient pas moins de soin et de calcul dans le tracé de leurs constructions, ce qui ne les empêchait pas de donner aux corbeaux de leurs mâchicoulis, aux chaperons de leurs créneaux et à tous les détails de ces constructions, des proportions heureuses et des profils d'un beau caractère.
Cependant nous avons vu, à l'article HOURD, que les chemins de ronde en charpente avec mâchicoulis étaient couverts. Il fallait, en effet, abriter les défenseurs placés sur ces chemins de ronde, derrière les crénelages, contre les projectiles lancés à toute volée par les assaillants; on se mit donc à couvrir aussi les mâchicoulis de pierre, comme on avait couvert les hourds, par des combles en charpente, mais à demeure cette fois. Les mâchicoulis de ce genre les plus remarquables qui existent en France sont certainement ceux du château de Pierrefonds; ils datent de 1400. Nous y reviendrons tout à l'heure.
Il est nécessaire, avant de nous occuper de ces sortes de mâchicoulis, de parler de ceux des remparts d'Avignon, élevés vers le milieu du XIVe siècle, et qui présentent certaines particularités dignes d'attention, comme, par exemple, les retours d'équerre sur les tours, les consoles d'angle, les mâchicoulis ressautants, etc. Les mâchicoulis des remparts d'Avignon n'ayant jamais été destinés à être couverts et étant surmontés d'un simple crénelage, afin d'éviter la bascule les constructeurs ont donné aux encorbellements un assez grand nombre d'assises de manière à charger la queue de chaque corbeau.

Ainsi (11), soit en A l'angle d'une tour, il y aura des corbeaux diagonaux en B, lesquels, suivant la coupe c d, donneront le profil D possédant six assises de corbeaux; les deux encorbellements C seront légèrement biais pour obtenir des arcs BC égaux aux arcs CF, les encorbellements C et F n'auront que cinq assises (voir le profil E fait sur e f). En élévation, cet angle présentera le tracé G, qui explique pourquoi l'encorbellement d'angle B, étant plus long que les autres, prend une assise de plus en contre-bas. Les arcs des mâchicoulis voisins de l'angle pénètrent cet encorbellement diagonal. En g est figuré, en perspective, l'assise g'; en h, l'assise h'; en i, l'assise i'; en l, l'assise l'. Ces pierres, étant chargées à la queue par le massif O (voir les coupes D E), ne peuvent basculer sous le poids du crénelage. Les échauguettes flanquantes et les tours étant plus élevées que les courtines, le chemin de ronde devient un emmarchement et les mâchicoulis ressautent ainsi que l'indique le figuré L; chaque marche m est percée de son mâchicoulis (voyez le profil P fait sur la ligne r h). On voit au palais des Papes, à Avignon, des mâchicoulis obtenus au moyen de grands arcs qui reposent sur des contre-forts. Ces mâchicoulis donnaient de longues rainures par lesquelles on pouvait jeter non-seulement des pierres, mais des pièces de bois en travers (voyez ARCHITECTURE MILITAIRE, figure 40); ils avaient l'inconvénient de ne pas battre le devant de ces contre-forts et de laisser ainsi des points accessibles aux assaillants. Ce système n'a guère été employé par les architectes militaires des provinces du nord; ceux-ci ont admis de préférence le système des mâchicoulis continus. C'est, en effet, dans les oeuvres des architectes septentrionaux qu'il faut toujours aller chercher les défenses les plus sérieuses; beaucoup de fortifications du midi de la France et de l'Italie semblent faites plutôt pour frapper les yeux que pour opposer un obstacle formidable aux assaillants, et dans ces contrées souvent les mâchicoulis sont une décoration, un couronnement, non point une défense efficace.
Nous l'avons dit tout à l'heure, les mâchicoulis ne se défendent bien que s'ils sont couverts comme l'étaient les hourds. Examinons donc les mâchicoulis du château de Pierrefonds. Ceux-ci formaient une ceinture non interrompue au sommet des tours et courtines; ils étaient non-seulement couverts, mais encore surmontés d'un crénelage qui commandait les approches au loin.

Voici (12) comment étaient disposés ces mâchicoulis. En A, nous donnons le plan d'une section de chemin de ronde des tours prise au niveau a. Les trous des mâchicoulis sont tracés en b. En B est figurée la coupe de toute la défense et en C sa face extérieure développée. Les chemins de ronde D, avec leurs mâchicoulis, sont couverts par les combles en appentis G. De distance en distance, des lucarnes E, posées sur le mur du chemin de ronde, en face des fenêtres F, éclairent les salles I. En K est le crénelage supérieur. Les queues des assises des corbeaux L, profondément engagées dans la maçonnerie, sont chargées par le gros mur, afin de maintenir la bascule. Les linteaux M sont appareillés en clausoirs entre chaque corbeau, ainsi que l'indique le tracé extérieur; les sommiers O sont donc taillés conformément au tracé perspectif O'; ainsi aucune chance de rupture dans la construction. Un démaigrissement du parement entre chaque corbeau laisse en P une arête saillante qui empêche les traits lancés du bas de remonter en ricochant dans le chemin de ronde par les trous des mâchicoulis. À la base des tours et courtines, un talus prononcé fait ricocher les projectiles jetés par les trous, ainsi que l'indique la figure 10. C'était là une défense sérieuse et combinée d'une manière tout à fait remarquable lorsque les armées ne possédaient pas encore d'artillerie à feu, et lorsque les chemins de ronde étaient assez élevés au-dessus du sol pour que leurs murs et leurs couvertures n'eussent rien à craindre des machines de jet tels que les mangonneaux, les pierriers et trébuchets. Sans modifier en rien ce système, vers le milieu du XVe siècle, on voulut donner aux mâchicoulis, à l'extérieur, un aspect moins sévère; quelquefois on les décora. Tels sont, par exemple, les mâchicoulis posés au-dessus de la porte du beau château du roi René, à Tarascon (13).

À la fin du XVe siècle, les progrès de l'artillerie à feu firent renoncer à ce moyen de défense; cependant on figura encore, par tradition du moins, des mâchicoulis au sommet des tours des châteaux.
On établit quelquefois des mâchicoulis sur le couronnement des églises lorsqu'on jugeait que celles-ci pouvaient être investies; c'est ainsi que sur l'abside de la cathédrale de Béziers, entre les contre-forts, et pour défendre les fenêtres contre une escalade, on a construit vers le commencement du XIVe siècle des mâchicoulis terminés par un parapet avec crénelages à jour en forme de balustrade. Ce monument, placé sur le point culminant de la ville et se reliant aux fortifications, était considéré comme une citadelle, et de tout temps il avait été garni de crénelages (voy. CRÉNEAU). Lors de la reconstruction de son abside, après les guerres des Albigeois, on ne fit donc que se conformer à une tradition.

Voici (14) une vue extérieure de l'un de ces mâchicoulis du chevet: en A est tracée la coupe de la défense. Ajoutons que les fenêtres sont garnies de grillages très-serrés et qui présentaient un obstacle suffisant pour arrêter les assaillants à l'aplomb des rainures des mâchicoulis. Nos corniches à grandes consoles, nos balcons en saillie portés sur des corbeaux sont encore une dernière trace de ces mâchicoulis si fréquents dans les habitations seigneuriales des XIVe et XVe siècles. Pour terminer, disons que les trous des mâchicoulis des fortifications du nord de la France ont des dimensions évidemment réglementaires; ils forment un carré qui varie de 0,33 c. (1 pied) à 0,40 c. (15 pouces): aussi les projectiles destinés à couler dans ces trous pouvaient-ils être indifféremment portés dans telle ou telle place forte; ce qui était un point important.
Note 121: (retour) Combien est-il de nos casernes casematées qui ont l'apparence de maisons de carton? Telles qu'elles sont, nous admettons qu'elles résisteraient parfaitement aux effets des bombes; mais à voir, à l'extérieur, leur maigre structure, personne ne leur prête les qualités robustes qu'elles possèdent.
Note 122: (retour) Il n'y a pas à douter que les projectiles destinés aux mâchicoulis fussent taillés d'avance et sphériques. Nous avons trouvé une énorme quantité de ces balles de pierre dans des constructions antérieurement à l'emploi de l'artillerie à feu, et ce qui est plus probant, on en voit souvent qui sont restés engagés dans des trous de mâchicoulis trop étroits pour les laisser passer.
MAÇONNERIE, s. f. Toute construction dans laquelle il entre de la pierre ou du moellon, de la brique, du mortier ou du plâtre (voy. CONSTRUCTION).
MAIN-COURANTE, s. f. Couronnement d'une rampe d'escalier (voyez ESCALIER).
MAISON, s. f. Meson, hostel; (petite maison) borde, bordel, abitacle. Il faut distinguer les maisons des villes des maisons des champs, mais ces dernières ne sauraient être confondues avec les manoirs. La véritable maison des champs est celle du colon, du paysan, de la famille attachée à la terre seigneuriale. Quant aux maisons des villes, celles des seigneurs ont un caractère particulier. Nous les rangeons dans les palais ou les hôtels 123. Il est vrai que, jusqu'au XIIe siècle, la noblesse n'habitait guère les villes, et les moeurs des conquérants du sol des Gaules se conservèrent longtemps chez leurs descendants.
Les habitations des Gallo-Romains ne purent être modifiées immédiatement après les invasions des Ve et VIe siècles. Les nouveaux possesseurs du territoire ne songèrent pas, vraisemblablement, à faire bâtir des maisons sur une forme nouvelle, ils occupèrent les villæ romaines; car, vivant aux champs plus volontiers que dans les cités, s'ils y faisaient construire des habitations pour leurs colons ou leurs serfs, ces maisons devaient nécessairement conserver la forme consacrée par une longue habitude.
Dans l'art de l'architecture, la maison est certainement ce qui caractérise le mieux les moeurs, les goûts et les usages d'une population; son ordonnance, comme ses distributions, ne se modifie qu'à la longue, et si puissants que soient des conquérants, leur tyrannie ne va jamais jusqu'à tenter de changer la forme des habitations du peuple conquis; il arrive au contraire que l'envahisseur se plie, en ce qui concerne les habitations, aux usages du vaincu, surtout si celui-ci est plus civilisé. Cependant le nouveau venu introduit peu à peu dans ces usages des modifications qui tiennent à son caractère et à ses traditions; il s'établit un compromis entre les deux principes en présence et, un siècle ou deux écoulés, l'habitation laissée par le premier possesseur du sol s'est peu à peu transformée. Toutefois il ne faudrait pas croire que ces transformations soient telles qu'elles ne laissent subsister des traces très-apparentes des habitudes et par conséquent de la structure primitives. Dès les premiers siècles du moyen âge, c'est-à-dire pendant l'époque carlovingienne, la demeure des champs du Français prend un caractère de défense. Quant à la maison des villes, occupant un espace plus étroit par suite de la nécessité où l'on se trouvait d'enceindre ces villes de murailles, elle dut nécessairement abandonner, dans bien des circonstances, les dispositions étendues à rez-de-chaussée pour superposer des étages afin de trouver en hauteur l'espace qui lui manquait en surface. Si les Romains n'employaient pas le bois à profusion lorsqu'ils construisaient des maisons pour eux, il est certain que les populations des Gaules ne cessèrent jamais de se servir de cette matière: peut-être donnèrent-elles, pendant la domination romaine, une importance plus grande aux constructions en maçonnerie; mais, sous l'influence des invasions du nord, elles reprirent certainement les constructions de bois sans difficultés.
En effet, l'art de la charpente, l'emploi exclusif du bois dans la construction n'appartient qu'aux races indo-germaniques. Le bois enrichi de peintures joue un rôle important dans la construction de l'époque mérovingienne, et les incendies fréquents qui détruisirent des villes tout entières pendant les premiers siècles du moyen âge témoignent assez de l'emploi presque exclusif de la charpente dans les constructions privées.
De ces habitations antérieures au XIe siècle, il ne reste rien aujourd'hui; on ne peut donc s'en faire une idée qu'en recueillant les renseignements laconiques donnés par les écrivains, les vignettes de manuscrits, fort imparfaites, et quelques bas-reliefs. Mais, si vagues que soient ces documents, ils n'en sont pas moins concluants sur un point important, à savoir que les maisons des premiers temps du moyen âge étaient faites de bois, que ces constructions de bois étaient un mélange de charpenterie et d'empilages de pièces assemblées aux angles; et ce point mérite toute notre attention. Expliquons-nous. Il y a deux manières de construire en employant exclusivement le bois: ou l'on peut empiler les uns sur les autres des troncs d'arbres équarris en les embrévant aux retours d'équerre; ou l'on peut, par des combinaisons plus ou moins ingénieuses, en se servant du bois tantôt comme support rigide, tantôt comme chaîne, tantôt comme décharge, tantôt comme simple remplissage, obtenir des pans de bois d'une extrême solidité, très-légers et permettant d'élever les constructions à de grandes hauteurs. La première de ces méthode n'exige pas de la part des constructeurs de grands efforts d'intelligence; nous la voyons suivie encore chez les peuples slaves, tandis que la seconde n'appartient qu'aux races blanches pures; nous la voyons pratiquée à l'origine chez tous les peuples descendus des plateaux septentrionaux de l'Inde, chez les Scandinaves, chez les Francs, chez les Normands. Les renseignements que l'on peut réunir sur les habitations des époques mérovingienne et carlovingienne nous laissent voir quelques traces de la méthode des constructions de bois, par empilage, une connaissance assez développée de la construction de bois de charpente assemblés et des traditions gallo-romaines.
À l'époque où nous pouvons commencer à recueillir des fragments d'habitations françaises, c'est-à-dire à la fin du XIe siècle, nous constatons encore la présence de ces influences diverses, tenant d'une part à la civilisation latine, de l'autre aux traditions indo-germaniques plus ou moins pures. Il se produit même, dans l'art de la construction des maisons en France, au moyen âge, des oscillations singulières qui dépendent de la prédominance du caractère gaulois ou germain sur les restes de la civilisation latine, ou de celle-ci sur les traditions locales et sur les goûts des envahisseurs transrhénans.
Ainsi, au XIIe siècle, pendant le plus grand développement de l'institut monastique clunisien et cistercien, dans les villes où domine l'influence de nos abbayes, la maison est construite en maçonnerie, la tradition romaine résiste à l'influence du nord; tandis que dans les villes plus indépendantes ou immédiatement placées sous le pouvoir royal, la maison de bois tend chaque jour à remplacer la maison de pierre. Le plus ou moins d'abondance de l'une de ces deux matières, à proximité des centres de population, bois ou pierre, n'avait pas une influence décisive sur le système de construction adopté.
Pour ne pas sortir des limites de cet ouvrage, nous devons nous borner à signaler ce fait, dont nous essayerons ailleurs de donner l'explication.
Note 123: (retour) Voir, pour les hôtels, la fin de l'article sur les maisons des villes.
MAISONS DES VILLES.--La rareté du terrain, dans les villes ou bourgades
fermées, obligeait les constructeurs à élever plusieurs étages au-dessus
du rez-de-chaussée. Si à Rome, dans l'antiquité, les maisons possédaient
un grand nombre d'étages superposés, il ne paraît pas que cette méthode
fût suivie dans les villes provinciales. À Pompeï, les maisons n'ont
qu'un rez-de-chaussée, à très-peu d'exceptions près; les peintures
antiques indiquent rarement des habitations composées de plusieurs
étages. Au contraire, dès l'époque mérovingienne, les maisons urbaines
possèdent un ou plusieurs étages au-dessus du rez-de-chaussée; les
auteurs mentionnent souvent leurs étages, et les représentations
sculptées ou peintes nous les montrent plutôt dans la forme de tours ou
de pavillons élevés que comme des logis juxtaposés. Grégoire de Tours
signale des maisons à plusieurs étages: «Priscus, dit-il, avait ordonné,
au commencement de son épiscopat, que l'on exhaussât les bâtiments de la
maison épiscopale
124.»... «Le duc Beppolen étant à table dans une
maison à trois étages, tout à coup le plancher s'écroula
125...»
Les maisons mérovingiennes, dont il reste des traces nombreuses dans le nord de la France, se composent habituellement d'une cave en maçonnerie non voûtée, surmontée de constructions de bois; leur périmètre est petit et les logements devaient nécessairement être superposés. C'est d'après ce programme que paraissent avoir été construites les maisons dont nous donnons ici (1 et 2) les copies. La figure 1 indique évidemment une construction de bois; mais il faut dire qu'elle se trouve sur un chapiteau de l'église primitive de Vézelay, antérieure à l'établissement de la commune; tandis que, dans cette même localité, on voit encore de nombreux fragments de maisons de pierre du commencement du XIIe siècle 126. En effet, Aug. Thierry, dans ses Lettres sur l'histoire de France 127, en racontant les phases de l'établissement de la commune de Vézelay, signale cette tendance des citoyens émancipés à s'entourer des signes extérieurs de leur affranchissement. «Ils élevèrent autour de leurs maisons, chacun selon sa richesse, des murailles crénelées... L'un des plus considérables parmi eux, nommé Simon, jeta les fondements d'une grosse tour carrée...»

La figure 2 présente une particularité qu'il ne faut pas omettre, c'est un escalier extérieur; nous verrons en effet que ces escaliers extérieurs, ou grands perrons, jouent un rôle important dans les habitations des XIe et XIIe siècles. La tapisserie de Bayeux nous montre Harold et ses compagnons banquetant dans une maison au moment de leur passage en Normandie. La salle du banquet est située au premier étage sur un rez-de-chaussée formé d'arcades; un perron descend de cette salle supérieure au bord de la mer. Ce rez-de-chaussée est évidemment construit en maçonnerie, tandis que le premier étage paraît être un ouvrage de charpenterie.
On retrouve cette disposition des escaliers extérieurs dans des manuscrits grecs du VIIIe siècle (voy. PERRON), et nous la voyons se perpétuer jusqu'au XVIe siècle. Signalons ce fait important: c'est qu'en France, pendant la première période du moyen âge et jusqu'au XIIe siècle, il semble que dans les habitations privées on ait maintenu les traditions de l'antiquité gallo-romaine pour le rez-de-chaussée, et que l'on ait adopté les habitudes introduites par les peuples venus du nord pour les étages supérieurs. Il se pourrait bien, en effet, qu'après l'invasion, les nouveaux conquérants aient conservé bon nombre de ces habitations de ville ou de campagne gallo-romaines, et que sur les rez-de-chaussées qui les composaient ils aient fait élever, en charpenterie, des salles et des services dont ils avaient besoin. On aurait ainsi adopté depuis lors un système de construction résultant de deux méthodes entées l'une sur l'autre par les habitudes de deux civilisations ou plutôt de deux races différentes. Dans les maçonneries, l'influence gallo-romaine se fait sentir très-tard, tandis que les ouvrages de bois ont, dès l'origine, un caractère qui appartient évidemment aux races du nord et qui ne rappelle point l'art de la charpenterie des Romains. Cette superposition de deux systèmes de constructions, issus de deux civilisations opposées, ne parvient qu'à grand peine à former un ensemble complet, et, jusqu'à la fin du XIIe siècle, on reconnaît que le mélange n'est point effectué.
L'école laïque du XIIIe siècle parvient à opérer ce mélange, parce qu'elle abandonne entièrement les traditions romaines, et c'est seulement à cette époque que les constructions privées prennent un caractère véritablement français, homogène, adoptent des méthodes logiques, en raison des matériaux mis en oeuvre. Il suffit de jeter les yeux sur les manuscrits occidentaux des IXe, Xe et XIe siècles, sur quelques sculptures d'ivoire de cette époque et même sur la tapisserie de Bayeux, pour constater l'influence des traditions de constructions gallo-romaines dans les maçonneries du rez-de-chaussée des habitations et celle des constructions de bois indo-germaniques pour les couronnements des palais et maisons, tandis que les églises affectent toujours ou la forme de la basilique latine ou celle de l'édifice religieux byzantin.
Évidemment, si les seigneurs et les citadins laissaient les moines arranger l'architecture de leurs monastères à leur guise (et ceux-ci étaient latins par tradition), ils exerçaient une influence sur les constructeurs chargés d'élever leurs habitations, et malgré l'antipathie qui existait entre les castes des conquérants venus d'outre-Rhin et les vieux Gaulois devenus latins, il semblerait qu'au contact de ces races plus pures, le Gallo-Romain se rappelait son origine, reprenait peu à peu les goûts natifs, réagissait contre l'influence si longtemps subie des arts romains et, dans ses habitations, se plaisait à composer un art qui fût à lui. Aussi, au XIIe siècle déjà, les maisons des citadins ne ressemblent nullement aux bâtiments d'habitation des monastères: c'est un autre art, ce sont d'autres méthodes de construire; l'architecture civile se forme avec l'établissement des communes, elle prend une allure indépendante tout comme le château féodal qui, de son côté, s'éloigne de plus en plus de la villa romaine aux traditions de laquelle les abbayes seules restent fidèles. Il est toujours intéressant de voir comment, chez les populations livrées à leurs instincts, les arts, et l'architecture en particulier, reflètent les tendances des esprits.
Au XIIe siècle, l'architecture monastique, arrivée à son apogée, ne progresse plus. Saint Bernard essaye de lui rendre la signification qu'elle perd chaque jour, en lui imposant la simplicité comme première condition; mais après lui, cet art puritain, qu'il a prétendu donner comme type des établissements religieux, est entraîné dans le torrent commun. L'architecture militaire féodale et l'architecture domestique au contraire se développent avec une prodigieuse activité; les vieux restes des arts romains sont décidément mis de côté, et les bourgeois, comme les seigneurs, veulent avoir un art flexible qui se prête à toutes les exigences des habitudes changeantes d'une société. Dès que le pouvoir des établissements religieux s'affaiblit, l'esprit municipal et même politique se révèle, et le siècle n'est pas encore achevé que tous les travaux d'art et d'industrie sont entre les mains de ces gens de ville qui, cinquante ans plus tôt, devaient tous demander aux couvents depuis le plan du palais jusqu'aux serrures des portes.
Il serait du plus haut intérêt de posséder encore aujourd'hui quelques-unes de ces maisons de ville du XIe siècle, c'est-à-dire de l'époque où les traditions gallo-romaines, encore assez entières, et gauloises primitives, se mélangeaient si étrangement avec les formes d'architecture importées par les peuples du nord de la Germanie et par les Normands. Nous n'avons sur ces temps que les documents très-imparfaits donnés par les manuscrits; ils nous permettent, toutefois, de constater la présence de ces ouvrages de bois qui n'ont guère d'analogie qu'avec quelques anciennes charpenteries du Danemark, du Tyrol et de la Suisse 128.
L'aspect de la maison de ville française de la fin du XIe siècle et du commencement du XIIe ne rappelle pas la maison romaine. Les vues ne sont plus prises, ainsi que dans la maison antique, sur des cours intérieures, mais sur la voie publique, et la cour, s'il en existe, n'est réservée qu'aux services domestiques. De la rue on entre directement dans la salle principale, presque toujours relevée au-dessus du sol de plusieurs marches. Si l'habitation a quelque importance, cette première salle, dans laquelle on reçoit, dans laquelle on mange, est doublée d'une arrière-salle qui sert alors de cuisine, ou, les jours ordinaires, de salle à manger; les chambres sont situées au premier étage. Mais un plan tracé nous évitera de trop longues explications.

Voici donc (3) le plan d'une de ces maisons du commencement du XIIe siècle 129. De la rue on monte à la salle A par un escalier détourné 130 présentant un premier palier avec banc, puis un second palier fermé devant la porte d'entrée qui est pleine.
Ce second palier est ou porté en encorbellement ou posé à l'angle
externe sur une colonnette; le dessous du palier ainsi suspendu sert
d'abri à la descente des caves. Celles-ci sont généralement spacieuses,
bien bâties, bien voûtées, avec colonnes centrales et arcs-doubleaux.
Quelquefois même il y a deux étages de caves, particulièrement dans les
pays vignobles. À côté de la porte d'entrée, qui est pleine et ferrée
lourdement, est une petite ouverture pour reconnaître les personnes qui
frappent à l'huis. De cette première salle, qui n'est habituellement
éclairée que par une fenêtre donnant sur le dehors et par la porte
lorsqu'il fait beau
131, on entre dans un dégagement B aboutissant à
l'escalier en limaçon qui monte au premier, et sous lequel on passe dans
la petite cour D intérieure, commune quelquefois à plusieurs habitations
et possédant un puits. C'est sur cette cour que s'éclaire
l'arrière-salle C servant de cuisine. Au premier, la distribution est la
même; la pièce du devant sert de chambre à coucher pour les maîtres, la
salle postérieure est réservée aux domestiques. Mais ce premier étage
est très-souvent construit en bois
132. Son fenêtrage large occupe plus
de la moitié de l'espace et le tout est couvert par un toit saillant,
car le bâtiment, double à cette époque, ne présente que rarement son
pignon sur la rue. Le pan de bois de face du premier étage, fait en
grosses pièces, porté sur de très-fortes solives qui d'autre part
reposent sur le mur de refend, est hourdé en mortier entre les bois; sur
l'enduit sont tracés des dessins à la pointe. Le dessous de la saillie
des toits et le pan de bois lui-même sont peints de couleurs
tranchantes, jaune et noir, blanc et brun ou rouge, rouge et noir
133.
Nous donnons, au-dessous du plan, la vue de la façade de cette maison
romane.
Les distributions intérieures de la maison romane s'étaient sensiblement éloignées de celles des maisons gallo-romaines et mérovingiennes; en effet, on constate encore dans ces dernières la séparation de l'appartement des femmes, tandis que la vie en commun est indiquée dans la maison du XIe siècle. Grégoire de Tours mentionne encore des gynécées: «On envoya, dit-il, Septimine dans le domaine de Marlheim tourner la meule pour préparer chaque jour les farines nécessaires à la nourriture des femmes réunies dans le gynécée 134.» Dans la maison romane du XIIe siècle, la famille se réunit autour du même foyer. À rez-de-chaussée, la grande pièce est la boutique, si le propriétaire est un marchand; alors la salle est au premier étage. Cette salle sert de chambre à coucher, de lieu de réunion; elle est vaste et contient le lit du père, de la mère et des enfants en bas âge. Les apprentis ou domestiques couchent dans le galetas élevé au-dessus du premier. Presque toujours alors la cuisine est séparée du logis principal par une petite cour; une galerie permet d'y arriver à couvert; une allée contenant un degré droit flanque la boutique et donne entrée directement de la rue dans la salle du premier étage. De cette salle on communique également à l'étage au-dessus de la cuisine par une galerie. C'est d'après ce système que sont élevées les maisons de la ville de Cluny qui datent du XIIe siècle 135. Nous donnons (4) le plan de l'une d'elles.
Le rez-de-chaussée A fait voir l'allée avec le degré droit en C, la boutique en D, la galerie ou portique à jour en E, la cour en F, la cuisine en H avec sa grande cheminée I. Un puits est en G. Le premier étage, tracé en B, montre l'arrivée du degré en K, la salle en L, la galerie à jour ou vitrée en N avec un petit degré pour monter aux galetas, et une chambre en O. La coupe générale sur ab de cette maison est tracée dans la figure 5 en A, et l'élévation de la façade sur la rue en B.

Cette façade est encore aujourd'hui conservée jusqu'au niveau C, l'étage du galetas ayant seul été détruit; quant aux bâtiments postérieurs, il en reste à peine quelques traces. Les maisons du XIIe siècle de la ville de Cluny sont mitoyennes, c'est-à-dire séparées par des murs communs à deux propriétés, et bien que cette coutume soit ordinaire dans la plupart des villes françaises, il est certaines localités, particulièrement en Bourgogne, où les maisons des XIIe et XIIIe siècles sont séparées par une ruelle étroite et possèdent par conséquent chacune des murs latéraux indépendants. On peut reconnaître que cette coutume existait également dans la plupart des bastides, ou petites villes fermées, élevées d'un seul jet à la fin du XIIIe siècle, sous la domination d'Édouard Ier, dans la Guienne. Mais les règlements en vigueur concernant la plantation des maisons dans les villes de France au moyen âge, leurs saillies sur la voie publique, la manière de prendre les jours, les écoulements des eaux, variaient à l'infini, chaque seigneur ayant établi une coutume particulière sur le territoire soumis à sa juridiction. Il arrivait aussi que deux maisons étaient accolées avec mur mitoyen intermédiaire, comble unique à deux égoûts sur deux ruelles latérales.
On voit encore dans la petite ville de Montréale (Yonne) quelques maisons construites d'après ce système, et une, entre autres, proche de la porte du côté d'Avallon, qui est assez bien conservée. La fig. 6 en reproduit le plan. Cette maison double paraît remonter aux premières années du XIIIe siècle.

En A sont les entrées avec perrons et bancs de pierre; en B, les descentes de caves donnant, suivant l'habitude bourguignonne, sur la voie publique; en CC', les salles du rez-de-chaussée. En D sont deux petites cours entourées d'appentis en bois ne s'élevant que d'un rez-de-chaussée. La cage de l'escalier est commune, bien que ses rampes soient séparées. De la salle C, on monte au premier en prenant le palier E, et de la salle C' en prenant le palier F; ainsi, à l'étage supérieur, la porte de l'escalier de la maison C est en G, et celle de la maison C' est en H. En I est un puits commun. Sur la rue, cette maison double présente la façade (7).

Les contre-forts antérieurs avec leurs encorbellements portent un balcon au premier étage et la saillie du toit a deux égoûts avec pignon commun, de sorte que les deux perrons, les deux descentes de caves et les deux balcons sont abrités. Derrière ces habitations sont plantés de petits jardins auxquels on arrive par les ruelles. Nous ne saurions dire si ces jardins étaient communs à plusieurs maisons ou s'ils appartenaient seulement à quelques-unes d'elles, car les clôtures de ces terrains ont été depuis longtemps bouleversées; ils arrivaient en bordure le long de l'ancien rempart.
Les ruelles d'isolement entre les maisons, qu'elles fussent simples ou jumelles, avaient nécessairement amené les architectes à élever les murs goutterots sur les ruelles et les pignons sur la rue. Ces ruelles, qu'en langage gascon on appelle endronnes, existaient même parfois lorsque les maisons formaient portique continu ou allée couverte sur la rue, disposition assez fréquente dans les bastides françaises et anglaises bâties aux XIIIe et XIVe siècles sur les bords de la Garonne, de la Dordogne, du Lot et dans les provinces méridionales 136. On conçoit parfaitement pourquoi, s'il fallait laisser des ruelles entre les propriétés, on réunissait deux lots pour profiter du terrain d'une ruelle. De deux maisons, deux propriétaires n'en faisaient réellement qu'une, avec mur de séparation dans l'axe du pignon. Toutefois cette méthode est rarement employée.
Les ruelles entre les maisons n'ont quelquefois que la largeur d'un caniveau, ainsi qu'on peut le constater encore dans la ville de Montpazier, dont le plan général est d'une si parfaite régularité et ordonnance (voyez ALIGNEMENT, fig. 1); mais alors ces maisons possèdent deux façades, l'une sur une rue de 10 mètres de largeur, l'autre postérieure sur une ruelle de 3 mètres environ 137. Nous reviendrons tout à l'heure sur ces habitations de la fin du XIIIe siècle.
Nous avons donné une maison de la ville de Cluny qui date du XIIe siècle; dans notre article CONSTRUCTION, fig. 115, 116, 117 et 118, on voit les élévations, plans et coupes d'une façade de maison de cette même ville, construite vers la moitié du XIIIe siècle. Déjà les jours sont plus larges, les étages plus élevés, la construction de pierre plus importante et d'une apparence plus svelte. Dans quelques villes fermées on élevait, au XIIIe siècle, des habitations à plusieurs étages dont les façades étaient entièrement construites en pierre. Sur la place de la petite ville de Saint-Antonin (Tarn-et-Garonne), qui possède une si belle maison municipale du XIIe siècle (voy. HÔTEL DE VILLE), on voit encore un assez grand nombre de maisons du XIIIe siècle d'une apparence monumentale 138. Ces maisons sont spacieuses, profondes, possédant des façades assez étendues, remarquablement construites. Le rez-de-chaussée est occupé par des magasins ou boutiques, le premier et le second étage sont occupés sur la rue par une grande salle sur le devant avec un escalier et petite salle annexe donnant sur une ruelle, comme à Montpazier. Voici (8) la façade d'une de ces maisons donnant sur la place de la ville.

Les arcades du rez-de-chaussée servaient de lieu de vente les jours de marché, ainsi que cela se pratique encore dans beaucoup de localités. Alors des rideaux étaient tendus sous les arcs pour abriter vendeurs et acheteurs. Les grandes salles du premier et du second étage sont éclairées largement par des arcatures continues, qui à l'intérieur forment quatre fenêtres séparées par des trumeaux étroits. Au sommet de la maison, sous le comble, est le galetas où habitaient les gens, où l'on mettait les provisions. On observera que les pieds-droits des fenêtres du premier et du second étage sont garnis, à la hauteur des naissances, d'anneaux de fer avec crochets. Ces anneaux étaient destinés à recevoir des perches auxquelles étaient fixées des bannes. Cet usage s'est perpétué dans le midi de la France, en Italie et en Espagne. La fig. 9 reproduit la disposition de ces bannes.

En A est un des anneaux-crochets scellés dans la maçonnerie. Les bannes étaient divisées par travées, ainsi que les perches qui s'emmanchaient l'une dans l'autre (voir le détail B). Des perches-étais C soulevaient les extrémités des toiles dont le mouvement et le déversement étaient maintenus par des cordelles passant dessous, en croix de saint André, et venant se fixer par des anneaux aux crochets D. Une large pente froncée tombait sur le devant, autant pour arrêter les rayons du soleil que pour donner du poids à la partie inférieure de la banne et obliger ainsi les perches-étais C à rester inclinées.
La petite ville de Cordes, entre Saint-Antonin et Gaillac, a conservé presque toutes ses maisons qui datent des XIIIe et XIVe siècles et se rapprochent, par leur style d'architecture et leurs dispositions intérieures, de celle que nous venons de décrire. Mais ces villes des bords de la Garonne, du Tarn, du Lot et de l'Aveyron, étaient profondément pénétrées de l'esprit communal, ou plutôt n'avaient jamais abandonné les traditions municipales de l'époque gallo-romaine; la plupart ont conservé des restes d'habitations privées qui indiquent une administration locale très-développée, une grande prospérité intérieure et des habitudes de bien-être et même de luxe qui ont disparu depuis les guerres de religion du XVIe siècle. Notre époque se laisse aller volontiers au courant de certains préjugés qui flattent l'amour propre et dispensent d'étudier bien des questions ardues, en ce qu'elles demandent du temps et des recherches. Combien de fois n'a-t-on pas dit ou écrit, par exemple, que les maisons des villes du moyen âge ne sont que de pauvres bicoques, tristes, petites, obscures, inhabitables enfin 139? Certes, les vieilles maisons de Saint-Antonin, de Cordes, de Saint-Yriex, de Montpazier, de Toulouse, de Périgueux, d'Alby, de Mont-Ferrand, de Cluny, de Provins, de Bourges, de Laon, de Beauvais, de Reims, de Soissons, de Dol, de Caen, de Chartres, de Dreux, d'Angers, etc., ne sont que des petits édifices, si on les compare à nos hôtels modernes de Paris, de Lyon ou de Rouen; mais il ne faut pas oublier que la plupart de ces maisons anciennes, debout encore, n'existent que dans des villes singulièrement déchues, que dans des villes de deuxième ou troisième ordre, abandonnées aujourd'hui, alors riches et prospères, quoiqu'elles fussent peu importantes si on les compare aux grands centres de population de la même époque; que ces vieilles maisons, si on les met en parallèle avec celles que l'on bâtit aujourd'hui dans ces mêmes localités, sont incomparablement mieux construites, mieux entendues et d'un aspect moins pauvre; qu'elles indiquent un état social plus avancé, établi plus solidement, une prospérité moins fugitive, des institutions municipales plus robustes. Il est évident que, établissant un parallèle entre une des maisons de la petite ville de Cordes et l'hôtel de M..., à Paris, on donnera le champ libre à la raillerie; mais comparons une maison ancienne de Saint-Antonin avec une de celles qu'on bâtit aujourd'hui dans la même localité; comparons l'hôtel de M... avec l'hôtel de Sens ou l'hôtel de Trémoille, ou l'hôtel Saint-Pol, ou l'hôtel de Cluny, ou même la maison de Jacques Coeur, à Bourges, qui existe encore à peu près entière: de quel côté seront les rieurs?
Nous ne voulons point faire ici de la critique sociale, ni même de la politique; nous parlons art. Or, c'est une étrange illusion de confondre, quand il s'agit d'art, l'état civilisé avec le développement intellectuel. De ce qu'une société est parfaitement policée, de ce qu'elle a répandu des habitudes de confort dans les dernières classes de la société, cela ne dit point du tout qu'elle développe son intelligence; cela ne fait pas surtout que la vie se répande dans tous les rameaux du corps social. Si au XIIe siècle, si pendant les XIIIe et XIVe siècles on bâtissait de grands édifices, et si les artistes abondaient à Paris, à Rouen, à Lyon, à Reims, à Chartres, à Bourges, à Tours, à Toulouse; dans la dernière petite ville, dans le dernier village de France, on trouvait un art relativement aussi élevé: en est-il ainsi aujourd'hui? Nous bâtissons de magnifiques palais à Paris, à Lyon ou à Marseille; mais que fait-on dans les chefs-lieux de canton, dans les villages? de pauvres constructions branlantes, mal conçues, hideuses d'aspect, bien qu'elles affectent une certaine apparence de luxe; des maisons incommodes, à peine abritées, cachant l'ignorance du constructeur ou la mesquinerie du propriétaire sous des enduits que chaque hiver fait tomber. Dans ces faibles bâtisses, non-seulement l'art n'entre plus, mais le bon sens, la raison semblent en être exclus. Un lambeau de vanité puérile apparaît seulement sur la façade symétrique ou dans des intérieurs pauvrement luxueux. Nous sommes émerveillés de voir dans une petite ville antique comme Pompéï de méchantes maisons bâties en briques revêtues d'enduits présenter cependant des exemples d'un art délicat; mais nous possédions, au moyen âge, ce même privilége de mettre de l'art dans tout. Les maisons de Pompéï ne seraient guère confortables pour nous, gens du XIXe siècle; celles du XIIIe siècle en France ne le sont guère plus: qu'est-ce que cela fait à la question d'art? Les maisons de Pompéï nous charment parce qu'elles sont bien les demeures des habitants de la Campanie; celles de Cluny ou de Cordes ont les mêmes qualités. Mais que seront les nôtres pour les populations qui les verront dans six siècles, s'il en reste quelqu'une? Le confort est aujourd'hui le maître, nous l'admettons; alors soyons conséquents.
Est-il confortable d'élever à Marseille des maisons sur le modèle de celles de Paris, ou même de construire des façades exposées au nord pareilles à celles qui sont ouvertes vers le midi? Est-il confortable d'éclairer des pièces, petites et grandes, au moyen de fenêtres d'égales dimensions, d'avoir des trumeaux étroits pour de grandes salles, et larges pour des cabinets? Des portiques sur la rue, qui laissent pénétrer le soleil ou la pluie sur toute la largeur de leur pavé, sont-ils confortables? Est-ce une chose confortable que cette division multipliée des pièces sur une surface peu étendue, qui fait que la vie intérieure se passe à ouvrir et fermer des portes, et qu'on ne sait où placer les meubles les plus indispensables. Et ces étages de moins de trois mètres de hauteur, sous plafond, sont-ils sains et confortables? Ces murs minces, ces toits en zinc qui soumettent les intérieurs à toutes les variations de la température, cette absence de saillies devant les façades qui laisse les baies exposées tout le jour au soleil, sont-ce là des choses confortables? Allons aux champs, c'est bien pis! La petite maison blanche, aux murs minces comme du carton, aux toits couverts de feuilles de zinc, aux fenêtres fermant mal, aux rez-de-chaussées humides, aux planchers qui crient, aux escaliers qui crient, aux cuisines répandant une odeur nauséabonde dans l'intérieur, mais qui, à l'extérieur, paraît un beau petit, pavillon carré, brillant au soleil; cette habitation est-elle confortable? Le château moderne avec ses tourelles, ses toits ornés, des placages de briques et de pierres qui prétendent imiter la vieille construction... ce château est-il confortable? Non point. Tout cela est apparence: les tourelles sont accrochées avec du fer; les toits compliqués, couverts avec des moyens économiques, mais garnis de crêtes à jour en zinc, laissent filtrer les eaux dans les intérieurs; les murs trop minces craquent; les planchers, trop faibles pour leurs portées, fléchissent. Les écoulements d'eau sont insuffisants; les cheminées fument parce que les âtres sont larges comme il convient dans un château, et que les tuyaux sont étroits puisqu'ils passent dans des murs minces. Partout les porte-à-faux produisent des lézardes, parce qu'on a demandé de grandes pièces à rez-de-chaussée, et que les étages supérieurs sont divisés à l'infini par des cloisons. Des cheminées portent sur le milieu des planchers. Nous n'en finirions pas si nous voulions énumérer toutes les misères plus ou moins secrètes du château moderne; misères qui se révèlent de temps à autre par quelque procès intenté à l'architecte complaisant qui n'a fait, au total, que ce qu'on lui a demandé. Sur son refus d'ailleurs ne s'en serait-il pas trouvé dix autres?
Les maisons du moyen âge étaient faites pour les habitudes de ceux qui les élevaient; de plus, elles sont toujours sagement et simplement construites. Chaque besoin est indiqué par une disposition particulière: la porte n'est pas faite pour plaire aux regards du passant, mais pour celui qui entre dans la maison. La fenêtre n'est pas disposée avec un art symétrique, mais elle éclaire la pièce qu'elle est destinée à éclairer, et elle prend la dimension qui convient à cette pièce. L'escalier n'est point caché, mais apparent. La façade est abritée si cela est nécessaire. La sculpture est rare, mais les planchers sont bons et solides, les murs d'une épaisseur suffisante. Dans les provinces méridionales, les fenêtres sont petites; dans celles du nord, elles sont nombreuses et larges. D'ailleurs, pour la maison du bourgeois, le programme diffère peu. Toujours la salle à chaque étage avec escalier intérieur, ou, plus souvent, sur le derrière avec petite cour. Cela n'est pas confortable pour nous, c'est accordé; mais cette disposition convenait aux habitudes du temps où, même dans le château, la famille, c'est-à-dire les proches et les serviteurs, se réunissaient dans la même pièce autour du maître. Le programme étant donné, les architectes y ont satisfait pleinement, ce qui nous permet de supposer qu'ils eussent satisfait également à tout autre programme, voire à ceux d'aujourd'hui.
Si, dans une ville du nord, commerçante et populeuse, nous cherchons des maisons construites sur un programme semblable à celui qui faisait élever celles de Saint-Antonin, de Cordes, de Sarlat, datant de 1230 à 1300, nous en trouvons quelques-unes à Beauvais, à Soissons, à Amiens, très-mutilées, il est vrai, mais qui laissent encore voir leur système de structure. C'est toujours la grande salle à chaque étage sur la rue; mais dans les villes du nord, l'architecture civile est plus large, plus monumentale. Les maisons se ressentent de l'esprit des communes ayant reconquis leurs priviléges. Examinons, par exemple, cette maison dont on voit encore de beaux fragments dans la rue Saint-Martin, à Amiens, et qui rappelle par son style les maisons de Beauvais et de Soissons de la même époque (9 bis); elle date de 1230 à 1240, comme celle de Saint-Antonin.

Mais il y a un certain air magistral, dans cette architecture, qui lui donne une supériorité marquée sur celle des villes du midi. Nous avons rétabli le pignon et le rez-de-chaussée d'après d'autres fragments du même temps et des mêmes contrées, ces parties ayant été détruites ou modifiées dans la maison de la rue Saint-Martin d'Amiens 140.

Cette différence marquée de style est plus frappante encore lorsqu'on établit le parallèle entre les habitations bâties en pierre dans le nord, et celles en grande partie élevées en brique dans certaines villes du midi. Voici (10) une maison de Caussade (Tarn-et-Garonne); elle est contemporaine de celle de Saint-Antonin et de celle d'Amiens, et date du milieu du XIIIe siècle. Les bases des piles du rez-de-chaussée, les colonnettes des fenêtres, les bandeaux et les sommiers sont seuls en pierre dure de Caylus; le reste de la construction est en brique 141. En plan, cette maison donne au premier et au second étage une grande salle presque carrée avec cheminée, un escalier et un cabinet postérieurs éclairés sur un jardin. Le troisième étage est divisé par une cloison et forme deux pièces. On sent encore, dans cette habitation, l'influence de la petite forteresse privée; c'était là un reste de ces traditions des municipalités méridionales si fort éprouvées pendant les guerres des Albigeois 142. Prenons encore dans le nord une maison un peu plus récente, de 1240 à 1250 environ; cherchons une des plus grandes et des plus riches de cette époque; allons à Reims, et examinons la maison dite des Musiciens, située dans la rue du Tambour. Cette maison, dont le rez-de-chaussée est fort mutilé, a conservé intact son premier étage sur la voie publique. Au-dessus s'élevait le toit, avec des mansardes dont on ne trouve plus que des traces sous le comble moderne.
La façade de cette maison possède quatre fenêtres hautes et larges au premier étage avec cinq niches dans les trumeaux; ces niches sont décorées de figures de musiciens assis, plus grandes que nature: le premier musicien, en commençant par la gauche, joue du tambour et d'une sorte de clarinette; le second joue de la cornemuse, le troisième (celui du milieu) tenait un faucon sur le poing, le quatrième joue de la harpe et le cinquième du violon; ce dernier est coiffé d'un chapel de fleurs.

Voici (11) une travée de cette façade. Des boutiques du rez-de-chaussée indiquées dans notre figure, il ne reste que les petits arcs et un des pieds-droits. Une large porte cochère s'ouvre vers l'extrémité opposée et donnait dans une cour autrefois entourée de bâtiments de la même époque, mais dont on ne trouve que des fragments. Le bâtiment sur la rue est simple en épaisseur, et était, paraît-il, divisé en deux salles à peu près égales. L'escalier tenait aux bâtiments de la cour.
Cette maison appartenait peut-être à la confrérie des ménétriers de Reims qui, au XIIIe siècle, jouissait d'une certaine réputation non-seulement en Champagne, mais dans tout le nord. Comme on peut en juger par l'examen de notre figure, la construction est simple, l'ornementation riche. Les figures sont du meilleur style champenois 143.
Les provinces avaient pour leurs bâtiments privés des écoles d'art différentes comme pour leurs églises et leurs établissements publics; une maison de la Bourgogne, au XIIIe siècle, ne ressemblait pas à une maison de l'Aquitaine, de l'Île-de-France ou de la Normandie. Ainsi, par exemple, nous ne trouvons qu'en Bourgogne ces sortes de maisons dont l'escalier à vis est engagé dans le mur de face sur la rue et sert de vestibule à rez-de-chaussée. À Avallon, à Flavigny, dans la petite ville de Sémur en Auxois et même à Dijon, on voit encore des restes de maisons qui présentent en plan la disposition que voici (12).

Au milieu de la façade est planté l'escalier A, partie en encorbellement au-dessus de la porte d'entrée B; à gauche ou à droite, selon que gironne l'escalier, est la porte C qui donne entrée dans la première pièce D, de laquelle on pénètre dans la seconde E, puis dans la troisième F; ainsi à chaque étage. De la pièce E commune, on entre dans une cour ou un petit jardin G. En façade sur la voie publique, cette maison présente l'élévation (13).

La porte d'entrée B est abritée par la saillie de l'escalier, dont la cage est posée sur l'about des marches formant encorbellement devant la façade; une entrée de cave O est pratiquée sous l'allége d'une des fenêtres du rez-de-chaussée; les caves, en Bourgogne, ont toujours été une dépendance importante des habitations. Cette disposition simple, économique et commode (car rien ne s'oppose à ce qu'au premier et au second la petite pièce E ne devienne une antichambre donnant dans les deux salles D et F), s'accordait bien avec les procédés et matériaux de construction de la Bourgogne, qui fournit de la pierre dure excellente, propre à monter ces cages d'escalier d'une faible épaisseur en saillie sur l'about des marches de la première révolution.
Du reste, en examinant les habitations de cette époque qui existent encore dans une même province, si l'on constate que certaines dispositions générales des plans étaient adoptées par tous au même moment, comme s'accordant avec les besoins, on signale également dans les détails, dans la manière dont les jours sont percés, une extrême variété. C'est que dans cette belle phase du moyen âge, le sentiment de l'individualité n'était pas éteint; que chacun pensait plutôt à satisfaire à ses goûts ou à ses besoins personnels qu'à imiter son voisin et à se modeler sur un type uniforme. Aucune municipalité alors n'aurait songé à imposer à tous les propriétaires d'une même rue une hauteur uniforme de bandeaux et un style uniforme d'architecture, et dans ce siècle, qu'on nous signale comme un temps d'oppression, l'idée ne serait jamais venue à une autorité quelconque de mouler les habitations de mille citoyens sur un même type. Chacun avait trop alors la conscience de son individualité, de la responsabilité personnelle, pour supposer que des hommes pussent être parqués comme des animaux d'un jardin zoologique dans des barraques pareilles pour récréer les yeux des promeneurs oisifs. On remarquera dans l'élévation fig. 13 la disposition des chéneaux de pierre inclinés vers deux gargouilles extrêmes et portés sur des corbeaux saillants. C'est encore là une disposition commune en Bourgogne et dans la haute Champagne. Ailleurs, là où les pierres longues et résistantes font défaut, ces chéneaux sont simplement creusés dans une poutre ou en planches recouvertes de plomb. Dès le milieu du XIIIe siècle en effet, en Bourgogne et en Champagne, on évite de laisser égoutter les eaux des combles devant les façades, et on les conduit par des chéneaux dans des gargouilles saillantes posées à l'aplomb des jambes-étrières.
Nous avons encore vu à Vitteaux (Côte-d'Or), il y a quinze ans, plusieurs maisons charmantes des XIIIe et XIVe siècles, presque toutes démolies ou dénaturées aujourd'hui. L'une d'elles, datant de la seconde moitié du XIIIe siècle, présentait en plan la disposition suivante (14) à rez-de-chaussée.

En A, sous la cage d'escalier, comme dans l'exemple précédent, est la porte d'entrée. La porte de cave donne sur la rue, en B. Ayant franchi la porte d'entrée, on passe dans un petit vestibule C; de là en face, dans la cuisine D, et à gauche dans la salle. La même distribution se répète au premier étage et donne deux chambres; puis au second, sous comble, est une grande pièce divisée en deux dans l'épaisseur du bâtiment.

L'élévation (15) montre en A la porte d'entrée, et en B celle de la cave. La cage de l'escalier n'est plus portée sur l'about des marches, mais sur une plate-bande rampante bien appareillée. Au sommet, la cage de l'escalier passe de la forme cylindrique au plan hexagonal, afin de faciliter la couverture faite en bardeaux. Une cour intérieure, ou plutôt un petit jardin planté, derrière la maison, donne de l'air et de la lumière à la cuisine et à la partie postérieure de la salle. Le bâtiment du côté de ce jardin est fermé par un pan de bois (voir le plan). Profitant de la saillie donnée par l'escalier en encorbellement, et d'une console à l'aplomb de la jambe-étrière de gauche, l'architecte a posé une ferme boiteuse en saillie, abritant toute la façade (voir l'élévation). Les eaux coulant dans les chéneaux mitoyens sont rejetées à gauche sur la rue par une gargouille en bois, et à droite dans la cour par une conduite en bois-tombant dans un petit réservoir en pierre placé à l'angle de la cuisine. Au rez-de-chaussée et au premier sont disposées des cheminées sur les murs mitoyens, cheminées dont les têtes sont visibles dans l'élévation. Ainsi donc sur un terrain de 100 mètres environ, sur lesquels 49 mètres superficiels étaient réservés à la construction, l'architecte bourguignon de la petite ville de Vitteaux trouvait le moyen d'élever une maison capable de loger convenablement une famille dans des pièces saines, bien éclairées, assez spacieuses, et pour une somme évidemment très-modique; car on remarquera que le mur de face et les murs mitoyens sont seuls en maçonnerie; les planchers portent sur ces deux murs mitoyens et sur le pan de bois du milieu. Une construction de ce genre, avec le mode adopté, coûterait, caves comprises, en province, 250 fr. le mètre superficiel; la maison reviendrait donc à la somme de 12,250 fr. Or, nous pouvons voir les bâtisses que l'on élève tous les jours dans les petites villes des départements; sur une surface aussi peu étendue, elles coûtent plus cher, sont moins saines et moins commodes, mais aussi sont-elles remarquablement laides, bien qu'elles essayent de ressembler à la grosse maison bourgeoise de la grande ville la plus voisine. Ce n'est certainement pas la richesse de l'ornementation qui plaît dans ces constructions civiles, puisqu'elles sont généralement dépourvues de sculpture jusqu'au XVe siècle; ce n'est pas non plus cette symétrie vulgaire tant prisée par les édilités modernes. Ce qui plaît, ce qui charme dans ces modestes bâtisses, c'est l'empreinte des besoins et des habitudes de la famille qu'elles protégent; c'est la sincérité des procédés de construction, l'imprévu, l'adresse et l'esprit, disons-le, avec lesquels l'artiste a su profiter de tous les accidents du programme donné. En supposant que nos villes modernes fussent ensevelies sous les cendres, comme Pompéï, il serait bien difficile aux archéologues qui les découvriraient dans deux mille ans de se faire une idée des goûts, des moeurs et des habitudes de la génération qui les a élevées; mais si on pénètre aujourd'hui dans une maison du moyen âge passablement conservée, tout, dans ces habitations, nous reporte aux façons de vivre de leurs habitants. Là on sent un peuple qui a son caractère à lui, ses goûts distincts, ses traditions et ses tendances.
D'ailleurs, l'hôtel du seigneur et même la maison du bourgeois devenu un personnage important dans la cité se distinguent de l'habitation du citadin, du commerçant ou du fabricant, d'une manière tranchée. Si le citadin pose sa façade sur la rue, tient à vivre sur la rue, l'homme noble, au contraire, élève son logis en arrière, entre cour et jardin; sur la voie publique, il place un mur de clôture ou des communs. Autant la maison du simple bourgeois ressemble à une lanterne, autant celle du seigneur ou de l'homme devenu un gros personnage est fermée aux regards du passant. Nous avons lu quelque part que la marquise de Rambouillet fut la première à Paris qui eut l'idée de se faire bâtir un hôtel entre cour et jardin; c'est là une de ces erreurs comme tant d'autres propagées avec insistance pour faire croire que le XVIIe siècle a tout fait et qu'avant cette époque il n'y avait que ténèbres et barbarie. D'abord, Tallemant des Réaux, qui seul, parmi les contemporains de la marquise, parle des soins qu'elle prit de la construction de son hôtel, ne dit pas un mot de cela, et, l'eût-il dit, que les hôtels existant bien antérieurement à cette époque lui donneraient le plus complet démenti. En effet, les hôtels de Saint-Pol, des Tournelles, de Bourbon, de la Trémoille, de Sens, de Guise, de Cluny, à Paris, étaient et sont encore entre cour et jardin. Il était donc facile, dans une ville, de reconnaître les habitations des personnages considérables entre celles des bourgeois. Mais les maisons des bourgeois elles-mêmes avaient un cachet particulier en raison de l'état ou de la position de ceux qui les habitaient. Les maisons d'une ville manufacturière et marchande comme Beauvais, Amiens, Reims, Troyes, ne ressemblaient pas à celles d'une ville habitée par des propriétaires de terres et vivant de leurs revenus ou d'un commerce de grains, de vins ou autres produits. Si la maison du Rémois ou du bourgeois de Troyes est ouverte à rez-de-chaussée ou élevée sur un portique qui permet aux marchands de parler de leurs affaires, celle de Provins, par exemple, ou de Laon, est soigneusement murée sur la rue jusqu'à la hauteur du premier étage. La fig. 16 reproduit la façade d'une de ces maisons de Provins, donnant sur la rue de Paris, et datant de la seconde moitié du XIIIe siècle.

Ici, l'habitant se renferme; le dehors n'a pas à s'occuper de ce qui se passe chez lui. La salle est au premier étage ainsi que les chambres. Le rez-de-chaussée est réservé aux communs, aux provisions, à la cuisine. Les étages sont hauts entre planchers; on sent que dans ces habitations la vie est simple et large. D'ailleurs, on observera avec quel soin la construction est faite, comme les vides des fenêtres sont bien soulagés par ces arcs de décharge en pierre; comme cette façade, composée de si peu d'éléments, prend un caractère monumental. Savoir mettre de l'art dans un mur en moellon percé de baies, sans décoration aucune, sans procédés de construction dispendieux, en se bornant au strict nécessaire, n'est-ce pas la marque d'un état social très-avancé, au point de vue de l'art, et pouvons-nous en dire autant de notre siècle? Nous n'ignorons pas que, pour un grand nombre de personnes aujourd'hui, l'art n'est qu'une des expressions du luxe, une superfluité, et qu'en fait d'architecture, une façade qui n'est pas plaquée de colonnes ou de pilastres, de moulures et d'ornements ramassés un peu partout suivant la mode, n'est point une oeuvre d'art. Le moyen âge qui a laissé peu de livres ou de discours sur l'art, mais qui était artiste, savait mettre de l'art sur la façade la plus riche et sur le mur de l'humble habitation du citadin d'une petite ville; il savait aimer et respecter cet art dans ses modestes expressions comme dans ses conceptions splendides. Un siècle qui ne croit plus pouvoir manifester son goût pour l'art qu'en accumulant les ornements, qu'en dépensant des sommes énormes, mais qui dans les oeuvres de chaque jour oublie ses principes élémentaires, passe d'un type à un autre, n'a plus d'originalité, ce siècle penche vers le déclin des arts. Quand une époque est descendue à ce niveau inférieur dans l'histoire des arts, peu à peu l'exécution s'appauvrit; ne trouvant plus à s'attacher qu'à des oeuvres privilégiées, elle se retire des extrémités pour concentrer ses derniers efforts sur quelques points; chaque jour la barbarie gagne du terrain.
On bâtit encore des palais, des monuments où toutes les richesses sont amoncelées sans ordre ni raison; mais les habitations, les édifices de la petite cité, ne sont plus que des oeuvres grossières, ridicules, uniformément vulgaires, et dont les vices de construction feront promptement justice. C'est la seule consolation qui reste, au milieu de ces misères, aux esprits assez préoccupés des choses d'art, pour croire encore que la postérité juge un peu les civilisations d'après leurs monuments. Quand l'art n'est plus qu'une affaire de luxe, le jour de sa proscription est proche. Au moyen âge, la puissance vitale de l'art se manifeste partout; son expression est un besoin pour tous, grands et petits. Les vieilles maisons qui couvraient encore nos anciennes villes françaises il y a quelques années, et que des besoins nouveaux font disparaître rapidement, en étaient la preuve vivante. Nous ne prétendons pas que l'on doive, aux dépens de la salubrité publique, en présence des développements de la prospérité des classes moyennes, conserver quand même des masures pourries; mais nous aimerions retrouver aujourd'hui dans nos constructions privées ces instincts d'une population aimant les arts et sachant en répandre partout les véritables expressions. Mais non, ce vieux et riche sang gaulois, qui, après une longue compression, avait pu, vers le XIIIe siècle, circuler librement, porter la vie dans toutes les provinces, couvrir le sol d'édifices de toute nature, originaux, logiques, francs, sans alliages, véritable enveloppe d'une nation pleine de qualités brillantes; ce sang limpide et pur s'est coagulé de nouveau sous une seconde invasion étrangère. Il a fallu redevenir romains, et encore, sous quels Romains! La symétrie a dû remplacer la logique, une imitation pâle d'un art mort s'est substituée à l'originalité native de notre pays. Des doctrines faussées, enseignées avec persistance, ont peu à peu pris racine dans tous les esprits, et l'engouement pour un art fastueux que personne ne comprend et que personne n'explique, parce qu'il ne saurait être expliqué devant des esprits naturellement clairs et logiques, a remplacé ce goût inné pour cet art vrai fait pour notre taille et au milieu duquel nous nous sentions chez nous.
La maison du moyen âge, en France, est l'habitation de l'homme ne sur le sol. La maison de nos jours est l'habitation banale, uniformément confortable; comme si la vie du négociant, ses moeurs et ses besoins ressemblaient à la vie, aux moeurs et aux besoins du soldat; comme si le logement qui convient à un notaire convenait à une femme à la mode. Cette uniformité, incommode pour tous, à tout prendre, est telle que l'homme aujourd'hui voué à une carrière est obligé de se faire bâtir une maison pour lui, s'il ne veut pas chaque jour avoir à lutter contre les ennuis et les difficultés que lui cause le logis banal. Chacun est mal à l'aise dans la boîte qu'il loue, mais les passants ne voient que des façades à peu près identiques et qui nous auraient déjà fait mourir du spleen si dans notre pays nous pouvions tomber sous l'empire de cette maladie 144.
Mais (et c'est là un motif de ne pas désespérer de l'avenir) ce n'est pas de notre temps qu'on a tenté pour la première fois de mouler, dirons-nous, les habitants d'une cité dans des compartiments réguliers, alignés, identiques. Les seigneurs, au moyen âge, ne comprenaient pas beaucoup mieux que nos édilités modernes les questions d'art, ce qui n'a pas empêché la nation de posséder son art. Les Anglais, notamment, ne paraissent pas à cette époque avoir pénétré le génie français; et en leur qualité d'étrangers, nous ne saurions leur en vouloir: «Dans la seconde moitié du XIIIe siècle, temps de paix et de prospérité, dit M. Félix de Verneilh 145, un petit coin de l'une des provinces se couvrit rapidement de ces villes neuves appelées bastides dans l'ancienne langue du midi. Voici par quelles circonstances. Alphonse de Poitiers, frère de saint Louis, était devenu, par son mariage avec l'héritière des comtes de Toulouse, le seigneur nominal d'une partie de la Guienne.» Comme tel, et bien que cette souveraineté se réduisît souvent à un titre, il prétendit assurer son autorité directe en faisant bâtir une capitale, Villefranche de Rouergue. «Dans l'Agénois, il fonda Villeneuve d'Agen et plusieurs bourgs moins considérables. Dans le Périgord, où il avait quelques possessions, il fonda aussi des bastides.» Ces villes, ou bastides, étaient construites sur des terrains accordés gratuitement, suivant l'indication des ingénieurs, et jouissaient de franchises étendues. C'était un moyen d'attirer sous la dépendance directe du suzerain des populations entières; le moyen réussit malgré les protestations des seigneurs féodaux et les excommunications des évêques. «De son côté, continue M. F. de Verneilh, Édouard Ier, d'abord comme duc et bientôt comme roi, multiplia singulièrement les fondations de ce genre; et c'est un des meilleurs titres de ce grand prince au souvenir reconnaissant de l'ancien duché de Guienne. Libourne, entre autres, lui doit son existence (1286)...» Beaumont fut ainsi construit pour le compte du roi d'Angleterre en 1272; le maréchal Jean de La Linde commença sur son propre domaine la bastide de La Linde. On bâtit la ville de Montpazier vers 1284. Or, ce plan de Montpazier tracé en 1284 n'a pas été altéré depuis. Comme tous les plans de villes de cette époque, tracés en Guienne et en Périgord, la ville de Montpazier est non-seulement alignée avec une régularité parfaite (voir l'article ALIGNEMENT, fig. 1), mais encore toutes les maisons sont d'égales dimensions et distribuées de la même manière.

Un îlot des maisons de la ville de Montpazier (17) fait voir avec quelle uniformité cellulaire ces habitations sont construites. Certes, la régularité observée dans des villes modernes, comme Napoléon-Vendée, comme certaines villes d'Algérie, n'est que désordre, en comparaison de cette symétrie absolue. Il faut admettre (ce qui était vrai alors) que tous les gens venant s'établir dans ces bastides privilégiées, sorte de refuges offerts par en suzerain, étaient tous sur le pied de l'égalité; quels qu'ils fussent, il est certain qu'ils se soumettaient à ces conditions d'alignement, de façades et de surfaces imposées, puisque ces villes ont été bâties d'un seul jet et ont atteint un degré de prospérité relative très-élevé peu après leur construction.
On reconnaît ainsi que ces idées, que nous croyions appartenir à notre époque, de cités ouvrières, de centres de populations établies sous une apparence d'égalité absolue, ne sont pas nouvelles, et que le moyen âge a même atteint dans ce sens un point pratique dont nous sommes encore fort éloignés. Mais si modestes que soient ces habitations, elles sont du moins en rapport avec les besoins et les habitudes de l'époque. Elles se composent toutes d'un rez-de-chaussée, d'un premier et quelquefois d'un second étage; leurs façades sont variées d'aspect, en raison des goûts ou de l'état de fortune de chacun; d'ailleurs bien bâties et solides. La place de la ville seule, sur un côté de laquelle s'élève la halle, est entourée de portiques très-larges, bas et aboutissant aux rues donnant entrée sur cette place; car les ingénieurs qui ont tracé les plans de ces bastides se sont bien gardés de percer les rues dans les milieux des côtés du carré, ce qui eût été peut-être conforme aux règles académiques, mais point du tout à celles de la raison. Une place est généralement, dans une ville, une aire plus ou moins vaste où l'on se réunit; si deux rues coupent le centre à angles droits, il est clair que les gens qui passent gênent beaucoup ceux qui demeurent. Établir la circulation sur les côtés d'une place et laisser le milieu en dehors de cette circulation a toujours été la préoccupation des planteurs de villes du moyen âge.

Des pans coupés, ménagés aux retours d'équerre des maisons d'angle, permettent aux chariots d'entrer dans la place facilement les jours de marché. Nous présentons (18) le plan d'un quart de la place de la bastide de Montpazier 146, et (19) la vue perspective d'une des entrées de cette place prise du point A du plan. On voit dans cette figure comment les angles des maisons sont portés en encorbellement au-dessus des larges pans coupés qui donnent entrée diagonalement sur la place.

Les maisons de ces bastides de la fin du XIIIe siècle sont construites en pierre, en brique ou moellon; la structure de bois est exclue des façades. Du reste, les maisons de bois sont très-rares dans les provinces méridionales, tandis que dès la fin du XIII siècle nous voyons qu'elles deviennent de plus en plus fréquentes dans les provinces du Nord. D'abord, ce ne sont que les étages supérieurs qui sont construits en pans de bois, puis bientôt le rez-de-chaussée seul se maintient en pierre; puis enfin, pendant le XVe siècle et le commencement du XVIe, des façades tout entières sont non-seulement élevées en pans de bois, mais souvent même entièrement boisées comme de grands meubles, sans qu'il y ait trace apparente de maçonnerie. Outre le goût que les populations du Nord ont toujours conservé pour les constructions de bois, outre l'influence qu'exerçaient sur ces populations les traditions apportées par les invasions septentrionales, le voisinage de grandes forêts, la construction de bois présentait des avantages qui devaient entraîner tous les habitants des villes populeuses des provinces françaises proprement dites à employer cette méthode.
Comme nous l'avons dit, dans ces grandes villes du Nord, telles que Paris, Rouen, Beauvais, Amiens, Troyes, Caen, etc., la place était rare. Ces villes, entourées de murailles, ne pouvaient s'étendre comme de nos jours; on cherchait donc à gagner en hauteur la surface qui manquait en plan, et on empiétait autant que faire se pouvait sur le vide de la voie publique, au moyen d'étages posés en encorbellement: or, la construction de bois se prêtait seule à ces dispositions imposées par la nécessité. On pensait alors à bien abriter les parements des façades par la saillie des toits, soit que l'on élevât sur la rue un mur goutterot ou un pignon. Les rues devenant de plus en plus étroites à mesure que les villes devenaient plus riches et populeuses sans pouvoir reculer leurs murailles, on agrandissait les fenêtres pour prendre le plus de jour possible. Mais, à ce sujet, nous devons placer ici une observation. De notre temps, et non sans raison, on aime à éclairer largement les intérieurs des pièces d'une habitation; il n'en était pas ainsi pendant le moyen âge. Les maisons romanes les plus anciennes sont percées de fenêtres relativement étroites et laissent passer peu de lumière, les habitants cherchaient l'obscurité dans les intérieurs avec autant de soin que nous cherchons la lumière; il y avait là encore les restes d'une tradition antique. Au XIIIe siècle, les maisons commencent à prendre des jours plus larges; on veut au moins une salle bien éclairée. Ce goût s'étend à mesure que la vie active, l'industrie et le commerce prennent plus d'importance parmi les populations urbaines. Tous les états avaient besoin de la lumière du jour pour se livrer à leurs occupations. La maison n'était plus le refuge fermé de la famille, c'était encore l'atelier; aussi est-ce dans les villes industrielles que les maisons s'ouvrent largement sur la rue dès la fin du XIIIe siècle.
Malgré la mise à jour des façades des maisons dès cette époque, on ne conçoit guère aujourd'hui comment, dans ces rues étroites, bordées d'habitations dont les étages surplombaient, certaines industries pouvaient s'exercer; cela ne s'explique que quand on a vu, par exemple, les ouvriers en soie de Lyon travailler aux tissus les plus délicats dans des pièces où à peine on croirait pouvoir lire. La vue s'habitue à l'obscurité, et l'excessive lumière naturelle ou factice que nous répandons partout aujourd'hui n'est pas une condition absolue pour travailler à des ouvrages d'une grande finesse. Quoi qu'il en soit, de ces ateliers du moyen âge, qui nous sembleraient si sombres aujourd'hui, sortaient des ouvrages d'orfévrerie, des broderies et des tissus dont, avec toute la lumière que nous nous donnons, nous atteignons difficilement la délicatesse. Ce sont là des questions d'habitude, et de ce qu'un ouvrier s'est habitué dès l'enfance à travailler sous un jour douteux, il ne s'ensuit pas que cet ouvrier est un maladroit. De ce que nos pères voyaient représenter le Cid de Corneille à la lueur des chandelles, il ne faudrait pas en conclure qu'ils appréciaient moins vivement le chef-d'oeuvre du poëte tragique. Laissons donc là, une fois pour toutes, ces reproches adressés aux architectes des maisons du moyen âge d'en avoir fait des réduits sombres, inhabitables; sombres et inhabitables pour nous, soit; mais les citadins de ce temps les trouvaient commodes et suffisamment claires. Cela est indépendant de la question d'art; le plus ou moins de qualité architectonique d'une façade de maison ne dépend pas de la plus ou moins grande largeur de la rue sur laquelle elle s'élève. Nous en avons la preuve tous les jours.

Voici (20) une de ces maisons élevées en maçonnerie et bois que nous avons dessinée à Châteaudun en 1841. Le rez-de-chaussée et le premier étage sont élevés en pierre, les murs mitoyens en moellon; le mur du fond, sur une cour, également en pierre. Au rez-de-chaussée (voir le plan A) s'ouvre sur la rue un vaste magasin avec poteau central et bout de mur de refend B. Une poutre maîtresse porte sur un corbeau de la pile du milieu de la façade, sur le poteau central et sur la tête de ce tronçon de mur de refend; il reçoit le solivage. Un escalier à vis, ajouré, monte au premier et au second étage. Du couloir C, on passe dans la cour D et dans une arrière-salle E. Au premier étage, la distribution est pareille; seulement la poutre maîtresse passe à travers les murs de face et reçoit les entraits de la charpente. Pour obtenir le plus de lumière possible sur la rue, le constructeur a bandé deux arcs de décharge dans l'épaisseur du mur de face, et sous ces arcs il a posé de véritables châssis en pierre très-ajourés. L'étage de comble est divisé en deux pièces dans l'épaisseur du bâtiment. On observera qu'une ferme de la charpente est en saillie sur le mur de face, afin de bien l'abriter. Cette ferme repose sur les bouts des sablières soulagées par des liens et sur l'about de la filière d'axe également soulagée par un lien. Les solivages des planchers sont posés aux niveaux G et H. La construction de cette maison appartient au commencement du XIVe siècle. Toutefois, dans cet exemple, l'étage de comble en bois n'est pas posé en encorbellement.

La figure 21 donne le plan et l'élévation d'une maison de Laval d'une époque un peu plus récente, mais où la structure de bois prend plus d'importance et s'élève en encorbellement sur le rez-de-chaussée. Cette maison, dont la façade s'élève sur une rue ayant une forte pente, est divisée pour deux ménages. La pente de la rue a permis au constructeur de donner un entre-sol A à l'habitant de gauche, les solivages des planchers étant en B et C; l'habitant de droite ne possède qu'un rez-de-chaussée élevé et un premier étage, le solivage du plancher étant au niveau C'. Ainsi que l'indique le plan P, chaque habitant possède son escalier, montant de la boutique au premier. Un pan de bois de refend posé dans l'axe de la façade sépare les deux habitations du haut en bas. Le pan de bois de face du premier étage est en saillie sur le nû du pan de bois du rez-de-chaussée et repose sur trois sablières en encorbellement (voy. PAN DE BOIS). Ce pan de bois du premier étage est abrité par la ferme de tête du comble posée sur les abouts des sablières S. Les poteaux corniers de face ne sont là que pour maintenir le pan de bois sur la rue, car derrière ces poteaux corniers s'élèvent les murs mitoyens en moellon portant cheminées. Ici la maçonnerie de la façade s'arrête à la hauteur du rez-de-chaussée de l'habitation de gauche, et plus bas pour l'habitation de droite. Les pans de bois, comme dans l'exemple précédent, sont hourdés en maçonnerie entre les poteaux, décharges et tournisses.
Ces deux exemples font déjà voir avec quelle liberté les architectes de maisons employaient ces méthodes simples et sensées qu'ils avaient su trouver; profitant de la disposition des lieux, des pentes, de la qualité des matériaux, remplissant les programmes donnés sans s'attacher à des formes de convention, mais cependant observant avec scrupule les principes d'une construction solide et durable. Il fallait bien que ces principes fussent bons pour que des habitations élevées à l'aide de moyens aussi simples et peu dispendieux aient pu durer cinq siècles.
Au moment où le mode des pans de bois en encorbellement semble prévaloir pour les habitations urbaines, ce mode n'est pas soumis au même système de construction dans toutes les provinces composant aujourd'hui la France. Savant, recherché dans les provinces au nord de la Loire, il conserve vers celles du centre et de l'est une apparence primitive. Dans la Bresse, par exemple, les maisons en bois des XIVe et XVe siècles possèdent des pans de bois où le système d'empilage, admis en Suisse encore aujourd'hui, est apparent et se mêle au système de charpente d'assemblage. Ce système de charpente par empilages de bois, outre qu'il appartient à certaines populations dont le caractère ethnique est reconnaissable, est aussi provoqué par l'abondance des arbres résineux, droits, comme le sapin des Vosges, du Jura et des Alpes. S'il est difficile, en effet, d'empiler horizontalement des brins de chêne qui demandent un équarrissement long et pénible, rien n'est plus aisé au contraire que de poser les uns sur les autres des troncs de sapins, naturellement droits et faciles à équarrir. Dans les provinces de l'est et même dans celles du centre, les forêts étaient abondantes et nombreuses au moyen âge; dans la Haute-Loire notamment, dans la Loire et l'Ardèche, partie de l'ancien Lyonnais, les montagnes, arides aujourd'hui, étaient, il y a quatre siècles, couvertes de forêts séculaires, protégées par les lois féodales. Aussi n'est-il pas rare de trouver encore dans ces contrées de vieilles maisons de bois, témoins de l'abondance de cette matière. Dans la petite ville d'Annonay, il existe, ou il existait encore il y a quelques années (car ces vieilles habitations disparaissent comme les feuilles en automne), un petit nombre de maisons des XIVe et XVe siècles presque entièrement construites en bois, dont la construction méritait d'être étudiée, et qui avaient échappé aux incendies du XVIe siècle. Nous donnons (22) l'une d'elles, que nous classons parmi les maisons du XIVe siècle.

Sur un rez-de-chaussée élevé en gros blocs de pierre est posée une épaisse en rayure en sapin, dont le troisième rang forme plancher et déborde sur la face de manière à porter, en encorbellement, le pan de bois du premier, composé sur la face antérieure de trois sablières superposées, jointives, sur lesquelles s'assemblent les montants. Deux poteaux corniers retiennent les extrémités des trois sablières. Latéralement, des pans de bois ordinaires, hourdés en moellon et mortier, forment murs mitoyens. Sur ce premier pan de bois, un second plancher en bascule reçoit un second étage également en pans de bois, surmonté d'un comble très-saillant sur la rue, dont notre figure explique suffisamment la combinaison. La saillie du comble sur le nû du mur du rez-de-chaussée est de 3m50 environ; la façade était donc parfaitement mise à l'abri de la pluie et de la neige; ces habitations étaient ainsi appropriées au climat de cette contrée, chaud en été, très-rude en hiver. Il est facile de reconnaître que ces sortes de maisons en bois ne ressemblent point à celles élevées au nord de la Loire. Il y a là d'autres traditions et aussi d'autres besoins. Le citadin des villes du Lyonnais demandait moins de jour et un abri plus efficace. À Annonay, par exemple, on voulait non-seulement garantir les façades contre les bourrasques de neige, mais aussi les rues montueuses, de manière à faciliter la circulation des habitants en hiver. C'est qu'au moyen âge, quoi qu'en aient pu dire les détracteurs de cette époque, le citadin ne se renfermait pas dans cet égoïsme brutal si général aujourd'hui; en élevant sa maison, il pensait aussi qu'il était citoyen, il bâtissait pour lui et pour sa ville. De notre temps, les règlements de voirie sont établis pour sauvegarder les intérêts communs. Alors les règlements de voirie étaient certainement moins complets et moins prévoyants, mais chaque citoyen pensait un peu plus à l'intérêt général et tenait à assurer le bien-être de tous. Or, cette alliance de l'intérêt général et de l'intérêt particulier, comprise par tous les habitants d'une même ville, est plus intelligente que ne peuvent l'être les règlements les plus complets et les mieux exécutés. Au point de vue de l'art, le résultat est bien autrement intéressant. Il en est de cela comme de la charité privée comparée à la charité publique. Si celle-ci est plus régulière et peut-être plus efficace, la première est plus délicate et intelligente. Mais nous n'avons pas à nous occuper de ce triste côté de notre civilisation moderne, qui semble avoir besoin d'être journellement vantée pour se distraire de comparaisons fâcheuses. Revenons à notre architecture domestique.
Les constructions de maisons par empilages sont mieux caractérisées si nous nous rapprochons des Alpes, Nantua (Ain), on voit encore quelques maisons à peu près de la même époque que celle d'Annonay, donnée ci-dessus, mais dont la structure se rapproche davantage de celle des habitations suisses dites châlets 147.

On retrouve dans ces maisons (23) des traditions fort anciennes. La manière dont les pans de bois du premier étage sont posés sur la maçonnerie, les sablières doublées sous le comble, appartiennent tout à fait à des constructions primitives de certaines peuplades qui n'employaient que le mode de charpente par empilage, tandis que le tracé de la ferme de face formant auvent et certaines parties des pans de bois se rapprochent des charpentes assemblées si fréquentes dans le nord de la France. Il faut se hâter de faire une étude complète et critique de ces vieux débris des habitations du sol des Gaules, car cette étude peut puissamment aider au classement des races répandues sur ce territoire. Les édifices religieux et les châteaux se sont élevés sous des influences souvent étrangères au sol où nous les trouvons aujourd'hui, tandis que les maisons ont conservé très-tard les traditions primitives des populations indigènes. En Angleterre, par exemple, on ne peut méconnaître que toutes les constructions de bois des XIVe et XVe siècles, nombreuses encore, ont une grande analogie avec l'art de la charpenterie navale. Les assemblages des bois, leur force relative, l'emploi fréquent des courbes, reportent sans cesse l'esprit vers les combinaisons de la charpente des navires; tandis qu'à la même époque, dans le nord de la France, nous voyons employer un mode de charpente qui ne se compose que de bois de bout et de traverses avec quelques décharges et croix de saint André; dans l'est, un mode fort ancien et qui appartient plus ou moins à ce noyau de populations qui occupaient tout l'espace compris entre la haute Loire, la Saône, les Alpes et le Jura; dans l'ouest et le midi, un système de charpente très-restreint, et qui ne se compose que de planchers et de chevronnages, laissant le maçon élever les murs de face, latéraux et de refend.
Nous sommes très-porté à croire que les maisons de certaines contrées au moyen âge ne différaient guère de celles élevées par leurs populations avant la domination romaine; les Romains n'ont exercé une influence sur le mode de construire les habitations que dans quelques provinces: dans la Provence, une petite partie du Lyonnais, le Languedoc, la Saintonge, l'Angoumois, le Périgord et une partie de la Bourgogne. Partout ailleurs, des traditions remontant à une haute antiquité s'étaient conservées, et, vers le XIVe siècle, sauf dans la Provence et le Languedoc, il s'est fait une réaction définitivement antiromaine, au point de vue de la structure des habitations. Il semblerait qu'à cette époque, la vieille nation gauloise revenait, en construisant ses habitations, à un art dont les principes étaient restés à l'état latent. La féodalité séculière, loin de comprimer ce mouvement, paraît au contraire y avoir aidé, non certainement par suite d'un goût particulier pour une forme d'art, mais à cause de sa haine sourde pour les institutions monastiques, lesquelles, comme nous l'avons dit plus haut, avaient conservé les traditions gallo-romaines assez pures. Le moyen âge est un composé d'éléments très-divers et souvent opposés; il est difficile, sans entrer dans de longs développements, de rendre compte des effets, étranges en apparence, qui se produisent tout à coup au sein des populations sans cesse en travail. C'est dans l'habitation du citadin et de l'homme des champs, autant que dans l'histoire politique, que l'on trouve les traces du mouvement national qui commença pendant le règne de saint Louis, et qui se continua avec une merveilleuse activité pendant les XIVe et XVe siècles, à travers ces temps d'invasions, de guerres et de misères de toutes sortes. Il semble qu'alors les habitants des villes, qui s'étaient emparés de la pratique des arts, cherchaient dans toutes les constructions à s'éloigner des traditions conservées par les couvents; ils revenaient à la structure de bois, et se livraient aux combinaisons hardies que permet la charpente; ils ouvraient de plus en plus les façades de leurs maisons, de manière à composer les rues de devantures à jour qui semblaient faites pour rendre la vie de tous les citadins commune. Il résultait nécessairement de ce voisinage intime une solidarité plus complète entre les citoyens; sans être obligés de descendre sur la voie publique, ils pouvaient s'entendre, se concerter. Dans certaines rues du XIVe siècle, les habitants des maisons formaient un conciliabule en ouvrant leurs fenêtres. Ce besoin politique, cette entente nécessitée par l'état de lutte de la classe bourgeoise contre les pouvoirs cléricaux et séculiers, explique ces dispositions, qui nous paraissent si bizarres aujourd'hui, de maisons qui, quoique très-ouvertes sur leurs façades, forment des ruelles impénétrables, qui se touchent presque au faîte, en laissant à leur base une circulation très-facile à intercepter. La grande question pour la cité alors, c'était la concentration, la réunion des moyens, l'entente complète à un moment donné; force était donc de grouper les maisons autant que possible et de mettre leurs habitants en communication immédiate. Les façades en charpente se prêtaient bien mieux que celles en maçonnerie à ces dispositions resserrées et à ce système de claires-voies; de plus elles prenaient moins de ce terrain si précieux. Il n'y a donc pas lieu de s'étonner si, parmi les populations urbaines qui ont acquis vers le XIVe siècle des priviléges, une certaine indépendance, qui sont devenues industrieuses et riches, la construction de bois a été presque exclusivement adoptée. Dans les villes du Midi, où les traditions de la municipalité romaine ne s'étaient jamais entièrement perdues, et qui n'avaient pas éte forcées de réagir violemment contre le pouvoir féodal, surtout contre le pouvoir féodal clérical devenu plus lourd pour les cités que la puissance laïque, l'architecture domestique conserva la construction de maçonnerie, des dispositions de rues relativement plus larges, et n'adopta point ces façades entièrement ouvertes qui mettaient, pour ainsi dire, tous les bourgeois d'une cité en contact les uns avec les autres.
Nous venons de dire que le pouvoir féodal clérical pesait plus lourdement alors sur les villes du Nord que tout autre. On se rappelle que (dans l'article CATHÉDRALE) nous avons expliqué comment les évêques, vers la fin du XIIe siècle, préoccupés de l'importance exagérée que prenaient les établissements monastiques, lesquels avaient absorbé à leur profit une grande partie de l'autorité diocésaine d'une part, et désireux d'empiéter sur le pouvoir féodal laïque de l'autre, s'entendirent avec la plupart des grandes villes situées au nord de la Loire 148, pour élever des cathédrales qui deviendraient le monument de la cité, dans lequel les habitants pourraient se réunir à leur gré, traiter des affaires publiques, faire juger leurs procès 149; comment ces évêques espéraient ainsi détruire le pouvoir colossal que s'étaient attribué les abbayes, et amoindrir celui des seigneurs laïques; comment cette tentative, d'abord secondée avec une ardeur extrême par les cités, échoua en partie à la suite de la protestation des quatre barons délégués en 1246 vers le roi Louis IX, et de l'établissement des baillis royaux; comment cependant la bourgeoisie, faisant alliance plus intime avec la royauté dont elle sentait dès lors le pouvoir protecteur, cessa brusquement de subvenir à la construction de ces immenses basiliques, regardées comme une garantie de leurs libertés futures, pour lutter contre le pouvoir féodal de l'évêque et des chapitres, le plus étendu, presque toujours, dans la cité. Cette lutte, soutenue souvent par les seigneurs laïques et tolérée par le pouvoir royal lorsqu'il y trouvait un moyen d'étendre son autorité, eut pour résultat d'entretenir au sein de la population de ces villes une fermentation incessante et de lui donner une idée de sa force si elle se maintenait unie. De là ces habitations si intimement liées, si voisines, toutes construites à peu près sur un même programme suivi jusqu'à la fin du XVe siècle.
Il nous faut toujours pénétrer dans les moeurs du moyen âge lorsque nous voulons avoir la raison de son architecture. Les Romains passaient une grande partie de leur temps dans les monuments publics, dans les basiliques, sous les portiques, dans les thermes et les édifices destinés à des jeux, théâtres, cirques, amphithéâtres, etc. Bien que, de nos jours, les grandes villes contiennent beaucoup de monuments publics, cependant, lorsqu'on jette les yeux sur le plan de la Rome antique, où les monuments occupent une si grande surface relative, on se demande où logeaient les habitants d'une ville aussi populeuse; c'est que les Romains (nous ne parlons pas de ceux qui possédaient des palais immenses dont la surface prenait encore un espace considérable) ne demeuraient guère chez eux que pour prendre leur repas et dormir. Au moyen âge, au contraire, dans les villes du nord de la France, chaque famille vivait dans sa maison; les citoyens n'avaient pas d'occasion de se grouper, et les villes eussent-elles été assez riches pour élever de nombreux édifices publics, que le principe du gouvernement féodal s'y serait opposé. L'église était le seul monument de la cité où la réunion des citoyens fût admise; ainsi s'explique-t-on l'empressement avec lequel les villes populeuses vinrent en aide aux évêques, lorsqu'ils projetèrent de construire les grandes cathédrales. Mais lorsque cet élan fut tout à coup suspendu, la bourgeoisie, trouvant dans le pouvoir royal des garanties sérieuses, se mit à construire des habitations avec une ardeur toute nouvelle, et le bois se prêtait merveilleusement à la satisfaction prompte de ces besoins: rapidité dans l'exécution, économie, et, ce qui importait plus encore, faible surface occupée par les pleins.
Partout ailleurs, jusqu'à la fin du XVIe siècle, l'architecture suit son cours régulier, elle améliore les habitations, les rend plus claires et plus commodes, mais continue à employer les méthodes romaines. La forme seule se modifie. On voit dans la Bourgogne, dans le Lyonnais, dans le Limousin, dans le Périgord, dans l'Auvergne et le Languedoc, des maisons des XIVe et XVe siècles qui ne diffèrent de celles du XIIe et du XIIIe que par leur style d'architecture 150. Ni la structure, ni la disposition de ces habitations ne se modifient d'une manière sensible. Dans des provinces plus méridionales encore et qui, au XIVe siècle, n'étaient pas françaises, on voit élever, à cette époque, des habitations dont le style conservait absolument le caractère roman. Telles sont, par exemple, quelques maisons de la ville de Perpignan; l'une de ces maisons, qui depuis avait été affectée aux service du palais de justice, présente une façade d'un goût presque antique, malgré les détails empruntés au style aragonais de cette époque (24) 151.

Du côté de l'est, les traditions de la construction romane se conservent aussi très-tard dans les habitations, c'est-à-dire jusqu'au XVe siècle. Certaines maisons de Trèves, de Cologne, de Mayence, qui ont été élevées au commencement du XIIIe siècle, pourraient, dans l'Île-de-France et la Champagne, passer pour des maisons romanes. On retrouve même encore dans quelques-unes de ces habitations des dispositions particulières qui n'appartiennent en France qu'au XIIe siècle ou au commencement du XIIIe: telles sont, par exemple, ces cheminées dont les tuyaux sont portés en encorbellement sous les murs de face, à partir du premier étage (voy. CHEMINÉE). Nous donnons (25) la façade d'une des vieilles maisons de la ville de Trèves qui date du commencement du XIVe siècle, et qui montre sa cheminée au milieu du mur pignon sur la rue.

L'âtre est placé ainsi que l'indique le fragment de plan A, et le tuyau, terminé par le couronnement B, repose sur trois consoles en forme de chapiteaux et sur deux petits arcs entre les fenêtres du premier étage. Il devait être assez agréable, en se chauffant, de jouir de la vue du dehors. Des fenêtres ainsi percées permettaient de travailler auprès de la cheminée, et de se chauffer sans être incommodé par la réverbération de la flamme. Les gens de ce temps avaient donc leur confort, et de ce que nous ne saurions nous en accommoder aujourd'hui, il ne s'ensuit pas que le nôtre soit plus sagement entendu. Si primitif que fût ce confort, au moins l'architecture s'y soumettait-elle entièrement, tandis qu'aujourd'hui notre architecture (du moins celle qu'on veut nous persuader être nôtre) est en désaccord perpétuel avec nos habitudes intérieures.
Revenons aux maisons des villes françaises des XIVe et XVe siècles. Le bois domine décidément dans leur construction à dater de cette époque, et généralement ce sont les pignons qui se présentent sur la rue, les terrains propres à bâtir ayant plus de profondeur que de largeur, par cette raison, qui domine toujours dans les villes, que le terrain en façade est le plus recherché. Cependant si le terrain était en bordure, ce qui se présentait quelquefois, les pignons s'établissaient sur les murs mitoyens et le pan de bois de face sur la rue était goutterot. Voici (26) une maison de Beauvais 152 qui présentait cette disposition.

Au rez-de-chaussée était un portique avec boutiques en arrière, ainsi qu'on en voit encore à Reims 153. Le premier étage sur la rue se composait de deux pièces auxquelles on montait par un escalier à vis disposé au fond de l'allée A. Sous le comble était une grande pièce éclairée par deux lucarnes, une sur la rue, l'autre sur une petite cour. Cette habitation datait du commencement du XVe siècle. Il existe encore quelques maisons de ce genre à Orléans, sauf le portique.
Après la guerre de l'indépendance, au XVe siècle, lorsque les Anglais furent contraints d'abandonner le nord et l'ouest de la France, il y eut, sous le règne de Louis Xl, un mouvement prononcé de prospérité au sein des populations urbaines. Des constructions privées s'élevèrent en grand nombre, à Paris, à Reims, à Orléans, à Beauvais, à Rouen, dans toutes les cités de la Normandie, de la Picardie et de l'Île-de-France. Par suite de ce besoin de construire, le terrain acquit une valeur considérable, et tout en laissant une circulation libre à rez-de-chaussée, en supprimant même les portiques dont les piliers ou poteaux étaient un embarras, on posa les façades en encorbellement sur la rue dès le niveau du plancher du premier étage. Ces façades devenaient ainsi de véritables bretèches, larges et donnant aux étages jusqu'à deux mètres de saillie sur le nu du soubassement. Les devantures des boutiques étaient dès lors parfaitement abritées. Ce système de construction était surtout admis au débouché des rues sur les places de marchés, presque toujours entourées de portiques.
On voit encore à Reims 154 une maison dont la façade en pan de bois, parfaitement conservée du haut en bas, est ainsi portée en encorbellement sur cinq fortes potences et est en saillie de 1m,65 sur la voie publique (26 bis). D'un côté, un mur mitoyen A en pierre porte les cheminées, et sa jambe étrière reçoit deux liens.

De l'autre, la mitoyenneté n'est établie que sur un simple pan de bois. Les statues en bois qui étaient rapportées sur le poteau cornier du côté de la jambe étrière de pierre n'existent plus; mais les deux liens inférieurs extrêmes représentent sculptés, en demi-ronde bosse, d'un côté Samson tuant le lion, et de l'autre saint Michel terrassant le démon. Ce pan de bois de face, faisant bretèche, puisqu'il prend un jour latéral, est taillé avec une grande perfection; et il faut, en effet, que ses assemblages aient été parfaitement disposés, puisque la charpente n'a pas subi de déformation, bien que dans toute sa hauteur il n'y ait pas de croix de Saint-André. Les intervalles des poteaux sont hourdés en maçonnerie et enduits.

Voici également (27) une maison de Rouen en pan de bois, à quatre étages, un peu antérieure à la précédente, c'est-à-dire appartenant à la première moitié du XVe siècle, et qui forme angle de deux rues 155. Les pans de bois de chaque étage sont posés en encorbellement les uns sur les autres (voir la coupe A), de sorte que le troisième étage prend une surface sensiblement plus grande que celle occupée par le rez-de-chaussée. La corniche à la base du pignon figure une suite de mâchicoulis.
Au XVe siècle, les fenêtres de ces maisons de bois sont multipliées et petites; cela était une nécessité de construction dès lors que les pans de bois atteignaient une grande hauteur. En effet, ces sortes de constructions, par la nature même de la matière employée, sont sujettes à jouer. De grands châssis de fenêtres eussent été souvent dérangés, comprimés ou gauchis par le mouvement des pièces de bois. Il eût fallu continuellement les démonter et les retoucher, tandis que de petits châssis étaient bien moins sensibles aux changements de température ou suivaient plus aisément les mouvements de la charpente. On remarquera, d'ailleurs, que les alléges de ces fenêtres, soigneusement garnies de croix de Saint-André, empêchaient le déversement des poteaux d'huisseries, et que le poids des pans de bois est reporté sur les poteaux corniers par des décharges à chaque étage. Mais les habitants des villes du Nord cherchent de plus en plus à ouvrir ces façades en bois. À la fin du XVe siècle souvent, ils en font de véritables lanternes, ainsi que le démontre l'exemple ci-contre (28) tiré également d'une maison de Rouen 156. Seules les alléges avec leurs croix de Saint-André arrêtent le roulement du pan de bois, taillé du reste avec toute la perfection d'une oeuvre de menuiserie. C'est que aussi, à cette époque, la maison de bois perd le caractère de construction de charpenterie pour prendre celui d'un meuble, d'un bahut immense.

Dans la figure 28, les hourdis en maçonnerie dans les alléges sont encore apparents; bientôt ces hourdis disparaissent derrière des panneaux de menuiserie, et toute la face de la maison ne présente plus qu'un assemblage de boiseries. C'est d'après cette donnée qu'ont été construites beaucoup de maisons à la fin du XVe siècle et au commencement du XVIe.

La figure 29, qui reproduit une portion d'habitation de l'abbaye de Saint-Amand, à Rouen, laisse voir au-dessus d'un rez-de-chaussée en maçonnerie deux étages de pans de bois entièrement garnis, à l'extérieur, de panneaux de menuiserie sculptés. Lorsqu'un peu plus tard, avec la Renaissance, on en revint aux constructions de pierre, cette habitude s'était si bien conservée que l'on bâtit encore un grand nombre de maisons de bois, mais dans lesquelles cependant on trouve des formes de pilastres et de bandeaux qui n'appartiennent point au système de construction en charpente. Il existe encore dans la rue de la Grosse-Horloge, à Rouen, deux maisons de ce genre qui sont couvertes de détails précieux. Nous donnons (30) une portion de l'une d'elles 157.

Le XVIe siècle vit élever encore quantité de ces maisons si coquettes, dernier reflet de l'art du moyen âge. Après les désastres de la fin de ce siècle, les habitations reviennent à un style plus simple, mais les plans se modifient très-peu et beaucoup de maisons du temps de Henri IV et de Louis XIII reproduisent exactement les plans des habitations antérieures. Ce n'est guère que sous le règne de Louis XIV que les maisons (nous ne parlons pas des hôtels) perdent tout caractère extérieur. Ce sont presque toujours alors des murs unis ou des pans de bois hourdés et crépis, percés de fenêtres carrées, sans rien qui occupe les yeux; mais aussi les intérieurs se modifient profondément.
La salle, que nous retrouvons dans les habitations jusque vers le commencement du XVIIe siècle, fait place à des chambres. Les surfaces sont divisées; chacun veut être chez soi, et les habitudes de la vie en commun disparaissent. On comprend comment une famille s'attachait à sa maison lorsque la salle commune, qui même souvent servait de chambre aux maîtres, avait vu naître et mourir plusieurs générations, avait été témoin des fêtes de l'intérieur, avait été longtemps foulée par des pas amis; on comprend alors comment chaque bourgeois tenait à ce que sa maison fût plaisante, ornée; mais on ne comprend pas le luxe répandu sur des façades de maisons banales dans lesquelles les habitants ne laissent qu'un souvenir fugitif. Naturellement l'aspect de ces maisons doit être banal comme leur usage. Au point de vue de l'art, est-ce là un progrès?
Des exemples d'habitations urbaines que nous venons de présenter dans cet article il ressort une série d'observations intéressantes. Le caractère individuel de ces habitations est frappant; or, nous nous rangeons de l'avis de ceux qui prétendent que l'état moral d'un peuple, sa vitalité est en raison du plus ou moins de responsabilité laissée à chacun. La véritable civilisation, cette civilisation distincte de l'état policé, la civilisation fertile, active, est celle au milieu de laquelle le citoyen conserve la plénitude de son individualité. Les civilisations théocratiques ou despotiques de l'Orient sont destinées à jeter un vif éclat à un moment donné, puis à s'éteindre peu à peu, pour ne jamais plus se relever. Alors, en effet, le citoyen n'existe pas: il y a le souverain, la théocratie ou l'aristocratie; puis un troupeau d'hommes dont le passage est marqué seulement par ces monuments prodigieux tels que ceux de l'Égypte, de l'Inde ou de l'Asie Mineure. Sous un état pareil, la maison n'existe pas; entre le palais et la hutte de terre il n'y a pas d'intermédiaire, et encore toutes les huttes de terre se ressemblent-elles et par la forme et par la dimension. Aux races septentrionales qui émigrèrent en Occident, conduisant avec eux ces grands charriots contenant leurs familles, véritables maisons roulantes que l'on fixait au sol le jour où la tribu avait conquis une place, à ces races seules, les Grecs de l'antiquité en tête, il a été donné de bâtir des maisons, c'est-à-dire des habitations indiquant les habitudes et les goûts de chacun, se modifiant au fur et à mesure des changements qui s'opèrent dans ces habitudes et ces goûts. Le système féodal, bien qu'imposé en France par la conquête, bien qu'anthipatique aux populations gallo-romaines, n'était pas fait pour détruire l'individualisme, la responsabilité personnelle; au contraire, il développait avec énergie ce sentiment naturel aux populations occidentales, il établissait la lutte à l'état permanent, il laissait un dernier recours contre l'oppression par l'emploi du mécanisme féodal lui-même: car tout individu opprimé par un seigneur pouvait toujours recourir au suzerain, et toute municipalité pouvait, en se jetant tantôt dans le parti de l'évêque, tantôt dans celui du baron laïque, ou en les repoussant l'un et l'autre pour se donner au suzerain, faire un dernier appel contre la tyrannie. Ce n'était pas là certainement un état réglé, policé, comme nous l'entendons; mais ce n'était pas non plus un état contraire au développement intellectuel de l'individu. Aussi, l'individu, dans les villes du moyen âge, est quelque chose et, par suite, son habitation conserve un caractère défini, reconnaissable.
Le gouvernement absolu de Louis XIV étouffe presque entièrement ce sentiment si actif encore jusqu'à la fin du XVIe siècle, et la maison du citadin français au XVIIe perd tout caractère individuel. L'habitation des villes devient un magasin de famille. Uniformément bâties, uniformément percées ou distribuées, ces demeures engloutissent les citoyens qui perdent, en y entrant, toute physionomie individuelle et ne se reconnaissent plus, pour ainsi dire, que par des noms de rues et des numéros d'ordre. Aussi nous voyons qu'en Angleterre, où le sentiment de la responsabilité personnelle, de la distinction de l'individu s'est beaucoup mieux conservé que chez nous, les habitants des grandes villes, s'ils possèdent des maisons à peu près semblables comme apparence, les possèdent du moins par familles et ne se prêtent que difficilement à cette réunion de nombreux locataires dans une même habitation. Ce fait nous paraît avoir une signification morale d'une haute importance, et ce n'est pas sans une vive satisfaction que nous voyons de nos jours ce sentiment de la distinction de la famille, de l'individualisme, s'emparer de nouveau des esprits, et réagir contre l'énervant système introduit en France sous le gouvernement de Louis XIV.
Chacun désire avoir sa maison: or, si l'immense majorité des habitants de nos grandes cités ne peut encore satisfaire ce goût à la ville, du moins cherche-t-on à s'affranchir des conditions fâcheuses de la demeure banale, en faisant élever ces myriades de petites maisons suburbaines qui peuplent tous nos environs, et dans lesquelles les familles même peu fortunées peuvent passer une bonne partie de l'année. Ce sera une des gloires du gouvernement actuel de la France d'avoir su prendre les mesures les plus radicales pour provoquer cette tendance saine des esprits: car, selon nous, un État ne pourra se dire moralement civilisé que le jour où chaque citoyen possédera son logis en propre, dans lequel il pourra élever sa famille, où il laissera les souvenirs du bien qu'il a pu faire ou des services qu'il a rendus à ses voisins. Les murs parlent, et tel homme qui fera une action honteuse dans le logement loué qu'il quittera dans six mois hésitera, entre les murs qui lui appartiennent et où ses enfants grandiront, à se livrer à ses mauvais penchants.
Il nous faut parler maintenant des hôtels, c'est-à-dire des maisons de ville qui appartenaient à des seigneurs ou à de riches particuliers et qui occupaient des espaces assez étendus, qui renfermaient des cours et même quelquefois des jardins, mais qui n'affectaient pas les dispositions de défense des palais seigneuriaux, qui n'étaient point munies de tours et de murailles crénelées. Ainsi que nous l'avons dit en commençant cet article, l'hôtel n'avait pas habituellement ses appartements d'habitation sur la voie publique, mais plutôt des communs, des dépendances, quelquefois un simple mur avec porterie. Autant les bourgeois, les marchands, tenaient à participer à la vie journalière de la rue (c'était d'ailleurs pour la plupart d'entre eux une nécessité), autant le noble et le négociant enrichi, menant un grand train, tenaient à se renfermer chez eux, à vivre à la ville de la vie féodale, isolée, n'ayant pas de communications habituelles avec le dehors. Le caractère de l'hôtel, ou, si on l'aime mieux, de la maison noble, diffère donc entièrement de celui de la maison du bourgeois. Ces sortes d'habitations ont dû subir plus de changements encore que les maisons des bourgeois. Occupant des espaces plus considérables, ayant successivement appartenu à des personnages riches, elles ont été modifiées suivant le goût du jour; nous ne trouvons plus en France d'hôtels antérieurs au XVe siècle, ou du moins les débris qui nous en restent n'ont qu'une médiocre valeur.

Un des plus anciens, parmi ces hôtels, se voit encore à Provins; il appartenait à quelque riche chanoine de Saint-Quiriace. Il se compose(31) «de deux corps de bâtiments distincts, séparés par un passage voûté. À gauche se trouvait la grande salle de réception placée au premier étage; on y arrivait de la cour par un escalier extérieur en bois. Trois fenêtres géminées ouvertes sur la façade qui regarde l'église éclairaient cette pièce; elle était chauffée par une grande cheminée en pierre et recouverte par une charpente apparente lambrissée en berceau. À droite du passage se trouvaient la cuisine et deux pièces placées entre cour et jardin et qui servaient à l'habitation 158.»
Dans quelques-unes de ces villes florissantes du Midi, aujourd'hui à peine connues, il existe encore des habitations des XIIIe et XIVe siècles qui participent à la fois de l'hôtel et de la maison. Le riche négociant de ces municipalités des bords de la Garonne, de l'Aveyron, du Tarn et du Lot, au sein desquelles les traditions gallo-romaines s'étaient assez bien conservées, prétendait, lorsqu'il construisait un hôtel, avoir des magasins sur la rue soit pour l'exercice de son propre négoce, soit pour louer. Ces constructions mixtes étaient fréquentes à Toulouse, à Alby, à Saint-Antonin, à Cordes, à Gaillac, à Villeneuve-d'Agen.

Nous donnons (32) le plan d'un de ces hôtels situé dans la grande rue de la ville de Cordes, en face la promenade de la Bride.
À droite et à gauche de l'entrée A, sont des magasins ou boutiques s'ouvrant sur la rue. En B est la cour principale et en C une petite cour de service à laquelle on arrive par un passage D. La salle ouverte E servait probablement d'écurie. F est un cellier. Un large escalier à vis G donne entrée dans la grande salle du rez-de-chaussée H, élevée de sept marches au-dessus du sol de la cour. Un passage I communique à un jardin K, situé en dehors du vieux rempart contre lequel est adossé l'hôtel. Des bâtiments d'une époque récente ont été construits en partie sur le jardin de a en b. Les boutiques LL n'avaient pas accès dans la cour et probablement ceux qui les occupaient logeaient ailleurs, à moins que ces magasins ne fussent à l'usage du propriétaire de l'hôtel. Le grand escalier G monte au premier étage dans une salle située au-dessus de celle H, et communique par un passage en bois M au logis de face dont la surface n'était divisée que par des cloisons. Un second étage s'élève encore sur ce logis de face et est desservi par le grand escalier et un second passage. L'écurie et le cellier ne possèdent qu'un rez-de-chaussée. Une petite terrasse N avec perron donne sur la cour en face de la salle H 159. Cette habitation, qui date des premières années du XIVe siècle, a tous les caractères de l'hôtel du moyen âge, bien que des boutiques s'ouvrent sur la rue et que le bâtiment de face serve de logement au premier et au second étage.
Les renseignements que l'on peut réunir sur les hôtels des XIIIe et XIVe siècles, dans les villes du Nord, ne sont pas assez complets pour nous permettre de donner des plans de ces habitations. Nous constatons seulement qu'elles contenaient des cours, avec portiques sur une ou deux faces, un corps de logis en retraite donnant sur la cour et sur un jardin, et des communs disposés dans le voisinage de la rue. Le plus ancien édifice de ce genre, encore entier, est l'hôtel de Jacques Coeur, à Bourges. C'est sur un fief établi sur les murs qui fermaient la ville que Jacques Coeur éleva cette splendide demeure 160.

Nous en donnons (33) le plan à rez-de-chaussée.
Les tours S, R, Q faisaient partie des remparts de la ville et furent utilisés. Celle S fut couronnée par un riche pavillon crénelé, et un escalier y fut accolé ainsi qu'à la tour Q. La disposition du rempart, formant un angle très-ouvert et sur lequel le mur de face fut monté, obligea l'architecte à donner à ses bâtiments la disposition biaise que nous voyons se reproduire dans la cour. Mais alors on ne songeait guère aux combinaisons symétriques et l'on profitait du terrain autant que cela était possible. L'entrée de l'hôtel est sur la rue en A et se compose d'une porte cochère avec poterne B à côté; l'escalier F monte à la chapelle située au-dessus de l'entrée. Du dehors, il était donc facile d'arriver à cette chapelle sans entrer dans l'intérieur de l'habitation. De l'entrée A, pour les voitures ou pour les cavaliers, et de la poterne B, on pénétrait dans la grande cour C, sous le portique fermé D et sous celui E. Ce dernier portique était ajouré sur une cour G, possédant un puits mitoyen G'. En H est l'escalier principal, donnant entrée, à rez-de-chaussée, dans une grande salle à manger I et dans une galerie de service J, communiquant aux cuisines disposées en K et K'. La cuisine K' possédait un four avec cheminée et fourneau potager. De la rue, on pouvait directement arriver aux cuisines par le couloir L et la petite cour de service L', mise en communication avec la grande cour par le passage L''. La grande salle à manger, chauffée par une immense cheminée c, est accompagnée d'une petite tribune I' destinée aux ménétriers. On arrivait à cette tribune sans passer par la salle mais par l'escalier f Sur l'aire de la salle I s'ouvre une trappe i donnant dans les caves. Cette trappe était-elle réservée au service du sommelier qui pouvait ainsi faire monter directement le vin frais dans la salle au moment des repas, ou bien, comme quelques-uns le prétendent, permettait-elle de jeter dans les caves l'argenterie en cas d'incendie: c'est ce que nous ne saurions décider. La grande cheminée c, de six mètres d'ouverture, était richement décorée; son manteau représentait une ville fortifiée, et des deux côtés deux statues d'Adam et d'Ève nus étaient séparées par l'arbre de science. M était l'office d'où, par un tour m, on faisait passer les plats dressés dans la salle. Le petit escalier droit que l'on remarque dans cet office descendait dans l'étage inférieur de la tour S, qui servait ainsi d'annexe à l'office. Donnant dans la petite cuisine K, est, au-dessous du four, une laverie voûtée et dallée avec gargouille aboutissant à un puits perdu. Des latrines pour les domestiques étaient placées à côté de cette laverie sous le massif de l'escalier. Un escalier n met cette cuisine en communication avec un entre sol de la tour S et un premier étage au moyen de la vis t. La petite cour L' possède un beau puits avec gargouille, permettant de remplir les réservoirs disposés dans la grande cuisine K. Des cuisines on apportait les mets dans l'office par le passage J qui se dégageait sous le grand escalier H. En passant sous l'escalier O, on trouvait un couloir qui mettait la grande cour en communication directe avec la place de Berri P. En TT' sont deux grandes pièces dont la destination n'est pas connue mais qui paraissent, par leur position, avoir dû servir de chambre avec garde-robe disposée dans la tour carrée R. Tout cet angle, compris la tour Q, constitue un appartement complet, indépendant, puisqu'on pouvait de la grande chambre T' descendre dans la petite cour G par l'escalier g, ou monter aux étages supérieurs. La conciergerie était en V. Quant à la galerie D, elle servait de lieu de réunion pour les pauvres auxquels on distribuait les restes de la table de Jacques Coeur. Ces pauvres n'avaient pas ainsi un accès dans l'hôtel et pouvaient attendre, à l'abri, que de la cuisine on leur apportât ce qui leur était réservé. Les escaliers X, H, O, g montent de fond et desservent les étages supérieurs.
Si ce plan est irrégulier, on doit reconnaître que sa disposition est bien entendue. Chaque service est à sa place, les communications entre eux sont faciles et cependant ils sont indépendants. À la droite de l'entrée, service de cuisine avec sa cour, sa sortie particulière et son grand portique de distribution d'aumônes. En face, l'escalier principal pour les appartements supérieurs et la salle à manger du rez-de-chaussée. À gauche, appartement complet, indépendant, avec sa cour et son portique, permettant d'entrer ou de sortir à couvert. Beaucoup d'hôtels du XVIIe siècle sont loin de présenter des distributions aussi commodes et aussi bien étudiées.

La figure 34 trace le plan du premier étage de l'hôtel de Jacques Coeur. L'escalier principal A donne entrée dans la grande salle B, qui possédait une estrade comme les grandes salles des châteaux. Les appartements d'habitation étaient en C; ils étaient mis en communication avec la grande salle B et avec la galerie D par des couloirs de service et des issues directes. De la galerie D on se rendait à la chapelle E, à laquelle aussi on montait directement du vestibule inférieur par l'escalier F. Une autre galerie G mettait également la chapelle en communication avec la salle J et l'appartement séparé K, lequel possédait un escalier L particulier. Le service de l'appartement principal C se faisait par l'escalier M ou par l'escalier X. Le salon I trouvait une issue par l'escalier N; la grande salle B elle-même, outre le grand escalier, était desservie par le second escalier O. Au premier étage comme au rez-de-chaussée, les divers services de cet hôtel étaient rendus indépendants, et les pièces destinées aux réceptions ne pouvaient gêner les dispositions privées des habitants. Comme dans les châteaux, on voit que le programme obligeait l'architecte à trouver des combinaisons de plans très-compliquées pour satisfaire aux goûts ou aux besoins particuliers du propriétaire. Il est certain que ces dégagements nombreux, dissimulés, paraissaient indispensables, et que l'on sacrifiait toute idée de symétrie aux nécessités de l'habitation, telles qu'on les comprenait alors. On observera que les appartements destinés à l'habitation se composent, outre les grandes pièces, de nombreux réduits, cabinets, garde-robes, qui ne laissaient pas d'être fort commodes; que toutes ces pièces, grandes et petites, sont éclairées.
Jacques Coeur, en utilisant les tours gallo-romaines des remparts, n'avait peut-être pas été fâché de donner à son hôtel un aspect de domaine féodal, et c'est, en grande partie, la conservation de ces tours qui a nécessité les irrégularités de ce plan. L'architecture adoptée se prête d'ailleurs à ces défauts de symétrie, et rien n'est plus pittoresque, plus brillant, que cet intérieur de cour, avec ses tourelles d'escaliers, ses combles distincts surmontés de tuyaux de cheminée, d'épis, de lucarnes, de faîtages de plomb, autrefois dorés et peints.

Nous présentons (35) une vue cavalière de cet hôtel, prise du point P' (voir le plan du rez-de-chaussée). La construction est partout traitée avec un soin extrême et la sculpture d'un charmant style, appropriée à chacun des services, entremêlée d'emblèmes, de devises, de coeurs, de plumes et de coquilles. Ainsi, au-dessus des trois baies de l'escalier de la chapelle, dans les tympans, le sculpteur a placé un prêtre revêtu de l'aube, se disposant à la bénédiction de l'eau; derrière lui un jeune clerc sonne la messe; puis vient un mendiant, appuyé sur une béquille, comme pour indiquer que le lieu saint est accessible à tous. Le second bas-relief représente des clercs préparant l'autel. Le troisième, des femmes qui arrivent à l'office, précédées d'un enfant qui ouvre une porte. En haut de l'escalier est un quatrième bas-relief représentant le Père Éternel avec deux anges en adoration. Au-dessus de la porte de l'escalier, côté des cuisines, est sculptée une large cheminée devant laquelle pend un coquemard; un enfant tourne la broche, une femme lave des plats, et un cuisinier pile des épices dans un mortier.
Parmi les devises gravées sur quelques tympans, ou peintes sur des vitraux, on lit celle-ci: «A coeurs vaillants riens impossible.» Puis ces mots énigmatiques: «Dieu. faire. taire. de. ma. joie.» ou bien encore ce dicton: «En bouche close n'entre mousche.» Jacques Coeur avait adopté pour armes: d'azur à la fasce d'or chargée de trois coquilles de sable, accompagnée de trois coeurs de gueule posés, 2 en chef, 1 en pointe.
Les voûtes de la chapelle sont entièrement peintes; dans chacun des triangles de cette voûte est un ange vêtu de blanc, tenant un phylactère et se détachant sur un fond bleu étoilé d'or. Ces peintures sont d'une bonne exécution et passablement conservées. On sait combien l'illustre négociant parvenu du XVe siècle paya cher ces magnificences. L'homme est une des individualités les plus remarquables de notre pays. Cette habitation est donc un édifice intéressant à tous les points de vue, parmi ceux de ce genre que nous possédons en France 161.
Nous allons arriver à la fin du XVe siècle, et décrire l'un des plus charmants hôtels de ce temps, si riche en constructions de ce genre.
Il existait encore, en 1840, rue des Bourdonnais, un hôtel dit de La Trémoille; c'était un fief régulier, créé à Paris sous Charles VI et relevant directement du roi, plus tard de l'évêque. Il fut rebâti, tel que nous l'avons vu, vers 1490, par Louis de La Trémoille, né en 1460. Ce fut ce Louis de La Trémoille qui prit le duc d'Orléans à la bataille de Saint-Aubin-du-Cormier en 1488; ce qui n'empêcha pas le Valois, devenu roi de France, de lui confier le commandement de l'armée du Milanais en 1500. Il fut tué à la bataille de Pavie. Voici (36) le plan du rez-de-chaussée de cet hôtel.

La porte d'entrée A, accompagnée de sa poterne a, s'ouvrait sur la rue des Bourdonnais; elle donnait entrée dans une cour assez spacieuse, possédant près de l'entrée un portique avec retour du côté droit. Au fond, s'élevait le logis principal. Sous une tourelle, portée sur deux colonnes à gauche, en B, était un passage mettant la cour en communication avec un jardin qui s'étendait jusqu'à la rue Tirechappe et qui, de ce côté, possédait une porte charretière avec communs à droite et à gauche pour les équipages et chevaux. Un grand perron C donnait entrée dans la grande salle D, dans l'escalier principal E, dans la salle F par la porte G et dans la petite pièce voûtée H, en descendant quelques marches. Continuant à descendre, on arrivait aux caves, bien voûtées et spacieuses. Une autre porte I, avec perron et montoir K, permettait de pénétrer directement de la cour dans les deux pièces M et L. Un second escalier N, de service, montait aux étages supérieurs et desservait même les combles. En O était une petite cour avec puits. Les cuisines et leurs dépendances se trouvaient en P; elles étaient en grande partie détruites et enclavées dans une propriété voisine. Un portique R, se reliant à celui de l'entrée du côté de la rue Tirechappe, permettait de passer à couvert de cette cuisine et des communs dans le logis principal en traversant le palier inférieur de l'escalier de service, et d'arriver ainsi à la salle à manger D. La conciergerie était disposée du côté de la rue Tirechappe en V. En Y, on découvrit un égoût fort bien construit, qui autrefois conduisait les eaux pluviales et ménagères sous cette rue. Au premier étage, la distribution du grand logis était la même que celle du rez-de-chaussée; le mur de refend b se trouvait cependant supprimé, les deux salles L et M profitaient de la largeur du passage B, et cette dernière donnait entrée dans l'oratoire ou cabinet placé dans la tourelle d'angle. Le portique Q ne formait, au premier, qu'une seule galerie coudée depuis le point S jusqu'au point T. Cette galerie, largement éclairée sur la cour, n'était percée sur la rue que par trois petites fenêtres. Le grand logis seul, entre cour et jardin, possédait un second étage desservi par les deux escaliers E, N. Le bâtiment des cuisines, les communs et le portique R n'avaient qu'un rez-de-chaussée. En X, nous donnons un ensemble de l'hôtel de La Trémoille avec les développements du jardin et des bâtiments des communs.
L'architecture de cet hôtel était une des plus gracieuses créations de la fin du XVe siècle. La tourelle de gauche, le grand escalier, les portiques avec leur premier étage, n'avaient subi que de légères mutilations. Quant à la façade du logis sur la cour, elle avait été fort gâtée, mais tous les éléments de sa décoration subsistaient par parties sous des plâtrages modernes. Du côté du jardin, la façade était très-simple. Ce qu'on ne pouvait trop admirer dans cette charmante architecture, c'était le goût délicat qu'y avait déployé l'architecte. L'assemblage des parties lisses et des parties décorées était des plus heureux. Tout cela fut jeté bas en 1840. De concert avec la commission des Monuments historiques, nous fîmes alors les plus pressantes sollicitations pour conserver ce chef-d'oeuvre. Toutefois, nous ne pûmes obtenir autre chose que le transport de quelques fragments à l'École des beaux-arts, où on les voit encore enclavées dans le mur de gauche en entrant.

Nous donnons (37) la façade du grand logis comprise entre la tourelle et l'escalier 162.
Tout le monde connaît l'hôtel de Cluny, qui contient aujourd'hui le musée des objets du moyen âge et qui est bâti sur les thermes de Julien; cet édifice est du même temps que l'hôtel de La Trémoille et présente une disposition analogue. Sur la rue des Mathurins, s'élève un mur de clôture crénelé, le logis est situé entre cour et jardin. Nous empruntons à M. le baron de Guilhermy cet aperçu sommaire de l'histoire de cet hôtel 163:
«Dans la première moitié du XIVe siècle, vers 1340, Pierre de Chaslus, abbé de Cluny, acheta l'emplacement du palais des Thermes, dans l'intention d'y construire un logis rapproché du collége que son abbaye possédait en face de la Sorbonne. Ce projet ne paraît pas avoir été suivi d'exécution; car ce ne fut qu'à la fin du XVe siècle que Jean de Bourbon, un des successeurs de Pierre de Chaslus, entreprit la construction de l'édifice qui subsiste encore. Quand ce prélat mourut, en 1485, les fondations sortaient à peine de terre. Jacques d'Amboise, qui réunissait en même temps les titres d'évêque de Clermont, d'abbé de Cluny, d'abbé de Jumiéges et d'abbé de Saint-Alyre, reprit, en 1490, l'oeuvre de son prédécesseur et la conduisit jusqu'à son entière perfection.»
Plus heureux que l'hôtel de La Trémoille, l'hôtel de Cluny fut conservé, grâce à la collection que Dusommerard sut y réunir et à la réputation européenne qu'acquit bientôt ce musée d'objets du moyen âge. En 1842, l'État acheta cet hôtel et la collection qu'il renfermait, se fit céder par la ville de Paris les restes des Thermes de Julien, et aujourd'hui cet ensemble est devenu le rendez-vous de toutes les personnes qui prennent quelque souci des choses du passé 164.

Nous donnons (38) le plan du rez-de-chaussée de cet hôtel. Le logis d'habitation est plus vaste que celui de l'hôtel de La Trémoille, mais le jardin était moins étendu. En A est la porte principale sur la rue des Mathurins-Saint-Jacques avec sa poterne A'. La conciergerie est en B; puis s'élève un portique C qui donne entrée dans les pièces H du rez-de-chaussée, pièces dans lesquelles on entre également par le grand escalier F et par une petite porte f. La cuisine est en D, avec son perron, et son escalier particulier P, ayant à la fois issue au dehors, sur le sol de la cuisine et dans la salle H'. Une porte g donne directement entrée de la cour dans cette cuisine. En I, est une pièce en retour sur le jardin avec escalier d'angle R, ayant porte sur le jardin, porte sur cette salle I et sur la galerie L. En K est une salle ouverte, sorte de préau couvert sous la chapelle située au premier étage. F est une cour avec entrée O dans l'une des salles antiques des thermes. M est également une salle antique dans laquelle probablement étaient disposées les écuries. La galerie L communiquait autrefois à des latrines. Le mur sur la rue est crénelé et était muni d'un chemin de ronde en bois porté sur des corbeaux détruits aujourd'hui et remplacés par des potences en fer. Un petit escalier S permet de descendre de la salle I dans le préau couvert K et de monter directement à la chapelle. Le jardin G, de 17 mètres de largeur sur 35 mètres de longueur environ, était bordé par des propriétés particulières. L'escalier principal F est terminé par une plate-forme à laquelle on arrive par un petit escalier à vis partant de l'étage sous comble. L'hôtel de Cluny, comme celui de La Trémoille, possède des caves, un rez-de-chaussée, un premier étage et un étage sous comble mansardé. Les constructions sont assez bien conservées. Les planchers anciens, formés de poutres recevant un solivage, sont encore apparents, et plusieurs des cheminées datent de la construction primitive. Bien que l'architecture des logis n'ait pas l'élégante délicatesse de l'hôtel de La Trémoille, cependant elle ne manque ni de grâce ni de style. Les fenêtres sont heureusement percées, les escaliers très-habilement disposés et la chapelle est un petit chef-d'oeuvre. Elle possède une absidiole portée en encorbellement sur la pile extérieure du préau couvert. Comme ce préau, elle est voûtée, et ses quatre voûtes en arcs d'ogives portent sur une colonne centrale 165. La figure 39 donne la vue cavalière de cet hôtel, prise du côté de l'entrée.

Il existe encore à Paris un hôtel de la fin du XVe siècle: c'est l'hôtel de Sens, qui servait de résidence aux archevêques de Sens lorsqu'ils séjournaient à Paris 166. Cet hôtel est situé au carrefour formé par la rencontre des rues de l'Hôtel-de-Ville, du Figuier, de l'Étoile, des Barrés et du Fauconnier. Il fut élevé par l'archevêque Tristan de Salazar, de 1475 à 1519. Les mutilations nombreuses qu'il a subies lui ont enlevé presque entièrement son caractère.
On voit encore de jolis hôtels de la Renaissance et du commencement du XVIIe siècle dans quelques villes de province. L'hôtel de Pincé, à Angers, est un charmant édifice du XVIe siècle; celui de Vauxluisant, à Troyes, qui date des premières années du XVIIe siècle, est remarquable par son plan et les heureuses silhouettes de ses bâtiments. À Toulouse, il reste encore bon nombre d'hôtels du XVIe siècle. L'oeuvre de Ducerceau (Les maisons des villes) présente de nombreux exemples de bons plans et de bâtiments d'un goût excellent.
Si les maisons, pendant le XVIIe siècle, ne furent plus guère que des logis banals, dans lesquels il est difficile de trouver la trace d'un art, il n'en fut pas de même des hôtels. Sous les règnes de Henri IV, de Louis XIII, de Louis XIV et de Louis XV, Paris, Lyon, Toulouse, Bordeaux, Caen, Nantes, virent élever quantité de beaux hôtels, qui conservaient encore la disposition des habitations des nobles et riches bourgeois du moyen âge et de la Renaissance. Les hôtels Lambert, Carnavalet, de Mazarin (Bibliothèque impériale), de Pimodan, de Soubise (archives de l'Empire), sont encore des modèles de grandeur et de bon goût qui font quelque tort à tout ce que l'on fait en ce genre de nos jours. C'est qu'il est plus facile d'acquérir la richesse que le sentiment de la grandeur et le goût.
Note 124: (retour) Hist. Franc. Lib. IV, cap. XXXVI.
Note 125: (retour) Ibid. Lib. VIII, cap. XLII.
Note 126: (retour) La figure 1 reproduit une maison sculptée sur un chapiteau de l'église de Vézelay, antérieur à la reconstruction du commencement du XIIe siècle. La figure 2 donne une maison copiée sur un chapiteau du cloître de Moissac (XIIe siècle).
Note 127: (retour) Lettre XXII.
Note 128: (retour) Il faut dire toutefois que l'élément slave a modifié profondément ces constructions dans le Tyrol; cependant on y reconnaît encore la trace de ces charpentes indo-germaniques, caractérisées dans les monuments manuscrits.
Note 129: (retour) D'après des plans recueillis particulièrement en Bourgogne, dans le Nivernais et la haute Champagne.
Note 130: (retour) Cette disposition est fréquente dans les contrées où la pierre est belle et abondante, comme en Bourgogne et la haute Champagne; elle était adoptée, bien entendu, lorsque les maisons appartenaient à des particuliers n'ayant pas besoin de boutiques sur la rue. On voit des restes de ces maisons avec escalier et palier fermé à Vézelay, à Montréale (Yonne). Nous avons également pu reconnaître ces dispositions dans des habitations de Montbar, de Semur, de Châtillon-sur-Seine, d'Arc-en-Barrois, de Château-Villain, de Joinville. Il existe encore des rez-de-chaussées de ce genre parfaitement conservés dans certaines villes d'Italie et particulièrement à Viterbe (voyez l'Architecture civile et domestique de MM. Verdier et Cattois).
Note 131: (retour) L'usage de laisser les portes des rez-de-chaussées ouvertes dans les temps tranquilles, et lorsque la température n'était pas trop rude, est un usage antique qui s'est perpétué très-tard. Ces portes étaient alors simplement masquées par un rideau. Les vignettes des manuscrits et les vitraux indiquent toujours ce genre de fermeture.
Note 132: (retour) Ayant trouvé quantité de ces rez-de-chaussées de maisons du XIIe siècle surmontés d'étages modernes en maçonnerie, nous avons été induit à penser que les premiers étages étaient construits légèrement dans l'origine. C'est alors qu'examinant les têtes des murs de refend qui seules restaient anciennes dans ces constructions, nous avons pu constater la trace des pans de bois de face portés en encorbellement et affleurant la saillie de ces sortes de contre-forts élevés sur le prolongement des murs mitoyens.
Note 133: (retour) Nous avons trouvé des traces de ces peintures sur des bois déposés et reposés dans des constructions des XIVe et XVe siècles, particulièrement sur des chevrons de combles retaillés.
Note 134: (retour) Hist. Franc. Lib. IX, cap. XXXVIII.
Note 135: (retour) Voy. l'Architecture domestique de MM. Verdier et Cattois. M. Verdier a relevé quelques-unes de ces jolies maisons.
Note 136: (retour) Nous citerons parmi ces bastides bâties d'un seul jet, de 1260 à 1330, celles d'Aigues-Mortes, de Carcassonne (ville basse), de Libourne, de Villeneuve-d'Agen, de Villefranche-de-Rouergue, de Montflanquin, de Valence, de Castillonnès, de Sauveterre, de Puyguilhem, de La Sauvetat, de Villeréal en Agénais, de Villefranche-de-Belvès, de La Linde, de Beaumont, de Domme, de Sainte-Foy (Gironde), de Ville-franche-de-Longchapt, de Molières et de Montpazier dans le bas Périgord; de Mont-Ségur, de Belin, de Cadillac, de Saint-Osbert, de Créon, dans les environs de Bordeaux (voy, les articles sur l'Architec. civile du moyen âge, par MM. Félix de Verneilh et Victor Petit; Annales archéologiques, t. VI, X, XI et XII.) Dans le nord de la France, nous citerons encore les villes de Villeneuve-le-Roi, de Villeneuve-l'Archevêque; toutes ces bastides présentent des plans réguliers tirés au cordeau, avec places, marchés, églises, fontaines et remparts, maisons avec ou sans allées couvertes, mais bâties d'après un lotissement égal. Nous savons que ces faits dérangent quelque peu les théories sur l'irrégularité et le désordre systématiques que l'on prête aux constructions civiles du moyen âge; mais nous ne pouvons qu'engager les archéologues à visiter ces localités, s'ils veulent prendre une idée de ce qu'était une petite ville du XIIIe siècle, élevée, sur un plan arrêté, dans un espace de temps très-court. Comme le dit si bien M. F. de Verneilh: «Dans la seconde moitié du XIIIe siècle et dans une région très-limitée de la France, en Guienne et en Languedoc, cinquante villes peut-être se sont fondées sans que nos historiens aient donné la moindre attention à cette grande oeuvre de civilisation et de progrès. Au moins vingt de ces bastides, les plus récentes et les plus parfaites, sont dues à la domination anglaise, et l'histoire des Sismondi et des Guizot ne parle pas de ce bienfait toujours actuel, quoiqu'il date de six siècles. Si, au lieu de fonder tant de villes, Édouard Ier en avait violemment détruit une seule, tous nos livres retentiraient encore de ce fait d'armes. Mais l'histoire du moyen âge est ainsi faite...» Ajoutons que ces renseignements précieux, recueillis par un de nos plus savants archéologues français, ne paraissent pas avoir été consultés par M. Champollion-Figeac, qui, s'étendant longuement sur les constructions urbaines du moyen âge dans son traité des Droits et usages, et entamant la question d'architecture sans avoir eu le loisir d'aller visiter quelques-unes de ces constructions civiles, nous demande où nous avons pris les plans d'Aigues-Mortes, de Villeneuve-le-Roi, de Sainte-Foy et de Montpazier! et si l'exécution répondit aux projets! qui nous demande encore de lui démontrer l'ancienneté des maisons de la ville de Cluny... Mais ne pourrions-nous, avec bien plus de raison, lui demander de nous démontrer l'authenticité des textes qu'il prend la peine de transcrire? Ces villes sont debout, habitées, et en quelques jours chacun peut les voir avec leurs vieilles rues alignées, les restes de leurs remparts, leurs places et leurs églises; quant aux projets de leur plantation, il serait intéressant de les retrouver sans doute, bien que cette découverte ne pût rien ajouter à l'importance du fait de l'existence de ces villes qui, depuis six siècles, n'ont pas cessé d'être habitées.
Note 137: (retour) On observera que cet usage s'est conservé à Londres.
Note 138: (retour) Saint Louis acheta du comte de Toulouse la ville de Saint-Antonin, moyennant 1,500 livres tournois. La maison que nous donnons est un peu postérieure à l'époque de cette acquisition.
Note 139: (retour) Voir l'ouvrage de M. Champollion-Figeac, Droits et usages, déjà cité. Si un homme d'une érudition profonde partage ces préjugés, on ne doit pas s'étonner de les voir répandus dans le vulgaire.
Note 140: (retour) Il existe encore sous cette maison denx étages de caves fort belles.
Note 141: (retour) Cette maison appartient à M. de Maleville, qui a bien voulu nous promettre de ne point la vendre ni la détruire. Les boutiques du bas ont été bouchées et les fenêtres du premier étage modifiées au XVe siècle, mais on retrouve parfaitement le plan et la forme des fenêtres primitives. Celles des deux étages supérieurs sont conservées.
Note 142: (retour) Voyez dans l'ouvrage de MM. Verdier et Cattois, l'Architecture civile et domestique, quelques maisons des provinces méridionales, notamment celle du Veneur, à Cordes. On voit sur la façade de la maison Caussade, donnée ici, des anneaux scellés aux jambages des fenêtres pour porter les perches et les bannes, préservatives du soleil.
Note 143: (retour) Plusieurs fois déjà il a été question de démolir cette belle maison, le plus intéressant des édifices civils de Reims. En attendant cette démolition, l'un des propriétaires (car la façade appartient à deux particuliers) a le soin de faire peindre à l'huile tous les deux ou trois ans sa façade, compris les statues. Si cette maison doit être démolie, il serait bien à souhaiter que la façade pût être replacée à Reims même; certes, le sacrifice minime que la ville s'imposerait alors serait bien largement compensé par l'intérêt que présente la conservation de cette oeuvre d'art.
Note 144: (retour) Il faut être vrai, l'excès, en France, amène bientôt la réaction, et tout porte à croire que les orgies de symétrie auxquelles on s'est livré depuis le commencement du siècle, et particulièrement depuis quelques années, conduiront à un soulèvement universel contre cette façon barbare de comprendre l'art de l'architecture.
Note 145: (retour) Voy. les Annales archéologiques, t. VI, p. 71. Peu d'archéologues ont fait, de notre temps, des études aussi complètes et riches de fait que M. Félix de Verneilh, en ce qui regarde les villes du moyen âge particulièrement.
Note 146: (retour) À Montpazier, les propriétés possèdent toutes leurs murs latéraux. Il n'y a pas de murs mitoyens. Cette disposition est même conservée autour de la place, là où existe un portique: c'est une exception à la règle.
Note 147: (retour) La construction des châlets est des plus intéressantes à étudier, et c'est une de celles qui se rapprochent le plus, en Europe, des structures en bois des âges primitifs.
Note 148: (retour) Noyon, Senlis, Paris, Bourges, Chartres, Rouen, Sens, Arras, Amiens, Cambrai, Troyes, Reims, Laon, Soissons, Beauvais, Auxerre, etc.
Note 149: (retour) Par suite de ce raisonnement «que l'Église, en vertu d'un pouvoir que Dieu lui a donné, doit prendre connaissance de tout ce qui est péché, afin de savoir si elle doit remettre ou retenir, lier ou délier.» C'était là un empiétement sur le pouvoir judiciaire de la féodalité laïque en masse.
Note 150: (retour) Voy. l'Architecture civile et domestique, de MM. Verdier et Cattois.
Note 151: (retour) Les colonnettes des fenêtres du premier étage de cette maison sont en marbre; le reste de la façade est construit en pierre et en petit moellon. On remarquera l'appareil exagéré des claveaux de la porte centrale, les plates-bandes des baies latérales du rez-de-chaussée. Il y a là les restes de traditions qui sont bien éloignées de celles des provinces du Nord.
Note 152: (retour) Cette maison existait encore sur la place de Beauvais, côté oriental, en 1834.
Note 153: (retour) D'une époque plus récente.
Note 154: (retour) Place des Marchés.
Note 155: (retour) Rue de la Tuile. Le dessin de cette maison nous a été fourni par M. Devret, architecte, qui, au salon de 1861, a exposé plusieurs habitations anciennes de Rouen et d'Orléans relevées avec un soin extrême. Le ministre d'État, sur la demande de la commission des monuments historiques, a fait relever aussi un certain nombre de ces maisons d'Orléans par M. Vaudoyer.
Note 156: (retour) Rue Malpalu. Nous empruntons encore ce dessin au travail de M. Devret.
Note 157: (retour) Ces maisons, qui font aussi partie du travail de M. Devret, vont prochainement disparaître par suite du percement d'une nouvelle voie. Il serait à désirer que ces précieuses façades fussent déposées, à l'abri des intempéries, dans quelque monument public de la ville de Rouen.
Note 158: (retour) Voy. l'Archit. civ. et domest. par MM. Verdier et Callois, t. II, p. 205.
Note 159: (retour) Ces plans ont été relevés par M. Thomas, ex-architecte du Tarn. M. Thomas a fait sur les maisons de Cordes un travail intéressant déposé aux archives des Monuments historiques.
Note 160: (retour) Par une charte de 1224, Louis VIII permit aux habitants de Bourges de bâtir sur les remparts. Plusieurs tours et courtines devinrent ainsi des propriétés privées. En 1443, Jacques Coeur acheta de Jacques Belin, moyennant 1,200 écus, le fief comprenant deux tours des remparts de Bourges sur lequel il bâtit son hôtel. (Voy. les Antiq. et les monuments du Berry, par Hazé. 1834.)
Note 161: (retour) Ce charmant édifice, converti en palais de justice, avait subi de nombreuses mutilations. Placé aujourd'hui entre les mains d'un de nos confrères les plus distingués, M. Bailly, nous sommes assurés qu'il sera restauré avec le soin et le respect qu'il mérite.
Note 162: (retour) Voyez, pour les détails de cette tourelle et de l'escalier, l'Archit. civ. et domest. de MM. Verdier et Cattois, t. II.
Note 163: (retour) Voy. Itinéraire archéol. de Paris, Paris, 1855.
Note 164: (retour) M. Edmond Dusommerard, fils du fondateur de la collection, est depuis 1843 conservateur de ce musée qui, grâce à son intelligente direction, s'accroît chaque jour et est un des plus riches de l'Europe.
Note 165: (retour) Voir, pour les détails de cet hôtel, la Statistique monumentale de Paris, publiée par M. A. Lenoir, sous la direction du ministère de l'instruction publique.
Note 166: (retour) L'évêché de Paris fut, jusqu'au XVIIe siècle, suffragant de l'archevêché de Sens.
MAISONS DES CHAMPS.--Ainsi que nous l'avons dit en commençant cet article, il ne faut pas confondre la maison des champs avec le manoir. Le manoir est l'habitation d'un gentilhomme, d'un chevalier, qui ne possède pas les droits seigneuriaux de haute et basse justice, mais qui est propriétaire terrien et qui n'a d'autre redevance à fournir au seigneur que le service militaire personnel (voy. MANOIR). La maison des champs, la masure, est l'habitation du fermier, du colon, du métayer, du bordier, du paysan. Les habitants des campagnes renouvellent moins souvent que ceux des villes leurs demeures, d'abord parce qu'ils sont plus pauvres, puis parce que leurs besoins varient peu. Un citadin de nos jours n'a rien conservé des habitudes de son aïeul, tandis qu'un paysan, au milieu du XIXe siècle, vit à peu près comme vivait celui du XIVe. Aussi, plus on descend les degrés de l'échelle et moins on trouve de différences entre les demeures des champs du moyen âge et celles de notre temps. En parcourant les campagnes de nos provinces françaises qui ont été particulièrement soustraites au contact des habitants des grandes villes, comme certaines parties du Languedoc, la Corrèze, l'Auvergne, le Berry, la Saintonge, la Bretagne, la Haute-Marne, le Morvan, le Jura et les Vosges, on découvre encore des habitations séculaires qui n'ont été que bien légèrement modifiées et nous fournissent, très-probablement par transmission, des exemples des demeures des campagnards gallo-romains.
En effet, dans ces habitations, on reconnaît l'emploi de certains procédés de construction qui conservent tous les caractères d'un art naïf, et si la matière est brute, si la main-d'oeuvre est grossière, l'application du principe est vraie et parfois tout empreinte de ce charme qui s'attache aux arts primitifs, pour qui sait voir. Il existe encore, au milieu des bois du Morvan, certaines demeures de paysans dans lesquelles un campagnard éduen, s'il revenait après dix-huit siècles, ne trouverait nul changement; et nous avons vu même, sur les bords de la Loire, de la Seine et dans les Vosges, des paysans demeurant dans des grottes creusées de mains d'hommes, qui sont conservées telles que les armées romaines ont pu les voir. La variété de ces demeures des champs sur le sol de la France est une des preuves de la conservation de traditions reculées; car si toutes nos maisons des villes se ressemblent aujourd'hui, il n'en est pas ainsi dans les campagnes, et la chaumière du Picard ne ressemble point à celle du Breton; celle-ci diffère essentiellement de la cabane du Morvandiau, qui ne rappelle en rien celle du Franc-Comtois, de l'Auvergnat ou du Bas-Languedocien.
Il nous est arrivé de nous arrêter dans certains villages de France, où chaque maison, faite sur un patron unique, conservait un caractère d'âpreté primitive fort éloigné de notre civilisation moderne, où tout tend à perdre sa physionomie propre. On ne s'attend pas, pensons-nous, à ce que nous donnions ici des maisons de paysans classées par époques certaines, comme nous avons pu le faire pour les habitations urbaines. La transmission de quelques types admis, depuis des siècles, interdit d'ailleurs ce classement. Puisque nous sommes amenés à croire que certaines provinces n'ont pas cessé d'élever les mêmes maisons rurales depuis l'époque de l'invasion des barbares, il est évident que nous pourrions difficilement distinguer une habitation du Xe siècle d'une autre du XIVe. Nous nous contenterons donc de fournir quelques-uns de ces types bien caractérisés, sans leur assigner une époque précise, et cela d'autant moins, que ces constructions, faites en général à l'aide des plus faibles ressources, n'ont pu résister à l'action du temps et n'ont conservé ce caractère primitif que par la reproduction des mêmes procédés, l'emploi des mêmes matériaux et la conformité des habitudes. Toutefois, les maisons rurales les plus anciennes, ou du moins celles qui paraissent avoir subi le moins d'altérations, appartiennent aux contrées du Centre et de l'Est. Dans le Morvan, la vieille maison du paysan ne présente à l'extérieur qu'une masse de pierres amoncelées. Des murs élevés en gros blocs de granit percés de petites ouvertures, un rez-de-chaussée très-bas, servant de cellier, de dépôt, de poulailler ou de porcherie. Porte élevée d'un ou deux mètres au-dessus du sol avec escalier et palier engagé dans la muraille; plafond formé de grosses poutres avec solivage. Grenier au-dessus protégé par une lourde charpente couverte en plaquettes de pierres appelées laves dans le pays (40).

Chaque maison ne contient qu'une pièce avec sa cheminée; si l'on veut deux pièces, ce sont deux maisons qui se joignent par les pignons. Dans cette habitation, aucune décoration, rien qui fasse pressentir un goût pour l'art même le plus grossier. Les bois sont à peine équarris, le plancher est couvert d'une terre battue enduite d'une couche formée de sable granitique et d'argile 167. Si on se rapproche du Nivernais et de la haute Bourgogne, souvent au contraire, dans les maisons de paysans, trouve-t-on les traces d'un art; les intérieurs de porte sont taillés avec soin, les jambages bien dressés, les intérieurs sont enduits et quelquefois recouverts jusqu'à la hauteur d'appui d'un lambris. Les bois sont équarris, chanfreinés même; la tuile, dès les temps anciens, remplace la lourde couverture en pierre. Parfois les escaliers extérieurs sont coquettement disposés, le palier garni de beaux garde-corps en pierre; les solives des plafonds débordent à l'extérieur, forment auvent et s'assemblent dans les chevrons (41) 168. Ces habitations de la campagne bourguignonne sont souvent parementées avec soin, et affectent certaines formes architectoniques.

Les maisons de paysans encore bien conservées, dans le village de Rougemont, entre Montbar et Aisy, en fournissent la preuve. Ces maisons, qui datent la plupart du commencement du XIIIe siècle, présentent leur pignon sur la route, sont bâties avec un soin remarquable (42) et possèdent presque toutes un étage au-dessus du rez-de-chaussée; mais il faut dire que ce village dépendait d'une riche abbaye.

C'est, en effet, dans le voisinage des établissements religieux que les maisons des campagnards sont le mieux construites, jusques au XIVe siècle, et ces maisons sont habituellement élevées en maçonnerie. Suenon 169 dit que les terrains destinés aux habitations des paysans autour des établissements agricoles des religieux étaient divisés en parties égales. «Nous croyons, dit M. L. Delisle 170, que ce précepte a été souvent suivi dans notre province (en Normandie), où, depuis longtemps, le mot boels a le sens de cour ou masure. On assignait donc aux colons des boels, ordinairement plus longs que larges, d'où le nom si répandu de longs boels. À l'une des extrémités du boel, chacun élevait sa chaumière. Toutes les portes s'ouvraient du même côté sur le chemin, qui devenait la rue du village.» Cette disposition est observée à Rougemont comme dans beaucoup d'autres centres agricoles appartenant aux abbayes pendant les XIIe et XIIIe siècles.
Dans le Nord, en Normandie et en Picardie, les habitations des champs, la masure «mansura, masura, masagium, mesagium, masnagium,» était un clos avec maison habituellement construite en bois. Sur les bords de la basse Seine, de l'Orne, de la Dives, sur les côtes de la Manche, depuis Eu jusqu'à Cherbourg, les Normands ont laissé des traces encore apparentes de leur génie particulier. Les maisons des paysans sont en pans de bois hourdés en terre mêlée de paille, couvertes en chaume ou en bardeaux. Si, depuis quelques années, les anciennes habitations de ces campagnes tendent à disparaître pour être remplacées par la petite maison de brique, couverte en ardoise, on en voyait encore un grand nombre jusqu'en 1830, qui rappelaient, par leur structure, les charpentes de la Norvége, du Danemark, et celles indiquées sur la tapisserie de Bayeux. Les Normands, comme tous les peuples de la Scandinavie, ne construisaient qu'en bois et étaient bons charpentiers dès l'époque où ils vinrent s'établir sur les côtes de la France. Navigateurs, leurs habitations conservaient quelque chose de la structure navale. Les manuscrits considérés comme saxons en Angleterre, et conservés en assez grand nombre au British Museum, présentent dans leurs vignettes des spécimens d'habitations qui rappellent aussi les constructions navales.
En Norvége et en Islande, il existe encore quelques-unes de ces bâtisses en charpente d'une époque assez récente (XVIe siècle), mais qui reproduisent exactement les formes et les procédés d'un art beaucoup plus ancien. Dans ces habitations, comme sur les broderies de la tapisserie de Bayeux, on remarque, par exemple, ces poinçons richement décorés qui terminent les deux extrémités du faîtage et qui sont reliés au-dessus du comble par une pièce de bois découpée en manière de crête. On voyait encore dans les campagnes de l'Eure, il n'y a pas longtemps, des restes affaiblis de cette tradition exprimés clairement dans notre figure 43.

Ces maisons normandes des XIe et XIIe siècles ne contenaient qu'une salle assez élevée, éclairée de tous côtés, couverte par une charpente grossièrement lambrissée. Le foyer était placé vers le milieu de la pièce, et la fumée s'échappait par un tuyau de bois passant à travers la couverture en bardeaux épais.
Dans les provinces du Centre, comme l'Auvergne, le Vélay et la partie septentrionale de l'ancienne Aquitaine, il semblerait que les traditions celtiques s'étaient conservées très-avant dans le moyen âge. Les maisons des habitants des campagnes étaient en partie creusées sous terre et recouvertes d'une sorte de tumulus formé de terre et de pierres amoncelées sur des pièces de bois posées rayonnant autour d'une poutre principale. Une ouverture pratiquée sur un des côtés de cet amoncellement servait de porte et de fenêtre, la fumée du foyer s'échappait par un orifice ménagé au centre du tumulus. Nous avons vu, dans les montagnes du Cantal, des habitations de ce genre qui paraissaient anciennes, et qui certainement étaient une tradition d'une époque fort reculée. Il n'est pas besoin de dire que l'art n'entre pour rien dans ces sortes d'habitations. Certaines chaumières du Bocage et de la Bretagne ont bien quelques rapports avec celles-ci, en ce que le sol intérieur est plus bas que le sol extérieur, et que les toits couverts en chaume descendent presque jusqu'à terre. Mais ces habitations n'affectent pas à l'extérieur la forme conique, elles sont couvertes par des toits à double pente avec deux pignons en pierres sèches ou en pans de bois hourdés en torchis.
En nous rapprochant des bords du Rhin, dans les provinces de l'Est, dans les montagnes des Vosges, près des petits lacs de Gérardmer et de Retournemer, on voit encore des habitations de paysans qui présentent tous les caractères de la construction de bois par empilage. Basses, larges, bien faites pour résister aux ouragans et pour supporter les neiges, elles ont un aspect robuste. Presque toujours ces maisons se composent de trois pièces à rez-de-chaussée et de quatre pièces sous comble (43 bis).

Le plan A d'une de ces maisons, prise au niveau du rez-de-chaussée, présente en B la salle d'entrée, de laquelle on passe ou dans la grande salle C, ou dans l'arrière-pièce D qui possède l'unique escalier montant au premier étage sous comble. C'est dans la salle C, éclairée par les deux bouts, que se réunit toute la maisonnée pour les repas et la veillée. C'est aussi dans cette pièce que se préparent les aliments. Une grande cheminée avec pieds-droits, contre-coeur, manteau et tuyau en maçonnerie, traverse la toiture. C'est la seule partie du bâtiment qui, avec les socles, ne soit pas en bois. La couverture est faite ou en tuiles, ou en grès schisteux, ou en lames minces de grès; de plus elle est chargée de pierres. Les maisons s'élèvent sur un soubassement de 1m,00 de hauteur environ, formé de gros blocs de grès. Un pan de bois composé de troncs d'arbres assez grossièrement équarris sépare la masure dans sa longueur par le milieu, et supporte l'extrémité supérieure des chevrons. Ce pan de bois, les deux autres latéraux, débordent sur les deux pignons, en encorbellement, et forment ainsi des auvents très-prononcés. Un plancher fait de solives porte sur ces trois pans de bois parallèles. Ces masures ne prennent de jour qu'à travers les pans de bois formant pignons. Il est difficile de ne pas voir, dans ces habitations, une tradition fort ancienne et qui se rapproche des constructions en bois de la vieille Suisse, si intéressantes à étudier.
C'est sur les bords de la Garonne, dans le Languedoc et la Provence que l'on trouve les habitations rurales les plus gracieuses, celles qui rappellent le mieux ces maisons des champs des peintures antiques. La tradition romaine est restée plus pure, dans ces contrées, que partout ailleurs en France. Ces maisons de paysans sont larges, spacieuses, basses, orientées toujours de la manière la plus favorable, possédant des portiques ou plutôt des appentis à jour, bas, afin d'abriter les habitants qui, sous ce climat doux, se livrent à leurs travaux en dehors de la maison.
Dans les plaines de Toulouse, dans l'Ariége et l'Aude, du côté de Limoux, on voit au milieu de bouquets d'arbres séculaires des maisons bâties sur ces données et qui sont relativement anciennes, c'est-à-dire qui datent du XVe siècle. D'ailleurs, celles que l'on construit encore aujourd'hui, en briques crues ou en cailloux, suivent exactement le même programme. En effet, ces populations ont toujours été agricoles, attachées à la terre, et n'ont guère modifié leurs habitudes depuis le XIVe siècle. Voici (44) une de ces habitations rurales.

Le système des tenures à moitié des fiefs fermes était usité au moyen âge dans les provinces du Languedoc comme il l'est encore aujourd'hui. Les paysans qui tenaient ces fermages, ces métayers couraient moins de risques que ceux qui affermaient à temps ou qui obtenaient une concession territoriale moyennant certaines redevances fixes; ils vivaient dans un état de sécurité plus complet. C'est ce qui explique le caractère d'aisance que l'on observe dans les habitations rurales de cette contrée, mais aussi leur uniformité depuis plusieurs siècles.
Dans le Nord, et particulièrement en Normandie, le système des tenures à moitié, ou des concessions perpétuelles moyennant une rente fixe, fut généralement remplacé dès le XIIIe siècle par le bail à terme. Le seigneur conservait la propriété de sa terre et en cédait la jouissance à un cultivateur pour un temps limité et à des conditions déterminées. «Plusieurs causes, dit M. L. Delisle 171, favorisèrent les développements de cette tenure, et la firent préférer aux concessions perpétuelles. Dans les premiers siècles de la féodalité, on n'avait guère connu que ces dernières; mais on finit par s'apercevoir que la rente stipulée par contrat d'inféodation perdait avec le temps la plus grande partie de sa valeur. C'était une conséquence inévitable, non-seulement de l'altération des monnaies, mais encore de la révolution qui s'opérait dans le rapport de l'argent avec les objets de consommation. D'une autre part, l'affaiblissement du régime féodal tendait à priver les seigneurs des principaux moyens qu'ils employaient précédemment pour exploiter leurs domaines non fieffés. On conçoit donc comment ils furent amenés à traiter avec les fermiers. Ils se déchargeaient des embarras et des frais de l'exploitation, et n'étaient plus exposés à voir leur fortune réduite à des rentes dont la valeur nominale n'était pas altérée, mais dont la valeur réelle devenait de plus en plus insignifiante.» Quelquefois même le seigneur, ayant besoin d'argent comptant, faisait payer au fermier, en passant le contrat de louage, le montant total du prix de fermage pendant plusieurs années. Il est évident que ces véritables emprunts étaient faits à des conditions onéreuses pour le propriétaire et tendaient à enrichir le laboureur. Aussi, est-ce en Normandie où l'on voit les habitations rurales prendre une importance relative considérable et se modifier plus rapidement que dans toute autre province.
Sur les côtes de la Méditerranée, on trouve parfois des habitations des champs qui affectent la forme d'une tour ou d'un petit donjon, et qui appartiennent à une époque assez ancienne; mais ces maisons ont été plutôt habitées par des pirates que par des agriculteurs. Il en existe quelques-unes entre Toulon et Cannes.

Voici (45) l'une d'elles encore entière, bâtie à l'entrée du village de Cannet, près Cannes, à mi-côte et à quatre kilomètres environ de la mer. Elle consiste en une tour carrée possédant deux étages et un rez-de-chaussée sans communication avec l'extérieur. La porte, relevée de trois mètres au-dessus du terrain extérieur, n'était accessible qu'au moyen d'une échelle que l'on pouvait facilement rentrer pour éviter les importuns. Le premier étage, ou plutôt le second (car on ne communique au rez-de-chaussée que par une trappe ménagée dans le plancher du premier), est percé de six mâchicoulis en forme de hottes, et ne possédait pas de fenêtre. Le premier n'a d'autre ouverture que la porte. De cet étage on montait à celui des mâchicoulis par une échelle de meunier 172. L'ornement en torsade qui décore le linteau de la porte indique une époque assez ancienne. Au Cannet, cette tour est connue sous le nom de la Maison du brigand. Le dernier étage est voûté en moellon sous le comble. On voit encore, en Corse, un certain nombre d'habitations de ce genre.
Ces habitations des champs, disposées de manière à pouvoir servir de refuge à quelques hommes vivant isolés et mal, probablement, avec leurs voisins, se retrouvent aussi sur les côtes occidentales. L'une des mieux conservées et des plus importantes existe près de Bordeaux (46); elle était entourée autrefois d'un fossé plein d'eau.

Un escalier de douze marches engagées dans la muraille conduisait du niveau de l'eau à la porte relevée. Peut-être jetait-on une planche sur le fossé lorsqu'on voulait entrer. Cette porte donne issue dans la salle unique du premier étage, laquelle est munie d'une cheminée, percée d'une petite fenêtre et de six meurtrières.
On communiquait à une cave par une trappe percée au centre de la pièce. En prenant l'escalier à vis on arrive au second étage possédant une cheminée comme le premier; des meurtrières et un mâchicoulis sont suspendus sur la porte d'entrée 173.
On nous a signalé quelques-unes de ces habitations sur les côtes entre Bordeaux et Bayonne et même au delà, jusqu'à Saint-Jean de Luz. Nous inclinons à croire que ces maisons datent de l'époque de la domination anglaise en Guienne. En effet, on voit dans le comté de Suffolk, en Angleterre, une petite maison (Wenham Hall) construite en brique d'après le même mode et qui date de la fin du XIIIe siècle. Cette construction est un parallélogramme avec escalier à vis dans une tourelle à l'un des angles. L'entrée était relevée, et on arrivait par des marches engagées dans la muraille.
Il ne faut pas omettre ici les maisons bâties dans les cimetières, les maisons croisées qui étaient franches, en dehors de toute juridiction séculière, qui servaient de refuge aux pèlerins, aux malades, et qui se trouvaient placées sous la surveillance de religieux. Ces maisons se reconnaissaient à des croix de bois fichées sur leur comble.
Note 167: (retour) Dans ces maisons, d'un aspect si pauvre, il n'est pas rare de trouver des familles de paysans relativement riches et possédant des biens assez considérables. Chez ces populations, rien n'est sacrifié au bien-être. Leur unique préoccupation est de posséder la terre et d'amasser des écus pour agrandir leur petit domaine.
Note 168: (retour) Entre Dijon et Saint-Seine.
Note 169: (retour) Leges Scaniæ, I. IV. c. j, cité dans le Gloss. de du Cange, au mot Boel.
Note 170: (retour) Études sur la condition de la classe agric. en Normandie au moyen âge, p. 396. Évreux, 1851.
Note 171: (retour) Études sur la condit. de la classe agric. en Normandie au moyen âge, p. 51. Évreux, 1851.
Note 172: (retour) Nous devons ces dessins à l'obligeance de M. Mérimée.
Note 173: (retour) Ces dessins nous ont été fournis par M. Durand, architecte à Bordeaux.
MANOIR, s. m. (manerium 174). Le manoir, bien que ce nom désigne parfois un château, est l'habitation d'un propriétaire de fief, noble ou non, mais qui ne possède pas les droits seigneuriaux permettant d'élever un château avec tours et donjon. Le manoir est fermé cependant, il peut être clos de murs et entouré de fossés, mais non défendu par des tours, hautes courtines crénelées et réduit formidable. Le manoir est la maison des champs placée, au point de vue architectonique, entre le château féodal et la maison du vavasseur, degré supérieur de la classe attachée à la terre seigneuriale, homme libre. «Les vavasseurs,» dit M. Delisle 175 à propos de la position de cette classe en Normandie, «différaient essentiellement des nobles, qui ne tenaient leur fief que moyennant la foi, l'hommage et le service militaire.» Dans certaines seigneuries cependant, ils devaient le service militaire à cheval, armés de lances, d'écus et d'épées. Les demeures des vavasseurs, et même des aînés, c'est-à-dire de ceux qui tenaient du seigneur des terres plus ou moins étendues, qui réunissaient plusieurs vavassoreries sous leur main et qui demeuraient responsables du service et des redevances des vavasseurs du groupe, ne pouvaient être considérées comme des manoirs en ce qu'elles n'étaient point fermées.
Le manoir quelquefois n'est qu'une maison peu étendue, entourée de murs avec jardin; plus souvent c'est une agglomération de bâtiments destinés à l'exploitation, entourés de fossés, avec logis principal pour l'habitation du propriétaire. Les villæ des rois de la première race étaient plutôt des manoirs que des châteaux, et, jusqu'au XVIe siècle, les grands seigneurs suzerains en France, outre leurs châteaux, qui étaient de véritables places fortes, se plaisaient à élever des maisons de plaisance pour se livrer au plaisir de la chasse, ou pour se retirer pendant un certain temps; ces maisons peuvent être considérées comme des manoirs. Beaucoup d'abbayes royales possédaient dans leur enclos des manoirs où les princes venaient se reposer des affaires (voy. ARCHITECTURE MONASTIQUE). La maison de plaisance de Bicêtre, près Paris, ou plutôt de Vincestre 176, qui fut brûlée par le peuple en 1411, était un grand manoir plutôt qu'un château, bien qu'elle possédait une tour 177. Sous les rois de la troisième race, Fontainebleau, Blois étaient de même, de grandes maisons de plaisance qui avaient les caractères du manoir.
L'Angleterre a conservé un nombre assez considérable de ces maisons de campagne des XIIIe, XIVe et XVe siècles; mais en France nous n'en connaissons pas qui soient entières et qui remontent au-delà du XVe siècle. Le manoir, proprement dit, contenait toujours une salle, comme le château, et en Angleterre la dénomination de manor-house s'est conservée. C'est qu'en effet dans ces résidences la salle est la partie importante du programme jusqu'au XVe siècle.
Au XIIe siècle, le roi Richard d'Angleterre avait à Southampton un manoir qui servait de lieu de rendez-vous au moment de l'embarquement. Ce bâtiment se composait d'une salle, d'une chapelle et d'un cellier 178. Une chambre privée était souvent placée à côté de la salle.
Le nom de manoir est quelquefois appliqué à la maison de l'hôte, du colon, mais lorsque cette maison est entourée d'une clôture:
La disposition des manoirs, à la fin du XIIe siècle et pendant une partie du XIIIe, était la même en France et en Angleterre. L'abbaye de Saint-Maur possédait au Piple, près Boissy-Saint-Léger, un manoir d'où dépendaient vingt-deux arpents de vigne, avec deux pressoirs et sept arpents de bois. L'abbé Pierre Ier, vers le milieu du XIIIe siècle, fit rebâtir ce manoir en partie; on y construisit, par son ordre, une chapelle, une salle avec cellier au-dessous, et un logis qui fut entouré de murs et de larges fossés 180. Cependant, dès le XIIIe siècle, la distinction entre le château et le manoir fut moins tranchée en Angleterre que de ce côté-ci du détroit. Beaucoup de châteaux anglais de cette époque seraient pour nous de grands manoirs en ce qu'ils ne possèdent pas les défenses qui constituent chez nous le château. Les châteaux d'Aydon (Northumberland) de Stokesay (Shropshire) 181 seraient, en France, classés parmi les manoirs, et celui d'Aydon particulièrement est un des plus complets et des plus vastes que l'on puisse voir. Il comprend un corps de logis principal à trois étages avec ailes, des cours et un jardin enclos de bonnes murailles. Ce manoir est crénelé, mais ne possède ni tours ni donjons. Les châteaux les plus forts en Angleterre conservent, sauf de rares exceptions, une apparence de maison de campagne qui les distingue de nos grandes résidences féodales, telles que Coucy, par exemple, ce qu'explique l'état intérieur du pays depuis le XIIIe siècle.
Plusieurs des châteaux de la Guienne, bâtis sous la domination anglaise, bien qu'ils conservent, dans leurs détails, tous les caractères dé l'architecture française de la fin du XIIIe siècle et du commencement du XIVe, présentent cette particularité de rappeler les dispositions des grands manoirs anglo-normands. Il suffit, pour s'en assurer, de feuilleter l'excellent ouvrage que publie sur ces édifices M. Léo Drouyn 182. Logis carrés, avec enceintes, absence de tours flanquantes, bâtiments percés sur le dehors, basses-cours entourées de murs, fossés extérieurs. Plans irréguliers comme ceux de la villa romaine, services séparés les uns des autres et formant autant de corps de bâtisses. Les Anglais ont conservé, dans les dispositions des maisons de campagne qu'ils élèvent aujourd'hui, ces traditions du moyen âge, ne s'en trouvent pas plus mal et appliquent sans difficulté ces principes vrais à la vie moderne. Nous reconnaissons volontiers que les Anglais sont nos maîtres en fait de confort (ils ont trouvé le mot), et nous répétons sur tous les tons que l'architecture du moyen âge ne peut se prêter à nos habitudes modernes. Il y a là une de ces contradictions si nombreuses dans les jugements que nous portons en France à propos des choses d'art.
Déjà, dans le château du moyen âge, on reconnaît que les services divers occupent la place convenable, prennent leur importance relative sans que les architectes se soient autrement préoccupés des questions de symétrie. Mais dans le château la raison militaire imposait souvent des distributions qui ont pu contrarier ou modifier certaines habitudes de bien-être (voy. CHÂTEAU); il n'en est pas ainsi dans le manoir. Là il s'agit seulement de satisfaire aux besoins et aux goûts de l'habitant. La question de défense est accessoire; le manoir n'est qu'une maison de campagne suffisamment fermée pour être à l'abri d'un coup de main tenté par quelques aventuriers, elle ne prétend point résister à un siége en règle. Simple, pendant les XIIe et XIIIe siècles, comme les habitudes des propriétaires terriens de ce temps, le manoir ne possède alors qu'une salle avec cellier au-dessous et petit appartement accolé; à l'entour viennent se grouper quelques bâtiments ruraux, granges, étables, pressoir, fournil, logis des hôtes ou des colons, le tout enclos d'une muraille ou d'un fossé profond.
Au XIVe siècle le manoir s'étend, il essaye de ressembler au château, il possède plusieurs étages, les services se compliquent. À la fin du XVe siècle, le manoir prend souvent toute l'importance du château, sauf les défenses, consistant en tours nombreuses, ouvrages avancés, courtines élevées. Plessis-les-Tours, habité par Louis XI, n'était qu'un grand manoir, et sa véritable défense consistait en une surveillance assidue des abords qui en éloignait les indiscrets et les gens suspects. Lorsque l'artillerie à feu devint un moyen d'attaque contre lequel la fortification du moyen âge fut reconnue impuissante, des manoirs s'élevèrent en grand nombre parce qu'on constatait chaque jour l'inutilité des défenses dispendieuses élevées par les siècles précédents. Au XVIe siècle, beaucoup de petits châteaux même virent démolir leurs tours inutiles, percer leurs courtines sur les dehors, et furent ainsi convertis en manoirs. Ces modifications apportées en France par les moeurs, par la centralisation du pouvoir, par l'affaiblissement de la féodalité, dans les résidences des champs, modifications qui tendaient à remplacer le château par le manoir, n'avaient pas de raisons de se produire en Angleterre. Dans ce pays le château n'est qu'une place forte; l'habitation de campagne prend, dès une époque ancienne, l'aspect du manoir, et elle le conserve encore aujourd'hui.
Il n'existe plus en France de ces manoirs des XIIIe et XIVe siècles, comme on en voit encore en Angleterre; les guerres des XVe et XVIe siècles en renversèrent un grand nombre, car ces résidences ne pouvaient se défendre contre des corps armés. Au dernier siècle, l'amour de la nouveauté fit détruire une quantité immense de ces demeures des champs. Quelques-unes des plus solides, se rapprochant des dispositions défensives du château, furent seules conservées. Quant aux manoirs ouverts, et qui seraient pour nous des maisons de campagne, c'est à peine si dans quelques fermes de la Champagne, de la Bourgogne, de l'Île-de-France, de Laonnais, du Soissonnois et du Beauvoisis, on en retrouve quelques traces, telles que caves, substructions et enceintes.
Nous décrirons plusieurs des manoirs encore debout, et nous entrerons dans quelques détails touchant les conditions imposées aux constructeurs de ces demeures. Charlemagne fit bâtir deux palais «d'un remarquable travail, dit Eginhard 183, le premier non loin de Mayence, près de la terre d'Ingelheim 184; l'autre à Nimègue sur le Vahal 185.» À l'exemple de l'empereur, sous les carlovingiens, les demeures construites par les grands propriétaires tenaient de la villa romaine. Mais à mesure que le système féodal se constituait, l'habitation des champs se convertissait en place forte, et ce ne fut guère qu'au XIIIe siècle, sous le règne de Louis IX, que le pouvoir royal fut assez fort pour réglementer la construction des habitations des propriétaires terriens. À ce sujet, les Olim nous fournissent de nombreux renseignements. Nous voyons que le parlement intervient pour empêcher des chevaliers, des écuyers, de fortifier leurs demeures 186. Au sein de l'organisation féodale plusieurs motifs arrêtaient le trop grand développement des demeures fortifiées, obligeaient même, dans certains cas, les grands barons à se contenter de manoirs. «Des seigneurs puissants relevaient souvent, pour certains fiefs, de seigneurs qui, dans l'ordre hiérarchique de la société, leur étaient de beaucoup, inférieurs; ainsi, le duc de Bourgogne était, par rapport au fief de Châtillon, vassal de l'évêque de Langres. Ces grands vassaux devaient donc porter leurs causes au tribunal de ces seigneurs, quand des procès surgissaient, soit à l'occasion des fiefs qu'ils tenaient d'eux, soit par rapport à un délit quelconque commis sur le territoire de ces fiefs. Cette jurisprudence était trop simple, trop conforme à l'usage des fiefs, pour avoir jamais été contestée. Mais les plaignants, quand ils avaient pour adversaire un des grands barons du royaume, et pour juge un seigneur hors d'état de faire exécuter ses arrêts et par conséquent de les prononcer avec indépendance, s'adressaient à la cour du roi, et demandaient que l'inculpé fut tenu, comme vassal direct de la couronne, de répondre devant elle 187.»
Grâce à cette intervention du parlement du roi dans les contestations entre vassaux, intervention provoquée par les baillis royaux, un grand seigneur possédant un fief relevant d'un seigneur moins puissant que lui ne pouvait plus y élever une de ces demeures fortifiées qui eut dominé le pays; il était contraint de se contenter d'un simple manoir, auquel, bien entendu, il donnait, si bon lui semblait, toute l'importance, comme habitation, mais non comme place forte, d'un véritable château. C'est aussi au moment où la féodalité est sérieusement attaquée, c'est-à-dire à dater du règne de Louis IX, que l'on éleva beaucoup de grands manoirs en France. Ces manoirs, bien qu'ils n'eussent pas les signes visibles de la demeure féodale, c'est-à-dire les tours munies, les courtines et le donjon, possédaient, comme fiefs, les droits féodaux, droits de chasse entre autres, car nous voyons presque toujours que des garennes dépendent des manoirs; or la garenne, comme l'a démontré M. Championnière 188, était le droit exclusif de chasse sur les terres des vassaux et non le droit d'élever, en certains lieux, des lapins. Mais des arrêts du parlement 189 avaient admis en principe que le droit d'établir de nouveaux péages, de nouvelles garennes et de nouveaux viviers 190 n'appartenait qu'au roi. Ainsi d'une part, le roi, par l'organe de son parlement, s'opposait, autant qu'il était possible, à la construction des châteaux fortifiés, et de l'autre refusait la sanction des droits les plus chers aux seigneurs, la chasse et les péages, lorsque ces droits n'étaient pas établis sur une possession antérieure. D'ailleurs, l'acquisition d'un fief ne donnait pas les prérogatives de la noblesse, et si des roturiers achetaient un fief, ou portion d'un fief, ce qui eut lieu fréquemment à dater du XIIIe siècle, ils ne pouvaient y bâtir un château, une demeure fortifiée; des contestations s'élevaient souvent entre un seigneur et son vassal sur la nature de la construction élevée par ce dernier; beaucoup de manoirs prétendaient ressembler à des châteaux et tenir lieu de défense, à dater du moment surtout où les grands barons ruinés étaient obligés d'aliéner leurs biens. Ce fut ainsi que pendant les XIVe et XVe siècles, la France se couvrit de manoirs qui pouvaient protéger leurs habitants contre les bandes armées répandues sur le territoire, et que beaucoup de maisons de propriétaires de fiefs devinrent des postes assez bien munis et fermés pour inquiéter le pays et ajouter aux causes de désordre de ce temps.
Dès le XIIIe siècle, les bords de la Garonne, de la Dordogne, du Lot, du Gers, du Tarn et de l'Aveyron virent élever un grand nombre de ces manoirs fermés, propres à la défense; c'est qu'en effet dans ces contrées les fiefs étaient très-divisés, et, depuis la guerre des Albigeois, les grands barons des provinces méridionales ruinés, réduits à l'impuissance. Le sol se couvrait de propriétaires à peu près égaux en pouvoir et en richesse; la domination anglaise, loin de changer cet état de choses, y voyait au contraire un gage de sécurité pour elle, de prospérité pour le pays.
Ces manoirs fermés sont désignés, dans le Bordelais, sous le nom de Casteras, et sont encore assez communs.
Non loin de Bordeaux, à l'entrée des Landes, est un manoir qui paraît appartenir à la première moitié du XIIIe siècle, et qui conserve des traces de distributions intérieures d'un grand intérêt; il s'agit du Castera de Saint-Médard-en-Jalle. La Jalle est un ruisseau qui prend sa source au lieu nommé Cap d'aou bos (Tête du bois), et qui se jette dans la Garonne.
Le manoir de Saint-Médard est bâti sur la rive droite du ruisseau qui, sur ce point, s'étend et forme un marécage. Un fossé large entourait cette habitation fortifiée, dont nous donnons le plan au niveau du rez-de-chaussée (1).

Ce plan est tracé sur un carré avec quatre tourelles aux angles. La porte est en A, et deux meurtrières s'ouvrent, à rez-de-chaussée dont le sol est peu élevé au-dessus du marécage, sur chacune des faces du carré. Dans l'origine, cette enceinte carrée enveloppait une construction de bois dont on voit les scellements sur les parois intérieures. À la place des deux murs O,O, d'une époque plus récente, il y avait quatre gros poteaux de bois qui portaient le plancher du premier, des cloisons et un pan de bois de refend. Un escalier de bois permettait de monter au premier étage. Ce rez-de-chaussée du sol au plafond n'a pas plus de 2m,65.

Le premier étage (2) présente une disposition des plus curieuses. Il était entre-solé dans une partie de la surface ainsi que le prouvent 1º les scellements de solivages, la trace des huisseries; 2º les étroites fenêtres BB'B'' doublées dans la hauteur de l'étage et séparées par des linteaux; 3º les grandes fenêtres CC'C'' qui prennent toute la hauteur de l'étage, qui sont larges et divisées dans leur largeur par un meneau. Cet entre-sol était en bois, porté sur les poteaux de fonds et sur ceux dd'. De plus le pan de bois de refend portait les combles doubles, ainsi que nous le verrons tout à l'heure. Un degré en bois P permettait de monter à l'entre-sol. La grande salle R avait entre le plancher et le plafond 4m,30 de hauteur, et chacun des étages entre-solés 2m,30 environ; de sorte que le plancher au-dessus de cette grande salle et celui au-dessus de l'entre-sol, en comptant l'épaisseur des poutres et solives, s'arrasait au niveau d'un chemin de ronde supérieur.
En effet, en calculant ces hauteurs,
|
L'étage entre-solé Épaisseur du plancher L'entre-sol Épaisseur du plancher Hauteur de la grande salle Poutres et corbeaux Solivages |
2m,30 30 2m,30 30 4m,30 60 30 |
5m,20 5m,20 |
L'escalier à vis N montait du sol de la grande salle au chemin de ronde défendu par un parapet crénelé. I sont des cheminées et K des armoires. En L sont des latrines sur le dehors; en M, dans la tourelle nord ouest, sont disposées d'autres latrines avec tuyau de chute indiqué sur le plan du rez-de-chaussée.

Nous donnons (3) la vue perspective de ce manoir prise du coté de l'entrée. La maçonnerie est entière, sauf les parapets crénelés, dont il ne reste que des fragments 191. Tous les bois ont été brûlés et ont laissé de nombreuses traces. Les combles se divisaient très-vraisemblablement en deux, conformément aux habitudes des constructions de ce temps, et renfermaient des logements en pans de bois au niveau du chemin de ronde, ainsi que l'indique notre vue. Sur la face, quatre trous carrés ménagés dans la bâtisse du parement au-dessus de l'entrée étaient destinés à recevoir un hourd saillant auquel on descendait par le chemin de ronde. Nous avons présenté une des fermes de ce hourd, posée. Cette méthode, qui consiste à envelopper un logis de bois d'une chemise de pierre fortifiée, est curieuse à observer, car nous la voyons employée dans beaucoup de ces donjons carrés du XIIe siècle tel que celui de Loches, par exemple. Il est à présumer que les pans de bois ou plutôt les poteaux inférieurs durent être remplacés, car au XIVe ou au XVe siècle on éleva les deux murs figurés sur le plan du rez-de-chaussée.
Il existe encore dans la Gironde un manoir d'une époque moins ancienne (de la fin du XIIIe siècle ou du commencement du XIVe), qui ressemble beaucoup, par ses dispositions, à celui de Saint-Médard-en-Jalle, mais où la maçonnerie a remplacé les divisions intérieures en bois: c'est le manoir de Camarsac; situé sur un point assez élevé, il domine l'embouchure de la Dordogne et était autrefois entouré de fossés.

L'entrée de ce manoir (4) était en C et protégée par une porte extérieure posée à angle droit sur le mur de face. La porte s'ouvrait sur une première salle D avec escalier E montant de fond 192. De cette première salle (voir le plan A du rez-de-chaussée), on pénétrait dans les trois autres pièces percées seulement, dans l'origine, de meurtrières destinées à battre le fossé. En G est un arc qui porte le mur de refend élevé au premier étage. Ce rez-de-chaussée ne pouvait servir que comme dépôt des provisions, ou comme refuge en temps de guerre. Le premier étage (voir le plan B) était destiné à l'habitation. Il est divisé en cinq salles avec communication centrale H, très-ingénieusement disposée. Quatre de ces salles possèdent des cheminées I. Dans la salle L s'ouvre un mâchicoulis K, battant la porte d'entrée. De la salle L et de celle M on passe dans la tourelle d'angle F servant de latrines et dans le couloir muni de meurtrières qui battaient le fossé du côté de l'entrée. Deux combles posés sur les murs latéraux et sur le mur de refend couvraient ce castera, qui était couronné de mâchicoulis avec crénelage sur ses quatre fronts. Des meurtrières percées dans les échauguettes défendaient les angles et flanquaient les faces. Les pièces du premier étage étaient éclairées par des fenêtres étroites, remplacées aujourd'hui par des baies modernes. Ce castera ou manoir était un véritable donjon et offrait un refuge très-sûr. La figure 5 donne la vue perspective de cette habitation fortifiée prise du côté de l'entrée 193.

En Angleterre, quelques manoirs du XIVe siècle présentent des dispositions à peu près semblables à celles-ci, notamment celui de Belsay (Northumberland). Il est certain que ces casteras n'étaient que le logis principal d'une agglomération de bâtiments ruraux entourés d'un mur ou d'un fossé; c'était la demeure du possesseur du fief. Pendant les XIVe et XVe siècles, les manoirs adoptent plus franchement les dispositions d'une habitation des champs, même dans les provinces méridionales. Ainsi à Xaintrailles, près de Nérac (Lot-et-Garonne), on voit encore les restes assez entiers du manoir où naquit le célèbre Pothon. Ce manoir date des premières années du XVe siècle (6).

Il se compose d'une baille ou basse-cour B, occupée aujourd'hui par des bâtiments modernes. Le chemin A, qui conduit au manoir, donnait entrée dans cette baille par une première porte A'. Franchissant un fossé, on entrait dans la cour intérieure E par une porte charretière ou par une poterne. Du passage de la porte on entrait dans la salle F, où se tenait le gardien ou même un poste au besoin. La grande salle est en G et la cuisine en H avec porte sur la cour. À gauche est une autre grande salle I dans laquelle on entre en passant sur le palier inférieur du grand escalier K. En L est un petit donjon avec escalier extérieur M et escalier intérieur à vis. Le donjon ne se réunissait aux deux corps de logis que par des courtines aujourd'hui englobées dans des constructions récentes. Ces deux logis ne se défendaient que par un crénelage à la base du comble et par quatre échauguettes posées aux quatre angles. Le manoir est entouré de jardins du côté gauche et derrière le donjon. Cet ensemble est assez bien conservé, sauf la partie ab comprise entre le grand escalier et le logis de droite qui a été rasée, et dont on n'aperçoit plus que les fondations.

La figure 7 donne la vue perspective du manoir de Xaintrailles, prise des jardins 194.
Près de Nesles (Oise), on aperçoit encore les restes d'un joli manoir de la fin du XVIe siècle 195. Il était entouré d'un enceinte polygonale avec fossé et porte défendue. Une tour quadrangulaire, étroite, couronnée par quatre mâchicoulis, servait d'oratoire à rez-de-chaussée et de guette au sommet; de plus elle commandait l'entrée. Modifiés au XVIIe siècle, puis plus récemment encore, les bâtiments d'habitation ont perdu leur caractère et ne laissent voir que des murs recrépis; ils servent aujourd'hui à l'exploitation des terres environnantes (8).

Dans les vignettes des manuscrits du XVe siècle, on voit parfois des manoirs assez bien figurés, qui rappellent les dispositions de ceux que nous venons de donner en dernier lieu, et donnent une agglomération de bâtiment accolés sans symétrie, mais suivant les besoins des habitants.
Beaucoup de ces manoirs du commencement du XVe siècle et passablement défendus furent ouverts au XVIe, leurs murs extérieurs furent percés de fenêtres et les fossés, en partie comblés, remplacés par des terrasses.

Tel est le manoir de Sédières (Corrèze) dont nous donnons (9) une vue. Ce manoir, bâti pendant les premières années du XVe siècle, se composait de la tour carrée A, du logis B et de la porterie C. Les autres bâtiments E étaient probablement plus bas et fermaient la cour intérieure Au XVIe siècle, des fenêtres furent percées sur les dehors dans le vieux logis; les intérieurs furent refaits et des bâtiments, aujourd'hui presque entièrement démolis, s'élevèrent en E et en F; on combla les fossés du côté du jardin. C'est ainsi que ces manoirs du moyen âge, dont les premiers possesseurs avaient fait des résidences fortifiées, se changeaient au XVIe siècle en demeures de plaisance, ne conservant de leur ancien caractère que des mâchicoulis devenus inutiles et des morceaux de fossés au devant des portes.
Les châteaux de Rambouillet, de Nantouillet, près Paris, de la Rochefoucauld en Angoumois, de Villers-Cotterets, de Compiègne, etc., n'étaient plus que des manoirs sous le règne de François Ier, par suite des travaux d'appropriation qu'on y avait fait exécuter pour les ouvrir sur les dehors et leur enlever leur caractère de forteresses.
Le XVIe siècle éleva quantité de manoirs dont il reste des débris. Nous citerons, entre autres, le manoir d'Ango, près de Dieppe, construit par le célèbre armateur vers 1525. «Il avait acquis la belle terre de Varengeville,» dit M. Vitet dans son excellente histoire de Dieppe 196, «ancien domaine de la famille de Longueil; la beauté du pays, la proximité de Dieppe, l'engagèrent à démolir le vieux castel pour s'y faire bâtir un manoir à la moderne et à sa fantaisie. C'est ce manoir dont il reste encore quelques corps de logis convertis en ferme, mais que, par une antique habitude, les habitants du pays ne connaissent et ne désignent jamais que sous le nom de château.» Ce manoir était considérable en étendue puisque Ango put y recevoir le roi François Ier. Mais, ainsi que nous l'avons dit déjà, les manoirs au XVIe siècle remplaçaient le château. Azay-le-Rideau, Meillant, Chenonceaux, Anet, par leurs dispositions et leur destination, appartiennent aux manoirs bien plus qu'aux châteaux et se rapprochent singulièrement de la villa antique. Le château symétrique du règne de Louis XIV a fait disparaître les dernières traces du manoir, puisque depuis cette époque les simples maisons de campagne ont cherché à copier, en petit, ces masses pondérées, régulières, qui distinguent particulièrement, en France, le château de la fin du XVIIe siècle entre toutes les habitations des siècles précédents. Mais il y a dans les dispositions des grands châteaux du XVIIe slecle, tels que ceux de Richelieu, de Coulommiers, de Maisons, de Monceaux, de Vaux, etc., une certaine ampleur, une majesté qui conviennent à ces demeures princières, et qui réflètent l'existence large des seigneurs d'un puissant pays qui n'ont pas besoin de se renfermer dans leurs demeures comme les barons du moyen âge; cette ampleur et cette majesté, réduites aux proportions de l'habitation d'un bourgeois servi par deux ou trois domestiques, deviennent des ridicules. En cela, nos voisins les Anglais ont mieux su garder la mesure, et leurs petites maisons de campagne sont bien, aujourd'hui, la demeure des particuliers dont la fortune et les goûts sont modestes, et qui préfèrent les commodités intérieures à la satisfaction vaine d'élever un diminutif de château.
Note 174: (retour) Habitatio cum certa agri portione, a manendo dicta, Gallis, Manoir; quomodo in Consuetudinibus nostris municipalibus vulgo accipitur pro præcipua feudi domo, quæ cum universo ipsius ambitu penes primogenitum esse debet... (DUCANGE.)
Note 175: (retour) Études sur la condition de la classe agr. en Normandie au moyen âge, p. 6. Évreux, 1851.
Note 176: (retour) Parce qu'elle avait appartenu en 1204 à Jean, évêque de Vinchester. (Voy. Sauval, Antiq. de la ville de Paris, t. II, p. 72.)
Note 177: (retour) On voit des ruines du manoir de Bicêtre dans une gravure représentant le ballet donné par le comte de Soissons au Louvre en 1632. M. le comte Horace de Vielcastel nous a fourni de précieux renseignements à ce sujet.
Note 178: (retour) Voy. Domest. archit., twelfth century, par Huds. Turner, H. Parker. Oxford, 1851.
Note 179: (retour) Le roman du Renart, v. 8593.
Note 180: (retour) Hist. du diocèse de Paris, Lebeuf, t. XIV, p. 324.
Note 181: (retour) Domest. archit., thirteenth century, chap. IV.
Note 182: (retour) La Guienne militaire, pendant la domination anglaise, par Léo Drouyn. Bordeaux.
Note 183: (retour) Vita Karoli imperat., cap. XVII.
Note 184: (retour) À quatre lieues S.-O. de Mayence.
Note 185: (retour) Le manoir d'Ingelheim et celui de Nimègue furent rebâtis sous forme de châteaux par Frédéric Ier. Ermoldus Nigellus donne la description du palais d'Ingelheim, I. IV et V. Il ressemblait à une villa romaine par les dispositions d'ensemble.
Note 186: (retour) Voici un exemple: «Étienne de Breziac, écuyer, construisait une maison fortifiée, ainsi qu'il était dit, sur le mont Avoie. L'abbé de Cluny s'y opposait, prétendant que cet écuyer ne pouvait construire en ce lieu à cause de certaines conventions intervenues autrefois entre leurs prédécesseurs, et aussi parce que cela tournait au détriment de son Église et de tout le pays; c'est pourquoi l'abbé demandait que l'on détruisit ce qui avait été construit en cet endroit et que l'on enjoignit à l'écuyer de ne plus y bâtir désormais. Étienne, d'autre part, répondait que l'abbé ne devait pas être écouté à ce sujet et qu'on ne devait pas détruire sa demeure; il ajoutait qu'il n'avait pas élevé une forteresse, qu'il ne relevait pas de l'abbé, que lui-même et ses prédécesseurs étaient de temps immémorial en saisine de cette montagne comme de son aleu, ainsi que de la garenne et des autres dépendances. En résumé, ayant entendu les raisons des deux parties, et ayant appris par le bailli de Mâcon que cette montagne, par elle-même, était déjà très-forte, et que plusieurs nobles et autres personnes réclamaient et s'opposaient de leur côté à ce que l'on édifiât en ce lieu, parce qu'une maison (forte) pourrait causer au pays un grand préjudice, il fut arrêté que l'écuyer Étienne de Breziac ne pourrait construire une maison de ce genre sur la montagne sus désignée, et que la portion de la dite maison déjà construite par Étienne serait détruite et supprimée.» (Arrestat. in pallam, 1264, arr. VI.)
Note 187: (retour) Les Olim, publ. par le comte Beugnot, t. I, notes, p. 1045. Docum. inéd. sur l'Histoire de France, Ire série, hist. polit.
Note 188: (retour) De la Propriété des eaux courantes. Paris, 1846, p. 86-97.
Note 189: (retour) Voir à ce sujet un arrêt de 1317. Les Olim, t. III, 2e part., 1317, arr. LXV.
Note 190: (retour) Les vivaria ou viaria étaient des lieux clos ou non, dans lesquels étaient élevés des animaux de petite espèce et particulièrement des lapins.
Note 191: (retour) Voy. la Notice sur le castera près de Saint-Médard-en-Jalle, par M. Durand. 1839. (Recueil de l'académie royale de Bordeaux, lecture du 21 fév. 1839.)
Note 192: (retour) La tourelle E ainsi que l'échauguette F ont été modifiées au XVe siècle; on leur a donné un plus fort diamètre.
Note 193: (retour) Ces dessins nous ont été fournis par M. Alaux, architecte à Bordeaux.
Note 194: (retour) Partie de ce manoir était encore occupée en 1843 par M. le marquis de Lusignan.
Note 195: (retour) Le manoir de Launay, qui fut la résidence de Santeuil.
Note 196: (retour) Histoire de Dieppe, 4e partie, p. 451.
MARBRE, s. m. Calcaire cristallisé, dur, recevant le poli.--En France, on a peu employé le marbre, pendant le moyen âge; d'abord parce que cette matière n'y est pas très-commune, puis parce que son emploi exige des frais considérables. Les architectes romans des premiers temps dépouillèrent souvent des monuments antiques de leurs colonnes et de leurs chapiteaux pour les appliquer à leurs nouvelles bâtisses; sous les premiers carlovingiens même, par un reste des traditions romaines, ils firent sculpter parfois des chapiteaux dans du marbre, mais ces exemples sont rares. Cette matière dure, longue à travailler, ne pouvait convenir à des artistes qui n'avaient plus les ressources suffisantes pour mener à fin des ouvrages de cette nature. Dans le midi de la France, l'emploi du marbre ne cessa pas cependant jusques vers le milieu du XIVe siècle, principalement dans le voisinage des Pyrénées. Il existe encore plusieurs cloîtres de ces provinces méridionales dont les colonnes et les chapiteaux même sont en marbre (voy. CLOÎTRE). On employa aussi parfois le marbre de couleur comme incrustation pendant les XIe, XIIe et XIIIe siècles 197, comme pavé, et le marbre blanc pour des autels, des retables, des tombeaux et des statues. Le système de construction admis à la fin du XIIe siècle en France ne se prêtait point d'ailleurs à l'emploi du marbre, qui, même dans l'antiquité romaine (excepté lorsqu'il s'agit de points d'appuis isolés comme des colonnes), n'était guère appliqué que sous forme de revêtement.
Les poëtes et les chroniqueurs du moyen âge ne se font pas faute cependant de mentionner des ouvrages de marbres, palais marbrins, escaliers marbrins, chambres marbrines. Ce qui prouve que l'emploi de cette matière était considéré comme un luxe extraordinaire. Les abbés qui reconstruisirent leurs monastères pendant les XIe et XIIe siècles, ou les contemporains qui racontent leurs gestes, ne manquent pas de signaler de nombreux ouvrages en marbre qui n'ont jamais existé. Ce sont là de ces hyperboles très-fréquentes chez ces chroniqueurs. C'est ainsi que Suger avait, dit-on, fait venir des colonnes de marbre d'Italie pour le pourtour du sanctuaire de l'église abbatiale de Saint-Denis; or, ces colonnes sont en pierre dure provenant de carrières près Pontoise. Le vulgaire donne souvent aussi le nom de marbre à certains calcaires durs qui prennent le poli, mais qui n'ont pas pour cela les qualités du marbre.
Lorsque les sculpteurs du moyen âge ont voulu tailler le marbre, ils s'en sont tirés à leur honneur; il suffit, pour s'en assurer, d'aller voir à Saint-Denis un assez grand nombre de statues de marbre blanc des XIVe et XVe siècles qui sont d'une excellente facture (voy. STATUAIRE).
Les musées de Toulouse et d'Avignon possèdent aussi beaucoup de débris de monuments en marbre des XIIe, XIIIe, XIVe et XVe siècles, d'un beau travail.
Note 197: (retour) À la cathédrale de Lyon, par exemple.
MARCHÉ, s. m. Lieu de vente, couvert (voy. HALLE).
MARQUETERIE (ouvrage de), voy. MENUISERIE.
MENEAU, s. m.; peu usité au singulier.--On donne ce nom aux montants et compartiments de pierre qui divisent la surface d'une fenêtre en plusieurs parties vides que l'on remplit soit au moyen de vitrages dormants, soit au moyen de châssis ouvrants, également pourvus de vitrages (voy. FENÊTRE). En Italie, en Espagne et même en France, dans les premiers siècles du moyen âge, les fenêtres des édifices publics étaient souvent dépourvues de vitres; des claires-voies en pierre, en métal ou en bois étaient alors disposées dans leur ouverture béante, pour tamiser la lumière et empêcher le vent ou la pluie de pénétrer dans les intérieurs. Lorsque l'usage des vitrages devint habituel, vers le XIe siècle, on garnit les baies de vitraux maintenus au moyen de barlotières en fer. Mais vers la fin du XIIe siècle, au moment de l'adoption du système de l'architecture dite gothique, les fenêtres venant à s'agrandir, il fallut disposer dans leur surface vide des séparations en pierre pour maintenir les vitraux; car les armatures en fer, difficiles à fabriquer, flexibles, ne présentaient pas une résistance suffisante à l'effort du vent. D'ailleurs, ces baies larges et hautes, laissées vides, n'étaient pas d'un heureux effet; elles ne donnaient pas l'échelle de la structure, et les architectes des écoles laïques de la fin du XIIe siècle possédaient assez le sentiment des proportions pour ne pas laisser de grandes surfaces vides sans les occuper par des compartiments de pierre qui pouvaient seuls rappeler leur dimension. On voit apparaître ces divisions vers les premières années du XIIIe siècle dans l'Île-de-France, le Soissonnais, le Beauvaisis et la Champagne. Ces premiers meneaux sont composés d'assises de pierre, sont bâtis. Tels sont les meneaux de la cathédrale de Soissons et de la cathédrale de Chartres. Les meneaux des fenêtres des chapelles du choeur de Notre-Dame de Reims, bien qu'ils datent de 1215 environ, sont encore composés d'assises ou de claveaux (voy. FENÊTRES, fig. 13, 14, 15, 16, 17 et 18). Mais bientôt l'école laïque du XIIIe siècle fit, des meneaux, de véritables châssis de pierre formés de montants posés en délit et de compartiments ajourés découpés dans des dalles plus ou moins épaisses suivant les dimensions des baies. Dans les édifices voûtés, comme les églises ou certaines grandes salles d'assemblée, dont les fenêtres occupent toute ou presque toute la surface laissée sous les formerets des voûtes, les meneaux se composent d'abord d'un montant central, avec deux tiers-points surmontés d'un oeil. Telles sont les fenêtres hautes du choeur et de la nef de la cathédrale de Paris, refaites vers 1225 (voir CATHÉDRALE, fig. 3 et 4). Or, les meneaux des fenêtres hautes de Notre-Dame de Paris peuvent être considérés comme les premiers qui aient été faits en manière de châssis de pierre, rigides, entre des pieds-droits et des arcs construits par assises.
Il est intéressant de voir comment l'architecte introduisit ces châssis de pierre dans les anciennes fenêtres du XIIe siècle, et comment les meneaux furent appareillés. Les fenêtres hautes du choeur de Notre-Dame de Paris avaient été construites vers 1170.

Elles se composaient (1), conformément au tracé A, de pieds-droits avec colonnettes à l'extérieur (voir la section horizontale B, faite sur ab), surmontés de deux arcs en tiers-point concentriques C extra-dossés d'un rang de damiers. En D était le filet de recouvrement du comble en appentis posé sur la galerie, et en E des roses s'ouvrant sous cet appentis au-dessus des voûtes de cette galerie (voir CATHÉDRALE, fig. 3 et 4). Le système, nouveau alors, des meneaux qui permettaient de remplir de très-grandes fenêtres de vitraux colorés, avait si bien séduit les évêques, les chapitres et leurs architectes, qu'on n'hésita pas à détruire les roses E, les anciens appuis des fenêtres du XIIe siècle J, à remplacer les combles par des terrasses, à couper les pieds-droits F et à enlever l'arc intérieur des baies. Cela fait, on tailla dans les pierres restantes les colonnettes G, à l'intérieur et à l'extérieur; on incrusta des morceaux H dans les parties laissées vides par l'enlèvement des claveaux des roses, ainsi que l'indique le trait haché, on passa le meneau I au milieu des baies, et on appareilla sur ce meneau et sur les pieds-droits recoupés le châssis de pierre supérieur composé de deux arcs et d'un oeil. La courbe des arcs des fenêtres primitives fut ainsi changée, et entre l'extra-dos du châssis de pierre et l'intra-dos du second arc du XIIe siècle, laissé en place, on incrusta le remplissage K. Les joints de ce châssis de pierre, marqués sur notre figure, furent coulés en plomb avec goujons de fer posés ainsi que l'indique le détail L. Il est à présumer que la crainte qu'avaient les architectes de voir fléchir les arcs des vieilles fenêtres, affaiblis d'un rang de claveaux, les détermina à donner plus d'aiguïté à l'arc tiers-point des meneaux. Chacun de ces meneaux se composait ainsi: 1º de la colonnette centrale, dont nous donnons la section en M; 2º du sommier central en fourche; 3º des deux sommiers latéraux; 4º des deux closoirs des arcs inférieurs; 5º des quatre claveaux latéraux; 6º de la clef de l'oeil et de deux closoirs supérieurs, en tout treize morceaux de pierre pour une fenêtre de 10m,00 de haut sur 3m,40 de largeur en moyenne. Mais les espaces vides laissés entre ces divisions de pierre étaient trop grands encore pour pouvoir être vitrés sans le secours du fer. Une barre transversale passant à la naissance des arcs en N et traversant la tête du chapiteau P fut posée en construisant le châssis. Des barlotières O, scellées entre les pieds-droits et le meneau central, formèrent une suite de panneaux quadrangulaires; des montants verticaux R servirent encore à diminuer la largeur des deux vides et formèrent la bordure du vitrail. Dans l'oeil, quatre barres S vinrent aussi diviser la surface vide du cercle. Ces barres furent scellées dans le châssis circulaire. On observera que les joints de l'appareil tendent toujours aux centres du cercle ou des tiers-points.
Déjà cependant les fenêtres des chapelles du choeur de la cathédrale de Reims, contemporaines de celles que nous donnons ci-dessous, possédaient des meneaux qui, construits par assises, renfermaient dans l'oeil supérieur des redents destinés à diminuer le vide de ces oeils (voy. FENÊTRE, fig. 18). Dans ce cas, comme toujours, c'est à la Champagne que sont dues les innovations dans l'architecture gothique. Les fenêtres hautes de la nef et du choeur de Notre-Dame de Reims, bien que construites vers le milieu du XIIIe siècle, ont consacré le principe admis par l'architecte primitif de cet incomparable édifice. Ces fenêtres, indiquées d'ailleurs dans le croquis de Villard de Honnecourt antérieurement à la reprise des travaux de la cathédrale en 1241, appartiennent ainsi comme composition à une époque plus ancienne. Elles se composent d'un meneau central portant deux tiers-points avec un oeil subdivisé par des redents à six lobes (2).

Les meneaux reproduisent sur une plus grande largeur ceux des chapelles. Les vides n'ont pas moins de 2m,30 (7 pieds), aussi ont-ils été garnis de puissantes armatures en fer. Les redents de l'oeil sont rapportés en feuillure, comme l'indique la section A faite sur ab. La feuillure maintenant les vitraux est refouillée intérieurement, ainsi qu'on le voit par la section horizontale B, faite sur le meneau central, l'extérieur étant en E. Les panneaux de vitraux sont maintenus dans l'oeil au moyen de pitons d scellés à l'intérieur des redents. L'armature en fer de cet oeil est elle-même scellée au nu intérieur des redents. La section C est faite sur ef. On remarquera que les tiers-points du grand arc et des deux petits arcs ont pour générateur un triangle équilatéral, les centres des arcs étant posés aux naissances mêmes des courbes. On observera aussi que le second rang de colonnettes porte les boudins formant le nerf principal des meneaux, mais que ces boudins ne suivent pas la courbe du grand arc; de sorte que le nerf ou boudin de l'oeil pénètre dans le grand biseau X, que cet oeil semble circonscrit par l'archivolte, mais indépendant de son profil, que les meneaux paraissent n'être qu'un châssis rapporté ne faisant pas corps avec l'architecture, le tout étant cependant fait avec la bâtisse. Le système admis par l'architecte primitif de la cathédrale de Reims et scrupuleusement suivi par ses successeurs jusqu'à la fin du XIIIe siècle n'était plus de mode cependant à dater de 1240. À cette époque déjà, on prétendait ne plus laisser des vides aussi larges pour les panneaux des vitraux. Les fenêtres prenant toute la largeur entre les piles, un seul meneau ne suffisait pas toujours; on voulut subdiviser ces espaces lorsqu'ils étaient très-larges, et au lieu de deux claires-voies on en établit quatre, de manière à ne plus avoir à vitrer que des vides de 1m,00 à 1m,30 au plus (3 ou 4 pieds). Mais cette extension du principe présentait des difficultés; car rien, dans l'architecture antique, dans l'architecture romane, ni dans l'architecture orientale, ne pouvait à cette époque servir d'exemple. L'architecte qui conçut les premiers plans de la cathédrale d'Amiens, Robert de Luzarches, mais qui vit seulement élever les parties basses de la nef, avait disposé les fenêtres des collatéraux suivant le système adopté pour les fenêtres de la cathédrale de Reims: un meneau central, deux tiers-points et un oeil circulaire avec redents rapportés en feuillure.
Ses successeurs, ayant à vitrer les énormes fenêtres hautes de la nef, qui ont 6m,00 de largeur sur 13m,00 de hauteur, songèrent à garnir ces vides d'une armature en pierre assez puissante et assez serrée pour pouvoir poser des vitraux entre leurs vides sans avoir recours à cet amas de ferrailles que nous voyons appliquées aux fenêtres de la cathédrale de Reims. Toutefois, ils partirent toujours du même principe: ils établirent l'ossature principale suivant la donnée admise à Notre-Dame de Reims, c'est-à-dire qu'ils la composèrent d'un meneau central portant deux arcs en tiers-point avec un oeil circulaire supérieur; mais dans les deux grands intervalles laissés entre les pieds-droits et ce meneau central ils firent un second châssis de pierre, composé de la même manière: d'un meneau central portant deux tiers-points et un oeil. Ce système de cristallisation, c'est-à-dire de répétition à l'infini du principe admis que nous voyons appliqué rigoureusement dès la fin du XIIIe siècle dans l'architecture gothique, n'atteignit pas de prime abord ses conséquences logiques; il y eut des tâtonnements, il se présenta des difficultés d'exécution qui ne furent qu'imparfaitement résolues. Les fenêtres hautes de la nef de la cathédrale d'Amiens sont certainement une de ces premières tentatives, car leur construction ne saurait être postérieure à 1235.

Ces fenêtres (3) 198 se composent, comme on le sait, d'un meneau central bâti par hautes assises, de deux meneaux divisionnaires d'une plus faible section, composés de pierres en délit, de deux arcs en tiers-points parfaits, principaux, avec le grand oeil supérieur, et de deux arcs en tiers-points parfaits portant sur les meneaux divisionnaires avec leur oeil secondaire. Ces arcs en tiers-points secondaires portent leur nerf ou boudin continuant la section des meneaux divisionnaires, et ce nerf ou boudin vient pénétrer dans les biseaux des pieds-droits et du meneau central, ainsi que le fait voir le tracé perspectif A. Quant aux oeils secondaires B et C, leur section est particulière et ne participe pas des membres dans lesquels ils pénètrent. On observera même que, gêné par l'appareil, le constructeur a posé les redents de l'oeil B en feuillure comme ceux du grand oeil central. (En E, nous donnons au double la section sur ab de ces oeils secondaires.)
À Amiens, les constructeurs ne possédaient que des matériaux d'une assez médiocre résistance et d'une dimension peu considérable; ils avaient donc éprouvé des difficultés pour construire ces énormes claires-voies, ils avaient dû multiplier les joints pour éviter les trop grands morceaux de pierre. Or, si on fait attention à l'appareil que nous avons exactement reproduit, on verra qu'en effet les morceaux n'ont que des dimensions ordinaires et que les joints sont tracés de manière à éviter les ruptures qui sont à craindre dans ces ouvrages à claires-voies. Comme il arrive toujours, ce ne sont pas les moyens les plus simples qui se présentent d'abord à l'esprit de ceux qui inventent. Ces meneaux, avec leurs sections variées, avec leurs redents en feuillure, offraient certainement des difficultés de tracés et de tailles, des pénétrations dont les tailleurs de pierre ne se rendaient pas aisément compte, un désaccord entre les membres principaux et les membres secondaires, des parties grêles et des parties lourdes, des jarrets dans les courbes comme aux points I, par exemple; cependant déjà les architectes avaient fait régner le boudin ou nerf G tout au pourtour de l'archivolte, continuant la section de la colonnette H et venant pénétrer le nerf de grand oeil à la tangente.
C'était un progrès de tracé sur les meneaux des fenêtres de Notre-Dame de Reims. Mais on n'arrive pas, si rapidement que l'on marche, aux méthodes simples, aux procédés pratiques sans des tâtonnements. Donner un dessin sur une échelle réduite des compartiments ajourés d'une fenêtre et une seule section pouvant suffire à en tracer l'épure en grand, c'était évidemment le but auquel devaient tendre les architectes. Il s'agissait de trouver une méthode. Il fallait aussi éviter la disproportion entre les ajours, c'est-à-dire les répartir de telle sorte qu'ils ne fussent ni trop resserrés ni trop lâches. Il fallait (puisque le parti était admis de ne plus avoir des armatures en fer d'une grande surface) faire un réseau de pierre assez également serré pour éviter ces armatures lourdes, compliquées et dispendieuses. Les architectes de la nef haute de la cathédrale d'Amiens avaient dû s'apercevoir de la disproportion qui existait entre les oeils des meneaux, de la lourdeur des tiers-points secondaires englobant les oeils inférieurs, de la difficulté des tailles de ces pénétrations de membres à sections différentes. Aussi, élevant peu après les fenêtres hautes de la nef celles qui s'ouvrent dans le mur occidental du transsept, ils avaient déjà apporté des perfectionnements dans le tracé des meneaux de ces fenêtres (4).

Relevant la naissance de l'archivolte au-dessus des chapiteaux des meneaux, ils purent donner un diamètre moindre à l'oeil principal, trouver entre les petits tiers-points inférieurs et les deux tiers-points secondaires un large espace qu'ils remplirent par des trilobes qui ne donnaient plus un diminutif de l'oeil central. Dans l'oeil central, au lieu de redents simples, ils imaginèrent des redents redentés A qui occupaient mieux la surface vide et diminuaient l'importance de l'armature en fer. De plus ils ajoutèrent des redents B aux tiers-points inférieurs. Ce dessin général est évidemment mieux conçu que celui donné figure 3; mais aussi le travail de l'appareilleur et du tailleur de pierre est simplifié. On observera que, dans ce tracé, seuls les redents de l'oeil central sont embrevés en feuillure (voir la coupe C, faite sur ab); tous les autres membres sont pris dans l'appareil général. De plus, une seule section est génératrice de tous les membres; ainsi le meneau central est le profil DEF. Les meneaux secondaires I sont donnés par la section dérivée GEH. Les redents des tiers-points inférieurs adoptent la section KEL. Quant à la section faite sur ed, elle est donnée par DEM. Au moyen de cette combinaison, les axes seuls des boudins principaux P et des boudins ou colonnettes secondaires S étant tracés, et la section DEF avec ses dérivés étant donnée, l'ensemble des meneaux était obtenu sans difficulté par l'appareilleur. Restaient seulement, en dehors de cette combinaison, les redents de l'oeil central. Tous les profils de cette section DEF roulaient, sauf l'exception admise seulement pour l'extra-dos T des tiers-points secondaires et de l'oeil central, qui prend le profil simplifié DMD. On observera encore que, dans cette épure, l'appareil est infiniment plus simple et rationnel que dans l'épure précédente. Les joints tendent sans difficultés aux centres des tiers-points et en même temps aux centres des lobes. Ces joints étaient donc toujours normaux aux courbes, évitaient les aiguïtés et par conséquent les causes de brisures. Enfin les armatures en fer sont réduites à de simples barlottières garnies de pitons et à quelques barres secondaires légères.
Toutefois, dans cette combinaison ingénieuse, des tâtonnements sont encore apparents, aucune méthode géométrique ne préside au point de départ du tracé. Nous allons voir que les architectes du même édifice arrivent bientôt à des méthodes sûres, à des règles données par des combinaisons géométriques.
Les fenêtres des chapelles du choeur de la cathédrale d'Amiens sont contemporaines de la Sainte-Chapelle de Paris, elles datent de 1240 à 1245; or, les meneaux de ces fenêtres sont tracés d'après un principe géométrique fort-simple et très-bon. Il faut dire que ces meneaux consistent en un seul faisceau central portant la claire-voie sous les archivoltes (voy. CHAPELLE, fig. 39 et 40).

Soit (5), en A, la section horizontale d'une de ces fenêtres avec son meneau central B. Soient les lignes BB'B'', axes du meneau central et des colonnettes des pieds-droits. On remarquera d'abord que le même profil est adopté pour le meneau central et les pieds-droits. Soit la ligne CD, la naissance de l'arc qui doit terminer la fenêtre. L'espace entre les deux axes E et F, demi-largeur de la fenêtre, est divisé en quatre parties égales Ef, fG, Gh, hF. Du point f, prenant la demi-épaisseur de la colonnette ou boudin, cette demi-épaisseur est portée sur la ligne de base en f. Du point h, on reporte également cette demi-épaisseur en h'. Prenant la longueur Eh', on la reporte sur la ligne de base en h''. Sur cette base h'h'', on élève le triangle équilatéral h'h''H. Sur la base f'h', on élève également le triangle équilatéral If'h', et du sommet H du grand triangle équilatéral on tracera le petit triangle équilatéral Hi'i, semblable à celui If'h'. Prenant alors la longueur ef' et les points If'h', Hii' comme centres, on décrit les trilobes. Prenant les points h' et h'' comme centres et la longueur h''O comme rayon, on décrit le grand arc OP. Pour trouver les centres des deux arcs tiers-points inférieurs, des points f' et h', on trace deux lignes parallèles à h'I et à f'I; ces deux parallèles rencontrent les arcs inférieurs du trilobe en l et l'. Sur ces deux lignes, de l en m et de l' en m', on prend une largeur égale à la colonnette ou boudin. De ces deux points m et m', on tire deux parallèles à mg' et à m'g; ces deux parallèles rencontrent les lignes internes des boudins en n et en n'; dès lors les deux triangles mng', m'gn' sont équilatéraux, et prenant les points g et g' comme centres et la longueur gn' comme rayon, on trace les arcs tiers-points inférieurs. En T, nous avons tracé la moitié des meneaux avec les épaisseurs des profils. Ainsi, toutes les sections normales aux courbes donnent la section génératrice du meneau central B.
L'appareil est simple, logique, solide, car toutes les coupes sont normales, comme l'indique le tracé T. Sans tâtonnements, le boudin, aux points de rencontre de deux figures courbes, conserve toujours sa même épaisseur, ce qui est la règle la plus essentielle du tracé des claires-voies des meneaux. À dater du milieu du XIIIe siècle, les meneaux sont toujours tracés d'après des méthodes géométriques délicates, au moins dans les édifices élevés dans l'Île de France, la Champagne et la Picardie. Parmi ces meneaux, ceux dont les dessins paraissent les plus compliqués sont souvent produits par un procédé géométrique simple et n'offrant aucune difficulté à l'appareilleur. Nous en fournirons la preuve. D'abord les architectes de cette époque évitent les meneaux à sections différentes dans la même fenêtre; ils adoptent une seule section, même pour des meneaux de fenêtres à quatre travées, comme celles supérieures de l'église abbatiale de Saint-Denis (voy. FENÊTRE, fig. 24). Dès lors, il ne s'agit plus que de tracer les compartiments au moyen des lignes d'axes de la section des meneaux. Ce principe permet d'ailleurs de garnir les fenêtres d'un, de deux, de trois, de quatre meneaux, sans difficulté, de tracer les compartiments à une petite échelle, suivant une méthode géométrique, et de laisser faire ainsi, sans danger d'erreurs, le tracé de l'épure sur le chantier.
Les meneaux des fenêtres de l'église de Saint-Urbain de Troyes, qui datent de la seconde moitié du XIIIe siècle (1260 environ), sont tracés conformément à ce principe, c'est-à-dire qu'avec le dessin que nous donnons ici de l'une de ces fenêtres et une section des meneaux, grandeur d'exécution, l'épure peut être faite pour couper les panneaux. C'était là un avantage considérable dans un temps où beaucoup de monuments s'élevaient dans les provinces françaises, et même à l'étranger, sur des dessins envoyés par nos architectes du domaine royal. L'influence extraordinaire que le style adopté par notre école laïque avait acquise sur toute l'étendue du territoire actuellement français, sur une partie de l'Allemagne et de l'Espagne, était telle que les architectes avaient dû forcément chercher des méthodes de tracés qui ne fussent pas sujettes à de fausses interprétations.
À l'article CONSTRUCTION, pages 197 et suivantes, à propos de la structure de l'église Saint-Nazaire de Carcassonne, nous avons fait voir que les combinaisons les plus compliquées de tracés pouvaient facilement être transmises à l'aide de dessins faits à une petite échelle; la supériorité que devraient nous donner sur nos devanciers de six siècles des connaissances plus étendues en géométrie et tant d'autres avantages n'est pas telle cependant que nous puissions aussi facilement aujourd'hui transmettre les détails de notre architecture avec une complète confiance dans la manière de les interpréter. L'architecture n'est digne d'être considérée comme un art qu'autant qu'elle sort tout entière du cerveau de l'artiste et qu'elle peut s'écrire. Un temps où l'on arrive à tâtonner pendant l'exécution et à effacer, pour ainsi dire, sur le monument même au lieu d'effacer sur le papier, ne peut avoir la prétention de posséder une architecture 199. Une pareille époque ne saurait montrer trop de respect pour les artistes qui savaient ce qu'ils voulaient et qui combinaient un édifice tout entier dans leur cerveau avant d'ouvrir les chantiers. Examinons donc les meneaux des fenêtres du choeur de Saint-Urbain de Troyes (6).

Soit AB la largeur de la fenêtre. Sur cette largeur, qui donne les axes des boudins ou colonnettes des pieds-droits ayant pour section une demi-section de meneau, on a tracé l'arc brisé CDE; donc la base CD et les deux arcs de cercle circonscrivent un triangle équilatéral. Divisant ce triangle équilatéral par l'axe EF et par les deux lignes CG, DH passant par les milieux des deux lignes DE, CE, on obtient la figure EKIL, dans laquelle nous inscrivons le cercle dont le centre est sur l'axe en M. Marquant sur les lignes LC, LD deux points M'M'' à une distance égale à la longueur LM, on trace les deux autres cercles à l'aide de rayons égaux à celui du cercle dont le centre est en M. Il est clair que ces trois cercles sont tangents et inscrits par le grand arc brisé. Divisant ensuite la largeur AB en trois parties égales A,ab,B et chacune de ces trois divisions en deux, nous élevons des points N et O deux verticales, soit celle OP qui rencontre la circonférence du cercle M'' en P. De ce point P, prenant une longueur égale à bB, nous formons le triangle équilatéral PbS. Alors nous avons la base RS de la claire-voie portant sur les meneaux. Prenant les points bS comme centres et la longueur bS comme rayon, nous traçons les trois arcs brisés inférieurs; nous cherchons sur cette base RS les centres T du second arc brisé milieu, partant des naissances a,b et devant être tangent aux deux circonférences M'M''. Toutes ces lignes forment les axes X des meneaux dont nous avons donné la section en Y. Le tracé plus sombre Z sur cette section Y donne la section des redents. L'axe p de ces redents est à une certaine distance de l'axe X et ne se confond pas avec lui. Pour tracer les redents, nous prenons donc cette distance à l'intérieur de la circonférence des cercles et des arcs brisés inférieurs. Pour les redents des cercles, m étant le point marqué sur l'axe à la distance Xp donnée par la section des meneaux, on divise la longueur mM en deux parties égales; du point m' milieu et prenant m'm comme rayon, nous traçons les redents à quatre lobes des cercles. Quant aux redents des arcs brisés inférieurs, ils sont tracés suivant un même rayon; les centres des branches inférieures étant placés sur la ligne de base RS. Les redents de l'espace Q sont de même inscrits dans un triangle équilatéral. En AA, nous avons tracé à l'échelle de 0m,05 pour mètre le détail des redents des cercles avec l'armature circulaire en fer pincée par les quatre extrémités des lobes et destinée à maintenir les verrières. L'appareil des meneaux est indiqué par les lignes g, etc. En BB est donné le détail des chapiteaux. Ces meneaux, qui n'ont que 0m,095 d'épaisseur sur 0m,23 de champ, suffisent pour maintenir les vitraux de fenêtres qui ont 4m,40 de largeur sur 9m,20 de hauteur de l'appui à la clef, et encore reposent-ils sur une galerie à tour (voy. CONSTRUCTION, fig. 103); ils sont taillés dans du beau liais de Tonnerre et sont bien conservés. Il était impossible de combiner et d'exécuter un châssis de pierre plus léger, mieux entendu et plus résistant eu égard à son extrême ténuité.
Les formerets de la voûte circonscrivent exactement les grands arcs brisés qui ont servi de cintre pour les bander; car ces arcs entrent en feuillure sous ces formerets, comme l'indique la section X'. Il n'est pas besoin de dire que les meneaux verticaux sont d'une pièce et que les ajours sont taillés dans de très-grands morceaux de pierre, ainsi que l'indique l'appareil tracé sur la figure 6.
Vers la fin du XIIIe siècle et le commencement du XIVe, on employa des
méthodes encore plus précises et plus rationnelles. On remarquera, dans
l'exemple précédent, qu'il y a encore certains tracés qui sont livrés au
tâtonnement; ainsi, l'inscription du cercle du sommet, générateur des
trois autres, dans la figure EKIL, ne peut guère être obtenue dans la
pratique qu'en cherchant sur l'axe EF le centre M au moyen du
troussequin; les tangentes de ce cercle avec les lignes CI, DH et les
deux arcs CE, DE ne pouvant être connues d'avance que par des opérations
géométriques compliquées que certainement il était inutile de faire, les
architectes ont donc été amenés à chercher des méthodes géométriques qui
pussent toujours être démontrées et par conséquent dont le tracé fût
absolu. Ce résultat est remarquable dans la partie de l'église de
Saint-Nazaire de Carcassonne qui fut élevée au commencement du XIVe
siècle. Le triangle équilatéral devient, dans cet édifice, le générateur
de tous les compartiments des meneaux. Prenons d'abord les fenêtres du
sanctuaire de cette église qui sont les plus simples, et qui ne sont
divisées que par un meneau central supportant une claire-voie. Le tracé
générateur est fait sur l'axe des colonnettes ou boudins. Soit (7) une
de ces fenêtres. Les trois lignes verticales AA'A'' passent par les axes
des colonnettes dont la section est donnée en B. Cet axe est tracé en
a. La naissance de l'arc brisé étant en CC', sur cette base CC' on
élève le triangle équilatéral CC'D, et prenant CC' comme centres on
trace les deux arcs CD, C'D qui sont toujours les axes des boudins
donnés en a sur la section B. Divisant les lignes CD, C'D en deux
parties égales, des points dd' diviseurs et des points DCC'c, pris
comme centres, nous traçons les trois angles curvilignes équilatéraux
inscrits. Deux verticales abaissées des deux points dd' divisent les
deux arcs Cc, cC' en deux segments égaux. Prenant alors à
l'intérieur des deux travées des distances égales à la distance qu'il y
a entre les axes générateurs a et les axes b des membres secondaires
du faisceau dont la section est en B, soit en ee', la naissance de la
claire-voie étant fixée au niveau E, sur cette naissance nous cherchons
le centre de l'arc de cercle qui doit passer par les points e et f;
centre qui s'obtient naturellement en faisant passer une ligne par les
points e et f en élevant une perpendiculaire du milieu de cette
ligne jusqu'à sa rencontre avec la ligne de niveau E. Dès lors, on
considère les arcs C'D, C'd', cd', dd', etc., comme membres
principaux, et les arcs cC', ef, e'f comme membres secondaires.
Les centres des redents G sont pris sur les axes passant par le sommet
des triangles curvilignes, ainsi que l'indiquent les rayons ponctués;
ces redents sont membres secondaires. c'est-à-dire que leur section est
celle donnée par la seconde section génératrice dont l'axe est en b.
Mais les arcs Cc, cC' étant secondaires eux-mêmes, les axes des
redents sont tangents à ces arcs, comme on le voit en g. Quant aux
redents inférieurs h, ils sont tertiaires et prennent la section h'
sous-division de la section génératrice B. Les chapiteaux des arcs sont
placés au niveau CC'.
Le tracé F de la moitié de la claire-voie, sur une échelle de 0m,04 pour mètre, explique le tracé de cette épure de manière à faire comprendre la section de tous les membres. Souvent, comme dans le cas présent, la section des extra-dos M est simplifiée et donne la coupe N, mais cette disposition est rare; à dater de la fin du XIIIe siècle les sections sont uniformes aux intra-dos comme aux extra-dos des arcs des claires-voies. Sur ce tracé est donnée la section du formeret qui enveloppe exactement l'arc de la claire-voie lui servant ainsi de cintre. Les claires-voies de ces fenêtres sont d'une heureuse proportion; de l'appui à la naissance E des arcs inférieurs les colonnettes ont 7m,70 et sont composées de deux ou trois morceaux.
Les compartiments des claires-voies supérieures engendrés par des triangles équilatéraux se prêtaient parfaitement au système des meneaux disposés par trois travées, assez généralement adopté au XIVe siècle. Puisqu'on décorait les fenêtres par des vitraux, on voulait avoir un motif milieu; les fenêtres, par deux et quatre travées, étaient moins favorables à la peinture des sujets que la division par trois. Il y avait donc entente entre l'architecte et le peintre verrier. Dans la même église de Saint-Nazaire, les grandes fenêtres orientales du transsept sont, en effet, divisées en trois travées au moyen de deux meneaux; les compartiments surmontant ces meneaux, bien que variés entre eux; procèdent tous de combinaisons données par le triangle équilatéral. Voici (8) l'une de ces fenêtres.

Il est entendu qu'à dater du milieu du XIII siècle les compartiments des meneaux sont tracés en prenant les axes des colonnettes ou boudins. Soient donc aa' les axes de ces colonnettes dont la section est donnée en A, avec ses décompositions en membres secondaires et tertiaires; la ligne b étant l'axe du membre secondaire et celle c l'axe du membre tertiaire. La naissance du formeret étant en B, sur la ligne de base BB' on élève le triangle équilatéral BB'C. Les points BB' sont les centres des arcs principaux BC, B'C. Du même point B' et du point D, prenant BD comme rayon, nous décrivons les deux arcs B'e, De; du point e comme centre, nous décrivons le troisième arc DB', mais en diminuant le rayon de la distance qu'il y a entre les deux axes A et b. Il est clair que le centre e se trouve sur le côté B'C du grand triangle équilatéral. Prenant les points e et C comme centres, nous traçons le triangle équilatéral curviligne supérieur. Du point f de rencontre de l'arc de base avec l'axe de la fenêtre et prenant toujours la distance aa' comme rayon, nous obtenons les points de rencontre g qui sont les centres de l'arc brisé milieu fg. Ce sont là les axes des membres principaux du compartiment, ceux dont la section est la plus forte, celle A. Il s'agit maintenant de tracer les compartiments dont la section est donnée sur l'axe b secondaire. Prenant les points Ce comme centres, et ayant divisé l'arc Ce en deux parties égales, les longueurs ei, Ci, nous donnent les rayons des trois arcs formant le riangle curviligne concave à l'intérieur du triangle curviligne convexe supérieur. Ayant élevé les deux verticales ll' à une distance des axes aa' égale à la distance existant entre le grand axe A et l'axe secondaire b, du point n, prenant la distance ll' comme rayon, nous obtenons les points oo' qui sont les centres des arcs inférieurs on, o'n. Toujours en observant la distance entre les deux axes A et b de la section, nous traçons le trèfle milieu dont les centres sont posés aux angles d'un triangle équilatéral; puis, sur la ligne de niveau oo' prolongée, nous élevons l'arc brisé central inférieur tangent aux lobes du trèfle. Tous ces membres appartiennent à la section secondaire dont l'axe est en b. Les redents, les petits trèfles et les subdivisions tracées en P appartiennent à la section tertiaire c. En R est représentée la moitié des meneaux avec tous leurs membres, suivant l'épaisseur de chaque section, obtenus en portant à droite et à gauche des axes les demi-épaisseurs de ces sections. En S, nous figurons un des chapiteaux s des meneaux, et en T les goujons qui traversent les barres de fer placées à la naissance des claires-voies et qui sont destinés à maintenir dans leur plan et les colonnettes verticales et les compartiments. Ces scellements de goujons et tous les joints d'appareils sont coulés en plomb, précaution devenue nécessaire du jour où l'on avait réduit la section des meneaux à une très-petite surface. Si l'on veut apporter quelque attention à la disposition de cet appareil, on remarquera que les vides laissés au milieu des morceaux d'une grande dimension sont étrésillonnés par ces subdivisions de trèfles et de redents qui ajoutent à la solidité de ces claires-voies. Ces architectes de l'école gothique française sont de terribles logiciens, et la composition des meneaux de leurs grandes baies en est une nouvelle preuve.
Ainsi, par exemple, ces redents H que nous voyons apparaître vers le milieu du XIIIe siècle dans l'Île-de-France et d'abord à la Sainte-Chapelle de Paris, ces redents considérés comme une décoration, un agrément, sont primitivement indiqués par un besoin de solidité. Chaque fois qu'un inconvénient résultait d'une forme adoptée, on cherchait et on trouvait aussitôt un moyen d'y remédier, et ce moyen devenait un motif de décoration. On voit dans la figure 8 que la branche K est isolée et que le moindre tassement, qu'une pression inégale pourrait la briser en L; or, cette branche est consolidée au moyen du redent P formant lien en potence au-dessous. Il est clair que les trèfles X, inscrits dans les triangles évidés des plus grands morceaux de l'appareil, donnent une grande force aux branches de ces triangles. De même les redents M des branches des triangles curvilignes supérieurs et ceux N des trois étrésillons droits ajoutent singulièrement à la résistance de ces parties d'appareil. On ne fait pas autre chose aujourd'hui lorsqu'on veut donner une plus grande résistance à des pièces de fonte de fer, par exemple, sans augmenter sensiblement leur poids; mais il est vrai que l'on veut considérer ces moyens comme des innovations dues à la science moderne.
On nous permettra, tout en rendant justice à notre temps, de restituer cependant à chaque époque ce qui lui revient de fait; on est bien forcé, quand on veut étudier avec attention la composition de ces claires-voies de pierre adoptées par l'école laïque du moyen âge, de reconnaître que ces claires-voies, occupant des surfaces considérables relativement à celles données par les modes d'architecture antérieurs et modernes, sont tracées, combinées et appareillées de manière à présenter le moins de pleins et à offrir la plus grande résistance possible. Par le tracé des nerfs principaux et des coupes des joints, toutes les pesanteurs sont reportées sur les meneaux verticaux, mais principalement sur les jambages; quant aux panneaux ajourés, ils sont rendus presque aussi rigides que des dalles pleines au moyen de ces étrésillonnements tertiaires tels que les trèfles et les redents. Il fallait que ces combinaisons fussent assez bonnes, puisque la plupart de nos grands édifices gothiques ont conservé leurs meneaux, et que quand ils ont souffert des dégradations, il est facile de les restaurer ou de les remplacer comme on remplace un châssis de fer ou de menuiserie. Les meneaux de pierre ont même cet avantage qu'ils peuvent être réparés en partie s'il s'est fait quelques brisures, tandis qu'un châssis de bois ou de fer, une fois altéré, doit être refait à neuf.
Ajoutons que ces meneaux de pierre supportent des vitraux d'un poids énorme et les armatures de fer destinées à les attacher. Ne considérant ces membres d'architecture qu'au point de vue de l'effet qu'ils produisent, ils nous paraissent former des dessins d'un aspect agréable, rassurants pour l'oeil et heureusement composés. C'est dans l'Île-de-France qu'il faut toujours aller chercher les meilleurs exemples de cette architecture au moment où elle se développe pour arriver aux formules. On trouve au sein de cette école, la plus pure et la plus classique de l'art du moyen âge, une sobriété, une application de principes vrais, obtenue à l'aide des méthodes les plus simples, une délicatesse dans les proportions, dans le choix des profils qui laissent au second rang les oeuvres des autres provinces 200.

Nous donnons (9) une des fenêtres des chapelles du choeur de Notre-Dame de Paris, élevées en même temps que le choeur de l'église de Saint-Nazaire de Carcassonne, c'est-à-dire vers 1320.
On voit ici l'absence de toute combinaison compliquée, c'est toujours le dessin des meneaux des fenêtres de la Sainte Chapelle du Palais, mais allégé. Ces fenêtres se divisent encore en quatre travées au moyen d'un meneau central dont la section est donnée par l'axe A, et de deux meneaux secondaires dont la section dérivée de la principale est donnée par l'axe b. Soient a et a' les axes de la section principale A. Du point B, prenant a'a'' comme rayon, on décrit l'arc concentrique au formeret CB. Donc, BC est le côté d'un triangle équilatéral. De ce même point B et du point I, milieu de la base du triangle, prenant BI comme rayon, nous traçons les arcs BE. Or, BE est égal à EC. On trace le cercle supérieur tangent aux arcs BC,IE. Tels sont les axes des membres principaux, ceux dont la section est donnée par le profil dont l'axe est A. Reportant en dedans de la fenêtre et des points aa' une distance égale à la distance qu'il y a entre les axes A et b, en ee' et divisant la ligne de base ee' en deux parties égales, prenant ef comme rayon, nous traçons les arcs inférieurs efg, fe'g', puis nous traçons le sous-arc secondaire concentrique à l'arc brisé IBE. Nous inscrivons un second cercle dont le centre est en F, tangent aux deux arcs inférieurs et à l'arc secondaire IBE. Prenant à l'intérieur de ce cercle et des arcs inférieurs une distance égale à la distance qu'il y a entre l'axe b de la section secondaire et l'axe c de la section tertiaire, nous traçons les axes des redents.
L'épure de ces meneaux est donc facile à faire, la composition est heureuse, claire, solide et d'un appareil solide, ainsi qu'on peut le voir en G. En K est donnée la section du pied-droit h, portant le formeret de la voûte formant archivolte à l'extérieur. En L est donné le profil de l'appui dont l'extérieur est en l avec la pénétration des bases. Le tracé m donne la projection horizontale des tailloirs des chapiteaux, celui n la projection horizontale des bases. C'est ici que la fonction des redents est évidente. Ces redents i donnent une grande force supplémentaire aux branches principales et secondaires des arcs, et on voit comme ils sont adroitement disposés pour ne pas gêner les coupes des joints. Le meneau central et les deux meneaux secondaires verticaux sont d'un seul morceau chacun; quant à la claire-voie supérieure, elle se compose seulement de quinze morceaux, et cependant ces fenêtres ont 4m,00 de largeur sur 4m,50 environ de hauteur sous clef, dans oeuvre.
Une fois le principe logique admis dans la construction des meneaux comme dans les autres membres de l'architecture gothique, les architectes ne s'arrêtent pas. Bientôt ils renoncent totalement aux sections génératrice, secondaire et tertiaire; ils adoptent une seule section pour tous les membres des meneaux, sauf les redents qui prennent moins de champ. Vers la fin du XIVe siècle on cherche déjà même à éviter les arcs brisés. Les meneaux ne se composent que de courbes et de contre-courbes, de manière à ne former plus qu'un réseau d'une résistance uniforme. En théorie cela était logique; en pratique, ces formes étaient d'un aspect moins satisfaisant.
Pour ne pas charger cet article, déjà très-étendu, d'un trop grand nombre d'exemples, nous allons étudier les meneaux adoptés au XVe siècle, et dans la composition desquels on aperçoit cette tendance des constructeurs de cette époque de ne plus tenir compte que de la logique, souvent aux dépens du style et de la simplicité apparente.

Alors, dans la composition des meneaux, les architectes cherchent à résumer toutes les forces et pesanteurs en une pression verticale. Soit (10) une de ces fenêtres du XVe siècle 201. La section des trois meneaux de ces fenêtres est la même (voir le détail A), elle se reproduit également dans la claire-voie; les redents seuls ont moins de champ et prennent la section B. Au moyen des grandes contre-courbes des deux divisions principales, les pesanteurs sont amenées sur le meneau central C et sur les jambages D. Une partie de ces pesanteurs est même déviée sur les meneaux intermédiaires E par les courbes renversées a et par celles b. Les combinaisons de ces courbes et contre-courbes font assez connaître le but que s'est proposé d'atteindre le constructeur, savoir: une claire-voie formant un réseau dont les mailles se résolvent en des pressions verticales, un système d'étrésillonnement général et des renforts à tous les points faibles donnés par les redents. On comprend, par exemple, que la corne c se briserait sous la moindre pression, si elle n'était renforcée par le redent d. Les barres e destinées à maintenir les panneaux des vitraux viennent encore ajouter un étrésillonnement à celui donné par la combinaison de la claire-voie de pierre.
Si l'on veut examiner ces meneaux avec attention, on reconnaîtra que tous les points faibles, ceux qui doivent subir les plus fortes pressions, sont étayés ou étrésillonnés par des courbes qui tendent à rendre tous les membres solidaires; que ces courbes sont tracées en raison de la véritable direction des pressions, de manière à décomposer celles qui sont obliques et à les ramener à des pesanteurs agissant verticalement; que les joints d'appareil sont coupés perpendiculairement à la direction de ces pressions, afin d'éviter les joints maigres, sujets à glisser ou à causer des brisures. Nous n'avons pas pour ce genre d'architecture un goût bien vif, mais il nous est impossible de ne pas reconnaître là l'oeuvre de constructeurs très-expérimentés, très-savants, logiques jusqu'à l'excès et chez lesquels la fantaisie ou le hasard n'avait pas de prise. Quand l'abus d'un principe conduit à de pareilles conceptions, il faut déplorer l'abus, mais il faut équitablement constater la valeur du principe et tâcher d'en tirer profit en évitant ses excès. Ces gens-là connaissaient à fond les ressources de leur art, ne faisaient toute chose que guidés par leur raison. Il ne nous appartient pas aujourd'hui de leur jeter la pierre, nous qui, possesseurs de matériaux variés et excellents, ne savons pas en tirer parti, et qui montrons notre insuffisance lorsqu'il s'agit de combinaisons de ce genre en architecture. Dans ce dernier exemple, les meneaux verticaux sont d'une seule pièce chacun, de l'appui à la naissance des courbes. La barre G traverse la tête de ces meneaux et maintient les sommiers de la claire-voie au moyen de goujons en os 202. Quant aux barres H, ce sont des barlotières simplement engagées d'un centimètre ou deux dans les montants. Des vergettes maintenaient les panneaux des vitraux engagés dans les feuillures I. Les barres et barlotières, ainsi que les tringles e, sont garnies de pitons et de clavettes. Les architectes du XVe siècle se fiaient si bien à la combinaison de leurs meneaux qu'ils les taillèrent souvent dans de la pierre demi-dure, dans du banc royal, par exemple. Il faut dire aussi qu'ils leur donnaient une section relativement plus forte que celle adoptée pour les meneaux du XIVe siècle, qui sont toujours les plus délicats. Ces compartiments de meneaux furent conservés jusque vers le milieu du XVIe siècle. Cependant, à l'époque de la Renaissance, quelques tentatives furent faites pour mettre les meneaux en harmonie avec les nouvelles formes de l'architecture en vogue à cette époque. Témoin certains des meneaux de l'église de la Ferté-Bernard, qui présentent le plus singulier mélange des traditions du moyen âge et de réminiscences de l'antiquité romaine. On croirait voir des arabesques de Pompéii exécutées en pierre.

Voici (11)l'une de ces combinaisons. La fenêtre est divisée par deux meneaux verticaux G, son axe étant en M. L'appareilleur n'a pas ici cherché des coupes savantes pour assembler les morceaux de la claire-voie. Celle-ci ne se compose réellement que de trois linteaux ajourés, superposés, dont on voit les lits en LL'L'', les branches d'arcs O faisant partie de ces linteaux. On reconnaît encore cependant que l'architecte, par la disposition des arabesques, a voulu donner de la résistance aux points faibles des évidements. Les figurines, les enroulements n'existent qu'en dehors du vitrial, les panneaux de verre étant enchâssés dans les compartiments principaux. La colonnette K même ne porte que la demi-épaisseur des meneaux et n'existe que du côté du dehors. En A est tracée la section sur ab et en B la section sur cd. La partie la plus délicate de cette claire-voie n'est guère qu'une décoration extérieure qui ne maintient en aucune façon les panneaux de verre, mais qui cependant donne un peu plus de solidité à l'ouvrage. Ces meneaux produisent un assez bon effet et sont exécutés avec une finesse et une perfection remarquables. Les soffites rampants sous les corniches et frontons sont ornés de gravures délicates. Le système de linteaux ou d'assises ajourés adoptés ici ne pouvait convenir qu'à des fenêtres assez étroites, puisqu'il interdisait les joints verticaux. Dans la même église, les claires-voies des fenêtres ayant trois meneaux et quatre travées sont combinées dans le genre de celles données précédemment, fig. 10.
Les fenêtres de l'architecture civile possédaient aussi des meneaux, lorsqu'elles étaient d'une trop grande largeur pour qu'il fût possible de ne les fermer qu'avec un seul ventail (voy. FENÊTRE, fig. 29, 31, 32, 33, 35, 36, 37, 38, 40, 41 et 42). Ces meneaux, jusqu'à la fin du XIIIe siècle, ne consistent habituellement qu'en une colonnette soulageant le linteau. Les architectes déployaient un certain luxe de sculpture dans les meneaux de palais et quelquefois même ornaient leurs fûts de figures, en manière de cariatides.

Nous avons retrouvé à Sens un très-beau meneau de ce genre qui date du XIIe siècle (12) 203. La statuette adossée à la colonne à section octogonale formant le corps du meneau représente la Géométrie ou l'Architecture; elle tient un grand compas d'appareilleur. En A est tracée la section du meneau faite sur ab, et en B le côté du meneau avec le renfort postérieur destiné à recevoir les targettes. Dans la section A, nous n'avons pas indiqué par des hachures la coupe de la figure afin de laisser voir celle de la colonnette dans le fût de laquelle s'engage la statue. Sur la partie inférieure des meneaux des fenêtres hautes de la cathédrale de Nevers, à l'extérieur, on remarque aussi des statuettes adossées aux fûts des colonnettes centrales.
À l'époque de la Renaissance, on voit aussi des meneaux en forme de cariatides, ou de gaînes surmontées de bustes. Ce ne fut guère que sous le règne de Louis XIV que l'on renonça définitivement aux meneaux; on les employait encore au commencement du XVIIe siècle pour maintenir les fermetures des baies de croisées. Les fenêtres intérieures de la cour du Louvre étaient originairement garnies de meneaux d'un aspect monumental qui donnait de l'échelle à ces grandes ouvertures. Ces meneaux sont remplacés aujourd'hui par des montants en bois avec impostes également en bois, qui ne sont guère en harmonie avec l'édifice, qu'il faut repeindre tous les dix ans et refaire à neuf lorsqu'ils viennent à pourrir, c'est-à-dire deux ou trois fois par siècle. Cela est, dit-on, plus conforme aux règles de la bonne architecture; pourquoi? Nous serions fort embarrassés de le dire.
Note 198: (retour) Voyez l'ensemble de la composition de ces fenêtres à l'article FENÊTRE, fig. 20.
Note 199: (retour) Il n'est pas besoin ici de rappeler combien de fois, à Paris même, nous avons vu depuis peu défaire et refaire sur les monuments eux-mêmes; c'est une manière de chercher le bien ou le mieux quelque peu dispendieuse. Jadis on l'essayait sur le papier; mais, une fois l'exécution commencée, toutes les parties se tenaient, étaient solidaires, et ne pouvaient ainsi être changées sans qu'il fût possible de donner des raisons sérieuses de ces changements.
Note 200: (retour) Il ne faut pas oublier que la construction du choeur de l'église Saint-Nazaire de Carcassonne est due à un architecte du domaine royal.
Note 201: (retour) Celle que nous donnons ici vient du choeur de l'église d'Eu, dans lequel l'architecture du milieu du XVe siècle est pure et sagement entendue.
Note 202: (retour) À dater du XVe siècle, les constructeurs qui avaient eu l'occasion de constater combien les goujons en fer, en gonflant par suite de l'oxydation, étaient préjudiciables aux travaux de pierre et les faisaient éclater, remplacèrent ces goujons de métal par des goujons en os de mouton ou en corne de cerf. Ces derniers ont conservé toute leur dureté.
Note 203: (retour) Cette colonnette, qui servait de meneau à une fenêtre, est placée aujourd'hui à l'une des baies du rez-de-chaussée de la salle synodale de Sens.
MENUISERIE, s. f. (Hucherie, huisserie, menuisiers, scieurs d'aiz, manhuissiers). Si les populations du Nord sont particulièrement aptes à faire des ouvrages de charpenterie, elles ne sont pas moins habiles à donner aux bois ces formes à la fois délicates, légères et solides qui constituent la menuiserie. L'art de la menuiserie n'est d'ailleurs qu'une branche, qu'un dérivé de l'art des charpentiers dans les premiers siècles du moyen âge; les moyens d'exécution sont les mêmes.
L'art de la menuiserie se distingue nettement de l'art de la charpenterie, lorsque l'on commence à employer pour le débitage, la coupe et le polissage des bois, des outils très-perfectionnés. L'invention de la scie remonte à une haute antiquité; les anciens connaissaient le rabot ou la demi-varlope et la varlope. Cependant, jusqu'au XIIIe siècle, on employait souvent, pour la menuiserie, des bois refendus (merrain), travaillés au ciseau et à la gouge sans le secours du rabot.
Il ne nous reste qu'un bien petit nombre d'objets de menuiserie antérieurs au XIIIe siècle, et ces fragments ressemblent beaucoup, pour la combinaison des assemblages, à des oeuvres de charpenterie exécutées sur une petite échelle. Mais à dater du XIIIe siècle, l'art de la menuiserie prend un grand essor, possède ses règles particulières et arrive à un degré de perfection remarquable. Les ouvrages de menuiserie qui nous restent des XIVe et XVe siècles sont souvent des chefs-d'oeuvre de combinaison, de coupe et de trait. Les traditions de cet art, conservées jusqu'au XVIIe siècle, résultent: 1º d'une parfaite connaissance des bois; 2º d'un principe de tracé savant; 3º d'un emploi judicieux de la matière, en raison de ses qualités propres.
Comme dans tout système de construction, dans la menuiserie, la matière employée doit commander les procédés d'assemblages et imposer les formes; or, le bois est une matière qui possède des propriétés particulières dont il faut tenir compte dans la combinaison des oeuvres de menuiserie comme dans la combinaison des oeuvres de charpente; les artisans du moyen âge ne se sont pas écartés de ce principe vrai. La connaissance des bois est une des conditions imposées au menuisier; cette connaissance étant acquise, faut-il encore savoir les employer en raison de leur texture et de leur force. Le bois qui se prête le mieux aux ouvrages de menuiserie est le chêne, à cause de sa rigidité, de la finesse de ses fibres, de sa dureté égale, de sa durée et de sa beauté. Aussi, pendant le moyen âge, en France du moins, le chêne a-t-il été exclusivement employé dans la menuiserie de bâtiment.
Pour être employé dans la menuiserie, le chêne, doit être parfaitement sec, c'est-à-dire débité depuis au moins six ans. Si nous examinons les ouvrages de menuiserie des XIIIe, XIVe et XVe siècles, nous observons, en effet, que les bois n'ont point joué, qu'ils sont restés dans leurs assemblages et qu'ils ne présentent pas de gerces. Ces bois, une fois débités, étaient d'abord laissés dans des lieux humides et même dans l'eau, puis empilés à claires-voies sous des abris secs, retournés souvent et quelquefois soumis à l'action de la fumée 204.
Les menuisiers du moyen âge n'employaient pas les bois trop vieux qui sont sujets à se gercer et à se piquer. Ils faisaient débiter des chênes de deux cents à trois cents ans, c'est-à-dire des troncs, dont le diamètre, à 3m,00 au-dessus du sol, aubier déduit, varie de 0m,70 à 1m,00. Ces troncs étaient sciés en quatre dans la longueur à angle droit; chaque quart était débité suivant diverses méthodes, mais toujours en tenant compte, autant que possible, de la texture du bois.

Un tronc de chêne qu'on laisse desséché se gerce conformément à la figure A (O), ce qui est facile à expliquer. Les couches concentriques sont d'autant plus dures et compactes qu'elles se rapprochent du centre, d'autant plus poreuses qu'elles se rapprochent de la circonférence. Ces couches contiennent donc d'autant plus d'eau qu'elles ont un plus grand rayon. Lorsque le bois se dessèche, les couches extérieures prennent un retrait plus considérable que celles intérieures; il en résulte des fentes ou gerces, tendant toutes au coeur du tronc. Si le débitage du bois est fait, sans tenir compte de cet effet de la dessiccation, les planches débitées se gercent ou se contournent; elles sont sensibles à toutes les variations de la température. Si, au contraire, ce débitage est fait en raison de la direction naturelle des gerces, les planches se rétrécissent dans leur largeur, mais ne peuvent ni se fendre ni cartiner, c'est-à-dire se courber dans le sens de leur sciage. Le chêne est formé d'une succession de couches comme tous les bois, mais ces couches sont réunies par des espèces de chevilles naturelles qui les rendent solidaires; ces chevilles, qu'on nomme mailles, tendent au centre du tronc. Si donc le débitage est fait comme l'indique le tracé sur le quart B, il est fait dans les meilleures conditions; c'est ce qu'on appelle le débitage sur maille (parallèlement aux mailles). Ce débitage est long et laisse tomber beaucoup de triangles qui ne sont que des chanlattes. Le meilleur débitage après celui-ci est le débitage tracé sur le quart D, puis celui tracé sur le quart E. Quant aux madriers et membrures, le débitage le plus économique est celui tracé en F. Les mailles du chêne donnent non-seulement de la solidité aux planches débitées suivant les rayons du tronc, mais encore présentent des parements d'un aspect soyeux, moiré, qui ajoute beaucoup à la beauté du bois. Les chênes débités sur maille sont donc les meilleurs pour la menuiserie 205.
Bien que les menuisiers employassent la colle de peau et la colle de fromage, cependant la solidité de l'oeuvre dépendait avant tout de la disposition des assemblages à queue d'hironde, ou chevillés.

Pour joindre des ais, on ne se servit qu'assez tard (vers le XVe siècle) des rainures ou languettes. On les réunit au moyen de queues d'hirondes entaillées à mi-bois (1), ainsi qu'on le voit en A; ou de barres embrévées et chevillées, B; ou de barres-à-queues entièrement embrévées, C; ou de prisonniers D; en bois dur ou même en fer. Ce sont là des combinaisons élémentaires qui ont dû être appliquées de tout temps. En effet, des ouvrages de bois de l'antiquité égyptienne sont façonnés d'après ces procédés.
Sur les rives des ais, on interposait une couche de colle de fromage qui faisait adhérer les planches ou les madriers entre eux. Au moyen d'un racloir de fer recourbé, on polissait la face vue et on la recouvrait de peinture, ou on l'intaillait à une faible profondeur en réservant des ornements ou des figures. C'est d'après ce procédé que sont faites les portes en pin de la cathédrale du Puy-en-Vélay qui remontent au XIe siècle. Ces ornements, légèrement découpés en relief, étaient eux-mêmes, ainsi que les fonds, recouverts de peintures sur une impression d'oxyde de plomb (minium) 206.
Deux conditions principales semblent avoir été imposées aux oeuvres de menuiserie du moyen âge: économie de la matière, et la plus grande force possible laissée au bois au droit des assemblages.--Économie de la matière, en ce que les renforts sont évités du moment qu'ils ne peuvent être compris dans une pièce équarrie; en ce que les panneaux, par exemple, n'ont jamais que la largeur d'une planche, c'est-à-dire 0m,22 au plus, 8 pouces; les montants et traverses, 0m,08, 3 pouces au plus, pour les ouvrages ordinaires.--Plus grande force possible laissée au bois là où il porte assemblage, en ce que les chanfreins, élégissements et moulures s'arrêtent dès qu'un assemblage est nécessaire. L'observation de ces deux conditions donne un caractère particulier à la menuiserie. Si la matière est économisée, si elle est employée en raison de ses qualités, la main-d'oeuvre est prodiguée, comme pour faire ressortir les précieuses propriétés du bois; car il ne faut pas oublier que pendant le moyen âge la main-d'oeuvre est toujours en raison de la valeur de la matière; elle lui est supérieure, mais dans une proportion relative.
Les menuisiers du moyen âge tiennent compte de la valeur du bois, comme les appareilleurs tiennent compte de la valeur de la pierre. Il y a là une idée juste, un principe vrai et un sentiment de l'économie qui imposent l'attention et l'étude, sans nuire à l'art, car c'est de l'art. Ces artisans pensaient qu'une matière aussi précieuse que le bois, qui vient lentement et demande des préparations longues pour être définitivement mise en oeuvre, mérite qu'on ne la prodigue pas et qu'on donne l'idée de sa valeur par le soin avec lequel on la travaille. Ces artisans ne donnaient pas à la menuiserie de pin, de mélèze ou de sapin, les formes que permet l'emploi du chêne ou du noyer. Observant les qualités particulières aux diverses essences, ils tenaient à la légèreté jointe à la solidité; ce qui est la première loi de la menuiserie, ainsi que nous l'avons dit déjà. Jamais, par conséquent, il ne leur serait venu à la pensée de simuler en menuiserie des formes convenables pour de la pierre; jamais ils n'appliquaient à la menuiserie de grandes courbes qui exigent un déchet considérable et forcent de couper le bois à contre-fil. Toutes leurs combinaisons partent de la ligne droite, au moins pour les membrures. L'étude de cet art, si fort détourné de sa voie aujourd'hui, est donc intéressante; car avec un système de structure très-restreint, des dimensions qui se renferment dans les forces de bois débités uniformément, ces artisans sont parvenus à trouver les combinaisons les plus variées et les plus ingénieuses sans être arrêtés jamais par les difficultés que pouvaient présenter ces combinaisons.
Il nous faut classer les ouvrages de menuiserie par natures, afin de mettre de l'ordre dans cet article. Nous commencerons par les plus simples en principe, par les claires-voies, les assemblages de bois d'égale force, présentant des clôtures à jour sur un seul plan, des grillages en un mot.

CLÔTURES, CLAIRES-VOIES, CLOTETS, LAMBRIS.--Voici (2) une de ces grilles de bois comme on en voit encore dans la cathédrale de Bâle et dans quelques églises des provinces de l'Est. D'un simple treillis de chevrons assemblés à mi-bois, le menuisier arrivait à façonner une clôture d'une aspect monumental. Le principe émis ci-dessus, et qui consiste à laisser au bois toute sa force au droit des assemblages, est scrupuleusement observé; mais entre ces assemblages, au droit des vides, l'ouvrier a pratiqué des élégissements qui forment une décoration et enlèvent à cette combinaison si simple l'apparence grossière qu'elle aurait si les bois eussent conservé leur équarrissage 207.

Voici encore (3) un exemple d'un grillage formant lambris plein. Les montants et les traverses sont de même, assemblés à mi-bois, élégis entre les assemblages. Les vides carrés laissés entre le grillage sont remplis par des petits panneaux simplement engagés dans une feuillure comme des tablettes dans un cadre (voir la section A) 208.
Ces sortes de grilles en bois étaient fort en usage au moyen âge dans les châteaux et les maisons; souvent les grandes salles étaient divisées par des claires-voies de ce genre, mobiles, que l'on plaçait lorsque l'on voulait obtenir des divisions provisoires. En hiver, des tapisseries étaient suspendues à ces claires-voies; en été, elles restaient à jour. Ces divisions mobiles, appelées clotets, étaient souvent fort richement décorées, possédant des panneaux à jour et formées d'entrelacs, de membrures ingénieusement assemblés, toujours à mi-bois. Car, ne l'oublions pas, le caractère dominant de la menuiserie française au moyen âge, c'est d'être assemblée, de conserver une structure logique en concordance parfaite avec la forme. Il existe en Italie, en Espagne, en Orient même, des ouvrages de menuiserie d'un aspect saisissant, qui séduisent par leur excessive richesse et leur combinaison compliquée; mais lorsque l'on examine attentivement la structure de ces ouvrages, on s'aperçoit bientôt que cette structure ne concorde nullement avec l'apparence. La légèreté n'est qu'extérieure, la construction est des plus grossières; ce sont, par exemple,--ainsi que cela se voit dans la menuiserie arabe de l'Espagne,--des placages de moulures coupées d'onglet et clouées sur des fonds de madriers rangés à côté les uns des autres plutôt qu'assemblés; ce sont des collages de bois découpés, rapportés les uns sur les autres, suivant un charmant dessin, mais sans que cette décoration s'accorde en rien avec la structure vraie; ce sont encore,--ainsi qu'on peut l'observer dans certaines oeuvres de menuiserie de l'Italie et même de l'Allemagne du moyen âge,--de véritables billes de bois réunies par des prisonniers, à travers lesquelles passent des moulures, des bas-reliefs, des ornements, coupés en pleine masse comme dans un bloc de marbre. Les moulures sont taillées à contre-fil, les joints tombent au milieu d'un relief, peu importe. Entre l'emploi de la matière et la façon de la décorer, il n'y a nulle harmonie, nulle entente; le menuisier et l'artiste sont deux hommes qui travaillent l'un après l'autre séparément. Le menuisier n'est qu'un assembleur de blocs; l'artiste, qu'un sculpteur ne se préoccupant pas de la nature de la matière qu'on lui fournit. À coup sûr, ces oeuvres peuvent être fort belles au point de vue de l'art du sculpteur, mais on ne saurait les considérer comme de la menuiserie. Pourquoi faut-il que nous en soyons venus au point d'expliquer ainsi et de revendiquer ces qualités si bien françaises? Pourquoi sont-elles méconnues, oubliées?... Ces ouvrages de bois des Arabes, des Orientaux, ont au moins conservé la forme traditionnelle de la véritable menuiserie, et si les artisans n'en comprennent pas et n'en savent plus appliquer la structure, du moins ils en ont respecté l'apparence; mais on n'en saurait dire autant de la menuiserie italienne, non plus que de celle que l'on fait en France depuis le XVIIe siècle par imitation et, contrairement à notre esprit, éminemment logique 209.

Voici (4) une de ces clôtures en bois de sapin comme on en voit encore dans les provinces de l'Est et sur des vignettes de manuscrits ou peintures du XVe siècle 210. Le système se compose de tringles de sapin de 18 lignes d'équarrissage (0m,04). Sur les montants A, s'assemblent à mi-bois les écharpes B. Sur celles-ci, les écharpes C, D et E; sur ces derniers, les montants F, toujours à mi-bois. Tout l'ouvrage est maintenu entre un châssis G, H, I, fait de chevrons de 3 pouces d'épaisseur (0m,08) sur 3 pouces et demi (0m,095). Au droit de chaque assemblage à mi-bois, est une cheville en fer doux K, munie de deux rondelles et rivée. Sur les faces de chaque hexagone, les arêtes sont chanfreinées, ainsi que l'indique le détail L, et dans les triangles à jour M, les arêtes des tringles sont également entaillées de manière à former des étoiles à six pointes, composées de deux triangles équilatéraux se pénétrant. On observe ici que, si le principe est simple, si la matière est commune, la main-d'oeuvre prend une certaine importance. En N, nous avons présenté une coupe de la clôture faite sur ab, et en P un détail perspectif du morceau O désassemblé. Il est inutile de faire remarquer la solidité et la parfaite rigidité de ce léger treillis, dont l'effet est très-brillant. Ces sortes d'ouvrages de menuiserie étaient presque toujours peints de couleurs claires, rehaussées de filets bruns ou noirs. Ainsi, dans l'exemple que nous donnons ici, les fonds étaient blancs, les chanfreins des hexagones brun rouge, ainsi que les trois biseaux des étoiles; celles-ci étaient en outre bordées d'un mince filet noir. Les rondelles et rivets en fer étaient également peints en noir.
Nous pourrions multiplier ces exemples, mais les personnes du métier sentiront tout le parti qu'on peut tirer de ces combinaisons sans qu'il soit nécessaire d'insister.
Il y a, dans la menuiserie française du XIVe siècle, certains ouvrages qui ont bien quelque ressemblance avec les oeuvres des Orientaux mentionnées ci-dessus, mais dont la structure cependant est mieux raisonnée. Ces clôtures, ces barrières, ces lambris étaient simplement formés de planches posées jointives, embrévées dans un bâti; pour empêcher les planches de gauchir, de coffiner, autant que pour décorer les surfaces planes, au moins d'un côté, le menuisier rapportait par-dessus un treillis de bois légers assemblés à mi-bois et formant des combinaisons géométriques plus ou moins compliquées. La surface plane des planches était même souvent sculptée en faible relief (puisque la sculpture était obtenue aux dépens de l'épaisseur de ces planches) entre les compartiments formés par les treillis.

Voici (5) un exemple de ces ouvrages de menuiserie. Les joints des planches, d'une largeur d'un pied (0m,32), sont marqués sur notre dessin. Le treillis assemblé à ses extrémités dans les membrures du bâti, ainsi qu'il est indiqué en a (voir le détail A), est cloué, à chaque rencontre, sur les planches du fond, et forme ainsi une surface parfaitement rigide qui empêche le gauchissement de ce fond. Ce treillis est assemblé à mi-bois avec coupes d'onglet au droit des moulures, ainsi qu'on le voit en b. La coupé C donne en c l'épaisseur de la planche et en d celle du treillis 211. Une claire-voie, composée de colonnettes tournées, surmontait l'appui D; de distance en distance, des montants E maintenaient le tout. En F, nous donnons le profil de la traverse supérieure f; en G, le profil de l'appui g et en H, le profil de la traverse basse h. Nous verrons tout à l'heure des vantaux d'une porte de l'église de Gannat, combinés d'après le même principe.
On comprendra comment les tringles de bois, rapportées sur ces planches et se coupant dans tous les sens, devaient les maintenir dans leur plan. Ce système, toutefois, est exceptionnel dans les oeuvres de menuiserie du moyen âge en ce que nous n'y trouvons pas les panneaux embrévés, mais un fond simple sur lequel est cloué un réseau de bois; ce réseau n'est pas seulement une décoration rapportée, il est composé de pièces assemblées et se tient de lui-même. Dès le XIIIe siècle, on avait façonné en France des ouvrages de menuiserie où le système des panneaux embrévés en feuillures est adopté; mais les languettes et feuillures sont généralement alors à grain d'orge.

Nous donnons (6) un de ces panneaux, présenté de face en A, en coupe en B, et en section horizontale en B'. Ce système mérite quelque attention. Un lambris se compose de montants et de traverses, entre lesquels sont embrévés des panneaux. Les montants de rive, ceux qui forment les extrémités du lambris, reçoivent les traverses à tenons et mortaises; tandis que les montants intermédiaires s'assemblent dans les traverses. En C, on voit un montant d'extrémité; en D, un montant intermédiaire. Dans ce cas, la moulure E de la traverse est poussée sans tenir compte des assemblages. Puis, lorsqu'il s'agit de faire les assemblages des montants intermédiaires, la moulure est enlevée, ainsi qu'il est indiqué en F. Dès lors, cette moulure vient battre contre la tête des montants. Ceux-ci ne sont chanfreinés ou moulurés que dans leur partie libre; les chanfreins ou moulures s'arrêtent en G par un congé, pour laisser au montant toute sa force au droit des assemblages et pour éviter les joints d'onglet toujours défectueux. Les panneaux H sont embrévés à grain d'orge, suivant la section I; s'ils sont amincis sur leurs quatre rives pour entrer en feuillure, ils conservent toute leur force au centre, comme le marque la section B' en K. Ces panneaux sont libres dans leurs feuillures; ils peuvent se rétrécir sans inconvénients. Les montants et traverses étant assemblés carrément, le jeu que donne la dessiccation des bois n'apparaît pas dans les joints, ainsi qu'il arrive toujours avec le procédé des onglets. Tout le système se rétrécit ensemble. Nous donnons en L divers modes d'assemblages des montants avec les traverses des lambris. En M, ce sont les montants dont la moulure est poussée, sans tenir compte de l'assemblage, et ce sont les traverses qui portent des arrêts m au droit de chacun de ces assemblages. En N, les montants et traverses ont l'un et l'autre des arrêts au droit des assemblages. En O, de même. En M'N'O', sont tracés les assemblages des montants avec les traverses basses ou plinthes. En M''N''O'', les sections horizontales des panneaux avec les montants.
Lorsque les lambris sont hauts, il est nécessaire de les couper dans leur hauteur par une ou plusieurs traverses intermédiaires qui évitent les panneaux trop longs, toujours portés à gauchir.

Ainsi (7), soit un lambris de cinq pieds de haut (1m,62), on aura d'abord une semelle ou plinthe A, dans laquelle viendra s'embréver la traverse basse B. Sur cette traverse basse s'assembleront les montants C intermédiaires, et elle-même s'assemblera dans les montants extrêmes D. Le même système renversé sera adopté pour la traverse haute F et la corniche E. Mais en G, on assemblera entre chaque montant des traverses à tenons H et mortaises, afin de diminuer, comme nous l'avons dit, la longueur des panneaux. Ceux-ci seront souvent, lorsqu'il s'agit de lambris adossés à des murs, simplement posés en feuillure, ainsi que l'indique la coupe en I, et retenus par quelques pattes. Ces panneaux ne peuvent influer en rien sur la membrure, et s'ils sont faits en bois bien sec, n'ayant que la largeur d'une planche de merrain ou débitée comme nous l'avons marqué au commencement de cet article, tout l'ouvrage subira sans inconvénients les changements de température. Car la question principale, dans les oeuvres de menuiserie, est toujours de laisser au bois la facilité de gonfler ou de se rétrécir sans influer sur les assemblages. Les tenons K des montants passent à travers la traverse haute et la corniche, afin d'empêcher le gauchissement de celle-ci, ce qui ne manque pas d'arriver lorsque ces corniches ou cimaises sont simplement embrévées à languettes dans les traverses hautes. En effet, l'épaisseur de ces corniches ou cimaises étant plus forte que celle de la traverse haute, elles ont assez de puissance, lorsqu'elles gauchissent, pour faire éclater la languette prise dans le bois de fil. Ce système de lambris à panneaux est adopté pendant les XIIIe et XIVe siècles avec des variantes dans les profils. Quant aux assemblages, jusqu'au XVe siècle, ils sont toujours francs, c'est-à-dire pris dans le bois conservant son équarrissage.
L'exemple que nous donnons, figure 7, montre les moulures de toutes les traverses poussées sans arrêts et celles des montants avec arrêts au droit de ces assemblages. Même lorsque la moulure d'encadrement des panneaux se suit sans interruption sur les montants et les traverses, ainsi que cela est souvent pratiqué dans les lambris du XVe siècle, les assemblages d'onglet sont évités. Nous en trouvons un exemple dans l'un des jolis lambris qui tapissent les chapelles de la nef de l'église de Semur-en-Auxois (8).

Les montants et traverses de ces lambris ont 0m,04 d'épaisseur (1 pouce 1/2); on voit que le profil d'encadrement A s'arrondit en quart de cercle pour se continuer le long des montants, mais que les assemblages sont toujours francs, sans onglets. Cette moulure d'encadrement ne se retourne pas sur la traverse intermédiaire B, et celle-ci ne possède que des chanfreins peu prononcés avec arrêts au droit de chaque assemblage. Quant aux panneaux inférieurs, ils sont sans moulures d'encadrement, mais avec des chanfreins comme pour donner plus de solidité à ce soubassement. Une corniche C, dont nous donnons le profil en C', est clouée sur la face de la traverse haute. Dans la frise supérieure D, des panneaux ajourés posés en long allégissent la boiserie. Les panneaux pleins n'ont que 0m,20 de largeur vue (8 pouces, compris les languettes), 0m,01 d'épaisseur aux rives (5 lignes), mais sont renforcés par ces nervures figurant des parchemins pliés. (Voir la section horizontale E, faite au niveau e, et la section F, faite au niveau f.) En G est tracé la coupe verticale des lambris, en H le profil de la traverse A, et en I l'arrêt de la moulure d'encadrement sur les traverses.

Nous donnons (9) plusieurs exemples de ces renforcements de panneaux, figurant des parchemins pliés. L'exemple A montre des petites baguettes ornées, passant derrière ces parchemins.
Dans la menuiserie antérieure au XVe siècle, il était d'usage souvent, surtout pour les meubles, de revêtir les panneaux de peau d'âne ou de toile collée sur le bois au moyen de colle de fromage ou de peau. Lorsque ces boiseries vieillirent, ces revêtements durent quelquefois se décoller en partie des bois déjetés; de là des plis, des bords retournés. Il est à présumer que les menuisiers eurent l'idée de faire de ces accidents un motif d'ornement et un moyen de donner de l'épaisseur aux panneaux, tout en laissant leurs rives et languettes très-minces. De là ces panneaux à parchemins plissés si fort en vogue pendant le XVe siècle et le commencement du XVIe.
Nos ouvriers du moyen âge n'étaient pas seulement d'habiles praticiens, ils étaient observateurs, attentifs à profiter de tout ce que le hasard leur faisait découvrir. Un défaut, un effet du temps sur les matériaux, devenait pour eux motif de perfectionnement ou d'ornement. Aimant leur métier parce qu'il était le produit d'un labeur raisonné et non une vague et inexpliquée tradition d'un art étranger, ils suivaient leur propre génie, trouvant des combinaisons nouvelles dans l'observation journalière de l'atelier sans emprunter au dehors des formes dont le sens n'avait plus pour eux de signification. Les architectes ont depuis longtemps déjà détourné la menuiserie de sa véritable ligne en voulant lui imposer des formes en désaccord avec ses ressources. Pendant les deux derniers siècles on a imité beaucoup de choses à l'aide de la menuiserie, le stuc, le marbre, la pierre, le bronze, des colonnes, des draperies, des corniches saillantes, des arcs, tout, sauf la menuiserie, et cela au nom du grand art classique. Il semblerait, au contraire, que l'art classique consistait à employer le bois, la pierre ou le métal, en raison des propriétés particulières à chacune de ces matières. Ouvrons un traité de menuiserie de ces derniers temps et nous y verrons, quoi? Comment on fait des colonnes corinthiennes, des arcs et des pénétrations de courbes, des culs-de-lampes, des trompes avec des madriers et des planches, afin de simuler en bois des ouvrages de maçonnerie; comment on fait des portes à grands cadres, des consoles et des corniches de 0m,50 de saillie; comment tout cela ne peut tenir qu'avec force équerres, plates-bandes, vis et colle. De sorte que les menuisiers ont fini par ne plus savoir faire de la menuiserie véritable, et que depuis un petit nombre d'années seulement plusieurs d'entre eux ont commencé à rapprendre cet art pratiqué il y a quatre cents ans avec autant de savoir que de goût. Mais c'est toujours dans les contrées du Nord qu'il faut chercher les oeuvres de menuiserie dignes de ce nom. Occupons-nous maintenant des portes, des huis pleins ou à claires-voies, des croisées.
Note 204: (retour) C'est ainsi qn'ont dû être préparés les bois qui ont servi à faire les stalles de la cathédrale d'Auch. Ces bois ont acquis l'apparence du bronze florentin.
Note 205: (retour) Qualité que nous appelons aujourd'hui chêne de Hollande et qui est encore, en grande partie, fournie par la Champagne. En effet, beaucoup de bois de menuiserie qui nous viennent de la Hollande sont achetés par des marchands hollandais dans les forêts au-dessus de Reims. La manière de débiter nos bois nous rend tributaires des Hollandais. En effet, les Hollandais débitent les bois sur maille, c'est-à-dire qu'ils font faire les sciages, autant que possible, tendant toujours au centre de l'arbre, ainsi que cela se pratiquait au moyen âge et ainsi que le pratiquent encore les fendeurs de merrain. (Voy. à ce sujet le Traité de l'évaluation de la menuiserie par A. Boileau et F. Bellot, Paris, 1847, p. 48 et suiv.; et Hassenfratz, Théorie des bois, Paris, 1804, p. 133.)
Note 206: (retour) Beaucoup de menuiseries anciennes conservent des traces d'une impression au minium, et cette impression a singulièrement contribué à leur conservation. Ce procédé, renouvelé depuis une dizaine d'années par nous-même, donne d'excellents résultats. Aujourd'hui, il est assez généralement adopté. (Voyez, relativement à l'assemblage et au polissage des ais, l'oeuvre du moine Théophile, Diversarum artium schedula, lib, I, cap. XVII.)
Note 207: (retour) Cette grille conserve des formes qni appartiennent à l'époque romane, bien que nous ne la croyions pas antérieure, comme fabrication, au XIVe siècle.
Note 208: (retour) De l'hôtel de ville de Gand (XVe siècle).
Note 209: (retour) Nous avons souvent élé appelé à démonter des oeuvres de menuiserie des XVIIe et XVIIIe siècles. On ne comprend pas comment une sculpture, souvent aussi délicate, une ornementation charmante, s'allie à une structure aussi grossière et peu raisonnée. Les belles stalles de Notre-Dame de Paris, qui datent du commencement du dernier siècle, sont un exemple de cet alliage de moyens barbares masqués sous la plus riche apparence.
Note 210: (retour) Celle que nous donnons ici a été dessinée par nous à Luxeuil.
Note 211: (retour) Cet ouvrage de menuiserie existait en fragments dans la cathédrale de Perpignan en 1834, et servait de lambris dans la chapelle Saint-Jean. Il était en sapin.
HUIS.--Les portes les plus anciennes que nous retrouvons éparses encore dans quelques provinces françaises ne sont pas antérieures au XIe siècle, et il faut dire qu'à cette époque ces ouvrages de menuiserie sont très-grossiers. Ils consistent en une série d'ais simplement jointifs, doublés par d'autres ais disposés de manière à se relier aux premiers par des clous. C'est suivant ce principe que sont disposés des vantaux de portes de la cathédrale du Puy-en-Vélay et un vantail d'une porte de l'église de la Voulte-Chilhac (10).

Du côté intérieur A, cette porte ne présente qu'une suite de planches jointives; à l'extérieur B, d'autres planches posées sur les premières en travers sont clouées et présentent une apparence de panneaux couverts d'ornements plats 212. En C est donnée la coupe de l'huis faite par ab. Cette sorte de menuiserie est tout orientale, comme les ornements qui la décorent. On ne voit là ni assemblages, ni aucune des combinaisons à la fois légères et solides qui constituent les oeuvres de menuiserie. Ce sont des planches clouées les unes sur les autres, et rien de plus. Très-postérieurement à cette époque, on voit encore dans des provinces du centre de la France des huis qui, bien que moins naïvement exécutés, découlent encore du même principe.

Il existe dans l'église de Gannat une porte à deux vantaux (11) 213, dont chaque huis est composé de quatre planches posées jointives; pour les rendre solidaires et les empêcher de gauchir, l'ouvrier a posé en dehors un treillis de bois formant comme des panneaux à peu près carrés. En A, la porte est présentée à l'intérieur. Le détail B donne la moitié d'un vantail du côté extérieur avec son treillis. Le détail C indique le mode d'assemblage des montants et traverses du treillis, la section D étant faite sur a b et la section E sur e f. G présente l'assemblage perspectif des traverses et F la section sur le battement. Un clou à tête carrée en pointe de diamant est fiché au milieu de chaque assemblage et dans les traverses et montants entre chacun de ces assemblages. Ces clous, au droit des joints des planches, ont leurs pointes doubles, rabattues à droite et à gauche, ainsi qu'on le voit en D. Cet ouvrage est solide, puisqu'il est resté en place depuis le XIVe siècle; mais ce n'est pas là une oeuvre de menuiserie comme on en voit à cette époque et même antérieurement dans les provinces du Nord. Les vantaux de cette porte sont serrés au moyen de pentures clouées en dedans, ainsi que l'indique le figuré A. Les planches et le treillis sont en chêne, et le tout est d'ailleurs bien dressé.

La figure 12 nous montre les anciens vantaux de porte de la Sainte-Chapelle haute de Paris. Cet ouvrage de menuiserie datait du milieu du XIIIe siècle comme l'édifice; il était autrefois décoré de peintures à l'extérieur et à l'intérieur. En A, nous présentons un vantail du côté intérieur; en B, du côté extérieur. Le système consiste en une membrure fortement assemblée avec deux montants, trois traverses et des décharges destinées à reporter tout le poids de l'huis sur les gonds. Les traverses sont assemblées dans les montants à queue d'hironde, et les décharges, outre des tenons, possèdent des embrévements qui roidissent l'ouvrage. Devant ce bâti sont clouées des frises assemblées à grain d'orge; puis une décoration en bois mince est clouée sur ces frises à l'extérieur. En C, nous avons indiqué la section des vantaux. Les pentures posées en dedans sur les trois traverses,--nous avons tracé une seule de ces pentures sur la traverse du milieu,--sont doublées en dehors par des plates-bandes en fer mince, ornées de gravures. Ainsi ces traverses se trouvent serrées entre deux bandes de fer, et les clous des pentures intérieures sont rivés extérieurement sur ces bandes de tôle. Des clous à têtes carrées en pointes de diamant très-plates réunissent encore les frises à la membrure. Le gâble avec son tiers-point, ses redents, ses crochets et colonnettes, n'est qu'un placage maintenu au moyen de pointes. Un battement existe à la jonction des deux vantaux avec le trumeau central en pierre et forme comme un petit contre-fort sur la rive du vantail. À l'intérieur, les montants, traverses et décharges sont chanfreinés entre les assemblages et élégissent la membrure. Ces vantaux, très-altérés par des guichets que l'on avait pratiqués à travers les huis et presque entièrement pourris dans leur partie inférieure, ont dû être remplacés lors des restaurations.
L'emploi de ce système de portes est très-fréquent pendant les XIIIe et XIVe siècles. Il est léger, solide et se prête bien à la pose des ferrures de suspension. Les portes de la façade de la cathédrale de Paris, décorées à l'extérieur des belles pentures si connues, sont combinées de la même manière et datent probablement du commencement du XIIIe siècle, car nous ne pensons pas qu'elles aient été refaites. Leur parement extérieur, sous les pentures, était couvert primitivement d'une peinture rouge très-brillante d'un ton laqueux.
La cathédrale de Poitiers possède encore ses vantaux de portes qui datent du commencement du XIVe siècle. Ces oeuvres de menuiserie sont d'un certain intérêt, parce qu'elles servent de transition entre les vantaux composés d'un bâti contre lequel était appliqué un parquet de planches de chêne et les vantaux à panneaux embrévés entre la membrure elle-même. De plus quelques-uns de ces vantaux sont déjà munis de guichets.

La figure 12 bis présente l'un de ces vantaux en A du côté intérieur, et en B du côté extérieur. Les montants a et b sont plus épais que les traverses haute et basse; ils ont 0m, 13, tandis que celles-ci n'ont que 0m,10. Quant aux traverses intermédiaires, elles n'ont que 0m,08. Des montants de même épaisseur sont assemblés entre ces traverses et reçoivent des panneaux entre eux, ainsi que le fait voir en C et D le détail P. À l'extérieur, la membrure tout entière et les panneaux sont au même nu, et ces panneaux ne se distinguent des autres parties que par un élégissement indiqué en G dans le détail P. Des décharges assemblées dans les montants C, et n'ayant que la moitié de l'épaisseur de ceux-ci, empêchent le vantail de se déformer et de fatiguer les assemblages par son poids. En I est tracé un détail perspectif de l'assemblage des décharges avec les montants intermédiaires; ces pièces sont réunies à leur rencontre par des clous K à tête carrée et à doubles pointes rabattues à l'intérieur. En L est tracé le détail du battement, muni d'une colonnette à pans, saillante à l'extérieur, O étant le chapiteau figuré en o, R la bague r, S la base s. Ces détails sont à l'échelle de 0m,10 pour mètre.
Ce ne fut guère qu'à la fin du XIVe siècle que les menuisiers se mirent à faire des portes à panneaux, c'est-à-dire ayant les faces extérieure et intérieure pareilles et composées de montants et de traverses entre lesquels étaient embrévées des planches à grains d'orges ou à languettes. L'église Notre-Dame de Beaune possède encore au commencement du bas côté du choeur, côté nord, un huis de ce genre qui date de la fin du XIVe siècle (13).

En A est l'une des faces de cet huis, composé de deux montants de rive, de deux traverses hautes et basses, de trois autres traverses intermédiaires et de deux autres montants assemblés dans les traverses. En B est tracé le détail d'une traverse C, avec le montant intermédiaire D assemblé et le bout d'un panneau E. En F est la section horizontale d'un panneau avec les deux montants; en G, la section verticale d'une traverse avec deux panneaux et leurs languettes; en H nous donnons le détail perspectif d'un montant désassemblé, son extrémité supérieure étant en a. Déjà les panneaux sont renforcés dans leur milieu, ainsi que l'indique la section F, et ce sont les baguettes des montants et traverses qui reçoivent entre elles les languettes des panneaux laissés libres d'ailleurs. À la partie inférieure de ces panneaux, des chanfreins poussés sur les traverses remplacent les baguettes, afin de ne point arrêter la poussière. Ces baguettes se joignent d'onglet à la partie supérieure des panneaux et reposent en sifflet sur les chanfreins inférieurs, comme l'indique notre détail perspectif H. Ainsi, les baguettes et chanfreins pouvaient être poussés au guillaume le long des montants et traverses sans arrêts, et les assemblages étaient faits après coup en enlevant des baguettes et chanfreins ce qu'il fallait pour faire les repos et les mortaises. Bien entendu, cette porte, comme les précédentes, est en chêne.
Mais le XIVe siècle avait fait, en menuiserie, des oeuvres remarquables; il nous reste de cette époque des stalles fort belles (voy. STALLE), des fragments de boiseries taillés et assemblés de main de maître. L'incurie, l'amour du changement, le faux goût, ont laissé ou fait disparaître un nombre prodigieux de ces oeuvres d'art. Il faut aujourd'hui en chercher les débris dans quelques musées, en recueillir quelques traces conservées par de vieilles gravures ou des dessins. La Normandie, la Picardie, la Champagne et la Bourgogne étaient particulièrement riches en beaux ouvrages de menuiserie. Les vantaux de porte, très-simples jusqu'à cette époque, étaient devenus depuis lors un motif de décoration de bois. On renonçait aux applications de bronze, aux pentures de fer très-historiées, aux revêtements de cuir peint, pour donner au bois les formes les plus riches, sans cependant abandonner les principes de la vraie construction qui appartiennent à la menuiserie. Quelquefois alors, on laissait dans ces vantaux des ajours, et s'ils étaient d'une trop grande dimension pour être ouverts à chaque instant, on y pratiquait des guichets, ainsi qu'on a pu le remarquer déjà dans l'exemple donné figure 12 bis.

Voici (14) 214 une de ces portes. Sa membrure se composait de deux montants de rive, de deux traverses haute et basse, d'une large traverse intermédiaire, de deux décharges B formant gâble et de deux montants intermédiaires C, assemblés à mi-bois avec les décharges dans la partie supérieure et servant de dormants au guichet dans la partie inférieure. Les panneaux A, de la partie supérieure, étaient ajourés et vitrés probablement. Pour faire comprendre la construction de ce grand vantail, nous donnons en D la coupe faite sur a b, montrant le chapiteau des montants intermédiaires; en E la section faite sur c d du gâble; en F la section faite sur g h; en G la section faite sur la traverse intermédiaire avec le battement i du guichet; en II la section faite sur la traverse intermédiaire du guichet; en K la section faite sur la traverse basse avec le battement l du guichet; en OP la section verticale faite sur les panneaux latéraux de la partie inférieure; en R la section faite sur n p; en S est l'échelle de l'ensemble; en s, celle des détails.
Il existe encore un assez bon nombre de vantaux du XVe siècle; nous citerons ceux du portail sud de la cathédrale de Bourges, ceux du portail principal de l'église Notre-Dame de Beaune, ceux de la porte principale de l'hôtel de Jacques Coeur, à Bourges, ceux de l'avant-portail des libraires de la cathédrale de Rouen, ceux de l'hôtel-Dieu de Beaune parmi les plus remarquables. On employait fort souvent, au XVe siècle, ces vantaux ajourés, soit comme fermeture de vestibules, de chapelles, d'oratoires ou même de réduits, c'est-à-dire de cabinets donnant dans une chambre. Ces vantaux ajourés étaient même parfois brisés et pouvaient se replier comme nos volets, de manière à ne pas prendre de place dans de petites pièces lorsqu'on voulait les tenir ouverts. On voit encore à l'entrée d'une des chapelles du nord de l'église de Semur-en-Auxois une de ces portes exécutée avec un goût parfait (15).

Cette porte se compose de deux vantaux, chacun d'eux se repliant en deux feuilles. En A nous présentons un vantail en dehors, et en B en dedans. La section horizontale C est faite au niveau D, et la section E au niveau F. La brisure est indiquée en G et le battement des deux vantaux en H. En I est tracée la section verticale de la traverse supérieure et de la traverse intermédiaire. En K, la section a b, moitié d'exécution. Cette jolie menuiserie conserve encore ses ferrures, qui sont très-finement travaillées (voy. SERRURERIE). Tout cela s'ouvre facilement, est agréable à la main; c'est bien là de la menuiserie d'appartement, légère, élégante, solide, faite pour l'usage journalier. Rien n'est plus simple, cependant, que sa construction, ainsi que le fait voir notre figure. Ici les moulures d'encadrement des panneaux se retournent sans arrêts, mais ne sont pas assemblées d'onglet, le retour d'équerre de ces moulures étant coupé à contre-fil dans les montants. Les battements saillants du milieu et des brisures sont chevillés sur les montants, ainsi que les profils L. Il n'y a ni clous, ni vis; les ferrures seules sont retenues au moyen de crampons très-adroitement combinés pour ne point fatiguer ni ces ferrures ni le bois.
À l'intérieur des châssis de croisées, on posait dans les appartements des volets pleins ou ajourés qui étaient de véritables vantaux. Les ajours de ces volets étaient quelquefois pratiqués dans leur partie inférieure pour permettre de voir à l'extérieur sans ouvrir le vantail.

La fig. 16 représente un de ces volets
215 solidement construit et
d'une forte épaisseur; la membrure principale A (voy. la section B faite
sur a b) encadre un second châssis C, qui maintient les panneaux D. En
E, nous avons tracé le profil pris sur e; en F le profil des deux
membrures AC et en G, le détail perspectif de l'assemblage g de la
traverse intermédiaire dans le montant. Les panneaux inférieurs sont
délicatement ajourés suivant le profil E, les membres secondaires de cet
ajour ne prenant que l'épaisseur h i.
L'art de la menuiserie, au XVe siècle, arrivait à une perfection d'exécution qui ne fut jamais atteinte depuis. Le goût dominant dans l'architecture alors se prêtait d'ailleurs aux formes qui conviennent à de la menuiserie, puisque les ouvrages de pierre avaient le défaut de rappeler les délicates combinaisons données par l'emploi du bois. Les menuisiers du XVe siècle n'employaient que des bois parfaitement purgés, secs et sains, et ils les travaillaient avec une adresse que nous avons grand'peine à atteindre aujourd'hui, lors même que nous voulons payer la main-d'oeuvre. Les menuiseries de la seconde moitié du XVe siècle ne sont pas très-rares en France et, grâce à l'excellent choix et à la sécheresse des bois employés, ces menuiseries sont biens conservées, ne se sont pas déjetées ni gercées, et ne sont piquées que lorsqu'elles ont été placées dans des conditions tout à fait défavorables.
Pour terminer notre étude sur les huis, les vantaux de porte, nous donnerons ici l'un de ceux qui ferment l'entrée principale de la nef de l'église Notre-Dame de Beaune. La structure de ces vantaux (17) est simple, elle se compose de vingt panneaux embrévés entre des montants et des traverses; un guichet, composé de quatre panneaux a, s'ouvre au milieu du vantail. Deux montants de rive, deux traverses haute et basse, trois montants intermédiaires avec quatre rangs d'entre-toises forment l'ossature de ce vantail. Les montants sont renforcés de contre-forts et les entre-toises de profils saillants. Ces contre-forts et les panneaux sont délicatement moulurés et sculptés dans du beau bois de chêne.

Nous donnons (18) quelques détails de cet ouvrage de menuiserie, c'est-à-dire le panneau b et partie de celui inférieur c, avec les contre-forts des montants et profils des entre-toises. En A est tracée la coupe de ces détails, faite sur e f; en B, la section horizontale d'un montant avec son contre-fort; en C, la section à une plus grande échelle des moulures évidées dans l'épaisseur des panneaux. Cette manière d'orner les panneaux par des compartiments évidés à mi-épaisseur, représentant des meneaux de fenêtres, était fort en vogue au XVe siècle, et il fallait que ces panneaux pussent être très-facilement et rapidement sculptés, car on en trouve partout. Les ouvriers menuisiers façonnaient ces ouvrages au moyen de longs ciseaux, de gouges ou de burins, emmanchés comme l'indique le tracé G. La grande gouge g, terminée souvent par une sorte de cuiller comme les outils dont se servent les sabotiers, se manoeuvrait des deux mains, le morceau de bois en oeuvre étant maintenu horizontalement sur l'établi au moyen d'un valet ou d'une vis, ainsi que cela se pratique encore aujourd'hui 216.
Tous les panneaux de ces vantaux des portes de l'église de Beaune sont variés de dessins; quelquefois, à la place de ces compartiments de meneaux, on sculptait des bas-reliefs ou des arabesques vers la fin du XVe siècle et le commencement du XVIe. Nous ne devons pas omettre, parmi les beaux exemples de vantaux, ceux des portes de l'église de Saint-Maclou, de Rouen, attribués à Jean Goujon, et qui, s'ils ne sont pas de lui, n'en présentent pas moins un des meilleurs exemples de menuiserie de la Renaissance.
CROISÉES.--Nous avons expliqué à l'article FENÊTRE comment, pendant la période romane, les baies de croisées n'étaient souvent fermées qu'avec des volets pendant la nuit, et comment, pour obtenir du jour à l'intérieur des pièces, on laissait entrer l'air avec la lumière dans les appartements. Ces volets furent d'abord percés de petits ajours devant lesquels on tendait du parchemin ou un canevas, ou encore on incrustait des morceaux de verre. Cet usage se conserva longtemps parmi les populations du centre et du midi de la France; mais dans le nord, la rigueur du climat et l'insuffisance de la lumière extérieure obligèrent les habitants des villes et châteaux à faire de véritables châssis propres à recevoir une surface étendue de vitraux ou de parchemin. Au XIIe siècle, ces châssis, ces croisées (pour leur appliquer le nom consacré par l'usage), n'étaient encore que de véritables volets composés de montants et de traverses, mais dont les panneaux de bois étaient remplacés par des vitres ou par du vélin huilé.
De ces ouvrages de menuiserie, il n'existe que bien peu de débris. Cependant à Paris, dans la tour dite de Bichat, ancienne commanderie des Templiers et qui a été détruite il y a neuf ans, il existait encore, dans une fenêtre du dernier étage, composée de deux parties séparées par un meneau, deux vantaux de croisée qui paraissaient appartenir à l'époque de la construction de cette tour (1160 environ). Pris dans un bouchement en platras déjà ancien, ils avaient pu échapper à la destruction et, quoique entièrement pourris, ils conservaient encore des lambeaux de vitraux blancs posés en feuillure.

La figure 19 donne la face intérieure de l'un de ces vantaux de croisée avec sa ferrure. En A, nous en donnons la coupe sur a b, et en B la section horizontale sur c d. Ces sortes de châssis vitrés laissaient, relativement à leur surface, pénétrer peu de lumière; mais alors on ne tenait pas, comme aujourd'hui, à éclairer beaucoup les intérieurs. Ces châssis étaient dépourvus de dormants et battaient dans les feuillures de la baie de pierre.
Au XIIIe siècle on ne se contentait plus déjà d'ajours aussi étroits, les fenêtres devenaient hautes et larges, leurs meneaux étaient diminués d'épaisseur et, par suite, les châssis de croisée s'allégissaient pour mieux faire pénétrer la lumière dans les salles. Les croisées en menuiserie de ce temps, n'existent plus que par fragments, et il faut réunir bien des renseignements épars pour pouvoir reconstituer un de ces châssis entier. Les scellements des ferrures les feuillures conservées dans les ébrasements, la trace des battants existent encore cependant dans un grand nombre de bâtiments. À la porte de Laon, à Coucy (commencement du XIIIe siècle), à Carcassonne (fin du XIIIe siècle), à Loches, à Château-Chinon, au palais de justice de Paris et dans plusieurs châteaux et maisons de nos anciennes provinces, il est facile de se rendre compte de la position des châssis vitrés, de leur ferrure et de leur épaisseur. Puis, en cherchant avec quelque soin, on retrouve encore çà et là des débris réparés bien des fois, il est vrai, de ces menuiseries. C'est ainsi que dans le bâtiment abbatial de Château-Landon nous avons pu retrouver une croisée presque tout entière en recherchant, il y a quelques années, parmi les châssis réparés, certains fragments primitifs.

Nous donnons (20) le résultat de ces recherches. Ces châssis étaient par couples dans les grandes fenêtres et séparés par un meneau; ils se composaient d'un montant, avec tourillons ferrés, haut et bas AB, tenant au montant même. Ces deux tourillons entraient dans des oeils disposés dans la pierre, comme on peut le voir encore à l'intérieur des baies de la maison des Musiciens, à Reims, et dans beaucoup d'habitations du XIIIe siècle. Ainsi le châssis était posé en construisant; le battant C arrivait en feuillure sur le meneau de la fenêtre et était maintenu par deux verrous manoeuvrés au moyen d'une tige de fer ronde avec poignée (voy. SERRURERIE). Deux traverses haute et basse s'assemblaient dans les deux montants. Un troisième montant intermédiaire était assemblé dans les deux traverses, haute et basse, et recevait à son tour deux autres fortes traverses intermédiaires D et deux entre-toises E plus faibles. Des colonnettes F tenaient lieu de petits-bois. À l'extérieur, les montants et traverses étaient pourvus de feuillures G (voir le détail H) destinées à recevoir les panneaux de vitraux. Quant aux petits-bois, ils ne portaient pas de feuillures, mais des tourniquets en fer I qui servaient à maintenir les panneaux. Ces châssis de croisée étaient garnis intérieurement de volets brisés (voir la section horizontale K) et divisés en trois parties abc, de manière à pouvoir n'ouvrir, si bon semblait, qu'une travée ou un tiers ou deux tiers de travée. À cause de l'ébrasement de la fenêtre, ces volets brisés en g ne se développaient qu'à angle droit et se rangeaient ainsi que l'indiquent les lignes ponctuées l. Développés, ces volets présentaient du côté du jour le figuré L, et leur ferrure brisée était placée du côté intérieur g. Les feuilles supérieures et inférieures des volets étaient ajourées pour donner de la lumière à l'intérieur, les volets étant fermés, et pour permettre, par les ajours inférieurs, de voir au dehors. Les battants de la croisée ont 2 pouces d'épaisseur, ceux des volets 1 pouce 1/2. En H sont donnés les détails du bâti de la colonnette, leur profil en H'; en M, la section du montant intermédiaire; en N, la section des entre-toises E; en O, la section verticale des traverses des volets, et en O' celle horizontale de leurs battants. P est le détail des ajours inférieurs. Les volets étaient ferrés après le montant de la croisée sur des gonds rivés extérieurement sur de petites plaques de tôle. Ces châssis ne portaient pas de jet d'eau; l'eau de pluie qui glissait le long de leur parement extérieur était recueillie dans une petite rigole ménagée dans l'appui et s'écoulant au dehors. Enfin les volets étaient maintenus fermés au moyen de targettes entrant dans des gâches ménagées sur les renforts intérieurs du meneau de pierre et, au besoin, par des barres.
Pour poser ces châssis, il n'y avait donc aucune entaille ni scellement à faire après coup dans les tableaux et feuillures ou ébrasements; l'objet arrivait à sa place complet, achevé à l'atelier, sans qu'il fût nécessaire, comme cela se pratique aujourd'hui dans nos constructions, d'envoyer successivement des ouvriers de deux ou trois états pour terminer la pose et la ferrure d'une croisée. La maçonnerie, la charpente, la menuiserie et la serrurerie étaient achevées simultanément et, les toits couverts, il n'y avait plus qu'à peindre et à tapisser. Quand les châssis de croisée ne roulaient pas, comme ceux-ci, au moyen de tourillons, quand ils étaient attachés après coup, les gonds qui les suspendaient se scellaient dans les lits d'assises pendant la construction, afin d'éviter les entailles et les trous de scellement qui déshonorent les ravalements de nos maisons et de nos palais.
Les châssis de croisée, dans les maisons du XIVe siècle, étaient souvent plus simples que ceux-ci et se composaient seulement de montants, de battants et de traverses. Les petits-bois n'avaient pas d'utilité quand on employait les panneaux de vitraux mis en plomb, et ils commencèrent à garnir les châssis quand on substitua aux panneaux mis en plomb des morceaux de verre taillés en assez grands fragments dans des boudines, c'est-à-dire dans des plaques de verre circulaire ayant au centre un renflement (voy. VITRAIL). Les châssis de croisée au moyen âge ne présentaient donc pas le réseau de petits-bois qui garnit les châssis du XVIIe siècle, et qui produit un effet si déplaisant à cause de la monotonie de ces compartiments égaux coupant le vide de la baie en quantité de petits parallélogrammes. Les panneaux de vitraux étaient fixés dans les feuillures des châssis au moyen d'un mastic recouvert d'une lanière de parchemin faisant corps avec ce mastic, ou simplement, pour les intérieurs où il n'importait pas d'obtenir un calfeutrage parfait, par des tourniquets dans le genre de ceux représentés ci-dessus en I. Alors, entre les panneaux, les tourniquets étant ouverts, on introduisait une bande de feutre épais à la jonction de ces panneaux, bande de feutre fendue au droit de chaque tourniquet; puis on fermait ceux-ci qui alors exerçaient une pression sur ce feutre et empêchaient le ballotement des vitraux. Cet usage s'est conservé assez longtemps dans les provinces du centre, puisque nous avons encore vu de ces feutrages et tourniquets adaptés à des châssis du XVIe siècle.
Les châssis de croisée du XVe siècle, dans les hôtels et châteaux, composaient parfois une oeuvre de menuiserie passablement compliquée. L'hôtel de La Trémoille, à Paris, possédait encore dans l'étage au-dessus du portique donnant sur la cour des châssis de croisée fort délabrés et dépendant de la construction primitive, datant de la fin du XVe siècle.

Ces châssis (21) garnissaient des fenêtres composées d'un meneau central avec une traverse de pierre. Ils consistaient donc en quatre compartiments: deux grands oblongs inférieurs et deux carrés. En A, nous donnons l'un des châssis inférieurs et en B l'un des châssis posés au-dessus de la traverse.
Ces châssis possédaient des dormants fixés dans la feuillure de pierre par des pattes, ainsi que cela se pratique encore aujourd'hui. Les châssis inférieurs pouvaient s'ouvrir dans toute leur hauteur de a en b au moyen de paumelles, et partiellement en tabatière, de c en d. Les châssis supérieurs s'ouvraient aussi au moyen de paumelles. En C est tracée la section sur e f, les châssis AB étant vus à l'intérieur. En D est indiqué l'angle inférieur du châssis A avec les jets d'eau à l'extérieur.
Nous avons tracé à une échelle double, c'est-à dire à 0m,10 pour mètre, en A', la section sur g h; en F, la section sur i k; en G, la section sur l m; en H, la section sur m n, et en I la section sur o p. En L est donnée la section sur r s, et en M la section sur t v. Des feuilles de volets à jour, indiquées en VXY, se repliant en deux, ainsi qu'il est marqué en u, ferrées sur les dormants, permettaient de masquer les vitres à l'intérieur.
Ces croisées, en bon bois de chêne, étaient tracées et façonnées avec grand soin; leurs vitraux étaient, comme nos vitres, posés en feuillure et mastiqués.

La figure 22 donne l'assemblage du jet d'eau inférieur A dans le montant du dormant B. On voit en D comment le jet d'eau du grand châssis ouvrant venait s'embréver en partie dans le montant dormant possédant une gueule de loup. C donne le profil de ce jet d'eau A; ce profil était tracé de manière à empêcher l'eau de pluie chassée par le vent, suivant l'inclinaison a b, de remonter dans la feuillure c. La courbe d b obligeait la goutte d'eau, poussée par le vent sur ce profil, à suivre la courbe d e, c'est-à-dire à retomber à l'extérieur. Ces détails font voir avec quelle attention les menuisiers de cette époque établissaient leurs épures, comme ils donnaient aux moulures une forme convenable en raison de leur place et de leur destination. Il faut reconnaître que depuis ce temps nous n'avons pas fait de progrès sensibles dans l'art de la menuiserie de bâtiment.
Les châssis de croisée n'étaient point ferrés alors comme ils le sont aujourd'hui au moyen d'équerres entaillées; les ferrures des paumelles, qui quelquefois formaient équerres, étaient posées sur le bois au moyen de clous et d'attaches (mais non entaillées): il fallait donc que les assemblages de ces châssis fussent très-bien faits pour éviter des déformations et les dislocations. Les ferrures entaillées sont une bonne chose, mais les menuisiers s'y fient trop pour maintenir les assemblages; puis elles contribuent singulièrement à l'extérieur à hâter la pourriture des bois précisément au droit de ces assemblages.
Note 212: (retour) Voy. les détails intéressants de cette porte dans l'Architecture et les arts qui en dépendent, par M. Gailhabaud, t. II.
Note 213: (retour) Ce dessin nous a été communiqué par M. Millet, architecte.
Note 214: (retour) D'après un dessin provenant de la collection de feu Garneray. Cette porte s'ouvrait sur une des grandes salles de l'abbaye Saint-Ouen, à Rouen, et existait encore, paraîtrait-il, à la fin du dernier siècle.
Note 215: (retour) D'une maison à Abbeville, rue du Moulin-du-Roi.
Note 216: (retour) Nous avons souvent vu des miniatures de manuscrits du XVe siècle où ces outils sont représentés. Il existe dans les stalles de l'église de Montréale (Yonne) un bas-relief représentant un menuisier taillant un petit pinacle au moyen de l'outil figuré en l, qu'il tient de la main droite. À l'échelle, cet outil paraît avoir au moins 0m,50 de longueur. Quant au ciseau, il était d'un usage fréquent, comme de nos jours.
VOUSSURES, PLAFONDS, TAMBOURS.--Les menuisiers du moyen âge savaient, comme nous l'avons dit, ménager le bois et renfermer leurs tracés dans les équarrissements ordinaires qui alors étaient à peu près les mêmes que ceux donnés aujourd'hui par les scieries. C'est surtout dans la grosse menuiserie que l'on constate l'attention qu'ils apportaient à cette partie importante de leur art. Le merrain de 1 pouce 1/2 ou de 0m,04 d'épaisseur était généralement employé pour les membrures, puis le chevron de 3 pouces (0m,08) pour les plus fortes pièces. Quant aux panneaux, ils n'avaient guère que 9 lignes d'épaisseur (0m,02). Avec ces dimensions de bois, ils composaient leurs ouvrages de menuiserie les plus importants, tels que tambours, buffets d'orgues, stalles, caisses d'horloges, escaliers, grandes clôtures, etc. Pour donner de la résistance à ces bois, lorsqu'ils avaient de grandes dimensions en hauteur et les empêcher de gauchir, ils embrévaient les madriers ainsi que l'indique, par exemple la figure 23 en A, et les assemblaient à la base et en tête dans des chevrons, comme on le voit en B et en C. De plus les montants étaient reliés et maintenus par des goussets D, formant arcatures. Les intervalles étaient remplis par des panneaux libres E, ou assemblés à grain d'orge (voy. STALLE).

Villars de Honnecourt 217 nous a conservé un curieux dessin d'une grande caisse d'horloge du XIIIe siècle en menuiserie. C'est un véritable campanile qui devait avoir une grande importance. On voit encore de ces caisses d'horloge en grosse menuiserie des XIVe et XVe siècles dans les cathédrales de Beauvais et de Reims 218.
Quoiqu'il ne reste qu'un petit nombre de fragments des lambris de bois qui garnissaient souvent les murs des châteaux pendant les XIIIe et XIVe siècles, cependant on peut constater leur emploi par les nombreux scellements et les traces qui existent encore sur les parois de ces murailles; scellements et traces indiquant des ouvrages de grosse menuiserie garnissant des pièces entières du pavé au plafond et composés de membrures de 0m,04 d'épaisseur sur 0m,08 de largeur, avec panneaux. On faisait aussi des plafonds en menuiserie dès le XIVe siècle et peut-être avant cette époque, ou, pour être plus vrai, des plafonds dans la composition desquels la charpente et la menuiserie prenaient leur part. Ainsi, n'est-il pas rare de trouver encore des plafonds dont les entrevoux des solivages, au lieu d'être formés d'enduits, consistent en des planches posées en travers, découpées et doublées d'une planche posée en long (24) 219.

Mais, à l'article PLAFOND, nous avons l'occasion de décrire les diverses combinaisons mixtes adoptées par les charpentiers et menuisiers du moyen âge.
Au XVe siècle, et même encore au XVIe, les plafonds de menuiserie, au lieu de participer à la charpente, comme dans l'exemple précédent, étaient accrochés à celle-ci au moyen de clefs pendantes.

La figure 25 fait voir un de ces plafonds, composé alternativement de culs-de-lampes et de caissons. Le tracé A indique, en projection horizontale, le système des membrures, consistant en une suite de triangles équilatéraux. Les poinçons B, dans lesquels viennent s'assembler les chevrons D soulagés par des liens, sont suspendus à des poutres jumelles, indiquées en E dans la coupe C, au moyen de clefs F et d'entailles. La coupe G, faite sur a b, et celle H, faite sur e f, expliquent la disposition des culs-de-lampe et des caissons. Les liens formant culs-de-lampe étaient revêtus entre eux de feuillets en façon de voussures et d'ornements sculptés sur les arêtes ou nervures. Les caissons étaient plus ou moins enfoncés et décorés. Ce système se retrouve adopté, avec quelques variantes toutefois, dans certains plafonds qui nous sont conservés par des estampes ou qui existent encore, tels que ceux des palais de justice de Rouen et de Paris. L'ancienne chambre des Comptes, brûlée pendant le dernier siècle, en possédait un fort beau de ce genre qui nous a servi à faire le tracé de la figure 25 220; il avait été établi sous le règne de Louis XII et était décoré entièrement, outre les sculptures, de peintures et de dorures.
L'état de menuiserie exigeait, vers les derniers temps du moyen âge, des connaissances étendues en géométrie descriptive. Il est facile de s'en convaincre si l'on veut examiner les stalles de la cathédrale d'Amiens et la plupart des oeuvres de menuiserie des XVe et XVIe siècles. L'exécution demandait des soins infinis et du temps, car on ne peut faire de bonne menuiserie qu'en y mettant le temps et l'argent nécessaires, le temps surtout. Quand il fallait quinze jours à un bon ouvrier menuisier et quinze autres jours à un sculpteur sur bois pour ouvrer un poteau cornier d'une chaire, d'un clotet ou d'un tambour, on était assuré que ce poteau, tant de fois retourné sur l'établi, élégi, refouillé, était bien sec, avait produit son effet avant la pose; aussi, ces oeuvres de menuiserie délicate des XIVe et XVe siècles n'ont pas bougé et sont restées telles qu'elles ont été assemblées. D'ailleurs ces artisans choisissaient leur bois avec un soin extrême et le laissaient longtemps en magasin avant de le mettre en chantier.
Note 217: (retour) Voyez l'Album de Villars de Honnecourt, pl. XI.
Note 218: (retour) Voyez Gailhabaud, Architecture du Ve au XVIIe siècle.
Note 219: (retour) D'une maison de Cordes (Tarn-et-Garonne).
Note 220: (retour) Topog. de la France. Bibl. imp.
MARQUETERIE.--La marqueterie n'est point employée, pendant le moyen âge en France, pour décorer les ouvrages de menuiserie de bâtiment; elle ne s'applique guère qu'aux meubles; encore ces marqueteries sont-elles très-rares avant le XVIe siècle. L'usage de plaquer des bois de différentes nuances, de manière à composer des dessins colorés, ne pouvait s'appliquer aux formes de la menuiserie gothique, qui relève toujours de la charpente. Les architectes faisaient peindre et dorer les ouvrages délicats de menuiserie, mais leur construction était telle, ainsi que les exemples précédents le font voir, qu'il n'était pas possible de les plaquer. En Italie, au contraire, la marqueterie prenait place dans la menuiserie dès le XIVe siècle; mais aussi, comme nous l'avons dit, les formes données à cette menuiserie ne sont pas toujours d'accord avec la structure. Nous ne connaissons, en fait d'ouvrages de marqueterie française, que les dossiers des stalles de la chapelle du château de Gaillon, et ces ouvrages sont du commencement du XVIe siècle. On peut en voir encore certaines parties dans le choeur d'hiver des chanoines de l'église impériale de Saint-Denis.
MEURTRIÈRE, s. f. Archère, archière, raière. Nous avons vu ailleurs 221 comment les fortifications romaines permanentes ne se défendaient que par leur sommet. Les courtines et les tours étaient pleines à la base et n'opposaient aux attaques que l'épaisseur de leurs constructions; mais lorsque les armes de jet, maniables, se furent perfectionnées et eurent acquis une portée plus longue et plus sûre, on ne se borna plus, pour défendre les approches d'une place forte, à couronner les parapets de crénelages; on perça des ouvertures à la base des courtines et aux différents étages des tours. Ces ouvertures apparaissent dans les fortifications du commencement du XIIe siècle; assez rares alors, elles se multiplient pendant le XIIIe siècle, elles participent aux moyens de défense; vers le milieu du XIVe siècle, ces ouvertures redeviennent de plus en plus rares dans les parties inférieures de défenses et se multiplient à leur sommet; elles ne reparaissent qu'au moment où l'artillerie à feu remplace les anciens engins de défense. Ces meurtrières ou archères, percées au niveau du sol intérieur des remparts et des planchers des tours, permettaient non-seulement de lancer des traits d'arbalète ou des flèches, mais aussi de voir, sans se découvrir, les travaux que les assiégeants pouvaient tenter pour battre ou saper les ouvrages. Parmi les plus anciennes meurtrières caractérisées, nous citerons celles des tours et courtines du château de la cité de Carcassonne, château dont la construction remonte au commencement du XIIe siècle.

Ces meurtrières (1) se composent à l'intérieur d'une sorte de niche voûtée en berceau surbaissé, destinée à recevoir au moins un défenseur. Le mur, réduit à une épaisseur de 0m,70 par la construction de la niche, est percé d'une ouverture évasée à l'intérieur et très-étroite à l'extérieur, afin de découvrir le dehors suivant un angle de 35º. Un linteau cintré couronne cette baie et une plongée très-inclinée la termine dans sa partie inférieure. Le tracé A donne le plan de cette meurtrière, le tracé B sa coupe sur a b, le tracé D sa face intérieure et le tracé F son aspect extérieur. Afin de donner plus de champ à l'angle du tir, la partie inférieure de la rainure, qui n'a que 0m,06 d'ouverture, est taillée ainsi que l'indique le détail C; d donnant le plan, e la face externe, f la coupe.

La formule qui a servi à tracer cette entaille inférieure de la rainure est celle-ci (2): AB étant l'ouverture intérieure de la meurtrière; CD l'ouverture que l'on a voulu donner à l'entaille, prenant les points a b à une distance de 0m,03; de ces points a b on a tiré les deux lignes aD, bC. Ces entailles sont primitivement triangulaires; vers le milieu du XIIIe siècle, elles deviennent carrées, ainsi que nous le verrons tout à l'heure. Ces meurtrières, percées dans les tours, se chevauchent, c'est-à-dire qu'elles ne sont pas placées les unes au-dessus des autres, mais pleins sur vides, afin de découvrir tous les points de la circonférence. Ce n'est qu'au XIIIe siècle que l'on reconnaît, dans le percement des archères, l'emploi d'une méthode suivie, un tracé très-habilement calculé. À cette époque, des meurtrières flanquent exactement les courtines à leur base et à leur sommet, de manière à enfiler tout leur parement d'une tour à l'autre. Voici (3) le tracé d'une tour à trois étages, plus l'étage crénelé, comme la plupart de celles qui flanquent l'enceinte intérieure de la cité de Carcassonne, du côté méridional.

Au-dessus de l'empattement ou talus, cette tour ayant 6m,00 de diamètre et ses murs 1m,20, à 2m,20 environ de la circonférence AB, on a tracé l'arc de cercle CD; divisant cet arc de cercle en 16 parties égales, o e, e f, f g, g h, etc.; prenant sur le parement de la tour les points p à 0m,30 du parement de la courtine, on a divisé la circonférence externe de cette tour en 8 parties égales. Alors des points e, g, i, k, etc., on a tiré des lignes passant par les points diviseurs de la circonférence de la tout. Ces lignes ont donné les ouvertures des meurtrières percées dans les trois étages; les meurtrières a appartenant au rez-de-chaussée, celles b au premier étage et celles c au troisième; les meurtrières flanquant les courtines étant ainsi doublées dans la hauteur. Donc, tous les points de l'arc de cercle CD sont vus, et au delà les traits se croisent. Ajoutons les hourds supérieurs à ces meurtrières pour le commandement du pied de la tour (voy. HOURD), et cet ouvrage se trouve entièrement défendu, les courtines enfilées par trois meurtrières sur chaque flanc, deux au-dessus l'une de l'autre à rez-de-chaussée et au troisième étage, et la troisième un peu en avant.

Les meurtrières des ouvrages de petite dimension ne sont pas munies de niches intérieures; elles ne consistent qu'en un large ébrasement. Nous reproduisons (4) le détail de l'une d'elles. A donne leur plan, B leur coupe sur l'axe et C leur face intérieure. L'extrémité inférieure de la rainure est évasée pour étendre le champ du tir au moyen d'une entaille carrée dont le détail est tracé en D (face extérieure) et en E (coupe). En F, nous avons donné une vue perspective intérieure de ces sortes de meurtrières, adoptées de 1250 à 1350 environ.
Dans les ouvrages importants de la cité de Carcassonne, les meurtrières qui percent les tours et les courtines bâties sous Philippe le Hardi possèdent des niches assez semblables à celles du château du XIIe siècle. Mais alors les murs sont plus épais; ces niches sont surmontées d'arcs plein-cintre, et leurs parois sont garnies de bancs de pierre.

Voici (5) une des meurtrières de la tour dite du Trésau. En A, nous donnons le plan; en B la coupe sur l'axe; en C la face intérieure, et en D une vue perspective intérieure. Ces dimensions paraissent avoir été réglementaires, car elles sont semblables dans tous les ouvrages de la même époque. L'inclination du tir, et par conséquent la longueur de la rainure, se modifient en raison de la position de la meurtrière par rapport au sol extérieur, ces inclinaisons étant toutes dirigées sur une même circonférence à une distance donnée du pied de la tour, ainsi que l'indique la figure 3.
Quelques archéologues ont prétendu que ces meurtrières, percées aux divers étages des tours et à la base des courtines, étaient plutôt faites pour permettre de voir à couvert ce qui se passait au dehors que pour la défense. Il est certain que ces longues rainures facilitaient la surveillance des dehors, mais il est impossible d'admettre qu'elles ne dussent pas servir à la défense. L'échancrure inférieure seule qui ouvre l'angle du tir démontrerait leur fonction. Nous avons essayé de tirer à travers ces rainures, non au moyen d'une arbalète, ce qui est aussi facile qu'avec un mousquet, mais avec un arc; les côtés de la rainure, au lieu de gêner le tir, remplissent l'office d'une mire et le rendent au contraire plus sûr que si l'on visait un objet en plein air. D'ailleurs, les textes des XIIe et XIIIe siècles mentionnent souvent ces archières pour lanchier; traire et défendre. On observera que, quand les murs ont une très-forte épaisseur, comme dans l'exemple précédent, les constructeurs ont toujours pratiqué ces larges niches qui permettent au tireur de s'approcher du parement extérieur, ce qui diminue d'autant pour lui la profondeur de l'ébrasement.
Il existe cependant des défenses très-fortes du commencement du XIIIe siècle, dont les meurtrières assez rares étaient plutôt faites pour surveiller les dehors que pour offrir un moyen de défense. À la porte de Laon de la ville de Coucy, dont la construction date de 1210 environ, les deux grosses tours sont percées de meurtrières dont l'angle peu ouvert et l'extrême profondeur ne pouvaient guère que donner une vue sur un point, de la lumière et de l'air à l'intérieur des salles. Voici (6) l'une de ces meurtrières.

En A, nous avons tracé le plan; en B la coupe, et en C l'élévation intérieure. Ici le constructeur a craint d'affamer les murs par des niches profondes, et il n'a donné aux ébrasements des archères qu'un angle très peu ouvert. Les rainures ne sont pas entaillées à leur extrémité inférieure pour augmenter le champ du tir, et bien que ces meurtrières soient très-élevées au-dessus du fossé, leur inclinaison est peu considérable. Ces sortes de meurtrières ne peuvent donc être considérées que comme des vues sur les dehors et des prises de jour et d'air. Les niches ne sont pas garnies de bancs, ce qui est encore un indice de leur usage étranger à la défense, car partout où on posait un factionnaire ou un défenseur à l'intérieur des tours et logis, on trouve le banc de pierre. La saillie D portait les planchers.
Nous avons dit que vers la fin du XIVe siècle, on renonça aux meurtrières percées aux étages inférieurs des tours et courtines. C'est qu'en effet à cette époque, l'art du mineur s'était très-perfectionné, et que ces longues rainures indiquaient au dehors les points faibles de la construction. En creusant une mine entre deux de ces rainures, on était presque assuré de faire tomber toute une portion de muraille. L'avantage qu'on retirait donc du percement des meurtrières inférieures ne compensait pas les dangers qu'elles présentaient pour les assiégés. Alors on établit les hourds permanents ou mâchicoulis à la crête des tours et courtines, avec crénelages et archères percées dans le milieu des merlons. Les constructions inférieures restèrent entièrement pleines, empattées, épaisses, homogènes, et par conséquent beaucoup plus propres à résister à la sape et à la mine.
Alors les meurtrières ne se rencontrent plus qu'au sommet des défenses ou sur certains points où l'on posait des factionnaires comme, par exemple, au-dessus des portes et sur leurs flancs, dans des passages, des deux côtés des herses, etc. Les meurtrières, à dater du milieu du XIVe siècle, ne consistent plus seulement, à l'extérieur, qu'en une rainure simple ou avec entaille inférieure; la rainure est souvent entaillée vers son milieu par une traverse formant une sorte de croix pattée, ainsi que l'indique la figure 7 222.

Naturellement, ce sont les armes de jet qui ont imposé la forme de ces meurtrières. Du XIIe au milieu du XIVe siècle en France, on n'employait guère comme arme de jet, à main, que l'arbalète. Or, l'arbalète est une arme excellente pour tirer de but en blanc; elle a les qualités du mousquet, sauf la portée. Les archers étaient peu employés par les armées, féodales du domaine royal. Dans le Nord, dans les Flandres et en Angleterre, au contraire, ils formaient des corps considérables et avaient acquis, comme nous ne l'avons que trop éprouvé à Crécy, une supériorité marquée sur les arbalétriers, tant à cause de la rapidité du tir de l'arc que par la portée extraordinaire des flèches. Mais les archers, en bataille, tiraient bien plus à la volée que de but en blanc, et, pour qui s'est exercé à tirer de l'arc, il est facile d'apprécier les effets du tir à la volée. La flèche, en retombant verticalement après avoir décrit une parabole, est un projectile terrible en ce qu'on ne peut s'en garantir. Un archer médiocrement exercé envoie facilement une flèche à quarante ou cinquante mètres de hauteur obliquement; arrivée à fin de course, elle décrit une parabole brusque, et tombant verticalement de cette hauteur elle perce une planche de trois centimètres d'épaisseur. Au lieu de disposer les meurtrières pour le tir d'arbalète rapproché, et de haut en bas seulement, on les fit de telle sorte que les archers pussent tirer à la volée soit par une entaille intermédiaire a (voir la figure 7), soit par une entaille supérieure b.

Ainsi (8) l'arbalétrier ou l'archer pouvait, par l'entaille inférieure de la meurtrière, envoyer de but en blanc le trait A, et l'archer seulement par l'entaille intermédiaire envoyait la flèche B, par l'entaille supérieure la flèche C. Des assiégeants masqués par des mantelets évitaient difficilement les projectiles B, mais ne pouvaient se garantir des projectiles C. La nécessité de laisser les parties inférieures des tours et courtines entièrement pleines pour mieux résister à la sape et à la mine et l'emploi fréquent des archers, dès le milieu du XIVe siècle, pour la défense aussi bien que pour l'attaque, firent percer les meurtrières au sommet des défenses et amenèrent à échancrer leurs rainures, ainsi que l'indique la figure 7. En effet, c'est en Guienne et dans le Maine et le Poitou, c'est dans le Nord que ces meurtrières en croix pattée apparaissent d'abord, c'est-à-dire dans les contrées occupées alors par les armées anglaises, en partie composées d'archers. Dans les murailles d'Avignon, qui datent du milieu du XIVe siècle, nous voyons également des meurtrières en croix pattée; mais les papes d'Avignon n'avaient guère que des troupes de mercenaires, et parmi celles-ci des archers recrutés en Suisse et dans le Dauphiné.
Ces sortes d'archères se retrouvent partout en France dès le XVe siècle; leur forme était définitivement adoptée comme la meilleure, en ce qu'elle permettait le tir de plein fouet et à la volée. L'artillerie à feu vint alors modifier de nouveau la forme des meurtrières. Celles-ci ne se composèrent plus que de trous ronds pour passer la gueule du mousquet avec une mire au-dessus (9).

Quelquefois ces trous sont doubles, avec une rainure horizontale entre eux deux. Voici une de ces meurtrières qui provient de la porte orientale d'Angolsheim (10).

On observera que ces trous sont percés dans une dalle assez mince, posée au nu extérieur du mur de défense et entourée d'un ébrasement en maçonnerie à l'intérieur. Une balle de mousquet envoyée du dehors pouvait très-bien briser la dalle. Cette meurtrière est percée à côté de la porte et commande la route qui descend vers le village; c'est ce qui explique son élévation au-dessus du sol intérieur. En A, la meurtrière est présentée du côté extérieur; en B du côté intérieur, et en C en coupe. Mais les progrès rapides que faisait l'artillerie à feu au XVe siècle déroutaient fort les constructeurs militaires. Ils abandonnaient difficilement l'ancien système et n'opposaient aux effets des nouveaux projectiles que des obstacles presque toujours insuffisants. Ce n'est qu'à la fin de ce siècle que les ingénieurs ou architectes combinent de véritables meurtrières pour de la mousqueterie, et parmi celles-ci on peut citer comme particulièrement intéressantes celles du bastion élevé en avant de la porte de Laon à Coucy. Ce bastion, aujourd'hui en grande partie couvert par la route impériale, battait le plateau et enfilait les fossés de la ville au moyen d'un ouvrage souterrain percé de meurtrières et de petites embrasures. Il dut être élevé vers les dernières années du XVe siècle, si l'on s'en rapporte à quelques sculptures et moulures qui décorent les voûtes de l'étage souterrain.

Ce bastion, dont l'ensemble est donné en A (11), possède à sa base, à 1m,00 environ au-dessus du fond du fossé, une galerie voûtée en berceau plein-cintre de 1m,20 de largeur. Une chambre voûtée en arcs ogives est construite derrière le saillant. Les galeries sont percées, à des distances assez rapprochées, de meurtrières disposées de manière à croiser les feux de mousqueterie au fond du fossé, ainsi que l'indiquent les lignes ponctuées en B. En C, nous avons tracé le plan de la chambre du saillant, avec ses deux meurtrières a et ses évents b percés dans la voûte; en D, le plan de l'une des meurtrières des faces, lesquelles sont doubles dans la hauteur du parement. En d sont également des évents. La coupe E est faite sur e f; celle G sur g h, et celle H sur iK. Ces galeries, percées de nombreuses meurtrières, sont évidemment destinés à empêcher le travail de la sape et de la mine au pied du bastion. Toute cette construction est exécutée avec grand soin et s'est parfaitement conservée. À l'article PORTE nous expliquons avec plus de détails l'utilité de cet ouvrage, si intéressant par sa date et si complet.
Note 221: (retour) Voyez ARCHITECTURE MILITAIRE, CRÉNEAU.
Note 222: (retour) Des remparts d'Avignon.
MISÉRICORDE, s. f. Petite console disposée sous la tablette mobile des stalles, servant de siége et permettant aux clercs, lorsque cette tablette est relevée, de s'asseoir en paraissant être debout (voy. STALLE).
MITRE, s. f. Couronnement d'un tuyau de cheminée, destiné à empêcher la pluie ou le vent de s'introduire dans la trémie, en laissant cependant échapper la fumée. Les mitres, pendant le moyen âge, sont faites en terre cuite, en brique ou en pierre. Peut-être en existait-il en fer battu, mais nous n'en avons pas trouvé en place, bien que parfois des scellements conservés à la tête de tuyaux de cheminée indiquent la présence d'un chapeau en fer.

Il existe encore dans l'hôpital de Sens une belle mitre en terre cuite
vernissée qui paraît remonter au XIIIe siècle. En voici (1) le tracé.
Cette mitre, en forme de faîtière, laissait échapper la fumée par trois
orifices verticaux, quatre gueules latérales et les deux extrémités de
la courbure. La disposition de ces issues était bien faite pour empêcher
le vent de s'engouffrer dans la trémie. En A, nous donnons la projection
horizontale de cette mitre, en B sa coupe transversale, et en C sa face
latérale. Les dents qui bordent les petits cylindres sont obtenus au
moyen d'un coup de pouce donné dans le profil lorsqu'il était encore
frais et après la soudure de ces cylindres sur le dos de la faîtière.
Habituellement cependant, à cette époque, les tuyaux de cheminée se
terminaient en cylindre et les mitres alors prenaient la forme conique.
Une de ces mitres coniques en terre cuite vernissée se voyait encore, il
y a quelques années, sur une maison du XIVe siècle dépendant de la porte
orientale de la ville de Semur en Auxois (2). En A est tracé sa
projection horizontale et en B son élévation. Sens, Troyes,
Villeneuve-sur-Yonne possèdent encore quelques débris de ces anciens
couronnements de tuyaux de cheminée en terre cuite. Mais dans les
contrées où la pierre est résistante et facile à travailler, les tuyaux
ont presque toujours des couronnements tenant à la construction, et les
chapiteaux de ces tuyaux sont de véritables mitres. De même, dans les
pays où la brique était employée pendant le moyen âge, les mitres sont
faites au moyen d'assemblages de tuiles et de briques (voy. CHEMINÉE).
Les architectes du moyen âge cherchaient toujours à décorer les parties
de la construction qui se découpaient sur le ciel et à leur donner une
silhouette agréable. On voit, dans les vignettes des manuscrits du XVe
siècle, des têtes de cheminées richement ornées; mais malheureusement la
fragilité de ces détails des édifices publics ou privés, très-exposés
aux intempéries, est cause de leur destruction dans toutes nos anciennes
cités.
On fit encore, pendant l'époque de la Renaissance, d'assez belles mitres en terre vernissée et même en faïence. Ces mitres en faïence sont composées de plusieurs rondelles s'emmanchant les unes sur les autres et quelquefois curieusement ornées de détails délicats soit en relief, soit en peinture, trop petits d'échelle, il est vrai, pour la place qu'ils occupent.
Mais alors le sentiment vrai de la décoration extérieure des édifices était fort altéré, et ces mitres en poterie fine, très-jolies à voir de près dans un musée, ne produisent aucun effet sur le sommet d'un comble.
MOELLON, s. m. Pierre de petit échantillon, basse entre lits, et que l'on débite à la carrière pour construire des murs avec du mortier ou du plâtre. Le moellon est piqué ou brut. Le moellon piqué est celui qui présente un parement taillé, rustiqué et qui n'a pas besoin d'être enduit. Le moellon brut n'a pas de forme régulière, c'est-à-dire qu'il ne possède ni lits ni parements. On employait beaucoup le moellon piqué au moyen âge dans les constructions de maisons et d'édifices élevés à peu de frais, et ces sortes de constructions sont excellentes, en ce que les parements font parfaitement corps avec le blocage intérieur. Dans quelques contrées de la France, et notamment dans la Bourgogne et le Charolais, on trouve des bancs considérables d'un calcaire dur, compacte, qui se délitent en assises très-basses, de 0m,10 à 0m,20, régulières, et qui fournissent ainsi d'excellent moellon piqué, ne demandant qu'une taille préparatoire très-légère. Aussi, dans ces contrées, on voit beaucoup de monuments anciens dont les parements sont montés en moellon piqué présentant une surface aussi plane que celle donnée par la pierre de taille. Entre les contre-forts, les murs des nefs des églises de Vézelay, de Pontigny, de Beaune, sont montés en moellon piqué admirablement conservé. Les transports étant alors difficiles, on comprend comment les constructeurs pouvaient s'approvisionner plus aisément de moellon piqué, qu'on amenait à la rigueur à dos d'âne, que de pierre de taille. Ils réservaient celle-ci pour les colonnes, pour les angles, les piles, les contre-forts, les socles, les corniches, les tableaux de fenêtre.
Les Romains ont souvent employé le moellon piqué, mais en morceaux présentant extérieurement des surfaces carrées et non pas barlongues. Cette tradition fut suivie dans certaines provinces de France jusqu'au XIIe siècle. Ainsi la nef de la cathédrale du Mans, par exemple, dont la construction remonte en partie au XIe siècle, présente extérieurement des parements qui ont toute l'apparence d'une construction romaine. Sur les bords de la Mayenne et de la Loire, on voit quantité d'édifices du XIe et XIIe siècles qui offrent la même particularité. Le Beauvoisis et une partie du Valois conservent encore de nombreux restes de constructions du XIe siècle que l'on pourrait croire faites par des maçons romains.
MONTOIR, s. m. Degré assez élevé pour permettre de monter à cheval sans l'aide de l'étrier. Il n'y avait pas de cour de château, d'hôtel ou d'hôtellerie sans un ou plusieurs montoirs. Il y en avait pour les femmes et pour les hommes, et les perrons qui jouent un rôle si important dans l'habitation seigneuriale étaient accompagnés de montoirs. Les chevaux et mules étaient dressés à aller au montoir, c'est-à-dire à se tenir assez près de ces degrés pour que le cavalier pût se mettre facilement en selle. Un cheval qui n'allait pas au montoir était réputé vicieux. On comprend que pour un homme pesamment armé, le montoir était une nécessité, et sans montoir un chevalier, à l'époque où les armures étaient d'un poids très-considérable, ne pouvait guère enfourcher son cheval.

Il y avait au Louvre de Charles V un montoir pour le roi et un pour la reine. Nous avons vu l'un de ces montoirs (1) dans la cour de l'hôtel de la Trémoille, à Paris, rangé le long du mur de la façade du fond à côté du perron. Ce montoir, taillé dans un seul bloc de pierre, se composait de trois degrés; le dernier formant un petit palier.
Le perron du château de Pierrefonds était accompagné, à droite et à gauche du degré principal, de deux larges montoirs (voy. PERRON). Devant les hôtelleries, il y avait toujours en dehors un montoir de pierre et dans la cour plusieurs montoirs de bois, sortes d'escabeaux que l'on déplaçait au besoin. Les montoirs étaient garnis de tapis pour les jours de cérémonie dans les châteaux et palais. À l'extrémité des lices, pendant les tournois, on disposait des montoirs pour les combattants, et alors se mettre en selle sans le secours du montoir était considéré comme un acte de druerie.
MORTAISE, s. f. Mortoise. Terme de charpente et de menuiserie. La mortaise est l'entaille qui reçoit un tenon. (Voyez CHARPENTE, MENUISERIE, TENON.)
MORTIER, s. m. Composé de sable et de chaux. Pour faire du bon mortier, le sable de rivière, le gravier, a été reconnu comme le meilleur. Quelle que soit la qualité du sable de plaine ou de carrière, ce sable étant toujours mêlé d'une certaine quantité d'argile, il ne remplit pas les conditions nécessaires à la façon du bon mortier.
Pendant le moyen âge, les mortiers sont de qualités très-différentes; autant ils sont durs et compactes dans les constructions romaines, autant ils sont de qualité médiocre pendant les IXe, Xe, et XIe siècles. Il semble qu'alors on avait perdu les procédés de fabrication de la chaux, et ce n'est que par exception que l'on trouve, dans des édifices de cette époque, des mortiers offrant une certaine consistance. Au XIIe siècle, les mortiers commencent à reprendre de la force; pendant les XIIIe, XIVe et XVe siècles, on en fit d'excellents.
La qualité des mortiers est donc un des moyens fournis aux architectes pour reconnaître la date d'un édifice, mais il est d'autres signes plus caractérisés. Le mortier employé dans les monuments romans antérieurs au XIIe siècle est quelquefois mélangé de débris de tuileaux, surtout pendant le Xe siècle et avant; il est maigre, c'est-à-dire qu'il contient peu de chaux, et celle-ci est mal cuite. Au XIe siècle, on trouve dans l'Île-de-France, la Champagne et la Bourgogne, des mortiers composés de gravier fin (sable de plaine souvent) et de chaux en quantité, mais mal cuite et noyée, n'ayant plus de force. Les débris de tuileaux ont disparu. Au XIIe siècle, surtout à dater de la seconde moitié, les mortiers sont égaux, bien corroyés, le sable fin, choisi parfois avec soin ou tamisé. À dater de la fin du XIIe siècle, les mortiers deviennent généralement très-bons et sont de deux sortes. Le mortier des blocages est fait avec de très-gros gravier, celui des joints et lits avec du bon sable de rivière, fin et pur. La chaux employée pour les lits et joints est plus blanche que celle des blocages qui est très-mélangée de débris de charbon. Pendant les XIVe et XVe siècles, on emploie souvent le sable de plaine, très-rarement le gros gravier; les mortiers sont parfaitement corroyés, la chaux bien cuite et bien éteinte. Mais alors le sable de plaine employé paraît avoir été lavé, car il ne contient pas d'argile. Il n'y a que dans certaines parties de la Picardie où le sable argileux de plaine ait été employé sans lavage pour faire du mortier, et bien que ces mortiers aient acquis de la dureté, ils sont toujours gercés dans les blocages et ne présentent pas une masse parfaitement compacte.
Les constructeurs ont employé la chaux telle que pouvaient la leur fournir les calcaires dont ils disposaient. Ces chaux sont hydrauliques dans les contrées où la pierre à chaux possède cette qualité, grasses dans les pays où la pierre à chaux ne contient que très-peu d'argile. Ils ne connaissaient pas, par conséquent, la chaux hydraulique factice. Mais leurs chaux grasses ont, à dater de la fin du XIIe siècle, acquis une très-grande dureté, même en fondation, ainsi que nous avons pu le reconnaître dans les substructions des cathédrales de Reims, d'Amiens, de Paris, de Sens, etc.
Il faut dire qu'à cette époque, c'est-à-dire au commencement du XIIIe siècle, des raisons d'économie forçaient quelquefois les constructeurs à n'employer que très-peu de chaux dans leur mortier et du sable comme on le trouvait. Les mortiers dans la construction des cathédrales de Laon, de Troyes, de Châlons-sur-Marne, de Séez sont très-mauvais. Mais nous avons donné ailleurs les raisons qui avaient fait élever ces édifices avec une extrême économie (voy. CATHÉDRALE, CONSTRUCTION).
MOSAÏQUE, s. f. Ouvrages faits de petits cubes de pierres dures ou de pâtes de verre de diverses couleurs, collés sur les parements des monuments ou sur les aires au moyen d'un ciment composé de chaux, de sable très-fin, de pouzzolane ou de brique pilée. Les Romains des bas temps ont employé la mosaïque non-seulement pour décorer les aires des salles, mais aussi pour tapisser les murs. Il n'est pas nécessaire ici de répéter ce qui a été écrit sur ce sujet. Il nous suffit de constater que la mosaïque était fort souvent appliquée dans les monuments de l'époque mérovingienne en Occident. Grégoire de Tours parle des mosaïques qui décoraient plusieurs églises de son temps. Saint Pallade, évêque d'Auxerre, fit élever au VIIe siècle le monastère de Saint-Eusèbe; l'abside de l'église était décorée de mosaïques dans lesquelles l'or entrait pour une grande partie 223. En effet, le travail de mosaïque, auquel on donne le nom de byzantin, se compose de fonds d'or obtenus au moyen de petits cubes de pâtes de verre dorés et recouverts d'un émail transparent. Les sujets, les ornements se détachent sur ces fonds d'or. Ces sortes de mosaïques, très-répandues en Italie, en Sicile et en Orient, sont très-rares en France, puisque nous n'en connaissons qu'un seul exemple existant encore dans la petite église de Germigny-les-Prés, près de Sully-sur-Loire, exemple qui paraît dater du IXe siècle.
L'abbé Lebeuf, dans son Histoire du diocèse de Paris 224, dit que dans le château de Bicêtre, bâti par le duc de Berry, frère de Charles V, il y avait deux petites salles «enrichies d'un parfaitement bel ouvrage à la mosaïque.» Il est difficile aujourd'hui de se faire une idée de ce que pouvait être cet ouvrage de mosaïque du XIVe siècle, puisque nous ne connaissons aucun travail de ce genre ayant été exécuté en France depuis le XII siècle. Cependant nous possédons encore, dans les magasins de l'église abbatiale de Saint-Denis, les restes d'un pavé en mosaïque à fonds d'or et de couleur datant de la fin du XIIe siècle, et qui rappelle parfaitement, comme facture, les mosaïques italiennes de la même époque. Ce pavage, dont l'ensemble a été conservé par un dessin de Percier fait en 1797, représentait les travaux de l'année entourant un large compartiment occupé par des animaux fantastiques. Si la facture est italienne, le dessin est évidemment français. Mais il ne faut pas oublier que Suger avait fait venir, si l'on en croit ses gestes, des artistes de tous pays pour contribuer à l'érection de la nouvelle église, commencée en 1140. Toutefois, nous ne pouvons donner aux cartons qui ont dû servir à l'exécution de ce pavage une date antérieure à 1190 225. En débarrassant cette même église de Saint-Denis des tristes superfétations qui en ont si profondément altéré le caractère, nous avons trouvé, sous les carrelages modernes, quantité de petits cubes de terre cuite vernissée de 0m,015 à 0m,02 de côté qui ont évidemment servi à faire des mosaïques par un procédé peu dispendieux. Au XIIe siècle, nos architectes ont quelquefois cherché à imiter ces pavages italiens, connus sous le nom d'opus alexandrinum, mais les pierres dures leur manquant, ils y suppléaient par la terre cuite vernissée. Plus habituellement, les carrelages en terre cuite avec dessins incrustés ou les dalles gravées remplaçaient chez nous les anciennes mosaïques gallo-romaines ou celles d'outre-monts. Quant aux mosaïques sur parements, ainsi que nous l'avons dit, il n'en existe qu'un nombre très-restreint de ce côté-ci des Alpes, et sont-elles antérieures au XIIe siècle. Les vitraux étaient la véritable décoration des édifices en France à dater de cette époque, et par le fait les vitraux sont une sorte de mosaïque translucide (voy. VITRAIL).
Note 223: (retour) L'abbé Lebeuf. Mémoires concernant l'hist. civile et ecclésiastique d'Auxerre, t. I, p. 149.
Note 224: (retour) T. X, p. 16.
Note 225: (retour) Il faut mentionner ici la mosaïque représentant les figures du zodiaque retrouvée en 1831 à Saint-Omer, et provenant de la tombe du prince Guillaume, mort à Aire en 1109 (abbaye de Saint-Bertin).
MOULIN, s. m. Molin, molinel, molis. Ne nous occupant ici que des bâtiments contenant une machine à moudre, à fouler ou à façonner des métaux, nous avons les moulins mus par un cours d'eau et les moulins à vent. Les moulins à eau paraissent être les plus anciens. Lambert, quarantième abbé de Saint-Bertin, fait établir définitivement des moulins à eau, commencés sous Odland en 797. Ces moulins, dit la chronique des abbés de Saint-Bertin, étaient les premiers qui furent établis dans le pays 226. Cet abbé Lambert (1095 à 1123) fit exécuter même des travaux hydrauliques qui paraissent avoir été assez importants, puisqu'au moyen des roues motrices des moulins abbatiaux il fit monter l'eau nécessaire au service du monastère, afin de la répandre dans les bâtiments par des aqueducs souterrains. Il n'est pas question de moulins à vent en France antérieurement au XIIe siècle. Quelques auteurs prétendent que l'invention de ces sortes de moulins fut rapportée d'Orient par les premiers croisés; et, en effet, les moulins à vent sont nommés en Normandie, pendant le XIVe siècle, moulins turquois. Des chartes de Philippe-Auguste concèdent le droit d'établir des moulins à vent et des moulins à eau 227, et dans le roman d'Ogier de Danemarche 228, il est deux fois question de moulins à eau.
Les Olim donnent des arrêts du parlement relatifs à l'établissement de moulins à vent. Nous citerons l'un de ces arrêts, rendu en 1275, sous Philippe III:
«Les moines de Royaumont se plaignaient de ce qu'un moulin à vent, appartenant à Pierre de Baclai, avait été récemment construit, près de Baclai, à leur préjudice et dommage, et au détriment de leurs moulins de Gonesse; ils demandaient que ce moulin fût détruit, lorsque, disaient-ils, le seigneur Roi l'aurait dit ou commandé par jugement. Les raisons des parties adverses entendues, l'arrêt suivant fut prononcé: Le moulin, quant à ce qui concernait les moines, ne devait pas être détruit 231.»
Au XVe siècle, le seigneur de Caumont, en passant à Rhodes et décrivant les édifices qui lui paraissent remarquables dans la ville, s'exprime ainsi:
«...Et tout au lonc d'icelle (muraille de la cité) sont assis .XVI. molis de vent, toux d'un ranc, qui nuyt et jour molent yver et esté; et à paynes l'on les voit toux ensemble molir he toux à ung cop cesser 232.»
Sur les tours de l'enceinte intérieure de la cité de Carcassonne, il y avait plusieurs moulins à vent, ainsi que le constatent une vignette de 1467 233 et les dénominations anciennes de quelques-unes de ces tours 234. Les moulins à eau dépendant de châteaux ou d'abbayes isolés étaient souvent fortifiés. L'établissement d'un moulin ne pouvait avoir lieu que par une cession du seigneur terrien. En cédant le droit de bâtir un moulin, le seigneur lui assignait une étendue de territoire, le ban du moulin. Tous les habitants compris dans les limites du ban étaient tenus de faire moudre leur grain dans le moulin banal, sous peine de voir confisquer leur blé, le cheval et la voiture, au profit du propriétaire du moulin et du seigneur du délinquant. Ces moulins devenaient ainsi de véritables fiefs dont la conservation importait au seigneur qui en avait permis l'établissement, au propriétaire et aux habitants compris dans le ban; il était nécessaire que ces bâtiments fussent en état de résister à un coup de main, de se défendre. Aussi les bâtissait-on autant que possible sur des îlots, ou bien le long d'un pont facilement barricadé. Ces moulins étaient assez forts quelquefois pour soutenir un siége en règle, et, afin qu'on ne pût détruire leurs roues motrices au moyen de pierriers ou de mangonneaux, celles-ci étaient alors soigneusement abritées sous la construction en maçonnerie. Le moulin dit du Roi, sur l'Aude, à Carcassonne, résista ainsi aux attaques de l'armée de Trencavel, en 1240. Dans son excellent ouvrage sur la Guienne militaire, M. Léo Drouyn donne plusieurs exemples de moulins à eau qui datent la plupart du XIVe siècle, et qui font voir avec quel soin ces usines étaient établies au moyen âge. Le bâtiment qui contient le mécanisme est presque toujours sur plan carré ou barlong, la roue motrice étant placée en dedans le long d'un des côtés du parallélogramme. S'il n'existe plus de moulins antérieurs au XIIIe siècle, les textes aussi bien que les représentations de ces usines ne peuvent nous laisser de doutes sur leur établissement dès le commencement du XIIe siècle au moins. Un des chapiteaux de la nef de Vézelay nous montre un mécanisme de moulin et des gens qui apportent du grain dans la trémie. Le manuscrit d'Herrade de Landsberg 235, qui date du XIIe siècle, nous montre également le mécanisme d'un moulin à eau possédant une roue motrice à palettes dont l'arbre, muni d'une roue d'engrenage, fait tourner la meule inférieure. Dès le temps de Guillaume le Conquérant, dit M. L. Delisle 236, on avait établi à l'entrée du port de Douvres un moulin mis en mouvement par le flux et le reflux de la mer 237. «En 1235, il en existait un à Veules 238.
«Au XIVe siècle, l'archevêque de Rouen possédait à Dieppe deux moulins de marée...» En 1277, Philippe le Hardi avait affermé à Guillaume l'Archier les moulins de marée établis aux ponts d'Ouve, près Carentan.
Il existe en France des moulins à eau d'une date ancienne et qui sont encore en usage; on en trouve en Normandie, en Touraine, et particulièrement en Guienne, où ces usines, presque toutes fortifiées, ont été établies pendant la domination anglaise, époque de prospérité et de développement pour cette province. À Melun, avant 1830, on voyait encore les restes d'un moulin fortifié dépendant des ruines connues sous le nom de château de la reine Blanche. Ce moulin, dont on ne voyait plus que les soubassements, se composait de deux piles épaisses avec éperons opposés au courant de la rivière et couronnées de tourelles; de celles-ci, les premières assises seulement étaient apparentes. La roue motrice était placée entre ces deux piles et parfaitement garantie par conséquent. Le plan du rez-de-chaussée, porté par une arche qui réunissait les deux piles, n'était probablement qu'une salle barlongue. Nous n'avons pu nous procurer sur le couronnement de cette usine aucun renseignement. La construction datait certainement du XIIIe siècle, à considérer les profils de la souche des tourelles.

Voici (1) le plan de cette usine en A et les restes de son élévation en
B. Nous ne pensons pas que le côté aval fût couronné par des tourelles;
c'est qu'en effet on n'avait guère à craindre (le moulin étant autrefois
entouré d'eau) que des attaques venant d'amont. Le plancher du
rez-de-chaussée au-dessus de la roue motrice était placé au niveau C, et
en D était un pont de bois porté sur des corbeaux, l'entrée du moulin
étant en E. Le moulin de Bagas (canton et arrondissement de la Réole,
Gironde), donné par M. Léo Drouyn
239, fut élevé au XIVe siècle. «En
1436, dit cet auteur, cent vingt ans après sa construction, il fut donné
par Henri VI, roi d'Angleterre, à Pierre Durant, écuyer.» Aujourd'hui
cette usine fonctionne encore. Voici (2X) le plan du moulin de Bagas ou
de Bagatz à rez-de-chaussée, tel qu'il s'établit sur l'un des bras du
Drot. La digue qui maintient le bief est en A. Deux éperons BB' dirigent
les eaux sur deux roues CC'. En aval, les eaux des vannes s'échappent
par des ouvertures couvertes par des linteaux, D est un îlot. Les
entrées du moulin sont en amont et en aval, par les portes fermées au
moyen des tiers-points (G et H). On ne pouvait arriver à ces portes que
par l'îlot D, ou directement en bateau par la pointe de terre H. Ce
rez-de-chaussée est défendu sur trois de ses faces par six meurtrières
s'ouvrant latéralement et en amont. Par un escalier de bois on monte au
premier étage XX. De la berge, du côté opposé à l'îlot, on arrivait de
plain-pied ou à peu près à la porte E, au moyen d'un pont volant. C'est
par cette porte que les grains entraient dans l'usine. Cet étage, qui ne
se compose, comme le rez-de-chaussée, que d'une salle, contient des
latrines en F; une petite porte I s'ouvrait autrefois sur une galerie de
bois J, qui probablement régnait le long de la façade d'aval. On montait
au second XXX également par un escalier de bois. Cet étage est muni aux
quatre angles d'échauguettes flanquantes dont l'une contient l'escalier
qui monte aux combles et au crénelage supérieur. Quatre fenêtres
éclairent cette salle, percée en outre de sept meurtrières et garnie
d'une cheminée.
Voici (3) la vue perspective de ce moulin prise du point P 240. M. Léo Drouyn, auquel nous empruntons ces renseignements, présente des vues et plans de plusieurs autres moulins pris dans la même contrée et bâtis pendant le XIVe siècle.

Dans les villes, on profitait souvent des arches de pont pour établir des moulins, et même alors les ponts et moulins, bâtis en bois, ne formaient qu'une seule et même construction. Avant 1835, il existait encore à Meaux, en Brie, un pont de ce genre entièrement en bois ainsi que les moulins y attenant; cet ensemble datait de la fin du XVe siècle. À Châlon-sur-Saône, le pont de pierre qui communiquait à l'île était garni de tours rondes au-dessus des piles, avec moulins entre ces tours au droit des arches; cette disposition pittoresque a subsisté jusqu'au XVIIe siècle 241. À Paris, le pont aux meuniers qui traversait le grand bras de la Seine en aval du pont au Change, en face le Palais, était établi dans les mêmes conditions que celui de Meaux.
Nous n'avons pu trouver de documents ayant quelque valeur sur la forme des moulins à vent du moyen âge, ou plutôt sur la disposition de leur couronnement, car, pour le corps de la bâtisse, elle se composait d'une tour ronde. Cependant la vignette citée plus haut, et qui donne une vue de la cité de Carcassonne en 1467, indique un des moulins à vent qui garnissaient les tours de l'enceinte intérieure; or cette représentation rappelle les moulins de notre temps: toit conique sur une tour ronde et quatre ailes garnies de toiles. À Castelnaudary, il y a quinze ans, on voyait encore quelques moulins à vent du XVIe siècle qui ne différaient pas des nôtres.
Au XVe siècle il existait des moulins à vent sur la butte dite des Moulins, à Paris, située entre le palais actuel des Tuileries et le boulevard; et sur plusieurs des tours de l'enceinte de Philippe-Auguste on en avait établi dès avant cette époque. La célèbre tapisserie de l'hôtel-de-ville, qui date de la seconde moitié du XVIe siècle, montre autour de la capitale un assez grand nombre de moulins à vent sur les points élevés.
Note 226: (retour) Voy. les abbés de Saint-Bertin, d'après les anciens monuments de ce monastère, par M. Henri De La Place, Ire partie, 1854, p. 41, 186 et 187.
Note 227: (retour) En 1195. Voy. Ducange, Gloss.: «Concedo monialibus antedictis... molendina ad aquam et ad ventum.»
Note 228: (retour) Du XIIe siècle.
Note 229: (retour) Vers 6673.
Note 230: (retour) Vers 8349.
Note 231: (retour) Les Olim. t. I, p. 62.
Note 232: (retour) Voyage d'Oultremer en Jérusalem, par le S. de Caumont, l'an MCCCCXVII, publ. par M. le marquis de La Grange, 1858.
Note 233: (retour) Bibl. imp. Estampes, nº 7402, folio 40.
Note 234: (retour) Du moulin du connétable, du moulin d'Avar, du moulin du midi.
Note 235: (retour) Bibl. de Strasbourg.
Note 236: (retour) Études sur la condition de la classe agric. en Normandie. Évreux, 1851.
Note 237: (retour) In introitu portus de Dovere est unum molendinum quod omnes pene naves confringit per magnam turbationem maris, et maximum damnum facit regi et hominibus, et non ibi fuit tempore regis Edwardi. Domesday Book, cité par S. H. Ellis, t. I, p. 124.
Note 238: (retour) Cartul. de Fécamp.
Note 239: (retour) Dans son ouvrage déjà cité sur la Guienne militaire, p. 28. Nous ne saurions trop recommander le travail de M. Léo Drouyn à nos lecteurs. On ne peut trouver réunis plus de renseignements intéressants sur les monuments d'une de nos belles provinces de France, ni rendre avec plus de charme et de scrupule l'aspect de ces édifices civils et militaires.
Note 240: (retour) Les crénelages seuls aujourd'hui sont détruits. Les autres parties de la construction sont à peu près intactes.
Note 241: (retour) Voy. Civitat. orbis terrar., in-fol., 2 vol., 1574. La vue de Châlon-sur-Saône se trouve au commencement du 4e livre.
MOUSTIER, s. m. Muster, monastère. Voy. ARCHITECTURE MONASTIQUE.

NAISSANCE, s. f. Point de départ d'un arc sur les pieds-droits. Au moyen âge, les architectes de l'époque romane, aussi bien que ceux de l'époque gothique, ont presque toujours relevé les naissances des arcs au-dessus des bandeaux ou tailloirs de chapiteaux. Ainsi, ces architectes avaient-ils à tracer une archivolte sur deux colonnes AB (1): au lieu de poser le point de centre de l'arc sur la ligne a b, ils relevaient ce point de manière à ce qu'un rayon visuel c d, par exemple, ne perdît pas la naissance de cet arc par l'effet de la saillie des tailloirs ou bandeaux.

Dans l'article CONSTRUCTION, nous donnons les raisons qui souvent obligeaient les architectes à relever les naissances des arcs. On peut aussi recourir au mot OGIVE.
NARTHEX, s. m. Dans la basilique romaine, le narthex est le portique élevé en avant de la nef et formant le fond de l'atrium. Dans la primitive Église, le narthex était destiné à contenir les catéchumènes, les énergumènes, et au centre, en face la porte de la nef, les pénitents auditeurs, c'est-à-dire ceux auxquels il était permis d'assister au service divin en dehors du temple. Pendant le moyen âge, le mot de narthex n'a point été appliqué aux porches ouverts ou fermés de nos églises; d'ailleurs il n'y avait plus alors ici ni catéchumènes ni énergumènes. Ce n'est que depuis le réveil des études archéologiques que cette dénomination de narthex a été donnée aux porches fermés de certaines églises, comme les porches de Cluny, de Vézelay, de Tournus, etc. Nous l'acceptons, puisque nous avons cru devoir ne point modifier le vocabulaire admis par les architectes et les archéologues. Il n'en faut pas moins constater que le mot narthex n'est pas applicable à nos édifices religieux; il est remplacé par le mot Porche.
Il y a des porches ouverts, il y en a de fermés. Les églises de l'ordre de Cluny et celles de l'ordre de Cîteaux avaient toutes des porches fermés plus ou moins étendus, en avant de la nef. Le porche des églises de Cluny était même une sorte d'antéglise très-vaste, ainsi que ceux des églises abbatiales de Vézelay, de la Charité-sur-Loire, de Saint-Philibert de Tournus, etc. La distinction entre les porches ouverts et fermés étant fort difficile à établir souvent, nous renvoyons nos lecteurs au mot PORCHE pour l'étude de cette partie très-intéressante de nos édifices religieux; d'autant que nous ne saurions dire pourquoi les archéologues de nos jours ont donné aux porches fermés la dénomination de narthex, tandis que les véritables narthex n'étaient qu'un portique ouvert, au moins sur sa face antérieure, dans les premières basiliques chrétiennes.
NEF, s. f. La basilique antique romaine se compose d'une ou de trois nefs terminées par un hémicycle servant de tribunal, au-devant duquel, quand l'espace le permettait, au dire de Vitruve, on élevait des chalcidiques, ce que nous appelons aujourd'hui croisée, transsept. Le mot nef ne veut donc dire autre chose qu'une salle plus longue que large, fermée par deux murs et un comble, ou accompagnée latéralement de deux autres nefs plus basses, portant une galerie ou un comble en appentis. Dans les premières basiliques chrétiennes, comme Saint-Paul hors les murs, à Rome, les nefs ont été portées jusqu'au nombre de cinq: une nef centrale et deux collatéraux de chaque côté de la nef centrale. Aujourd'hui, on ne donne pas le nom de nefs aux ailes, aux collatéraux, mais seulement au vaisseau central, qu'il soit couvert par une charpente lambrissée ou voûté. L'ancienne église de Saint-Martin-des-Champs, à Paris, aujourd'hui École des Arts et Métiers, ne se compose que d'une seule nef rebâtie vers le milieu du XIIIe siècle et terminée par un choeur du XIe entouré d'un bas-côté avec chapelles. Les cathédrales de Reims, d'Amiens, de Rouen, de Chartres, de Bayeux, de Coutances, de Tours, etc., possèdent une nef centrale avec bas-côtés simples, précédant le transsept. Les cathédrales de Paris, de Bourges, de Cologne, l'église abbatiale de Saint-Sernin de Toulouse, etc., ont une nef centrale accompagnée latéralement de bas-côtés doubles. Jusqu'à la fin du XIIe siècle, les nefs des églises avec collatéraux n'excèdent guère dix à onze mètres d'axe en axe des piles; mais, à dater de la période gothique, ces nefs atteignent quinze et seize mètres d'axe en axe des piles. Quant aux églises à une seule nef, comme les cathédrales de Toulouse et d'Alby (XIIe et XIVe siècles), leur largeur dans oeuvre atteint vingt mètres et au delà (voy. ARCHITECTURE RELIGIEUSE, CATHÉDRALE, TRAVÉE). Les églises conventuelles des Jacobins, bâties pendant le XIIIe siècle, se composent habituellement de deux nefs égales en longueur, largeur et hauteur; ces nefs jumelles sont séparées par un rang de piliers (voy. ARCHITECTURE MONASTIQUE). Cette disposition est observée aussi pour des salles affectées à des services monastiques ou civils, comme le réfectoire de Saint-Martin-des-Champs à Paris, comme l'ancienne Grand'salle du Palais à Paris (voy. SALLE).
Nos plus anciennes cathédrales françaises ont été la plupart conçues avec une nef centrale accompagnée de collatéraux simples ou doubles, mais sans transsept. La cathédrale de Noyon, parmi celles élevées pendant le XIIe siècle, et celle de Soissons, font seules exception à cette règle. Non-seulement ces granites églises ne contenaient pas de transsept, mais elles étaient dépourvues de chapelles latérales; c'est à peine si quelques-unes d'entre elles en possédaient trois, très-petites, s'ouvrant sur les bas-côtés du sanctuaire. Des fouilles que nous avons fait faire dans la cathédrale de Sens bâtie, comme on sait, vers le milieu du XIIe siècle, ont mis à jour les bases des piliers qui passaient au milieu du transsept actuel, et lorsqu'on est prévenu de ce fait, on reconnaît aisément comment, au XIVe siècle, des bras de croix furent ajoutés à cette grande église en détruisant deux travées de la nef à droite et à gauche. À Senlis, même disposition; la cathédrale se composait d'une nef avec collatéraux sans transsept. L'adjonction de la croisée est là facilement reconnaissable. La cathédrale de Meaux, qui datait de la fin du XIIe siècle, était originairement dépourvue de transsept. À Paris même, des fouilles, faites dans le prolongement des piliers du choeur et des travées restées visibles dans les reins de la grande voûte de la croisée, nous portent à croire que cette église avait été conçue sans transsept. À Bourges enfin, dont la construction remonte aux premières années du XIIIe siècle, mais dont la composition, comme plan, est plus ancienne (voy. CATHÉDRALE), il n'existe pas de transsept. On peut donc conclure de ces faits que le programme de la cathédrale française du XIIe siècle, donné au moment où les évêques réunissant les efforts des communes commencèrent ces grandes constructions, ne demandait qu'une nef centrale avec collatéraux, sans chalcidique, croisée ou transsept, et même souvent sans chapelles. La cathédrale française n'était donc qu'une salle, qu'une basilique; lieu de réunion pour les citoyens, au centre duquel était l'autel et le trône de l'évêque, la cathedra. Remarquons encore que, dans la plupart de ces édifices, à Paris, à Senlis, à Meaux, il y avait des galeries supérieures disposées comme sont les allées de premier étage de la basilique antique. Un texte vient appuyer ce fait de l'absence des transsepts dans les églises cathédrales rebâties au moment où l'art de l'architecture passe aux mains des laïques.
Guillaume Durand, dans son Rational, en décrivant les diverses parties de l'église, dit (chap. I, § 17): «Certaines églises sont faites en forme de croix,» et en prêtant un sens mystique à chacune des parties de l'église, depuis le choeur jusqu'au porche, il ne parle pas du transsept. Or, puisqu'il observe que «certaines églises» étaient, de son temps, en forme de croix, ce dont on ne peut douter, il en existait qui n'en possédaient point, et Guillaume Durand, évêque en 1285, mort en 1296, avait dû voir encore plusieurs cathédrales françaises dépourvues de transsepts. L'attention minutieuse avec laquelle le célèbre prélat cherche à donner une signification symbolique religieuse aux diverses parties de l'église indique d'ailleurs les tendances du haut clergé à l'époque où il écrivait. Il s'agissait alors d'enlever à la cathédrale, construite à l'aide de circonstances plutôt politiques que religieuses, le caractère civil qu'elle conservait dans l'esprit des populations urbaines; et, pour nous, l'établissement des transsepts, des chapelles latérales et des clôtures de choeur, pendant la fin du XIIIe siècle et le commencement du XIVe; la destruction, par conséquent, des grandes nefs primitives des églises épiscopales de la première période gothique, est un des faits les plus intéressants de notre histoire, en ce qu'il indique le mouvement communal appuyé par les évêques au XIIe siècle, parce qu'ils espéraient en profiter pour assurer leur pouvoir, et la réaction cléricale contre ce mouvement, dès que la puissance royale s'établit solidement et que l'épiscopat dut renoncer à soumettre la société française à une sorte de théocratie.
NICHE, s. f. Retraite peu profonde réservée sur le nu d'un mur, d'une pile ou d'un contre-fort, pour placer une statue. Les niches sont peu communes dans l'architecture du moyen âge; on n'en voit point dans les édifices de l'époque romane, et elles n'apparaissent que vers le commencement du XIIIe siècle. Nous ne pouvons donner le nom de niches à des arcatures remplies de figures en ronde-bosse, comme celles qui garnissent, par exemple, les façades des églises de Notre-Dame la Grande à Poitiers ou de la cathédrale d'Angoulême.
Les architectes du moyen âge n'avaient pas songé à ménager sur le nu d'un mur un enfoncement, que rien ne motivait d'ailleurs, pour y loger une statue. Le goût et le sens dont ils étaient doués ne leur permettaient pas d'employer ces moyens décoratifs, qui ne peuvent guère se comparer en architecture qu'aux chevilles placées par certains poëtes dans leurs vers. Les architectes romains de l'Empire usaient et abusaient même de la niche, mais le système de leur construction s'y prêtait. Afin d'alléger les énormes massifs de maçonnerie de la structure romaine, et pour économiser les matériaux, on pratiquait des niches en pleine maçonnerie qui n'étaient, après tout, que des évidements avec arcs de décharge. La section horizontale de ces niches était ou un demi-cercle ou un enfoncement rectangulaire, et, dans ces sortes d'alvéoles, on plaçait des statues. Mais dans l'architecture du moyen âge les pleins n'ayant que la section nécessaire à leur fonction, il n'y avait pas lieu de les alléger par des vides. Les niches n'apparaissent donc qu'aux sommets des contre-forts, c'est-à-dire là où la construction n'ayant plus rien à porter, il est bon de lui donner une apparence légère. On voit de véritables niches pratiquées à la tête des contre-forts de la nef de Notre-Dame de Chartres. On en voit aussi qui forment le couronnement de quelques-uns des contre-forts de la nef de la cathédrale de Rouen (commencement du XIIIe siècle) (1).

Quelquefois, mais plus rarement, des niches sont placées sur des contre-forts au droit des portails et pour relier les grandes imageries des ébrasements. Mais ces niches ne sont pas prises aux dépens de la masse, elles forment comme un encadrement saillant autour d'une statue. L'un des plus beaux exemples de ces sortes de niches se voit sur la façade de la cathédrale de Paris, à la hauteur des naissances des voussures des trois portails. Les contre-forts se retraitant au-dessus de ces naissances, l'architecte a profité de la saillie inférieure pour la couronner par un bandeau saillant portant deux colonnettes monolithes surmontées d'une arcature couverte par les talus de la retraite. Ces quatre niches, qui participent à la décoration des portes, sont remplies par quatre figures représentant saint Étienne, l'Église, la Synagogue et saint Denis. Nous donnons (1 bis) la niche qui contient la personnification de l'Église 242.

Nous ne pouvons considérer comme des niches les pinacles qui couronnent les contre-forts de l'église cathédrale de Reims (voy. PINACLE). Mais autour du choeur de la cathédrale du Mans, les faces des contre-forts, à mi-hauteur, sont allégés par des niches contenant des statues (2) (1250 environ).

On observera que ces niches laissent passer le nu de la face des contre-forts et ne sont qu'une arcature rapportée sur ce nu. Les statues étant posées sur un socle formant saillie, la niche n'est, pour ainsi dire, qu'un encadrement entourant une statue en saillie sur le nu de la construction.
C'est toujours ainsi que sont traitées les niches jusqu'à la fin du XIIIe siècle. Au commencement du XIVe, les niches sont décidément prises aux dépens du parement; elles forment enfoncement. C'est ainsi que sont traitées les niches ménagées à l'extérieur, entre les fenêtres des grandes chapelles du tour du choeur de Notre-Dame de Paris (1325). Encore là les statues sont-elles portées sur des piédestaux qui désaffleurent le parement extérieur; elles sont jumelles, c'est-à-dire qu'il y avait toujours deux personnages réunis. Il semble que les architectes du moyen âge ne pensaient pas que les statues isolées, placées dans des niches, pussent produire un effet heureux; ils avaient le soin de les réunir au moins deux par deux. D'ailleurs ces niches du tour du choeur de la cathédrale de Paris forment, avec les fenêtres, une décoration continue; elles participent à l'ensemble. Des deux côtés du portail méridional de cette église cathédrale, portail qui date de 1257, on voit de même des niches disposées trois par trois, qui continuent la série des statues placées dans les ébrasements de la porte. La figure 3 donne la disposition de ces niches, dont nous avons tracé le plan en A.

À l'intérieur de ce portail, sur le mur sud du transsept, il existe de
véritables niches entre le gâble de la porte centrale et les deux gâbles
décoratifs latéraux. Ces niches (1257), très-peu profondes, sont
surmontées de dais élevés comme pour indiquer un point saillant, non un
enfoncement, et les statues sont encore supportées sur des piédestaux.
Ce n'est qu'au XVe siècle que l'on fait des niches isolées et qui peuvent être considérées comme telles. On en voit aux angles des façades de certaines maisons de cette époque; mais encore sont-elles toujours surmontées d'un dais et les statues portées sur un cul de lampe (4) 243.
Tous ces exemples n'ont pas le caractère de la niche, telle qu'on la comprend depuis le XVIe siècle. Sur la façade de la maison dite des Musiciens, à Reims (voy. MAISON, fig. 11), les trumeaux entre les fenêtres sont légèrement creusés en manière de niches terminées par une archivolte à redans; mais les statues assises, très-saillantes, portées sur des culs-de-lampes, présentent une silhouette prononcée sur cette façade et forment un ensemble, comme une réunion de figures participant à une même scène: loin de paraître renfermées chacune dans leur loge, elles semblent bien plutôt se concerter. De même, sur les parties inférieures de certaines façades d'église, dans les ébrasements des porches, on voit quelquefois une série de niches couronnées de dais. Mais les statues qui remplissent ces niches se coudoient, forment une frise continue de figures, et on ne peut ainsi les considérer comme étant placées dans des niches.
En véritables artistes, les sculpteurs du moyen âge n'ont guère admis la statuaire isolée. Pour eux, comme pour les Grecs, la statuaire est le développement d'une idée, une série, et ce n'est que par exception qu'ils ont admis la figure unique (voy. STATUAIRE).
Note 242: (retour) Cette statue, détruite à la fin du dernier siècle, a été refaite par M. Geoffroy-Dechaume. C'est une des meilleures statues de cet artiste distingué. La Synagogue qui lui fait pendant est de M. Fromanger. La statue de saint Denis est de M. Pascal, et celle de saint Étienne de M. Chenillon. Une autre niche, en retour, se voit du côté du midi; elle abrite la statue de saint Marcel, due au ciseau d'un de nos meilleurs statuaires, M. Toussaint, mort depuis peu.
Note 243: (retour) De la maison dite de la reine de Sicile, à Saumur.
NIMBE, s. m. Auréole généralement en forme de disque, qui accompagne la tête des personnages divins et des saints. M. Didron, dans son Iconographie chrétienne 244, a consacré un chapitre étendu à l'histoire du nimbe dans les monuments du moyen âge. Nous ne pourrions rien ajouter à cette savante dissertation, à laquelle on doit nécessairement recourir lorsqu'il s'agit de la sculpture et de la peinture de nos anciens édifices (voy. STATUAIRE, PEINTURE).
Note 244: (retour) Paris, 1843.
NOUE, s. f. Angle rentrant que forment deux rampants de combles qui se pénètrent. On dit branche de noue pour indiquer la pièce de charpente qui supporte les chevrons des deux pans de comble se pénétrant. Dans les anciennes charpentes composées de chevrons portant-ferme, les chevrons viennent s'assembler dans la branche de noue (voy. CHARPENTE).
NOYAU, s. m. Cylindre de pierre ou de bois montant de fond, formant l'axe d'un escalier à vis. Les noyaux sont pleins ou évidés, tenant aux marches ou indépendants, et dans ce dernier cas portant celles-ci au moyen d'un embrèvement ou d'un repos (voy. ESCALIER).

OEIL, s. m. On donne ce nom aux jours circulaires percés dans des pignons, et qui sont destinés à donner de l'air et de la lumière dans les combles.
Les clefs largement ouvertes, circulaires, qui dans les voûtes servent de passage aux cloches et qui prennent habituellement le profil des arcs ogives sont aussi appelées quelquefois oeils ou lunettes (voy. LUNETTE). L'oeil, oculus de la basilique chrétienne primitive, est une baie circulaire avec ébrasement intérieur, qui était percée dans le mur pignon de face au-dessous du lambris de la charpente. On trouve encore la trace de cette tradition dans certaines églises romanes, surtout au midi de la Loire. La rose gothique est un développement de l'oculus de la basilique primitive (voy. ROSE).
OGIVE, s. f. Augive. On donne, assez improprement, le nom d'ogive à la figure formée par deux arcs de cercle se coupant suivant un angle quelconque 245. Beaucoup de pages ont été écrites sur l'origine de ce mot, et l'esprit de parti (parti dans les questions d'art s'entend) s'en mêlant, on en est venu à si bien embrouiller la matière que toute conclusion semble avoir été ajournée à des temps plus calmes. Nous déclarons tout d'abord que nous n'avons pas la prétention de donner ici une solution, qui d'ailleurs importe assez peu; il nous suffira de fournir à nos lecteurs les renseignements que nous avons pu recueillir sur l'adoption de cette figure dans l'architecture, à dater du XIIe siècle en France, renseignements dont on peut vérifier l'exactitude sur les monuments eux-mêmes. Quant à la conclusion, nous laisserons à chacun le loisir de la tirer.
Le compas étant inventé, les intersections de cercles étaient trouvées, par conséquent la figure appelée ogive. Ce n'est donc pas l'origine de la figure qu'il importe de rechercher, mais l'origine de son application à la construction. Des monuments de l'Asie, de la Grèce et de l'Italie, d'une très-haute antiquité, nous montrent des ogives, c'est-à-dire des berceaux ou des cavités (comme celle du trésor d'Atrée, par exemple), dont la section est donnée par deux arcs de cercle se coupant; mais tous ces monuments, sans exception, présentent un appareil horizontal, c'est-à-dire que les lits des pierres formant ces berceaux ou ces cavités sont horizontaux et non point normaux aux courbes. C'est là cependant un point essentiel, pour des architectes, car on ne peut ainsi donner à ces surfaces concaves les noms d'arc ou de voûte. Laissons donc cette origine qui ne nous apprend qu'une chose, savoir que, lorsqu'il s'est agi de fermer un passage ou une salle, on a donné, pendant les époques primitives dont nous parlons, des formes diverses aux encorbellements, seuls moyens admis pour arriver à ce résultat. Retraites, plans inclinés, courbures, ce sont toujours des encorbellements et non des voûtes, et la forme ogivale n'est alors qu'une fantaisie du constructeur, non un système. Les Étrusques, qui ont fait de véritables arcs appareillés, c'est-à-dire composés de claveaux dont les coupes sont normales à la courbe, et les Romains qui ont fait des arcs et des voûtes en berceau d'arêtes et en calotte hémisphérique, n'ont jamais adopté l'ogive, ou s'ils l'ont fait, ce sont des exceptions trop rares pour qu'on en puisse tirer une conclusion. Les Romains n'ont admis qu'une courbe génératrice de la voûte, c'est le demi-cercle, ce qu'on appelle le plein-cintre ou l'arc de cercle, cintre incomplet. D'Auguste à Constantin, pas d'exception à cette méthode. Ce n'est guère qu'au VIe siècle que nous voyons poindre l'ogive sur les bords de la Méditerranée, en Égypte, au Caire; et là, elle apparaît déjà comme le résultat d'un calcul. Dans un autre ouvrage, nous avons expliqué d'une manière détaillée comme quoi les anciens se sont servis du triangle pour mettre en proportion leurs édifices 246; comment parmi les triangles ils en avaient adopté trois: 1º le triangle équilatéral; 2º le triangle pris verticalement sur la diagonale d'une pyramide à base carrée, dont la section verticale, faite du sommet parallèlement à l'un des côtés de la base, est un triangle équilatéral; 3º le triangle dont la base est quatre et la hauteur, prise perpendiculairement du milieu de cette base au sommet, est deux et demi. Ces trois triangles donnent au sommet un angle de moins de 90º; donc il n'est pas possible de les inscrire dans un demi-cercle. Le dernier de ces triangles, celui sur lequel a été tracée la pyramide de Chéops, et qui passait chez les Égyptiens, au dire de Plutarque 247, comme dérivé du triangle parfait, est donc celui-ci (1) en A: ab étant la base divisée en quatre parties, sur la perpendiculaire élevée du point c, milieu de la base, nous portons deux parties et demie, cd; réunissant le point d aux points a et b, nous obtenons le triangle abd. Du milieu d'un des côtés bd, élevant une perpendiculaire jusqu'à sa rencontre e avec la base ab, ce point e est le centre de l'arc bd'd, dont le côté bd est la corde; procédant de même pour le côté ad, nous avons tracé deux arcs qui se coupent au point d et qui composent ce qu'on appelle une ogive. Prenant le triangle abd comme générateur de proportions, c'est-à-dire comme donnant un rapport satisfaisant entre la base ab et la hauteur cd, il était naturel de conserver ces rapports entre le diamètre et la hauteur sous clef d'un arc. C'est suivant ces méthodes que procédèrent les architectes d'Alexandrie, dès le VIIe siècle de notre ère, et l'école des Nestoriens, qui s'éleva bientôt à un degré remarquable de splendeur chez les peuples d'Orient, pères de l'architecture à laquelle on donna le nom d'arabe. Le génie des Grecs se retrouve encore dans ce principe de proportion des arcs, ainsi que nous l'avons démontré ailleurs 248.

Le triangle équilatéral (voir figure 1, en B) est aussi un générateur de l'ogive; mais ce n'est que beaucoup plus tard qu'onl'emploie, tandis que le triangle pris sur la diagonale d'une pyramide à base carrée, dont la section verticale, faite du sommet parallèlement à l'un des côtés de la base, donne un triangle équilatéral, est adopté très-anciennement pour tracer l'arc brisé. Soit fgh la moitié de la projection horizontale d'une pyramide à base carrée, dont la section verticale faite sur ik est un triangle équilatéral; la section verticale faite sur la diagonale fh donne le triangle fhl. Élevant une perpendiculaire mn sur le milieu d'un des côtés hl de ce triangle, le point de rencontre n de cette perpendiculaire avec la base fh donnera le centre de l'arc hol. Traçant du point l, comme sommet, un angle égal à l'angle l'fg, de manière à ce que la ligne lp sépare cet angle en deux angles égaux, nous avons les deux côtés lq, lr, d'un triangle équilatéral quelconque; prolongeant le tracé des arcs loh jusqu'à leur rencontre avec ces côtés lr, lq; qrl est un triangle équilatéral dont les côtés ql, rl sont les cordes des arcs lor, lo'q. L'arc brisé qrl est outre-passé; il donne au plus grand écartement fh, entre les deux arcs, la proportion du triangle fhl, et, à sa naissance qr, la proportion du triangle équilatéral qrl. Le nu des pieds-droits de cet arc sera en s et t, c'est-à-dire à l'aplomb des deux points f, h. Cette forme d'arc outre-passé, employée fréquemment dans les monuments de la Perse, se trouve déjà adoptée pour la construction des portiques de la mosquée d'Amrou au Caire, construite en 640 environ, avec quelques variantes dans la méthode du tracé. Mais les architectes de l'école d'Alexandrie, et les artistes grecs, initiateurs des populations d'Orient après le Ve siècle, n'avaient fait autre chose que de donner à l'arc brisé un tracé méthodique, en vue de satisfaire à un sentiment délicat des proportions. Bien que dans la construction de ces arcs, les joints des claveaux fussent normaux aux courbes, tendissent aux deux centres, ainsi qu'on le voit en X 249; que, par conséquent, la structure fût d'accord avec la forme, et que ces arcs brisés fussent plus résistants que l'arc plein-cintre, tout en exerçant une poussée moins grande, cependant les architectes orientaux n'avaient pas entrevu d'autre application de cette forme nouvelle, le système des voûtes n'était pas pour cela modifié. Il était réservé aux architectes du nord de la France de s'emparer de l'arc brisé et d'en faire le point de départ d'une structure neuve, d'un art original.
Sur les arcs brisés ou plein-cintre (car les Orientaux les employaient simultanément, quoique cependant l'arc brisé persiste au Caire et en Perse plus que partout ailleurs), on élevait dans tout l'Orient des pendentifs et des calottes sphéroïdales, comme dans les premiers temps de l'empire de Byzance, sans chercher à tirer de cette nouvelle forme d'arcs des conséquences de nature à modifier la construction des voûtes. Avec ce génie inventif et pratique qui distingue les peuples de l'extrême occident, nos architectes, dès le commencement du XIIe siècle, c'est-à-dire après les premières croisades, s'emparèrent de l'arc brisé et en firent rapidement une application fertile en résultats. Jusqu'alors, en France, on ne connaissait que la voûte romaine et on s'évertuait à la transformer sans obtenir autre chose que de grossières tentatives accusant un désir de satisfaire à de nouvelles nécessités bien plutôt qu'un progrès. Ne construisant plus en blocages, rarement en brique, la voûte d'arête romaine n'était fermée qu'à la suite de difficultés nombreuses, qu'à l'aide de tâtonnements. Les arêtes saillantes de la voûte romaine moulée sur forme, lorsqu'on voulait les construire en moellon, n'offraient pas de solidité; on rehaussait les clefs, on cherchait un compromis entre cette forme de voûte et la coupole, afin de donner le moins de saillie possible à ces arêtes 250 que l'on ne savait comment maintenir entre les portions de cylindre ou de conoïdes poussant au vide. On tendait toujours vers la coupole et l'on cherchait, au moyen de cintres permanents, d'arêtes appareillées, dès le commencement du XIIe siècle, à maintenir les lobes des voûtes. Ces arêtes appareillées (arcs diagonaux, arcs ogives) étaient déjà un grand pas de fait.
Les Clunisiens, qui dès le XIe siècle étaient maîtres en l'art de bâtir, et qui avaient formé une école d'architecture déjà brillante à cette époque, furent les premiers qui surent appliquer l'ogive à la construction, non-seulement des arcs mais des voûtes 251. En relations constantes avec l'Orient, ils en rapportèrent l'arc brisé; mais ce ne fut que sur le sol français que cet arc détermina une révolution dans l'art de la construction.
En effet, tous les monuments clunisiens et cisterciens bâtis en Palestine avant le XIIIe siècle, et si complétement décrits par M. le comte Melchior de Vogué dans son ouvrage sur la Terre Sainte 252, en adoptant l'ogive pour les arcs, conservent cependant le système de la structure romane, et dans aucun de ces édifices l'ogive n'intervient pour modifier la voûte d'arête romaine, en berceau, ou la coupole. Mais sitôt introduite dans les provinces françaises au nord de la Loire, l'ogive se mêle à la voûte et la modifie. Voici d'abord comment le mélange se fait.

Soit (2), une coupole hémisphérique dont nous présentons la projection horizontale en perspective; inscrivant un carré abcd dans le cercle et élevant deux plans verticaux sur les deux diagonales ad, bc, on coupe l'hémisphère en quatre parties égales abe, ace, cde, dbe. Un plan vertical élevé sur ab coupera l'hémisphère suivant un demi-cercle abf, et en supposant que ce demi-cercle est un arc doubleau plein-cintre, ayant opéré de même sur les quatre côtés du carré, on aura obtenu une calotte hémisphérique, pénétrée par quatre cylindres se coupant à angle droit et formant quatre pendentifs. Mais si nous voulons de cette voûte en calotte, portée sur pendentifs, faire une voûte d'arêtes, au lieu des demi-cercles, sur les côtés ab, bd, etc., élevons quatre arcs brisés abg, bdh, etc., réunissons les sommets gh de ces arcs brisés au point e nous détachons de la calotte les arêtes diagonales ae, be, de, etc., et nous obtenons des surfaces courbes age, bge, etc., qui peuvent être des portions de berceaux engendrés par des arcs brisés et donnant par leur pénétration dans les plans verticaux diagonaux ad, bc des demi-cercles aed, bec. Ainsi aura-t-on résolu déjà un problème essentiel, savoir: de pouvoir faire des voûtes d'arêtes sur tous les plans avec des arcs générateurs de hauteurs et de diamètres différents. Les Romains, les Grecs byzantins, n'avaient tenté autre chose jusqu'alors, que de couper la voûte hémisphérique par des plans verticaux dont la section ne donnait toujours que des demi-cercles 253. Nos architectes occidentaux procèdent de même, seulement ils ont vu l'arc brisé, ils le posent à la place du demi-cercle donné par la section verticale et relèvent les pans de la coupole sur cet arc brisé. Leur opération est simple en principe, et peut être définie ainsi: supposant une coupole hémisphérique en substance élastique, flexible, faisant les quatre coupures verticalement sur les côtés d'un carré inscrit dans le cercle, on relève quelque peu avec le doigt le bord supérieur de chacune des coupures; les surfaces restantes de l'hémisphère suivent ce relèvement et forment deux plis diagonaux qui se perdent au sommet de la calotte. Pour obtenir un résultat si simple, combien a-t-il fallu de siècles 254? C'est dans le porche de l'église abbatiale de Vézelay, bâti vers 1135, que nous constatons une application déjà savante et raisonnée de ce principe.

Prenons d'abord une des voûtes des bas-côtés de ce porche, voûtes établies sur plan carré (3). La forme génératrice de cette voûte est un hémisphère. La preuve, c'est que les deux plans verticaux passant par les diagonales ab, cd, donnent deux demi-cercles dont l'un est rabattu en abd. Pour tracer les arcs doubleaux, au-dessus de l'arrase formée par les tailloirs A des chapiteaux on a pris une distance AB pour bien dégager la naissance de ces arcs. La ligne de niveau BC étant tracée, la longueur de cette ligne étant db, côté du carré, cette ligne a été divisée en quatre parties; élevant une perpendiculaire sur le milieu de la ligne de naissance, cette perpendiculaire a été divisée en deux parties et demie égales à chacune des divisions de la ligne de naissance. On a ainsi tracé le triangle ghf. Du milieu de chacun des côtés de ce triangle, élevant une perpendiculaire ei, les points de rencontre i de ces perpendiculaires avec la ligne gh ont donné les centres de l'arc brisé gfh. Réunissant le sommet d' de la voûte avec les sommets des quatre arcs, la voûte d'arête engendrée par une coupole hémisphérique et par quatre ogives a été construite.
Le principe admis, les conséquences allaient s'ensuivre avec une prodigieuse rapidité. Le grand embarras, pour les architectes romains, n'était pas de faire des voûtes sur plan carré, mais sur plan barlong. Les Romains, dans ce cas, avaient fait des berceaux avec pénétration ou des voûtes d'arêtes trichées, c'est-à-dire engendrées par deux cylindres de diamètres différents se pénétrant; les cylindres du plus faible diamètre ayant leur naissance au-dessus de celle des cylindres de grand diamètre, ce qui produit un très-mauvais effet. Mais dès que la coupole devenait le point de départ de toute voûte, ces embarras devaient disparaître. Nous avons expliqué, figure 2, comment d'une calotte hémisphérique on pouvait faire une voûte d'arête sur plan carré, en substituant aux sections semi-circulaires données par des plans verticaux élevés sur les côtés du carré inscrit, des arcs brisés ou des ogives. Les conséquences de cette innovation ne se firent pas attendre.

Soit (4) une coupole sur plan horizontal circulaire, dont le centre est en A. La section verticale de cette coupole, faite sur le diamètre, donne la courbe brisée BCD dont la flèche AD a deux parties et demie des quatre divisant la base. Il s'agit de faire de cette voûte, présentant la forme d'un mamelon, une voûte d'arête barlongue. Soit le plan horizontal de cette voûte barlongue le parallélogramme rectangle BFEC inscrit dans le cercle. Si la coupole était hémisphérique, les sections verticales élevées sur BF, BE donneraient les demi-cercles BGF, BHE; mais nous redoutons les poussées, nous avons admis l'arc brisé comme moyen de rendre ces poussées moins puissantes pour nous conformer à un système de proportions qui nous satisfait plus que le plein-cintre. Nous divisons alors les lignes de base de nos sections BF, BE en trois parties égales, et prenant les points II', KK' comme centres, les longueurs IFI'B, KE, K'B comme rayons, nous décrivons les deux arcs brisés BLF, BME, ogives qui sont les rabattements des arcs doubleaux sur lesquels viendront reposer la voûte. Dès lors les diamètres BC, FE dont le rabattement est donné par l'arc brisé BDC deviendront des arêtes, la voûte sera d'arêtes bien que donnée par une coupole; de plus nous serons les maîtres de donner aux arcs BF, BE les diamètres dont les longueurs relatives sont arbitraires. C'est suivant ce principe qu'ont été construites les voûtes hautes du porche de l'église abbatiale de Vézelay. Mais constatons d'abord un fait essentiel, qu'on paraît avoir négligé dans les recherches faites jusqu'à ce jour sur les théories des voûtes d'arêtes du moyen âge; c'est que l'opération de tracé, au moment de la transition, n'est pas établie à l'intra-dos des arcs doubleaux ou formerets, mais à l'extra-dos. Dans l'exemple, figure 3, l'épaisseur des arcs doubleaux est indépendante du tracé, elle est rapportée en contre-bas. C'est la concavité de la voûte à laquelle on cherche d'abord à donner une forme solide, raisonnée et se prêtant à toutes les combinaisons. Les arcs doubleaux viennent se sous-poser comme un nerf, ou une décharge destinée à porter des constructions supérieures. Aussi les arêtes diagonales n'apparaissent-elles pas encore, leur présence n'étant point regardée comme absolument nécessaire 255 tant que les voûtes dérivant de la coupole se portaient par elles-mêmes. Voyons donc ces voûtes hautes du porche de Vézelay (5).

Les quatre piles étant tracées,--elles sont indiquées par des hachures,--conformément à ce que nous venons de démontrer dans l'exemple précédent, les diamètres de la coupole génératrice sont les deux diagonales AB, CD; la section verticale de cette coupole faite sur son diamètre donne la courbe (demie) BE, le diamètre ayant quatre parties et la flèche FE deux et demie. L'extra-dos des arcs doubleaux part des points DB, l'extra-dos des formerets des points AD. Cet arc doubleau, rabattu, est ainsi tracé: les tailloirs des chapiteaux étant au niveau G, la naissance, afin de se dégager, a été relevée en H. La ligne de base hi, de l'extra-dos, a été divisée en quatre parties; sur le milieu k de cette ligne la perpendiculaire kl, étant élevée, a été divisée en deux parties et demie de manière à ce que cette flèche kl soit à la base comme 2 1/2 sont à 4. Établissant le triangle dont le côté est hl, élevant sur le milieu une perpendiculaire, la rencontre de cette perpendiculaire avec la ligne de base hi donne le point g centre de l'arc hg'l. Relevant la ligne de naissance des formerets de la hauteur op au-dessus du tailloir des chapiteaux, on a procédé de même que pour l'arc doubleau; la ligne de base AD de ces formerets étant à la flèche pq comme 4 est à 2 1/2. La section verticale, sur le grand axe ot de la voûte, donne en S la clef E de la section verticale faite sur AB; en T, l'extra-dos de la clef de l'arc formeret; en l, l'extra-dos de l'arc doubleau. Si nous joignions le point T au point S par une droite, nous ne pourrions dégager l'arête projetée en BXS; alors nous cherchons sur la ligne de base en s le centre d'un arc passant par les points TS. Cette courbe est la section verticale de la ligne de clefs Ft. Quant au point l, il peut être réuni au point S par une droite, ainsi que le fait voir la section verticale V faite sur FP. L'épaisseur de l'arc doubleau iR étant fixée, il se trouve que la ligne de naissance RH comprise entre l'intra-dos est divisée en trois parties égales par les points g, m centres de l'arc brisé. Alors cet arc est un tiers point. On observe donc que tout le tracé est commandé par les extra-dos des arcs, que cette voûte est un compromis entre la coupole et la voûte d'arêtes, que l'introduction de l'arc brisé donne une grande liberté au constructeur dans la disposition des voûtes sur plan barlong, et que cependant l'artiste a soigneusement observé un principe de proportions qu'il regardait non sans raisons comme bon, puisqu'il résulte du triangle auquel les anciens donnaient une valeur harmonique parfaite.
Une difficulté, purement matérielle et minime en apparence, obligea bientôt les architectes à faire de nouveaux progrès dans le tracé des voûtes et à étendre les applications de l'arc brisé. Vers la fin du XIIe siècle on commençait des édifices religieux et civils d'une dimension inusitée jusqu'alors. On portait la largeur des grandes nefs jusqu'à quinze et seize mètres et même jusqu'à vingt 256. L'art de l'architecture était alors exclusivement tombé entre les mains des laïques, et ceux-ci comprirent bientôt tout le parti qu'ils pouvaient tirer du nouveau système de voûtes. Avec cette logique qui distingue l'habitant des Gaules, les maîtres des oeuvres reconnurent que, puisque de la coupole on ne conservait plus que deux diagonales, ou deux sections faites sur les diagonales d'un parallélogramme inscrit dans le cercle, base de cette coupole, il fallait franchement donner à ces deux arcs croisés une fonction utile, indispensable; il fallait en faire l'ossature de la voûte et porter sur cette ossature des voûtains indépendants les uns des autres, pouvant ainsi s'incliner en tous sens, se biaiser, s'allonger, devenir très-concaves ou presque plats. Les voûtes des cathédrales de Paris, de Senlis, celles de beaucoup d'églises de l'Île de France bâties de 1160 à 1200, présentent déjà une quantité de combinaisons qui indiquent combien, en très-peu d'années, l'école laïque s'était émancipée, tout en conservant le principe primitif issu de la coupole et de l'arc brisé. Cependant,--car si rapidement que l'on progresse, il y a toujours entre le point de départ et le point d'arrivée des transitions,--la coupole considérée comme génératrice est une tradition si puissante, que pour la construction des grandes voûtes, les architectes n'osent pas encore se fier entièrement aux conséquences du système que nous venons d'indiquer. Ils ont encore dans l'esprit la configuration de la coupole, ils tâtonnent.
Les hautes voûtes du choeur de la cathédrale de Paris, qui étaient terminées avant l'année 1190, nous fournissent à cet égard un sujet d'études intéressantes. La date de leur construction est certaine, et elles n'ont pas été modifiées plus tard ainsi que cela est arrivé pour la plupart des absides du XIIe siècle.

Le souvenir de la coupole a évidemment inspiré le tracé de ces voûtes (6). Un cercle dont le centre est en C et dont le rayon est CA a d'abord été tracé. Ce cercle a été divisé en neuf parties. Des points 2 et 7, deux lignes parallèles au grand axe AA' ont été tirées. Ces deux lignes 2B, 7D sont les nûs des murs du haut choeur au-dessus des piles. On voit que les deux segments du cercle 2--3, 6--7 débordent le nû des deux murs. Les points 2 et 7 ont été réunis par une ligne qui est la projection horizontale de l'arc doubleau du sanctuaire. Des lignes E3, E4, E5, E6, réunissant le milieu de l'arc doubleau 2--7 aux points diviseurs de la circonférence, sont les projections horizontales des arcs ogives, nerfs de la voûte du sanctuaire. Les lignes 3E, 6E, prolongées jusqu'à leur rencontre avec les lignes de nûs 7D, 2B, sont les projections horizontales des branches d'ogives contrebutant les arcs rayonnants. Une ligne FG, perpendiculaire au grand axe et tangente au cercle, donne la projection horizontale du dernier arc doubleau des grandes voûtes d'arêtes. Ayant pris sur le grand axe une longueur 9H égale à 9E, on a obtenu le centre, la clef de la voûte en arcs d'ogives FGBD. Mais de même que le triangle GE6 est divisé par l'arc doubleau E7, on a cru devoir diviser le triangle DHG par un arc doubleau IHK. Voilà pour les projections horizontales. Pour le tracé des arcs, la méthode suivie est celle-ci: l'arc doubleau BD, ou celui FG, ou celui 2--7, sont engendrés par un triangle dont la base est quatre et la hauteur deux et demi. Sur le milieu de la base ou naissance BD divisée en quatre, on a élevé la perpendiculaire ab. Celle-ci ayant deux parties et demie égales à chacune des divisions de la base, on a tracé le triangle BDb. Portant sur la ligne de base de D en e une épaisseur égale à celle des claveaux de l'arc doubleau on a réuni le point e au sommet b. Du milieu de cette ligne eb, élevant une perpendiculaire jusqu'à sa rencontre avec la ligne BD, on a obtenu en t le centre de l'une des branches de l'arc doubleau. Quant aux arcs-ogives, arcs-diagonaux qui sont comme les derniers témoins de la coupole, ils sont plein-cintres, ainsi que l'indique notre rabattement; leur point de centre étant relevé en g, au-dessus du tailloir des chapiteaux, afin que la clef h de ces arcs se trouve à un niveau plus élevé que celui des clefs b des arcs doubleaux, car on tenait à avoir une pente dans la section de la voûte, de H en a. Dès lors, il fallait que la clef des arcs doubleaux intersecteurs IK se trouvât au niveau de la clef des arcs ogives. On a donc relevé en p le centre des branches de cet arc doubleau rabattu sur notre figure. La projection verticale de l'arc doubleau 2--7 du sanctuaire est exactement celle des arcs doubleaux BD, FG. Mais comme les branches d'ogives rayonnantes du sanctuaire doivent aboutir à la clef E de cet arc doubleau 2--7, ces branches sont excentriques, ne sont pas les rayons du cercle dont le centre est C; donc la branche 3E est plus courte que la branche 4E. Il a donc fallu un tracé particulier à chacune de ces deux branches. Ces tracés sont rabattus sur notre figure; les clefs l et m de ces branches atteignent, bien-entendu, le niveau de la clef E de l'arc doubleau 2--7.
De tout ceci il résulte que les arcs ogives BG, FD, F6, G3, et les branches 4E, 5E sont bien réellement des côtes de coupoles entre lesquelles on a percé des formerets et des arcs doubleaux affectant la courbe aiguë. Les architectes n'osaient même encore s'affranchir de la configuration concave de la coupole, bien que le système admis l'eût permis, car ils avaient le soin de tenir les clefs des arcs doubleaux et des formerets plus basses que celles des arcs diagonaux, afin de conserver à la structure cette forme de calotte qui leur semblait nécessaire à la solidité.

Le principe de la coupole considérée comme génératrice des voûtes en arcs d'ogives nous paraît trop important pour que nous n'insistions pas. Ainsi (7), soit une voûte absidale en quart de sphère, et dont le plan est ponctué en aa, voûte appelée cul-de-four et si fréquemment employée par les Romains et pendant la période romane. Supposons que nous divisions ce cul-de-four en cinq parts (voir le plan A), que réservant seulement des côtes cbd, nous enlevions, entre ces côtes, les triangles edb, ebb, etc.; nous aurons la figure perspective tracée en B. Il est clair que nous pouvons voûter les triangles vides, soit au moyen d'un formeret plein-cintre c, soit au moyen d'un formeret aigu D dont la clef E est en contre-bas de la clef F, soit au moyen d'un formeret aigu dont la clef G est au niveau de celle F. Ce que nous indiquons ici dans une seule figure, il a fallu quelques années pour le faire. Les hautes voûtes de l'abside de l'église abbatiale de Vézelay sont faites conformément au figuré C; elles datent de 1190 environ. Celles de la cathédrale de Paris sont faites d'après le tracé D (1180). Celles des églises du commencement du XIIIe siècle, conformément au tracé G 257. Comme l'arc ogive (plein-ceintre) bd est plus long que l'arc doubleau cd, lorsqu'on a voulu avoir les clefs de ces arcs doubleaux au niveau de celles des arcs ogives, il a fallu prendre la forme aiguë pour les premiers, ainsi qu'on le voit en H. Il est évident que sur ces côtes conservées de la coupole, on n'a pas immédiatement osé faire porter tout le poids des voûtains. Les architectes, en laissant les clefs des formerets à un niveau plus bas que celui des clefs des arcs ogives, pensaient ainsi faire porter une partie du poids des voûtains ou remplissages triangulaires sur les murs, et ils ne se trompaient pas; mais ils reconnurent bientôt que cette structure avait des inconvénients: elle tendait à déverser les formerets en dehors. C'était un compromis entre la structure antique et celle nouvellement inaugurée qui devait arrêter quelque temps les développements de l'art du XIIIe siècle; d'ailleurs, il était plus simple de considérer les arcs réservés de la coupole comme les points résistants, destinés à transmettre les pesanteurs des voûtes, et de maintenir alors solidement la poussée de ces côtes; c'est ce que l'on fit bientôt: 1º en adoptant l'arc brisé pour les formerets; 2º en élevant les clefs de ceux-ci au niveau des clefs des arcs ogives, comme l'indique la figure 7 en G.
Les projections des grandes voûtes du choeur de la cathédrale de Paris que nous avons tracées (fig. 6) nous montrent en BDFG one voûte presque carrée, composée de deux arcs ogives BG, DF, de deux arcs doubleaux BD, FG, d'un arc doubleau intermédiaire KI et de quatre formerets BK, KF, DI, IG. Ayant la disposition des voûtes sur plan carré des collatéraux, des points d'appuis en B, K, F, D, I, G d'une part, et la tradition de la coupole de l'autre, les constructeurs, cherchant à conserver de cette coupole deux tranches diagonales BG, DF, sur lesquelles devaient reposer les remplissages ou voûtains, ne pensaient pas que ces diagonales dussent ne point se couper suivant des angles très-rapprochés de l'angle droit, sinon droits. Ils franchissaient ainsi deux travées, faisant porter ces arcs ogives ou diagonaux sur les points d'appuis, de deux en deux; mais autant pour diminuer la surface des remplissages que pour répartir leur poids sur toutes les piles, ces constructeurs recoupaient la voûte en arcs d'ogives par un arc doubleau intermédiaire KI.

Voici donc ce que donnait cette combinaison (8). La coupole à projection horizontale circulaire était encore la génératrice de cette voûte. En effet (voir la projection horizontale A), les arcs ogives ab, cd, ne sont autre chose que les tranches réservées de la coupole; seulement, les murs de la nef étant sur les deux parallèles ad, cb, un arc doubleau intermédiaire bandé de la pile e à la pile f permettait de voûter chacun des triangles adg, cbg au moyen de deux voûtains aeg, edg, cfg, fbg. Au lieu de deux formerets ad, cb, on obtenait quatre formerets ae, ed, cf, fb. Le figuré perspectif B explique ce système. Là, le plan fictif de la coupole est visible. Les deux arcs ogives CD, EF en sont les dernières traces; l'arc doubleau intermédiaire GH, au lieu d'être, comme les arcs ogives, une tranche séparée de la coupole, a été reporté de G' en G et de H' en H; son sommet atteint le niveau de la clef I des arcs ogives; puis, l'ossature ainsi établie, dans les triangles K restés vides on a bandé les voûtains K', qui portent sur les arcs ogives, les arcs doubleaux, et qui sont tracés par les formerets L. Ce système offrait encore l'avantage de prendre des jours latéraux sous les formerets dans la hauteur même de la voûte.
Mais il était peu logique, ayant des points d'appuis égaux en force, en aed, de faire porter deux arcs ogives et un arc doubleau sur les piles ad, tandis qu'on ne chargeait la pile e que d'un seul arc doubleau. On prit donc, vers 1230, le parti de faire des grandes voûtes par travées, très-barlongues, et de charger également toutes les piles. C'est ainsi que sont construites les voûtes hautes des nefs des cathédrales d'Amiens et de Reims; la coupole en est cependant le principe générateur comme pour les voûtes précédentes. Dans la cathédrale d'Amiens les arcs diagonaux ou ogives sont des plein-cintres, ou très-peu s'en faut; mais dans celle de Reims la coupole génératrice des arcs ogives est tracée sur un triangle équilatéral, et l'épure de ces voûtes est aussi simple que profondément raisonnée.

En A (9) est donnée la projection horizontale d'une de ces voûtes hautes; les piles étant en abcd, l'axe de ces piles donne les points de départ des deux arcs ogives ad, bc, ou plutôt les arcs ogives sont les diagonales d'un parallélogramme rectangle dont les angles tombent sur les axes des piles. Ces arcs ogives sont les tranches réservées d'une coupole dont la trace horizontale est donnée par le cercle iji'j' et dont la section verticale est la courbe brisée klk'l', inscrivant un triangle dont la base est à la hauteur comme 13 est à 10.--On remarquera que le tracé est donné par l'extra-dos.--L'extra-dos des arcs doubleaux rabattus en efg inscrit un triangle équilatéral; l'extra-dos des formerets rabattus en hmn inscrit de même un triangle équilatéral; la clef n de ces formerets atteint le niveau de la clef g des arcs doubleaux, de sorte que leur naissance est relevée en mh. Ces formerets sont d'ailleurs les archivoltes des fenêtres. Ainsi donc les conséquences du principe de la voûte d'arête dite gothique se simplifiaient rapidement. Les épures pouvaient être indiquées déjà vers 1230 par une simple formule. Le triangle équilatéral est toutefois rarement employé pour tracer les grands arcs doubleaux des voûtes, il est plutôt adopté pour les formerets dont il fallait relever les naissances (voy. CONSTRUCTION).

Villars de Honnecourt 258, parmi ses croquis, trace la figure 10, sous laquelle il inscrit cette légende: «Par chu fait om trois manires dars, a compas ovrir one fois.» Ce qui veut dire: «Par ce moyen l'on fait trois manières d'arcs avec une seule ouverture de compas.» En effet, soit le rayon AB, nous traçons le demi-cercle (plein-cintre) CBD. Posant la pointe du compas en C, avec le même rayon nous traçons l'arc brisé ACE, inscrivant un triangle équilatéral. Abaissant du point E une perpendiculaire sur la ligne de base, le point de rencontre F divise le rayon AC en deux parties égales. Posant la pointe du compas sur F, toujours avec le même rayon nous tracerons l'arc GCH. Les centres de l'arc brisé GCH seront posés sur les points FA qui divisent la base CG en trois parties égales. C'est cet arc auquel quelques auteurs ont donné le nom de tiers-point 259. Or, les architectes du moyen âge ne trouvaient pas toujours des aires assez étendues pour pouvoir tracer entièrement les épures des arcs de leurs voûtes grandeur d'exécution; on comprend en effet que lorsqu'il s'agissait d'élever une cathédrale comme celles d'Amiens ou de Reims, il eût fallu pour tracer, grandeur d'exécution, toutes les épures simultanément nécessaires, un emplacement plus vaste que n'était la surface occupée par le monument lui-même. Force était alors de chercher des moyens de tracés occupant peu de place et présentant cependant une exactitude rigoureuse. L'album de Villars de Honnecourt indique plusieurs procédés propres à tracer des panneaux de claveaux d'arcs sans le secours d'une épure d'ensemble, et ce défaut d'espace pour faire les épures obligea les architectes à adopter certains arcs brisés tracés d'après une formule géométrique. Ainsi, ces architectes ont-ils admis de préférence, à dater du milieu du XIIIe siècle, trois arcs brisés: 1º l'arc brisé engendré par le triangle équilatéral; 2º l'arc brisé tiers-point, et 3º l'arc brisé quinte-point. Le tracé des ogives obtenu en posant les centres sur deux points diviseurs de la base, en trois, en quatre, en cinq, en six, en sept et en huit, permettait de faire une épure rigoureuse, sans qu'il fût nécessaire de tracer l'ensemble d'un demi-arc.

Soit (11) en A un arc brisé engendré par un triangle équilatéral, il est évident que le rayon ab est égal à la base ad; que si nous traçons le quart de cercle do, le segment bo sera la moitié du segment db, puisque le triangle équilatéral divise le cercle en six parties égales. La clef b est donc le troisième point du quart de cercle divisé en trois segments égaux; c'est la raison qui a fait donner parfois le nom d'arc en tiers-point à l'arc équilatéral, c'est-à-dire d'arc dont la clef tombe sur le troisième point du quart de cercle divisé en trois parties égales. Soit en B l'arc brisé auquel le nom de tiers-point doit être appliqué de préférence à tout autre, la base ce étant divisée en trois parties égales, cette base pourra être divisée en six parties égales, et la perpendiculaire abaissée du sommet de l'arc sur la base divisera celle-ci en deux parties égales; donc le rayon fe ayant quatre de ces parties, le rayon fg en contiendra également quatre. Or, supposons que pour tracer l'épure des claveaux de l'arc brisé B nous n'ayons que l'espace fBg, la base ce étant connue, nous en prendrons le sixième que nous tracerons en B'f' (voir le figuré C); sur la base B'f', du point B' nous élèverons une perpendiculaire B'g'; prenant alors un rayon f'g' ayant quatre fois la longueur de B'f' qui est le tiers du demi-diamètre de l'arc, et posant la pointe du troussequin en f, la rencontre de la ligne f'g' avec la perpendiculaire B'g' donnera le point g', sommet de l'arc brisé. Nous pourrons tracer une portion d'arc g'i, donner l'épaisseur des claveaux iK et tracer les joints d'un de ces claveaux. Tous les claveaux de l'arc seront donc donnés par celui lmno, et nous pourrons, sur ce panneau, en faire tailler des milliers. Reste à tracer la clef ou plutôt la contre-clef, puisque les arcs brisés ont un joint à la clef. Le prolongement de la perpendiculaire B'g' nous donnera le panneau de cette contre-clef, comme l'indique notre figure. Mais nous avons encore un autre moyen d'obtenir son panneau (voir le tracé D). Soit la ligne pq l'épaisseur des claveaux, nous la divisons en quatre parties; traçant du point q, au moyen d'une sauterelle, un angle qrs égal à l'angle f'ut, nous prendrons sur le côté qs une longueur qv égale à l'une des quatre parties de la ligne d'épaisseur pq; nous réunirons le point p au point v, et nous aurons tracé le triangle pqv à ajouter aux claveaux pour former le panneau de la contre-clef. Pour tracer les panneaux des claveaux de l'arc quinte-point figuré en G, on procèdera de la même manière; seulement, la base de l'arc étant divisée en cinq parties égales, nous prendrons une de ces parties et demie pour commencer l'opération et nous en prendrons quatre pour le rayon. Ce n'était donc pas au hasard que les constructeurs du moyen âge, dans le tracé de leurs arcs brisés, posaient les centres sur la ligne de base ou de naissance de ces arcs, et comme preuve de leur méthode de tracé d'épures partielles, on peut observer que les claveaux ayant été taillés sans connaître exactement le nombre nécessaire à chacune des branches de l'arc, ou la largeur de douelle, il arrive souvent qu'au moment de fermer l'arc, on pose une contre-clef très-large ou un dernier claveau beaucoup plus mince que les autres.
Mais une figure singulière, tracée dans l'Album de Villars de Honnecourt, nous donne la clef de tout un système de tracés d'arcs pour un édifice entier et permettant, comme dans l'exemple précédent, de faire des épures partielles avec une rigoureuse exactitude et sans avoir besoin d'aires d'une surface considérable 260. La planche XXXIX de cet album nous montre une clef de tiers-point tracée d'après la méthode précédente, puis une spirale coupée par une ligne droite passant par son oeil. Au-dessous de ce croquis, on lit: «Par chu tailon one clef del quint point» (Par ce moyen taille-t-on une clef de quinte-point). Le texte ne se rapporte qu'au trait de la clef, mais la présence de cette spirale, dessinée là comme un simple souvenir, se rapporte évidemment aux tracés d'arcs engendrés par une division du diamètre en cinq.

Ce croquis est celui reproduit exactement par le trait plein de notre figure 12 261. Sur une base AB, divisée en cinq parties égales et donnant six points, du milieu C comme centre on a tracé le demi-cercle AB.--On observera que ce point C sépare la division 3--4 en deux parties égales.--Prenant alors le point 3 comme centre et 3A comme rayon, on a tracé le second demi-cercle A5. Reportant la pointe du compas sur C et prenant C5 comme rayon, on a tracé le troisième demi-cercle 2--5. Reportant la pointe du compas sur 3 et prenant 3--2 comme rayon, on a tracé le quatrième demi-cercle 2--4. Reportant enfin la pointe du compas sur C et prenant C4 comme rayon, on a tracé le cinquième demi-cercle 3--4. Si des deux centres 3 et C, qui ont servi à tracer tous les demi-cercles, nous élevons les deux perpendiculaires 3a, Cb, nous coupons ces demi-cercles en a, en c, en b et en d. En supposant que les arcs ogives d'une grande voûte barlongue de nef soient le plein-cintre dont AB est le diamètre, les arcs doubleaux ayant une base comprenant quatre parties ou la longueur A5, ces arcs doubleaux se composeront d'une branche d'arc Aa et d'une seconde branche d'arc 5a dont le centre sera e point milieu de la partie 2--3. L'arc doubleau sera tracé au moyen de deux arcs de cercle dont le rayon sera CA et dont les centres Ce seront des points diviseurs du diamètre A5 en huit parties égales. Le diamètre de l'arc ogive ayant cinq parties et l'arc doubleau quatre (voir la projection horizontale H), l'arc formeret aura trois parties, car l'arc formeret lm formant un angle droit sur l'arc doubleau ln, si nous donnons à la base de cet arc doubleau 4, à la base de l'arc formeret 3, l'hypothénuse mn, ou base d'un des arcs ogives, aura 5 par la raison que le carré de 4 est 16, le carré de 3, 9, que 16 + 9 = 25 carré de 5. Donc AB étant la base de l'arc ogive d'une voûte dont l'arc doubleau est A5, le formeret aura pour base 3B comprenant trois parties, et nous aurons tracé l'arc ogive de cette voûte, son arc doubleau et son arc formeret avec la même ouverture de compas; les points diviseurs de la base AB nous ayant donné en C le centre des arcs ogives, en Ce les centres de l'arc doubleau, en Cf les centres de l'arc formeret. Par conséquent, les mêmes arcs de cercle servant pour tracer ces trois arcs, tous les panneaux des claveaux de ces arcs pourront être taillés sur une seule épure ou portion d'épure, en supposant que nous appliquions le procédé indiqué en D (11). Si c'est une voûte plus étroite que nous voulions tracer, c'est-à-dire une voûte dont la base des formerets soit la moitié de la base de l'arc doubleau, nous aurons alors en projection horizontale le tracé lpqn (voir le figuré H). Alors l'arc ogive np aura pour diamètre 4 parties 1/2. Cet arc ogive sera donc la courbe brisée dont le diamètre est Af et dont les centres sont les points 3 et C. L'arc doubleau aura pour diamètre comme précédemment A5 et pour points de centre eC, et l'arc formeret aura pour diamètre soit 2--4, soit 3--5, et pour points de centre soit eC, soit ef: dans le premier cas cet arc formeret sera tracé avec une ouverture de compas plus courte que celle qui a servi à tracer l'arc ogive et l'arc doubleau; dans le second, il sera tracé avec la même ouverture de compas. Si nous divisons le tympan sous l'arc formeret en deux baies jumelles, chacune aura une partie de la base AB soit 3--4; et le centre de chacun de ces arcs dont la clef est d sera en 3 et en 4, cet arc sera équilatéral. Si l'arc formeret de la voûte barlongue lnmr, ayant pour base 3B et pour centres C f, nous paraît trop aigu, nous pouvons lui substituer l'arc dont la base est 2--5, dont la clef est b et dont les centres sont 3--4. On comprend donc qu'à l'aide de cette figure, les bases de tous les arcs de la voûte donnant toujours des divisions égales connues ainsi que les rayons de ces arcs, ils peuvent être taillés à l'aide d'une épure partielle prenant très-peu de surface. Et en effet, si nous examinons des églises gothiques bâties pendant le XIIIe siècle, nous reconnaissons que tous les arcs ogives, doubleaux, formerets, que les archivoltes, travées de galeries, etc., sont tracés au moyen de points de centres posés sur des divisions égales en cinq ou dix d'un seul diamètre de cercle. Il ne nous paraît pas nécessaire d'insister davantage sur l'importance de la figure spirale contenue dans l'Album de Villars de Honnecourt, mais il n'est pas hors de propos de faire remarquer que la voûte barlongue lnmr, dont la projection horizontale est tracée en H, dérive du triangle donné par Plutarque comme étant le triangle parfait des Égyptiens, et que l'arc doubleau, dont le diamètre est A5 divisé en quatre, possède une flèche 3a divisée en 2 1/2 moins une très-minime fraction, c'est-à-dire qu'il inscrit un triangle à très-peu près semblable à celui que donne la section verticale de la grande pyramide de Chéops. L'arc dit ogive mérite donc quelque attention: ce n'est pas seulement un motif de solidité qui l'a fait adopter, mais aussi un sentiment des proportions et un accord harmonique entre toutes les courbes des voûtes; c'est une nécessité résultant de la pratique dans le tracé des épures; c'est surtout un besoin de liberté dans la construction de ces voûtes dont on ne saurait trop étudier à fond le principe excellent, puisqu'il permet toutes les combinaisons.
Depuis vingt ans on a fait beaucoup de pastiches de la structure gothique; bien rarement ces imitations satisfont les yeux: c'est qu'en effet ceux qui les élèvent, en admirant fort d'ailleurs nos anciens monuments, ne se sont probablement pas donné la peine d'en rechercher les savants et judicieux éléments. En architecture, le goût, le sentiment sont beaucoup; mais pour les appuyer il faut nécessairement se servir du compas et de la géométrie. On voit qu'au moyen de la formule (12) il n'est qu'un des arcs brisés qui ait ses centres en dehors de ses naissances.
C'est qu'en effet dans ces belles écoles de l'Île-de-France, de la Champagne, du Soissonnais, les architectes, gens de goût, avaient senti que la dernière limite d'aiguïté de l'ogive était l'arc équilatéral; que les centres des branches d'arc placés en dehors des naissances donnaient une brisure dont l'extrême aiguïté était choquante, une proportion désagréable, en ce que les rapports de la base avec la hauteur outrepassaient le triangle équilatéral (voy. PROPORTION). Mais les Normands, les Anglo-Normands étaient moins délicats et cherchaient dans leur structure, avant toute chose, les formules qui supposent des moyens pratiques simples. Aussi, au lieu de tenter, comme dans la figure 12, de trouver des arcs brisés de diamètres différents ayant tous des angles égaux au sommet ou du moins peu dissemblables, des rapports analogues entre les diamètres et les flèches, ces gens pratiques du Nord, bons constructeurs dès le commencement du XIIe siècle, se préoccupent médiocrement des rapports proportionnels, du choix des formes: ils veulent une méthode expéditive. Nous avons vu comme Villars de Honnecourt donne les moyens de tracer un plein-ceintre et plusieurs arcs brisés «avec la même ouverture de compas.» Or, les voûtes normandes élevées vers 1220 présentent souvent une disposition telle que tous les arcs, arcs ogives, arcs doubleaux, formerets, archivoltes, sont tracés à l'aide d'un même rayon.

Ainsi (13), soit la projection horizontale d'une de ces voûtes, l'arc générateur est l'arc ogive qui est un plein-cintre rabattu en ABC. L'arc doubleau AC rabattu en ACS est tracé au moyen du rayon ab égal au rayon OC. L'arc doubleau de recoupement des arcs ogives DE rabattu en DEF est tracé de même, au moyen du rayon ef égal au rayon OC, sa clef F étant naturellement au niveau C de la clef des arcs ogives. Soit iK, lm, l'épaisseur des piles, les arcs formerets étant compris entre Kl. Ces arcs formerets rabattus en Klp sont encore tracés au moyen du rayon rt égal au rayon OC, leur naissance étant relevée de K en V si l'on veut que les clefs des formerets atteignent le niveau des clefs des arcs ogives. Si ces formerets servent d'archivoltes aux baies divisées par un meneau, ce sera encore le rayon nq égal au rayon OC qui servira à tracer les arcs diviseurs de la fenêtre.
Sauf pour les clefs, l'épure d'un seul claveau d'arc suffisait alors pour tailler les panneaux de tous les arcs des voûtes, archivoltes, baies, etc. Et (voir le tracé G), si nous divisons un diamètre d'arc ogive en quatre ou en dix, avec la même ouverture de compas, nous pourrons avoir une suite d'arcs dont les diamètres seront au diamètre du plein-ceintre, qui est le plus grand arc de la voûte ou l'arc ogive, comme trois, deux, un sont à quatre, ou comme neuf, huit, sept, six, etc., sont à dix. Ayant donc des claveaux tous taillés sur un même arc, et une base ou fraction de base, nous pouvons, sans épure, monter tous les arcs d'un édifice. On comprend alors le motif qui avait fait adopter l'arc brisé que l'on appelle lancette: c'était une économie de tracé, on évitait toute complication d'épures et de panneaux, il ne s'agissait plus que de donner la section de chacun de ces arcs suivant leur fonction. Tous taillés d'ailleurs sur une même courbure (à l'extra-dos), ils prenaient leur place suivant la désignation donnée. S'il fallait des épures, c'était seulement pour les cintres en charpente, et encore ces arcs étant tous tracés à l'aide d'un même rayon, l'épure du demi-cercle ou de l'arc ogive permettait de mettre sur ligne tous les autres cintres, puisqu'il suffisait de savoir quel était le rapport existant entre les diamètres de ces arcs et celui du demi-cercle pour avoir le tracé complet de chacun d'eux, ainsi que le fait voir la figure 13 en G 262.
De ce qui précède on peut conclure: lº que l'arc brisé, appelé ogive, a été d'abord une importation d'Orient; 2º qu'adopté en Orient comme une courbure donnée par un principe de proportion expliqué ailleurs 263, cet arc brisé a été en France le point de départ de tout un système de construction parfaitement logique, et permettant une grande liberté dans l'application; 3º que par conséquent l'arc brisé, comme forme, appartient probablement à l'école d'Alexandrie et aux Nestoriens, qui paraissent les premiers l'avoir adopté; mais que, comme principe d'un nouveau système de voûtes, il appartient sans aucun doute à nos provinces du nord de la Loire, puisqu'en 1140, dans l'église abbatiale de Saint-Denis, les constructions élevées par Suger ne laissent apparaître les plein-cintres que pour les arcs ogives, et qu'elles ont appliqué déjà le système de voûtes que nous voyons se développer dans la cathédrale de Paris vingt ans plus tard. Or, nulle part, ni en Europe, ni en Orient, au milieu du XIIe siècle, on ne construisait de voûtes ayant quelques points de rapports, comme emploi de l'arc brisé, avec celles de l'église de Saint-Denis et de la cathédrale de Paris. Si donc l'arc brisé a pris naissance hors de France comme forme d'arc, nous sommes les premiers qui ayons su l'appliquer à l'une des plus fertiles inventions dans l'histoire de la construction. Si donc l'arc brisé a pris naissance hors de France, nous sommes les premiers qui ayons su tirer de cette forme, issue d'un sentiment des proportions 264, des conséquences d'une valeur considérable, puisqu'elles ont produit la seule architecture originale qui ait paru dans le monde depuis l'antiquité.
Note 245: (retour) Croix d'augives, au commencement dn XIVe siècle, s'entendaient pour les arcs diagonaux d'une voûte d'arête gothique. Or, ces croix d'augives, ou arcs ogives, sont le plus souvent des pleins-cintres. «Item II. crois d'augives pour faire les voûtes sus et une arche entre II crois augivères...». (Titre de fondation d'une chapelle à Averdoin, du mois de juin 1347. Archives de M. le duc de Luynes...--Voy. t. II des Annales archéologiques, p. 41, l'article de M. Lassus sur l'arc ogive.) Pendant le moyen âge, et jusqu'au XVIe siècle, le mot ogive ou augive, arcs ogives, ne s'appliquait qu'aux nervures croisées. Les autres arcs, fussent-ils aigus, s'appelaient arc doubleau, tiercerons, formerets. (Voy. les articles ARC, CONSTRUCTION.)
Note 246: (retour) Voyez le Neuvième Entretien sur l'Architecture.
Note 247: (retour) Traité sur Isis et Osiris.
Note 248: (retour) Voyez le Neuvième Entretien sur l'Architecture.
Note 249: (retour) Les Italiens n'ont jamais compris les raisons qui avaient fait adopter la forme de l'arc brisé au point de vue des proportions et de sa véritable fonction. On peut en avoir la preuve si l'on observe que presque tous leurs arcs brisés sont appareillés comme un plein-cintre, c'est-à-dire que les joints des claveaux tendent à un seul centre, ce qui est un contre sens; que les proportions de ces arcs brisés présentent presque toujours un rapport de proportions désagréable entre la base et la hauteur. Mais les Italiens du moyen âge n'ont pas compris grand'chose à l'art grec postérieur au bas temps, et les Grecs le savaient, puisqu'ils les considéraient comme des barbares.
Note 250: (retour) Voyez les voûtes des bas-côtés de l'église de Saint-Martin-des-Champs, à Paris; celles des bas-côtés de l'église de Poissy, etc.
Note 251: (retour) Les arcs doubleaux de l'église de Saint-Front de Périgueux datent des dernières années du Xe siècle, et sont déjà des arcs brisés.
Note 252: (retour) Les Églises de la Terre Sainte, par le comte Melch. de Vogué. Paris, 1860.
Note 253: (retour) Par cette raison que toute section d'une sphère par un plan donne un cercle.
Note 254: (retour) D'autres découvertes aussi simples dans leur principe que fertiles en résultats ont mis, en ce monde, bien du temps à surgir; mais rarement on a considéré ces éclairs de l'esprit humain comme un signe de barbarie. Rarement les peuples au milieu desquels ils ont apporté une lumière nouvelle ont cherché à voiler leur éclat.
Note 255: (retour) Ces arcs diagonaux sont ce qu'on appelle, dans la construction des voûtes gothiques, les arcs ogives. (Voy. CONSTRUCTION.)
Note 256: (retour) Nef de l'ancienne cathédrale de Toulouse.
Note 257: (retour) La Bourgogne est de quelques années en retard sur l'Île de France, et les voûtes du choeur de Vézelay correspondent comme facture à celles (anciennes) de la cathédrale de Noyon, qui date du milieu du XIIe siècle.
Note 258: (retour) Album de Villars de Honnecourt. Voir les éditions française et anglaise. Pl. XI.
Note 259: (retour) Cette dénomination nous semble en effet parfaitement applicable à cette sorte d'arc, puisque la pointe du compas est placée sur le troisième des points diviseurs de la base. Cependant l'arc équilatéral est souvent aussi appelé tiers-point. Nous allons voir pour quelle raison.
Note 260: (retour) L'usage de cette figure, qui n'a point été expliquée dans l'édition française de Villars de Honnecourt, est, en présence des monuments, d'une importance capitale. N'oublions pas que les anciens maîtres des oeuvres, bâtissant dans des villes resserrées, ne pouvaient disposer de chantier ou d'aires d'une grande étendue. En théorie, on ne tient guère compte de ces difficultés, mais dans la pratique elles ont une telle importance, qu'elles forcent les architectes qui tiennent à faire tracer leurs épures devant eux à adopter des méthodes qui influent sur les formes adoptées.
Note 261: (retour) Les lignes ponctuées, chiffres et lettres ont été posés par nous pour expliquer l'usage de cette figure.
Note 262: (retour) C'est en faisant refaire des arcs de voûtes gothiques que nous avons été amené à reconnaître cette unité de la courbe pour beaucoup d'entre eux dans un même édifice, quel que fut le diamètre de chacun de ces arcs, car les courbes de cintres en charpente taillés pour l'un servaient pour plusieurs; seulement le segment de chaque branche était plus ou moins long.
Note 263: (retour) Dans nos Entretiens sur l'architecture (Neuvième).
Note 264: (retour) Voyez le Neuvième Entretien sur l'architecture et l'art. PROPORTION.
ORATOIRE, s. m. Petite chapelle élevée sur le lieu témoin d'un événement considéré comme miraculeux, ou pour conserver un souvenir religieux. On donne aussi le nom d'oratoire à certaines chapelles dépendant des appartements d'un château, d'un palais ou d'un hôtel. On appelait encore oratoires, pendant le moyen âge, des clotets, c'est-à-dire de petites chambres tapissées que l'on dressait dans les grandes chapelles de châteaux et qui étaient destinées aux châtelains et à leurs proches.
Lebeuf, dans son Histoire du diocèse de Paris 265, mentionne certains oratoires élevés dans les endroits où saint Germain s'était arrêté pour prier ou pour instruire le peuple. Les anciennes abbayes possédaient, outre la principale église, des oratoires élevés en plusieurs lieux de l'enclos. C'est pour perpétuer les souvenirs que rappelaient de très-anciens oratoires, qu'en 1034 on rebâtit les petites chapelles de Saint-Martial à Paris, qu'un incendie avait détruit 266. La plupart des monastères ne furent, dans l'origine, qu'un oratoire élevé au milieu d'un désert et autour duquel des cénobites vinrent s'établir. Saint Clément érigea ainsi un oratoire en un lieu dit Gorze, près de Metz, qui devint bientôt le centre d'un grand monastère 267. Un oratoire avait été érigé en face le monastère de Sennoul pour y déposer les reliques de saint Siméon. C'est retiré dans son oratoire, à Vienne, en Dauphiné, que l'archevêque Turpin ou Tulpin apprit la mort de Charlemagne à Cologne par plusieurs diables qui s'en retournaient sans avoir pu enlever l'âme de l'empereur, disaient-ils, si l'on en croit la chronique de Richer. Charlemagne fit bâtir aussi un grand nombre d'oratoires, parmi lesquels il faut citer celui de la vallée de Moyen-Moustier, élevé en l'honneur de saint Denis, et dans lequel était conservé le corps du pape Alexandre, martyr, recueilli à Rome. Cet oratoire était pavé en mosaïque et exista jusqu'en 1586 268. À Cluny, à Clairvaux on conservait encore, au dernier siècle, les oratoires de saint Odilon et de saint Bernard: c'est-à-dire les cellules isolées dans lesquelles se tenaient habituellement ces personnages. Bien entendu, ces chambrettes n'étaient remarquables que par leur extrême simplicité.
On disposait aussi certains oratoires au milieu des forteresses du moyen âge; placés sous le vocable d'un saint particulièrement vénéré dans la contrée et dépositaires de quelques-unes de ses reliques, ils protégeaient les défenses.
C'est ainsi qu'au milieu de la cité de Villeneuve-lès-Avignon, on voit encore un oratoire du XIIe siècle conservé au milieu de l'enceinte rebâtie au XIVe siècle. La figure 1 donne le plan de cette petite chapelle, et la figure 2 son élévation perspective.

Outre la chapelle, qui était commune à tous les familiers, les châteaux possédaient un ou plusieurs oratoires tenant aux appartements du châtelain et de la châtelaine. Ces oratoires n'étaient autre chose qu'une petite pièce retirée, ordinairement placée dans une tour. On s'y enfermait pour prier, mais on n'y faisait pas l'office divin. Ce ne fut guère qu'au XIVe siècle que les oratoires de châteaux devinrent par fois de véritables petites chapelles dans lesquelles on pouvait dire la messe.
En 1365, Charles V fit disposer dans la chapelle du château du Louvre un oratoire très-richement décoré, afin de s'y retirer lorsqu'il voulait assister à la messe 269. Louis XI fit de même bâtir, entre deux des contre-forts de la Sainte-Chapelle du Palais, à Paris, un oratoire d'où il pouvait voir l'office par une petite baie biaise, sans être vu des assistants. Cet oratoire, qui existe encore, est voûté en berceau et fort simple; il était probablement tendu en tapisseries. L'extérieur est, au contraire, richement décoré de fines sculptures et terminé par une balustrade fleur-de-lysé avec un L couronné au centre. Un oratoire est accolé également à la Sainte-Chapelle du château de Vincennes (voy. CHAPELLE).
Note 265: (retour) T. I, p. 102.
Note 266: (retour) Lebeuf, t. II, p. 498.
Note 267: (retour) Chroniq. de Richer, l. II, chap. III.
Note 268: (retour) Chroniq. de Richer, l. II, chap. IX.
Note 269: (retour) Sauval. Hist. et antiq. de la ville de Paris, t. II, p. 22.
ORGUE, s. m. (Voy. BUFFET.)
OSSUAIRE, s. m. Construction couverte, élevée dans les cimetières pour y déposer les ossements que l'on retrouve dans la terre sainte, lorsqu'on y creuse de nouvelles fosses. Autrefois tous les cimetières possédaient un ossuaire. Quelquefois, comme au cimetière des Innocents, à Paris, l'ossuaire n'était qu'un cloître, sous les lambris duquel on plaçait successivement les ossements que la multiplicité des sépultures mettait à découvert. Sur les parois des églises, et même des deux côtés de leur porte principale, on pratiquait aussi des enfoncements abrités par un bout de galerie de cloître, et dans ces enfoncements garnis de grilles serrées on jetait les ossements dont regorgeait la terre des cimetières.

Un ossuaire de ce genre (1) existait sur l'un des côtés de la façade de l'église de Fleurance (Gers). Plus souvent l'ossuaire formait comme une chapelle percée d'une quantité de petites baies, à travers lesquelles on apercevait les ossements accumulés peu à peu à l'intérieur. La Bretagne conserve encore un assez grand nombre d'ossuaires qui datent des XVe et XVIe siècles, et l'on n'a point cessé d'y déposer des ossements; quelques-uns en sont remplis jusqu'au comble. Lorsque les ossements exhumés par le creusement de nouvelles fosses appartiennent à des morts auxquels on a pu donner un nom, les familles font enfermer le chef, le crâne du mort, dans une petite boîte surmontée d'une croix, et ces boîtes sont posées sur l'appui des nombreuses baies de l'ossuaire. La fig. 2 représente une vue de l'ossuaire du Faouët (Finistère), qui se trouve accolé à l'église et donne sur le cimetière 270.

Dans des églises des provinces méridionales, surtout dans le pays basque, nous avons vu souvent, à l'extérieur des absides des églises rurales entourées de leur cimetière, des niches pratiquées sous les appuis des fenêtres et dans lesquelles se trouvent rangés avec soin des crânes recueillis en remuant la terre sainte. Les caveaux pratiqués sous certaines parties des églises servaient quelquefois aussi d'ossuaires.
Le désir d'être enterré le plus près possible des églises, lorsqu'on ne pouvait l'être dans son enceinte même, faisait rapprocher les tombes autour des fondations «sous l'égoût du toit.» Des ossuaires étaient donc habituellement disposés entre les contre-forts des nefs, comme pour satisfaire au voeu habituel des mourants. C'est ce qui explique pourquoi les galeries de cloître accolées aux églises étaient, du côté opposé à la claire-voie, percées d'enfoncements, de réduits, sortes d'armoires, dans lesquels on rangeait les ossements rendus au jour par la bêche du fossoyeur; réduits ou armoires dont notre figure 1 donne la disposition. Si on construisait des ossuaires en dehors des églises, on devait en avoir aussi pour l'intérieur, car on n'aurait pas voulu rejeter au dehors des ossements de fidèles découverts dans l'intérieur. Mais comme on ne devait exhiber dans l'intérieur de l'église que les restes de personnages saints, on plaçait les os sortis d'anciennes sépultures inconnues dans de petits caveaux, dans certaines parties des cryptes, ou, comme nous l'avons vu quelquefois, dans des trous pratiqués à travers les maçonneries et murés. Cet usage était fréquent chez les religieux, et nous avons découvert, en réparant de vieux murs d'églises abbatiales, de ces réduits murés entièrement remplis d'ossements humains provenant évidemment de plusieurs corps.
Note 270: (retour) Nous devons le dessin de cet ossuaire à M. Gaucherel.
OUBLIETTES, s. f. (S'emploie au pluriel.) Fosse profonde creusée sous le plancher ou la voûte d'une salle, et dans laquelle on précipitait les gens que l'on tenait à faire disparaître. Il n'y a pas de château du moyen âge dans lequel on ne montre des oubliettes, et cependant nous devons avouer que nous avons très-rarement trouvé des fosses auxquelles on puisse donner ce nom; généralement ce que l'on considère comme des oubliettes sont des fosses d'aisances dont il est bien aisé de reconnaître l'emploi, pour peu que l'on soit familier avec l'art de la construction (voy. LATRINES).
Nous avons vu dans beaucoup de châteaux, d'abbayes et d'officialités, des cachots, des vade in pace; mais nous ne connaissons que trois oubliettes considérées comme telles avec quelque raison. Les unes se trouvaient au château Chinon, les secondes à la Bastille et les troisièmes dans celui de Pierrefonds. Il faut constater aussi que les romans et les chroniques du moyen âge parlent souvent de chartres, de cachots; mais d'oubliettes, il n'en est pas question. Nous ne serions pas éloigné de croire que les oubliettes du château Chinon sont des latrines, ce qui réduirait les exemples cités à deux. «Nous devons avertir nos lecteurs, dit M. Mérimée dans les Instructions du comité historique des arts et monuments 271, de se tenir en garde contre les traditions locales qui s'attachent aux souterrains des donjons. On donne trop souvent au moyen âge des couleurs atroces, et l'imagination accepte trop facilement les scènes d'horreurs que les romanciers placent dans de semblables lieux. Combien de celliers et de magasins de bois n'ont pas été pris pour d'affreux cachots! Combien d'os, débris de cuisines, n'ont pas été regardés comme les restes des victimes de la tyrannie féodale! C'est avec la même réserve qu'il faut examiner les cachots désignés sous le nom d'oubliettes, espèces de puits où l'on descendait des prisonniers destinés à périr de faim, ou bien qu'on tuait en les y précipitant d'un lieu élevé dont le plancher se dérobait sous leurs pieds. Sans révoquer absolument en doute l'existence des oubliettes, on doit cependant les considérer comme fort rares, et ne les admettre que lorsqu'une semblable destination est bien démontrée.» Nous sommes d'autant plus disposé à considérer les oubliettes du château Chinon comme une fosse de latrines, que l'espèce de puits à plan carré qui les compose est percé à peu près à mi-hauteur d'une porte qui semble être la voie d'extraction des matières, à moins d'admettre que cette porte n'ait été pratiquée pour voir si le condamné était bien mort. Quant aux oubliettes de la Bastille, elles pourraient passer pour une glacière. En voici la coupe (1).

Elles consistaient en une salle voûtée à six pans,
située dans le soubassement d'une des tours, à laquelle on n'arrivait
que par une petite porte communiquant à l'escalier à vis; tout autour de
cette salle était un trottoir d'un mètre de large, et au milieu un cône
renversé terminé par un petit orifice destiné à entraîner les eaux. Il
est certain qu'un malheureux descendu dans le fond de cet entonnoir ne
pouvait ni s'asseoir, ni se coucher, ni se tenir debout. Il faudrait
admettre que le petit canal était une vidange, et que les gens qu'on
descendait dans ce cul de basse-fosse étaient placés là pour leur donner
le loisir de faire des réflexions. C'était une sorte de question
prolongée. Mais ce cône peut bien être une glacière, et ce ne serait pas
le seul exemple d'un magasin de glace existant dans un château. Nos
ancêtres aimaient à boire frais, le petit canal inférieur est alors bien
expliqué. Quant aux oubliettes du château de Pierrefonds, on ne peut
douter de leur destination; en voici la coupe (2). Elles consistent en
un puits creusé au milieu d'une salle qui était certainement un cachot,
puisqu'il contient dans une niche un siége d'aisances.
On ne peut même descendre dans ce cachot que par un orifice A percé au centre de sa voûte. On descendait du rez-de-chaussée à la salle C, qui devait servir également de prison, par un escalier à vis. À cette salle C est joint un cabinet d'aisances; elle ne recevait de jour que par une très-petite ouverture D. Si l'orifice des oubliettes restait béant dans le cachot, s'il n'était pas fermé par un tampon, on conçoit quelle devait être la situation du malheureux prisonnier craignant sans cesse de tomber dans ce trou qu'il ne pouvait voir, puisque le cachot ne reçoit pas de jour. Les deux orifices, celui de la voûte et celui des oubliettes, se correspondant exactement, de la trappe A on pouvait faire tomber quelqu'un dans le puits sans prendre la peine au préalable de le descendre dans le cachot. Nous sommes descendus au fond de ces oubliettes; nous y avons trouvé le rouet qui a servi à les fonder, mais aucune trace d'être humain. En B est le niveau du fond du fossé. En les creusant de deux mètres nous en avons fait un puits qui donne de l'eau pour les besoins du château. Dans ce même château il existe d'autres cachots semblables à celui-ci, sauf le puits des oubliettes; dans l'un de ces cachots nous avons constaté l'existence de noms gravés et une grossière sculpture faite sur les parements. On prétend qu'au château de Blois il existe aussi des oubliettes, mais nous n'avons pu en vérifier exactement la forme.
Note 271: (retour) Collection de documents inédits sur l'hist. de France. Architecture militaire, p. 74.
OUVRIER, s. m. Quelle était la situation de l'ouvrier de bâtiments au moyen âge? Cette question est difficile à résoudre. Avant l'établissement régulier des corporations, vers le milieu du XIIIe siècle, l'ouvrier était-il libre, comme celui de notre temps, ou faisait-il partie d'un corps, obéissant à des statuts, soumis à une sorte de juridiction exercée par ses pairs? Les marques de tâcherons que l'on trouve sur les pierres des parements de nos monuments du XIIe siècle et du commencement du XIIIe, dans l'Île-de-France, le Soissonnais, le Beauvoisis; une partie de la Champagne, en Bourgogne et dans les provinces de l'Ouest, prouvent évidemment que les ouvriers tailleurs de pierre, au moins, n'étaient pas payés à la journée, mais à la tâche. Suivant le mode de construire de cette époque, les pierres des parements faisant rarement parpaing et n'étant que des carreaux d'une épaisseur à peu près égale, la maçonnerie de pierre se payait à tant la toise superficielle au maître de l'oeuvre, et la pierre taillée, compris lits et joints, à tant la toise de même à l'ouvrier. Celui-ci marquait donc chaque morceau sur sa face nue afin que l'on pût estimer la valeur du travail qu'il avait fait.
Il faut bien admettre alors que l'ouvrier était libre, c'est-à-dire qu'il pouvait faire plus ou moins de travail, se faire embaucher ou se retirer du chantier comme cela se pratique aujourd'hui. Mais vers le milieu du XIIIe siècle, lorsque les règlements d'Étienne Boileau furent mis en vigueur, ce mode de travail dut être modifié.
Les ouvriers durent d'abord se soumettre aux statuts de la corporation dont ils faisaient partie; le salaire fut réglé par les maîtrises, et chaque affilié ne pouvant avoir qu'un, deux ou trois apprentis sous ses ordres, devenait ainsi, vis à vis le maître de l'oeuvre, ce que nous appelons aujourd'hui le compagnon, ayant avec lui un ou plusieurs garçons.
Alors le salaire se régla par journées de compagnon et d'aide, et chaque compagnon devenait ainsi comme une fraction d'entrepreneur concourant à l'entreprise générale, au moyen d'un salaire convenu et réglé pour telle ou telle partie. Aussi les marques de tâcherons ne se voient plus sur nos monuments des provinces du domaine royal à dater du milieu du XIIIe siècle.
Le maître de l'oeuvre, chargé de la conception et de la direction de l'ouvrage, se trouvait en même temps le répartiteur des salaires, faisant, comme nous dirions aujourd'hui, soumissionner telle partie, telle voûte, tel pilier, tel portion de muraille par tel et tel compagnon. C'est ce qui explique, dans un même édifice, ces différences d'exécution que l'on remarque d'un pilier, d'une voûte, d'une travée à l'autre, certaines variations dans les profils, etc. Les matériaux étant fournis par celui qui faisait bâtir, ils étaient livrés à chacun de ces compagnons après avoir été tracés par le maître de l'oeuvre, car le maître de l'oeuvre était forcément appareilleur 272. Le système de construction admis par les architectes du moyen âge les obligeait à se mettre en rapport direct avec les ouvriers. Et encore aujourd'hui ne peut-on procéder autrement quand on veut l'appliquer. Il résultait naturellement de ces rapports continuels entre l'ordonnateur et l'exécutant un cachet d'art très-fortement empreint sur les moindres parties de l'oeuvre, comme l'expression d'une même pensée entre l'esprit qui combinait et la main qui exécutait.
Nous avons changé tout cela, et de notre temps les intermédiaires entre l'architecte qui travaille dans son cabinet et l'ouvrier qui taille la pierre sont si nombreux, se connaissent si peu, que l'exécution n'est qu'une empreinte effacée de la conception.
Nous sommes certainement des gens civilisés, mais nous le serions davantage si, au lieu de manifester un dédain profond pour des institutions que nous connaissons mal et qui nous donneraient quelque peine à étudier, nous tentions d'en profiter. Ainsi, il est bien certain qu'au moyen âge, entre le maître de l'oeuvre et l'ouvrier il n'y avait pas la distance immense qui sépare aujourd'hui l'architecte des derniers exécutants; ce n'était pas certes l'architecte qui se trouvait placé plus bas sur les degrés de l'échelle intellectuelle, mais bien l'ouvrier qui atteignait un degré supérieur. Pour ne parler que de la maçonnerie, la manière dont les tracés sont compris par les tailleurs de pierre, l'intelligence avec laquelle ils sont rendus, indique chez ceux-ci une connaissance de la géométrie descriptive, des pénétrations de plans, que nous avons grand-peine à trouver de notre temps chez les meilleurs appareilleurs. L'exécution matérielle des tailles atteint toujours une grande supériorité sur celle que nous obtenons en moyenne. Mais si nous allons chercher des corps de métiers plus relevés, comme par exemple les sculpteurs, les tailleurs d'ymages, il nous faut beaucoup d'années et des soins infinis pour former des ouvriers en état de rivaliser avec ceux du moyen âge.
De notre temps, les charpentiers forment le seul corps qui ait conservé l'esprit des ouvriers du moyen âge. Ils sont organisés, ils ont conservé l'initiative; n'est pas charpentier qui veut. Ils sont solidaires sur un chantier, très-soumis au savoir du chef quand ils l'ont bien reconnu, mais parfaitement dédaigneux pour son insuffisance si elle est constatée, ce qui n'est pas long. Et parmi les ouvriers de bâtiment les charpentiers qui ont su maintenir leur ancienne organisation sont en moyenne les plus intelligents et les plus instruits.
On s'occupe beaucoup des ouvriers depuis quelques années; on pense à assurer leur bien-être, à trouver des refuges pour leur vieillesse; le côté matériel de leur existence s'est sensiblement amélioré. Mais pour ce qui est du bâtiment, on ne s'est peut-être pas assez occupé de leur instruction, de relever la façon. Le système de la concurrence, qui certes présente de grands avantages, a aussi des inconvénients: il tend à avilir la main d'oeuvre, à faire employer des hommes incapables de préférence à des hommes habiles, parce que les premiers acceptent des conditions de salaire inférieures, ou bien parce qu'ils font en moins de temps et plus mal, il est vrai, tel travail demandé. Ce n'est pas là un moyen propre à améliorer la situation morale de l'ouvrier. Les chantiers ouverts sur plusieurs points de la France pour la restauration de nos anciens édifices du moyen âge ont formé des pépinières d'exécutants habiles, parce que, dans ces chantiers, la perfection de la main-d'oeuvre est une condition inhérente au travail. Tout cela est à considérer, mais ce qu'il faudrait, c'est un enseignement pour les ouvriers de bâtiments; le système des corporations n'existe plus, il serait nécessaire de le remplacer par un système d'enseignement appliqué. En attendant, les architectes, sur leurs chantiers, peuvent prendre une influence très-salutaire sur les ouvriers qu'ils emploient, s'ils veulent se donner la peine de s'occuper directement du travail qui leur est confié, et s'ils ne dédaignent pas de leur expliquer eux-mêmes les moyens les plus propres à obtenir une exécution parfaite.
Note 272: (retour) Toutes les représentations de maître des oeuvres au moyen âge les montrent avec le grand compas d'appareilleur à la main. Si nous disons que le maître de l'oeuvre était forcément appareilleur, c'est qu'en effet, le système de l'architecture dite gothique admis, il est nécessaire que l'architecte trace lui-même les épures des divers membres de son édifice. Ce fait seul explique pourquoi ce système de construction est repoussé, comme indigne de notre état civilisé, par les maîtres des oeuvres de notre temps. C'est, à tout prendre, un assez dur métier que celui d'appareilleur.
FIN DU TOME SIXIÈME.

|
Gable Galerie --de service des églises --de service des palaisGaletas Garde-corps, Garde-fous (voy. BALUSTRADES).Gargouille Gaufrure Giron Girouette Gnomon Gond Gorge |
Gothique (voy. ARCHITECTURE).Gousset Goût Gouttière (voy. GARGOUILLE).Grange Griffe Grillage Grille Grisaille (voy. VERRIÈRE). Guette Guichet Gypserie |

|
Halle Herse Heurtoir Hôpital (voy. HÔTEL-DIEU). Horloge Hôtel Hôtel-de-Ville Hôtel-Dieu |
Hôtellerie Hourd Hourdage (voy. HOURD). Hourdis Huis Huisserie (voy. MENUISERIE). |

|
Imagerie Imbrication |
Incrustation Intra-dos |

|
Jambage Jambette Jardin Jessé |
Joint Jubé Jugement dernier |

|
Karnel (voy. CRÉNAU). |
Keminée (voy. CHEMINÉE). |

|
Labyrinthe Lambourde Lambris Lanterne des morts Larmier Latrines Lavabo Lavatoire Légende Lice |
Lien Lierne Limon Linçoir Linteau Lis (fleur de) (voy. FLORE). Lit Loge Lucarne Lunette |

|
Mâchicoulis Maçonnerie Main-courante Maison --des villes --des champsManoir Marbre Marché (voy. HALLE). Marqueterie (v. MENUISERIE). Meneau Menuiserie --Clôtures, claires-voies, clotets, lambris --Huis |
Menuiserie, Voussures, plafonds,
tambours --MarqueterieMeurtrière Miséricorde Mitre Moellon Montoir Mortaise Mortier Mosaïque Moulin Moustier (voy. ARCHITECTURE MONASTIQUE). |

|
Naissance Narthex Nef Niche |
Nimbe Noue Noyau |

|
Oeil Ogive Oratoire Orgue (voy. BUFFET). |
Ossuaire Oubliettes Ouvrier |
FIN DE LA TABLE PROVISOIRE DU TOME SIXIÈME.
Paris.--Imprimé chez Bonaventure et Ducessois, 55, quai des Augustins.
End of the Project Gutenberg EBook of Dictionnaire raisonné de
l'architecture française du XIe au XVIe siècle (6/9), by Eugène-Emmanuel Viollet-Le-Duc
*** END OF THIS PROJECT GUTENBERG EBOOK DICTIONNAIRE ***
***** This file should be named 30786-h.htm or 30786-h.zip *****
This and all associated files of various formats will be found in:
http://www.gutenberg.org/3/0/7/8/30786/
Produced by Michel Laglasse, Rénald Lévesque and the Online
Distributed Proofreaders Europe at http://dp.rastko.net.
Updated editions will replace the previous one--the old editions
will be renamed.
Creating the works from public domain print editions means that no
one owns a United States copyright in these works, so the Foundation
(and you!) can copy and distribute it in the United States without
permission and without paying copyright royalties. Special rules,
set forth in the General Terms of Use part of this license, apply to
copying and distributing Project Gutenberg-tm electronic works to
protect the PROJECT GUTENBERG-tm concept and trademark. Project
Gutenberg is a registered trademark, and may not be used if you
charge for the eBooks, unless you receive specific permission. If you
do not charge anything for copies of this eBook, complying with the
rules is very easy. You may use this eBook for nearly any purpose
such as creation of derivative works, reports, performances and
research. They may be modified and printed and given away--you may do
practically ANYTHING with public domain eBooks. Redistribution is
subject to the trademark license, especially commercial
redistribution.
*** START: FULL LICENSE ***
THE FULL PROJECT GUTENBERG LICENSE
PLEASE READ THIS BEFORE YOU DISTRIBUTE OR USE THIS WORK
To protect the Project Gutenberg-tm mission of promoting the free
distribution of electronic works, by using or distributing this work
(or any other work associated in any way with the phrase "Project
Gutenberg"), you agree to comply with all the terms of the Full Project
Gutenberg-tm License (available with this file or online at
http://gutenberg.org/license).
Section 1. General Terms of Use and Redistributing Project Gutenberg-tm
electronic works
1.A. By reading or using any part of this Project Gutenberg-tm
electronic work, you indicate that you have read, understand, agree to
and accept all the terms of this license and intellectual property
(trademark/copyright) agreement. If you do not agree to abide by all
the terms of this agreement, you must cease using and return or destroy
all copies of Project Gutenberg-tm electronic works in your possession.
If you paid a fee for obtaining a copy of or access to a Project
Gutenberg-tm electronic work and you do not agree to be bound by the
terms of this agreement, you may obtain a refund from the person or
entity to whom you paid the fee as set forth in paragraph 1.E.8.
1.B. "Project Gutenberg" is a registered trademark. It may only be
used on or associated in any way with an electronic work by people who
agree to be bound by the terms of this agreement. There are a few
things that you can do with most Project Gutenberg-tm electronic works
even without complying with the full terms of this agreement. See
paragraph 1.C below. There are a lot of things you can do with Project
Gutenberg-tm electronic works if you follow the terms of this agreement
and help preserve free future access to Project Gutenberg-tm electronic
works. See paragraph 1.E below.
1.C. The Project Gutenberg Literary Archive Foundation ("the Foundation"
or PGLAF), owns a compilation copyright in the collection of Project
Gutenberg-tm electronic works. Nearly all the individual works in the
collection are in the public domain in the United States. If an
individual work is in the public domain in the United States and you are
located in the United States, we do not claim a right to prevent you from
copying, distributing, performing, displaying or creating derivative
works based on the work as long as all references to Project Gutenberg
are removed. Of course, we hope that you will support the Project
Gutenberg-tm mission of promoting free access to electronic works by
freely sharing Project Gutenberg-tm works in compliance with the terms of
this agreement for keeping the Project Gutenberg-tm name associated with
the work. You can easily comply with the terms of this agreement by
keeping this work in the same format with its attached full Project
Gutenberg-tm License when you share it without charge with others.
1.D. The copyright laws of the place where you are located also govern
what you can do with this work. Copyright laws in most countries are in
a constant state of change. If you are outside the United States, check
the laws of your country in addition to the terms of this agreement
before downloading, copying, displaying, performing, distributing or
creating derivative works based on this work or any other Project
Gutenberg-tm work. The Foundation makes no representations concerning
the copyright status of any work in any country outside the United
States.
1.E. Unless you have removed all references to Project Gutenberg:
1.E.1. The following sentence, with active links to, or other immediate
access to, the full Project Gutenberg-tm License must appear prominently
whenever any copy of a Project Gutenberg-tm work (any work on which the
phrase "Project Gutenberg" appears, or with which the phrase "Project
Gutenberg" is associated) is accessed, displayed, performed, viewed,
copied or distributed:
This eBook is for the use of anyone anywhere at no cost and with
almost no restrictions whatsoever. You may copy it, give it away or
re-use it under the terms of the Project Gutenberg License included
with this eBook or online at www.gutenberg.org
1.E.2. If an individual Project Gutenberg-tm electronic work is derived
from the public domain (does not contain a notice indicating that it is
posted with permission of the copyright holder), the work can be copied
and distributed to anyone in the United States without paying any fees
or charges. If you are redistributing or providing access to a work
with the phrase "Project Gutenberg" associated with or appearing on the
work, you must comply either with the requirements of paragraphs 1.E.1
through 1.E.7 or obtain permission for the use of the work and the
Project Gutenberg-tm trademark as set forth in paragraphs 1.E.8 or
1.E.9.
1.E.3. If an individual Project Gutenberg-tm electronic work is posted
with the permission of the copyright holder, your use and distribution
must comply with both paragraphs 1.E.1 through 1.E.7 and any additional
terms imposed by the copyright holder. Additional terms will be linked
to the Project Gutenberg-tm License for all works posted with the
permission of the copyright holder found at the beginning of this work.
1.E.4. Do not unlink or detach or remove the full Project Gutenberg-tm
License terms from this work, or any files containing a part of this
work or any other work associated with Project Gutenberg-tm.
1.E.5. Do not copy, display, perform, distribute or redistribute this
electronic work, or any part of this electronic work, without
prominently displaying the sentence set forth in paragraph 1.E.1 with
active links or immediate access to the full terms of the Project
Gutenberg-tm License.
1.E.6. You may convert to and distribute this work in any binary,
compressed, marked up, nonproprietary or proprietary form, including any
word processing or hypertext form. However, if you provide access to or
distribute copies of a Project Gutenberg-tm work in a format other than
"Plain Vanilla ASCII" or other format used in the official version
posted on the official Project Gutenberg-tm web site (www.gutenberg.org),
you must, at no additional cost, fee or expense to the user, provide a
copy, a means of exporting a copy, or a means of obtaining a copy upon
request, of the work in its original "Plain Vanilla ASCII" or other
form. Any alternate format must include the full Project Gutenberg-tm
License as specified in paragraph 1.E.1.
1.E.7. Do not charge a fee for access to, viewing, displaying,
performing, copying or distributing any Project Gutenberg-tm works
unless you comply with paragraph 1.E.8 or 1.E.9.
1.E.8. You may charge a reasonable fee for copies of or providing
access to or distributing Project Gutenberg-tm electronic works provided
that
- You pay a royalty fee of 20% of the gross profits you derive from
the use of Project Gutenberg-tm works calculated using the method
you already use to calculate your applicable taxes. The fee is
owed to the owner of the Project Gutenberg-tm trademark, but he
has agreed to donate royalties under this paragraph to the
Project Gutenberg Literary Archive Foundation. Royalty payments
must be paid within 60 days following each date on which you
prepare (or are legally required to prepare) your periodic tax
returns. Royalty payments should be clearly marked as such and
sent to the Project Gutenberg Literary Archive Foundation at the
address specified in Section 4, "Information about donations to
the Project Gutenberg Literary Archive Foundation."
- You provide a full refund of any money paid by a user who notifies
you in writing (or by e-mail) within 30 days of receipt that s/he
does not agree to the terms of the full Project Gutenberg-tm
License. You must require such a user to return or
destroy all copies of the works possessed in a physical medium
and discontinue all use of and all access to other copies of
Project Gutenberg-tm works.
- You provide, in accordance with paragraph 1.F.3, a full refund of any
money paid for a work or a replacement copy, if a defect in the
electronic work is discovered and reported to you within 90 days
of receipt of the work.
- You comply with all other terms of this agreement for free
distribution of Project Gutenberg-tm works.
1.E.9. If you wish to charge a fee or distribute a Project Gutenberg-tm
electronic work or group of works on different terms than are set
forth in this agreement, you must obtain permission in writing from
both the Project Gutenberg Literary Archive Foundation and Michael
Hart, the owner of the Project Gutenberg-tm trademark. Contact the
Foundation as set forth in Section 3 below.
1.F.
1.F.1. Project Gutenberg volunteers and employees expend considerable
effort to identify, do copyright research on, transcribe and proofread
public domain works in creating the Project Gutenberg-tm
collection. Despite these efforts, Project Gutenberg-tm electronic
works, and the medium on which they may be stored, may contain
"Defects," such as, but not limited to, incomplete, inaccurate or
corrupt data, transcription errors, a copyright or other intellectual
property infringement, a defective or damaged disk or other medium, a
computer virus, or computer codes that damage or cannot be read by
your equipment.
1.F.2. LIMITED WARRANTY, DISCLAIMER OF DAMAGES - Except for the "Right
of Replacement or Refund" described in paragraph 1.F.3, the Project
Gutenberg Literary Archive Foundation, the owner of the Project
Gutenberg-tm trademark, and any other party distributing a Project
Gutenberg-tm electronic work under this agreement, disclaim all
liability to you for damages, costs and expenses, including legal
fees. YOU AGREE THAT YOU HAVE NO REMEDIES FOR NEGLIGENCE, STRICT
LIABILITY, BREACH OF WARRANTY OR BREACH OF CONTRACT EXCEPT THOSE
PROVIDED IN PARAGRAPH F3. YOU AGREE THAT THE FOUNDATION, THE
TRADEMARK OWNER, AND ANY DISTRIBUTOR UNDER THIS AGREEMENT WILL NOT BE
LIABLE TO YOU FOR ACTUAL, DIRECT, INDIRECT, CONSEQUENTIAL, PUNITIVE OR
INCIDENTAL DAMAGES EVEN IF YOU GIVE NOTICE OF THE POSSIBILITY OF SUCH
DAMAGE.
1.F.3. LIMITED RIGHT OF REPLACEMENT OR REFUND - If you discover a
defect in this electronic work within 90 days of receiving it, you can
receive a refund of the money (if any) you paid for it by sending a
written explanation to the person you received the work from. If you
received the work on a physical medium, you must return the medium with
your written explanation. The person or entity that provided you with
the defective work may elect to provide a replacement copy in lieu of a
refund. If you received the work electronically, the person or entity
providing it to you may choose to give you a second opportunity to
receive the work electronically in lieu of a refund. If the second copy
is also defective, you may demand a refund in writing without further
opportunities to fix the problem.
1.F.4. Except for the limited right of replacement or refund set forth
in paragraph 1.F.3, this work is provided to you 'AS-IS' WITH NO OTHER
WARRANTIES OF ANY KIND, EXPRESS OR IMPLIED, INCLUDING BUT NOT LIMITED TO
WARRANTIES OF MERCHANTIBILITY OR FITNESS FOR ANY PURPOSE.
1.F.5. Some states do not allow disclaimers of certain implied
warranties or the exclusion or limitation of certain types of damages.
If any disclaimer or limitation set forth in this agreement violates the
law of the state applicable to this agreement, the agreement shall be
interpreted to make the maximum disclaimer or limitation permitted by
the applicable state law. The invalidity or unenforceability of any
provision of this agreement shall not void the remaining provisions.
1.F.6. INDEMNITY - You agree to indemnify and hold the Foundation, the
trademark owner, any agent or employee of the Foundation, anyone
providing copies of Project Gutenberg-tm electronic works in accordance
with this agreement, and any volunteers associated with the production,
promotion and distribution of Project Gutenberg-tm electronic works,
harmless from all liability, costs and expenses, including legal fees,
that arise directly or indirectly from any of the following which you do
or cause to occur: (a) distribution of this or any Project Gutenberg-tm
work, (b) alteration, modification, or additions or deletions to any
Project Gutenberg-tm work, and (c) any Defect you cause.
Section 2. Information about the Mission of Project Gutenberg-tm
Project Gutenberg-tm is synonymous with the free distribution of
electronic works in formats readable by the widest variety of computers
including obsolete, old, middle-aged and new computers. It exists
because of the efforts of hundreds of volunteers and donations from
people in all walks of life.
Volunteers and financial support to provide volunteers with the
assistance they need, are critical to reaching Project Gutenberg-tm's
goals and ensuring that the Project Gutenberg-tm collection will
remain freely available for generations to come. In 2001, the Project
Gutenberg Literary Archive Foundation was created to provide a secure
and permanent future for Project Gutenberg-tm and future generations.
To learn more about the Project Gutenberg Literary Archive Foundation
and how your efforts and donations can help, see Sections 3 and 4
and the Foundation web page at http://www.pglaf.org.
Section 3. Information about the Project Gutenberg Literary Archive
Foundation
The Project Gutenberg Literary Archive Foundation is a non profit
501(c)(3) educational corporation organized under the laws of the
state of Mississippi and granted tax exempt status by the Internal
Revenue Service. The Foundation's EIN or federal tax identification
number is 64-6221541. Its 501(c)(3) letter is posted at
http://pglaf.org/fundraising. Contributions to the Project Gutenberg
Literary Archive Foundation are tax deductible to the full extent
permitted by U.S. federal laws and your state's laws.
The Foundation's principal office is located at 4557 Melan Dr. S.
Fairbanks, AK, 99712., but its volunteers and employees are scattered
throughout numerous locations. Its business office is located at
809 North 1500 West, Salt Lake City, UT 84116, (801) 596-1887, email
business@pglaf.org. Email contact links and up to date contact
information can be found at the Foundation's web site and official
page at http://pglaf.org
For additional contact information:
Dr. Gregory B. Newby
Chief Executive and Director
gbnewby@pglaf.org
Section 4. Information about Donations to the Project Gutenberg
Literary Archive Foundation
Project Gutenberg-tm depends upon and cannot survive without wide
spread public support and donations to carry out its mission of
increasing the number of public domain and licensed works that can be
freely distributed in machine readable form accessible by the widest
array of equipment including outdated equipment. Many small donations
($1 to $5,000) are particularly important to maintaining tax exempt
status with the IRS.
The Foundation is committed to complying with the laws regulating
charities and charitable donations in all 50 states of the United
States. Compliance requirements are not uniform and it takes a
considerable effort, much paperwork and many fees to meet and keep up
with these requirements. We do not solicit donations in locations
where we have not received written confirmation of compliance. To
SEND DONATIONS or determine the status of compliance for any
particular state visit http://pglaf.org
While we cannot and do not solicit contributions from states where we
have not met the solicitation requirements, we know of no prohibition
against accepting unsolicited donations from donors in such states who
approach us with offers to donate.
International donations are gratefully accepted, but we cannot make
any statements concerning tax treatment of donations received from
outside the United States. U.S. laws alone swamp our small staff.
Please check the Project Gutenberg Web pages for current donation
methods and addresses. Donations are accepted in a number of other
ways including checks, online payments and credit card donations.
To donate, please visit: http://pglaf.org/donate
Section 5. General Information About Project Gutenberg-tm electronic
works.
Professor Michael S. Hart is the originator of the Project Gutenberg-tm
concept of a library of electronic works that could be freely shared
with anyone. For thirty years, he produced and distributed Project
Gutenberg-tm eBooks with only a loose network of volunteer support.
Project Gutenberg-tm eBooks are often created from several printed
editions, all of which are confirmed as Public Domain in the U.S.
unless a copyright notice is included. Thus, we do not necessarily
keep eBooks in compliance with any particular paper edition.
Most people start at our Web site which has the main PG search facility:
http://www.gutenberg.org
This Web site includes information about Project Gutenberg-tm,
including how to make donations to the Project Gutenberg Literary
Archive Foundation, how to help produce our new eBooks, and how to
subscribe to our email newsletter to hear about new eBooks.