The Project Gutenberg EBook of Transactions of the American Society of
Civil Engineers, vol. LXVIII, Sept. 1910, by George C. Clarke

This eBook is for the use of anyone anywhere at no cost and with
almost no restrictions whatsoever.  You may copy it, give it away or
re-use it under the terms of the Project Gutenberg License included
with this eBook or online at www.gutenberg.org


Title: Transactions of the American Society of Civil Engineers, vol. LXVIII, Sept. 1910
       The Site of the Terminal Station. Paper No. 1157

Author: George C. Clarke

Release Date: May 17, 2006 [EBook #18408]

Language: English

Character set encoding: ISO-8859-1

*** START OF THIS PROJECT GUTENBERG EBOOK SOCIETY OF CIVIL ENGINEERS ***




Produced by Louise Hope, Juliet Sutherland and the Online
Distributed Proofreading Team at http://www.pgdp.net






Page numbers in [brackets] represent full-page illustrations or unpaginated plates, here placed as close as practicable to their referring text.
The larger illustrations are shown as thumbnails linked to the full-size version.

AMERICAN SOCIETY OF CIVIL ENGINEERS

INSTITUTED 1852

TRANSACTIONS


Paper No. 1157


THE NEW YORK TUNNEL EXTENSION OF THE
PENNSYLVANIA RAILROAD.
THE SITE OF THE TERMINAL STATION.1

By George C. Clarke, M. Am. Soc. C. E.

The purpose of this paper is to describe the preliminary work for and the preparation of that portion of the site for the Terminal Station in Manhattan, of the New York Tunnel Extension of the Pennsylvania Railroad, which was constructed under the direction of the Chief Engineer of the East River Division, including the disposal of material excavated from all parts of the Terminal construction and the tunnels on the East River Division.

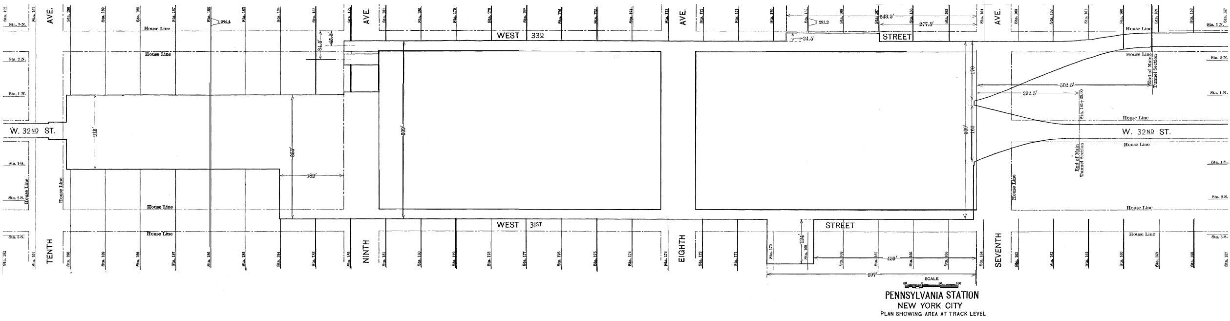
As outlined in the paper by Brigadier-General Charles W. Raymond, M. Am. Soc. C. E., Chairman of the Board of Engineers, the track yard of the station, Plate LIII, extends from the east line of Tenth Avenue eastward to points in 32d and 33d Streets, respectively, 292 and 502 ft. east of the west line of Seventh Avenue. The width of the available area at track level at Tenth Avenue is 213 ft., continuing at this width to within 182 ft. of the west line of Ninth Avenue, where, by an offset toward the south, it is increased to 355 ft. This width is held to a point 5 ft. east of the east line of Ninth Avenue, where, by an offset toward the north, it is increased to 509 ft., which width continues to the west line of Seventh Avenue, where it divides into two fan-shaped areas. The north area has a width of about 170 341 ft. and the south one, 160 ft., at the house line, each area tapering gradually to the width of the standard three-track tunnel at the east ends, noted above in 33d and 32d Streets. Additional track room for four tail-tracks is gained by the construction of two double-track tunnels under Ninth Avenue at 33d Street, their center lines being parallel to the street and 45.5 and 84.5 ft. distant, respectively, from the north house line. An additional width of 24.5 ft. is occupied on the north from 277.5 ft. to 543.5 ft. west of the west line of Seventh Avenue, where the buildings on the north side of 33d Street have been torn down and the enclosing wall set back in anticipation of a future outlet to 34th Street; and on the south, from 459 ft. to 597 ft. west of the west line of Seventh Avenue a rectangular offset of 124 ft. encloses the area occupied by the Service Building. The total area above outlined is the space occupied at track level, and amounts to 28 acres, of which the portion west of the east house line of Ninth Avenue and south of a line 107.3 ft. south of the south line of 33d Street is a part of the North River Division, and was constructed under the direction of the engineers of that Division; the fan-shaped areas east of the west house line of Seventh Avenue were constructed under the direction of the Chief Engineer of Electric Traction and Terminal Station Construction.

[opp. 340] Plate LIII.
Plate LIII thumbnail
Pennsylvania Station, New York City:
Plan Showing Area at Track Level

In June, 1903, when the writer's connection with the work began, the preliminary surveys had been completed and the location and extent of the Terminal track area had been fixed, in so far as the city blocks to be occupied were concerned. This contemplated area, however, did not include the portion between Ninth and Tenth Avenues, that being added subsequently. The elevation of the track level had also been fixed by the requirement in the agreement with the City that no part of the permanent structure should approach within 19 ft. of the surface under any avenue or under any street except within the Terminal area. The nearest approach of the tracks to the surface is at a point 320 ft. east of Eighth Avenue, where the top of the rail is 40 ft. below the 31st Street curb line.

Wash-Borings.

The general plan of enclosing the area in retaining walls having been adopted, wash-borings were taken, for the purpose of determining the best location for the walls, the depth of rock, and the nature of 342 the material overlying it. These borings were made along both curb lines of Seventh Avenue, the east curb line of Ninth Avenue, the north curb line of 33d Street, and the south curb line of 31st Street. The borings, as a rule, were taken at intervals of approximately 100 ft., some deviation in these intervals being made in order to prevent injury to water, gas, and sewer connections, and, if the elevation of the surface of the rock, as determined by one of these borings, corresponded fairly well with the borings on either side of it, no intermediate borings were taken. When a discrepancy appeared, a boring was taken midway between the two non-corresponding ones, and if the information obtained from the intermediate boring failed to account for the discrepancy, others were taken at the quarter points of the original 100-ft. interval.

The dotted lines on Fig. 1 show the profiles of the surface of the rock underlying 31st and 33d Streets, on the line of the borings, constructed from the elevations obtained by them; the solid lines show the profiles of the actual surface of the rock as found when uncovered. It will be noted that, except in three cases, Borings 313, 328, and 333, the two profiles correspond very closely at the points where the borings were made, but they differ widely between those points, a variation of 5 ft. being common; there is a variation of 14 ft. between Borings 324 and 327, and between Nos. 337 and 340; and of 12 ft. between Nos. 333 and 335, and between Nos. 312 and 313, while an extreme variation of 17 ft. is shown between Nos. 303 and 305. At each of the points where the variation is great the interval between borings is the full 100 ft., and it is quite apparent that, if a definite idea is to be obtained of the elevation of the surface of the rock in Manhattan, borings must be taken at shorter intervals.

The necessary width of trench for the construction of the retaining walls was determined by the elevation of the rock, as shown by the borings, and only in the case of the dip between Borings 303 and 305 did the variation lead to any difficulty. The trench at that point had to be widened after rock was reached. This depression corresponded very closely in location to that of one arm of the creek shown on General Viele's map of 1865,2 the bed of that stream, or one in approximately 344 the same location, being clearly marked across the excavation by smoothly-worn rock and well-rounded boulders. The original stream, however, seemed to have turned in a westerly direction under 31st Street to Eighth Avenue instead of crossing, as shown on General Viele's map.

[343] Fig. 1.
Figure 1 thumbnail
PROFILE OF ROCK SURFACES IN THIRTY-FIRST AND THIRTY-THIRD STREETS,
BETWEEN SEVENTH AND NINTH AVENUES.

Sewers.

The arrangement of the sewers in the streets in the vicinity of the Terminal Site, previous to the beginning of the construction, and the drainage area tributary to those sewers, is shown by Fig. 2. The main sewer for this district was in Eighth Avenue, and was a 6-ft. circular brick conduit within the Terminal area. The sewers leading to it from the west, in 31st, 32d, and 33d Streets, were elliptical, 3 by 2 ft., and egg-shaped, 4 ft. by 2 ft. 8 in., although in no case did they drain more than one block, and they were on a heavy grade. Draining into Eighth Avenue from the east, the one on 31st Street was 4 ft. by 2 ft. 8 in., egg-shaped, and drained a length of two blocks, and those on 32d and 33d Streets were circular, 4 ft. in diameter, and drained the territory for three blocks, or as far east as Fifth Avenue. There were no sewers in Seventh Avenue within the Terminal area, except small vitrified pipes, each less than 200 ft. in length.

It was desirable that the size and number of the sewers in the streets and avenues surrounding the Terminal should be reduced to a minimum, on account of the difficulty of caring for them during construction and also to reduce the probability of sewage leaking into the underground portion of the work after its completion. With this in view, the plan was adopted of building an intercepting sewer down Seventh Avenue from north of 33d Street to the 30th Street sewer, which, being a 4-ft. circular conduit, was sufficiently large to carry all the sewage coming from east of Seventh Avenue and south of 34th Street. It was decided to build this sewer of cast iron where it crossed the proposed construction work, and also to replace with cast iron the brick sewers on 31st, 32d, and 33d Streets from Seventh Avenue to a point east of the west end of the standard tunnel section, and also the sewer on Eighth Avenue from the north side of 33d Street to the south side of 31st Street. This arrangement permitted: first, the removal of the sewer in 32d Street between Seventh and Eighth Avenues, which was necessary, as that street was to be excavated; second, the reduction of the sewer in Eighth Avenue from a 346 6-ft. to a 5-ft. circular conduit; and, third, assuming that the sewage and drainage from the Terminal would be pumped directly to the sewers in the avenues, the reduction of the sewers in 31st and 33d Streets, from Seventh to Ninth Avenue, to 15-in. vitrified pipes, except west of the Service Building in 31st Street, to accommodate which section, a larger sewer was required. The sewer in 32d Street, from Ninth to Eighth Avenue, of course, could be dispensed with in any arrangement, as all the area tributary to it was to be excavated.

[345] Fig. 2.
Figure 2 thumbnail
PLAN SHOWING LAYOUT OF SEWER IN CATCHMENT AREA
ABOUT TERMINAL STATION

Gas and Water Mains.

A rearrangement of the gas pipes in the three streets crossing the Terminal site was necessary. These pipes were of two classes: trunk mains and service mains. Fortunately, there were but two trunk mains in the three streets, one a 20-in. in 31st Street from east of Seventh Avenue to Ninth Avenue, the other a 16-in. in 32d Street from east of Seventh Avenue to Eighth Avenue. The 20-in. main was relaid from Seventh Avenue and 31st Street down Seventh Avenue to 30th Street and through that street to Ninth Avenue. The 16-in. main was relaid from Seventh Avenue and 32d Street north to 34th Street and through that street to Eighth Avenue. The service mains in 32d Street were no longer required, and were taken up and not replaced. The houses on 31st and 33d Streets were provided with service by two 6-in. wrought-iron mains back of the retaining walls in each street, that location being chosen to avoid damage by gas drip to the water-proofing of the street bridges. As the permanent structures under the avenues were not to approach the surface nearer than 19 ft., only slight rearrangements, sufficient to permit the new sewers and water lines to be laid, were necessary.

There were no large water mains to be cared for, in fact, those in the streets were too small for ample fire protection, being only 6 in. in diameter. The main in 32d Street was taken up and not replaced, and those on 31st and 33d Streets were replaced by 12-in. pipes laid back of the retaining walls. No changes were necessary in the mains in the avenues, but, before approving the rearrangement for the streets, the Department of Water Supply, Gas and Electricity added a 48-in. main in Eighth Avenue to be laid as a part of this construction, the pipe being supplied by the City.

347
Location and Design of Retaining Walls.

The plans, from the earliest stages, contemplated founding the retaining wall on the surface of the rock, where of suitable quality, and afterward excavating the rock in front of the toe of the wall to sub-grade. This plan was definitely adopted soon after the borings were completed, on account of the great danger of blasting out large quantities of rock in timbered trenches close to buildings founded on soft material, and also to avoid the additional cost and delay that would have been caused by carrying the walls to sub-grade. The retaining walls in Seventh Avenue, south of the viaduct, and in Ninth Avenue, north of the viaduct, were not governed by the same conditions as in the streets. The dip and quality of the rock at both points required that the walls be carried to sub-grade, and they are, in fact, face walls; the Ninth Avenue wall, in particular, having little thrust to sustain, is very light.

The results aimed at in the design and location of the retaining walls in 31st and 33d Streets were:

First.—A perfectly stable wall under all conditions that might reasonably be expected;

Second.—As much room as possible at the elevation of the top of rail;

Third.—The least necessary interference with adjoining property during construction; and,

Fourth.—The most economical wall that would fulfill the other conditions.

As stated in the paper by Alfred Noble, Past-President, Am. Soc. C. E., the third stipulation required the relinquishing of a portion of the space under these streets granted by the City, but it was finally decided not to approach the south house line of 31st Street with the back of the walls nearer than 9 ft., while on 33d Street the extreme position of the back was fixed at the north line, as there were no buildings, except those belonging to the Railroad Company, on the house line at the low points in the rock.

The assumptions made in designing the wall were as follows:

First.—Weight of concrete, 140 lb. per cu. ft.

Second.—Weight of material from the surface of the ground to a depth of 12 ft. (which was shown by tests made in bore-holes 348 to be the elevation of the ground-water surface), 100 lb. per cu. ft.; and angle of repose, 30 degrees. The distance of 12 ft. below the surface was the depth of the inverts of the sewers, which undoubtedly drained the ground above them, thus accounting for the standing of the ground-water in planes practically parallel with the surface.

Third.—Weight of buildings back of wall neglected, as that of the present type will about equal the cellars filled with material at 100 lb. per cu. ft., and if large buildings are erected in the future they will undoubtedly be carried to rock.

Fourth.—Reaction from superstructure, live and dead load, 20,000 lb. per lin. ft. of wall.

Fifth.—Weight of materials below the 12-ft. line, 124 lb. per cu. ft., ascertained as follows: The material was considered as weighing 165 lb. per cu. ft. in the solid, and having 40% of voids filled with water at 62.5 lb. per cu. ft., the resulting weight being (165 × 60/100) + (62.5 × 40/100) = 124 lb. per cu. ft.

Various angles of repose were used for this material in the investigation, and it was finally decided that 30° was the greatest angle that could be expected, whereas the worst condition that could be anticipated was that the sand and water would act separately and give a pressure as follows:

Hydraulic pressure from liquid weighing 62.5 lb. per cu. ft. plus pressure from sand with angle of repose at 30° and weight as follows:

Weight of 1 cu. ft. in air = 165 × 60/100 = 99 lb.

Weight of water displaced by 1 cu. ft. = 60/100 × 62.5 lb. = 37.5 lb.

Weight in water, therefore = 61.5 lb. per cu. ft.

These combined weights, of course, are equal to the weight of the combined material in the previous assumption.

Sixth.—The usual requirement that the resultant of both horizontal and vertical forces should, at all points, fall within the middle third of the wall, or, in other words, that there should be no tension in the concrete.

With these assumptions, investigation was made of walls with various batters and differently designed backs. This investigation developed 349 the fact that the reaction from the superstructure was so great that, for economy, both in first cost and space occupied, the batter must be sufficient to cause that reaction to fall within or very close to the middle third. Nothing could have been gained by having that reaction fall back of the front of the middle third, as the wall was required to be stable against the full pressure before the superstructure was erected, and in case it should ever be removed; or, to state the matter more clearly, the reaction from the superstructure was so great in comparison to the weight of the wall, that, if it fell in front of the resultant of all the other forces, the width of base required would be greatly increased to make the wall stable after the superstructure was erected; whereas, if the reaction from the superstructure fell back of the resultant of all the other forces, the width of base could not be correspondingly decreased without danger of the wall being overturned before the superstructure was erected. The least batter that would answer those conditions was found to be 2 in. per ft.

For convenience in designing, and economy in constructing, the steelwork, the faces of the bridge seat and of the backwall were laid parallel to the center line of the Terminal, and in elevation on line parallel to the top of the curb and as near to it as the economical depth of steel would permit, without bringing the finished construction above the plane fixed in the ordinance. As there is a variation of 13 ft. in the elevation of the top of the curb of 31st Street above the top of rail and a variation of 18 ft. in 33d Street, a uniform batter, with the top parallel to the center line, would produce a toe varying in distance from it and from the other constructions. It was decided, therefore, for the sake of appearance, to make the face of the wall (or wall produced) at the top of rail parallel to the center line, and to vary the batter accordingly, using the 2-in. batter previously mentioned as the minimum. This gave a maximum batter of 3 in. per ft. The variation is so gradual that it is unnoticeable, and is not sufficient to introduce any complications in construction.

The wall was designed with a stepped back, primarily to allow the water-proofing and brick protection to be held in position more readily. The first step was put at 13 ft. below the surface of the ground. This gave a vertical back above that point for a 3-in. battered face, and a slightly battered back for sections having a less batter in front. Below that point a step was added for each 5 ft. of depth 350 to the elevation of the top of rail, or to the foundation of the wall if above that elevation. As the horizontal distance of the heel of the wall, at its greatest width, from its face at the top of rail would determine the effective room to be occupied by the wall, it was determined to make the back vertical below the top of rail and gain the necessary increase in width below that point by making a heavy batter on the face.

The type of wall having been thus determined, calculations were made of the width of base required for each ¼-in. batter from 2 to 3 in., inclusive, first for a depth of 13 ft. below the top of the curb and then for each 5 ft. below that elevation, to a depth corresponding to the distance between the top of the curb and the top of the rail at the point of greatest variation. These widths of wall were determined for the two pressures previously decided on, and curves were then plotted showing the thickness of wall required for each batter calculated and for each pressure. They are shown on Plate LIV. The curves in broken lines represent the widths required for saturated material, and the curves in dotted lines for hydraulic pressure. Mean curves were then drawn between each broken and its corresponding dotted curve. These are shown in solid lines, and represent the widths of wall which were used in the construction. Typical sections of the wall and pipes back of it are shown on Fig. 3.

The extreme positions of the back of the wall on the two streets having been determined, as previously stated, the width of base required at those points fixed the toe of the wall at the top of rail as 254.5 ft. south of the center line of the Terminal in 31st Street, and 258.5 ft. north of the center line in 33d Street.

[opp. 348] Plate LIV.
Plate LIV thumbnail
Diagram Showing Widths of Base of Retaining Wall
Required for Different Batters and Pressures,
Pennsylvania Station

Contracts.

The construction was done under the following contracts:

1.—The principal contract, dated June 21st, 1904, was with the New York Contracting and Trucking Company, later assigned by that company to the New York Contracting Company-Pennsylvania Terminal, for the performance of the following works:

(a).—The excavation for and construction of a retaining wall in Seventh Avenue, 31st Street, Ninth Avenue, and 33d Street.

(b).—Excavation over the area enclosed by the retaining wall.

(c).—The building of sewers and the laying of water and gas pipes.

352

(d).—The building of a timber trestle to support the surface of Eighth Avenue between the south side of 31st Street and the north side of 33d Street, and also the surface of 31st and 33d Streets between Seventh and Ninth Avenues. This refers to the trestles left in place on the completion of the work.

(e).—The building of a trestle and bridging from a point near the west side of Tenth Avenue on the south side of 32d Street, westward to the outer end of Pier No. 62, at the foot of 32d Street.

[351] Fig. 3.
Figure 3 thumbnail
TYPICAL SECTIONS OF RETAINING WALL IN THIRTY-FIRST STREET

2.—The second contract, dated February 10th, 1905, was with the New York Contracting Company-Pennsylvania Terminal, for the excavation for and construction of retaining walls for the Manhattan Terminal Power Station, and the excavation of the area thus enclosed.

3.—The third contract, dated October 2d, 1907, was with the New York Contracting Company-Pennsylvania Terminal, for the construction of two twin tunnels under Ninth Avenue, and other work incidental thereto.

Sewers and gas mains laid outside the area covered by the foregoing contracts were constructed under the following agreements:

An agreement, dated August 9th, 1904, between the New York Contracting Company-Pennsylvania Terminal, and the New Amsterdam Gas Company, for a 20-in. gas main from Seventh Avenue and 31st Street to 30th Street, and thence to Ninth Avenue, the New Amsterdam Gas Company being remunerated for the cost by the Tunnel Company.

A contract, dated August 24th, 1904, with the New York Contracting Company-Pennsylvania Terminal, for the construction of sewers in Seventh Avenue and in 32d and 33d Streets east of Seventh Avenue.

A contract, dated November 24th, 1908, with the New York Contracting Company-Pennsylvania Terminal, for the construction of a 16-in. gas main from Seventh Avenue and 32d Street to 34th Street, and thence to Eighth Avenue.

All these contracts required that the excavated material be delivered on board scows to be furnished by the company at the pier at the foot of 32d Street, North River. These scows were furnished and the material was disposed of from that point by Henry Steers, Incorporated, under a contract, dated August 9th, 1904, which called for 353 the transportation to and placing of all material so delivered in the Pennsylvania Railroad Company's freight terminal at Greenville, N. Y.

The disposal of the excavated material was one of the principal features of the work, and, under the above contract, material from those portions of the Terminal site east of Seventh Avenue and west of Ninth Avenue, and from all substructures work, was disposed of, as well as from the constructions herein described. The problem differed from that presented by the usual foundation excavations in New York City in magnitude only, and the methods were not unusual, but were adaptations of the usual ones to exceptionally large work.

Piers and Trestle for Disposal.

The most rapid and economical handling of all excavated material to scows was made possible by the Tunnel Company procuring from the New York Central and Hudson River Railroad Company the pier at the foot of 32d Street, North River, known in the earlier stages of the work as Pier No. 62, but subsequently changed to Pier No. 72, and thus referred to in this paper. This pier was occupied by a freight-shed used by the New York Central Railroad Company, under a long-term lease from the City, and that Company had to make numerous changes in their tracks and adjoining piers before No. 72 could be turned over; the contract for the excavation, therefore, required the contractor to procure any piers needed previous to and in addition to it. Under this clause of the agreement, the contractor procured one-half of the pier at 35th Street, North River, which was used for the disposal of all material excavated previous to May 22d, 1905, on which date Pier No. 72 was first put in service.

As the type of plant the contractor would elect to use could not be determined, previous to the letting of the contract, a general plan for Pier No. 72 and the trestle approach, suitable for either trains or wagons, was attached to the contract, and the details were worked out afterward. The method adopted was by train, and a two-track approach to the pier was provided. Beginning on the east side of Ninth Avenue, at the south line of 32d Street, at an elevation of 20 ft. below the surface, crossing under Ninth Avenue and to the center line of 32d Street, it rose on a 1.5% grade in open cut to the surface of 32d Street at a point 500 ft. west of Tenth Avenue, from which point it rose above the surface of the street on a timber trestle to Tenth Avenue, which 354 was crossed overhead. West of Tenth Avenue the line changed by a reverse curve to the south sidewalk of 32d Street, and continued on a timber trestle, practically level, to the New York Central Yard tracks near Eleventh Avenue. These tracks and Eleventh Avenue were crossed overhead on a through-truss, steel bridge, and a column-and-girder construction on which the two tracks separated to a distance of 29 ft, between center lines, so as to bring them directly over the posts of special timber bents which spanned the two house tracks of the New York Central south-bound freight shed, which the trestle here paralleled. This position was held to a point 25 ft. west of the east house line of Twelfth Avenue, where, by a system of cross-overs and turn-outs, access was had from either track to six tracks on the pier. Four of these were on upper decks, two on the north and two on the south edge of the pier, at an elevation of 41 ft. above mean high tide, to carry earth and small rock to chutes from which it was dumped into barges. The other two tracks proceeded by a 5.3% grade down the center of the pier to the lower deck where, at a distance of 540 ft. from the bulkhead, and beyond the upper deck construction, they diverged into six, two on the north and two on the south edge of the pier for standing tracks to serve derricks, and two down the center for shifting purposes. A siding to the north of the two running tracks just west of the bottom of the incline served a bank of eight electric telphers. The arrangement of the pier is shown by Fig. 4.

[355] Fig. 4.
Figure 4 thumbnail
PLANT FOR DISPOSAL OF EXCAVATED MATERIALS
PIER NO. 72 N.R.

The trestle east of the steel structure at Eleventh Avenue had simple four-post bents, as shown by Bent "A," on Fig. 5, all posts being vertical, to save room at the street level; the outside posts and the caps and sills were of 12 by 12-in. timber; the intermediate posts were of 8 by 12-in. timber; and single or double decks of 3 by 8-in. bracing were used, depending on the height of the bents. These bents were framed on the ground in position and raised by hand. West of Tenth Avenue, the sills of the bents rested on four 12 by 12-in. longitudinal timbers, each spanning two bays and breaking joints, for convenience in supporting the trestle while the tunnels were constructed in open cut beneath. These bents were placed 12 ft. on centers, with one 8 by 16-in. stringer under each rail, and one 6 by 16-in. jack-stringer supporting the overhang of the floor on either side.

[357] Fig. 5.
Figure 5 thumbnail
DETAIL OF BENTS FOR MATERIAL TRESTLE

The bents along the New York Central freight shed had but two posts of 12 by 14-in. yellow pine varying from 26 ft, to 31 ft. 9 in. 356 from center to center; they had double caps of 12 by 14-in. yellow pine on edge, no bottom sills or bracing, and the vibration and wind pressure were taken care of by the top bracing and anchorage, as shown by Bent "G," on Fig. 6.

[359] Fig. 6.
Figure 6 thumbnail
DETAIL OF BENTS FOR MATERIAL TRESTLE.

The method of erection was as follows: An excavation was made on the line of each post, 4 ft. deep and from 4 to 5 ft. square, depending on whether it was for a single or reinforced post; 6 in. of concrete was placed in the bottom, and on this were laid, at right angles to the center of the trench, three 8 by 12-in. timbers varying in length with the excavation from 3 to 4 ft. To these timbers was drifted one 12 by 12-in. timber of the same length as those in the bottom row, but at right angles to them. Elevations were then taken on top of the 12 by 12-in. timber, and the bent was framed complete and of correct height. The framing was done south of the line of the trestle and west of the freight-house. The framed bents were picked up by a small two-boom traveler carrying two double-drum, electric, hoisting engines, and run forward into position. A hole had previously been made in the metal gutter and canopy of the freight-house, by an experienced roofer, and in the freight platform underneath, and, as soon as the bent had been dropped into position, it was firmly drifted to the foot-blocks, previously described, and the excavation made for them was filled with concrete well rammed about the blocks and rounded off 6 in. above the surface of the ground. Secure flashings, in two sections, were then made about the posts to cover the holes made in the gutter and roof, the bottom sections being firmly soldered to the roof or gutter, and the top sections, which lapped over the bottom and cleared them 2 in. in all directions, were firmly nailed to the posts and the joints leaded. This arrangement allowed the bents to move slightly, and at the same time made the roof and gutter water-tight. These bents were placed 16 ft. on centers to correspond with the spacing of the doors of the freight shed.

Under the cross-overs near Eleventh Avenue, where the tracks had to be supported in different positions on the caps, and could no longer be kept over the posts, the caps were trussed and the posts were reinforced, as shown on Bents "J," "H," and "K," Fig. 5.

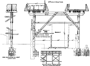
The trusses for the through bridge over the tracks were erected on Sunday, April 16th. The two trusses, one 122 ft. and the other 165 ft. 8 in. from center to center of end posts, had been assembled 358 and riveted, lying flat on cribwork a few feet above the ground, south of the permanent position and between the New York Central tracks and Eleventh Avenue. On the date stated, the contractor, having been given permission to block the Central's tracks from 5 a.m. to 9 p.m., erected a large steel gin pole just south of the correct position of the center of the north truss, which was then dragged, from the place where it had been assembled, across the railroad tracks until the center of the bottom chord was vertically under its true position, the truss still lying flat and about at right angles to the center line of the bridge. Chains were made fast to the top chord at the middle panel of the truss, which was then turned up to a vertical plane, raised to its permanent position, and guyed. The gin pole was then shifted and the operation repeated with the longer truss, after which, half of the floor beams and a part of the top laterals were bolted in position and the guys were removed, the bridge being thus erected without the use of falsework of any kind. During the lifting there was no sag in either truss that could be noticed by the eye. Fig. 1, Plate LV, shows the bridge erected, with the exception of the tight timber fence.

Pier No. 72 is directly over the North River Tunnels. When it was turned over by the New York Central Railroad Company, the contractor for the construction of those tunnels tore down the shed and removed the deck and such piles as were in the path of the tubes. This left standing the four northernmost, the four southernmost and two centers rows of piles for the entire length of the pier. An additional row of piles was then driven on either side of the two center rows, and battered so that at the elevation of the tunnels they would be close to the center rows and leave as much clear space as possible. The pier, therefore, was constructed of three independent lines of four-post bents, which, however, rested on sills which were continuous throughout the width of the pier, as shown by Figs. 2 and 3, Plate LV.

[opp. 360] Plate LV.
plate LV, top
Fig. 1.—Material Trestle Over N. Y. C. & H. R. R. R. Co.'s Tracks.
plate LV, middle
Fig. 2.—Material Trestle Under Construction on Pier No. 72, North River,
Showing Clear Water Over Tunnel Location.

plate LV, bottom
Fig. 3.—Pier No. 72, North River,
Showing Incline as Reconstructed For Locomotives.

The bents for the upper floors of the pier were double-decked, with 12 by 12-in. posts, sills, intermediate and top caps, and 3 by 8-in. longitudinal and cross-bracing. The bents for the incline were similar, except that those below 16 ft. in height were of single-deck construction. The spacing of the bents varied from 9 ft. 6 in. to 12 ft., except the three outer bays, which had a span of 23 ft., all to agree with the position of the pile bents. The double-deck construction extended for 360 the full length of the original pier. A single-deck extension, of full width and 180 ft. in length, was subsequently built for the accommodation of four derricks for handling building material and large rock. The piles for this extension were driven in three sets of four rows each, similar to those in the old portion of the pier, except that the bents were driven with a uniform spacing of 15 ft. between centers. The three sets of bents were topped separately with 12 by 12-in. caps and 12 by 12-in. dock stringers; they were braced with both cross and longitudinal low-water bracing, and were tied together by a continuous 12 by 12-in. timber over the dock stringers and 12 by 12-in. packing pieces from stringer to stringer, each of these ties being supported in the center of the span over the tunnels by two 2-in. hog rods, Section "A-A," Fig. 4.

The south side of the upper deck of the pier carried three sets of nine hoppers, each set covering 90 ft., a little less than the full length between bulkheads of the largest deck scows, with 70 ft. clear between sets, to allow for the length of a scow outside of the bulkhead and to permit the free movement of boats. Each hopper occupied the full space between two bents, and, as the caps were topped by strips of timber of triangular section, with a width of 12 in. on the base and a height of 6 in., protected by a 6 by 6-in. steel angle, each set of hoppers presented 90 lin. ft. of continuous dumping room. The bottoms of the hoppers, set at an angle of 45°, were formed by 12 by 12-in. timbers laid longitudinally, running continuously throughout each set, and covered by 3-in. planking. The partitions were formed with 4-in. planks securely spiked to uprights from the floor of the hoppers to the caps; these partitions narrowed toward the front and bottom so as to fit inside the chutes. Each hopper was lined on the bottom and sides with ½-in. steel plates, and the bottoms were subsequently armored with 2 by 1-in. square bars laid 3 in. on centers and bolted through the 12 by 12-in. flooring of the hoppers. The chutes, extending from the bottom of the hoppers, were 20 ft. long and 7 ft. wide, in the clear; they were formed entirely of steel plates, channels, and angles, and were supported from the upper deck of the pier by chains; their lower ends were 17 ft. above mean high tide and 14 ft. 6 in. from the string piece of the pier. The hoppers and chutes are shown by Fig. 1, Plate LVI.

[opp. 362] Plate LVI.
plate LVI top
Fig. 1.—Material Trestle, Showing First Chutes in Operation.
plate LVI middle
Fig. 2.—East Pit, Steam Shovel Loading Excavated Material on Car.
plate LVI bottom
Fig. 3.—West Pit, Showing Condition on June 28th, 1905.

A length of 150 ft. of the north side of the pier was for the use of the contractor for the North River tunnels; it was equipped with a set 361 of nine chutes similar to those for the south side; they were used but little, and were finally removed to make room for a cableway for unloading sand and crushed stone.

At the foot of the incline there was a bank of eight telphers running on rails securely bolted to the tops of 20-in. I-beams, which were hung from stringers resting on the upper caps. The beams were erected in pairs, each pair being securely braced together and to the trestle posts to prevent swaying. Each telpher occupied the space between two bents, about 10 ft., so that the entire bank commanded a length of 80 ft., which was approximately the length of a rock scow between bulkheads. All supports for the telphers were provided as a part of the trestle, but the machines themselves were a part of the contractor's plant.

Four derricks were erected on the extension, two on the north and two on the south edge of the pier, supported on bents at a sufficient elevation above the floor to clear a locomotive.

After most of the earth had been excavated, the out-bound set of hoppers on the south side of the pier was removed, and two derricks were erected in their place and used for unloading sand, crushed stone, and other building material.

Plant.

As the use of the 35th Street pier for the disposal of material required that the mode of transportation should be by dump-wagons drawn by horses, the plant in use by the contractor during that period necessarily differed in many respects from what it was later, when Pier No. 72 was available. Therefore, the nature of the plant during each period will be stated. The plant for each period will be divided into five classes:

1.—Central Plant:
(a) Power-Generating Plant.
(b) Repair Shops.

2.—Retaining-Wall Plant.

3.—Pit-Excavating Plant.

4.—Transportation Plant.

5.—Dock Plant.

362
Horse-and-Truck Period: July 11th, 1904, to May 22d, 1905.
1.—Central Plant.

(a).—Power-Generating Plant.—The contractor's first central generating plant was established in a 35 by 85-ft. steel-framed building covered with corrugated iron, the long side being parallel to Ninth Avenue and 15 ft. from the east house line, and the north end 43 ft. south of the south house line of 32d Street. The foundations for the building and machinery were of concrete, resting on bed-rock, the floor being 20 ft. below the level of the Ninth Avenue curb. The south end of the building was the boiler-room and the north end the compressor-room, the two being separated by a partition. Coal was delivered into a large bin, between the boiler-house and Ninth Avenue, its top being level with the street surface, and its base level with the boiler-room floor.

At the end of the horse-and-truck period the plant consisted of:

Two Rand, straight-line compressors, 24 by 30 in., having a capacity of 1,400 cu. ft. of free air per min. when operating at 86 rev. per min. and compressing to 80 lb. above atmospheric pressure.

One 10 by 6 by 10-in., Worthington, steam, plunger pump.

Three horizontal boilers of the locomotive type, each of 125 h.p.

(b).—Repair Shops.—The repair shops, which included blacksmith, machine and carpenter shops, were located on the first floor of a 40 by 70-ft. two-story frame structure, which was in the pit on the north side of 31st Street, 48 ft. east of Ninth Avenue. The second floor was on the street level, and was used as a storehouse for hand-tools and small plant.

The blacksmith shop contained: Four forges with hand blowers, four anvils, and hand-tools.

The machine shop contained: One drill press, one shaper (14-in. stroke), one 18-in. swing lathe, and one 6-in. bed lathe.

The carpenter shop contained: One circular saw, one wood lathe, and hand-tools.

The plant in both machine and carpenter shops was operated by one 7½-h.p. General Electric motor, the current for which was obtained from the Edison Electric Heat, Light, and Power Company.

363
2.—Retaining-Wall Plant.

Three cableways, with 35-ft. towers of 12 by 12-in. yellow pine timber capable of spanning 350 ft., and operated by 7 by 10-in. double-drum Lambert hoisting engines mounted with 25-h.p. Lambert upright boilers.

Five stiff-leg derricks, with masts from 35 to 50 ft. long and booms from 45 to 60 ft. long, operated by 7 by 10-in. Lambert double-drum and swinging gear engines, mounted with 25-h.p. upright Lambert boilers.

Six Cameron pumps, varying in size from 7 by 6 by 13 in. to 10 by 8 by 16 in. The first dimension referring to the diameter of the steam cylinder, the second to that of the water, and the third to the stroke.

Five Rand sheeting drivers.

Two Ransome ¾-cu. yd. concrete mixers, mounted on frame, with kerosene driving engine.

Drills drawn from pit plant as required.

3.—Pit-Excavating Plant.

One guy derrick, 50-ft. mast and 45-ft. boom, operated by a Lambert two-drum and swing-gear hoisting engine, with Lambert 25-h.p. upright boiler.

Three stiff-leg derricks, similar to those used on the retaining wall work.

Three Bucyrus, 70-ton steam shovels with 3½-cu. yd. dippers.

One traveling derrick, built with an A-frame of 12 by 12-in. timbers, 15-ft. mast, and 25-ft. boom; the traveler carried an engine and boiler similar to those used on the stiff-leg derricks, and was used on the Seventh and Eighth Avenue sewers, as well as in the pit.

Ten Rand-Ingersoll rock drills, Nos. 1, 3¼, and 4.

One Reliance stone crusher (nominal capacity 17 tons of crushed stone per hour) belt-driven by 50-h.p. engine.

4.—Transportation Plant.

During the whole of the first period the transportation plant consisted of two-horse trucks and snatch teams as needed. The number varied greatly from 25 at the beginning and end of 364 the period to an average of 135 from August 1st to December 1st, 1904, about 10% of the total number of teams being used as snatch teams.

5.—Dock Plant.

The only machinery used on the dock during the horse-and-truck period was one stiff-leg derrick similar in size and operation to those described under the head of retaining-wall plant.

The plant described above does not represent that which was used during the whole of the horse-and-truck period, but what had accumulated at the end of it. The power-generating plant might almost have been omitted from this period, as the first compressor did not begin running until February, 1905. Previous to that time, the power for drilling, pumping, driving, sheeting, etc., was steam furnished by the boilers which subsequently drove the compressors, these being brought on the ground and fired as occasion required.

Train-Disposal Period, Beginning May 22d, 1905.

At the beginning of this period there had been excavated 242,800 cu. yd. of earth and 22,800 cu. yd. of rock, of the total excavation of 803,500 cu. yd. of earth and 804,000 cu. yd. of rock included in the principal contract, leaving to be excavated under that contract 560,000 cu. yd. of earth and 781,200 cu. yd. of rock, and an additional contract had been let to the New York Contracting Company for the terminal power station, which increased the earth by 16,500 and the rock by 15,500 cu. yd. During the year following, contracts for the east and west portions and the sub-structures were let, which brought the total to be excavated, after the beginning of the train-disposal period, up to 681,000 cu. yd. of earth and 1,494,000 cu. yd. of rock.

The central plant, transportation plant, and dock plant were used indiscriminately on all these contracts, and, as no separation can be made which will hold good for any appreciable length of time, the plant in those classes will be stated in total. The retaining-wall and pit plant here given include that used on the principal contract and terminal power station only. The power-generating plant given under the horse-and-truck period was doubled at the beginning of the train-disposal period, but it was still insufficient for the work then under contract, and the additional contracts necessitated a greater increase. The location had also to be changed to permit the excavation of the rock under Ninth Avenue. The old stone church fronting on 34th 365 Street, between Seventh and Eighth Avenues, a building 68 ft. wide and 92 ft. long, made a roomy and very acceptable compressor-house. The wooden floors and galleries were removed, and good concrete foundations were put in, on which to set the plant; the walls, which were cracked in several places, were trussed apart and prevented from moving outward by cables passed about the pilasters between the windows.

The boilers were erected south of the church, an ash-pit being first built, the full width of it, with the floor on a level with the basement. The rear wall of the church formed the north wall of the ash-pit, and the south wall and the ends were built of concrete. The boilers were set with the fire-doors toward the rear wall of the building, and 7 ft. distant from it, and above this fire-room and the boilers there was erected a coal-bin of 500 tons capacity. The rear wall of the compressor-house formed the north wall of the bin, the section of which was an isosceles right-angled triangle. Coal was delivered by dumping wagons into a large vault constructed under the sidewalk on 34th Street, and was taken from there to the bin by a belt conveyor.

The plant for the second period was as follows:

1.—Central Plant.

(a).—Power-Generating Plant.—The plant in the engine-room consisted of:

Three Rand straight-line compressors from the original power plant at Ninth Avenue and 32d Street.

One Ingersoll straight-line compressor from the old power-house.

One Rand duplex Corliss, 40 by 48-in. air-compressor, with both air and steam cylinders cross-compounded, and a capacity of 5,600 cu. ft. of free air per min. compressed to 80 lb. at 70 rev. per min.

Three Rand duplex, 30 by 30-in., compressors, connected with 525-h.p., 6,600-volt, General Electric motors, with a capacity of 3,000 cu. ft. of free air per min. compressed to 80 lb. at 125 rev. per min.

Two 10 by 6 by 10-in. Worthington steam plunger pumps.

One 7½-h.p. General Electric motor for driving the Robbins belt coal conveyor.

One forced-draft fan (built by the Buffalo Forge and Blower Company), driven by an 8 by 10-in. Buffalo engine.

366 In the boiler-room there were three 500-h.p. Sterling water-tube boilers.

(b).—Repair Shops.—The repair shops remained in their old location until sufficient room had been excavated to sub-grade in the lot east of Eighth Avenue, and then they were moved to the old Ninth Avenue power-house which had been erected at that point. The contents of the blacksmith shop remained the same as for the first period. The equipment of the machine shop was increased by one 18-ton trip-hammer operated by air and one bolt-cutting machine, size 1 in. to 1½ in. The carpenter shop remained the same except that the electric motor was replaced by a 25-h.p. single-cylinder air motor; there was added to the repair shop a drill shop containing: Four forges with compressed air blowers, four anvils, two Ajax 20-ft. drill sharpeners, and one oil blower forge.

2.—Retaining-Wall Plant.

The retaining-wall plant was identical with that described for the first period, with the addition of two Ransome 1-cu. yd., concrete mixers, with vertical engines mounted on the same frame, using compressed air.

3.—Pit-Excavating Plant.

The pit-excavating plant included that listed for the first period and, in addition, the following:

One Vulcan, 30-ton, steam shovel, with 1-cu. yd. dipper and a vertical boiler.

One Ohio, 30-ton, steam shovel, with 1-cu. yd. dipper and a vertical boiler.

Four guy derricks (50 to 80-ft. masts and 45 to 60-ft. booms), operated by Lambert 7 by 10-in. engines, with two drums and swinging gear, mounted with 25-h.p. vertical boilers, but driven by compressed air.

Seventy Ingersoll-Rand rock drills, Nos. 1, 3¼, and 4.

Two Rand quarry bars, cutting 10 ft. in length at one set-up, and mounted with No. 4 drill using a Z-bit.

4.—Transportation Plant.

Twenty-one H. K. Porter locomotives, 10 by 16-in., and 36-in. gauge.

Three Davenport locomotives, 9 by 16-in., and 36-in. gauge.

367 One hundred and forty Western dump-cars, each of 4 cu. yd. capacity.

One hundred and sixty-five flat cars, with iron skips, each of 4 cu. yd. capacity.

5.—Dock Plant.

Four stiff-leg derricks on extension, having 35-ft. masts and 40-ft. booms, and each operated by a 60-h.p. Lambert, three-drum, electric, hoisting engine.

One stiff-leg derrick, on the south side of the pier on the upper deck, with a 28-ft. mast operated by a three-drum Lambert engine and a 25-h.p. vertical boiler.

One stiff-leg derrick, on the north side of the dock on the upper deck, used exclusively for bringing in brick, electric conduit, pipe, and other building material, operated when first erected by a three-drum, steam-driven, Lambert, hoisting engine. This engine was later changed to the derrick on the south side of the dock, and a motor-driven Lambert engine from that derrick was substituted.

Eight electric telphers.

Ninth Avenue Twin-Tunnels Plant.

One stiff-leg derrick, previously used in retaining-wall work.

One Smith concrete mixer, 1 cu. yd. capacity, driven by attached air engine.

Two cableways taken from the retaining-wall plant and used for mucking out the tunnels after the center pier had been built; driven by air supplied to the original engine.

One Robbins belt conveyor, driven by a 30-h.p. engine run by air.

Three 1-cu. yd. Hopple dump-cars.

Construction.

Ground was broken for work under the principal contract on July 9th, 1904, on which date the contractor began cutting asphalt for Trench No. 1 in 31st Street, and also began making a roadway from Ninth Avenue into the pit just south of 32d Street.

Excavation for Retaining Walls.—Two essentially different methods were used in excavating for and building the retaining walls; one, construction in trench, the other, construction on bench. In general, the trench method was used wherever the rock on which the wall 368 was to be founded was 12 ft. or more below the surface of the street; or, what is perhaps a more exact statement, as it includes the determining factor, where the buildings adjoining the wall location were not founded on rock.

In the trench method the base of the wall was staked out on the surface of the ground, the required width being determined by the elevation of the rock, as shown by the borings. The contractor then added as much width as he desired for sheeting and working space, and excavated to a depth of about 5 ft. before setting any timber. In some cases the depth of 5 ft. was excavated before the cableway or derrick for the excavation was erected, the wagons being driven directly into the excavation and loaded by hand, but, usually, the cableway was first erected, and buckets were used from the start. After the first 5 ft. had been excavated, two sets of rangers and struts were set, the first in the bottom of the excavation and the second at the level of the street surface, supported by posts resting on the bottom rangers. The sheeting was then set, and all voids back of it were filled with clean earth and well tamped. The toe of the sheeting was kept level with the bottom of the excavation until the ground-water was reached, after which it was kept from 3 to 5 ft. ahead of the digging.

The sheeting used was 3-in., in variable widths; it was always tongued and grooved on the side of the trench next to the buildings and in the deeper excavations on both sides of the trench, and was driven by wooden mauls above the ground-water level, but steam sheeting-drivers were used below that elevation. Struts, rangers, and posts were generally 12 by 12-in.

Some exceedingly bad material was encountered in the deeper excavations, beds of quicksand being passed through, varying in thickness from 1 to 18 ft., the latter, in 31st Street between Seventh and Eighth Avenues, in the deepest excavation made. After encountering the fine sand in that trench, no headway was made until a tight wooden cylinder was sunk through the sand by excavating the material inside of it and heavily weighting the shell with pig iron. When this cylinder had reached the gravel, which lay below the sand, it was used as a sump, and the water level was kept below the bottom of the excavation, which permitted good progress. Sand continued to flow under the sheeting to such an extent, however, that the front walls of 369 four adjoining buildings were badly cracked and had to be taken down and rebuilt. All the stoops along this trench settled, and had to be repaired.

The bench method of excavating for the retaining wall was very simple, and was used only where the rock lay near the surface and the adjoining buildings were founded on it, the overlying material being in such case dry, and consequently firm, little or no shoring was required. The method was to extend the pit excavation to a width of 2 or 3 ft. beyond the proposed back of the retaining wall, and to carry that width down to the depth required for its base, below which the excavation was narrowed to 1 ft. inside of the face of the wall and continued either before it was built or subsequently.

Retaining-Wall Construction.—The concrete walls were built in sections 50 ft. in length, except where that spacing would bring an expansion joint under a girder pocket or just on line with a tier of struts, in which cases the section was shortened as required. Trenches were never allowed to remain open at the full depth, the concreting being started as soon after the necessary length of rock had been uncovered as the forms and preliminary work for a section could be prepared. Each section was a monolith, except in a few cases where very heavy rains made it impossible to hold the laborers.

The various operations in building the concrete wall are shown on Fig. 7. Guide-planks, "a a," Section "A-A," were securely spiked to alternate tiers of struts for the length of the section, the face of each guide-plank being set on line with the intended face of the concrete wall, and 2-in. tongued-and-grooved spruce plank were laid along the guide-plank to the height of the bottom strut and securely braced from the front sheeting. A 4-in. brick wall was built simultaneously on line with the back of the wall to the height of the first step. Where the bottom strut was below that elevation, the brickwork was left low at that immediate point and built up when the strut was removed. The brick wall was then water-proofed on the side toward the concrete, and loose laps of the water-proofing were allowed to hang over the brickwork and at least 8 in. down the back. A 6-in. vitrified pipe drain was then laid along the surface of the rock just outside of the brick wall, the joints in the pipe being caulked with oakum saturated in cement, and pointed with cement mortar above a line 1 in. below the horizontal diameter, the remainder of each joint being left open. Cross-drains 370 were laid from tees in the back drain to the face of the wall at all low points in the rock and at least for every 25 ft. of wall length, the joints of these discharge pipes being caulked and cemented throughout. The surface of the rock was then washed and scraped clean, and was covered with about 1 in. of mortar, after which the section was ready for concrete.

[371]

Fig. 7.
Figure 7 thumbnail
SKETCH SHOWING FORMS FOR, AND METHOD OF,
CONCRETING RETAINING WALLS IN TRENCH.

The building of monolithic sections in trenches required that the thrust from one set of struts be taken by the concrete before the set above could be removed, and necessarily caused slow progress, the rate at which concrete was deposited being just sufficient to prevent one layer from setting before the next layer above could be placed.

The concrete used was mixed in the proportions of 1 part of cement to 3 parts of sand and 6 parts of stone, in 2-bag batches, in ¾-yd. and 1-yd. Ransome portable mixers mounted with air-driven engines on the same frame. These mixers were placed at the surface, and were charged with barrows, the correct quantities of sand and stone for each batch being measured in rectangular boxes previous to loading the barrows. The concrete was discharged from the mixer into a hopper which divided into two chutes, only one of which was used at a time, the concrete being shoveled from the bottom of the chutes to its final position. Facing mortar, 2 in. thick, was deposited simultaneously with the concrete, and was kept separate from it by a steel diaphragm until both were in place, when the diaphragm was removed and the two were spaded together. The bottoms of the guide-planks were cut off just above the concrete as it progressed, and, as soon as the wall had reached a strut at one end of the section, that strut was removed, the form was built up to the next strut, at front and back, and braced to the sheeting, so that, by the time the entire length of the section had been carried up to the level of the first line of struts, forms were ready at one end for the succeeding layers. The layers of concrete never exceeded 8 in. in height, and at times there were slight delays in the concreting while the carpenters made ready the next lift of forms, but such delays were rarely long enough to permit the concrete to take its initial set.

After a section of concrete had firmly set, both back and front forms were removed, and the thrust from the sides of the trench was transferred directly to the finished wall. The face of the wall was rubbed with a cement brick to remove the marks of the plank, and 372 was then coated with a wash of thin cement grout. The water-proofing and brick armor were then continued up the back of the wall, the spaces between the lines of braces being first water-proofed and bricked, and the braces transferred to the finished surface, after which the omitted panels were completed. The water-proofing consisted of three layers of Hydrex felt, of a brand known as Pennsylvania Special, and four layers of coal-tar pitch. The pitch contained not less than 25% of carbon, softened at 60° Fahr., and melted at a point between 96° and 106° Fahr. The melting point was determined by placing 1 gramme of pitch on a lead disk over a hole, 5/16-in. in diameter, and immersed in water which was heated at the rate of 1° per min.; the temperature of the water at the time the pitch ran through the hole was considered as the melting point.

In order to prevent the water-proofing from being torn at the joint between sections when they contract from changes in temperature, a vertical strip of felt, 6 in. wide, was pitched over each joint, lapping 3 in. on each concrete section. The back of this strip was not pitched, but was covered with pulverized soapstone, so that the water-proofing sheet was free from the wall for a distance of 3 in. on either side of each joint.

Concreting was continued during the severest weather, one section being placed when the thermometer was 5° above zero. When the thermometer was below the freezing point both sand and stone were heated by wood fires in large pipes under the supply piles; the temperature of the mix was taken frequently, and was kept above 40 degrees. Numerous tests made while the work was in progress showed that, while the temperature fell slightly soon after the concrete was deposited, it was always from 2° to 5° higher at the end of 2 hours. The face and back of the concrete were prevented from freezing by a liberal packing of salt hay just outside the forms.

A vertical hog trough, 24 in. wide and 9 in. deep, was placed in one end of each section, for its full height below the bridge seat, into which the next section keyed, and, when the temperature at the time of concreting was below 50° Fahr., a compression joint was formed by placing a strip of heavy deadening felt, 2 ft. wide, on the end of the completed section next to the face and covering the remainder of the end with two ply of the felt and pitch water-proofing; the one ply of deadening felt near the face was about the same thickness as the 373 two ply of water-proofing, and was used to prevent the pitch from being squeezed out of the joint to the face of the wall.

The excavation for the retaining walls in 31st and 33d Streets were in all cases made of sufficient width to receive the sewers, which were laid as soon as the back-fill, carefully rammed and puddled, had reached the proper elevations; the back-filling was then completed, and the gas and water mains were afterward laid in separate trenches.

The sections of concrete built in trench varied in height from 13 to 59 ft. from the base to the top of the back wall. With the exception of the Seventh Avenue wall, 50 ft. in height, and the Ninth Avenue wall, 62 ft. in height, none of those sections constructed by the bench method was more than 14 ft. The forms and bracing for these walls were substantially the same, except that the low walls were built in lengths of approximately 50 ft., while the forms for the Seventh and Ninth Avenue walls were only 20 ft. long.

The forms and bracing for the Ninth Avenue walls are shown on Fig. 8. These forms were built in one piece and moved ahead from section to section, and they were firmly braced from the bottom with raker braces to a point 36 ft. above the base, the upper part being held in place by ¾-in. bolts passed through the forms and anchored by cables to bolts grouted into the rock behind.

Fig. 8.
SKETCH SHOWING FORMS AND BRACING FOR NINTH AVENUE WALL

374 After the forms had been set and braced, an 8-in. brick wall was laid up the face of the rock, containing a vertical line of three-cell hollow tile block every 5 ft. of length, and laid to conform as nearly as possible to the face of the rock, all voids being filled with broken stone. Water-proofing, similar to that described for the walls in the trench, was then applied to the brick and tile wall for the full height, and firmly braced to the front forms, the braces being removed as the concrete reached them. The concrete was mixed at the street level and deposited through chutes, as described previously.

Tables 1, 2, and 3 show the quantity of cement used in each section of retaining wall, and give figures by which the quantities of other materials may be determined.

Pit Excavation.—The pit excavation during the horse-and-truck period was largely preparatory work done to get the excavation in good shape for handling spoil trains after Pier No. 72 and the trestle approach were finished. This required an open cut from Ninth to Seventh Avenues at a sufficient depth below the sewers and other substructures in the avenues to clear a locomotive, and wide enough for both running and loading tracks, also the building of the cast-iron sewer in Eighth Avenue across the entire excavation, with enough of the temporary bridging to support it. The building of the trestle in Eighth Avenue was essentially a part of the pit excavation, as the progress of one depended greatly on that of the other.

Excavation was commenced on July 12th, 1904, for the crossing under Ninth Avenue, and in the pit east of Ninth Avenue along 32d Street. The line chosen for the opening cut was down the center of the pit, as it was not safe to excavate near the bounding streets until after the completion of the enclosing retaining wall. The excavation was started by hand, but three 70-ton Bucyrus steam shovels were put to work as soon as they could be delivered, the first on July 25th and the third on September 12th. The excavated material was loaded by the shovels on end-dump wagons, each having a capacity of 2 cu. yd., and was conveyed in them to the dumping board at 35th Street. The average number of teams was 135, 10% being snatch teams to pull the wagons out of the pit and to assist them up the runway at the dumping board. The teams averaged only seven trips per day of 10 hours, considerable delay being caused by the trains of the New York Central Railroad at Eleventh Avenue. The number of teams 375 was not sufficient, therefore, to keep the three shovels busy when they were all in good digging, but the dumping board was taxed to accommodate that number, and little would have been gained by increasing it. The digging was very good during this period, practically no rock being encountered, and the building foundations were too light to present any obstacle to such powerful shovels. The capacity of their dippers was 3½ cu. yd., so that one dipperful meant one truck loaded and running over. The output from August to November, inclusive, averaged 40,000 cu. yd. per month; one shift only was worked per day, and although the quantity was not large for three such powerful shovels, it was large to truck through the streets, and required that one team pass a given point every 18 sec. At the end of November the opening up of the pit had been accomplished, considerable rock had been stripped near Ninth Avenue, and the streets had become so icy that the cost of transportation was practically doubled; work in the pit, therefore, was much curtailed, and amounted to continuous work for one shovel from that time until the end of the period, May 22d, 1905, when Pier No. 72 was put in service and transportation by train began. Figs. 2 and 3, Plate LVI, show the condition of the pit east and west of Eighth Avenue, respectively, on that date.

The work of excavating for and building the temporary street bridge, a typical bent and bracing for which are shown on Fig. 9, and the cast-iron sewer and water mains in Eighth Avenue, was commenced 376 on September 3d, 1904. The trestle was a double-decked structure of yellow pine, with 10 by 10-in. posts and sills, 10 by 14-in. intermediate and top caps, and 2 by 10-in. longitudinal and cross-braces. The trestle was further stiffened longitudinally by four lines of 8 by 10-in. struts, butted between the intermediate caps, and held in position by 2 by 8-in. splice-plates resting on top of them. The intermediate caps were at an elevation of 15 ft. below the surface of the street, and above that line the longitudinal bracing was continuous, while below it the bents were braced in pairs, the bracing being omitted from every second bay. Below the intermediate cap the bents were uniform for the entire width of the trestle, but the top cap was not continuous, being 5 ft. below the surface under the trolley tracks, and only 18 in., the depth of stringers and planking, beyond. The stringers under the trolley tracks were 8 by 16-in. yellow pine, spaced three to a track, and those for the driveway were 6 by 14-in., spaced 1 ft. 6 in. on centers, the planking being 4-in. yellow pine.

Fig. 9.
Figure 9
SKETCH SHOWING TYPICAL BENT OF TRESTLE SUPPORTING EIGHTH AVENUE

The first step in the construction was to excavate a trench 15 ft. wide on the west side of the street, the east side of the trench being 4 ft. west of the westernmost trolley rail. While this work was in progress, all vehicular traffic was turned to that part of the avenue east of the westerly trolley rail. The trench was sheeted and timbered, and carried to a depth sufficient to receive the intermediate cap. That portion of the bent from the bottom of the intermediate cap to the bottom of the top cap was then erected for the width of the trench, after which the 60-in. cast-iron sewer and the 48-in. water main were laid in position and caulked. The top cap, stringers, and planking were then laid, for the full width of the trestle west of the trolley tracks. This work was finished and the sewage turned into the new sewer in April, 1905.

As the planking was laid west of the trolley tracks, traffic was turned to that side of the street, and the material east of the tracks was excavated to its natural slope. Trenches were then dug under the tracks on the line of the bents, and the caps were set in position on blocking. The material between these trenches was then removed, the tracks being supported meanwhile by blocking at least every 6 ft., and the stringers and planking were shoved into place. Excavation was next made between the caps to a depth of about 5 ft. below them, needle-beams being placed under the caps, one or two at a time, and 377 supported on posts erected in these excavations; the material on line of the bents was excavated to the depth of the intermediate caps, which were then set, together with the posts and bracing for the upper deck of the structure. This operation was repeated for the lower deck, about 10 ft. being gained for each change of posts, and three shifts, therefore, were required.

At the beginning of the train-transportation period, May 22d, 1905, two shifts of 10 hours each were inaugurated, and the earth was handled at the rate of from 85,000 to 90,000 cu. yd. per month; but, by the end of August, when a little more than 60% of the total earth had been disposed of, the rock began to interfere very greatly with the progress. The strike of the rock was almost directly north and south, and its surface formed broken ridges running in that direction, with deep valleys between. The dip was almost vertical near Ninth Avenue, and about 70° toward the west near Seventh Avenue. This condition made it necessary to turn the shovels parallel to the ridges in order to strip the rock for drilling; and, as the ridges were very broken, the shovels continued to bump into them on all occasions, making it necessary to move back and start other cuts or stand and wait for the rock to be drilled and blasted. One small Vulcan steam shovel, with vertical boiler and ¾-cu. yd. dipper, had been brought on the work to be used in stripping rock, and was moved from place to place so much more easily than the large ones that an Ohio shovel of the same general type was purchased in October, and thereafter the stripping was done largely by the two small shovels and by hand, the large shovels being used almost exclusively in handling rock.

The drilling necessary to remove the rock was very large in amount and also per yard excavated. In order not to damage the retaining walls and the rock underlying them, holes spaced at 5-in. centers were drilled 1 ft. away from the face of the walls and on the same batter. These breaking holes alone amounted to a total of 210,000 lin. ft., or 1 ft. of hole for each 3½ cu. yd. of rock excavated; and the regulations of the Bureau of Combustibles, which prevented springing, caused the blasting holes to be placed very close together and required a total of about 420,000 lin. ft., making 630,000 ft. If to this is added the block holes, for some of the rock broke very large, it will show at least 1 ft. of drill hole for each cubic yard of rock excavated, about ten times the average on general railroad work.


Transcriber's Note:
The three numbered Tables were originally printed sideways, with the top of each table on the right. For Tables 1 and 2, page numbers are therefore out of sequence. Readers who have trouble with the numerals should try their browser's "larger font" or "text zoom" feature.
379
TABLE 1.—Record of Retaining-Wall Sections, Terminal Station.
West Thirty-first Street from Seventh Avenue to Ninth Avenue.
(1) Section No. (8) Cubic yards of embedded stone.
(2) Stations. (9) Cubic yards of concrete in section (net).
(3) Contents of section, in cubic yards. (10) Barrels of cement used in concrete.
(4) Barrels of cement used for facing. (11) Barrels of cement per cubic yard of concrete.
(5) Cubic yards of facing mortar equivalent. (12) Concrete started.
(6) Barrels of cement used for bed mortar. (13) Concrete finished.
(7) Cubic yards of bed mortar equivalent.
(1) (2) (3) (4) (5) (6) (7) (8) (9) (10) (11) (12) (13)
1 {165 + 05.8}
{165 + 66.0}
617.48 17.50 5.95 ... ... ... 611.53 731.50 1.20 11/4/04 11/20/04
2 {165 + 66.0}
{165 + 95.4}
233.96 10.25 3.49 ... ... ... 230.47 277.25 1.20 11/21/04 11/27/04
3 {165 + 95.4}
{166 + 41.2}
355.20 24.50 8.34 ... ... ... 346.86 398.25 1.15 11/26/04 12/3/04
4 {171 + 03.4}
{171 + 53.4}
309.29 67.50 23.00 ... ... ... 286.29 360.50 1.26 12/2/04 12/10/04
5 {177 + 44.0}
{177 + 94.0}
109.62 30.25 10.30 ... ... ... 99.32 120.75 1.22 12/28/04 12/30/04
6 {171 + 53.4}
{171 + 83.0}
246.35 27.75 9.44 ... ... ... 236.91 292.50 1.23 1/2/05 1/11/05
7 {166 + 41.2}
{166 + 79.0}
644.12 77.50 26.37 ... ... ... 617.75 737.00 1.19 1/13/05 2/4/05
8 {171 + 83.0}
{172 + 12.0}
394.43 63.75 21.69 ... ... ... 372.74 420.75 1.13 1/14/05 1/28/05
9 {166 + 79.0}
{167 + 20.5}
974.58 103.75 35.30 2.50 0.85 7.96 930.47 1,066.25 1.14 2/18/05 3/13/05
10 {170 + 16.6}
{170 + 58.6}
767.34 92.50 31.48 2.75 0.94 ... 734.92 852.50 1.16 1/31/05 2/25/05
11 {170 + 58.6}
{171 + 03.4}
599.17 77.00 26.20 10.25 3.49 ... 569.48 689.75 1.21 3/11/05 3/23/05
12 {167 + 20.5}
{167 + 43.9}
535.28 50.50 17.18 2.00 0.68 4.00 513.42 611.75 1.19 3/9/05 3/26/05
13 {175 + 18.5}
{175 + 61.8}
553.04 62.00 21.10 5.25 1.79 ... 530.15 630.50 1.19 3/15/05 3/29/05
14 {177 + 02.9}
{177 + 44.0}
305.12 49.25 16.76 4.50 1.53 ... 286.83 340.25 1.19 3/26/05 3/31/05
15 {175 + 61.8}
{176 + 91.7}
429.88 50.00 17.01 1.50 0.51 ... 412.36 472.50 1.15 3/28/05 4/14/05
16 {176 + 62.5}
{177 + 02.9}
675.64 77.50 26.37 6.25 2.13 ... 647.14 788.00 1.22 4/1/05 4/17/05
17 {174 + 04.5}
{174 + 29.6}
162.98 29.00 9.87 3.50 1.19 ... 151.92 182.50 1.20 5/3/05 5/6/05
18 {175 + 91.7}
{176 + 21.5}
698.88 46.25 15.72 4.50 1.53 15.86 665.77 801.00 1.20 5/9/05 5/19/05
19 {176 + 21.5}
{176 + 62.5}
1,166.79 81.50 27.73 4.00 1.36 34.96 1,102.74 1,354.50 1.23 5/15/05 5/28/05
20 {167 + 43.9}
{167 + 92.6}
975.53 95.75 32.58 3.25 1.11 36.99 904.85 1,012.75 1.12 5/25/05 6/3/05
378 21 {172 + 12.0}
{172 + 45.2}
271.48 31.75 10.80 2.50 0.85 8.65 251.18 311.50 1.24 5/29/05 6/3/05
22 {168 + 41.3}
{168 + 72.6}
316.30 44.00 14.97 5.25 1.79 7.18 292.36 338.75 1.16 6/5/05 6/10/05
23 {173 + 63.6}
{174 + 04.5}
529.33 54.75 18.63 4.75 1.62 1.25 507.83 587.25 1.16 6/5/05 6/13/05
24 {167 + 92.6}
{168 + 41.3}
1,010.64 66.00 22.46 5.50 1.87 10.16 976.15 1,038.75 1.07 6/8/05 6/21/05
25 {173 + 21.2}
{173 + 63.6}
675.21 77.75 26.46 2.50 0.85 12.00 635.90 776.25 1.22 6/16/05 6/24/05
26 {164 + 72.5}
{165 + 05.8}
458.22 40.00 13.61 5.50 1.87 22.37 420.37 532.00 1.26 6/23/05 6/28/05
27 {172 + 81.9}
{173 + 21.2}
409.43 35.00 11.91 9.75 3.31 4.64 389.57 450.00 1.16 6/27/05 7/7/05
28 {164 + 27.6}
{164 + 72.5}
658.46 72.00 24.50 1.50 0.51 16.40 617.05 726.25 1.18 6/29/05 7/7/05
29 {172 + 45.2}
{172 + 81.9}
345.89 30.25 10.29 5.00 1.70 1.62 332.28 384.00 1.16 7/11/05 7/19/05
31 {174 + 78.0}
{175 + 18.5}
507.50 35.75 12.17 3.00 1.02 17.09 477.22 567.50 1.19 7/29/05 8/6/05
32 {174 + 29.6}
{174 + 78.0}
396.99 43.75 14.89 1.75 0.60 6.50 375.00 434.25 1.16 8/5/05 8/12/05
43 {177 + 94.0}
{178 + 44.1}
194.07 30.00 10.21 2.00 0.68 8.35 174.83 219.75 1.26 11/9/05 11/12/05
Pier {168 + 72.6}
{168 + 81.1}
106.52 ... ... ... ... ... 106.52 144.00 1.35 12/6/06 12/8/06
76 {178 + 44.1}
{178 + 94.1}
136.32 12.75 4.34 4.75 1.62 ... 130.36 142.50 1.09 7/8/07 7/10/07
79 {178 + 94.1}
{179 + 44.1}
118.07 9.00 3.06 8.50 1.19 ... 113.82 129.50 1.14 7/15/07 7/16/07
82 {179 + 44.1}
{179 + 93.7}
126.12 6.50 2.21 2.50 0.85 ... 123.06 131.75 1.07 7/22/07 7/23/07
84 {179 + 93.7}
{180 + 44.2}
126.77 6.75 2.30 2.25 0.77 ... 123.70 133.50 1.08 7/26/07 7/27/07
86 {180 + 44.2}
{180 + 93.6}
162.48 8.00 2.72 2.75 0.94 ... 158.82 167.00 1.05 7/30/07 7/31/07
90 {180 + 93.6}
{181 + 17.9}
92.52 4.00 1.36 1.00 0.34 ... 90.82 115.00 1.27 8/18/08 8/18/08

Note.—The number of cubic yards of crushed stone used in any section can be found by multiplying the figure for that section in Column 10 by 0.7778.

The number of cubic yards of sand used in any section can be found by multiplying: the sum of the figures for that section in Columns 4, 6, and 10 by 0.3889.

Remarks.—Section No. 4. Amount of sand cut down on a part of this section on account of dust in stone.

Section No. 8. O'Rourke stone used on this section, large and full of dust.

Section No. 9. Stone crushed on the work used on this section, large and full of dust.

Section No. 21. 1:3:5 mix was used in part of this section on account of stone being large.

Section No. 24. Different sized stone was shipped on barge and mixed on the board for this section.

Section No. 25. 1:3:5 mix used in a small part of this section on account of stone being large.

Sections Nos. 76, 82, 84, and 86. Stone contained large amount of dust.


381
TABLE 2.—Record of Retaining-wall Sections, Terminal Station.
West Thirty-third Street from Seventh Avenue to Ninth Avenue.
(1) Section No. (8) Cubic yards of embedded stone.
(2) Stations. (9) Cubic yards of concrete in section (net).
(3) Contents of section, in cubic yards. (10) Barrels of cement used in concrete.
(4) Barrels of cement used for facing. (11) Barrels of cement per cubic yard of concrete.
(5) Cubic yards of facing mortar equivalent. (12) Concrete started.
(6) Barrels of cement used for bed mortar. (13) Concrete finished.
(7) Cubic yards of bed mortar equivalent.
(1) (2) (3) (4) (5) (6) (7) (8) (9) (10) (11) (12) (13)
30 {170 + 73.2}
{171 + 16.1}
364.72 42.50 14.46 4.00 1.36 ... 348.90 391.00 1.12 7/20/05 7/26/05
33 {178 + 48.7}
{178 + 84.1}
180.40 29.50 10.04 3.50 1.19 ... 169.17 188.00 1.11 8/7/05 8/11/05
34 {R 2 + 75.5}
{170 + 03.5}
214.12 38.00 12.93 1.00 0.34 1.50 199.35 217.25 1.09 8/14/05 8/19/05
35 {171 + 16.1}
{171 + 42.5}
381.56 40.25 13.70 1.00 0.34 14.37 353.15 400.25 1.13 8/16/05 8/22/05
36 {170 + 03.6}
{170 + 25.0}
150.16 20.50 6.98 ... ... 6.25 136.93 133.75 0.98 8/19/05 8/22/05
37 {171 + 42.5}
{171 + 91.3}
869.40 59.50 20.25 4.50 1.53 44.96 802.66 909.00 1.13 8/22/05 9/6/05
38 {171 + 91.3}
{172 + 19.2}
233.49 22.75 7.74 2.75 0.94 14.45 210.36 238.50 1.13 8/24/05 8/27/05
39 {179 + 27.2}
{179 + 64.2}
255.39 32.00 10.89 3.00 1.02 9.05 234.43 270.25 1.15 8/29/05 9/2/05
40 {170 + 25.0}
{170 + 73.2}
500.73 44.25 15.06 1.00 0.34 29.64 455.69 525.75 1.15 9/11/05 9/15/05
41 {169 + 50.8}
{R 2 + 75.5}
215.93 28.25 9.61 2.00 0.68 ... 205.64 236.50 1.15 10/3/05 10/6/05
42 {178 + 84.1}
{179 + 27.2}
177.62 23.00 7.83 1.50 0.51 7.06 162.22 194.75 1.20 10/9/05 10/11/05
44 {180 + 05.5}
{180 + 44.2}
936.15 58.75 19.99 10.50 3.47 73.84 838.85 987.00 1.18 11/17/05 11/27/05
45 {180 + 44.2}
{180 + 74.9}
1,133.59 60.00 20.42 5.00 1.70 60.71 1,050.86 1,206.00 1.15 12/13/05 12/23/05
46 {179 + 64.2}
{180 + 05.5}
477.14 35.00 11.91 3.75 1.28 24.58 439.37 535.00 1.22 1/15/06 1/19/06
47 {169 + 00.1}
{169 + 50.8}
136.19 14.25 4.85 3.50 1.19 2.00 128.15 150.50 1.17 4/4/06 4/6/06
48 {178 + 24.1}
{178 + 48.7}
192.78 21.25 7.23 2.00 0.68 ... 184.87 226.00 1.22 4/24/06 4/30/06
380 49 {177 + 81.1}
{178 + 24.1}
241.51 25.25 8.59 2.50 0.85 1.33 230.74 274.00 1.19 5/21/06 5/24/06
50 {168 + 03.6}
{168 + 45.6}
405.61 25.50 8.68 4.00 1.36 36.10 359.47 406.00 1.13 6/13/06 6/18/06
51 {177 + 38.4}
{177 + 81.1}
100.54 12.75 4.34 3.00 1.02 0.78 94.40 112.00 1.19 6/20/06 6/21/06
52 {168 + 45.6}
{168 + 80.1}
181.96 19.00 6.47 1.00 0.34 9.03 166.12 190.00 1.14 6/25/06 6/28/06
53 {168 + 80.1}
{169 + 00.1}
41.32 3.50 1.19 ... ... ... 40.13 44.50 1.11 6/29/06 6/29/06
55 {176 + 90.0}
{177 + 38.4}
92.41 11.25 3.83 2.50 0.85 3.68 84.05 98.25 1.17 8/17/06 8/18/06
56 {167 + 62.1}
{168 + 03.6}
383.67 33.75 11.48 3.25 1.11 36.62 334.46 383.50 1.14 8/28/06 9/1/06
59 {175 + 67.3}
{175 + 98.9}
175.61 15.50 5.27 2.50 0.85 9.37 160.12 186.00 1.16 10/15/06 10/16/06
60 {176 + 49.0}
{176 + 90.0}
69.97 8.25 2.81 3.00 1.02 1.58 64.56 75.00 1.16 10/17/06 10/18/06
61 {175 + 98.9}
{176 + 49.0}
104.56 8.00 2.72 3.50 1.19 3.72 96.93 108.00 1.11 10/19/06 10/20/06
64 {175 + 30.3}
{175 + 67.3}
140.15 14.75 5.02 2.75 0.94 ... 134.19 161.50 1.20 11/21/06 11/22/06
65 {174 + 85.4}
{175 + 30.3}
80.66 9.00 3.06 2.50 0.85 ... 76.75 92.75 1.21 12/14/06 12/15/06
66 {174 + 47.9}
{174 + 85.4}
68.89 5.50 1.87 3.25 1.11 ... 65.91 83.50 1.27 12/18/06 12/18/06
67 {174 + 21.1}
{174 + 47.9}
60.14 3.00 1.02 2.00 0.68 0.92 57.52 67.50 1.17 12/21/06 12/21/06
68 {167 + 12.3}
{167 + 62.1}
379.94 23.50 8.00 5.00 1.70 19.34 350.90 412.50 1.17 1/2/07 1/6/07
69 {173 + 85.6}
{174 + 21.1}
77.43 6.50 2.21 3.00 1.02 ... 74.20 91.00 1.23 1/29/07 1/30/07
70 {166 + 75.6}
{167 + 12.3}
408.81 33.75 11.48 3.75 1.28 ... 396.05 468.50 1.18 4/2/07 4/10/07
71 {173 + 46.5}
{173 + 85.6}
85.92 8.25 2.81 1.75 0.60 ... 82.51 95.75 1.16 4/17/07 4/19/07
74 {172 + 19.2}
{172 + 73.0}
449.28 22.75 7.74 6.25 2.13 ... 439.41 506.00 1.15 6/20/07 6/24/07
75 {172 + 73.0}
{173 + 24.0}
502.20 27.25 9.27 7.00 2.38 ... 490.55 579.00 1.18 7/8/07 8/25/07
77 {164 + 77.0}
{165 + 27.1}
141.38 9.00 3.06 7.25 2.47 ... 135.85 161.50 1.19 7/13/07 7/15/07
78 {168 + 83.4}
{169 + 18.3}
63.35 3.00 1.02 1.50 0.51 ... 61.82 73.00 1.18 7/13/07 7/14/07
382 80 {165 + 27.1}
{165 + 76.6}
108.86 11.75 4.00 3.00 1.02 ... 103.84 133.50 1.28 18/07 7/19/07
81 {168 + 45.6}
{168 + 83.4}
210.97 13.00 4.42 6.25 2.13 ... 204.42 255.75 1.25 20/07 7/23/07
83 {165 + 76.6}
{166 + 20.5}
108.06 8.00 2.72 3.75 1.28 ... 104.06 128.50 1.23 7/25/07 7/27/07
85 {166 + 20.5}
{166 + 64.6}
107.52 9.00 3.06 2.25 0.76 ... 103.70 144.50 1.39 7/29/07 7/30/07
87 {166 + 64.6}
{166 + 75.6}
23.44 1.00 0.34 2.25 0.42 ... 22.68 30.00 1.32 7/31/07 7/31/07
88 {164 + 26.3}
{164 + 77.0}
317.72 24.00 8.17 2.25 0.76 ... 308.79 370.00 1.20 8/8/07 8/11/07
89 {173 + 20.8}
{173 + 46.5}
93.51 5.60 1.70 1.50 0.51 ... 91.30 121.75 1.33 9/7/07 9/8/07
91 {180 + 74.9}
{180 + 92.7}
141.40 17.50 5.96 ... ... ... 135.44 203.50 1.50 11/18/07 11/20/0
92 {180 + 92.7}
{181 + 28.8}
118.93 19.00 6.46 ... ... ... 112.47 190.00 1.69 12/1/08 12/2/08

Note.—The number of cubic yards of crushed stone used in any section can be found by multiplying the figure for that section in Column 10 by 0.7778.

The number of cubic yards of sand used in any section can be found by multiplying the sum of the figures for that section in Columns 4, 6, and 10 by 0.3889.

Remarks.—Section No. 47. Part of this section was removed on account of damage done by blasting and was replaced by Section No. 78.

Section No. 52. All of this section was removed on account of damage done by blasting and was replaced by Section No. 81.

Section No. 53. All of this section was removed on account of damage done by blasting and was replaced by Sections Nos. 78 and 81.


383
TABLE 3.—Record of Retaining Wall Sections.
(1) Section No. (8) Cubic yards of embedded stone.
(2) Stations. (9) Cubic yards of concrete in section (net).
(3) Contents of section, in cubic yards. (10) Barrels of cement used in concrete.
(4) Barrels of cement used for facing. (11) Barrels of cement per cubic yard of concrete.
(5) Cubic yards of facing mortar equivalent. (12) Concrete started.
(6) Barrels of cement used for bed mortar. (13) Concrete finished.
(7) Cubic yards of bed mortar equivalent.
Power-House.
(1) (2) (3) (4) (5) (6) (7) (8) (9) (10) (11) (12) (13)
A {L2 + 75.3}
{L3 + 25.3}
463.28 58.25 19.82 5.50 1.87 11.50 430.09 482.75 1.12 5/18/05 5/25/05
B {L3 + 25.3}
{L3 + 74.9}
114.78 23.00 7.83 1.75 0.60 1.50 104.85 125.50 1.20 6/14/05 6/16/05
C {169 + 30.8}
{169 + 74.8}
179.19 34.25 11.66 1.00 0.34 3.60 163.59 183.00 1.12 7/10/05 7/13/05
D {169 + 74.8}
{170 + 28.8}
114.38 27.25 9.27 0.25 0.09 0.07 104.95 119.25 1.14 7/14/05 7/19/05
E {168 + 83.6}
{169 + 30.8}
101.20 22.00 7.49 1.50 0.51 0.65 92.55 107.25 1.16 7/26/05 7/28/05
F {L2 + 78.2}
{L3 + 19.6}
358.80 39.50 13.44 0.75 0.26 9.50 335.60 397.75 1.18 9/19/05 9/24/05
G {L3 + 19.6}
{L3 + 56.9}
237.33 23.00 7.83 1.00 0.34 0.74 228.42 278.00 1.22 9/26/05 9/29/05
H {L3 + 56.9}
{168 + 83.5}
25.55 6.25 2.13 0.75 0.26 ... 23.16 28.00 1.21 9/29/05 9/29/05
Seventh Avenue.
54 {164 + 27.6}
{L2 + 32.0}
764.48 69.75 23.74 3.00 1.02 ... 739.72 907.50 1.23 8/6/06 8/15/06
57 {L2 + 10.3}
{L2 + 32.0}
533.06 34.00 11.57 2.25 0.77 ... 520.72 610.75 1.17 9/10/06 9/15/06
58 {L1 + 87.1}
{L2 + 10.3}
544.54 32.25 10.97 2.00 0.68 9.80 523.09 588.25 1.12 9/24/06 9/28/06
62 {L1 + 87.1}
{L1 + 64.4}
575.67 30.00 10.21 3.00 1.02 6.20 538.24 639.50 1.19 10/24/06 10/29/06
63 {L1 + 42.4}
{L1 + 64.4}
607.01 30.50 10.38 2.50 0.85 3.79 581.99 678.50 1.17 11/5/06 11/11/06
72 {L1 + 42.4}
{L1 + 19.6}
631.97 30.00 10.21 1.75 0.60 1.18 619.98 719.50 1.16 4/25/07 4/30/07
73 {L1 + 19.6}
{L0 + 97.0}
573.33 25.25 8.59 0.25 0.08 2.48 562.18 685.75 1.22 5/13/07 5/18/07

Note.—The number of cubic yards of crushed stone used in any section can be found by multiplying the figure for that section in Column 10 by 0.7778. The number of cubic yards of sand used in any section can be found by multiplying the sum of the figures for that section in Columns 4, 6, and 10 by 0.3889.

384 Channeling with a 10-ft quarry bar, carrying a No. 4 Ingersoll-Rand drill with Z-bits, was attempted in place of the close drilling below the walls, but, as the rock stood so nearly vertical and was full of soft seams, very little could be accomplished, the average cut per day of 10 hours, counting the time of moving and setting up, was only 4 sq. ft., and, after a thorough trial, the bars were abandoned.

Disposal.—The excavated material was hauled from the shovels to the pier in 10-car trains. The cars were of three classes: 4-yd. Western dump-cars, flat cars without skips, and flats carrying specially designed steel skips having a capacity of 4 cu. yd. each. As far as practicable, earth, and rock containing 1 cu. yd. or less, was loaded on dumpers, medium-sized rock on the skips, and large rock on the bare flats. As a steam shovel must pick up what is nearest to it first, however, this classification could not always be adhered to, and many large rocks were loaded into dumpers. Cars of this class which contained no material too large to dump were run at once to the hoppers, and were dumped and returned to the pit; others, together with the flat and skip cars, were run down the incline to the derricks and telphers, where the flats and skips were entirely unloaded, and the large rocks ware removed from the dumpers, after which they were run to the hoppers and emptied.

The total quantity of excavated material handled at this pier from May 22d, 1905, to December 31st, 1908, amounted to 673,800 cu. yd. of earth and 1,488,000 cu. yd. of rock, place measurement, equal to 3,203,400 cu. yd., scow measurement; in addition to which 175,000 cu. yd. of crushed stone and sand and 6,000 car loads of miscellaneous building material were transferred from scows and lighters to small cars for delivery to the Terminal work.

All the earth and 570,000 cu. yd. of the rock, place measurement, were handled through the chutes, and the remainder of the rock, 918,000 cu. yd., and all the incoming material by the derricks and telphers. In capacity to handle material, one telpher was about equal to one derrick. A train, therefore, could be emptied or a boat loaded under the bank of eight telphers in one-fourth the time required by the derricks, of which only two could work on one boat. The telphers, therefore, were of great advantage where track room and scow berths were limited.

As noted in the list of contracts under which the work was executed, 385 the scows at both the 35th Street dumping board and Pier No. 72 were furnished, towed, and the material finally disposed of, by Henry Steers, Incorporated. During the same period, this contractor disposed of the material excavated from both the Cross-town Tunnels, constructed by the United Engineering and Contracting Company, and the tunnels under the East River, constructed by S. Pearson and Son, Incorporated. As stated in other papers of this series relating to the construction of those tunnels, the material excavated by the United Engineering and Contracting Company was delivered to barges at 35th Street and East River and that by S. Pearson and Son, Incorporated, at two points, one in Long Island City and the other at 33d Street and East River, Manhattan.

The total number of cubic yards of material disposed of amounted to:

Place measurement. Total barge
measurement.
Earth. Rock.
35th Street and North River 242,800 22,800 281,500
Pier No. 72, North River 673,800 1,488,000 3,203,400
From Cross-town Tunnels 570,400
From Under-river Tunnels 402,500
Total 4,457,800

The material was delivered as follows:

To the freight terminal of the Pennsylvania Railroad Company at Greenville, N. J.
3,454,800
To the Meadows Division of the Tunnel Line between Harrison, N. J., and the North River Portals
711,900
To other points selected by the contractors
291,100
Total 4,457,800

The handling of this large quantity of material required the loading of from 10 to 20 scows per day (and for more than two years the average was 14), and, as the average time spent in one round trip was 3 1/3 days, a fleet of more than 50 scows was required to keep all points supplied and allow for a few to be out of service undergoing repairs.

All loaded scows were towed from the docks, with the ebb tide, to a stake boat anchored in the bay about one mile off shore at Greenville; and were taken from there to the different unloading points, as required, by smaller tugs which also returned the empty scows to the stake.

386 The unloading plants were similar at the different points, although that at Greenville was much larger than the others. It included five land dredges and eight traveling derricks of two types, one floating and the other mounted on wheels and traveling on a track of 16-ft. gauge. The derricks handled the large rock, which was loaded at Pier No. 72 by derricks and telphers. They were of the ordinary A-frame type, and were designed to handle 20 tons. They were operated by 9 by 10-in. Lidgerwood double-drum and swinging-gear engines. The large rock was deposited by the derricks either in the channels along which they worked or in the fill along shore, without the use of cars. The land dredges were equipped with a 60-ft. boom and a 2½-yd. Hayward bucket operated by a 14 by 18-in. double-drum Lidgerwood dredging engine. They loaded into 9-yd., standard-gauge, side-dump cars, built by the contractor, and unloaded the scows to within about 1 ft. of the deck, a Hayward bucket being unsuitable for closer work without greatly damaging the scows. The material remaining was loaded by hand into skips which were handled to the cars by small derricks, one of which was located at the rear of each dredge. The cars were taken to the dump and returned by 25-ton, standard-gauge, engines which had previously done service on the Manhattan Elevated Railroad, but were spotted for loading by the engine on the dredge.

In order to keep a record of the fleet of scows, which would show the available supply at a glance, a board, 10 by 15 in., and covered with a heavy sheet of ruled paper, was arranged as shown by Fig. 10. It was divided into 12 vertical columns, the first of which was headed "Scows," and contained the name or number of each scow in service. The next four columns denoted loading points, and were headed "Pier No. 72," "Thirty-third Street, East River," "Thirty-fifth Street, East River," and "Long Island City," respectively; the sixth column was headed "Greenville," the seventh "Hackensack," the eighth "Passaic," and the ninth "Governors Island," being unloading points, the tenth and eleventh, "Stake Boat" and "Dry Dock," respectively, while the twelfth was for "Extra pins," not in use. To indicate the condition of the scows, small pins with colored heads were used; white indicated empty; blue, working; black, loaded; red, being repaired; and a pearl-colored pin, missing. Thus a white-headed pin opposite the number 6 in the column headed Pier No. 72 indicated that scow No. 6 was lying at that pier waiting to be placed in position for 387 loading, whereas a black-headed pin at the same point meant that the scow had received its load and was ready to be towed.

Fig. 10.
Figure 10
BOARD
RECORDING LOCATION AND CONDITION OF SCOWS

The scows were all taken from the general service about the harbor; some of them were practically new, while others had seen much service. They were of two general types, truss-framed or bulkhead-framed; all were flat-bottomed, with a rake of about 45° at bow and stern. The truss-framed scows were built with a cross-truss every 10 to 15 ft., on which rested, fore and aft, two classes of beams, main and intermediate. The main beams were built of timbers ranging from 10 by 10 in. to 14 by 14 in., were scarfed at the joints, and trussed with the bottom logs. The intermediate beams were of timbers varying from 6 by 6 in. to 10 by 12 in., had butt joints, and were dapped at the cross-trusses to give a convex surface to the deck, which was built of 3-in. and 4-in. plank, from 8 to 12 in. in width, running athwartship. The sides of the scows of this class were spiked and bolted to trusses similar to those running under the main beams. The bulkheaded boats had both sides and two longitudinal bulkheads placed so as to divide the scow into three sections of equal width, built of 8 by 8-in. or 10 by 10-in. timbers, laid one upon the other, and bolted through from top to bottom. The beams on these boats ran athwartship, rested on sides and bulkheads, and ranged from 6 by 10-in. to 10 by 12-in., spaced 2 ft. apart, and dressed to give a convex surface to the deck, which 388 was usually 3 in., in some cases 4 in., in thickness, and made up of narrow plank from 4 to 6 in. in width.

These boats had all been designed for lighter work than they were here required to perform, and a large amount of breakage occurred from the start. In order that the contractors for the excavation should be unhampered as to method of loading, the contracts provided that they should pay for all damage done to the scows in loading, other than ordinary and usual wear and tear, all other damage being at the expense of the contractor for the disposal. A rigid system of inspection was necessary to determine and record properly the damage for which each contractor was responsible; and, as much of the breakage could not be noticed from the exterior, a thorough examination of the interior of each scow was made before and after every loading. In 389 order to keep proper records, the bays of each scow, formed by the cross-trusses, were numbered, beginning aft with number 1 and going forward to the bow, and the longitudinal bays formed by the main beams were lettered, beginning with "A" on the port side. A beam broken in "1-A," therefore, would be an intermediate beam in the stern port corner bay, and a beam broken in "10-A-B" would be a main beam at the bow end on the port side. The underside of each plank was marked with a number beginning with 1 at the stern and increasing by unity to the bow. Fig. 11 is a diagram of a scow in accordance with this system. In addition to recording the date, location, extent, and party responsible for each damage, in a book kept for that purpose, the injured member was marked with paint, the color of which indicated the party responsible. The repairs were made by the contractor for the disposal of material, and the cost was assessed according to the marking in the boat.

Fig. 11.
Figure 11
DIAGRAM OF DECK SHOWING BAYS

The careful inspection of the damage done to scows and the cost of their repairs enables a fairly accurate statement to be made of the amount at different points, and it is here given on the basis of cost of repairs per cubic yard, barge measurement, of material handled.

Cost, in cents per cubic yard.
Repairs of damage done in loading material from the terminal site
2.00
Repairs of damage done in loading material from cross-town tunnels
1.32
Repairs of damage done in loading material from under-river tunnels
1.77
Repairs of damage done in transporting and unloading material from all points
1.81

The above figures do not include the expense due to scows which were overturned or sunk while in the service, which amounted to 0.4 cent per cubic yard, additional.

Ninth Avenue Tunnels.—The two double-track tunnels under Ninth Avenue, constructed to obtain 100 ft. of additional tail room on each of four tracks, required an excavation 76 ft. wide, Fig. 12. The rock, although fair, was not firm enough for so great a span, and, to obviate the necessity of timbering, the center wall was built before excavating 390 for the full width. The dip of the rock at this point is almost 90°, and to prevent blowing away the entire face in excavating for the tunnel, the pit excavation was not carried west to the final face below the springing line, a 10-ft. bench being left at that elevation. A top heading 9 ft. high and 10 ft. wide was started above that bench and, after penetrating about 10 ft., was widened to 20 ft. A cross-heading was driven in each direction at the west end of the first heading; the bench was then shot down, and the first 10 ft. of the longitudinal heading was widened sufficiently to receive the center wall, Fig. 12. After the middle wall had been concreted, any voids between its top and the rock were grouted through pipes left for that purpose; the wall was then protected by curtains of heavy round timber securely wired together, and the remainder of the excavation was made by widening the cross-headings toward the face. The muck was carried out by two cableways, one on each side of the completed middle wall, each of which was supported by a tower outside of the tunnel and a large hook-bolt grouted into the rock at the inner end of the tunnel. Forms were built for each tunnel complete, and the concrete was delivered by a belt conveyor, running over the top of the lagging, and moved out as the tunnel was keyed.

Fig. 12.
TERMINAL STATION SKETCH SHOWING TWO TRACK TUNNELS
AT NINTH AVENUE AND THIRTY-THIRD STREET


1. Presented at the meeting of May 4th, 1910.
2. Reproduced as Plate IX in the paper by Mr. Noble.





End of the Project Gutenberg EBook of Transactions of the American Society
of Civil Engineers, vol. LXVIII, Sept. 1910, by George C. Clarke

*** END OF THIS PROJECT GUTENBERG EBOOK SOCIETY OF CIVIL ENGINEERS ***

***** This file should be named 18408-h.htm or 18408-h.zip *****
This and all associated files of various formats will be found in:
        http://www.gutenberg.org/1/8/4/0/18408/

Produced by Louise Hope, Juliet Sutherland and the Online
Distributed Proofreading Team at http://www.pgdp.net


Updated editions will replace the previous one--the old editions
will be renamed.

Creating the works from public domain print editions means that no
one owns a United States copyright in these works, so the Foundation
(and you!) can copy and distribute it in the United States without
permission and without paying copyright royalties.  Special rules,
set forth in the General Terms of Use part of this license, apply to
copying and distributing Project Gutenberg-tm electronic works to
protect the PROJECT GUTENBERG-tm concept and trademark.  Project
Gutenberg is a registered trademark, and may not be used if you
charge for the eBooks, unless you receive specific permission.  If you
do not charge anything for copies of this eBook, complying with the
rules is very easy.  You may use this eBook for nearly any purpose
such as creation of derivative works, reports, performances and
research.  They may be modified and printed and given away--you may do
practically ANYTHING with public domain eBooks.  Redistribution is
subject to the trademark license, especially commercial
redistribution.



*** START: FULL LICENSE ***

THE FULL PROJECT GUTENBERG LICENSE
PLEASE READ THIS BEFORE YOU DISTRIBUTE OR USE THIS WORK

To protect the Project Gutenberg-tm mission of promoting the free
distribution of electronic works, by using or distributing this work
(or any other work associated in any way with the phrase "Project
Gutenberg"), you agree to comply with all the terms of the Full Project
Gutenberg-tm License (available with this file or online at
http://gutenberg.org/license).


Section 1.  General Terms of Use and Redistributing Project Gutenberg-tm
electronic works

1.A.  By reading or using any part of this Project Gutenberg-tm
electronic work, you indicate that you have read, understand, agree to
and accept all the terms of this license and intellectual property
(trademark/copyright) agreement.  If you do not agree to abide by all
the terms of this agreement, you must cease using and return or destroy
all copies of Project Gutenberg-tm electronic works in your possession.
If you paid a fee for obtaining a copy of or access to a Project
Gutenberg-tm electronic work and you do not agree to be bound by the
terms of this agreement, you may obtain a refund from the person or
entity to whom you paid the fee as set forth in paragraph 1.E.8.

1.B.  "Project Gutenberg" is a registered trademark.  It may only be
used on or associated in any way with an electronic work by people who
agree to be bound by the terms of this agreement.  There are a few
things that you can do with most Project Gutenberg-tm electronic works
even without complying with the full terms of this agreement.  See
paragraph 1.C below.  There are a lot of things you can do with Project
Gutenberg-tm electronic works if you follow the terms of this agreement
and help preserve free future access to Project Gutenberg-tm electronic
works.  See paragraph 1.E below.

1.C.  The Project Gutenberg Literary Archive Foundation ("the Foundation"
or PGLAF), owns a compilation copyright in the collection of Project
Gutenberg-tm electronic works.  Nearly all the individual works in the
collection are in the public domain in the United States.  If an
individual work is in the public domain in the United States and you are
located in the United States, we do not claim a right to prevent you from
copying, distributing, performing, displaying or creating derivative
works based on the work as long as all references to Project Gutenberg
are removed.  Of course, we hope that you will support the Project
Gutenberg-tm mission of promoting free access to electronic works by
freely sharing Project Gutenberg-tm works in compliance with the terms of
this agreement for keeping the Project Gutenberg-tm name associated with
the work.  You can easily comply with the terms of this agreement by
keeping this work in the same format with its attached full Project
Gutenberg-tm License when you share it without charge with others.

1.D.  The copyright laws of the place where you are located also govern
what you can do with this work.  Copyright laws in most countries are in
a constant state of change.  If you are outside the United States, check
the laws of your country in addition to the terms of this agreement
before downloading, copying, displaying, performing, distributing or
creating derivative works based on this work or any other Project
Gutenberg-tm work.  The Foundation makes no representations concerning
the copyright status of any work in any country outside the United
States.

1.E.  Unless you have removed all references to Project Gutenberg:

1.E.1.  The following sentence, with active links to, or other immediate
access to, the full Project Gutenberg-tm License must appear prominently
whenever any copy of a Project Gutenberg-tm work (any work on which the
phrase "Project Gutenberg" appears, or with which the phrase "Project
Gutenberg" is associated) is accessed, displayed, performed, viewed,
copied or distributed:

This eBook is for the use of anyone anywhere at no cost and with
almost no restrictions whatsoever.  You may copy it, give it away or
re-use it under the terms of the Project Gutenberg License included
with this eBook or online at www.gutenberg.org

1.E.2.  If an individual Project Gutenberg-tm electronic work is derived
from the public domain (does not contain a notice indicating that it is
posted with permission of the copyright holder), the work can be copied
and distributed to anyone in the United States without paying any fees
or charges.  If you are redistributing or providing access to a work
with the phrase "Project Gutenberg" associated with or appearing on the
work, you must comply either with the requirements of paragraphs 1.E.1
through 1.E.7 or obtain permission for the use of the work and the
Project Gutenberg-tm trademark as set forth in paragraphs 1.E.8 or
1.E.9.

1.E.3.  If an individual Project Gutenberg-tm electronic work is posted
with the permission of the copyright holder, your use and distribution
must comply with both paragraphs 1.E.1 through 1.E.7 and any additional
terms imposed by the copyright holder.  Additional terms will be linked
to the Project Gutenberg-tm License for all works posted with the
permission of the copyright holder found at the beginning of this work.

1.E.4.  Do not unlink or detach or remove the full Project Gutenberg-tm
License terms from this work, or any files containing a part of this
work or any other work associated with Project Gutenberg-tm.

1.E.5.  Do not copy, display, perform, distribute or redistribute this
electronic work, or any part of this electronic work, without
prominently displaying the sentence set forth in paragraph 1.E.1 with
active links or immediate access to the full terms of the Project
Gutenberg-tm License.

1.E.6.  You may convert to and distribute this work in any binary,
compressed, marked up, nonproprietary or proprietary form, including any
word processing or hypertext form.  However, if you provide access to or
distribute copies of a Project Gutenberg-tm work in a format other than
"Plain Vanilla ASCII" or other format used in the official version
posted on the official Project Gutenberg-tm web site (www.gutenberg.org),
you must, at no additional cost, fee or expense to the user, provide a
copy, a means of exporting a copy, or a means of obtaining a copy upon
request, of the work in its original "Plain Vanilla ASCII" or other
form.  Any alternate format must include the full Project Gutenberg-tm
License as specified in paragraph 1.E.1.

1.E.7.  Do not charge a fee for access to, viewing, displaying,
performing, copying or distributing any Project Gutenberg-tm works
unless you comply with paragraph 1.E.8 or 1.E.9.

1.E.8.  You may charge a reasonable fee for copies of or providing
access to or distributing Project Gutenberg-tm electronic works provided
that

- You pay a royalty fee of 20% of the gross profits you derive from
     the use of Project Gutenberg-tm works calculated using the method
     you already use to calculate your applicable taxes.  The fee is
     owed to the owner of the Project Gutenberg-tm trademark, but he
     has agreed to donate royalties under this paragraph to the
     Project Gutenberg Literary Archive Foundation.  Royalty payments
     must be paid within 60 days following each date on which you
     prepare (or are legally required to prepare) your periodic tax
     returns.  Royalty payments should be clearly marked as such and
     sent to the Project Gutenberg Literary Archive Foundation at the
     address specified in Section 4, "Information about donations to
     the Project Gutenberg Literary Archive Foundation."

- You provide a full refund of any money paid by a user who notifies
     you in writing (or by e-mail) within 30 days of receipt that s/he
     does not agree to the terms of the full Project Gutenberg-tm
     License.  You must require such a user to return or
     destroy all copies of the works possessed in a physical medium
     and discontinue all use of and all access to other copies of
     Project Gutenberg-tm works.

- You provide, in accordance with paragraph 1.F.3, a full refund of any
     money paid for a work or a replacement copy, if a defect in the
     electronic work is discovered and reported to you within 90 days
     of receipt of the work.

- You comply with all other terms of this agreement for free
     distribution of Project Gutenberg-tm works.

1.E.9.  If you wish to charge a fee or distribute a Project Gutenberg-tm
electronic work or group of works on different terms than are set
forth in this agreement, you must obtain permission in writing from
both the Project Gutenberg Literary Archive Foundation and Michael
Hart, the owner of the Project Gutenberg-tm trademark.  Contact the
Foundation as set forth in Section 3 below.

1.F.

1.F.1.  Project Gutenberg volunteers and employees expend considerable
effort to identify, do copyright research on, transcribe and proofread
public domain works in creating the Project Gutenberg-tm
collection.  Despite these efforts, Project Gutenberg-tm electronic
works, and the medium on which they may be stored, may contain
"Defects," such as, but not limited to, incomplete, inaccurate or
corrupt data, transcription errors, a copyright or other intellectual
property infringement, a defective or damaged disk or other medium, a
computer virus, or computer codes that damage or cannot be read by
your equipment.

1.F.2.  LIMITED WARRANTY, DISCLAIMER OF DAMAGES - Except for the "Right
of Replacement or Refund" described in paragraph 1.F.3, the Project
Gutenberg Literary Archive Foundation, the owner of the Project
Gutenberg-tm trademark, and any other party distributing a Project
Gutenberg-tm electronic work under this agreement, disclaim all
liability to you for damages, costs and expenses, including legal
fees.  YOU AGREE THAT YOU HAVE NO REMEDIES FOR NEGLIGENCE, STRICT
LIABILITY, BREACH OF WARRANTY OR BREACH OF CONTRACT EXCEPT THOSE
PROVIDED IN PARAGRAPH F3.  YOU AGREE THAT THE FOUNDATION, THE
TRADEMARK OWNER, AND ANY DISTRIBUTOR UNDER THIS AGREEMENT WILL NOT BE
LIABLE TO YOU FOR ACTUAL, DIRECT, INDIRECT, CONSEQUENTIAL, PUNITIVE OR
INCIDENTAL DAMAGES EVEN IF YOU GIVE NOTICE OF THE POSSIBILITY OF SUCH
DAMAGE.

1.F.3.  LIMITED RIGHT OF REPLACEMENT OR REFUND - If you discover a
defect in this electronic work within 90 days of receiving it, you can
receive a refund of the money (if any) you paid for it by sending a
written explanation to the person you received the work from.  If you
received the work on a physical medium, you must return the medium with
your written explanation.  The person or entity that provided you with
the defective work may elect to provide a replacement copy in lieu of a
refund.  If you received the work electronically, the person or entity
providing it to you may choose to give you a second opportunity to
receive the work electronically in lieu of a refund.  If the second copy
is also defective, you may demand a refund in writing without further
opportunities to fix the problem.

1.F.4.  Except for the limited right of replacement or refund set forth
in paragraph 1.F.3, this work is provided to you 'AS-IS' WITH NO OTHER
WARRANTIES OF ANY KIND, EXPRESS OR IMPLIED, INCLUDING BUT NOT LIMITED TO
WARRANTIES OF MERCHANTIBILITY OR FITNESS FOR ANY PURPOSE.

1.F.5.  Some states do not allow disclaimers of certain implied
warranties or the exclusion or limitation of certain types of damages.
If any disclaimer or limitation set forth in this agreement violates the
law of the state applicable to this agreement, the agreement shall be
interpreted to make the maximum disclaimer or limitation permitted by
the applicable state law.  The invalidity or unenforceability of any
provision of this agreement shall not void the remaining provisions.

1.F.6.  INDEMNITY - You agree to indemnify and hold the Foundation, the
trademark owner, any agent or employee of the Foundation, anyone
providing copies of Project Gutenberg-tm electronic works in accordance
with this agreement, and any volunteers associated with the production,
promotion and distribution of Project Gutenberg-tm electronic works,
harmless from all liability, costs and expenses, including legal fees,
that arise directly or indirectly from any of the following which you do
or cause to occur: (a) distribution of this or any Project Gutenberg-tm
work, (b) alteration, modification, or additions or deletions to any
Project Gutenberg-tm work, and (c) any Defect you cause.


Section  2.  Information about the Mission of Project Gutenberg-tm

Project Gutenberg-tm is synonymous with the free distribution of
electronic works in formats readable by the widest variety of computers
including obsolete, old, middle-aged and new computers.  It exists
because of the efforts of hundreds of volunteers and donations from
people in all walks of life.

Volunteers and financial support to provide volunteers with the
assistance they need, is critical to reaching Project Gutenberg-tm's
goals and ensuring that the Project Gutenberg-tm collection will
remain freely available for generations to come.  In 2001, the Project
Gutenberg Literary Archive Foundation was created to provide a secure
and permanent future for Project Gutenberg-tm and future generations.
To learn more about the Project Gutenberg Literary Archive Foundation
and how your efforts and donations can help, see Sections 3 and 4
and the Foundation web page at http://www.pglaf.org.


Section 3.  Information about the Project Gutenberg Literary Archive
Foundation

The Project Gutenberg Literary Archive Foundation is a non profit
501(c)(3) educational corporation organized under the laws of the
state of Mississippi and granted tax exempt status by the Internal
Revenue Service.  The Foundation's EIN or federal tax identification
number is 64-6221541.  Its 501(c)(3) letter is posted at
http://pglaf.org/fundraising.  Contributions to the Project Gutenberg
Literary Archive Foundation are tax deductible to the full extent
permitted by U.S. federal laws and your state's laws.

The Foundation's principal office is located at 4557 Melan Dr. S.
Fairbanks, AK, 99712., but its volunteers and employees are scattered
throughout numerous locations.  Its business office is located at
809 North 1500 West, Salt Lake City, UT 84116, (801) 596-1887, email
business@pglaf.org.  Email contact links and up to date contact
information can be found at the Foundation's web site and official
page at http://pglaf.org

For additional contact information:
     Dr. Gregory B. Newby
     Chief Executive and Director
     gbnewby@pglaf.org


Section 4.  Information about Donations to the Project Gutenberg
Literary Archive Foundation

Project Gutenberg-tm depends upon and cannot survive without wide
spread public support and donations to carry out its mission of
increasing the number of public domain and licensed works that can be
freely distributed in machine readable form accessible by the widest
array of equipment including outdated equipment.  Many small donations
($1 to $5,000) are particularly important to maintaining tax exempt
status with the IRS.

The Foundation is committed to complying with the laws regulating
charities and charitable donations in all 50 states of the United
States.  Compliance requirements are not uniform and it takes a
considerable effort, much paperwork and many fees to meet and keep up
with these requirements.  We do not solicit donations in locations
where we have not received written confirmation of compliance.  To
SEND DONATIONS or determine the status of compliance for any
particular state visit http://pglaf.org

While we cannot and do not solicit contributions from states where we
have not met the solicitation requirements, we know of no prohibition
against accepting unsolicited donations from donors in such states who
approach us with offers to donate.

International donations are gratefully accepted, but we cannot make
any statements concerning tax treatment of donations received from
outside the United States.  U.S. laws alone swamp our small staff.

Please check the Project Gutenberg Web pages for current donation
methods and addresses.  Donations are accepted in a number of other
ways including checks, online payments and credit card donations.
To donate, please visit: http://pglaf.org/donate


Section 5.  General Information About Project Gutenberg-tm electronic
works.

Professor Michael S. Hart is the originator of the Project Gutenberg-tm
concept of a library of electronic works that could be freely shared
with anyone.  For thirty years, he produced and distributed Project
Gutenberg-tm eBooks with only a loose network of volunteer support.


Project Gutenberg-tm eBooks are often created from several printed
editions, all of which are confirmed as Public Domain in the U.S.
unless a copyright notice is included.  Thus, we do not necessarily
keep eBooks in compliance with any particular paper edition.


Most people start at our Web site which has the main PG search facility:

     http://www.gutenberg.org

This Web site includes information about Project Gutenberg-tm,
including how to make donations to the Project Gutenberg Literary
Archive Foundation, how to help produce our new eBooks, and how to
subscribe to our email newsletter to hear about new eBooks.